Malls & Community

Page 1

ARC304 ARCHITECTURAL DESIGN 4 ASST.PROF.PREECHAYA ROJRUEDAKORN       2021.10.13 X16 / 09.00am / zoom app. ARCTECH STUDIO For Educational Use Only WFV SAIMA PARK & MARKET   COMMON-THONGLOR COMMON-SALADANG MAZE THONGLOR SUNNY
HABITO ARCTECH STUDIO
at Summer Lasalle
1  https://dsignsomething.com/2016/03/11/7690/ ARC304 ARCHITECTURAL DESIGN 4  Community Mall เปนรูปแบบการคาปลีก ที่เกิดขึ้นจากความตองการสรางบรรยากาศ ความแตกตางในศูนยการคาขนาดใหญ โดยผูคาปลีกรายยอยทั้งจากภาคเอกชนและรานคา ชุมชน กลายมาเปนศูนยการคาในขนาดที่เล็กลง การลงทุนก็นอยลง เพื่อสามารถแฝงตัวอยู ตามชุมชนเพื่อตอบสนองไลฟสไตล ผูประกอบการจึงหันมาปรับทิศทางธุรกิจใหมีขนาดที่เล็ก ลง แฝงตัวอยูตามชุมชน เนนการเขาถึงไดงายและตอบสนองไลฟสไตลผูบริโภคในปจจุบันที่มีวิถี ชีวิตที่เรงรีบ มีสิ่งอํานวยความสะดวก รานคา รานอาหาร และซุปเปอรมารเก็ตเปนหลัก  Community Mall มีการเติบโตขึ้นอยางรวดเร็วในชวง 4-5 ปที่ผานมา ขยายตัวจากทําเลยานชุมชนพักอาศัย มีประชากร ไหลเวียนสูงในเขตกรุงเทพชั้นในออกสูพื้นที่ถนนรอบนอก เมือง เขตปริมณฑล ถนนรอบหัวเมืองใหญตางๆ ภายใตคอน เซปดีไซนพิเศษ ชวยสรางความเปนเอกลักษณใหคนจดจํา และเพิ่มแรงดึงดูดผูคนในรัศมีการบริการ ไดเขามาใชงานโดย ไมตองเดินทางเขามาถึงหางใหญในตัวเมืองอีกตอไป  Data source: มีนาคม 2559
1  https://www.condonewb.com/lifestyle/573/ ARC304 ARCHITECTURAL DESIGN 4  COMMUNITY MALL Community mall คือ แหลงชอปปงของคนยุคใหม ที่มี เสนหเกินหามใจเพราะมันเต็มไปดวยความเรียบงายและ สะดวกสบายโดยจุดเดนของความเปน Community mall ก็คือ อยูใกลชิดกับแหลงชุมชน ผูคนเขาถึงไดงาย จับจาย สะดวกสบายกวาหางสรรพสินคา และที่สําคัญสําหรับผูลงทุน ยังใชเงินทุนนอยกวาการเปดหางสรรพสินคาอีกดวย ในพื้นที่ ของ Community mall จะเต็มไปดวยรานตาง ๆ มากมาย ที่มาเชาพื้นที่ขายของตัวอาคารประมาณ 2-4 ชั้น จึงแนนขนัด ไปดวย รานเสื้อผาแฟชั่น รานรองเทาแฟชั่น รานอาหาร ราน กาแฟ และอื่น ๆอีกมากมาย ที่สําคัญคือ พื้นที่ ใน Community mall ก็ยังเปนพื้นที่สําหรับวัยรุน วัยเรียน และวัยทํางาน สําหรับวัยรุน วัยเรียน มักจะมาแวะเวียนใน พื้นที่เหลานี้เพื่อรับประทานอาหาร เดินเลน ชอปปง ติว หนังสืออานหนังสือทํากิจกรรมตาง ๆ ตามประสาวัยรุน Community mall สําหรับวัยทํางาน มันคือแหลงนัดพบของ เพื่อนฝูงหลังเลิกงาน เพื่อนฝูงที่ไมไดเจอกันนาน หรือการ พบปะสังสรรคปารตี้ประจําวันหยุดสุดสัปดาห รวมไปถึง พื้นที่ชอปปงยอมๆ ที่สะดวกสบาย สุดทาย Community mall ยังใชเปนพื้นที่สําหรับนักธุรกิจยุคใหม ที่จะใชในการ ติดตอธุรกิจ หรือเปน Co-Working Space ไดเปนอยางดี  1 2 3 4 
1  ARC304 ARCHITECTURAL DESIGN 4  ชองวางระหวางตลาดกับหางใหญ – จุดสังเกตนึงที่เราเห็นไดชัดเจนของรูปแบบสถาปตยกรรม ของ Community Mall ก็คือการสลายความเปนกลุมกอนจากหางใหญใหบางลง ปรับเปน พื้นที่แบบกึ่ง indoor กึ่ง outdoor มีพื้นที่เชาของรานคาโครงการในหองปดติด เครื่องปรับอากาศ แตทางเดินและพื้นที่สวนกลางถูกผลักมาอยูดานนอก ไมสรางอาคารขึ้นมาปด ลอมครอบทั้งหมดเอาไวแบบศูนยการคาใหญ ซอนชั้นอาคารกันไมสูงมาก เนนการสรางพื้นที่แผ ขยายกันในทางราบ ชวยลดตนทุนการบริหารจัดการอาคารในระยะยาว สรางบรรยากาศการใช งานที่ไมตองเปนทางการมากนัก เชื้อเชิญใหกลุมเปาหมายผูใชงานอยากจะเลี้ยวแวะเขามาเดินดู ของกอนกลับบานแบบชิลๆ หามุมนั่งเลนสัมผัสกับลมเอื่อยๆ ที่ดานนอกหรือจะหลบรอนเขาไปรับ ลมปรับอากาศเย็นจากขางใน อาศัยชองวางของความขาด-เกินของตลาดเล็กกับหางใหญ วาง ตําแหนงใหตัวเองเปนเหมือนตลาดขายสินคาที่เดินสบาย เขาถึงงาย แตก็มีความสะดวกสบายและ สินคาบริการที่หลากหลายมาคอยตอบสนองความตองการคนยุคใหมไดครบครัน https://dsignsomething.com/2016/03/11/7690/ พื้นที่ตลาดนัดเฉพาะกิจ – เรากําลังพูดถึงอีเวนต ตลาดนัด เฉพาะกิจคนเมืองแบบ flea market ที่มีจัดแทบจะทุกสัปดาห ในกรุงเทพ งานซอนงานแบบตอเนื่องไมมีพัก เนื่องจากใน Community Mall สวนใหญมักจะมีลานเปดโลงสวนกลางอยู แลว จึงถูกนํามาปรับใชใหเหลาผูจัดกิจกรรมมาเชาพื้นที่ สราง อีเวนตดึงดูดใจใหเงินในกระเปาเหลานักชอปไหลเทออกมา เพราะรูวาคนไทยเราชอบเดินเลน เลยสรางตลาดรานคา ภายนอกไวยั่วยวนเรียกความสนใจ อยางนอยลูกคาก็อาจ เผลอไผลเขาไปเดินดูหยิบจับของขาย และปดจอบงานขายดวย สถานะลมละลายแบบไมตัว  Shopping Mall ที่อยูติดกับ หางสรรพสินคาขนาดใหญ ปรับตัวเพื่อลดพลังงาน เชน GROOVE / Central World Groove / Synthesis Design + Architecture | ArchDaily SAMYAAN MIDRTOWN 24 hrs 

คนที่ชอบงานดีไซนและอุปกรณการตกแตงบาน Rain Hill เปน Community Mall

SUNNY at Summer Lasalle

Maze Thonglor

The COMMON Thonglor

The COMMON SALADAENG

SAIMA PARK & MARKET

1  ARC304 ARCHITECTURAL DESIGN 4  แหลงนัดพบคนรุนใหม – รูปแบบฟงชั่นการใชงานของ Community Mall ในตัวเมืองหลักถูก วางตําแหนงเปน แหลงนัดพบ ของกลุมผูบริโภคยุคใหม มักออกแบบคอนเซปพูดถึงเรื่อง ประสบการณที่แปลกใหมๆ มาในลุคบรรยากาศแบบสบายๆ ดูเปนมิตร ลดความเปนทางการ ความฟูฟาจากสินคาแบรนดเนมหรู เนนพื้นที่พักผอนสวนกลางสําหรับการพูดคุย สังสรรค ใช ตนไมใบขียวชวยเสริมความเปนธรรมชาติใหเกิดขึ้นในพื้นที่โครงการ https://dsignsomething.com/2016/03/11/7690/  Asiatique The Riverfront ภายใตแนวคิดการเปน แหลงชอปปงริมแมน้ําเจาพระยาที่ใหญที่สุดในเอเชีย CDC หรือ Crystal Design Center เปนดินแดนสําหรับ
ที่โดดเดนดวย สถาปตยกรรมสวนแนวดิ่งหรือ Vertical Garden และ กําแพงมานน้ําตกความสูงกวา 30 เมตร แหลงแฮงคเอาท ของคนเมืองยานสุขุมวิท

1  ARC304 ARCHITECTURAL DESIGN 4  http://thairealestate.org/content/detail/417/จัดผังคอมมูนิตี้มอลล อยางไรใหประสบความสําเร็จ  ศูนยการคาชุมชน ถาใชทฤษฎีดานศูนยการคาของ The Urban Land Institute (ULI) ซึ่งเปนหนวยงานไมแสวงหากําไรไดใหคําอธิบายไวนั้น แยกไดเปน 2 ประเภท คือ Neighborhood Center กับ Community Center ไดอธิบายไววา Neighborhood Center หรือศูนยการคาชุมชนขนาดเล็ก มีพื้นที่ประมาณ 3,000 - 10,000 ตรม. โดยมีพื้นที่รานคาหรือพื้นที่เชารวมประมาณ 5,000 ตรม. ครอบคลุมประชากรในชุมชนประมาณ 3,00040,000 คน ในรัศมี 4 - 5 กม. จากศูนยการคาหรือใชเวลาขับรถไมเกิน 10 นาที Community Center หรือศูนยการคาชุมชนขนาดใหญ มีพื้นทีประมาณ 10,000 - 30,000 ตรม. มีพื้นที่ใหเชาเฉลี่ยประมาณ 15,000 ตรม. ครอบคลุมประชากร 40,000-150,000 คน ในรัศมี 8-13 กม. จากศูนยการคา โดยมีระยะเวลาขับรถมาที่ศูนยการคา 10 - 20 นาที จะเห็นไดวาศูนยการคาชุมชนทั้ง 2 ประเภท ตางกันที่ขนาดของพื้นที่ทําใหศักยภาพในการดึงดูด ลูกคาไดในปริมาณที่แตกตางกัน ตัวอยางของศูนยการคาชุมชนก็เชน J-Avenue ทองหลอ , KVillage สุขุมวิท 26 , La Villa อารีย เปนตน สําหรับศูนยการคาที่มีขนาดใหญกวาศูนยการคา ชุมชนจะเรียกวา Regional Center เชน เซ็นทรัลพลาซา ลาดพราว และที่มีขนาดใหญที่สุดเรียกวา Super Regional Center เชน ฟวเจอรพารค รังสิต เปนตน มอลลพรอมลูวิ่ง https://www.pinsupinsheji.com/h-nd-1136.html Morinomiya Q's Mall By Takenaka Corporation  ทินารมภ ปยะโสภาสกุล (2015) การศึกษาความเปนไปไดโครงการศูนยการคาชุมชน ทั่วไปพื้นที่ 3000-10000 ตร ม. / พท รานคาศูนยอาหาร+ทางเดิน/ลิฟต 5000 ตร ม.(ไมรวมจอดรถ) 5000 ตร ม ผูเชาชั้นนํา supermarket 3000-4000 ตร.ม. รัศมี 4-5กม. ขับรถ 5-10นาที

www.ThaiSMEsCenter.com มองวาปจจัยสําคัญของการลงทุนในคอมมูนิตี้มอลลไมใชแคมีเงินหรือมีที่ดินก็จะประสบความสําเร็จไดจําเปนที่ตองมีปจจัย

3. Attraction to people

ใหญคอมมูนิตี้มอลลจะเปนโครงการบนพื้นที่ขนาดใหญ ควร จัดสรรพื้นที่สวนหนึ่งไวสําหรับการทําลานจอดรถเพื่อเพิ่ม ความสะดวกสบายใหกับคนที่มาใชบริการไดรูสึกดีและอยาก มาใชบริการที่คอมมูนิตี้มอลลแหงนี้เรื่อยๆ www.thaismescenter.com

1  ARC304 ARCHITECTURAL DESIGN 4  
ประเภทนี้ไดเก็บไวเปนขอมูลศึกษาเพื่อใหการลงทุนนั้นเกิดประสิทธิภาพไดอยางสูงสุด 1. Location Community Mall ตองอยูในทําเลดีเทานั้น ดังนั้น ตองศึกษาทําเลโซนนั้นๆ กอนวาความ หนาแนนของชุมชนและประชากรโดยรอบทําเลที่จะสรางโครงการเปนอยางไร ทั้งคนที่พัก อาศัยในโซนนั้น และคนตางถิ่นที่เดินทางมาทํางานในโซนนั้นๆ และตองมีจํานวนมากพอ ที่จะ ทําใหเกิดการหมุนเวียนของคนตลอดทั้งวัน และทุกวัน ทั้งยังตองเปนทําเลที่มีการเดินทาง สะดวก งายตอการเขา - ออก ดูตัวอยางจากโครงการที่ประสบความสําเร็จอยาง The Nine Center มีผูเขามาใชบริการโดย เฉลี่ย 12,000 คนตอวัน และพื้นที่เชาเต็ม 100% สวนหนึ่งเกิดจากทําเลที่ตั้งโครงการสามารถ เขา-ออกไดหลายทาง ทั้งทางพระราม 9 ถนนรามคําแหง ถนนพัฒนาการ ถนนศรีนครินทร http://thairealestate.org/content/detail/418/5-วิธีสร้างธุรกิจด้วย community mall ให้เด่นดังทํากําไรได้ดี
สําคัญซึ่งเราก็รวบรวมมาเปน 5 ขอสําคัญใหคนที่สนใจในการลงทุน
Concept Community Mall ตองแตกตางและมีความชัดเจน ไมเชนนั้นจะไมสามารถดึงดูดใหคนเขามา เดิน และหากเปดไปสักพัก แลวเกิดมีศูนยการคาขนาดใหญ มาตั้งอยูในยานเดียวกันจะยิ่งยาก ตอการแขงขัน เราดูตัวอยางไดจากหลาย Community Mall ที่จะมีธีมของตัวเองเปนหลัก Data source: 6 กรกฎาคม 2560 เชน แนวคิดแบบ Nature park ที่เนนความเปนธรรมชาติผสมผสานกับการเปนรานคา , แนวคิดแบบ The Third Place ที่ใหความรูสึกเหมือนเดินจับจายใชสอยใน หมูบานรานคา หรือการใชแนวคิดแบบทองเที่ยวตางแดนใหคนที่เขามาเดินใน Community Mall เหมือน หลุดเขามาอยูในอีกประเทศหนึ่งเปนตน
2.
นั้นคือแรงดึงดูดใหคนสนใจซึ่ง คอมมูนิตี้มอลลตองมี แมเหล็กสําคัญในการดึงดูดคนใหสนใจ 3 องคประกอบ ไดแก รานอาหารและรานเครื่องดื่ม ที่ หลากหลาย มีความนาสนใจ และถามีรานอาหาร – ราน เครื่องดื่มที่เปนแบรนดใหญ มารวมเปดในโครงการ จะเปน Key Magnet ดึงคนใหเขามามากขึ้น, บริการทางการเงิน และ ซูเปอรมารเก็ต เพราะทั้ง 3 สิ่งนี้ ตอบโจทยการใช ชีวิตประจําวันของผูคนไดเปนอยางมาก รวมถึงสิ่งสําคัญที่ไมควรมองขามนั้นคือจุดจอดรถเพราะสวน

MBK Group The NINE CENTER

4. Completely new things

1  ARC304 ARCHITECTURAL DESIGN 4  
คือการเติมเต็มสิ่งใหมๆอยางตอเนื่อง ไมวาจะเปนการจัดกิจกรรมหรืออีเวนท ที่ผลัดเปลี่ยน หมุนเวียน โดยตองมีทั้งกิจกรรมที่ตอบโจทยคนที่อยูโดยรอบโครงการ เพื่อสรางประสบการณ แปลกใหมใหกับลูกคากลุมนี้ เพราะคนสวนใหญที่เดิน คอมมูนิตี้มอลล คือ คนที่ใชชีวิตอยูโดยรอบโครงการ เปนคนเดิม กลุมเดิม แตกตางจากศูนยการคา ที่มีทั้งลูกคากลุมเดิม และลูกคาใหม ผลัดเปลี่ยนหมุนเวียน กัน และในบางชวงเวลา อาจมีการจัดกิจกรรมตามกระแสบาง เพื่อดึงลูกคานอกพื้นที่เขามา รูจัก และมีประสบการณ การจัดกิจกรรมตอเนื่องใน คอมมูนิตี้มอลล จะทําใหลูกคาประจํา กลับมาใชบริการตอเนื่อง ไมเกิดความรูสึกเบื่อหนาย หรือจําเจ เชน เทศกาลอาหาร เปนกิจกรรมที่เขากับทุกกลุม ทุก วัย หรือถาโดยรอบเปนคอนโดมิเนียม สวนใหญเปนกลุมคนรุนใหม วัยทํางาน อาจจัด กิจกรรมตกแตงสวนขนาดเล็ก เปนตน http://thairealestate.org/content/detail/418/5-วิธีสร้างธุรกิจด้วย community mall ให้เด่นดังทํากําไรได้ดี www.thaismescenter.com 5. Have a good management system หมายถึงตองมีระบบการบริหารจัดการที่ดี และเขาใจความตองการของทั้งผูประกอบการ ที่ เชาพื้นที่เปดรานคา และกลุมลูกคา แมวาคอมมูนิตี้มอลลจะบูมมาตั้งแตประมาณ 5 - 6 ป กอนและในระยะหลังก็มีผุดขึ้นมาบางประปรายและสวนใหญคอมมูนิตี้มอลลในยุคหลังจะ เปนสวนหนึ่งของ Mixed-use Development ที่อยูในโครงการขนาดใหญประกอบดวย ที่ อยูอาศัย 
1  ARC304 ARCHITECTURAL DESIGN 4   สวนประสมของรานคาในศูนยการคาชุมชน สวนประสมของรานคาหรือผูเชาในศูนยการคาชุมชนมีผลในการดึงดูดลูกคาเขามาที่ ศูนยการคาและมีผลตอรายไดคาเชาของเจาของศูนยการคา
มาที่ศูนยการคาชุมชนประกอบดวย + ซูเปอรมารเก็ต เชน Lotus Express , Foodland , Tops ซึ่งจะชวยใหเกิดฐาน ลูกคาประจําและความถี่ในการเขามาที่ศูนยการคา + รานกาแฟ ปจจุบันในประเทศไทย รานกาแฟที่มีชื่อเสียงกลายเปนผูเชา แมเหล็กที่ศูนยการคาชุมชนตองมี โดย Starbuck ดูจะเปนแมเหล็กลําดับตนๆ ที่ ศูนยการคาอยากใหเขามาชวยดึงดูดลูกคา โดยเฉพาะศูนยการคาที่เนนลูกคา ระดับกลางบนขึ้นไป สวนลูกคาระดับกลาง Café Amezon เปนรานกาแฟที่มีพลัง ดึงดูดลูกคาไดดี รวมถึงรานกาแฟดังๆ อีกหลายราน + รานอาหาร โดยเฉพาะรานอาหารดังๆ เชน McDonald , KFC ,MK , S&P เปน ตน รวมถึงรานอาหารไทยดังๆ ประจําทองถิ่น อยางศูนยการคาชุมชนแถวภาค ตะวันออก การไดรานอาหารทะเลชื่อดังประจําจังหวัดเขามาเปนสาขาในศูนย ยอมชวยดึงดูดลูกคาไดดี + ธนาคาร เปนอีกแรงดึงดูดสําคัญของศูนยการคา + บริการยานยนต เชน ศูนยเปลี่ยนยาง ลางรถและเปลี่ยนถายน้ํามันหลอลื่น ยิ่งถามีสถานี บริการน้ํามันในศูนยการชุมชนเขาดวยแลวจะเปนพลังใหเกิดการหมุนเวียนของลูกคา ซึ่ง ปตท.เองชวงหลังขยายธุรกิจสถานีบริการน้ํามันมาเปนศูนยการคาชุมชนโดยมีปมน้ํามันเปน แรงดงดูดหลัก + รานคาปลีกอื่นๆ เชน รานขายยา รานหนังสือ รานแวนตา รานเสริมสวย เปนตน http://thairealestate.org/content/detail/417/จัดผังคอมมูนิตี้มอลล อยางไรใหประสบความสําเร็จ 
โดยผูเชาหลักที่ชวยดึงดูดคนเขา
1  ARC304 ARCHITECTURAL DESIGN 4    สวนประสมของรานคาในศูนยการคาชุมชน ทินารมภ ปยะโสภาสกุล (2015) Urban Land Institute-ULI (1997, pp.53) + ซุปเปอรมารเก็ต + รานขายยา + รานคาราคาประหยัด + รานอาหาร + รานเฟอรนิเจอร + รานสินคาอุปโภค เครื่องใช + รานบริการยานยนต คารแคร + รานไวน + ธนาคาร (เริ่มนอยลง)

6 ปจจัยที่มีผลตอความสาเร็จ

ทําเล (Location)

การออกแบบ (Architectural Design)

(Leasing Strategy)

(Strategic Positioning)

Features: Style / Facilities

โปรโมชั่น (Promotion Activities) การบริหารการจัดการศูนยการคา (Property Management) เงื่อนไขการเชา (Terms of Tenancy)

Age: Atmosphere Image Size: Circulation Spatiality

1  ARC304 ARCHITECTURAL DESIGN 4    Urban Land Institute-ULI (1997)
ของศูนยการคาในการวางกลยุทธทางการตลาด
กลยุทธการตลาด
ทินารมภ ปยะโสภาสกุล (2015)
รูปแบบของรานคาและสิ่ง อํานวยความสะดวก ภาพลักษณบรรยากาศ ขนาดพื้นที่ทางเดิน
1  ARC304 ARCHITECTURAL DESIGN 4   The Urban Land Institute (ULI) ไดใหคําแนะนําในการวางผังอาคารสําหรัศูนยการคาไว 5 รูปแบบ ไดแก 1. แบบ Linear หรือการวางเปนแนวตรงคลายตัวอักษรไอในภาษาอังกฤษ (I) โดยใหการจราจรทั้งที่จอดรถและการเดินของคนหมุนเวียนอยูรอบตัวอาคาร การ วางรูปแบบนี้คอนขางเหมาะกับศูนยการคาชุมชนขนาดเล็ก จุดเดนของ Linear คือ ตนทุนการกอสรางต่ํา จอดรถไดสะดวก เหมาะกับแปลงที่ดินหนาแคบแตยาว ทรงสี่เหลี่ยมผืนผาแบบเสนกวยเตี๋ยวเสนใหญ 2. แบบ L-Shaped เปนการแกปญหาของผังอาคารแบบ Linear ที่ยาวเกินไปดวยการตอหางตัว I ใหยาวออกมาคลายตัว L ทําใหโครงการมีหนาที่เปดกวางขึ้น และดูมีมิติที่นาสนใจกวาแบบ Linear ซึ่งศูนยการคาชุมชนหลายแหงก็นิยมวางรูปอาคารลักษณะนี้ 3. แบบ U-Shaped เปนการวางรูปอาคารคลายตัว U โดยมีลักษณะของจุดเดนที่คลายกัน แบบ L-Shaped แตทําใหมีพื้นที่อาคารเพิ่มขึ้น โดยนิยมวางผูเชาหลักไวที่ปลายตัว U แตละ ดานเพื่อใหเกิดการไหลเวียนของลูกคาจากดานหนึ่งไปอีกดานหนึ่งจะไดผานรานคาระดับรองๆ ที่อยูบริเวณกลางๆ อาคาร 4. แบบ O-Shaped หรืออาจเรียกวาแบบ Mall เปนการวางอาคารแบบตัว I สองอาคารคู ขนานกันไปแลวเชื่อมตอปลายอาคารทั้งสองดวยอาคารปดหัวทาย จึงมีลักษณะคลายตัว O โดย นิยมวางผูเชาหลักไวที่หัวและทายของตัว O เพื่อใหเกิดการไหลเวียนของลูกคาในศูนยการคา และลูกคาสามารถเดินรอบศูนยการคาเปนวงได ทําใหการไหลเวียนของลูกคาในศูนยดีขึ้น 5. แบบ Cluster คือการวางกลุมอาคารขนาดเล็ก-ใหญ สลับกันเปนกลุม การจัดกลุมอาคาร ลักษณะนี้อาจเกิดจากทางศูนยการคาชุมชนพัฒนาแบบทยอยสรางอาคารเปนระยะๆ ไมไดเปน พรอมกันทั้งหมดหรือดวยขอจํากัดของกฎหมายผังเมืองที่ไมใหสรางอาคารขนาดใหญจึงใชการ สรางอาคารขนาดเล็กหลายๆ อาคารเปนกลุมๆ แทน การจัดผังลักษณะนี้อาจใหผูเชาหลักบางราย เชาเหมาอาคารบางอาคารทั้งหลังไดสะดวกขึ้น เชน รานอาหารอาจตองการวางระบบระบายควัน หรือตองมีระบบทอแกสจึงตองแยกระบบออกไปจากอาคารอื่นๆ เพื่อความปลอดภัย http://thairealestate.org/content/detail/417/จัดผังคอมมูนิตี้มอลล อยางไรใหประสบความสําเร็จ  ทินารมภ ปยะโสภาสกุล (2015) การศึกษาความเปนไปไดโครงการศูนยการคาชุมชน

https://www.youtube.com/ watch?v=grDdsADXyI8

Location: Thonglor 17, Bangkok

Architects: Department of Architecture

Principals: Amata Luphaiboon, Twitee Vajrabhaya Teparkum

Landscape Architect: Wabi-Sabi Studio Co.,Ltd.

Lighting Designer: Accent Studio

Structural Engineer: Jet Structural

Identity design: TNOP Design

Façade Contractor: SC Glazing Co., Ltd.

Construction Management: International Project Administration Co., Ltd. (InterPAC)

Main Contractor: NL Development Public Co., Ltd.

Owner: The Commons Co., Ltd.

Area: 5,000 m2

Construction Cost: 180 Million THB (USD 5,200,000)

Year: 2016

https://aasarchitecture.com/2016/12/commons-departmentarchitecture.html/

https://departmentofarchitecture.co.th/portfolio/the-commons/

1  ARC304 ARCHITECTURAL DESIGN 4  The COMMONS -Thonglor

1  https://adaymagazine.com/draft-4 ARC304 ARCHITECTURAL DESIGN 4  The COMMONS -Thonglor “เกือบ 4 ปที่แลว เรารูสึกวากรุงเทพฯ มีผูประกอบการดานอาหารที่ทําอะไรดีๆ เยอะขึ้นเรื่อยๆ เริ่มอยากใหมีที่รวมตัวกันของคนกลุมนี้ สินคาบางอยางของเขา อาจเปนอะไรเรียบงายมากๆ เชน ขาวกะเพราหรือขนมปง แตมันทําดวยสวนผสมคุณภาพและความใสใจจริงๆ เราทํางานสายนี้ก็เห็นวาลูกคาตองการอะไรที่ แตกตางและมีคุณภาพ “นอกจากนี้ เราอยากสรางที่ที่คนมาใชชีวิตอยูใกลธรรมชาติขึ้นอีกนิด คนซื้ออะไรดีๆ มานั่งกินเลนในพื้นที่กึ่ง outdoor เหมือนเปนสวนหลังบานใหคนทอง หลอ เพราะพอกรุงเทพฯ พัฒนาขึ้น มีตึกเยอะ ความเขียวของตนไมก็นอยลงเรื่อยๆ ถึงเวลานั่งขางนอกจะไมไดเย็นเหมือนหองแอร แตอยางนอยมันก็มีลมผาน นั่ง แลวสบาย เราคิดถึงความรูสึกนั้น” Step 1: First Idea “เราตกลงวาจะทําพื้นที่เล็กๆ ที่มารวมตัวกันเปนเหมือนมาร เก็ตและเปนหัวใจของที่นี่ แตผูประกอบการใหมๆ บางคนอาจ ไมมีเงินลงทุนเยอะ พื้นที่แตละรานจึงตองไมใหญเกินไปเพื่อให เขาไมตองจายคาเชาหรือคาลงทุนตกแตงรานเยอะ ไมตองหวง วาตองจางพนักงานเสิรฟจํานวนมาก ชวยใหเขาไดโฟกัสสินคา จริงๆ จากนั้นเราก็คิดกันวาคนแถวนี้คือใคร เขาตองการอะไร ในชีวิตประจําวัน คิดเปนหมวดๆ ไปวาสวนผสมไหนนาจะดี สําหรับกลุมลูกคานี้ แลวไปดูวาคนที่ทําดานนี้เกงๆ มีใครบาง ลองเขาไปคุยทีละคนๆ ตอนแรกก็ไมรูวามีใครอยากทําดวยรึ เปลา แตพอคุยเกือบทุกคนสนใจหมด เราเลยเห็นศักยภาพวา มันนาจะทําอะไรไดมากกวาเอารานอาหาร 2 – 3 รานมาอยู ดวยกัน” Step 2: Gathering the Team “Common = สาธารณะ – สวนหลังบานของคนทองหลอ”

Step

1  https://adaymagazine.com/draft-4 ARC304 ARCHITECTURAL DESIGN 4  The COMMONS -Thonglor “คอนเซปตของโซนตางๆ เริ่มที่ market ชั้นลาง ลูกคาจะซื้อ อะไรจากรานไหนก็ไดแลวลงไปนั่งกินดวยกันตรง
ชั้น
ใหรางวัลตัวเอง ผสมผสานของที่เปนไลฟสไตลหนอย เพราะ ทุกวันนี้เราทํางานหนัก บางทีก็อยากหาอะไรเปนรางวัลแก ตัวเองหรือคนที่รัก สวนชั้น 3 เปน play yard พื้นที่สําหรับ เลน
เรามีฟต เนสโยคะสําหรับผูใหญ มีพื้นที่ทํากิจกรรมของพอแมและเด็ก สุดทายชั้น 4 เปน top yard มีหอง Commons Kitchen เปนเหมือนครัวหลังบานเพื่อนที่ใหญหนอย มีอุปกรณครบ เอาไวเปนสถานที่สวนกลางสําหรับจัดกิจกรรมหรือเวิรกช็อป
communal area พื้นที่สวนกลางดานนอกที่เปนเอาตดอร
2 เปนชั้น village คอนเซปตคือรวมของที่ซื้อแลวเหมือน
เพราะไมวาผูใหญหรือเด็กก็ควรมีเวลาไดเลน
for Conversation “เราอยากใหที่นี่เปนที่ที่คนมาสรางคอมมูนิตี้ อยากโปรโมต คําวา wholesome living ที่หมายถึงการใชชีวิตแบบมี สมดุลที่ดี ดูแลตัวเองดวยการกินอะไรดีๆ ออกกําลังกาย และ เรียนรูอะไรใหมๆ ที่สําคัญคือ ใชเวลาดวยกันกับเพื่อนฝูง ครอบครัว มีบทสนทนาดีๆ กัน นี่เปนเหตุผลหนึ่งวาทําไมเรา อยากมีพื้นที่เอาตดอรใหคนมาใชเวลาดวยกัน แตละชั้นเราจะ สรางสเปซที่เปนจุดพบปะใหคนที่ความคิดความชอบคลายกัน ไดมาเจอกัน
3: Create Space

common ground

1  https://adaymagazine.com/draft-4 ARC304 ARCHITECTURAL DESIGN 4  The COMMONS -Thonglor Step 4: Design Our Place อมตะ: “The Commons เนนความเปนชุมชนเปนหลัก คน แถวนั้นแวะมาบอยไดเทาที่ตองการ จึงตองออกแบบใหดู สบายๆ มีพื้นที่เอาตดอรใหใชไดทุกวัน ทุกเวลา ทุกฤดูกาล เราวิเคราะหวาคอมมูนิตี้มอลลเมืองไทยมีปญหา 3 อยางและ พยายามตอบโจทยใหไดครบทั้งหมด “โจทยแรก คอมมูนิตี้มอลลทั่วไปมีพื้นที่เอาตดอรแตใชงานไดไมเต็มที่ ฝนตกก็ใชไมได เวลา กลางวันก็รอน ชวงลางอาคารเลยทําพื้นที่เรียกวา
ซึ่งเปนทางลาดและบันไดที่โปรงมาก ลมพัดผานไดจากทุกทิศทาง ผนังของอาคารชั้น 3 – 4 ก็ โปรง ถาลมเขามาจากระยะบน อาคารก็จะดักลมแลวตลบลงมาดานลางได นอกจากนี้ยังมีพัด ลมเพิ่มการหมุนเวียนของอากาศ ทําใหคนขางลางอยูไดสบายดี อาคารชั้น 3 – 4 ออกแบบให เปนเหมือนกลองโปรงๆ ลอยเต็มพื้นที่ ทําหนาที่กันแดดกันฝนไดเกือบรอยเปอรเซ็นต ตลอดเวลา “โจทยถัดมาคือ ปกติคอมมูนิตี้มอลลจะขายดีแคชั้นลาง เราจึงแกปญหาโดยทําบันไดขนาด ใหญเพื่อเชื่อมชั้น ground ขึ้นไปถึงชั้น 2 คนคอยๆ เดินแปบเดียวก็ถึงชั้น 2 อยางไมรูสึกวา พยายาม ชั้น 3 ชั้น 4 โปรงและมีชองทะลุกันจํานวนมาก มองลงมาเห็นชั้นลางไดงาย คนจากชั้น ลางก็มองเห็นรานชั้นบนไดแทบทุกราน ทําใหไมถูกตัดขาด “โจทยขอสุดทายคือ ปกติคอมมูนิตี้มอลลมีผูเชามากมาย แตละรานมักมีปาย การตกแตงหรือ การเจาะผนังแตกตางกัน สถาปตยกรรมเลยคอนขางดูวุนวาย เราจึงหอชั้น 3 – 4 ดวยเหล็กฉีก ที่พับโปรงๆ ทําหนาที่คลุมอิมเมจของสถาปตยกรรมใหดูเรียบรอย สวยงาม ในขณะเดียวกันก็ยัง โปรงพอใหคนมองเห็นวิวไดดวย” “เรารูกันอยูแลววายิ่งเปนนักพัฒนาอสังหาริมทรัพยรายใหมรายเล็กอยางเรา รานคาดานบน อาจจะแย เราไมมีงบที่จะสรางบันไดเลื่อนอะไรเยอะแยะ แตคุณอมตะดีไซนแตละชั้นใหคนอยาก เดินตอไปเรื่อยๆ ได พื้นที่เชื่อมตอกันหมด คนเดินบันไดกันหมดเลย ขนาดมีลิฟตคนก็ยังไมคอยใช นี่เปนครั้งแรกที่เราทําอะไรในสเกลนี้ และไดเห็นวาสถาปตยกรรมและบริบทแวดลอมที่ดีทําให พฤติกรรมของคนเปลี่ยนไดจริงๆ”
เปนพื้นที่ขนาดใหญ
1  https://adaymagazine.com/draft-4 ARC304 ARCHITECTURAL DESIGN 4  The COMMONS -Thonglor Step 5: Make it Come True “สิ่งที่เปนปญหาถัดมาคือการหาเงินมาสรางที่นี่ ตอนนั้นคิด วาจะกูแบงกแตปรากฏวาทุกแบงคไมใหเงิน เขาไมเขาใจ วาทําไมคุณสรางเยอะแตมีพื้นที่เชานอยจังเลย นอกจากนี้ เขาก็ไมรูจักรานในโครงการ ไมคิดวาจะมีรานที่ดึงคนเขามาได สุดทายเราจึงหาผูลงทุน รายยอยเปนรายๆ ไป เสียเวลาไปเกือบปจนรวบรวมเงินมา สรางที่นี่ได “ความทาทายอีกอันหนึ่งคือการทํายังไงใหคนที่มารวมมี ความสุขและเติบโตไปกับเราไดจริง บางคนอาจไมไดเปนคนทําธุรกิจโดยตรง
เราก็คิดวาทํายังไงให ทุกคนคอยๆ เรียนรูและเติบโตไดเต็มศักยภาพ การมาอยู ดวยกันอาจจะดูเหมือนมีคูแขง แตไปๆ มาๆ มันก็เหมือน การสนับสนุนกันและกัน จะมีการเอาสินคามาจอยกัน โปร โมตดวยกัน เติบโตดวยกันเหมือนเปนครอบครัวเดียวกัน ซึ่งตอนนี้ทุกคนก็ทําไดดี”
6: Keep Growing Together
ไมถนัดดาน บริหาร แครักในสิ่งที่ทําและทําไดดี
Step

7: Give Back to Neighborhood

“เราคิดวาถาจะอยูที่นี่และเปนสวนหนึ่งของทองหลอจริงๆ จะทําอะไรดีที่เปนการใหคืนกลับสังคมแถวนี้ไดดวย ตอนนี้ ก็มีไอเดียที่จะเปดตัวในอีกไมนาน เชน น้ําดื่มที่เราเรียกวา Commons Compassion

ซึ่งอาจวางไวตรงมารเก็ตหรือ

1  https://adaymagazine.com/draft-4 ARC304 ARCHITECTURAL DESIGN 4  The COMMONS -Thonglor
ตรงชั้นวินเลจแลวมี
Step 8: Back to the Common วางไวใหจายเงิน กําไร สวนนึงเราจะเอาไปชวยเหลือใครก็ไดในชุมชนทุกเดือน”
honesty box
“คําวา common ในตางประเทศมีหลายความหมายคือ เปนสวนสาธารณะ เปน center court มีที่นั่งลอมรอบ ใหคนมาพบปะพูดคุยกัน มีอยูเกือบทุกเมือง แตวายิ่งคน ในเมืองเราเยอะ ยิ่งราคาที่ดินแพงขึ้น แนวคิดนี้มันก็คอยๆ หายไป ไมใชแคในกรุงเทพฯ แตเปนทั่วโลก เราแคอยาก สรางที่ตรงนี้ขึ้นมา คนไทยฟงชื่อ The Commons แลว อาจนึกถึงคําวา common ที่แปลวาธรรมดา ซึ่งจริงๆ ก็ไม เปนไร ของที่เราขายก็เปนของพื้นฐานที่ดี คนกินไดทุกวัน ใชไดทุกวัน การหันมาใชชีวิตอยูกับครอบครัว อยูกับเพื่อน ใชเวลาอยูขางนอก นี่คือเรื่องธรรมดาๆ ที่เราอยากใหคน ใหคุณคามากขึ้น”
Step
1  https://www.wazzadu.com/article/1068 ARC304 ARCHITECTURAL DESIGN 4  The COMMONS -Thonglor B รานอาหารเครื่องดื่ม รานสินคาไลฟสไตล รานเทคโนโลยี
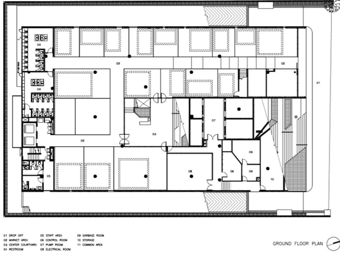
1  ARC304 ARCHITECTURAL DESIGN 4  https://www.wazzadu.com/article/1068.html/ The COMMONS -Thonglor รานอาหารและเครื่องดื่ม EL PUMP CTRL GB GB COMMUNAL AREA M1 M2 M3 M4 M5 M6 M7 M16 M 1 : ROOTS COFFEE M 2 : MAISON JEAN M 3 : TWIST M 4 : EGG MY GOD M 5 : FIT FOOD DROP M 6 : XIAO CHI M 7 : SOURCED M 8 : SOURCED M 9 : SOURCED M 10 : HOLY MOLY UP UP M17 M10 M11 M12 M13 M14 M15 M 11 : SRI M 12 : GOURMET M 13 : EASTBOUND M 14 : SOUL FOOD M 15 : THE LOBSTER M18 M19 M20 M 16 : THE BARREL M 17 : THE BEER CAP M 18 : BARRIO M 19 : M & B M 20 : PEPPINA Data source: 2017 https://thelist.group/realist/blog/thecommons/?fbclid=IwAR1FsIPDd4ahboHel1k1_YOdqfPb4ieI7uGfh8c-UUQXFxuN5ns5TG1cquI UP UP G MARKET SERVICE รานอาหาร เครื่องดื่ม 24 รานแฟชั่น 1 รานไลฟสไตล 7 รานเทคโนโลยี 2 ควรเทียบพื้นที่ขาย (ตร.ม) มากกวาราน
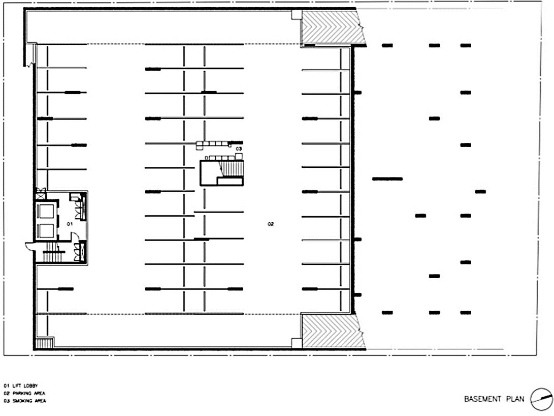
1  ARC304 ARCHITECTURAL DESIGN 4  https://www.wazzadu.com/article/1068.html/ The COMMONS -Thonglor UP DN UP DN DN M COMMUNAL Data source: 2017 STAFF STORAGE
1  ARC304 ARCHITECTURAL DESIGN 4  https://www.wazzadu.com/article/1068.html/ The COMMONS -Thonglor UP DN 2 S1 S2 S3 S4 COMMUNAL COMMON S 1 : TRACK 17 S 2 A : MAYGORI S 2 B : NEX S 3 : TREASURES S 4 : BRIX Data source: 2017 S 5 : JONA WAFFLE S 6 : SOUND CITY รานขนมหวาน กาแฟ ดอกไม VILLAGE S 7 : PLANT HOUSE TECHNOLOGY SPECIAL FASHION รานไลฟสไตล +กีฬา +ทําอาหาร +ตกแตงบาน +ทํางานออฟฟศ + ปลูกผักทําสวน รานแฟชั่น รานเทคโนโลยี รานอาหารเครื่องดื่ม
1  ARC304 ARCHITECTURAL DESIGN 4  https://www.wazzadu.com/article/1068.html/ The COMMONS -Thonglor DN UP 3 Data source: 2017 PLAY YARD P 1 LEFT : ENGINOU P 1 RIGHT P 2 : ABSOLUTE YOU Workshop เชน The little Pea แหลงกิจกรรม สันทนาการดาน ดนตรีและศิลปะ เหมาะสําหรับเด็กๆ โยคะ P1 P1 P2 COMMUNAL
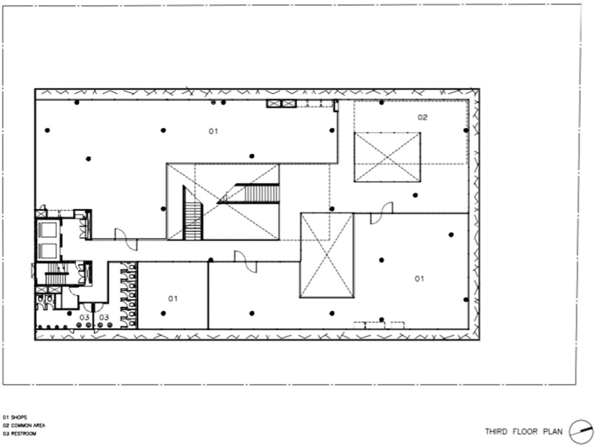
1  ARC304 ARCHITECTURAL DESIGN 4  https://www.wazzadu.com/article/1068.html/ The COMMONS -Thonglor 4 Data source: 2017 T 1 : ROAST T 2 : THE COMMONS KITCHEN & BAR TOP YARD COMMONS Kitchen ที่เปด workshop คอร สสอนทําอาหารตาง ๆ OFFICE T1 T2 T3 COMMUNAL / SPECIAL
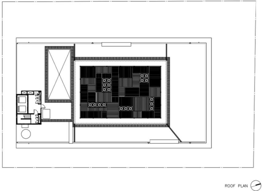
1  ARC304 ARCHITECTURAL DESIGN 4  https://www.wazzadu.com/article/1068.html/ The COMMONS -Thonglor Data source: 2017
1  ARC304 ARCHITECTURAL DESIGN 4  The COMMONS -Thonglor https://departmentofarchitecture.co.th/portfolio/the-commons/
1  ARC304 ARCHITECTURAL DESIGN 4  The COMMONS -Thonglor https://departmentofarchitecture.co.th/portfolio/the-commons/
1  ARC304 ARCHITECTURAL DESIGN 4  The COMMONS -Thonglor https://dsignsomething.com/2016/03/20/the-commons-

Cost - Architecture: 70 MB

Cost - Engine (Water and Electricity): 24 MB

Cost - Air-condition: 15 MB

Cost - Landscape: 2.5 MB

Client: The Commons Saladaeng Co.,Ltd.

Location: 126 Soi Saladaeng 1, Silom, Bangrak, Bangkok 10500

Design Period: March 2018 – November 2018

Construction Period: November 2018 – February 2020

Architectural Design: Department of Architecture

Address & phone: https://departmentofarchitecture.co.th/ Project Architect: Chanlika Boonpha

Hardscape Designer: Department of Architcture Co. Softscape : Patom and Suan Sampran

Lighting Designer: ACCENT Studio by Nopporn Sakulwigitsinthu

Environmental Graphic: be>our>friend studio Structural Engineer: Jet Structural

Building Contractor: Kay-Thai Construction Co., Ltd.

Materials: Floor - Polished concrete and Artificial wood, Wall - Onduline Corrugated Sheet (Red , translucent) and Artificial Wood, Ceiling - Onduline corrugated Sheet, Pallet – Siamese neem Wood, Building Area: 3000 sq.m., Building Footprint Area: 1150 sq.m. Site Area: 1585 sq.m

https://www.youtube.com/

1 
saladaeng/ ARC304 ARCHITECTURAL DESIGN 4  The COMMONS -Saladaeng
https://departmentofarchitecture.co.th/portfolio/the-commons-


watch?v=pAq6jFsKTBA
1  https://www.designverse.com.cn/content/recommend/article/t he-commons-saladaeng-department-of-architecture-co-ltd-en ARC304 ARCHITECTURAL DESIGN 4  The COMMONS -Saladaeng “ผมมักจะไมคอยพูดวา The Commons คือ Community Mall เทาไหร แตมันคือ Space for Community เพราะคอนเซ็ปตของ The Commons คือ สถานที่ที่รองรับผูคนอยางเขมขน ทั้งดานจิตวิญญาณและ ดานการใชสอย” มีความตั้งใจในการคงแนวคิดเดิมที่เคยทําที่ทองหลอไว
ๆ วา ‘ศาลา แดงคืออะไร?’ โดยทีมออกแบบพบวามีหลักฐานตาง ๆ นับยอนหลังไป เกือบ 100 ป ที่แลว ไมใกลไมไกลสถานีหัวลําโพง บน เสนทางรถไฟหัวลําโพง-ปากน้ํา ซึ่งมีศาลารอรถไฟ โครงสรางไมหลังคาจั่วเล็ก ๆ สีแดง กวางประมาณ 4-4.5 เมตร ตั้งอยู ใครผานมาก็จะมองเห็นหลังคาสีแดงเดนแต ไกลจนจดจําได และนั่นคือที่มาของชื่อ “ศาลาแดง” “พอผมรูเรื่องราวเเละประวัติที่มาแลว เลยอยากเริ่มตนออกแบบใหมีความเกี่ยวเนื่องกับ ประวัติศาสตรนิดหนึ่ง ทั้งในแงรูปทรงและการเลือกใชกระเบื้องลอนสีแดง (กระเบื้องยางออนดูลีน) เปนวัสดุชูโรง ผมรูสึกวาหลังคาจั่วขนาดเล็ก นั้น ลึก ๆ มีความโรแมนติกและสัมพันธกับอดีตที่ไมมี ใครรูจักไดดี” คุณอมตะ หลูไพบูลย “ดวยการใชพื้นที่แบบ Contemporary Use ในสมัยนี้ที่ตองการพื้นที่ขนาดใหญ ทําใหเราไม สามารถใชจั่วที่มีสแปนเสากวางเพียง 4-4.5 เมตร ได เราจึงออกแบบฟอรมใหมดวยการซอย หลังคาใหญทั้งหมดใหเปนจั่วเล็ก ๆ จํานวน 8 จั่วแทน จนไดสเกลหลังคาเหมือนอาคารในอดีต แตขณะเดียวกันก็จะไดสเปซแบบปจจุบันดวย เเลวทําโครงสรางหลังคาแบบพิเศษเปนรูปตัวเอ็ม (M) ที่ลอยเดนเหนือความกวางของสเปซตรงนั้น” https://www.baanlaesuan.com/207311/design/designupdate/places/the-commons-saladaeng
ขณะเดียวกันก็มีแนวคิดใหมที่วา ควรจะสรางเอกลักษณให ดูแยกชัด ดวยวิธีการกลับไปตั้งคําถามงาย
1  https://bk.asia-city.com/things-to-dobangkok/news/commons-saladaeng-finally-ready-to-open ARC304 ARCHITECTURAL DESIGN 4  The COMMONS -Saladaeng บริบทเดิมบนผืนที่ตั้งขนาดประมาณเกือบ 1ไร
ไมตนนี้ไวใหเปนจุดเดนของโครงการ ถาดูจากผังหลังคาของ 8 จั่วสีแดงทั้งหมด เราจะเห็นไดวาผัง จะถูกควานเปนรัศมีจากจุดศูนยกลางที่เปนตนไทร ตนไมตนนี้จึงเปนจุดตรึงตําแหนงของ สถาปตยกรรมทั้งหมด พรอมกับสรางมุมมองที่ดีของการใชพื้นที่ทั้ง 3 ชั้นไปในตัว ชั้น 1 ประกอบดวยพื้นที่ขายอาหารและกาแฟแนว ‘Grab & Go’ สําหรับกลุมพนักงานออฟฟศผู รีบเรง ชั้นที่ 2 เปนพื้นที่นั่งรับประทานอาหารรวมกันจากรานอาหารมากกวา 20 ราน มีชื่อเรียกวา ‘The Market’ รวมทั้งยังมีรานอาหาร Roast และรานกาแฟ Roots ชั้น 3 ทางโครงการตั้งชื่อวา ‘The Platform’ เปนพื้นที่ เอนกประสงคสําหรับกิจกรรมตาง ๆ (Multi-purpose Activity) เนื่องจากเงื่อนไขเเละขอจํากัดของพื้นที่ ทําให ตองออกแบบเปนหองอเนกประสงค 3 สวน สามารถ ผลัดเปลี่ยนกิจกรรมไปตามชวงเวลา ขึ้นอยูกับผูที่มาเชาใช พื้นที่ทํากิจกรรม เชน ตอนเชาใชสําหรับคลาสออกกําลัง กาย เที่ยงเปลี่ยนเปนกิจกรรม Chef Table ตอนบาย เปนพื้นที่จัดเวิรกชอป ตอนกลางคืนเปน แจสบาร ตาม แนวคิด Co-Sharing Space สวนการตกแตงภายในทั้งหมดจะมีการเปลี่ยนจากสีแดง กลายเปนสีครีม เพื่อใหไมขมภาพลักษณของรานคา หรือ กิจกรรมตาง ๆ ของผูที่มาเชา รวมทั้งโซน The Market ยัง มีการใชศิลปะจัดวาง ลักษณะเปนแนวตารางแขวนจากบน ฝาเพดาน เพื่อปกปดงานระบบและโครงสรางไมใหโดดเดน เกินไป https://www.baanlaesuan.com/207311/design/designupdate/places/the-commons-saladaeng
ที่มีไทรตนใหญยืนตนอยูติดกับขอบของแปลงที่ดิน ซึ่งไมกีดขวางพื้นที่กอสรางดานใน บวกกับเปนตนไมที่มีรูปทรงสวยงาม ทีมผูออกแบบจึงตั้งใจเก็บ
1  https://www.archdaily.com/944699/the-commons-saladaengdepartment-of-architecture ARC304 ARCHITECTURAL DESIGN 4  The COMMONS -Saladaeng ไฮไลตที่สุดของการออกแบบ The Commons Saladaeng ก็คือพื้นที่ภายนอกอาคาร ซึ่งเปน ขั้นบันไดขนาดใหญแทรกอยูกลางสถาปตยกรรม สามารถเดินขึ้น-
หรือขอบบันไดไดคลายอัฒจันทร
พื้นที่นี้เปนเหมือนสอดผสานโปรแกรมของอาคารทั้งหมดเขาดวยกัน ผาน ชองทางเขาที่กรุดวยวัสดุโปรงใสสลับกับกระเบื้องเปนจังหวะลูกเลน และมีชื่อรวมทั้งหมด เรียกวา ‘Common Ground’ ที่พิสูจนมาแลววาใชงานไดลงตัวจากโครงการ The Commons ที่ทองหลอ https://www.baanlaesuan.com/207311/design/designupdate/places/the-commons-saladaeng “ที่สําคัญคือพื้นที่เอาตดอรตรงนี้สามารถปรับเปลี่ยนเปน พื้นที่กิจกรรมและอีเวนตตาง ๆ ที่ทีม The Commons จัด ขึ้นไดอยางอัศจรรย ซึ่งตอนออกแบบที่ทองหลอเราไมรูวาจะมี กิจกรรมอะไรเกิดขึ้นบาง แตตอนนี้เรารูแลว ทําใหเรามีความ ตั้งใจออกแบบสถาปตยกรรมใหปรับเขาหากิจกรรมแทน สิ่งที่ เราทําก็คือออกแบบฐานบันไดพื้นปูน มีชิ้นสวนของแทนไมพา เลต สามารถยกวางเพื่อเปลี่ยนระดับใหสอดคลองกับกิจกรรม ที่จะเกิดขึ้นได”
ลง และแวะนั่งพักตามมุม
เริ่มตั้งแตจากทางเขาหนาโครงการ เดินขึ้นไปยังพื้นที่แต
ละชั้นจนถึงบนสุด
1  https://departmentofarchitecture.co.th/portfolio/the-commonssaladaeng/ ARC304 ARCHITECTURAL DESIGN 4  The COMMONS -Saladaeng https://www.baanlaesuan.com/207311/design/designupdate/places/the-commons-saladaeng “ตอนออกแบบเรามีความตั้งใจมาก ๆ วาพาเลตทุกชิ้นตอง เปะ พื้นอาคารทุกอยางตองถูกคิดมาดวยกัน
ผังอาคารใหกับทั้ง 4 สถานการณ
จัดพื้นที่เปนอะไรไดอีกมากมาย ที่สุดของการออกแบบ ทั้งหมดนี้ ก็เพื่อที่เราจะไดงานสถาปตยกรรมที่ยืดหยุนและ ถอมตัวเขาหากิจกรรมที่จะเกิดขึ้นจากผูคนได สอดคลอง กับคําวา Space for Community อยางแทจริง”
ทั้งรูปตัดและ
แตใครจะรูวาคนเขาจะ
1  https://www.designverse.com.cn/content/recommend/article/t he-commons-saladaeng-department-of-architecture-co-ltd-en ARC304 ARCHITECTURAL DESIGN 4  The COMMONS -Saladaeng 3 2 4 3 2 5 UP UP อาหารและกาแฟแนว ‘Grab & Go’ รานไลฟสไตล +กีฬา +ทําอาหาร +ตกแตงบาน +ทํางานออฟฟศ + ปลูกผักทําสวน รานแฟชั่น รานเทคโนโลยี รานอาหารเครื่องดื่ม
1  ARC304 ARCHITECTURAL DESIGN 4  The COMMONS -Saladaeng https://www.designverse.com.cn/content/recommend/article/t he-commons-saladaeng-department-of-architecture-co-ltd-en up dn รับประทานอาหาร 20 ราน ‘The Market’
1  ARC304 ARCHITECTURAL DESIGN 4  The COMMONS -Saladaeng https://www.designverse.com.cn/content/recommend/article/t he-commons-saladaeng-department-of-architecture-co-ltd-en dn ‘The Platform’ พื้นที่เอนกประสงคสําหรับกิจกรรมตาง ๆ OFFICE CTRL
1  ARC304 ARCHITECTURAL DESIGN 4  The COMMONS -Saladaeng https://mooool.com/en/the-commons-saladaeng-by-departmentof-architecture.html
1  https://thinkofliving.com/ ARC304 ARCHITECTURAL DESIGN 4    Architect: Winkreative  Location: สุขุมวิท 77 สวนหนึงโครงการ T77 คอมมูนิตี้มอลลแรกของแสนสิริ https://www.youtube.com/watch?v=5tzq 6lYhuGs 人 HITO = คน
1  https://www.condonewb.com/lifestyle/573/ ARC304 ARCHITECTURAL DESIGN 4   
“HABITO: The Heart of Good Living”
เพื่อการใชชีวิตสุดทันสมัย
คอมมูนิตี้มอลลที่คัดสรรสิ่งที่ดีที่สุด
1  https://www.sansiri.com/thai/press-detail/ ARC304 ARCHITECTURAL DESIGN 4    แสนสิริเปดตัว “ฮาบิโตะ (HABITO) รีเทล มอลล” ภายใตคอนเซ็ปต The Heart of Good Living ไลฟสไตลคอมมูนิตี้มอลลแหงแรกจากแสนสิริ ขนาด 10,000 ตารางเมตร บนพื้นที่ 4 ไรของที77 (T77) มูลคาการลงทุนกวา 400 ลบ. ไฮไลทจุดเดน ฮับบาโตะ (HUBBA-TO) Coworking Spaces ที่ใหญที่สุดในเอเชียตะวันออกเฉียงใต เปดตลอด 24 ชม. พรอมสตูดิโอทํางานครีเอทีฟครบทุกแขนง - ลิ้มรสที่สุดของความอรอยในแบบตนตํารับกับ 15 รานอาหารนานาชาติ ทั้งญี่ปุน ลาว จีน เม็กซิกัน เวียดนาม อิตาเลี่ยน ฯลฯ ที่คัดสรรวาดีที่สุด พรอมดวยรานคาและบริการตางๆ อีกมากมายที่ไดคัดสรรมา เพื่อใหสามารถตอบสนองไลฟสไตลของทุกคนในครอบครัว วางเปาเปนศูนยรวมครีเอทีฟไลฟสไตลระดับนานาชาติแหงใหมในที 77 (T77) และตั้งเปา รายไดตอป 40 ลานบาท วิงคครีเอทีฟไดมีสวนรวมในการ หาคอนเซ็ปตและพัฒนาฮาบิโตะใหเปน คอมมูนิตี้ รีเทล ที่มีรูปแบบที่แตกตางและเจาะกลุมเปาหมายไดตรงจุด โดยใช เวลากวา 2 ปในการทําวิจัยพฤติกรรมผูบริโภค วิเคราะหคูแขง โอกาสทาง ธุรกิจ รวมทั้งมีการศึกษาดูงานคอมมูนิตี้ รีเทล ชื่อดังในกรุงโตเกียว ประเทศญี่ปุนกวา 10 แหง จนไดคอมมูนิตี้ รีเทล
การใชชีวิตภายใตสโลแกน “HABITO: The Heart of Good Living” HABITO เปนคําที่เกิดจากการสนธิคําระหวางคําวา ‘Habitat’ (อานวา แฮบบิแทท) ในภาษาอังกฤษซึ่งแปลวาที่อยูอาศัย กับคําวา ‘Bito’ (อานวา บิโตะ) ในภาษาญี่ปุน แปลวา ผูคน ซึ่งเมื่อนํามารวมกันจึงเปนที่มาของ ฮาบิโตะ รีเทล มอลล ภายใตคอนเซปตการตกแตง ‘เนเชอรัล ลีฟวิ่ง’ (Natural Living) ที่ ไดรับแรงบันดาลใจมาจากสถาปตยกรรมและวัฒนธรรมของญี่ปุน โปรงสบายรูสึกใกลชิดธรรมชาติ ใสใจสิ่งแวดลอม (Eco friendly) เริ่มตั้งแตการ ออกแบบในลักษณะที่เปนกึ่งเอาทดอร เพื่อรับแสงและลมธรรมชาติลดการใชไฟฟา การเลือกวัสดุกันความรอน และเลือกใชวัสดุทดแทนลดการตัดตนไม ทั้งนี้ ยังใสใจในทุกรายละเอียดของการใชชีวิตของคนทุกกลุมที่จะมาใชบริการ ดวยการดีไซนหองน้ําใหอํานวยความสะดวกแกแมและเด็ก (Mother & Child friendly) ดวยหองใหนมบุตร และการจัดสรรพื้นที่ที่เอื้อประโยชนตอผูสูงอายุและคนพิการ (Universal Access) พรอมความสะดวกดานการเดินทางทั้ง ทางดวน และรถไฟฟาโดยมีรถ Shuttle Bus บริการรับสงจากโครงการใน T77 และสถานีรถไฟฟาบีทีเอสออนนุช เพื่อหัวใจที่สําคัญที่สุด คือ ผูอยูอาศัยใน บริเวณดังกลาวจะสามารถใชชีวิตไดอยางมีคุณภาพ
แนวคิดใหมที่มอบไลฟสไตล
1  https://www.brandbuffet.in.th/2016/08/habito-mall-sansiricommunity-t77/habito-mall-sansiri-2/ ARC304 ARCHITECTURAL DESIGN 4   
1  https://www.zipeventapp.com/e/t77-yard-sale-part-iii-shopregistration ARC304 ARCHITECTURAL DESIGN 4    ถนน ออนนุช
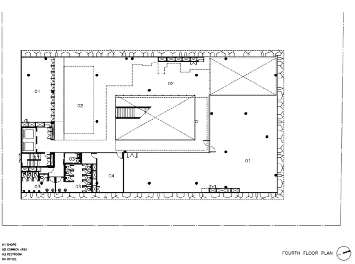
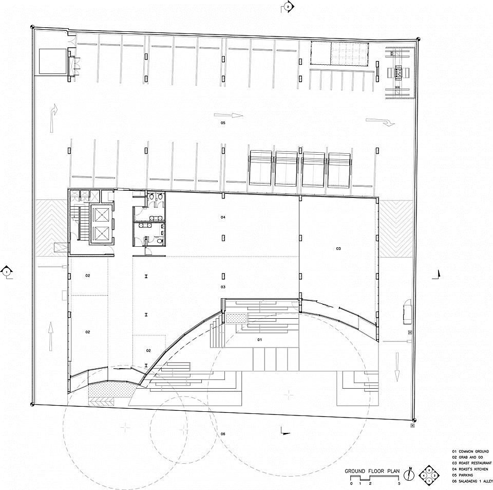
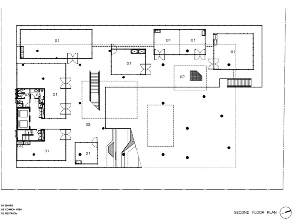
1  ARC304 ARCHITECTURAL DESIGN 4    https://www.livinginsider.com/livingdetail/676506/HABITO-MALLทําเลใจกลาง-T77.html Data source: 2021 Feb ENT DROP up up up up CAR PARK RAMP MDB MAID STAFF barber salon Beauty/drug warehouse Bank FOOD COURT รานไลฟสไตล +กีฬา +ทําอาหาร +ตกแตงบาน +ทํางานออฟฟศ + ปลูกผักทําสวน รานแฟชั่น รานเทคโนโลยี รานอาหารเครื่องดื่ม
1  ARC304 ARCHITECTURAL DESIGN 4    https://www.livinginsider.com/livingdetail/676506/HABITO-MALLทําเลใจกลาง-T77.html Data source: 2021 Feb TECHNOLOGY RESTAURANT LIFESTYLE RESTAURANT RESTAURANT up dn
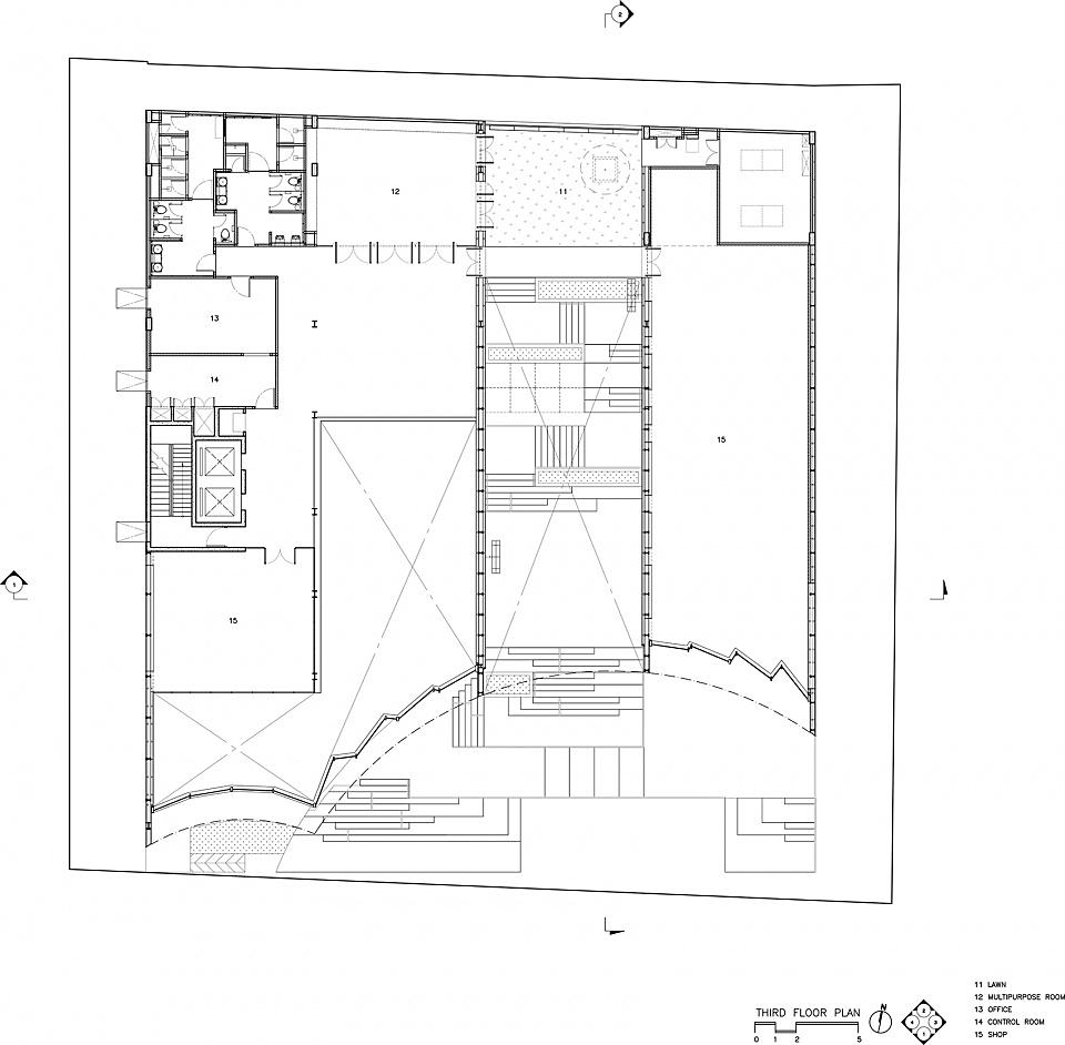
1  https://www.livinginsider.com/livingdetail/676506/HABITO-MALLทําเลใจกลาง-T77.html ARC304 ARCHITECTURAL DESIGN 4    Data source: 2021 Feb Beauty Beauty Learn RESTAURANT ???? ???? HUBBA-TO Co working ???? ???? ???? dn Hubba-to Co working & Artisan space 3-4th Floor

Hubba-to Co working & Artisan space

Size: 989 SQ.M.

Completion: Q2 2016

Design team: Yupadee Suvisith with Pitupong Chaowakul

1  ARC304 ARCHITECTURAL DESIGN 4   
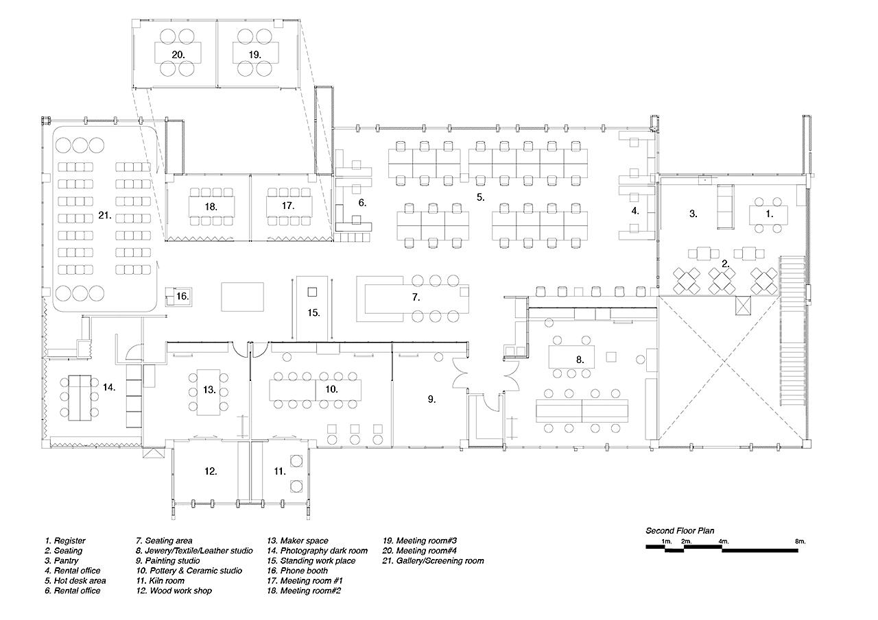
https://supermachine.co/2016/09/28/hubba-to/
DIP COFFEE WORKSHOP FOOD LAB

MEETING RM

RENTAL OFFICE

Hubba-to Co working & Artisan space

Size: 989 SQ.M.

Completion: Q2 2016

Design team: Yupadee Suvisith with Pitupong Chaowakul

RENTAL OFFICE

SCREENING RM

POTTERY & CERAMIC

PHOTOGRAPHY DARK RM

MAKER SPACE

PAINTING

WOOD WORKSHOP

JEWELY/TEXTILE/LEATHER

REGISTER

1  ARC304 ARCHITECTURAL DESIGN 4   
https://supermachine.co/2016/09/28/hubba-to/
1  ARC304 ARCHITECTURAL DESIGN 4    https://supermachine.co/2016/09/28/hubba-to/
1  https://supermachine.co/2016/09/28/hubba-to/ ARC304 ARCHITECTURAL DESIGN 4   
HUBBA-TO
1  https://dsignsomething.com/2016/08/08/habito-mall ARC304 ARCHITECTURAL DESIGN 4   

Turn static files into dynamic content formats.

Create a flipbook
Issuu converts static files into: digital portfolios, online yearbooks, online catalogs, digital photo albums and more. Sign up and create your flipbook.