WIDE SPAN CONSTRUCTION: case study

Page 1

ARC 224

WIDE SPAN CONSTRUCTION

Sports Center in Medellin

FOR EDUCATIONAL USE ONLY

ASST.PROF.PREECHAYA ROJRUEDAKORN

2022.08.01

1 https://arquitecturaviva.com/articulos/plan-b-y-mazzanti-coliseode-medellin

2 https://www.archiweb.cz/en/b/sportoviste-pro-jihamericke-hry-2010coliseos-medellin

3 https://www.archdaily.co/co/02-92222/escenarios-deportivos-giancarlomazzanti-felipe-mesa-planb

00
2 3
1

1 https://arquine.com/obra/museo-de-arte-moderno-de-medellin/

01 ARC 224 WIDE SPAN CONSTRUCTION
เมือง Medellin เปนที่ตั้งของศิลปนทองถิ่นมากมายที่จัดแสดงในพิพิธภัณฑ เชน Museo de Arte Moderno de Medellín หรือ Museo de Antioquia นักทองเที่ยวจะไดพบกับสวนสาธารณะมากมายรวมถึงสวนสัตวที่มีสัตวใหเยี่ยมชมมากกวา 1,000 ตัว เมืองนี้มีชีวิตทางวัฒนธรรม ที่มีชีวิตชีวาดวยโรงละครหลัก 4 แหงที่มีการแสดงคอนเสิรต โอเปรา และบัลเลตที่หลากหลาย ถาคุณรักการเตน สถานบันเทิงยามค่ําคืนของ Medellin จะทําใหคุณเพลิดเพลินดวยการเตนรําซัลซา IX South American Games, Medellín เมืองเมเดยินเปนศูนยกลางทางการเงินและอุตสาหกรรมที่สําคัญแหง หนึ่งของโคลอมเบีย และยังไดกลายเปนศูนยกลางทางวัฒนธรรมที่สําคัญ ของประเทศอีกดวย เมเดยินเปนเจาภาพจัดงานเทศกาลสําคัญหลายแหง และ มหาวิทยาลัยตางๆ ของที่นี่ก็จัดกิจกรรมทางวิชาการและวิทยาศาสตรเปน จํานวนมาก โครงการดานวัฒนธรรมนี้ขยายออกไปในป 2010 ดวยการเฉลิม ฉลอง IX South American Games ในเมือง ซึ่งในชวงสองสัปดาหได ตอนรับนักกีฬาจากสิบหาประเทศที่เขารวมในประเภทกีฬาตางๆ 42 ประเภท โดยมีผูชมประมาณ 12.000 คนจากนักกีฬา 3,750 คน เมเดยินมีประชากรประมาณ 2 ลานคน เมืองนี้ลอมรอบดวยเมืองเล็ก ๆ แปดเมืองและ รวมกันเปนพื้นที่ Metropolitana อุณหภูมิ เฉลี่ยในตอนกลางวันอยูที่ 80 องศาฟาเรนไฮต ซึ่งขึ้นชื่อในเรื่องสภาพอากาศในฤดูใบไมผลิที่ สมบูรณแบบ เมืองตั้งอยูในหุบเขาระหวางสัน เขาแอนเดียนสองแหง บริเวณนี้มีความอุดม สมบูรณของพื้นที่ที่มีชื่อเสียงสําหรับสวน ดอกไม กลวยไม ผีเสื้อ และกาแฟหอมกรุน 1
Project Information

Project Information

Architecture Firms: Mazzanti Arquitectos & Plan B Arquitectos

Architects: Giancarlo Mazzanti & Felipe Mesa

Project Type: Sports Facility

Client: INDER

Link: http://www.medellincultura.gov.co/suramericanos

Competition Design Team: Andrés Sarmiento Jairo Ovalle Luz Rocío Lamprea Fredy Pantoja Carlos Bueno Ana Prado Carlos Acero Jaime Borbón

Practicantes: Sandra Ferrer Damián Mosquera Juan Pablo Buitrago Marcela de la Hoz Diego Erazo

Project Design Team: Luz Rocío Lamprea Alberto Aranda Carlos Bueno Susana Somoza Luisa Restrepo María Alejandra Pérez Esteban Monsalve

Andrés Cardona Practicantes: Julio Gallego Yerickson Rodríguez Andrea Retat Verónica Betancur Julio Moreno Luisa Amaya Sebastián Serna Andrés

Prado María Camila Giraldo Lucia Largo

Construction: Coninsa - Ramón H. Structural design: Nicolás Parra y Daniel Lozano - CNI Ingenieros

Manufacturers: SIKA, COLOMBIT, ARKOS, HUNTER DOUGLAS, TITAN

Area: 30,694 m² Dates: Competition Year.- 2008. Construction year.- 2009

Location: Medellín, Colombia

Awards & Honors :

Ganador VIII BIAU 2012 Winner VIII BIAU. Centre Georges Pompidou, colección permanente permanent collection. Primer premio Concurso Público, Sociedad Colombiana de Arquitectos (2008) 1st prize Public Competition, Colombian Society of Architects

CASE STUDY ITEM

http://architypereview.com/project/four-sports-

https://www.metalocus.es/en/news/four-sportssceneries-coliseums-south-american-games-2010equipo-mazzanti-plan-b

02
1
224 WIDE SPAN CONSTRUCTION
Project Data 1
ARC
scenarios/ Conceptual Diagram / Design Techniques
Plan & Function 3 Structural & System 4 Conclusion 5
2
1
1 https://www.archiweb.cz/en/b/sportoviste-pro-jihamericke-hry2010-coliseos-medellin 03 ARC 224 WIDE SPAN CONSTRUCTION Project Information location
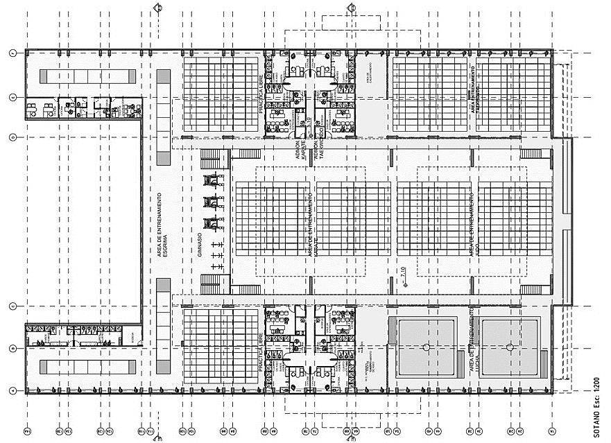
Gymnastics Martial Arts 1 2 3 4 1 2 4 3
Basketball Volleyball

MODULAR SYSTEM OF STRIP

1 Roof : This topographical form made of Super board which are the colors of mountains surrounding Medelin

2 Metal Screens , which are perforated with the pattern of tiny leaves (the issue of transparency)

1 https://www.archilovers.com/projects/26071/four-sportscenarios.html

05
Shed & Shadow
Conceptual Diagram
ARC 224 WIDE SPAN CONSTRUCTION

เสาโลหะที่ประกอบขึ้นจาก

รองรับระบบหลังคาและทําหนาที่เปนรางน้ําฝน

1
ทิศทางแดด
Aburrá valley เชื่อมโยงกับการวางผังที่ตั้งและการกําหนดตําแหนงอาคาร ทิศเหนือและใตเปดใหลมพัดผาน ทิศ ตะวันออกและตะวันตกมีอัฒจรรย และชายคา ควบคุมแสงแดดยามเชาและบาย 07 ARC 224 WIDE SPAN
แถบเสน (Strips) เราเสนอระบบหลังคาทรงเรขาคณิตของแถบคูขนาน โดยให สอดคลองกับทางโคจรของดวงอาทิตย เพื่อควบคุมแสงได แถบคูขนานทําหนาที่เชิงเทคนิค เชิงพื้นที่และเปนรูปแบบที่ สอดคลองกับชีวภูมิอากาศ (Bioclimatic) แถบสามารถยืดไปในทิศตะวันออกและตกได และสามารถ เพิ่มความสูงเพื่อใหเหมาะกับความตองการดานกีฬาที่แตกตาง กัน (บาสเก็ตบอล ยิมนาสติก ตอสูและวอลเลยบอล) หรือลง ไปปกปดแสงแดดไดถึงดานลาง ความสัมพันธกับ ภูเขา โครงสรางและรายละเอียด แถบเสนเหลานี้เปนระบบโครงถักโลหะแบบขนาน 7 อัน ซึ่ง เรขาคณิตเปลี่ยนแปลงและเกี่ยวของโดยตรงกับบริบทของ ภูเขาหรือภูมิประเทศของเมือง
เสาสามตน
แถบ ชายคาที่ยื่น นํามาใชเปนวิธีแกปญหาในดานความสัมพันธชีว ภูมิอากาศ และเชิงพื้นที่ได 1
https://inhabitat.com/flowing-medellin-sports-coliseum-keepsits-cool-with-a-laser-cut-facade/
และลมในหุบเขา
CONSTRUCTION
นําน้ําไปยังระบบระบายน้ําในเมือง ดวยรายละเอียดที่เปนเอกลักษณ ผนังเจาะรูพรุน
Design Concept Bioclimatic
diagram / Section Flowing Medellin Sports Coliseum

Conceptual Diagram

1 https://www.archilovers.com/projects/26071/four-sportscenarios.html

08 ARC 224 WIDE SPAN CONSTRUCTION
CONCEPTUAL MODEL

1 https://www.archilovers.com/projects/26071/four-sportscenarios.html

09 ARC 224 WIDE SPAN CONSTRUCTION

ARC 224

WIDE SPAN CONSTRUCTION

10
11 ARC 224 WIDE SPAN CONSTRUCTION 1 2 4 3
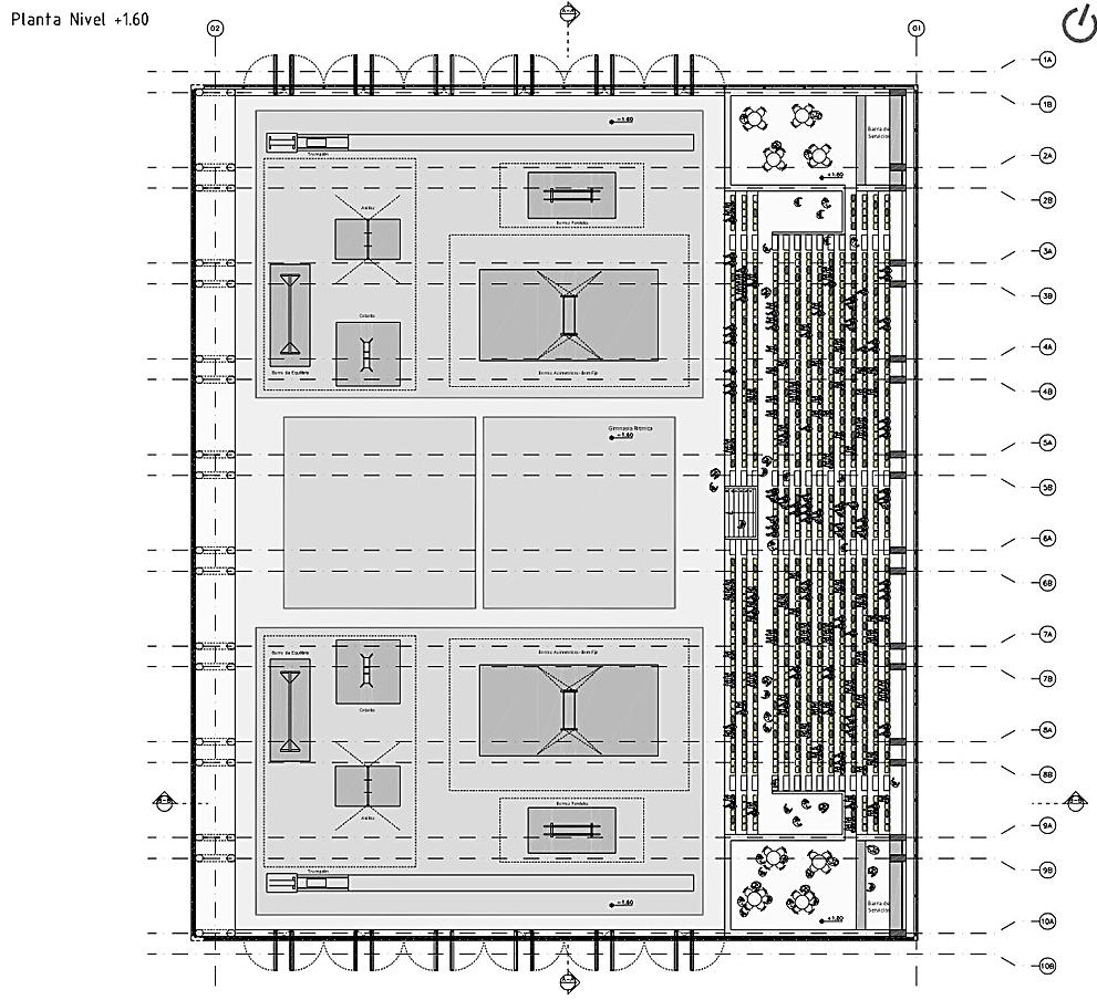
12 ARC 224 WIDE SPAN CONSTRUCTION Basketball arena Volleyball arena Gymnastics arena fight / Martial Arts arena 1 Master Plan https://www.archilovers.com/projects/26071/four-sportscenarios.html 1 2 4 3
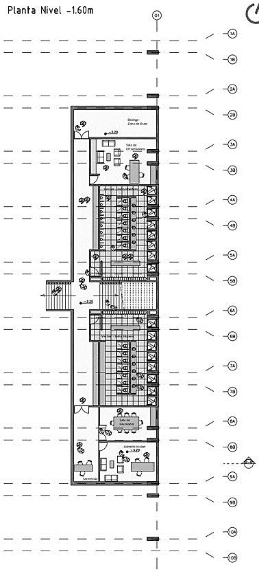
13 ARC 224 WIDE SPAN CONSTRUCTION 1 https://www.archdaily.com/141675/four-sport-scenariosgiancarlo-mazzanti-felipe-mesa-planb up up up up up up up up player player outdoor Plan & Function : Basketball arena 1
14 ARC 224 WIDE SPAN CONSTRUCTION 1 up up dn dn dn dn Main ent Main ent Main ent Main ent dn dn up up up up vip /disable wc up up
&
https://www.archdaily.com/141675/four-sport-scenariosgiancarlo-mazzanti-felipe-mesa-planb 1
Plan
Function : Basketball arena
15 ARC 224 WIDE SPAN CONSTRUCTION 1
& Function
up dn dn up dn dn https://www.archdaily.com/141675/four-sport-scenariosgiancarlo-mazzanti-felipe-mesa-planb 1
Plan
: Basketball arena
16 ARC 224 WIDE SPAN CONSTRUCTION 1
https://www.archdaily.com/141675/four-sport-scenariosgiancarlo-mazzanti-felipe-mesa-planb 1
Structure : Basketball arena
17 ARC 224 WIDE SPAN CONSTRUCTION 1
https://www.archdaily.com/141675/four-sport-scenariosgiancarlo-mazzanti-felipe-mesa-planb 1
Structure : Basketball arena
18 ARC 224 WIDE SPAN CONSTRUCTION 1
http://arch-mpk.blogspot.com/2011/06/escenarios-deportivosgiancarlo.html 1
Structure: Basketball arena
19 ARC 224 WIDE SPAN CONSTRUCTION 1
1
Perspective : Basketball arena https://www.planbarq.com/4-escenarios-deportivos/
https://www.evolo.us/medellin-sports-coliseum-mazzanti-arquitectosplanb-arquitectos/
20 ARC 224 WIDE SPAN CONSTRUCTION 1
https://co.pinterest.com/pin/311803974184075148/ 1
Perspective : Basketball arena
22 ARC 224 WIDE SPAN CONSTRUCTION 1 https://www.archdaily.com/141675/four-sport-scenariosgiancarlo-mazzanti-felipe-mesa-planb Plan & Function : Martial Arts arena 2 up up up fitness ซ้อม ซ้อม
23 ARC 224 WIDE SPAN CONSTRUCTION 1 public wc pub pub pub pub player A B dn dn dn dn dn dn dn void Plan & Function : Martial Arts arena https://www.archdaily.com/141675/four-sport-scenariosgiancarlo-mazzanti-felipe-mesa-planb pub 2 dn dn
24 ARC 224 WIDE SPAN CONSTRUCTION 1 up up up A B dn dn dn up up up up up void https://www.archdaily.com/141675/four-sport-scenariosgiancarlo-mazzanti-felipe-mesa-planb ramp Plan & Function : Martial Arts arena 2

Structure: Martial Arts arena

25 ARC 224 WIDE SPAN CONSTRUCTION 1
https://www.archdaily.com/141675/four-sport-scenariosgiancarlo-mazzanti-felipe-mesa-planb SECT B SECT A 2
26 ARC
WIDE SPAN
2
224
CONSTRUCTION 1 https://www.metalocus.es/en/news/four-sports-sceneries-coliseumssouth-american-games-2010-equipo-mazzanti-plan-b Structure: Martial Arts arena

Structure: Martial Arts arena

27 ARC 224 WIDE SPAN CONSTRUCTION 1
https://www.metalocus.es/en/news/four-sports-sceneries-coliseumssouth-american-games-2010-equipo-mazzanti-plan-b SECT B 2

Structure: Martial Arts arena

28 ARC 224 WIDE SPAN CONSTRUCTION 1
https://www.metalocus.es/en/news/four-sports-sceneries-coliseumssouth-american-games-2010-equipo-mazzanti-plan-b 2

Structure: Martial Arts arena

29 ARC 224 WIDE SPAN CONSTRUCTION 1
https://www.metalocus.es/en/news/four-sports-sceneries-coliseumssouth-american-games-2010-equipo-mazzanti-plan-b 2

Perspective: Martial Arts arena

30 ARC 224 WIDE SPAN CONSTRUCTION 1 https://www.archdaily.com/141675/four-sport-scenariosgiancarlo-mazzanti-felipe-mesa-planb
https://www.behance.net/gallery/7496835/Four-Sport-Scenarios 2 2 2
31 ARC 224 WIDE SPAN CONSTRUCTION 1 Plan & Function : Gymnastics arena https://www.archdaily.com/141675/four-sport-scenariosgiancarlo-mazzanti-felipe-mesa-planb dn Main ent Main ent dn up dn dn up up Player Player Main ent 3
32 ARC 224 WIDE SPAN CONSTRUCTION 1 Plan & Function : Gymnastics arena https://www.archdaily.com/141675/four-sport-scenariosgiancarlo-mazzanti-felipe-mesa-planb dn dn mezzanine mezzanine 3
33 ARC 224 WIDE SPAN CONSTRUCTION 1
https://www.archdaily.com/141675/four-sport-scenariosgiancarlo-mazzanti-felipe-mesa-planb Perforated 3
Structure: Gymnastics arena
34 ARC 224 WIDE SPAN CONSTRUCTION 1
http://arch-mpk.blogspot.com/2011/06/escenarios-deportivosgiancarlo.html 3
Structure: Gymnastics arena
35 ARC 224 WIDE SPAN CONSTRUCTION 1 http://architypereview.com/project/four-sports-scenarios/ Perforated 3 Perspective : Gymnastics arena
Perforated
Perforated
36 ARC 224 WIDE SPAN CONSTRUCTION 1 http://architypereview.com/project/four-sports-scenarios/ Perspective : Gymnastics arena https://www.elequipomazzanti.com/en /proyecto/097_four-sport-scenarios/ 3
Perforated
37 ARC 224 WIDE SPAN CONSTRUCTION 1 Plan & Function : Volleyball arena https://www.archdaily.com/141675/four-sport-scenariosgiancarlo-mazzanti-felipe-mesa-planb up up Main ent Main ent Main ent up up Main ent dn dn dn dn dn dn Player Player 4
38 ARC 224 WIDE SPAN CONSTRUCTION 1 https://www.archdaily.com/141675/four-sport-scenariosgiancarlo-mazzanti-felipe-mesa-planb Plan & Function : Volleyball arena dn dn dn dn dn dn 4
39 ARC 224 WIDE SPAN CONSTRUCTION 1 https://www.archdaily.com/141675/four-sport-scenariosgiancarlo-mazzanti-felipe-mesa-planb
Volleyball
4
Structure:
arena
ผนัง Polycarbonate เหล็กกลอง เหล็กกลอง Fiber cement board รางน้ําโลหะ หลอดไฟ 40 ARC 224 WIDE SPAN CONSTRUCTION 1 https://www.archdaily.com/141675/four-sport-scenariosgiancarlo-mazzanti-felipe-mesa-planb Structure & Details: Volleyball arena 4 เสา – Steel Pipe +คานเหล็ก H รับทางเดิน
41 ARC 224 WIDE SPAN CONSTRUCTION 1 Perspective : Volleyball arena https://www.planbarq.com/4-escenarios-deportivos/ 4 ผนัง Polycarbonate Perforated
42 ARC 224 WIDE SPAN CONSTRUCTION 1 Construction : Volleyball arena https://www.archilovers.com/projects/26071/four-sportscenarios.html แยก circulation ที่นั่งลางสุด อยูสูงกวาระดับพื้นสนาม Flat truss - Warren เมมเบอรทแยงสลับ 4

1 https://www.archilovers.com/projects/26071/four-sportscenarios.html

43 ARC 224 WIDE SPAN CONSTRUCTION
44 ARC 224 WIDE SPAN CONSTRUCTION 1 https://web.facebook.com/media/set/?set=a.185203818501752 7.1073741859.1406120819609268&type=3&_rdc=1&_rdr
46 ARC 224 WIDE SPAN CONSTRUCTION 1 https://www.youtube.com/watch?v=2PWsbs4cwd4 โครงสรางใตดิน และ อัฒจรรย - reinforce concrete Diaphragm Wall Flat Truss - Pipe
Details
Construction Process Column - Pipe ผาโพลีเอสเตอรไมทอ Super board - fiber cement
Structure &
:
47 ARC 224 WIDE SPAN CONSTRUCTION 1 https://www.archiweb.cz/en/b/sportoviste-pro-jihamericke-hry2010-coliseos-medellin โครงสราง TRUSS เหล็กทอ (PIPE) ประกอบดวยแผนไฟเบอรซีเมนตซึ่งยึดกับโครงสรางเหล็ก การกันน้ําของหลังคารับประกันโดยการติดตั้งเมมเบรน PVC ขนาด 1.8 มม. เคลือบดวย ผาโพลีเอสเตอรไมทอชนิด FLAGON SR 200gr/m² เมมเบรนนี้ผลิตขึ้นในสีเขียว 3 เฉด (RAL 6020 – 6021 – 6025) ไดตามความตองการของสถาปนิก และนําไปใชกับแผงไฟเบอรซีเมนตอยาง แนนหนาโดยใชกาวสัมผัสพิเศษ สเปรย FLAGCOL TF1 https://www.soprema.es/es/article/referencias/unidad-deportivaatanasio-girardot 2 2 https://www.floornature.es/mazzanti-mesa-nuevo-estadio-enmedellin-7107/ 3 3
SR
FLAGON Polyester
Fabric
48 ARC 224 WIDE SPAN CONSTRUCTION 1 https://web.facebook.com/media/set/?set=a.185203818501752 7.1073741859.1406120819609268&type=3&_rdc=1&_rdr https://www.youtube.com/watch?v=JeIvffwchTM

1 https://www.soprema.es/es/article/referencias/unidaddeportiva-atanasio-girardot

49 ARC 224 WIDE SPAN CONSTRUCTION

1 https://www.soprema.es/es/article/referencias/unidaddeportiva-atanasio-girardot

50 ARC 224 WIDE SPAN CONSTRUCTION

Conceptual Diagram / Design Techniques

MODULAR SYSTEM OF STRIP

1 Roof : topographical form / colors of mountains surrounding Medelin

2 Metal Screens : perforated with the pattern of tiny leaves

55 ARC 224 WIDE SPAN CONSTRUCTION 1 Conclusion
1 ชายคายื่นปกปองทิศทางแดด E และ W เปดชองระบายอากาศ ทิศ S และ N จัดผังให circulation สามารถเดินไดรอบ คํานึงถึงจํานวนคนเขา-ออกอาคาร จัดผังให circulation มีทางเขาหลักจาก ชั้น 1 กระจายคนขึ้นดานบน และลงดานลาง จัดผังให circulation รอบนอก (ไมมีตั๋ว) สามารถมองทะลุผานผนัง perforated ได สัมพันธกับ Bioclimatic Diagram
56 ARC 224 WIDE SPAN CONSTRUCTION 1 Conclusion
& System โครงสรางรับน้ําหนักอัฒจรรย - คอนกรีตเสริมเหล็ก (Reinforce concrete) โครงสรางหลังคา – โครงถัก (FLAT TRUSS) ใชทอเหล็กกลม Steel Pipe เมมเบอรทแยงสลับแบบ Warren วัสดุ Super board - ปดผิวดวย โพลีเอสเตอร (ไมทอ) Flat truss เหมาะสําหรับ การเปลี่ยน form หลังคา ในขณะที่ราคาเหมาะสม โครงสรางรับน้ําหนักหลังคา – โครงเสาประกอบ (Composite Column – 3 Steel Pipes) Polyester Roofing Fabric
Structural

https://www.archdaily.co/co/02-92222/escenarios-deportivos-giancarlo-mazzanti-felipe-mesa-planb

https://www.archdaily.com/141675/four-sport-scenarios-giancarlo-mazzanti-felipe-mesa-planb

https://www.archilovers.com/projects/26071/four-sport-scenarios.html

https://www.archiweb.cz/en/b/sportoviste-pro-jihamericke-hry-2010-coliseos-medellin

http://arch-mpk.blogspot.com/2011/06/escenarios-deportivos-giancarlo.html

https://arquine.com/obra/museo-de-arte-moderno-de-medellin/ http://architypereview.com/project/four-sports-scenarios/

https://arquitecturaviva.com/articulos/plan-b-y-mazzanti-coliseo-de-medellin

http://espaciosenconstruccion.blogspot.com/2014/06/escenarios-deportivos-giancarlo.html

https://www.evolo.us/medellin-sports-coliseum-mazzanti-arquitectos-planb-arquitectos

https://web.facebook.com/media/set/?set=a.1852038185017527.1073741859.1406120819609268&type=3&_rdc=1&_rdr

https://www.floornature.es/mazzanti-mesa-nuevo-estadio-en-medellin-7107/

http://gronlandcollective.blogspot.com/2009/10/sports-complex-for-panamerican-games-in.html

https://www.metalocus.es/en/news/four-sports-sceneries-coliseums-south-american-games-2010-equipo-mazzanti-plan-b

https://www.planbarq.com/4-escenarios-deportivos

https://www.soprema.es/es/article/referencias/unidad-deportiva-atanasio-girardot

https://www.youtube.com/watch?v=2PWsbs4cwd4

https://www.youtube.com/watch?v=JeIvffwchTM

57 ARC 224 WIDE SPAN CONSTRUCTION Reference

Turn static files into dynamic content formats.

Create a flipbook
Issuu converts static files into: digital portfolios, online yearbooks, online catalogs, digital photo albums and more. Sign up and create your flipbook.
WIDE SPAN CONSTRUCTION: case study by Preechaya Mong - Issuu