PROBLEM IDENTIFICATION- About 30% of the total population in India lives in urban area out of which 50% of the total urban population lives in slum, which is projected to increase in coming years. This increase in urban population and shortage of land significantly contribute towards the growth of the slum.
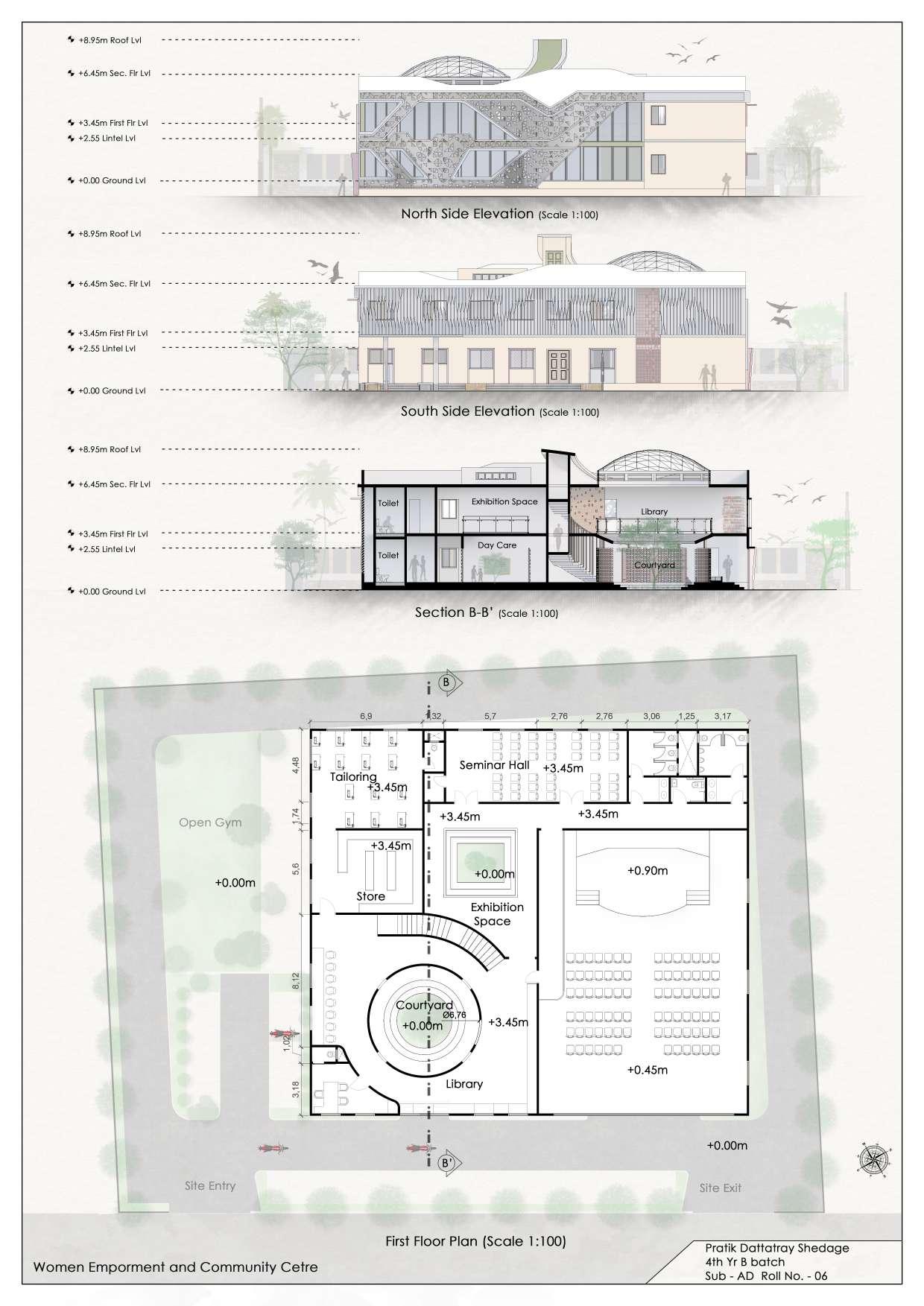
• Community Centre - Since all development is directly related to the people of each specific community, the way of life of the people also influences the effectiveness of the community development.
In the case of slums in India melas (carnivals), natak (street plays), festivals celebrations etc. Become tools of culture exchange and local culture specific community interaction. There is need of a community Centre and that's need to be properly designed for such occasions.
• Women welfare - Addressing the constraints to women's economic empowerment is fundamental to poverty reduction and food security, lasting, inclusive and sustainable economic growth, and the achievement of gender equality.