Portfolio Primary Education

Page 1

Portfolio primary education

1 Content 3 Education and atelier PRO 7 VISION & SPACE 9 Community Centre De Statie, Sas van Gent 13 Community Centre 03, Den Haag 17 Vosholen Children’s centre, Hoogezand-Sappemeer PLACE & CHARACTER 23 Alber t Schweitzerschool, Rotterdam 25 Dr. Schaepmanschool Primary school 27 Community Centre Krimpen aan de Lek 29 Community Centre Op Expeditie, Venlo 33 Community Centre Waterrijk, Boskoop 37 Community Centre Achtmaal, Zundert 41 Community Centre Montessorischools Valkenbos, Den Haag OLD & NEW 47 The British School of Amsterdam 51 Rudolf Steiner School & College, Haarlem 55 Community Centre Huis van de Heuvel, Breda 59 Community Centre Geuzenschip, Brielle 63 Community Centre Warmond SYNERGY & POSSIBILITIES 69 Pantarijn and Hindu primary school Shri Krishna, Utrecht 73 Community Centre Zuiderkwartier, Tilburg 77 Community Centre Mandela, Gouda 81 Community Centre Damlaan, Schiedam HEALTHY & SUSTAINABLE 85 Clean Air Schools

Education and atelier PRO

Healthy and Pleasant

Atelier PRO is committed to the educational learning environment for children and young adults. In our view, this environment should be a HEALTHY and PLEASANT one for pupils to reach their best achievements. This applies to all types of tuition in primary and secondary schools, and higher education.

For a healthy and pleasant educational learning environment, we as architects pay attention to indoor climate, logistics, and the positioning of the various spaces inside the building, as well as the relationship to the town and surroundings. Pupils, teachers, and staff should feel at home in our designs, which is why creating a healthy and pleasant school building is essential.

Buildings from atelier PRO offer possibilities for a variety of different educational visions. We believe that the interpretation of the educational vision lies with the teachers and the school board and not with the architects. It is our job to envision optimal building designs that can accommodate different perspectives in collaboration with the client and the educational institution. We commit ourselves to translating distinctive wishes into initial starting points. This takes both imagination and good communication skills during the design process, an approach that has led to numerous characteristic educational school buildings of which we present a selection here.

3

About us

Atelier PRO was set up in 1976, and is an architectural firm in The Hague where animated professionals are actively engaged with architecture, urban development, interior design and building and costs management. Our home base is a special dune garden in the Archipelbuurt in The Hague. This location reflects who we are, as it represents how much we value the genius loci. From the very beginning, a contextual approach to architecture has been our motive, and it still is. Starting from these principles, atelier PRO creates surprising and pioneering architecture with a strong social engagement. This was the foundation of our name: PRO = Plan, Ruimte, Ontwikkeling (plan, space, development).

For us, the quality of a residential environment forms the basis for people to be able to develop themselves. Therefore, it is no coincidence that a major part of our portfolio consists of social property. Our view on education and health care has been translated into various schools, multifunctional accommodations and health care institutions. Furthermore, cultural and public buildings such as theatres and cultural centres also form part of it. Our involvement to improve the social environment is also converted into a great interest in and affinity with renovation and re-use. Recognizing and using the unnoticed beauty of existing buildings, often yields surprising designs. We highly value the historic stratification of the built environment and we ask ourselves: what qualities can we maintain and use to create surplus value. We try to look into the future, for example by investigating any possible contribution of architecture and urban development to a sustainable residential environment. Therefore, ongoing development of knowledge and skills plays a major role for our office. For instance, what will the clean city of the future look like? With what sort of new materials can we design environmental friendly facades? For us, such issues are topical. Our curiosity and spirit of enterprise become manifest in items such as high sustainability scores, trend-setting strategies for educational buildings and successful office layouts for The New World of Work.

5

Vision & space

Community centre with two primary schools, library, several community facilities , sports centre, child care, municipal health service (GGD), residential complex of 23 apartments

Period 2009 - 2013

Client Woongoed

Zeeuws-Vlaanderen

Project architect

Dorte Kristensen and Pascale

Leistra

Project leader Ronald Peters

Landscape design Eline Keus

Address

Canadalaan, Sas van Gent

Gross floor area 9000 m²

Building costs € 10.000.000,-

8
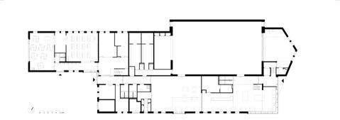
Library Ground floor

Community Centre De Statie, Sas van Gent

flexible plasticity responds to whimsical location

De Statie in Sas van Gent is a multifunctional accommodation. Besides a library, several community facilities and a sports centre, the complex accommodates two primary schools, a childcare centre, playgroup and municipal health service (GGD), and a residential complex of 23 apartments.

The shape of this location is rather whimsical, and the complex responds to this shape by means of randomness and plasticity. The building cannot be surveyed at a single glance, due to the angular rotations, overhangs and variety in surfaces.

9
Playground overlooking the entrance of De Statie.
11
Left: void with library Below left to right: Facade of The Statie made of traditional black horizontal wood siding, meeting space, natural sunlight brings light into the loft, library, sports hall, theater/cinema

Community centre with a primary school, child care, nursery, sport accomodation, neighboorhood functions

Period 2010 - 2015

Client SCOH & Haag Wonen

Project architect

Dorte Kristensen, Christina

Kaiser

Project leader Eelko Bemener

Address

Zaanstraat 25, Den Haag

Gross floor area 4.108 m²

Building costs € 4.633.000,-

01351015(M)

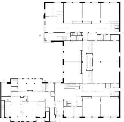
plattegrond begane grond Bredebuurtschool Riverenbuurt groundfloor Communityschool

12
situatie Bredebuurtschool Riverenbuurt situationplan Communityschool 25 (M) 201510 50
Ground floor

Community Centre

03, Den Haag

school and community centre in one

August 2015 marked the start of the first school year for the Multifunctional Child centre 03, a new building designed by atelier PRO architects Christina Kaiser and Dorte Kristensen. This is not just a school – it is the heart of the Rivierenbuurt neighbourhood in The Hague. It was designed for the young and old in the community. The name O3 refers to development, discovery and meeting, all words that start with an O in Dutch (ontwikkelen, ontdekken, ontmoeten). The building is located in one of the districts bordering on the centre of the city. It comprises the Jan van Nassau primary school (SCOH), the DAK child care centre, welfare organisation Zebra, as well as a medical and community centre, and sport associations.

13

Child center with two primary schools, childcare and sports facilities

Design period 1st phase

2012 - 2014

Design period 2nd phase

2017 - 2018

Construction period

2018 - 2020

Client Gemeente MiddenGroningen

Project architect

Dorte Kristensen, Joke STolk, Martijn de Visser

Project leader

Coen Bouwmeester

Address De Boomgaard, Hoogezand-Sappermeer

Goss floor area 3.656 m²

16 0 0 25(m) situatie Kindcentrum Vosholen Hoogezand situation ChildcenterVosholenHoogezand Kindcentrum Vosholen, Hoogezang - situatie site 25(m) situatie Kindcentrum Vosholen Hoogezand situation ChildcenterVosholenHoogezand ground floor plan Site
Ground floor

Vosholen Children’s centre, HoogezandSappemeer

earthquake and future proof

The bold red building of Vosholen Children’s centre is located in a park-like landscape in Vosholen, Groningen. This new residential neighbourhood is located near Hoogezand and Sappemeer, villages once important for peat extraction. This cultural heritage was the starting point of the development of the neighbourhood. On the site is an old boiler house with a brick chimney – a municipal monument – that stands as a reminder of a time when greenhouses occupied the site. For atelier PRO, this was an important element to incorporate into the design of the children’s centre.

The child center is sustainable and completely earthquake-proof.

17

Place & character

Primary school and nursery

Period 2018 - 2022

Client RVKO

Project architect Dorte Kristensen

Collaborative architect

Studio LP (Lisette Plouvier)

Project leader Lia Tuit

Address Jan Steenstraat 30

Rotterdam

Gross floor area 2.278 m²

22
Ground floor

Albert Schweitzerschool, Rotterdam

The Albert Schweizer School lacked a ‘heart’. That’s why atelier PRO - in collaboration with Studio LP - designed a new building for this Rotterdam elementary school, with an assembly hall as its central feature. The new L-shaped volume embraces an existing school building from the 1970s, and is positioned so that the assembly hall also serves as the heart of the older building.

The new building is the preserve of toddlers, preschoolers and the lower school. It also houses a number of shared facilities like a playroom, a library, a team room and the assembly hall. The assembly hall serves as the heart of the new building - and, due to its location and transparent layout, also for the school as a whole.

23
transparent building ensemble

Primary school with childcare

Period 2015 - 2016

Client RVKO

Project architect Christina Kaiser

Project leader Hans Tak

Address

Marijkesingel 3, Barendrecht

Goss floor area 1.520 m²

Building costs € 1.456.000,-

Ziedewijdsebaan

Ziedewijdsedijk

Ground floor

24 50 20 (m) situatie Dr. Schaepmanschool Barendrecht situation Dr.SchaepmanschoolBarendrecht M ar ijk esi nge

Dr. Schaepmanschool Primary school

a school like a big house

New housing for the Jenaplan elementary school, the Dr. Schaepmanschool. The design is like a big house. The auditorium is the living room that connects the clusters for the lower, middle and upper school classes. The classrooms have wide windows and are connected via sliding doors to the adjacent study areas. The building, like most buildings in the area, has facades with large windows.

25

Community centre with two primary schools, child care and sport facilities

Period 2012 - .2014

Client Hevo

Project architect

Dorte Kristensen and Mira van Beek

Project leader Mira van Beek

Address Klaverstraat, Krimpen aan de Lek

Gross floor area 3.200 m²

Building costs € 3.422.666,-

26 Kla e staat Adm de Ruyterstaat Schools aat Klaver traat Schoolstraa 0(m) 510152025 SCHAAL EDITIE TEKNR FASE 1 : 500 1203 PR-ST-01 Situatie nieuw WE SITUATIE MFA KRIMPEN AAN DE LEK
Site Schoolyard De Wegwijzer

From left to right: Entrance visible and recognizable. The stairs to the upper floor create an nice atmosphere. Six themes, appointed by the schools and BSO in the initiation phase are integrated into the building’s ‘cornerstones’ .

Community Centre Krimpen aan de Lek

synergy and flexible shape

This new MFA, situated on the Admiraal de Ruyterstraat and the Klaverstraat, consists of the Protestant primary school De Wegwijzer (the signpost), the public primary school Prinses Irene, an after- school care centre (SKN) and a gymnastics hall. The gymnastics hall holds a central position between the two schools, thus creating two schoolyards, each with their own character. The gymnastics hall is also directly connected with the playgroup and after school care, therefore enabling complete multifunctional use throughout the building.

27

Multifunctional accomodation, two primary schools, nursery, child care, sports accomodation, neighbourhood functions

Period 2010 - 2013

Client Municipality of Venlo

Project architect Dorte

Kristensen, Pascale Leistra

Project leader Marjon Main

Address Vossenerlaan, Venlo

Gross floor area 4.750 m²

Price per m² € 1.122,-

Building costs € 5.329.090,-

28 plattegrond begane grond ground floor plan MFA OP EXPEDITIE 0 (m) 5 20
The neighboorhood Park is part of the playground of the school

Community Centre Op Expeditie, Venlo

wooden wall sections and blended with ‘Discovery garden’

MFC op Expeditie (Multifunctional Centre) is situated in Blerick, a neighbourhood in Venlo existing since the seventies. Children take centre stage in this multifunctional building. The building’s design aims to contribute to an accessible atmosphere in which people can easily meet each other. The building houses a multifunctional centre, two schools, a childcare centre, a playgroup, an out-of-school care centre, a sports centre and various community facilities.

29
31

Community school with a primary school, child care and sporthall

Period 2013 - 2015

Client Municipality of Alphen

aan den Rijn

Project architect

Alex Letteboer, Joke Stolk

Project leader Joke Stolk

Address

De Boomgaard 2 en 4, Boskoop

Gross floor area 2.863 m²

Building cost € 2.605.620,-

32

Community Centre Waterrijk, Boskoop

archetypical barn shape with streamlined details

Located on Boomgaard street in Boskoop, the Waterrijk community school houses the Immanuel primary school and Junis Day care Foundation. The school had a unique conception: in a short period of time a team of enthusiastic users, municipality and school committee members and designers conducted a massing study and devised a sketch design – this was used for the tender process. This was a very bold approach for an ambitious project, and the continuation of the process was swift: in 2013 atelier PRO was engaged by the consortium to develop the design. The building opened, according to plan, in June 2015.

33 50 20 (m) plattegrond begane grond
Ground floor
34
35

Community centre with library, primary school, childcare centre, sports accomodation

Period 2012 - 2014

Client Thuisvester

Project architect Dorte

Kristensen en Mira van Beek

Project leader JJaco de Koning, Ronald Peters

Landscape design Eline Keus

Address

Van den Berghstraat, Achtmaal Gross floor area 1790 m²

Building costs € 1.986.966,-

36
Ground floor First floor

Community Centre Achtmaal, Zundert

special feature that fits in the neighborhood

Achtmaal is a small regional centre in Noord-Brabant with approximately 1600 inhabitants. The municipality of Zundert, to which Achtmaal belongs, wanted to ensure that the centre remains attractive and liveable for both young and old in the future. In this way, good facilities play an important role, which explains why Achtmaal – which has a church, supermarket and cafe – commissioned a multipurpose community complex. A restricted multiple-stage tender was initiated for this purpose, which was won by atelier PRO.

The building accommodates various social facilities including a community centre with library, gymnasium, primary school and day care centre. Besides the multipurpose complex, five seniors residences will be built on the site of the old community centre. The project will be implemented in phases to ensure that the community centre only needs to move premises once.

37
38
39

Two primary schools, childcare centre, sports accomodation

Period 2010 - 2014

Client

De Haagse Scholen; stichting voor primair en speciaal openbaar onderwijs

Project architect Dorte

Kristensen, Pascale Leistra

Project leader Jaco de Koning

Address Cederstraat en Abeelstraat, Den Haag

Gross floor area 4.700 m²

Building costs: € 4.840.000,-

40

Community Centre Montessorischools Valkenbos, Den Haag

smart use of flexible school program

The Christian Montessori school and Public Montessori school remain neighbours on an urban site in the district of Valkenbos, the Hague. The contemporary new building facilitates a more extensive cooperation between the two schools than previously in the original two buildings. Alongside, the building accommodates a day care centre and after school care centre, where the close proximity between the classrooms and after school care spaces is well utilised.

41 ABEELSTRAAT CEDERSTRAAT 0 10 40 (m) situatie Montessorischool Valkenbos situation MontessorischoolValkenbos
Facade and playground Cederstraat

Old & new

The school is made up of three sections: Early Years (ages 3 to 7), Junior School (7 to 11) and Senior School (11 to 18). The school follows the National Curriculum for England

Period 2016-2021

Client British School

Amsterdam

Project architect Dorte

Kristensen, Lisette Plouvier Landscape designer

Buro Sant en Co

Address Havenstraat 6, Amsterdam

Gross floor area 10.000 m²

Nomination Architectenweb school building of the year 2021

46
Ground floor

The British School of Amsterdam

a former prison transforming into British School

The British School of Amsterdam (BSA) offers a British international education to 900 children aged from three to 18. The BSA chose to transform a historic penitentiary to house its three scattered schools (Early years, Juniors and Seniors) along with community facilities.

The architectural assignment was a challenge. The closed and introverted nature of the prison had to be reconciled with the world-oriented spirit of education. In addition to the 6,762 m² renovation of the municipal monument, 7,361 m² new construction has been added in a harmonious manner. The logistics and routing within the old prison was used as a basis and the new program components were attached to it. Each building section, or wing of the prison, is a specific school. The central hall is the meeting point for everyone, the halls in the wings are used by the different schools.

47
From left to right: The dome; Learning square for toddlers in the corridor area; view of the junior playground and the monumental facade; the cell windows with bars have been restored and supplemented with extra windows;
49
Left: “The Globe”, a central meeting place for young and old From left to right: the cells have been broken open and transformed into teaching spaces; classroom in the new building; multifunctional room for the after school care; playground
50 Reuse of part of existing school New

Rudolf Steiner School & College, Haarlem

metamorphosis for a school building from the 1960s

In Schalkwijk in Haarlem, a school building from the 1960s has been transformed into a primary school and after-school care centre. Together with the new secondary school built next door, it forms a new entity: Rudolf Steiner School and College. A transparent connecting section makes it possible to share functions.

For the school, an important starting point was to make the best possible use of the structure of the existing building; modifications would be difficult and costly. In line with the philosophy of the Waldorf schools, however, there was a need to break through the rigid corridor structure and give the school a heart. Therefore, the entrance was moved to the mid corner of the building, where space was created for a large reception area, adjacent to the media library and the kitchen. A new staircase and lift give quick access to the 1st floor.

51
Original situation
52
Corridor in the school with a view of the eurythmy room

Primary school

Period 2017 - 2022

Client Stichting Voortgezet Vrijeschool Onderwijs Noord-Holland (SVVONH)

Project architect

Martijn de Visser

Address Duistandlaan, Haarlem

Goss floor area 6.143 m²

53

Community centre with two primary schools, child care, sport and communty facilities

Period 2007 - 2012

Client Municipality of Breda

Project architect

Alex Letteboer, Joke Stolk

Project leader Joke Stolk, Hans Tak

Landscape design Eline Keus

Address Mgr. Nolensplein 1, Breda

Gross floor area

New: 4.095 m²

Renovation: 2.615 m²

Price per m² € 1.192,-

Building costs € 8.000.000,-

The church building by Granpré Molière has been restored in all of its glory. Authentic details and spatial structure of the church have been preserved and remain recognizable.

The new building is veined with transparency, sculptural, color and light

54 246810(m) SCHAAL EDITIE TEKNR FASE 200 0621 EERSTE VERDIEPING
246810(m) SCHAAL EDITIE FASE E Date 5 0621
First floor Ground floor

Community Centre Huis van de Heuvel, Breda

balancing old and new

Cultural centre Huis van de Heuvel stems from the reshaping and expansion of the exceptional church designed by Granpré Molière; a national monument in ‘De Heuvel’, a reconstruction neighbourhood in Breda. A part of the programme is formed by a Multifunctional Community School with a catholic and public primary school, a gymnastics hall, an extensive social cultural centre with an open house, a community worker, a youth health centre, a playgroup, a day care centre and after- school care. The existing garden between the church and the new build has been used as the connecting link, providing a winter garden and courtyard.

55
The new schools behind the church
57
Left: the winter garden serves as a link between the new building and the existing building complex

Two primary schools and child care

Period 2011 - 2014

Client Municipality of Brielle

Project architect

Dorte Kristensen, Martijn Visser, Hans Tak

Project leader

Martijn de Visser, Hans Tak.

Address Sint Catharijnehof 6

Venkelstraat 18, Brielle

Gross floor area 1.200 m²

Building costs

new school € 1.650.000,-

renovation € 530.000,-

58
Old part of the school was renovated

Community Centre Geuzenschip, Brielle

two primary schools sharing facilities

Two primary schools located in the centre of Brielle were experiencing a shortage of space: the public Meester Eeuwout school and the Geuzenschip Christian primary school, a municipal heritage-listed building from 1930. The schools are located right beside each other. To address this issue, atelier PRO designed a building that can be shared by both schools. By sharing facilities both schools optimise the use of the available space on the site.

The layout of the new building is kept as clear as possible. The extension of Geuzenschip school follows the plan of the existing school with the addition of a wing with a classroom. Shared functions such as the assembly hall and playroom are positioned between both schools.

59
New school
61
Below left: Spaces of the old part of the school Below right Spaces of the new part of the school

Community centre, three primary schools and child care

Period 2012 - 2015

Client Municipality of Teylingen

Project architect

Alex Letteboer, Martijn de Visser

Project leader Hans Tak

Address Herenweg 80, Warmond

Gross floor area 3.865 m²

new: 1.900 m²,

renovation: 1.985 m²

Building cost € 2.500.000,-

62
Ground floor 50 20 (m) plattegrond begane grond Basisschool Kloppend Hart Warmond groundfloor primaryschoolWarmond

Community Centre Warmond

a wooden wave in a lush green setting combining old and new

Atelier PRO architects combined an existing community center with three new primary schools and a kindergarten. The result is a new multifunctional centre where the local schools, library, nursery, kindergarten and cultural associations have been given a place. As councillor Kees van Velzen put it during his opening speach: “The building is adapted wonderfully on a historic site: the historic heart of Warmond. Through its playful form and excellent use of materials, the building fits perfectly into the surroundings.”

Nomination Rijnlandse Architectuur Prijs (RAP071) 2017

63
64
65

Synergy & possibilities

Public and Hindu primary school

Period 2017 - 2021

Client SPO Utrecht

Project architect Martijn de Visser and Dorte Kristensen

Project leader Lia Tuijt

Address Van Lawick van Pabstlaan 1

Utrecht

Goss floor area

Total 2.030 m²

Pantarijn (1.245 m²)

Shri Krishna (785 m ²)

68
De Romeinse limes opgenomen in het ontwerp

Pantarijn and Hindu primary school Shri Krishna, Utrecht

two special primary schools under one roof

Atelier PRO has designed a building for two special primary schools - the public Pantarijn primary school and the Hindu Shri Krishna primary school - in an remarkable location in De Meern, Utrecht.

Remarkable, because a Roman Limes runs straight across the plot, and because both schools clearly have their own character, but at the same time share a building that forms a recognisable unit.

69
Left: Pantarijn schoolyard and tribune stairs Right: Combined playrooms and Shri Krishna schoolyard
70
71

Community centre with primary schools, child care, sportfacilities, psychiatric health centre, dwellings

Period 2004 - 2009

Client Municipality of Tilburg and TIWOS

Project architect

Dorte Kristensen, Pascale

Leistra and Lisette Plouvier

Project leader Eelko Bemener and Henry Schutte

Address Wassenaerlaan 38, Tilburg

Gross floor area 9.053 m²

4.500 m² neighbourhood centre

4.553 m² psychiatric health centre

Price per m² € 1.034,-

Building costs € 9.356.890,-

72
Ground floor

Community Centre Zuiderkwartier, Tilburg

compleet buurtprogramma als klein dorp aan de brink

The community centre in the Zeeheldenbuurt, together with the existing church and a convent, is organised around an inner garden with a playground. A primary school with 13 classrooms, a playgroup, a gymnastics hall and various community facilities have been gathered in this building. They come together in a central axis that leads to one main entrance. The focus lies on the meeting of the various user groups. Moreover, atelier PRO has carried out the renovation of the Mental Health Care’s day centre (GGZ).

73
1 2 3
74
75

Community centre with two primary school, child care, health centre, library, dwellings

Period 2008 - 2011

Client Woonpartners Midden

Holland commissioned by Municipality of Gouda

Project architect

Alex Letteboer and Sandrine

Rointru

Project leader Eelko Bemener

Landscape design Eline Keus

Address

Wilsonplein 1, Gouda-Oost

Gross floor area MFA: 4.885 m²

Housing: 1.745 m²

Price per m² € 1.184,-

Building costs € 7.850.000,-

76
Ground floor Second floor

Community Centre Mandela, Gouda

making space for the neighbourhood

The Nelson Mandela Centre in Gouda forms the start of a major restructuring of the Gouda East neighbourhood. Various community facilities, such as a primary school, a child care centre, playgroups, health care and sport facilities have been located around two central spaces, a lobby and central hall. Sixteen socially rented units provide liveliness and social control even after school hours. Moreover, the building redefines the surrounding public space, and due to two new squares enhances the quality of the location.

Entrance of the MFC with apartments on top, auditorium with a gallery along the elevated schoolyard, playground with apartments on the background

77
By positioning the building and its squares on the waterline, a land-scape buffer is created between the school and the neighbourhood

Community centre with two primary schools, chil dcare and sport facilities

Period 2011 - 2014

Client Municipality of Schiedam

Project architect Dorte

Kristensen, Sandrine Rointru

Project leader Marjon MainRoetgerink

Address Thorbeckesingel 2 & Dr. Kuyperlaan 12 &12a

Gross floor area 5.667 m²

Building costs € 5.288.647,-

80
0 plattegrond Kind ground Child
Ground floor

Community Centre Damlaan, Schiedam

a dance between uniformity and diversity

Atelier PRO designed a children’s centre in the post-war neighbourhood of Nieuwland in Schiedam. The building is a delight for the children – whose ages range from 0 until approximately 11 – accommodating De Taaltuin, an extended primary school, and Ababil, an extended primary school for Islamic education. A playgroup space from SWS Welzijn is located in each school. The Mundo child care centre organises the day care and after school care services, and Academia also runs an after school care centre there. The Primo Schiedam Foundation manages a double gymnasium. All these functions are housed in a single building, and are intertwined with each other spatially.

81

Healthy & sustainable

84
School project, Antwerpen

Clean Air Schools

In highly urbanised areas, there still exists a demand for good, new schools. These schools are often planned on the only available sites in cities close to ring roads. Concerning air quality, these are the worst places. With the project Clean Air Schools, we want to underline the urgency of the issue and provide spatial solutions. As part of an integrated design team, we are evaluating the possibilities of using architecture to improve internal as well as external air quality. With that, we are researching the possible effects of spatial interventions on the quality of the outside air.

Case Study

A suitable site was found for Clean Air Schools in collaboration with the City of Antwerp. In order to conduct relevant design research, it was necessary to map the microclimate, concentrations of different air pollutants and air currents on the site. With support from the City of Antwerp, we were able to obtain relevant data from existing measurements. We focused on the problems of particulate matter and NO2. In discussion with the City of Antwerp, it was decided to use a location on the street of Desguinlei for the case study. Located next to a ring road in an inner city area, it’s a sensitive zone in terms of air quality according to EU guidelines. The case study was developed during a ‘pressure cooker’ workshop. With a site-specific design, the design team (Alex Letteboer, Bas Woldman, Thijs Klinkhamer, Sjoerd Hoogewerf and Berit Piepgras) used a purpose-developed clean air toolbox to generate concepts and translate them into the final design. These tools are spatial interventions that can be utilised to help improve air quality on the exterior (and interior) of a building. During different sessions throughout the design process, the findings and design proposals were evaluated with the City of Antwerp, The Why Factory, TU Delft, Dutch Green Building Council, Imago Bouwers, and TNO.

85
A study of atelier PRO in collaboration with the city Antwerpen, TNO Delft, TU Delft, The Why Factory, Ducth Green Building Council and Syntens Innovatie Centrum
86
Gerrit Rietveld College Utrecht lies along an access road and was designed as a building block with a Clean Air courtyard for students and teachers.

Permeable

The final design is a building composed of several ‘shells’. Outside air is purified by electrostatic filters and drawn into the innermost part of the school: the classrooms. Through overpressure, this clean air can be further used elsewhere in the building: the corridors and the covered semi-public and public spaces in and around the school.

The outer shell in this system is the facade facing the ring road. This shell forms a barrier to the highway to direct the polluted air above and over the rest of Antwerp. Thanks to the staggered design of the outer façade, this creates turbulence so the air can be further mixed with cleaner air from above, thereby reducing the concentration of particulate matter.

The building as a filter

Electrostatic filters therefore supply clean air to the classrooms. This air is drawn into the playgrounds, semi-public spaces that are covered with glass. From here, the clean air flows outward to create better air quality in the public space near the main entrance. The playground is sheltered to create a street canyon effect with clean air. We assume that the form of the building will somewhat prevent the purified air from combining too quickly with the polluted outside air. The aim is to test this concept in a wind tunnel to see whether it really works. In this way, the design provides the possibility for classroom windows to be opened onto the covered semi-public space around the school without letting in particulate matter or soot. Here, opportunities exist for the ‘Frisse Scholen’ program to be combined with passive building. Alongside the abovementioned measures, the entire concept works towards creating an energyneutral and pleasant school building. Additional measures include the application of an algae wall as shading and a bioreactor, a prefabricated timber structure to keep the construction site clean and ensure a comfortable internal climate, and a ‘gaatjesplafond’- a specially perforated, suspended ceiling with hidden fans - for better internal ventilation. Offgassing from building materials and furniture will also be reduced.

Continuation

After discussing the draft extensively with Ulf Hackauf from The Why Factory and Annemie Tormans and Jan Bel from the City of Antwerp, further good ideas arose. The design was presented during the JOQUIN conference in September 2013 to an audience of clean air experts: their reactions were very positive. The general conclusion is that the prediction of airflow is very difficult. Therefore in order to achieve good results, we will need to conduct further research in wind tunnels and eventually build a prototype.

87
88
atelier PRO architekten Kerkhoflaan 11a 2585 JB Den Haag +31(0)70 3506900 info@atelierpro.nl www.atelierpro.nl

Turn static files into dynamic content formats.

Create a flipbook
Issuu converts static files into: digital portfolios, online yearbooks, online catalogs, digital photo albums and more. Sign up and create your flipbook.
Portfolio Primary Education by pr@atelierpro.nl - Issuu