
Greek Curves A Residence in Crete
Hot Chile
Two Houses by an Architect to Watch
Roadster Jason & Caroline Remake a Toy-Maker
You Work Too WeWork Arrives in Shanghai





WHAT

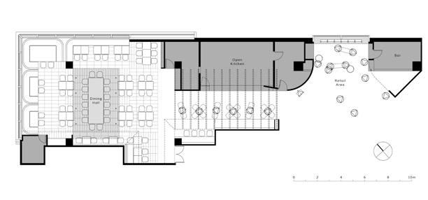
Something Wild, The Farm, a new eatery focussed on fresh farm-to-table ingredients.
WHERE
Tsim Tsa Tsui, Kowloon, Hong Kong, China WHO PLOT Architecture Office
HOW
With the theme of fresh food running through it, the space first constricts patrons upon entry, squishing them past the open kitchen and a bank of timber tables toward the larger area of the
dining room. Windows beckon here, as does a central table occupying an implied courtyard under a ‘skylight’, and screened with bamboo. Along the windows, shelves of real herbs grow in labelled pots. Overhead, sliced bamboo forms a ceiling lattice.
WHY
Because the world now craves authenticity and real ingredients. Because in the age of ‘fake news’, real nourishment is more important than ever. Because in centre-city Hong Kong, finding anything remotely ‘real’ is a surprise. Because the idea of a ‘wild farm’ surrounded by concrete makes us happier already.