PORTFOLIO

![]()


Architecte diplômé d’État de l’École Nationale Supérieure d’Architecture de Normandie depuis 2023. Ayant étudié au Vietnam et en Italie, j’ai acquis une perspective unique sur l’architecture et son influence sur différentes cultures. Mon objectif est de rendre l’architecture accessible au plus grand nombre, tout en valorisant l’environnement et la culture dans lesquels elle prend place.
J’ai également pu travailler pour Léo Cany, architecte du patrimoine de la ville du Mans, en parallèle de mon projet de fin d’études, et pour Carlo Gaspari, architecte à Pescara, lors d’un concours pour un projet de musée des pâtes dans les Abruzzes, que nous avons remporté.

Architecte DE




Architecte D.-E. - 1 an et 5 mois
• COCO Architecture (12) I Septembre 2023 à Août 2024 - 1 an
• Cabinet CANY Léo (72) I Février 2023 à Juin 2023 - 5 mois
www.pdarchi.com
@pierreyanaused
pierre.d.architecte@gmail.com
+33 643977758
- Réalisation de phase PRO pour les consultation aux entreprises et artisans
- Conception de plusieurs projets de la phase de Faisabilité à la phase Dessin
- Travailler sur des projets sous la méthode du BIM
- Participer aux réunions avec la maîtrise d’ouvrage et les clients
- Élaboration de planches graphiques pour des concours
- Modélisation 3d sur Sketchup et Revit
- Modélisation par la maquette physique à différentes échelles.
Stagiaire en cabinet d’architecture - 11 mois
• Cabinet CANY Léo (72) I Septembre 2022 à Janvier 2023 - 5 mois
• Cabinet Carlo Gaspari Architetto (Pescara, Italie) I Février 2022 à Juillet 2022 - 6 mois
Mobilitées internationale - 20 mois
• Université d’Architecture de Hanoï (Vietnam) I Août 2018 à Mars 2019 - 8 mois
• Université Gabriele d’Annunzio Chieti-Pescara (Italie) I Août 2021 à Juillet 2022 - 12 mois

ENSA Normandie



Hanoï AU Carlo Gaspari Architetto Léo Cany
2017 - 2023
Master d’Architecture - ENSA de Normandie
2015 - 2017
DUT Génie Mécanique et Productique - IUT du Maine
2015
Baccalauréat Scientifique - Série Sciences de l’Ingénieur
AutoCad et Revit
Création de plans et de maquettes numériques
Photoshop et Lumion
Montage d’images photoréalistes et de dessins numériques
InDesign et PowerPoint
Présentations et mises en forme des projets
Word et Excel
Écriture et calcul dans diverses situations
Anglais
Espagnol
Italien
Sports
Football, Cyclisme, Escalade, Randonnée
Art
Photographie, Dessin, Tatouage, Peinture
Vidéos
Nom de la chaine : Yanaus
Création de vidéos youtube et stream sur twitch pour faire découvrir l’architecture grâce à des oeuvres de Pop Culture

Projets
La collégiale Saint Pierre-de-la-Cour
Une école pour Puilacher
La Passerelle
Couleurs à l’école


ProjeT de Fin d’ É
Ce projet se situe dans une ancienne collégiale, aujourd’hui l’état-civil de la ville du Mans. Le centre possède deux niveaux majeurs : la ville haute qui est l’ancienne cité médiévale et aujourd’hui le cœur historique et touristique, ainsi qu’une ville basse qui est l’actuel centreville commercial.
La collégiale possède une richesse historique et architecturale importante qui n’est pas mise en valeur actuellement. Depuis le rempart construit à la fin de l’empire romain jusqu’aux dernières modifications au début du XXIe siècle, la collégiale a été construite pendant plus de 17 siècles.
Les jardins au pied du rempart, plus végétalisés, forment une façade verte le long de l’avenue, tout en mettant en valeur la collégiale, le rempart romain et le nouvel état-civil. La place Saint-Pierre, en haut du rempart, devient plus minérale, avec une attention apportée aux pavés et à la végétation qui améliore la porosité du sol tout en définissant l’espace.
Le nouvel état-civil et la création d’une circulation verticale dans une partie de la mairie, viennent répondre aux problématiques d’accès et de lien sensible entre la ville haute et la ville basse.









L’état-civil est déplacé dans les bâtiments adjacents où une nouvelle construction vient s’insérer, tandis que le cœur de la collégiale accueille une salle de conférence qui utilise presque toute la hauteur et des salles de travail pour les étudiants de l’université du Maine qui sont éloignés du centreville. Tous ces changements se font en harmonie avec les lieux existants, au point d’en reprendre les codes, adaptés à une écriture moderne.







Le seul élément en béton est l’ascenseur de l’état-civil, mis à distance du rempart pour ne pas l’impacter. La structure en bois de châtaigner s’appuie donc sur cette colonne et sur les bâtiments existants grâce à des appuis ponctuels. La salle de conférence, qui donne maintenant sur la charpente, est un prolongement de celle-ci, comme une seule structure en bois. Le châtaigner a été choisi pour sa forte présence dans la région et en référence aux bardeaux présents sur les bâtiments aux alentours. Le projet s’inspire beaucoup de l’existant mais va encore plus loin puisqu’il vient épouser les formes déjà présentes, tout en proposant une écriture architecturale qui lui est propre.









Puilacher est un village qui allie charme rural et dynamisme communautaire. Ce projet d’école, seul bâtiment municipal de la commune, revêt une symbolique forte. Le programme reflète cette importance : l’école devra également servir de bibiloithèque municipale, de salle polyvalente pour les activités extrascolaires et éventuellement de lieu d’événements communaux.
















Le projet mise sur une simplicité de forme : le bâtiment s’adapte au terrain et à la topographie; d’organisation : les salles de classe fonctionnent indépendamment des salles d’activités polyvalentes ; et environementales : le projet mise sur des matériaux naturels tel que le bois ou la brique de terre crue et s’appuie sur plusieurs systèmes bioclimatiques. Le projet s’inscrit dans une démarche pédagogique, c’est-à-dire mettre à disposition des enfants et des enseignants, des ressources naturelle local, afin d’améliorer l’éveil des sens des enfants ainsi que leur culture environnementale.












































La cour est protégée du soleil et visuellement des alentours, par les salles de classe au sud et de la végétation au nord. Les salles sont elles-mêmes protégé par une large couverture et une aération mécanique et naturelle.


Ce projet s’inscrit dans une démarche à long terme vis à vis des augmentations de chaleur dans la région, pour assurer un confort pour les utilisateurs quotidiens et occasionnels.



























































































































































Ce projet prend place sur l’île de la maison de la culture sur le lac Thien Quang, à Hanoï. Il a été réalisé lors d’un échange au Vietnam, lors de mon 5e semestre. Ce site propose du calme et de la respiration dans une ville très urbaine. C’est le lieu de rupture, de pause d’une ville très dense et active. La forme a été pensée pour relier la berge et l’île, ainsi que la partie avant de l’île avec la partie arrière moins fréquentée. Cette dernière partie a été aménagée pour devenir un lieu de création artistique avec les vues sur le lac comme inspirations. La structure du musée, se compose de poteaux de 4 bambous ainsi que d’un câble, au centre, pour améliorer sa rigidité.

Le projet vient compléter la berge afin d’offrir une promenade autour du lac. C’est un lieu très visible, donc fort dans le paysage du lac, aussi nous avons voulu travailler sur une forme simple et transparente.
Le projet devient une œuvre paysagère au service des œuvres artistiques de l’exposition.



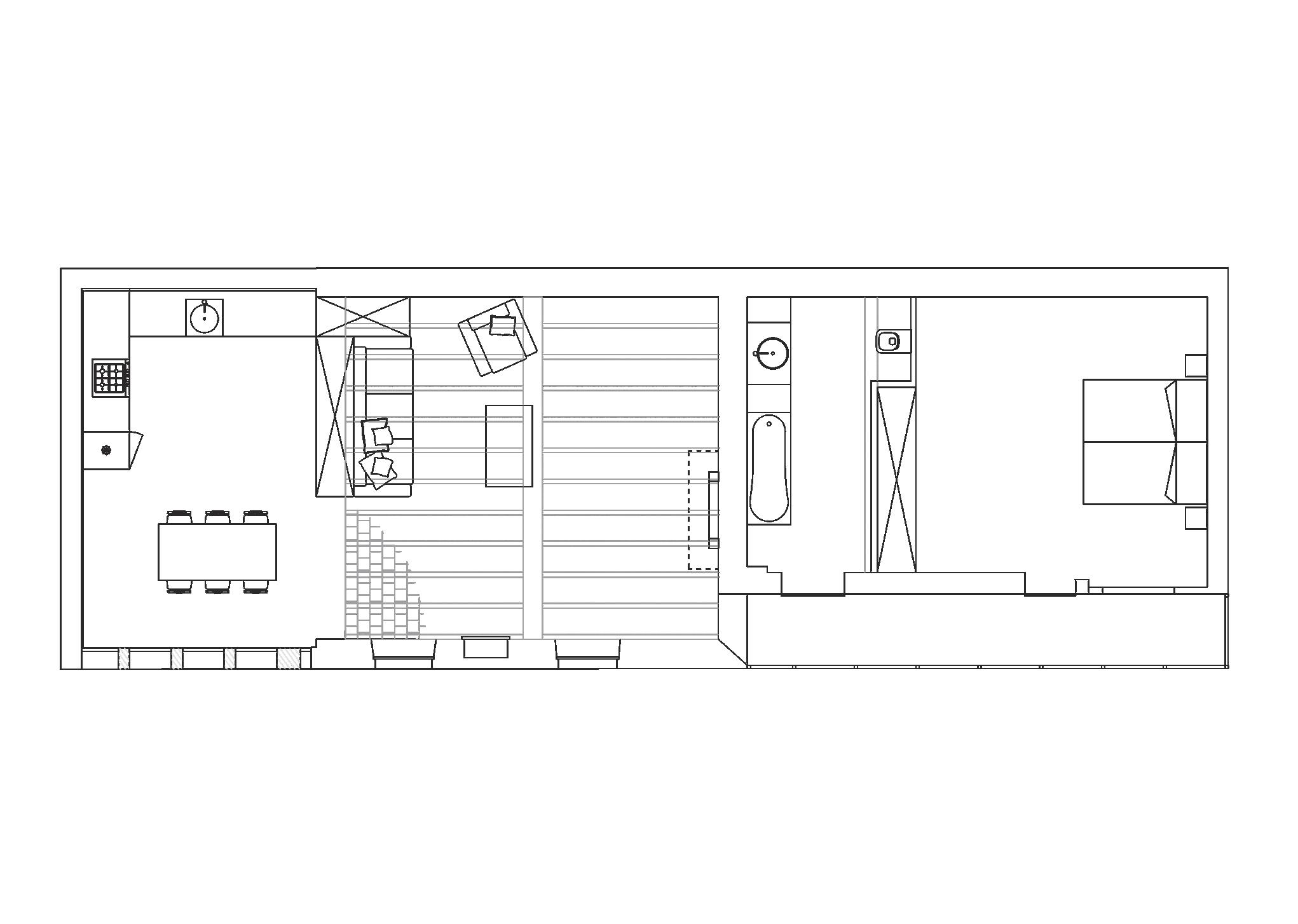
Après l’obtention de mon diplôme, j’ai travaillé en collaboration avec une étudiante architecte d’intérieur. J’ai pu apporter mes connaissances d’architecte, notamment au niveau technique. Je l’ai aidée à améliorer son projet et j’ai effectué les documents graphiques correspondants.

Le projet se situe dans une école primaire de la région parisienne. L’objectif a été de transformer l’intérieur du bâtiment, notamment le hall d’entrée, afin d’améliorer la vie des enseignants et des élèves. Actuellement, l’ensemble est en béton avec des murs peint en blanc. Le choix a donc été fait de les conserver afin de mettre en valeur les éléments ajoutés qui sont en bois.


Les éléments nouveaux sont au nombre de trois. Tout d’abord les arches en bois qui se trouvent de part et d’autre du hall répartissent les rangements pour les enfants et apportent des espaces plus intimes dans le hall. Un code couleur a été mis en place pour repérer chaque classe. Ensuite, les planchers en bois ont été peints en deux teintes différentes pour que les enfants repèrent l’étage de leur classe plus facilement et un code couleur au sol a été choisi dans la même intention. Enfin la création d’une mezzanine en verre rend l’étage plus utile tout en gardant l’apport de lumière au rez-de-chaussée. C’est sur ce point technique et sur les documents graphiques que j’ai pu me rendre le plus utile.



L’espace de la mezzanine est actuellement réparti sur une double hauteur. Le choix a donc été fait de créer une structure en métal ellemême prenant appui sur les murs existant et sur le sol en béton de 50 cm d’épaisseur. La structure vient supporter des dalles en verres trifeuilletés ainsi qu’un nouveau gardecorps.
Les documents produits ont pour but d’être réalistes tout en apportant de la couleur comme si le projet était réel.


Projets
Les Safranières
L’entre-deux
Réhabilitation d’îlots
Villa Walter
Le Bois Bertrand



Le projet des Safranières porte le nom du site situé à Sauveterre de Rouergue en Aveyron (12). Il consiste en la création de 4 cabanes pour du tourisme au plus proche de la nature aveyronnaise.
Le site se compose d’une partie au nord avec un faible dénivelé et d’une partie au sud avec un dénivelé important. Le choix a donc été fait de positionner les 4 cabanes ainsi que l’accueil le plus au nord possible pour réduire les aménagements de fondations et ainsi réduire l’impact sur le terrain. Chaque cabane est différente tout en utilisant le même principe structurel. Cela permet d’avoir des cabanes uniques tout en réduisant les coûts à la construction.
Les cabanes se composent de deux murs de refend en blocs de terre crue issu d’une entreprise tarnaise, et d’une toiture froide en bois, qui permet à chaque cabane d’accumuler de la chaleur l’hiver tout en évitant les surchauffe pendant l’été. Les éléments entre les murs de refend ainsi qu’à l’intérieur des cabanes sont quant à eux en bois.
Les cabanes se différencient aussi par le positionnement, la cabane Feu (à l’ouest) se tourne vers le village, la cabane Air (au sud) vers la vallée du Viaur, la cabane Eau (à l’est) vers la forêt, et la cabane Terre (au nord) vers un vallon et des prés agricole.
Le but du projet est de proposer un service luxueux tout en apportant une démarche écoresponsable et une expérience portée sur le respect de la nature ainsi que la mise en valeur de matériau naturels.



La cabane Feu prend le parti de s’intégrer au mieux dans la pente existante.
Les niveaux des pièces se démarquent les unes des autres en partant de la salle de bain vers le salon puis la chambre qui profite de la vue sur le paysage. Ils sont réalisés grâce aux fournitures conçues sur mesure. qui accompagnent à la fois les escaliers, mais aussi les deux niveaux qui sont en lien avec. Ce sont également ces éléments qui accueil les réseaux afin d’alléger et d’épurer les murs de BTC pour les mettre en valeur.


La cabane Eau, ainsi que la cabane Terre, sont plus larges que les cabanes Feu et Air.
Elle se compose d’une chambre et d’une partie salle de bain et sauna. Le bain est le centre de la cabane et l’accent est mis sur une expérience au milieu de la nature. Pour cela, la partie centrale, bien que protégé de la pluie, est ouverte sur la végétation environnante.
Par sa position, plus à l’écart et un peu caché, cette cabane est destinée à une expérience plus introspective.

Ce projet se situe dans le centre-ville de Rouen, au sud de la cathédrale NotreDame. Le projet a pour but de construire en expérimentant la matérialité et la structure à grande échelle. Ce projet est donc le résultat final obtenu.
L’îlot le plus grand forme un peigne pour affirmer les alignements sur les rues, tout en proposant une atmosphère agréable et calme à l’arrière. Il se compose majoritairement de logements collectifs desservis par des passerelles extérieures, et de logements intermédiaires qui forment les branches du peigne. Les essais de matérialité ont commencé avec ces logements intermédiaires. La structure est faite en bois ainsi que de terre banchée au rez-de-chaussée. Cet assemblage permet l’élévation d’une structure en bois sur les étages supérieurs. Ce système a été dupliqué pour assembler les logements intermédiaires entre eux, puis décliné pour les logements collectifs.
L’ensemble du projet a pour but de mettre en valeur l’association des matériaux biosourcés tels que la terre ou le bois, avec le béton seulement quand celui-ci est nécessaire.







Le deuxième point de l’expérimentation a été le plan modulaire s’inspirant des plans de Renzo Piano. Les logements ont tous des espaces identiques permettant de changer leur fonction. Ces espaces sont séparés par des parois mobiles qui offrent différentes dispositions pour la vie quotidienne.
La démarche sur les matériaux va de pair avec les enseignements de l’ENSA de Normandie, que je partage, qui poussent à la recherche d’une architecture plus en accord avec l’environnement, notamment les dispositifs passifs comme la matérialité.



Ce projet se situe dans le centre-ville de Lisieux et a pour objectif principal la réhabilitation de deux îlots issus de la Reconstruction. Ces bâtiments présentent de nombreux problèmes d’isolation et d’insalubrité due à la présence d’un supermarché.
Le projet s’oriente autour d’un nouvel axe piéton qui lie les deux îlots au nord. Cet axe dessert les espaces publics végétalisés ainsi que la majorité des logements. Les principaux changements sont l’ajout de serres autoportantes en façade pour compenser le manque d’isolation de certains bâtiments, sur le premier îlot, et la création de nouveaux logements sur le deuxième. De même, la création d’une tour permet de marquer ce nouveau quartier et de faire écho aux bâtiments élevés présents en centre-ville.
Le premier îlot a été transformé de façon simple pour contrebalancer avec les nombreuses transformations du deuxième. En plus des serres, cet îlot obtient un parc en son cœur, qui permet d’avoir un lieu calme et avec une grande flexibilité.



Plus dense, il possède des logements, une crèche, au centre, et des commerces à l’endroit du supermarché.
Le cœur d’îlot est un lieu de passage vers les commerces ou la crèche, c’est aussi un espace arboré où une pause au calme est possible.
Les nouvelles structures s’appuient sur celles déjà existantes, souvent en acier, mais elles ont été pensées en bois, avec une isolation en laine pour réduire l’impact environnemental des bâtiments. Dans cette même démarche, les logements comportent des patios et des jardins d’hiver munis de murs trombes, pour se protéger du soleil l’été et chauffer l’intérieur l’hiver.


Ce projet, sous la direction de Carlo Gaspari, se situe dans le village italien de Gissi, dans les Abruzzes.
Les plans de l’existant avaient déjà été faits ainsi qu’une ébauche de projet. Mon rôle a été de corriger et de nettoyer les plans, de les mettre au propre afin qu’ils puissent servir de base. Cela consiste à enlever les erreurs et à corriger les ambiguïtés qui peuvent exister suite au relevé.
Ensuite, j’ai inséré les plans de projet à cette nouvelle base, pour pouvoir le dessiner de façon exacte. J’ai pu ensuite participer au dessin du projet et apporter mes idées à M. Gaspari, pour pouvoir lancer sa construction. En parallèle, j’ai réalisé la maquette à l’échelle 1-50e qui a permis de résoudre les problèmes liés au mur mitoyen.
Cette maison à Gissi était composée au départ deux maisons que les propriétaires voulaient fusionner en une seule. L’un des enjeux est donc la transformation du mur commun pour aménager des ouvertures et des passages. Les clients étant âgés, l’une des circulations verticales a été remplacée en un ascenseur desservant chaque étage. Dans le même temps, les espaces en double évoluent avec les usages demandés par les clients, tels qu’une cave à vin, un salon pour le thé ou encore la transformation des greniers en toit terrasse.





Ce projet se situe dans la campagne de La Chapelle du Bois, dans le Perche Sarthois.
Ma mission a été d’effectuer les plans de la maison existante, le plus fidèlement possible. L’état actuel de la bâtisse étant très mauvais, j’ai dû accorder un soin particulier au dessin des fissures, de la toiture et des autres problèmes de la construction.
Cela nous a permis ensuite de penser à des idées de projet pour rendre cette maison accueillante en alliant l’architecture traditionnelle du perche avec une écriture contemporaine pour compléter les murs détruits.



Transformations

Le projet préserve la partie centrale, qui est la mieux conservée, et vient compléter les deux ailes qui vont accueillir la cuisine, la salle de bain et la chambre pour leur offrir de la lumière naturelle. La partie centrale devient la pièce la plus chaleureuse avec l’enduit et le pavage d’origine.




Pendant mes études d’architecture et au cours de mes voyages, j’ai pu prendre beaucoup de photos. Je ne recherche pas à chaque fois des éléments particuliers, mais je retrouve souvent deux catégories dans mes photos :
- les photographies composées par un élément fort : une symétrie, une rue ou un angle de mur ;
- les photographies de détails : les matériaux, la lumière ou les ornements.
Je m’intéresse beaucoup à la texture de la matière, la couleur, les reflets de la lumière dessus. J’ai le sentiment d’ajouter des éléments à une bibliothèque de textures ou de sensations que je peux ensuite utiliser pour mes projets.





En-dehors de mes dessins pour les projets d’architecture, je réalise des illustrations comme des logos, des tatouages ou des extraits de vie quotidienne.
Je les poste ensuite sur Instagram pour donner des idées aux gens pour leurs futurs tatouages par exemple.
Mon but est d’améliorer régulièrement mon style de dessins tout en le partageant avec ceux qui le souhaitent.





