Präsentation Bauausschuss-Sitzung 23.03.2023

Page 1

Bauausschuss-Sitzung am 23.03.2023 I Öffentlicher Teil

Bauausschuss-Sitzung am 23.03.2023 I Öffentlicher Teil

Tagesordnungspunkte für den 23.03.2023

1. Genehmigung der Niederschrift über die öffentliche Sitzung des Planungs-, Bau- und Umweltausschusses vom 16.02.2023

2. Vollzug des BauGB;

2.1 Städtische Stellungnahme zur dritten Änderung des Bebauungsplans Nr. 28 „Hohenwart Gewerbepark“ des Marktes

Hohenwart

2.2 Städtische Stellungnahme zur ersten Änderung des Bebauungsplans Nr. 24 – Hohenwart „Schulstraße“ des Marktes

Hohenwart

2.3 Städtische Stellungnahme zur ersten Änderung des Bebauungsplans Nr. 42 „Schelmengrund –

2. Bauabschnitt“ der Gemeinde Rohrbach

2.4 Aufstellung des städtischen Bebauungsplans Nr. 11A „Dr.-Bergmeister-Straße“ – Aufstellungsbeschluss –

2.5 Erste Änderung und Erweiterung des städtischen Bebauungsplans Nr. 64 „Niederscheyern – Fasanenweg“ – Behandlung der Stellungnahmen –

2.6 Aufstellung des städtischen Bebauungsplans Nr. 196 „Am Gerlet IV“ – Satzungsbeschluss –

3. Einbringen von Zugankern auf städtischen Grundstücken, Festlegung einheitlicher Gebühren

4. Bekanntgaben

5. Wünsche und Anfragen

Bauausschuss-Sitzung am 23.03.2023 I Öffentlicher Teil

Top 1 Genehmigung

der Niederschrift über die öffentliche Sitzung des Planungs-, Bau- und Umweltausschusses vom 16.02.2023

Die Niederschrift der öffentlichen Sitzung des Planungs-, Bau- und Umwelt-ausschusses vom 16.02.2023 wird genehmigt.

Bauausschuss-Sitzung am 23.03.2023

I

Öffentlicher Teil

Top 2.1 Städtische Stellungnahme zur dritten Änderung des Bebauungsplans

Nr. 28 „Hohenwart Gewerbepark“ des Marktes Hohenwart

Bauausschuss-Sitzung am 23.03.2023 I Öffentlicher Teil

Top 2.1 Städtische Stellungnahme zur dritten Änderung des Bebauungsplans Nr. 28 „Hohenwart Gewerbepark“ des Marktes Hohenwart

Da Belange der Stadt nicht berührt sind, beschließt der Ausschuss, keine Stellungnahme zur dritten Änderung des Bebauungsplanes Nr. 28 „Hohenwart Gewerbepark“ des Marktes Hohenwart abzugeben.

Bauausschuss-Sitzung am 23.03.2023 I Öffentlicher Teil

Top 2.2 Städtische Stellungnahme zur ersten Änderung des Bebauungsplans Nr.

24 – Hohenwart „Schulstraße“ des Marktes Hohenwart

Bauausschuss-Sitzung am 23.03.2023 I Öffentlicher Teil

Top 2.2 Städtische Stellungnahme zur ersten Änderung des Bebauungsplans Nr. 24 – Hohenwart „Schulstraße“ des Marktes Hohenwart

Da Belange der Stadt nicht berührt sind, beschließt der Ausschuss, keine Stellungnahme zur ersten Änderung des Bebauungsplanes Nr. 24 – Hohenwart „Schulstraße“ des Marktes Hohenwart abzugeben.

Bauausschuss-Sitzung am 23.03.2023 I Öffentlicher Teil

Top

2.3 Städtische Stellungnahme zur ersten Änderung des Bebauungsplans

Nr. 42 „Schelmengrund –

2. Bauabschnitt“ der Gemeinde Rohrbach

Bauausschuss-Sitzung am 23.03.2023 I Öffentlicher Teil

Top 2.3 Städtische Stellungnahme zur ersten Änderung des Bebauungsplans Nr. 42 „Schelmengrund –

2. Bauabschnitt“ der Gemeinde Rohrbach

Da Belange der Stadt nicht berührt sind, beschließt der Ausschuss, keine Stellungnahme zur ersten Änderung des Bebauungsplanes Nr. 24 – Hohenwart „Schulstraße“ des Marktes Hohenwart abzugeben.

Bauausschuss-Sitzung am 23.03.2023 I Öffentlicher Teil

Top 2.4 Aufstellung des städtischen Bebauungsplans Nr. 11A „Dr.

-Bergmeister-Straße“ – Aufstellungsbeschluss –

Bauausschuss-Sitzung am 23.03.2023 I Öffentlicher Teil

Top 2.4 Aufstellung des städtischen Bebauungsplans Nr. 11A „Dr.-Bergmeister-Straße“ – Aufstellungsbeschluss –

Der Ausschuss beschließt die Einleitung des Bauleitplanverfahrens zur Aufstellung des städtischen Bebauungsplanes Nr. 11A „Dr.-Bergmeister-Straße“ im beschleunigten Verfahren nach § 13a BauGB.

Bauausschuss-Sitzung am 23.03.2023 I Öffentlicher Teil

Top 2.5 Erste Änderung u. Erweiterung des städt. Bebauungsplans Nr. 64

Behandlung der Stellungnahmen –

Bauausschuss-Sitzung am 23.03.2023 I Öffentlicher Teil

„Niederscheyern – Fasanenweg“ –

Top 2.5 Erste Änderung u. Erweiterung des städt. Bebauungsplans Nr. 64

„Niederscheyern – Fasanenweg“ – Behandlung der Stellungnahmen –

Der Ausschuss beschließt über die Stellungnahmen der Behörden und sonstigen Träger öffentlicher Belange sowie der Öffentlichkeit gemäß § 3 Abs. 2 BauGB gemäß der vorliegenden Zusammenstellung.

Die Verwaltung wird beauftragt, die Öffentlichkeit sowie die Behörden und sonstigen Träger öffentlicher Belange, die Stellungnahmen eingereicht haben, von diesem Ergebnis unter Angabe der Gründe in Kenntnis zu setzen.

Der Ausschuss billigt den überarbeiteten Entwurf der ersten Änderung und Erweiterung des städtischen

Bebauungsplans Nr. 64 „Niederscheyern – Fasanenweg“ mit der Begründung. Die Verwaltung wird beauftragt, den überarbeiteten Entwurf des Bebauungsplanes mit der Begründung erneut öffentlich auszulegen und die Stellungnahmen der Behörden und sonstigen Träger öffentlicher Belange erneut nach § 4 Abs. 2 BauGB einzuholen (§ 4a Abs. 3 BauGB).

Ein wichtiger Grund für eine Verlängerung der Auslegungsfrist nach § 3 Abs. 2 Satz 1 BauGB oder der Beteiligungsfrist nach § 4 Abs. 2 Satz 2 BauGB aufgrund besonderer Komplexität, besonders umfänglicher Unterlagen oder ähnlichem liegt nicht vor.

Bauausschuss-Sitzung am 23.03.2023 I Öffentlicher Teil

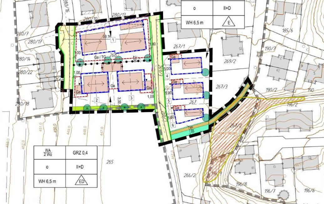
Top 2.6 Aufstellung des städtischen Bebauungsplans Nr. 196 „Am Gerlet

IV“ – Satzungsbeschluss –

Bauausschuss-Sitzung am 23.03.2023

I Öffentlicher Teil

Top 2.6 Aufstellung des städtischen Bebauungsplans Nr. 196 „Am Gerlet

IV“ – Satzungsbeschluss –

Der Ausschuss beschließt abschließend über die Stellungnahmen der Behörden und sonstigen Träger öffentlicher Belange sowie der Öffentlichkeit gemäß § 3 Abs. 2 BauGB gemäß der vorliegenden Zusammenstellung. Die Verwaltung wird beauftragt, die Öffentlichkeit sowie die Behörden und sonstigen Träger öffentlicher Belange, die Stellungnahmen eingereicht haben, von diesem Ergebnis unter Angabe der Gründe in Kenntnis zu setzen.

Der Ausschuss beschließt den Bebauungsplan Nr. 196 „Am Gerlet IV“ in der Fassung vom 23.03.2023 als Satzung. Die Begründung wird gebilligt. Die Verwaltung wird beauftragt, den Satzungsbeschluss gemäß § 10 Abs. 3 BauGB ortsüblich bekanntzumachen. Dabei ist anzugeben, wo der Bebauungsplan während der Dienststunden eingesehen und über den Inhalt Auskunft verlangt werden kann.

Bauausschuss-Sitzung am 23.03.2023 I Öffentlicher Teil

Top 3 Einbringen von Zugankern auf städtischen Grundstücken, Festlegung einheitlicher Gebühren

Die Verwaltung wird angehalten, zur Freihaltung des öffentlichen Straßengrundes und der sonstigen Grundstücke der Stadt von dauerhaften Belastungen jeweils einen vollständigen Rückbau von Verbaubestandteilen zu fordern.

Ist dies nicht oder nur mit unverhältnismäßig hohem Aufwand möglich (Nachweis obliegt dem Antragsteller), so gelten für die zu erhebende Entschädigung folgende Regelsätze:

Injektionsanker (z. B. bei Berliner Verbau, Spundwand, Bohrpfahlwand u. ä.) je Stück als einmalige Pauschalgebühr:

Öffentliche Straße, Ankertiefe im Mittel ≥ 3,0 m: 250,00 €/Anker

Öffentliche Straße, Ankertiefe im Mittel ≤ 3,0 m: 350,00 €/Anker

Sonstige Grundstücke der Stadt (z. B: Grünflächen) 300,00 €/Anker (Tiefe jeweils gemessen ab der Straßenoberkante am Einbauort)

Im besonderen Einzelfall kann ein Entschädigungsbetrag bis zu einer Höhe von 780 €/Anker verlangt werden, wenn dies aufgrund der konkreten Situation und in Aussicht stehender konkreter Sanierungsarbeiten geboten erscheint.

Bauausschuss-Sitzung am 23.03.2023 I Öffentlicher Teil

Top 4 Bekanntgaben – Voll- und Teilsperrung Schulstraße

Vollsperrung KW 14

Bauausschuss-Sitzung am 23.03.2023 I Öffentlicher Teil

Top 4 Bekanntgaben – Voll- und Teilsperrung Schulstraße

Teilsperrung KW 15

Bauausschuss-Sitzung am 23.03.2023 I Öffentlicher Teil

Top 5 Wünsche und Anfragen

Bauausschuss-Sitzung am 23.03.2023 I Öffentlicher Teil

Turn static files into dynamic content formats.

Create a flipbook
Issuu converts static files into: digital portfolios, online yearbooks, online catalogs, digital photo albums and more. Sign up and create your flipbook.