Bauausschuss-Sitzung am 11.12.2025 I Öffentlicher Teil


Bauausschuss-Sitzung am 11.12.2025 I Öffentlicher Teil

![]()
Bauausschuss-Sitzung am 11.12.2025 I Öffentlicher Teil


Bauausschuss-Sitzung am 11.12.2025 I Öffentlicher Teil

1. Genehmigung der Niederschrift über die öffentliche Sitzung des Planungs-, Bau- und Umweltausschusses vom 13.11.2025
2. Städtebauförderung; Umgestaltung der Grünfläche am Kreisverkehr Ingolstädter/Türltor-/Ziegelstraße, Billigung des Planentwurfs
3. Vollzug des BauGB;
3.1 Städtische Stellungnahme zur Aufstellung des vorhabenbezogenen Bebauungsplanes Nr. 52 „Solarpark Rohr“ und
15. FNP-Änderung der Gemeinde Rohrbach a. d. Ilm
3.2 Aufstellung des städtischen Bebauungsplans Nr. 201 „An den Heimgärten“ – Satzungsbeschluss
4. Bauanträge und Bauvoranfragen;
4.1 Antrag auf Vorbescheid zur Errichtung von zwei Einfamilienhäusern auf Fl.-Nr. 156 Teilfläche, Gem. Tegernbach
4.2 Antrag auf Baugenehmigung zum Neubau eines Mehrfamilienwohnhauses mit 5 Wohneinheiten und Neubau eines Einfamilienhauses mit Einliegerwohnung im Schöllberg 4–4b, Fl.-Nr. 182/5, Gem. Niederscheyern
4.3 Antrag auf Baugenehmigung zur Errichtung eines Mehrfamilienhauses mit 6 Wohneinheiten mit Tiefgarage und Stellplätzen (Haus D) und Tektur Tiefgarage (Häuser A, B und C) im Kapellenweg 15, Fl.-Nr. 899/10, Gem. Pfaffenhofen
5. Bekanntgaben
6. Wünsche und Anfragen Bauausschuss-Sitzung am 11.12.2025 I Öffentlicher Teil


Top 1 Genehmigung der Niederschrift über die öffentliche Sitzung des Planungs-, Bau- und Umweltausschusses vom 13.11.2025
Die Niederschrift der öffentlichen Sitzung des Planungs-, Bau- und Umweltausschusses vom 13.11.2025 wird genehmigt.
Bauausschuss-Sitzung am 11.12.2025 I Öffentlicher Teil


Top 2 Städtebauförderung; Umgestaltung der Grünfläche am Kreisverkehr Ingolstädter/Türltor-/Ziegelstraße, Billigung des Planentwurfs


Bauausschuss-Sitzung am 11.12.2025 I Öffentlicher Teil

Top 2 Städtebauförderung; Umgestaltung der Grünfläche am Kreisverkehr Ingolstädter/Türltor-/Ziegelstraße, Billigung des Planentwurfs
Der Ausschuss stimmt dem vorgestellten Plankonzept zu.
Die Maßnahme ist im Jahr 2026 mit einem Gesamtbudget von 50.000,00 € (externe Kosten) zur Ausführung zu bringen. Planungsleistungen sind durch die stadteigene Verwaltung zu erbringen.
Es ist vorab ein Förderantrag auf Mittel der Städtebauförderung bei der Regierung von Oberbayern zu stellen.
Bauausschuss-Sitzung am 11.12.2025 I Öffentlicher Teil


Top 3.1 Stellungnahme zu vorhabenbezogenem Bebauungsplan Nr. 52
„Solarpark Rohr“ und 15. FNP-Änderung der Gemeinde Rohrbach a. d. Ilm


Bauausschuss-Sitzung am 11.12.2025 I Öffentlicher Teil

Top 3.1 Stellungnahme zu vorhabenbezogenem Bebauungsplan Nr. 52
„Solarpark Rohr“ und 15. FNP-Änderung der Gemeinde Rohrbach a. d.



Bauausschuss-Sitzung am 11.12.2025 I Öffentlicher Teil

Top 3.1 Stellungnahme zu vorhabenbezogenem Bebauungsplan Nr. 52 „Solarpark Rohr“ und 15. FNP-Änderung der Gemeinde Rohrbach a. d. Ilm
Da Belange der Stadt nicht berührt sind, wird keine Stellungnahme zur Aufstellung des vorhabenbezogenen Bebauungsplanes Nr. 52 „Solarpark Rohr“ und 15. Änderung des Flächennutzungsplanes der Gemeinde Rohrbach a. d. Ilm abgegeben.
Bauausschuss-Sitzung am 11.12.2025 I Öffentlicher Teil


Top 3.2 Aufstellung des städtischen Bebauungsplans Nr. 201 „An den Heimgärten“ – Satzungsbeschluss –


Bauausschuss-Sitzung am 11.12.2025 I Öffentlicher Teil

Top 3.2 Aufstellung des städtischen Bebauungsplans Nr. 201 „An den Heimgärten“ – Satzungsbeschluss –
Der Ausschuss beschließt abschließend über die Stellungnahmen der Behörden und sonstigen Träger öffentlicher Belange sowie der Öffentlichkeit gemäß § 3 Abs. 2 BauGB gemäß vorliegender Zusammenstellung. Die Beschlüsse des Ausschusses über die Stellungnahmen der Behörden und sonstigen Träger öffentlicher Belange sowie der Öffentlichkeit vom 05.06.2025 (Nr. 2.2) werden gebilligt. Die Verwaltung wird beauftragt, die Öffentlichkeit sowie die Behörden und sonstigen Träger öffentlicher Belange, die Stellungnahmen eingereicht haben, von diesem Ergebnis unter Angabe der Gründe in Kenntnis zu setzen. Der Ausschuss beschließt den Bebauungsplan Nr. 201 „An den Heimgärten“ in der Fassung vom 11.12.2025 als Satzung. Begründung sowie Umweltbericht werden gebilligt. Die Verwaltung wird beauftragt, den Satzungsbeschluss gemäß § 10 Abs. 3 BauGB ortsüblich bekanntzumachen. Dabei ist anzugeben, wo der Bebauungsplan während der Dienststunden eingesehen und über den Inhalt Auskunft verlangt werden kann.

Bauausschuss-Sitzung am 11.12.2025 I Öffentlicher Teil

Top 4.1 Antrag auf Vorbescheid zur Errichtung von zwei Einfamilienhäusern auf Fl.-Nr. 156 Teilfläche, Gem. Tegernbach



Bauausschuss-Sitzung am 11.12.2025 I Öffentlicher Teil

Top 4.1 Antrag auf Vorbescheid zur Errichtung von zwei Einfamilienhäusern auf Fl.-Nr. 156 Teilfläche, Gem. Tegernbach
Der Ausschuss beschließt zum Antrag auf Vorbescheid zur Errichtung von zwei Einfamilienhäusern auf Fl.-Nr. 156 Teilfläche, Gem. Tegernbach das Einvernehmen nicht zu erteilen.
Bauausschuss-Sitzung am 11.12.2025 I Öffentlicher Teil




Bauausschuss-Sitzung am 11.12.2025 I Öffentlicher Teil



Bauausschuss-Sitzung am 11.12.2025 I Öffentlicher Teil



Bauausschuss-Sitzung am 11.12.2025 I Öffentlicher Teil

Top 4.2 Antrag auf Baugenehmigung Neubau Mehrfamilienwohnhaus mit 5 WE & Neubau Einfamilienhaus, Schöllberg 4–4b, Niederscheyern
Der Ausschuss beschließt, zum Antrag auf Baugenehmigung zum Neubau eines Mehrfamilienwohnhauses mit fünf Wohneinheiten und Neubau eines Einfamilienhauses mit Einliegerwohnung im Schöllberg 4–4b, Fl.-Nr. 182/5, Gemarkung Niederscheyern das Einvernehmen nicht zu erteilen.
Bauausschuss-Sitzung am 11.12.2025 I Öffentlicher Teil


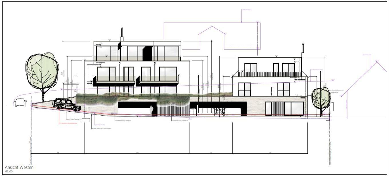
Top 4.3 Antrag auf Baugenehmigung zur Errichtung Mehrfamilienhaus mit 6 WE mit TG und Stellplätzen (Haus D) & Tektur TG, Kapellenweg 15


Bauausschuss-Sitzung am 11.12.2025 I Öffentlicher Teil

Top 4.3 Antrag auf Baugenehmigung zur Errichtung Mehrfamilienhaus mit 6 WE mit TG und Stellplätzen (Haus D) & Tektur TG, Kapellenweg 15


Bauausschuss-Sitzung am 11.12.2025 I Öffentlicher Teil

Top 4.3 Antrag auf Baugenehmigung zur Errichtung Mehrfamilienhaus mit 6 WE mit TG und Stellplätzen (Haus D) & Tektur TG, Kapellenweg 15
Der Ausschuss beschließt, zum Antrag auf Baugenehmigung zur Errichtung eines Mehrfamilienhauses mit 6 WE mit Tiefgarage und Stellplätzen (Haus D) und Tektur Tiefgarage (Häuser A, B und C) im Kapellenweg 15, Fl.-Nr. 899/10, Gem. Pfaffenhofen das Einvernehmen nicht zu erteilen.
Ein Spielplatzablösevertrag kann für die bereits genehmigten Häuser A, B und C geschlossen werden und, nach entsprechender Umplanung, auch für das Haus D.
Bauausschuss-Sitzung am 11.12.2025 I Öffentlicher Teil


Bauausschuss-Sitzung am 11.12.2025 I Öffentlicher Teil


Bauausschuss-Sitzung am 11.12.2025 I Öffentlicher Teil

