Präsentation der Sitzung des Bauausschussses vom 6.10.2022

Page 1

Bauausschuss-Sitzung am 06.10.2022 I Öffentlicher Teil Bauausschuss-Sitzung am 06.10.2022 I Öffentlicher Teil

Tagesordnungspunkte

1. Genehmigung der Niederschrift über die öffentliche Sitzung des Planungs-, Bau- und Umweltausschusses vom

2. Vollzug des BauGB;

Städtische Stellungnahme zur elften FNP-Änderung mit paralleler Aufstellung des vorhabenbezogenen

Nr. 48 „Sondergebiet mit Recycling- und Aufbereitungsanlage Ottersried“ der Gemeinde

2.2 Sechste Änderung des städtischen Bebauungsplans Nr. 61 „Gewerbegebiet Heißmanning“

Aufstellung des städtischen Bebauungsplans Nr. 194 „Südlich Volksfestplatz“

3. Bauanträge und Bauvoranfragen;

Aufstellungsbeschluss

Antrag auf Vorbescheid zum Neubau von zwei Einzelhäusern (Variante 1) / einer Hausgruppe (Variante 2) auf dem Grundstück an der Ilmstraße, Fl.-Nr. 1100 Teilfläche, Gem. Pfaffenhofen

4. Bekanntgaben

Wünsche und Anfragen

am 06.10.2022 I Öffentlicher Teil

für den 06.10.2022
08.09.2022
2.1
Bebauungsplanes
Rohrbach
–Aufstellungsbeschluss –2.3
3.1
5.
Bauausschuss-Sitzung
Top 1 Genehmigung der Niederschrift über die öffentliche Sitzung des Planungs-, Bau- und Umweltausschusses vom 06.10.2022 Die Niederschrift der öffentlichen Sitzung des Planungs-, Bau- und Umwelt-ausschusses vom 08.09.2022 wird genehmigt. Bauausschuss-Sitzung am 06.10.2022 I Öffentlicher Teil
Top 2.1 Stellungnahme 11. FNP-Änderung mit paralleler Aufstellung des vorhabenbezogenen Bpl. Nr. 48 der Gemeinde Rohrbach Bauausschuss-Sitzung am 06.10.2022 I Öffentlicher Teil
Top 2.1 Stellungnahme 11. FNP-Änderung mit paralleler Aufstellung des vorhabenbezogenen Bpl. Nr. 48 der Gemeinde Rohrbach Da Belange der Stadt nicht berührt sind, beschließt der Ausschuss keine Stellungnahme zur elften Änderung des Flächennutzungsplanes mit paralleler Aufstellung des vorhabenbezogenen Bebauungsplanes Nr. 48 „Sondergebiet mit Recycling- und Aufbereitungsanlage Ottersried“ der Gemeinde Rohrbach abzugeben. Bauausschuss-Sitzung am 06.10.2022 I Öffentlicher Teil
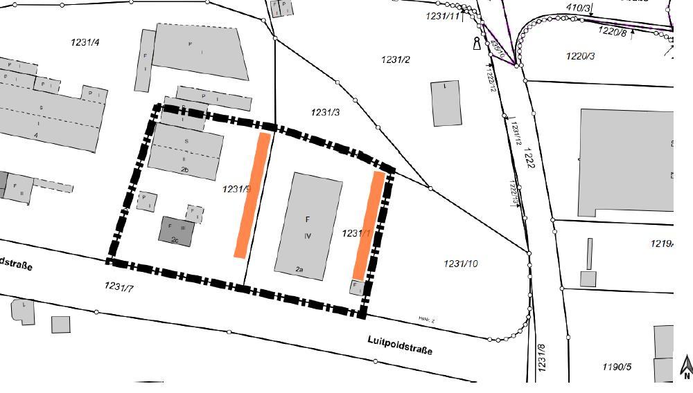
Top 2.2 Sechste Änderung des städtischen Bebauungsplans Nr. 61 „Gewerbegebiet Heißmanning“ – Aufstellungsbeschluss –Bauausschuss-Sitzung am 06.10.2022 I Öffentlicher Teil
Top 2.2 Sechste Änderung des städtischen Bebauungsplans Nr. 61 „Gewerbegebiet Heißmanning“ – Aufstellungsbeschluss –Bauausschuss-Sitzung am 06.10.2022 I Öffentlicher Teil
Top 2.2 Sechste Änderung des städtischen Bebauungsplans Nr. 61 „Gewerbegebiet Heißmanning“ – Aufstellungsbeschluss –Bauausschuss-Sitzung am 06.10.2022 I Öffentlicher Teil
Top 2.2 Sechste Änderung des städtischen Bebauungsplans Nr. 61 „Gewerbegebiet Heißmanning“ – Aufstellungsbeschluss –Bauausschuss-Sitzung am 06.10.2022 I Öffentlicher Teil
Top 2.2 Sechste Änderung des städtischen Bebauungsplans Nr. 61 „Gewerbegebiet Heißmanning“ – Aufstellungsbeschluss –Bauausschuss-Sitzung am 06.10.2022 I Öffentlicher Teil
Top 2.2 Sechste Änderung des städtischen Bebauungsplans Nr. 61 „Gewerbegebiet Heißmanning“ – Aufstellungsbeschluss –Der Ausschuss beschließt die Einleitung des Bauleitplanverfahrens zur sechsten Änderung des städtischen Bebauungsplans Nr. 61 „Gewerbegebiet Heißmanning“ im beschleunigten Verfahren gemäß § 13a BauGB. Bauausschuss-Sitzung am 06.10.2022 I Öffentlicher Teil
Top 2.3 Aufstellung des städtischen Bebauungsplans Nr. 194 „Südlich Volksfestplatz“ – Aufstellungsbeschluss –Bauausschuss-Sitzung am 06.10.2022 I Öffentlicher Teil
Top 2.3 Aufstellung des städtischen Bebauungsplans Nr. 194 „Südlich Volksfestplatz“ – Aufstellungsbeschluss –Der Ausschuss beschließt die Einleitung des Bauleitplanverfahrens zur Aufstellung des städtischen Bebauungsplans Nr. 194 „Südlich Volksfestplatz“ im beschleunigten Verfahren gemäß § 13a BauGB. Bauausschuss-Sitzung am 06.10.2022 I Öffentlicher Teil
Top 3.1 VB Neubau von 2 Einzelhäusern (Variante 1)/einer Hausgruppe (Variante 2) an der Ilmstraße, Fl.-Nr. 1100 Teilfläche, Gem. Pfaffenhofen Bauausschuss-Sitzung am 06.10.2022 I Öffentlicher Teil
Top 3.1 VB Neubau von 2 Einzelhäusern (Variante 1)/einer Hausgruppe (Variante 2) an der Ilmstraße, Fl.-Nr. 1100 Teilfläche, Gem. Pfaffenhofen Bauausschuss-Sitzung am 06.10.2022 I Öffentlicher Teil

Top 3.1 VB Neubau von 2 Einzelhäusern (Variante 1)/einer Hausgruppe (Variante 2) an der Ilmstraße, Fl.-Nr. 1100 Teilfläche, Gem. Pfaffenhofen

Der Ausschuss verweigert zum vorgelegten Antrag auf Vorbescheid zum Neubau von zwei Einzelhäusern (Variante 1)/einer Hausgruppe (Variante 2) auf dem Grundstück an der Ilmstraße, Fl.-Nr. 1100 Teilfläche, Gem. Pfaffenhofen, die Erteilung des gemeindlichen Einvernehmens.

Die Verwaltung wird aufgefordert, zusammen mit dem Antragsteller bzw. dessen Planer alternative Planungskonzepte zu besprechen, die sich in die umliegende Bebauung einfügen.

am 06.10.2022 I Öffentlicher Teil

Bauausschuss-Sitzung
Top 4 Bekanntgaben Bauausschuss-Sitzung am 06.10.2022 I Öffentlicher Teil
Top 5 Wünsche und Anfragen Bauausschuss-Sitzung am 06.10.2022 I Öffentlicher Teil

Turn static files into dynamic content formats.

Create a flipbook
Issuu converts static files into: digital portfolios, online yearbooks, online catalogs, digital photo albums and more. Sign up and create your flipbook.
Präsentation der Sitzung des Bauausschussses vom 6.10.2022 by Pfaffenhofen a. d. Ilm - Issuu