DC Public Library: Southwest Library Tour Book

Page 1

DC Public Library Southwest Library

The design offers pathways that encourage the community to explore the library and embrace it as an intuitive part of the neighborhood experience. The library incorporates biophilic design, promoting a connection to nature for the user, and creating a calming and restorative feeling that promotes health and well being. From a distance, the folded plate roof, opens toward the park and invites the public to enter. The roof provides a compelling, visual element evoking an open book and creates a sheltering canopy that is an extension of the trees outside of the building.

The new Southwest Library, a design-build project with Turner Construction was envisioned as a “pavilion on the park.”
Featured in Architect Magazine, 2021 Click to view! 2 Perkins&Will ― Southwest Library
3
Perkins&Will ― Southwest Library

Community History —

A community library is the quintessential reflection of a place, telling the story of its neighborhood through architecture.

SW NW SE NE

The new Southwest Library’s design was inspired by the history, the culture, the people, and their optimism about its future. In the process, the design team worked with this community to understand the defining moments in local history and what design vision should be embedded into the architecture to reflect the future of the neighborhood.

Waterfront
→ ← L Street SW → ← M Street SW → ← 3rd Street SW → ←6th Street SW → ←MaineAvenue→ ←
Duck
K Street SW
Site 4
Metro
The Wharf
Pond Park
Arena Stage
Perkins&Will ― Southwest Library

The history of the community is a story of mid-century architectural design transformation in the early 1960’s. In 1959, Nikita Khrushchev visited Washington DC and on his motorcade ride from Andrews Air Force Base, he commented that people in USSR lived in much higher quality neighborhoods than what he was witnessing in Washington, DC’s southwest neighborhood. Pressing urban renewal policy at the time motivated politicians to counter Khrushchev’s comment and use the southwest neighborhood as an exemplar project of urban revival. Architects including I.M. Pei, Harry Weese, and Charles Goodman came to establish the neighborhood aesthetic, reflective of mid-century architectural sensibilities—concrete forms, clean lines, form following function, and honesty in materials. Weese authored one of the mid-century masterpieces of this neighborhood, Arena Stage, a live performance venue that further established the neighborhoods cultural identity.

Southwest DC Architecture

Waterfront Tower (I.M. Pei) United Methodist Church (A. Hensel Fink) River Park Apartments (Charles A. Goodman) Westminster Church (Harold E. Wagoner) Arena Stage (original: Weese; reno / addition: Bing Thom)
Perkins&Will
5
Southwest Library, Before
― Southwest Library

Landscape Architecture —

The landscape architecture optimizes the library’s connection to two nearby park spaces, including 3rd and I Street Park, which lies directly to the north of the site and was largely neglected by the original library building. The new design opens the library to this park by locating the main entrance at the building’s northwest corner and reorienting the building, along with the new porch terrace, towards the park itself. The deep porch terrace also acts as a path through the city block itself, strengthening an existing urban pathway that links a series of nearby park spaces throughout the neighborhood, and further activating the terrace space.

A series of walled bioretention planters house native planting and treat stormwater captured from the building’s roof.

6 Perkins&Will ― Southwest Library
7
Perkins&Will ― Southwest Library

Mass Timber Construction —

8 Perkins&Will ― Southwest Library

The design incorporates mass timber to complement both the mid-century modern architectural character of its neighborhood and the enclosure designed for another iconic community landmark, the nearby Arena Stage building.

Working with structural engineering firm StructureCraft, the Perkins&Will architects maximized the aesthetic beauty, sustainability, and efficiencies of dowel laminated timber (DLT) in construction. Although folded roofs are not new, creating them out of dowel laminated timber was, and required close collaboration between the designers and the engineers to bring the concept to life.

Mass timber, which uses large solid wood panels for floor, and roof construction, is a growing building trend because it reduces the impact on global warming potential, ozone depletion, fossil fuel depletion, and water intake when compared to traditional building practices.

Perkins&Will ― Southwest Library 9

Sustainability —

Living Design in Action

• On-site Renewable Energy

• Living Green Roof restoring biohabitat

• Design for Enhanced Resilience

• Development Density and Connectivity

• Water Use Reductions - Interior/ Landscape

• Optimized Energy Systems Performance

• Public Daylight and Views

• User Thermal Comfort

• Regional and Recycled Materials

• Low Carbon - Mass Timber Structure

• Resilent approach to Site Design

• Enhanced connection to neighborhood

• Prefabricated Facade Systems

10 Perkins&Will ― Southwest Library

The living green roof produces oxygen and absorbs runoff, while photovoltaic panels collect solar energy

↑ →
11
Perkins&Will ― Southwest Library

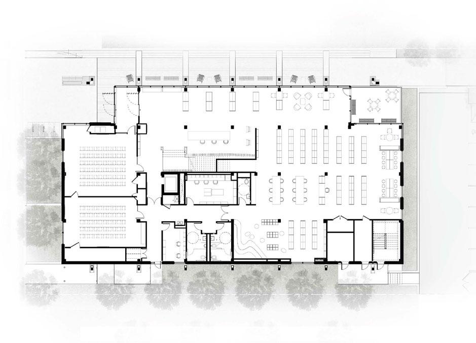
Ground Floor —

1 2
1. Entry 2. Market Place 3. Front Desk 4. Multi-Purpose 5. Staff Space 6. Children’s Outdoor
3 4 5 6 7 5 ↑ North 12
― Southwest Library
7. Children’s Services
Perkins&Will
Perkins&Will ― Southwest Library 13
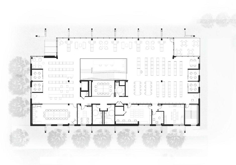
↑ North
1 2 3 4 5 6
Second Level —
1. Seating 2. Computers 3. Innovation Lab 4. Open to Below 5. Staff Space
14
― Southwest Library
6. Adult Outdoor
Perkins&Will
Perkins&Will ― Southwest Library 15

“If I could conceive of the perfect library building to assist with pandemic recovery, it would have to include copious amounts of outdoor space, high ceilings, plenty of seating that is generously distanced, ubiquitous technology, and tons of meeting rooms. Of course, I’ve just described the spectacular new Southwest Library, an instant classic that reflects the very best of the Southwest Waterfront’s mid-century architectural style.”

16 Perkins&Will ― Southwest Library
17
Perkins&Will ― Southwest Library
18
Perkins&Will ― Southwest Library

AWARDS

Excellence in Institutional Architecture, ULI Washington Project Awards, 2023

Winner, Interior Architecture, AIA Interior Architecture Awards, 2023

Civic / Public Category Winner, ICFF 42nd Annual Interiors Awards, 2022

Chapter Design Awards, Architecture, AIA DC, 2022

People’s Choice, USGBC National Capitol Region, 2022

Climate Champion Award, USGBC National Capitol Region, 2022

Sustainability Advancement Award, Premiere Design Awards, IIDA Mid Atlantic Chapter, 2022

Wood Design & Building Awards, NonResidential, Canadian Wood Council, 2022

Award of Merit, Institutional Architecture, AIA Northern Virginia, 2021

Gold Award, Wood in Architecture, WAN Awards, 2021

Finalist, Civic: Libraries, Museums and the Arts, WAN Awards, 2021

Awards of Excellence, Best of the Best: Building, NAIOP DC|MD Chapter, 2021

Award of Excellence, Best Institutional Facility, NAIOP DC|MD Chapter, 2021

National Award of Merit, Civic / Assembly, Design-Build Institute of America (DBIA), 2021

Award of Excellence, Design-Build Institute of America (DBIA), 2021

Award of Merit, Cultural/Worship, Engineering News Record, 2021

Excellence in Sustainability, Best Project, Engineering News Record, 2021

Excellence in Design, Design-Build Institute of America, Mid-Atlantic, 2021

Washington Contractor Awards, Design Build $16-30M, AGC - DC, 2021

Bronze Award Winner, Global Awards, Humanitarian Category, International Federation of Interior Architects, 2021

Design Awards, Institutional Wood Design, WoodWorks, 2021

Outstanding Project less than 200,000 SF, Lambda Alpha International, George Washington Chapter, 2021

Perkins&Will ― Southwest Library 19

Project at a Glance —

Client DC Public Library

Location 900 Wesley Place SW, Washington, DC 20024

Size 20,800 SF

Sustainability LEED-NC Platinum

Completed April 2021

PROJECT TEAM

Architect: Perkins&Will

Interior Designer: Perkins&Will

Design-Builder and General Contractor: Turner Construction

Acoustic Consultant: Cerami & Associates

LEED Consultant: Sustainable Design Consulting, LLC

Civil Engineer: Wiles Mensch Corporation

Landscape Architect: Landscape Architecture Bureau LLC

Structural Engineering Consultant: StructureCraft Builders

Mechanical, Electrical & Plumbing Engineer: Limbach Engineering, Interface Engineering

1222 22nd Street NW, Suite 200

Washington, DC 20037

202.737.1020

perkinswill.com

Turn static files into dynamic content formats.

Create a flipbook
Issuu converts static files into: digital portfolios, online yearbooks, online catalogs, digital photo albums and more. Sign up and create your flipbook.
DC Public Library: Southwest Library Tour Book by Perkins&Will - Issuu