Architecture Portfolio

Page 1


I am a student currently studying for my Masters Degree in Architecture, this portfolio contains three of my significant works throughout my studies.

As an individual I typically frame my design process around interior/ exterior relations. Inspired by the engawa , I intend for the architecture I create to have a wonderful spatial relation and transition from exterior to interior , while also allowing a person to be immersed in the architecture, whisked away from reality if only for a moment. Another way in which this is defined (visible in this portfolio) is with the play between soft vs. hard materials equating to inviting vs. safe spaces.

UMKC COMMUNITY CENTER

Pg. 6 - Pg. 21

BLACK BOX THEATER

Pg. 22 - Pg. 35

Pg. 35 - Pg. 49

THE LITTLE PARK

UMKC Community Center

The design of the UMKC Community Center was intended to reflect a part of Kansas’ rich history. Emmulating the Parks and Boulevards project as a microscopic version, it offers spaces for individuals to cross paths, force interactions, or retreat to any of the green spaces to relax. The primary purpose of the Community center as a whole is to educate students on campus in the arts, with a secondary purpose of drawing individuals in to view any of the art galleries provided within the complex.

First Floor Plan

The upper lobby space operates as an information center, housing administration. In addition, this space includes a cafe and plenty of seating for students or visitors to take a rest and relax. It is a hope that this area, much like the pathways around the building, would force interaction between visitors and students, creating a better outreach into the community.

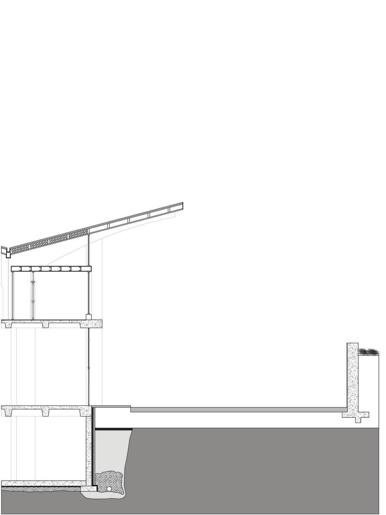
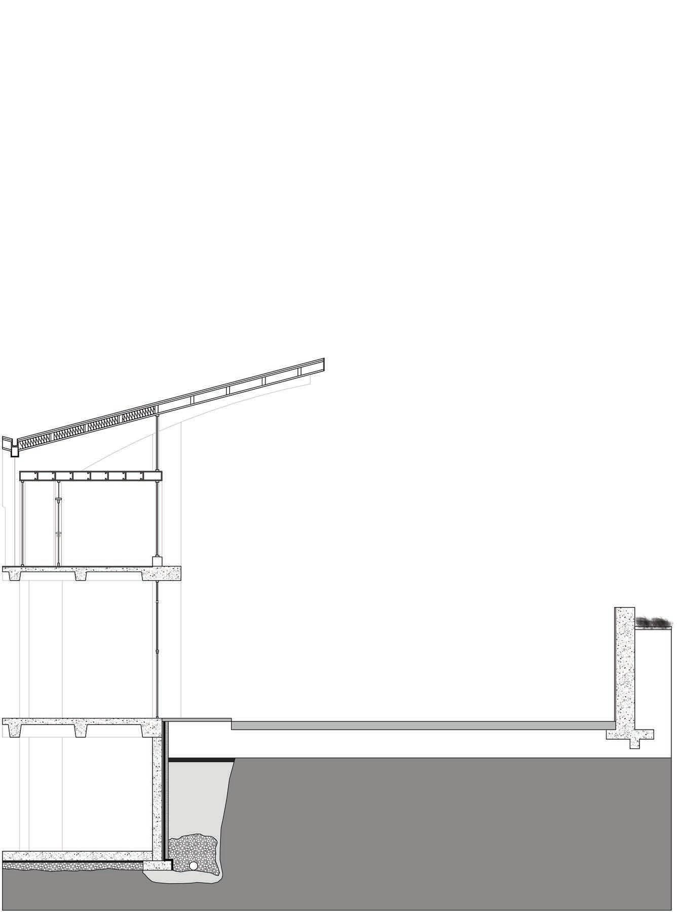
Gutter System

Central Beam

Roof Batten

Roof Membrane

Insulation

Waterproofing Membrane

Dampproofing

Rigid Insulation

Vapor Barrier

Drywall

Channel Joists

Soil Cap

Drainage Backfill

Graded Gravel

Drainage Pipe

Permenant Gallery

Temporary Galleries

Based on the research of The Social Life of Small and Urban Spaces, these teardropped gardens, as well as the central stepped spaces offers an outside stopping space. Given this buildings location in relation to the plaza, and the incomming rail stop adjacent, it would not be unheard of for passerbys to need a place to stop, rest, or simply relax. While the central space is occupied with open seating, allowing many to gather, the teardropped gardens offer a more shaded, quiet area. Either under the trees or against the building, this space would be more medatative than social, or perhaps a place for a picnic, or outdoor study for the students.

The Little Monument

Black Box Theater

Situated in Manhattan’s Meatpacking District, just a short walk from The Whitney Museum, and The Line, this black box theater is designed as an homage to the art of theater. The idea of the theater’s form is crafted as a stoic, monolithic structure—a literal black box—set down in the midst of the district. The surrounding “Servant Spaces” are designed to feel like they have been added to a pre-existing monument designed simply, so as to not take away from the “monument” itself. The theater itself stands as a striking symbol, inviting people to admire, appreciate, and respect the rich history of theatrical performance.

The building also features several essential spaces beyond the theater itself, including areas for rehearsal, costume design, and set design. These facilities ensure that the theater company is capable of maximum performance. Additionally, the second floor houses the administration wing, where business operations and public relations for the theater are managed.

Lobby/Concession

Performance Space

While the building maintains a monolithic appearance during the day, it comes to life at night. As the sun sets, panel cladding on the outside of the black box illuminates with famous quotes from historical plays and reenactments, the simplicity of both the shape and the color of the monolithic box would easily draw eyes to the stenciled script, lighting the way as a beacon for the importance that these medias hold so dearly in history.

A HOME FOR YOU AND ME

Salt Lake City, Pre-fab Housing

One of the larger expenses in housing happens to be construction, what this project aims to do is both reduce the time and cost. Using prefabricated parts, this particular design makes use of unfolding and kit-of-parts methods to construct in a timely manner. In addition to this, the design of this house uses new and unique methods to reduce the wall thickness, while also maintaining proper R-value and insulative properties for the cold, dry climate of Utah. This helps to reduce any additional cost of shipment and transportation.

Despite the homes prefabrication, and compact shipping requirements, it amounts to 2100 square feet of space, this allows for your standard expectations: three bedrooms, two bath, kitchen, dining, and living; though it also offers office and lofted lounge space. In addition, the design also offers passive control such as direct heat gain, and lofted airflow at the discretion of the resident.

Flashing Metal Panel

Prodex 10M Plus Insulation

Hinge Connection

3 Ply CLT

Double Glaze Window

Centerfold connection

Hinge Folded

Exterior Wood Panneling

Prodex 10M Plus Insulation

3 Ply CLT

Knife Plate Connection

Furring Strip/Pannel Floor

Slab On Grade/Footing

Upper Bedroom

Kitchen/Dinning

The building’s design is centered around the use of prefabricated components and construction methods. To facilitate shipping and transportation, the structure is designed to fit within the dimensions of a standard 9’x8.5’x53’ tractortrailer requirement. The exterior of the building is largely dependent on unfolding mechanisms that allows for quick on-site assembly of the main structure. Once the primary framework is in place, the interior walls—also made from prefabricated panels, can be removed from the interior and installed. The final steps involve unfolding the second floor and attaching the prefabricated roof panels. It’s important to note that while the hinges enable the unfolding process, they are not intended to bear structural loads; additional fastening methods, such as bolting and nailing, will be required to secure the assembly.

2 3 4 7 6 5

Turn static files into dynamic content formats.

Create a flipbook
Issuu converts static files into: digital portfolios, online yearbooks, online catalogs, digital photo albums and more. Sign up and create your flipbook.