INTERIOR URBAN PLANNING


andy19960302@gmail.com
0938887001
andy6655a Line
AUTOCAD
SKETCH UP ENSCAPE
AI/PS
建築物室內設計乙級技術士
SSE Adobe Illustrator CS6國際證照
電腦輔助機械設計製圖丙級技術士
電腦輔助立體製圖丙級技術士
Jyun Ming Pan 潘俊明
國立雲林科技大學建築與室內設計系碩士班
南臺科技大學視覺傳達設計系-創設組
高雄市立中正高級工業職業學校製圖科
斗六市棒球場特區社區環境規畫設計 論文展覽發表會
國立雲林科技大學建築與室內設計系 都市社區環境發展研究室/研究生
森德室內裝修設計有限公司/設計助理
南臺科技大學視傳系產業服務中心/設計助理 芒果遊戲股份有限公司/美術宣傳
About me
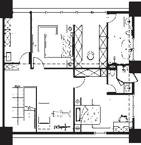
基地位在台北大安區,鄰近文山景美與距離1.5公里的信義商圈,比鄰山巒與都會商 圈,得名「碧臨1.5」,上下樓層兩戶打通,使坪數增至約56坪之樓中樓住宅,並將 客廳、廚房、書房已回字形動線規劃,提升居住者的移動效率、而客廳與廚房作為半 開放式的結合,使兩空間視覺寬闊與採光。
C88%+M75%+Y45%+K8% R47. G73. B105.
PANTONE P120-16C
C68%+M69%+Y24%+K21% R92. G77. B76.
PANTONE P169-16C
C36%+M29%+Y27%+K0% R176. G175. B175.
PANTONE P173-2C
C53%+M70%+Y73%+K13% R130. G85. B69.
PANTONE P43-12C
大面積的灰與白作為室內基底,搭 配具溫暖調性柚木與淺色木地板, 並以深色胡桃木作為襯托營造沉穩 平靜的氛圍,讓居住者達到身心放 鬆,再以小面積的普魯士藍做為空 間的點綴物,增添熱鬧活潑感。
C9%+M19%+Y24%+K0% R235. G213. B193.
PANTONE P29-1C
C1%+M7%+Y4%+K0% R252. G243. B242. PANTONE P151-1C
飛利浦崁燈 6W : 色溫4000k&3000K/孔徑9cm;15cm
入口玄關以開放的方式直視客 廳處,一側以鞋櫃作為端景, 同時區隔餐廳、廚房的公共空 間。
碧臨1.5
廚房中島與餐廳結合做為半開 放式,增加視覺通透及採光, 使空間更加寬敞。
碧臨1.5
連動拉門必要時可以隔絕視聽 室及書房,同時結合兩者空間 可以更有效運用空間動線。
餐廳通往書房之走道以櫃體作 為收納區域,提升收納空間, 可存放常用之生活備品。
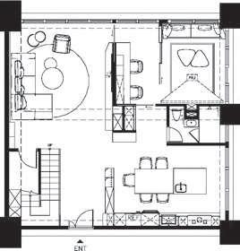
二樓空間以私領域居多,並以 健身運動空間作為公私區域的 兩者過渡。
碧臨1.5
2樓家事空間作為衣物清潔之 工作區域,同時也是晾衣空間 設置於2樓處以便家庭三口使 用。
碧臨1.5
碧臨1.5
主臥室一側以更衣間及衛浴空 間作為配置,提供兩側櫃體發 揮收納及展示的功能;衛浴空 間採用乾濕分離與景觀浴缸規 劃。
C29%+M29%+Y38%+K0% R192. G179. B156. PANTONE P23-4C
C64%+M65%+Y72%+K20% R101. G84. B69. PANTONE P23-15C
C5%+M6%+Y11%+K0% R244. G239. B228. PANTONE P31-1C
C22%+M34%+Y57%+K0% R207. G172. B117. PANTONE P16-12C
C41%+M67%+Y76%+K2% R165. G101. B69. PANTONE P32-13C
C18%+M14%+Y8%+K0% R214. G214. B224. PANTONE P90-1C
採用大地色及木木紋做為材質基底 ,並以亮眼的色系及材質作為點綴 ,其中包含人字拼木紋、金屬材質 落地窗框、石板紋路階梯,提升空 間的活潑、動態感。
室內動線採客廳與廚 房分流,左側走廊以 活動拉門作為隔絕儲 物間與廚房通道,一 樓作為客廳、餐廳公 領域,二樓則以起居 、衛浴、臥室為主。
建築採外凸門廊與綠帶退縮 作為立面設計,呼應詩句之 「空山新雨後」。
入口玄關分別通往儲物 間、廚房動線及客廳
通往客廳之視角
電視牆
因建築高度的限制,樓層高度採185公分高,平衡 兩樓層的尺度,客廳採挑高方式使空間視覺放大, 克服小尺度的環境。
二樓廊道直通衛浴、主臥室、起居空間,通透的方式讓整體室內視覺更加開闊、採光。
門廊以綠帶作為立面規 劃,作為進入室內的過 渡區域,呼應詩句之「 空山新雨後」。
入口動線以左側綠帶 門廊作為進出移動區 域,以對應詩句開頭 ,可有效利用室內空 間,進門即是落地窗 端景,客廳及廚房則 以電視牆作為區隔。
A、B方案樓梯間皆以「開窗」及「石板」做為材質規劃以對 應「明月松間照、清泉石上流」。
此地段作為古坑華山社區的住商混合區域,擁有零星的咖啡廳及住宅,藉由現有經營之咖啡廳 基地,重新將以農舍作為建築量體與室內設計的規劃,根據當地地形、人文、自然條件,營造 適宜居住的度假景觀農舍。
基地由現況營運中的「天空之夜泡腳 咖啡廳」之地段,為一坡地地形,海 拔高度最低325公尺;最高338公尺 ,整體座向為東南西北向。
當地丘陵多種植咖啡,可俯瞰嘉南平 原一景,而盛行景觀咖啡廳的經營, 再者,當地擁有日治時期所遺留的石 砌擋土牆,可作為設計規劃沿用,得 天獨厚的地理環境成為雲林華山之觀 光景點。
農舍高度不能超過 3 層樓或 10.5 公尺高 至少可建基地面積為0.25公頃(756坪)
建築建蔽率不得超過10% 容積:農舍建築總樓地板面積不能超過 495㎡(約 150 坪) 基地面積:農舍最大基層建築面積不能超過 330㎡(約 100 坪)
本基地2456坪
本建築10m高
本建築1F建蔽面積為113㎡;2F建蔽面積為147㎡
本建築總樓地板為358㎡
(113㎡+147㎡+98㎡)
本建築樓地板為147平方公尺
建築造型以咖啡樹的型態延伸發想,梯間與電梯象徵咖啡廳的樹莖 ,也是建築主要的垂直動線,梯間的水平空間延伸則是象徵葉脈的 開枝散葉,並沿用石砌擋土牆作為室外景觀牆。
由於台灣位處北半球,房屋座向可規劃為坐西北朝東南,夏季便可 迎西南季風並抵擋西北方傍晚之日曬;冬季則抵擋東北季風吹拂, 滿足冬暖夏涼與居住者基本需求。
C72%+M65%+Y68%+K24%
C35%+M49%+Y59%+K0%
採用美耐板及石材作為配色,風化柚木、摩卡 冷杉、石墨石紋、卡拉卡塔石紋等建材
建築開口將西南季風引入室內,作為通風措施
西南季風
1樓主要為孝親套房、車庫、 儲物間、樓梯間、電梯間等配 置。
餐廳連通景觀陽台、家事間, 以便女主人的居家工作動線。
電視半腰牆則以共壁的方式與 辦公空間分隔,達到隔絕與通 透的功能。
主臥套房配置於辦公空間後側 ,以衣物收納櫃體、電視牆、 裝飾層板作為配置。
早期公部門於各縣市的都市 計畫尚未建立完善機制,台 灣地區的街道環境經常面臨 著擁擠與凌亂的市容,再者 ,現代環境仰賴汽、機車, 行人與車道並未明確分流管 制,造成交通安全堪憂,並 忽略了行人移動所需要的徒 步空間。
並透過建築量體計畫,整合 鄰近開放空間使其成為社區 連貫的主體,讓非體育設施 用地的附屬空間不只是社區 角落,而是都市開放空間的 生活場域,成為具有經濟價 值與體育花園文化形象的社 區環境。
因此將斗六棒球場 主要入口進行開放 空間整塑,重新配 置棒球場周圍之公 共設施,包含:休憩 綠帶、活動集合區 、市集區、汽機車 停車場、噴水池、 人行道、自行車道 、兒童遊戲區、兒 童接送等候區,兩 處廣場入口意象。
採用具透水、透氣功能之建材,幫 助土壤排水、通風,有助於環境永
選用台灣常見植物、一年四 季之中皆有花期綻放。
從渲染模擬途中可看見燈光設置在人們主要聚集的地方,在適切的照明地點提供夜間使用者的空間指引,不同用途、類型的燈具 造就棒球場社區的氛圍。
跟據當地都市計畫書圖與本國 法規檢討其建蔽率及容積率、 樓高限制等,留設綠帶開放空 間與消防通道,並於每戶留設 人行道與車庫通道,其中根據 地點特性設置區域分類為商業 中軸帶、寧靜過渡區、住宅寧 靜區,共8種建築量體作為提 供建設方案。