Skip to main content

Paaaaan 112-2 作品集

Page 1

P OR TF O L I O

POR
PAN YOU LIN A 06潘宥霖
CONTENTS

繪聚 CONVERT OUTLINE

01 / 02 / 友善的校園邊界 The Friendly Boundary

新時代的校園門戶 The Gateway of New Age

圍隙 AFTER THE WALL DISSPEARED

繪聚 CONVERT OUTLINE

Draw boundaries /Eliminate boundaries/Form boundaries / 重新定義校園新的邊界,

找尋基地現有的輪廓,

先描繪再打破,最後進行結合,重構出能讓人群活動的場域, 使不同的人在此匯聚和互動,形成過渡裡和外的交界處

描繪輪廓 拆分和組合 推拉和變形 健身房&酒吧 空中花園&瑜珈教室前廊道 一樓廣場&七米人行道
Draw Eliminate Form

基地策略

基地裡外高差有90公分,要形成新的邊界,需化解高度差距,並且需吸引更多 的人潮,需打造能讓人自由活動的場域,並運用路徑使人駐足並停留,並與附 近植栽連結,打造植帶的串聯

周遭現況

早上夜市人流稀少

明顯開闊,具有入口意象, 具有平坦的腹地,

明顯開闊,具有入口意象,

具有平坦的腹地, 使人可以自由移動

使人可以自由移動 位置較隱密,屬於目的型場域,

不用太顯眼,但也須有特色

提供座位讓人暢飲聊天

附近居民

遊客 遊客

僅開放給校友及學生,

需管制,並非向外開放,

須具備完善的運動空間

晚上因夜市原因 僅有行人通行 需到半夜才會開始有車行經 ‧活動廣場 ‧室外咖啡廳 ‧露天酒吧 ‧健身房

SITE ANALYSIS 車 人 早上 晚上 交通動線 遊客 附近居民 校友 學生 使用者&需求
入口不明顯 附近植栽多 人潮主要聚集夜市 居民出入口 轉角公園相鄰 人行道使用率不高 90公分高差

建築的裡外

植物的生長

基地的裡外 建築的上下

邊界的輪廓 建築環繞基地植栽 材質轉變,打破規律
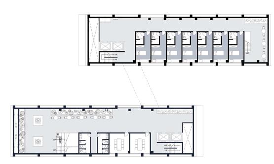
B C D E F G A 屋頂花園 B 健身房 C 更衣室 D 酒吧(座位區) 機能配置
設計手法

E 主要入口大廳

F 咖啡廳(座位區)

G 咖啡廳(外帶區)

下沉廣場,吸引人群 通透材質,裡外連接 一樓抬升,形成廣場 全區配置 A
1 咖啡店員工休息室 2 咖啡廳外帶區 3 下沉廣場 4 入口大廳 1 室內座位區(咖啡廳) 2 室外座位區(咖啡廳) 3 男生更衣室 4 女生更衣室
FLOOR
1F
PLAN 2F FLOOR PLAN

4F FLOOR PLAN

1 重訓空間 2 有氧空間 3 健身房櫃檯 4 健身房辦公室 5 廁所 6 瑜珈教室 1 戶外座位區(酒吧) 2 室內座位區(酒吧) 3 酒吧後場空間 4 廁所 5 空中花園 3F FLOOR PLAN

B1F FLOOR PLAN B2F FLOOR PLAN

UP UP UP DN UP DN
SECTION SOUTH ELEVATION

圍隙 AFTER THE WALL DISAPPEARS

Due to changes in time and history, new cracks and fields have arisen in space. Walls have changed from existence to non-existence, and boundaries have changed from real to virtual. How to reshape past memories and interactions?

RESTAURANT

GALLERY INDOOR GARDEN

DESIGN CONCEPT

Taking the wall as the starting point, the intervention of new buildings creates new connections inside and outside the campus, searches for past memories from the gaps in time, creates a space for interaction and encounter, and establishes a new campus portal.

FEATURES OF THE WALL

DESIGN TECHNIQUES

Two thick building volumes are placed on the site, surrounded by pools, as if the walls are gradually sinking into the water. The voids on each floor introduce external light, so that people can feel the light inside. Mainly planted with plants, it is like an oasis in the city

FLOOR FUNCTION

virtual-real comparison sense of envelopment partition of space

MASS GENERATION

orignal wall demolished wall architectural formation function placement

light TIME
water road height
GAP
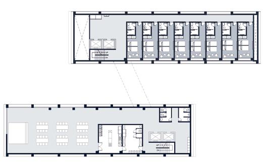
GALLERY LOBBY DOUBLE ROOM SINGLE ROOM SINGlE ROOM RESTAURANT MEETING ROOM &INDOOR GARDAN SKY BAR SPECIAL ROOM 1F 2F 3F 4F 5F
SITE PLAN

BASE ISSUE

As the new gateway to the campus, it needs to have enough open public space and have sufficient spiritual symbolism. The wall is not just a simple barrier between the inside and outside. It also allows people to maintain privacy and have a sense of security. Therefore, using the wall as a symbol, he It is a trace of history and a proof of the existence of Fengjia University. Students study here and hope that when alumni come to the hall, they can also feel the sensibility it brings.

USER ANALYSIS

CAMPUS TRANSITION CAMPUS FACADE CAMPUS SPIRIT TIME OF THE WALL OLD FACADE OLD BORDER NEW FACADE NEW BORDER SITE ANALYSIS
GREEN BELT CONNECTION CROWD GATHERING PEOPLE TRAFFIC FLOW CAR TRAFFIC FLOW SCOOTER TRAFFIC FLOW
ALUMNI STUDENT RESIDENT TOURIST
RESATAURANT ADDITIONAL FUNCTION - SKY BAR / GALLERY PRIVATE PUBLIC TEACHER
MAIN FUNCTION - ALUMNI HALL SECONDARY FUNCTION -
GARRELY
1 FLOOR PLAN
LOBBY

FLOOR PLAN

5 FLOOR PLAN AA‘SECTION S : 1/100 RESTAURANT DOUBLE ROOM SINGLE ROOM SINGLE ROOM SKY BAR SPECIAL ROOM MEETING ROOM &INDOOR GARDAN 4 FLOOR PLAN
3 FLOOR PLAN
2
SECTION

SOUTH ELEVATION

THANKS FOR WATCHING

Turn static files into dynamic content formats.

Create a flipbook