Villa Amaranto (Español)

Page 1


VILLA Amaranto

Residenciales llave en mano y villas a medida, en Dénia y Oliva Nova

Construcciones

Hispano Germanas, S.A.U.

Garantía y confianza

Con medio siglo de experiencia y más de 8.000 clientes que avalan nuestra calidad, somos una de las principales promotoras inmobiliarias de la Costa Blanca.

Nuestra misión es ofrecerle siempre el mejor servicio, con la Garantía CHG: Calidad y confianza avalada por nuestra trayectoria y nuestro grupo empresarial.

La mayoría de nuestras promociones se emplazan alrededor de Oliva Nova Beach & Golf Resort*****, complejo residencial y de ocio que complementa la oferta de servicios y bondades de cada una de nuestras promociones.

Un entorno único para “Vivir la Vida”.

Servicio personalizado de posventa 24 horas

Primera promotora de la Comunidad Valenciana con certificación ISO 9001

Con la Garantía CHG

UN GRAN ENTORNO entre mar y montaña

Oliva Nova se encuentra en pleno epicentro del Mediterráneo, con temperaturas suaves todo el año. Su ubicación, además, convierte a la naturaleza en protagonista: una playa casi virgen, de aguas cristalinas, arena blanca y dunas naturales; un campo de golf de 18 hoyos que albergan a númerosas especies de pájaros en sus árboles y de peces en sus lagos; el parque natural del Montgó y del marjal de Pego-Oliva…

El destino perfecto para desconectar y vivir ajenos al estrés de la rutina diaria.

UN MAR DE SERVICIOS para todos los gustos

Diferentes opciones de alojamiento: un Hotel 4* que goza de una privilegiada primera línea de playa; apartamentos turísticos totalmente amueblados y equipados o exclusivas villas situadas alrededor del campo de golf.

Instalaciones deportivas de primer nivel, para el disfrute tanto de aficionados como de deportistas profesionales: un campo de golf de 18 hoyos diseñado por Seve Ballesteros; 7 pistas de pádel; 4 campos de césped natural; un Centro Ecuestre que acoge competiciones a nivel nacional e internacional, así como infinidad de rutas cerca del Resort que permiten la práctica del senderismo o ciclismo.

Una amplia oferta gastronómica de base mediterránea, con toques modernos y guiños a otras culturas. Oliva Nova dispone de diferentes bares y restaurantes cuya propuesta culinaria no dejarán indiferente a nadie, primando siempre el producto de temporada, de calidad y de cercanía.

Oliva Nova Wellness Center, un espacio dedicado al cuidado personal: circuito spa, gimnasio, masajes y una amplia carta de tratamientos de belleza.

Villa Amaranto

tu lugar preferido

Descubre esta impresionante villa de dos plantas ubicada en Oliva Nova Beach & Golf Resort junto al campo de golf y a dos pasos del mar. Esta hermosa villa cuenta con un gran salón, comedor y cocina abierta con isla, dos dormitorios y un baño con ducha en la planta baja. Disfruta de la privacidad de tu hogar gracias a su acceso independiente desde el aparcamiento de coches que se encuentra a nivel de calle. En la amplia terraza descubierta de 49,98 m² con piscina de 16,65 m², podrás relajarte y disfrutar del sol. La planta alta dispone de un dormitorio con baño independiente con ducha y una terraza para disfrutar de una vista espectacular. Con una superficie total construida de 142,78 m², esta villa es el lugar perfecto para llamar hogar.

Vista principal

Vista posterior

Vista jardín

Vista Salón

Vista Dormitorio

PLANOS

Plano de situación

Se ubica en la Parcela Urbana Nº 2 en el sector II Manzana

Total superficie construida

142,78 m2

Parcela
412,80 m2
Villa Especial de dos plantas.
K2 de Oliva Nova, con dirección
Calle Murillo Nº 9-B.

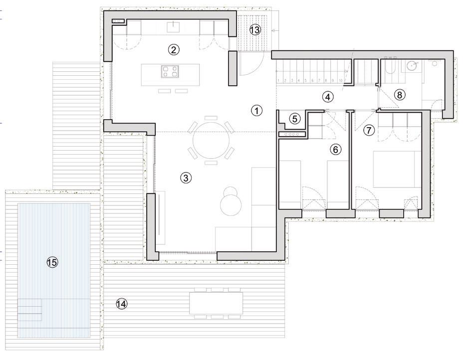
Distribución Planta baja

Estancias interiores

01. Vestíbulo 4,31 m2

02. Cocina 21,02 m2

03. Salón-Comedor 26,51 m2

04. Pasillo Planta Baja 5,29 m2

05. Cuarto de Máquinas 0,82 m2

06. Dormitorio 1 10,28 m2

07. Dormitorio 2 11,60 m2

08. Baño Planta Baja 5,57 m2

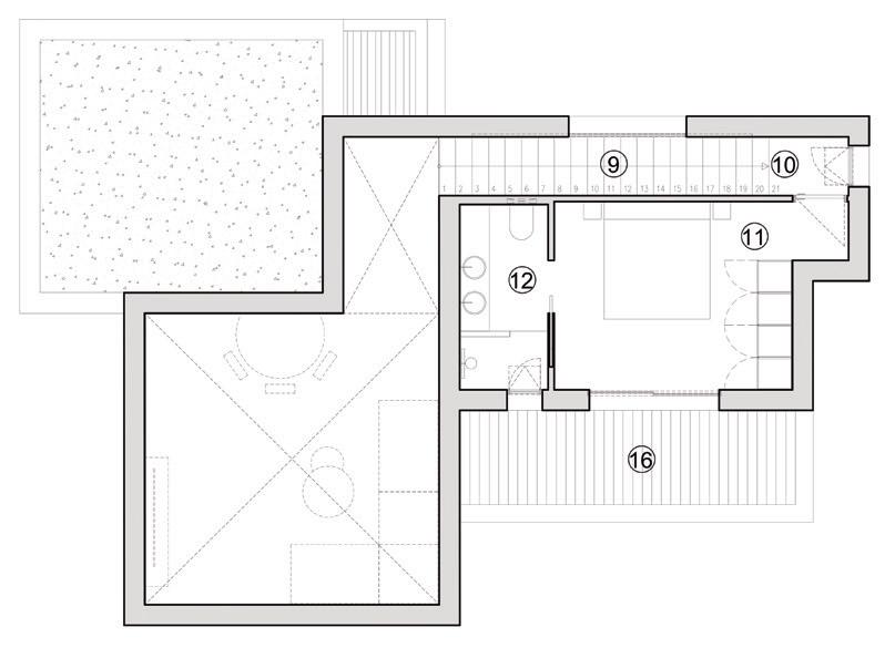
09. Escalera 5,32 m2

10. Pasillo Planta Alta 1,63 m2

11. Dormitorio 3 13,90 m2

12. Baño Planta Alta 4,73 m2

Estancias exteriores

13. Porche 2,35 m2

14. Terrazas descubiertas planta baja 49,98 m2

15. Piscina 16,65 m2

16. Terraza descubierta planta alta 9,12 m2

Total 78,10 m2

Vestíbulo

Dormitorio 2 11,60 m2

08. Baño Planta Baja 5,57 m2

09. Escalera 5,32 m2

10. Pasillo Planta Alta 1,63 m2

11. Dormitorio 3 13,90 m2

12. Baño Planta Alta 4,73 m2

16. Terraza descubierta planta alta 9,12 m2 Total 78,10 m2 Estancias exteriores

15. Piscina 16,65 m2

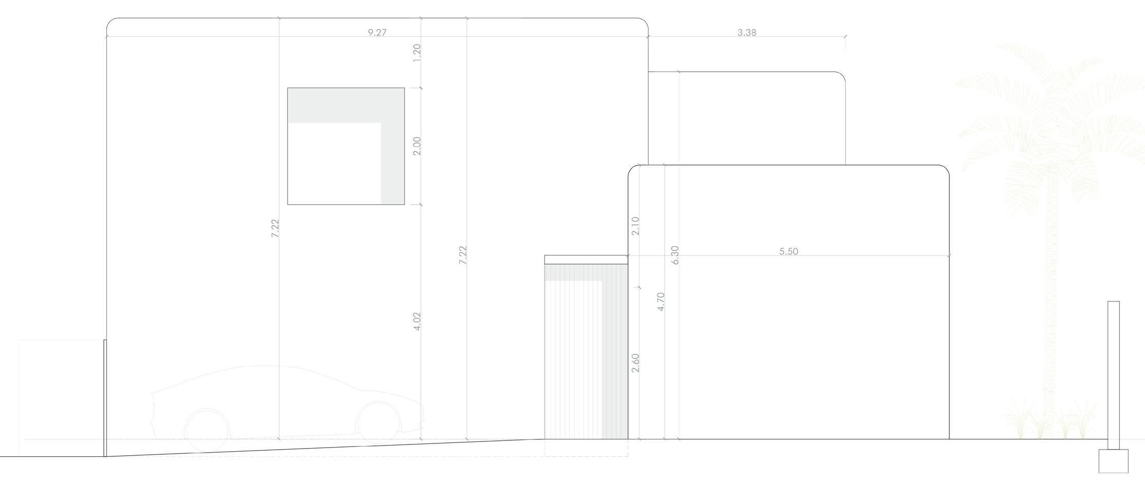
Alzados Principal - Posterior

ALZADO PRINCIPAL
ALZADO POSTERIOR
PLANTA ALTA
PLANTA BAJA

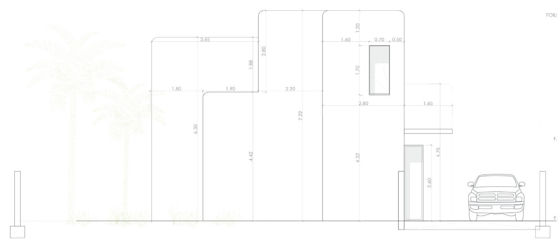
Alzados Laterales

PLANTA ALTA
PLANTA BAJA ALZADO LATERAL DERECHO
ALZADO LATERAL IZQUIERDO

MEMORIA DE CALIDADES

Memoria de calidades

Sistema

estructural

Cimentación a base de losa de hormigón armado, según cálculo estructural y características del terreno.

Forjados sanitarios de hormigón armado apoyados sobre muros de carga de fábrica de bloque de hormigón, enfoscados con mortero de cemento exteriormente y revestidos de lámina drenante que lo separa del terreno.

Estructura de pórticos de hormigón armado según Código estructural.

Fachadas

Cerramiento de doble hoja: hoja exterior de bloque de hormigón celular de 15 cm, cámara de aire de separación con la hoja interior; y hoja interior autoportante con placa de yeso laminado de 15 mm de alta resistencia sobre perfilería galvanizada de 70 mm y aislamiento a base de lana mineral.

Espesores de aislamientos en función de los cálculos energéticos hasta optimizar la fachada para la obtención de una calificación energética A o B.

Revestimiento exterior en fachadas: doble enfoscado sobre soporte con mortero de imprimación y acabado con mortero hidrófugo proyectado y armado con malla de fibra de vidrio plastificada en las zonas de encuentro entre diferentes materiales, acabado con pintura impermeable.

Cubiertas

Cubiertas no transitables, planas con sistema invertido: formación de pendientes a base de mortero aligerado; impermeabilización de lámina de betún modificado armada con fibra de poliéster, capa de regularización de mortero; aislamiento térmico de planchas de poliestireno extruido

de alta prestación térmica, capa separadora de geotextil; capa de terminación con grava lavada de 30 mm nivelada.

Espesores de aislamientos en función de los cálculos energéticos hasta optimizar la cubierta para la obtención de una calificación energética A o B.

Carpintería exterior

Carpintería de aluminio con rotura de puente térmico del fabricante TECHNAL o de características técnicas equivalentes, lacado en color Blanco mate. Sistema de apertura oscilo/batiente o corredera según planos y marco inferior enrasado con el pavimento en puertas.

Persianas enrollables de aluminio extrusionado color igual que la carpintería, con accionamiento motorizado en dormitorios. En el resto de estancias se instalarán en aquellos huecos en las que se requiera según estudio de demanda energética.

Doble acristalamiento con vidrio laminar según normativa y prestaciones térmicas según cálculos energéticos exigidos por el Código Técnico de la Edificación.

Portón abatible, de seguridad, con cinco puntos de cierre, de estructura interior de acero galvanizado reforzado, revestida de PVC en el mismo color de la carpintería.

Sistema de compartimentación

Tabiques interiores mediante placa de yeso laminado de alta resistencia. Terminación mediante pintura plástica lisa, con dos manos en color a elegir.

Memoria de calidades

Carpintería

interior

Puertas interiores abatibles o correderas de dimensiones según plano, realizadas en aglomerado DM hidrófugo, liso acabado lacado en blanco.

Armarios en kit para empotrar, interiores de tablero melamínico acabado imitación textil con estantes y compartimentación superior; herrajes de cuelgue y puertas correderas o abatibles según plano, lisas con acabado lacado blanco. Sistema de cierre progresivo.

Pavimentos y revestimientos

En el interior de la vivienda: Pavimento continuo de micromortero decorativo, con aditivos de grafeno, aspecto marmoleado, de gran dureza y flexibilidad.

En terrazas exteriores: Pavimento continuo de idénticas características que el interior, con textura antideslizante.

En baños, el microcemento del pavimento se extiende sobre la ducha realizada in situ y a las paredes que conforman la cabina de ducha y a la pared con las instalaciones de lavabo. El resto del baño se acabará con pintura lavable al esmalte mate en color blanco RAL 9010.

En zonas secas y resto de la vivienda, acabado a base de dos manos pintura plástica lisa blanca, sobre el soporte previamente preparado.

Falsos techos interiores lisos de placa de cartón yeso, con cortineros en los huecos de fachada y oscuros para iluminación sobre cabeceros en dormitorios. Acabado con pintura plástica mate blanca en tres manos. Donde sea necesario en baños y cocinas, se instalará registro del mismo material para acceso de mantenimiento a los equipos de climatización y ventilación.

Instalación fontanería

Instalación de agua fría, que incluye:

Red interior de agua fría de la vivienda a base de montantes y derivaciones desde llave de paso general interior hasta puntos de consumo y suministro, mediante canalización de Polietileno Reticulado (PEX).

Instalación de agua caliente sanitaria, que incluye:

Equipo generador de agua caliente sanitaria, mediante sistema aerotérmico de alta eficiencia energética, con bomba de calor.

Red interior de agua caliente, a base de montantes y derivaciones desde el aerotermo hasta puntos de consumo y suministro, mediante canalización de tuberías multicapa de polietileno reticulado con alma de aluminio (PEX-ALPEX).

Instalación de acondicionamiento térmico ambiental

Instalación de climatización por conductos, a base sistema Airzone, con bomba de calor aire-líquido refrigerante, inverter, compresor-evaporador separados y conducción de aire climatizado con sistema de conductos, con termostatos individuales en salón-estar y dormitorios para regulación de temperatura.

Suelo radiante en toda la vivienda mediante sistema de aerotermia con bomba de calor.

Memoria de calidades

Instalación de tratamiento y calidad del aire interior

Instalación de extracción mecánica controlada (VMC) a base de sistema de extracción centralizada mecánicocontrolada, para ventilación de extracción del aire interior, formado por extractores en línea tipo Siber o equivalente.

Instalación de electrificación

Instalación eléctrica interior en Baja Tensión, que incluye:

• Instalaciones de enlace y línea general de alimentación con la red eléctrica de calle y caja general de protección.

• Red de distribución interior, en Baja Tensión, con electrificación elevada, circuitos de distribución interior y para el exterior.

• Mecanismos decorativos de control y bases tipo Simón 82 Detail o equivalente en color blanco.

• Red de protección tierra-tierra, a base de red independiente de protección, red de toma tierra enterrada en el terreno y redes de protección equipotenciales en cuartos de baños.

• Grado de electrificación de la vivienda elevado, según indicaciones específicas del Reglamento Electrotécnico de Baja Tensión.

• Circuitos dimensionados para una potencia trifásica de 9,2 kW.

• Canalización para TV y telefonía. Tomas RJ45 en todas las estancias (no incluidos aseo y baños).

• Instalación fotovoltaica para autoconsumo.

• Instalación de antena TDT.

• Videoportero.

Instalación de seguridad

Instalación de sistema de seguridad multizona mediante detectores infrarrojos de presencia interior, central microprocesada de control y alarma. Baños

Sanitarios:

Inodoros suspendidos de VILLEROY & BOCH, modelo AVENTO con asiento amortiguado y con cisterna empotrada.

En baño principal mueble de baño de CODIS, de madera acabado PAULOWNIA POLEN. Encimera con lavabo integrado de CODIS, de cristalplant, modelo ZEN con faldón.

En baño secundario mueble de baño bancada de CODIS, de madera acabado PAULOWNIA POLEN. Encimera con lavabo integrado de CODIS, de cristalplant, modelo ZEN con faldón.

Platos de ducha realizados in situ mediante la extensión del revestimiento continuo del pavimento con aditivos y composición impermeable y antideslizante.

Grifería

En baños de la marca HANSGROHE, grifería de pared modelo TECTURIS S, acabado cromo. En duchas monomandos empotrados con rociador con brazo a pared y teleducha.

En cocina grifo monomando de la marca HANSGROHE, modelo TALIS M54, versión diseño recto, con caño extraíble, 1jet y sBox.

Mampara en cerramiento de espacio de ducha realizada con tabique de pladur revestido con microcemento.

Memoria de calidades

Sistema de equipamiento en cocina

Mobiliario y elementos fijos

Cocina de fabricación alemana marca PRONORM, modelo X-MP acabado laca ultramate antihuellas color Gris Ágata, combinado con modelo X-EV acabado chapado de madera color Roble Sepia en muebles entre columnas, según distribución indicada en planos. Cuerpo de mueble en color Gris Carbón Perla. Cocina sin tirador, con uñero horizontal en muebles bajos con perfil C en color Gris Carbón Perla, apertura push en columnas y apertura eléctrica para el frigorífico. Cajones y gavetas de extracción total con cierre amortiguado. Remate a techo en color Gris Ágata a juego con el acabado de los frentes y rodapié en Gris Carbón Perla a juego con el cuerpo del mueble y el perfil del uñero horizontal. Iluminación LED regulable bajo muebles altos.

Encimera lineal de gres porcelánico de 12mm de espesor de LAMINAM, modelo PIETRA GREY acabado NATURAL. Incluido aplacado entre muebles altos y bajos. Isla con bajada lateral de la encimera y pequeño vuelo en la parte hacia el salón.

Fregadero bajo encimera de la marca BLANCO, modelo SUBLINE 500-U acabado SILGRANIT NEGRO, con juego de desagüe en NEGRO MATE.

Electrodomésticos

Horno BOSCH, modelo HBG7741B1, acabado negro. Horno con Display TFT touch control con aro central, sistema de limpieza pirolítico y asistente de limpieza con agua, conexión Home Connect y asistente con control por voz, función Air Fry.

Microondas integrable BOSCH, modelo BFR7221B1, acabado negro. Microondas con Display TFT touch control con aro central y asistente de limpieza con agua.

Placa de inducción de FRECAN con extracción de humos integrada. Placa de 78 cm de ancho con 4 zonas de cocción, permitiendo unificar dos de ellas para crear zonas para recipientes grandes. Recirculación por filtros de carbón.

Frigorífico combi integrable BOSCH, modelo KIN96VFD0. Frigorífico NoFrost, con doble circuito de frío separando frigorífico y congelador.

Lavavajillas integrable BOSCH, modelo SMV4ECX21E. Lavavajillas Silence Plus con secado eficiente, con bandeja para cubiertos, conexión Home Connect.

Modelo de electrodomésticos supeditado al stock o a posibles cambios en catálogo por parte del fabricante.

Jardín

Realización de jardín según la siguiente descripción:

• Pared de bloques de hormigón para contención de rellenos en los lindes donde sea necesario.

• Zona de aparcamiento pavimentada con adoquín de hormigón 20x10 cm color antracita.

• Extendido de rellenos y capa de tierra vegetal.

• Grava decorativa en el perímetro de la edificación en los tramos en contacto con las tierras.

• Césped sembrado con mezcla de semilla y grama.

• Seto perimetral en los lindes donde no exista seto, con cipreses Sempervirens de altura 0,80-1,00 m plantados 3 ud/ml.

• Instalación de riego automático con aspersores en zonas de césped y goteo para las plantas.

• Cerramiento de la parcela con tela metálica plastificada en verde de 1,50 m de altura, donde no exista vallado.

Memoria de calidades

• Puerta de acceso al parking, articulada de aluminio color blanco, de 1,80 m de altura, motorizada.

• Número y buzón.

• Cuidados post plantación 1 mes o hasta el primer corte del césped.

Plantas incluidas:

• 2 Palmeras Washingtonia de 3 a 4 m de altura de tronco.

• Seto de Eugenias en el lateral del parking.

• Planta pequeña y de flor, Gaura o similar.

Piscina, terrazas y ducha

Piscina con planta rectangular 5x3 m con profundidad uniforme de agua, con zona de playa y escalera en el interior del vaso, incluido equipo de depuración, revestida con microcemento, 1 foco de iluminación subacuática y barrendera.

Piscina con calefacción mediante bomba de calor y cubierta automática de lamas de PVC.

Terrazas exteriores del jardín realizadas con microcemento.

Ducha sobre la terraza con agua fría, de acero inoxidable, con rociador superior y grifo lavapiés.

NOTA:

Los materiales, elementos, procedimientos y especificaciones descritos en la presente memoria de calidades son indicativos y susceptibles de modificación por exigencias técnicas de la Dirección Facultativa de la obra y de las normativas vigentes, garantizándose en todo caso el mantenimiento del nivel general de calidad de la villa. Construcciones Hispano Germanas S.A.U es propietaria de las imágenes e infografías, las cuales no tienen validez contractual y son meramente informativas y orientativas.

Turn static files into dynamic content formats.

Create a flipbook
Issuu converts static files into: digital portfolios, online yearbooks, online catalogs, digital photo albums and more. Sign up and create your flipbook.
Villa Amaranto (Español) by OLIVA NOVA - Issuu