

KONFIGURATIONSMÖGLICHKEITEN







KÜCHE
EIN FUNKTIONALER UND EINLADENDER RAUM, UM DER KREATIVITÄT FREIEN LAUF ZU LASSEN.


KÜCHE
ELEGANCE
Jeder Winkel wurde so gestaltet, dass der Raum optimal genutzt wird. Die offene Küche wird zu einem funktionalen Bereich und lädt dazu ein, die besten Rezepte in angenehmer Runde zu teilen.

ARBEITSPLATTE UND VERKLEIDUNG
GRANIT 2 CM.

PERLWEISS

MONDARIZ-GRAU
HAUSHALTSGERÄTE



MÖBEL
LAMINAT




Dunstabzugshaube integriert in Möbel, 60 cm. 3BD866MX. Ausführung Edelstahl.
Glaskeramikkochfeld. 60x60 cm. 3EB715ER. Verarbeitung in Schwarz ohne Profile. Mit 3 Bereichen.
Backofen. 60x60 cm. 3HB2010X0. Ausführung Edelstahl und Glas.
SUPRA-450_U. Ausführung Edelstahl. Becken 45x40 cm.
Einhebel-Küchenarmatur, ZESIS M33. Ausführung Chrom.
KÜCHENGRIFFE

GEKRÜMMT 425 EDELSTAHL

GERADE 466 EDELSTAHL

GERADE 468 BLACK
SPÜLE

EDELSTAHL
WASSERHAHN KÜCHE CHROM

Modelle vorbehaltlich des Lagerbestands oder möglicher Katalogänderungen durch den Hersteller.


KÜCHE
EXCLUSIVE
Jede Variante ist so konzipiert, dass die Ästhetik erhalten bleibt, ohne die Funktionalität oder Effizienz zu vernachlässigen. Das offene Design sorgt für Bewegungsfreiheit und Komfort bei der Zubereitung von Speisen und sorgt gleichzeitig für eine einladende Atmosphäre.

ARBEITSPLATTE UND VERKLEIDUNG
PORZELLANFLIESEN 1,2 CM. NATÜRLICHE VERARBEITUNG






MÖBEL
MATTLACKIERUNG






GRIFFMULDE
GRIFFMULDE XGFB








VELVET GREEEN GREY 7016 KASHMIR
SAND SNOW DEEP BLUE KOHLE
TITAN ANTHRAZIT
IRATI TANNE
BASIC SCHNEE CAMARGUE SAND ICEBERG
PALLADIUM
VELVET GREEEN GREY 7016 SAND SNOW DEEP BLUE KASHMIR

SPÜLE


ZARTES WEISS TARTUFO

FELSENGRAU
HAUSHALTSGERÄTE
Integrierte Dunstabzugshaube, 60 cm. LJ67BAM60. Schwarzes Glas.
Induktionskochfeld. 60x60 cm. EH631BJB6E. Schwarze Ausführung ohne Rahmen. Mit 3 Kochzonen.
Backofen. 60x60 cm. HB776G1B1. Schwarze Ausführung. Pyrolytische und hydrolytische Reinigung.
Einbau-Mikrowelle. 60x38 cm. BF722R1B1. Schwarze Ausführung.
WASSERHAHN KÜCHE


EDELSTAHL CHROM
Frigorífico combi integrable. 177,2x54,1 cm. KI86NHFE0, NoFrost. Home Connect.
Eingebauter Geschirrspüler. 60 cm breit. SN63HX01CE. Besteckeinsatz. Home Connect.
Waschmaschine, 60 cm breit. WU14UT62ES. Verarbeitung in Weiß. Vordere Beladung 9 kg. 1400 r.p.m.
Trockner, WQ45G2D0ES. Frontlader-Trockner mit 9 kg Fassungsvermögen.
Spüle. Spülbecken von 50x40 cm. SUBLINE 500 U Verarbeitung SILGRANIT.

KÜCHENZUBEHÖR
Küchenarmatur TALIS M54, Comfortzone 270, mit ausziehbarem Auslauf.
Abfallsortiersystem für Spülenunterschrank mit ausziehbarer Tür. SELECT II Compact 60/2 mit 2 Behältern à 17L.
Modelle vorbehaltlich des Lagerbestands oder möglicher Katalogänderungen durch den Hersteller.


COCINA SIGNATURE
Eine perfekte Kombination von Raffinesse und Funktionalität dank der LED-Beleuchtung der Arbeitsfläche und Elektrogeräten, die perfekt in die Küchenmöbel integriert sind. Das offene Design regt zur kulinarischen Kreativität an und erlaubt Kommunikation in einem modernen, lebendigen Raum.

ARBEITSPLATTE UND VERKLEIDUNG
PORZELLANFLIESEN 1,2 CM. NATURE-VERARBEITUNG









OS_MATTES ORGANISCHES GLAS MÖBEL
Y LM_MATTLACKIERUNG






GRIFFMULDE
GRIFFMULDE „Y“, INTEGRIERTES TÜRPROFIL



Y




FIORI DI BOSCO
CALACATTA GOLD
GLEM WHITE
LIEM DARK MOON WHITE NEDA AGED DARK
BOTTEGA CALIZA ARS BEIGE
ARTICSWEISS HELLGRAU CHAMPAGNER
STRATUSGRAU
KARMINROT
SUPERWEISS ANGORA GRAU HELL GRAU
DUNKELGRÜN
EDELSTAHL
SCHWARZ

SPÜLE
PORZELLANFLIESEN 1,2 CM. NATURE-VERARBEITUNG









WASSERHAHN KÜCHE






HAUSHALTSGERÄTE
Dunstabzugshaube DAS4630 Obsidian black.
Induktionskochfeld, KM7466FL 125 Edition, mit Power Flex Zone.
Backofen, H 7240 BM. Kompakter Backofen mit Mikrowelle, 45 cm Höhe. Obsidian Black Ausführung. Automatikprogramme.
Eingebauter Kombi-Kühlschrank. 177x56 cm. KFN 7734 C. Fach mit einstellbarer Luftfeuchtigkeit: DailyFresh. LED-Innenbeleuchtung. NoFrost. Gleichmäßige Temperaturverteilung im gesamten DynaCool-Gehäuse. Intelligente Verbindung Miele@Home.
Integrierbarer Geschirrspüler, G 5450 SCVi Active Plus. Autoopen-Trocknung. Ecopower-Technologie mit hoher Energieeffizienz.
Waschmaschine. 60 cm breit. WWG660 WCS TDos&9kg. Verarbeitung in Weiß. Vordere Beladung 9 kg, 1400 r.p.m. Selbstdosierung des Waschmittels. Extra Glättungsfunktion um Falten zu mindern. Intelligente Verbindung Miele@Home.
Trockner, TCL780WP. EcoSpeed&Steam&9kg, Lotusweiß.
In die Arbeitsplatte integrierte Spüle. Spülbecken von ca. 50x40 cm. Hergestellt aus dem gleichen Material wie die Arbeitsplatte, 1,2 cm Porzellanfliesen der Marke Porcelanosa.

KÜCHENZUBEHÖR
Einhebel-Küchenarmatur mit 2 Löchern und ausziehbarem Auslauf, CITTERIO M 220.
Mülltrennsystem für die Spüle mit ausziehbarer Tür. SELECT II XL 60/3 Orga mit 1 x 30 L und 2 x 8 L Eimer und oberer Organisationsschublade.
Modelle vorbehaltlich des Lagerbestands oder möglicher Katalogänderungen durch den Hersteller.
MOON WHITE GLEM WHITE
BOTTEGA CALIZA ARS BEIGE NEDA
FIORI DI BOSCO AGED DARK LIEM DARK
CALACATTA GOLD



WOHNZIMMER
DAS HERZ DES HAUSES, KOMFORT UND WÄRME FÜR RUHIGE MOMENTE


WOHNZIMMER ELEGANCE
Jeder Bereich des Wohnzimmers ist so gestaltet, dass eine exklusive und raffinierte Atmosphäre entsteht.
Mit der Zusammenstellung der Möbel und der Wahl der Texturen können Sie einen harmonischen und eleganten Raum schaffen, den Sie in Gesellschaft genießen können. Die Details bei der Beleuchtung und der Dekoration sind sehr wichtig, da sie die Geräumigkeit des Raumes ergänzen und eine einzigartige und exklusive Atmosphäre schaffen.


WOHNZIMMER
EXCLUSIVE
Mit einem Design, das Eleganz und Funktionalität in Einklang bringt, bietet das Wohnzimmer eine elegante und einladende Umgebung. Die speziell für diese Einrichtung ausgewählten Tapeten verleihen dem Raum eine künstlerische Note, die in Verbindung mit der Zusammenstellung der Möbel und der Wahl der Texturen einen harmonischen und eleganten Raum schafft, in dem man sich gerne in Gesellschaft aufhält.

DEKORATIVE WOHNZIMMERWAND
HINTERGRUNDBILD







PALAZZO GIUDECCA BEIGE CLAIR
PALAZZO GIUDECCA TAUPE SILK ROAD UNI GRIS 2


WOHNZIMMER SIGNATURE
Eine perfekte Kombination aus Design und Luxus zeichnet dieses Wohnzimmer aus. Die Keramikfliesen an der Hauptwand des Wohnzimmers setzen einen besonderen Akzent, der zusammen mit der hochwertigen Verarbeitung und der sorgfältigen Auswahl der Möbel und der Beleuchtung diesen Raum zum Herzstück des Hauses macht.

DEKORATIVE WOHNZIMMERWAND
REKTIFIZIERTE KERAMIKBESCHICHTUNG

PORCELANOSA - CAPRI BONE 45X120

PORCELANOSA - GASA BONE 45X120

PORCELANOSA - GASA TOPO 45X120

PORCELANOSA - CAPRI STONE 45X120

PORCELANOSA - TAILOR BONE 59,6X150

PORCELANOSA - TAILOR TAUPE 59,6X150

PORCELANOSA - DECO GASA BONE ACERO 45X120

PORCELANOSA - TRECCIA NATURAL 59,6X150

- TRECCIA YUTE 59,6X150
PORCELANOSA




SCHLAFZIMMER
KOMFORT UND GELASSENHEIT, UM NACHT FÜR NACHT TRÄUME ZUM LEBEN
ZU ERWECKEN

SCHLAFZIMMER 2


SCHLAFZIMMER ELEGANCE
Ein Bereich, der für Ruhe und Erholung gedacht ist. Die hochwertige Verarbeitung und das funktionelle Design sorgen für eine ruhige und angenehme Atmosphäre, ideal für einen erholsamen Schalf.
SCHLAFZIMMER 3

SCHLAFZIMMER 2


SCHLAFZIMMER EXCLUSIVE
Jedes Detail in diesem Schlafzimmer ist darauf ausgerichtet, einen perfekten Raum für Erholung und Entspannung zu schaffen. Mit der Wahl der Tapete an der Wand des Kopfendes des Bettes können Sie den Raum individuell gestalten und ihm einen Hauch von Raffinesse verleihen.
SCHLAFZIMMER 3

DEKORATIVE SCHLAFZIMMERWAND AM KOPFENDE DES BETTES






WANDBILD GLAMDECOR
HANAMI
KOI
TORI
DEHORS
KEIKO SIMPLY

DEKORATIVE SCHLAFZIMMERWAND AM KOPFENDE DES BETTES






WANDBILD GLAMDECOR
HANAMI
KOI
TORI
DEHORS
KEIKO
SIMPLY

SCHLAFZIMMER 2


SCHLAFZIMMER SIGNATURE
Die hochwertigen Materialien und die sorgfältige Gestaltung des Raums sorgen für eine entspannende und luxuriöse Atmosphäre, die zum Ausruhen einlädt. Die Wahl der dekorativen Keramikfliesen für das Kopfende des Bettes und die LED-Beleuchtung des Raumes ermöglichen es Ihnen, den Stil des Schlafzimmers an Ihren Geschmack anzupassen.
SCHLAFZIMMER 3

DEKORATIVE SCHLAFZIMMERWAND AM KOPFENDE DES BETTES
REKTIFIZIERTE KERAMIKFLIESEN
VON 45 X 120 CM.
VERSTECKTE DIMMBARE LED-BELEUCHTUNG.





REKTIFIZIERTE KERAMIKFLIESEN
VON 59,6 X 150 CM.
VERSTECKTE DIMMBARE LED-BELEUCHTUNG.






GASA MOKA
GASA TOPO
GASA BONE
CAPRI BONE
CAPRI STONE
NATURAL
TRECCIA NATURAL
YUTE

DEKORATIVE SCHLAFZIMMERWAND AM KOPFENDE DES BETTES






WANDBILD GLAMDECOR
HANAMI
KOI
TORI
DEHORS
KEIKO
SIMPLY



BADEZIMMER
FUNKTIONALITÄT UND STIL FÜR DAS TÄGLICHE PFLEGERITUAL
HAUPTBADEZIMMER


BADEZIMMER ELEGANCE
Ein Badezimmer, das auf Funktionalität und Stil ausgelegt ist. Die Verarbeitung bietet eine saubere und moderne Ästhetik, die einen entspannenden und komfortablen Raum schafft.
ZWEITES BADEZIMMER

BADEZIMMER / ELEGANCE
BADEZIMMERMÖBEL
HAUPTBADEZIMMER
WANDEINHEIT MIT 1 SCHUBLADE, 35 CM HOCH. GESCHICHTETE VERARBEITUNG.


BESCHICHTUNG DER BADEZIMMER
REKTIFIZIERTE KERAMIKFLIESEN VON 20X90 CM. STEINIMITAT. Duschwände.



LUCENA PERLE
LUCENA SAND
LUCENA WEISS

ZWEITES BADEZIMMER
TOILETTENKNOPF

AUSSTATTUNG

Duschwanne, Nesvit Basic, Farbe weiß/elfenbein/anthrazit.
Rechteckiger Spiegel ohne Rahmen, 80 cm hoch.

WEISS
DUSCHAUFSATZ

Arbeitsplatte mit integriertem Waschbecken, Modell Línea, weiße Keramik, 80 cm.
The Gap Wand-WC Set mit Soft-Close-Sitz. Weiße Ausführung.

Wasserhahn VERNIS BLEND.

CHROM TRANSPARENT GLAS
WASSERHÄHNE UND BADEZIMMERZUBEHÖR


CHROM
KÜCHENERGÄNZUNGEN
Perpendiculäre Wandhandtuchstange. SUPERINOX. Chromausführung.

Toilettenpapierhalter ohne Abdeckung und Doppelduschhaken. Logis Universal. Chromausführung.
Modelle vorbehaltlich des Lagerbestands oder möglicher Katalogänderungen durch den Hersteller.


BADEZIMMER
EXCLUSIVE
Mit exklusiven Details und einer raffinierten Verarbeitung bietet dieses Badezimmer ein außergewöhnliches Erlebnis. Die hochwertige Materialien und innovative Ablagemöglichkeiten sorgen für einen funktionalen und eleganten Raum.
HAUPTBADEZIMMER

BADEZIMMER
BADEZIMMERMÖBEL
WANDEINHEIT MIT 1 SCHUBLADE, 40 CM HOCH. LACKIERTE VERARBEITUNG.



WEISS
KOHLE SAND
ZWEITES BADEZIMMER

BESCHICHTUNG DER BADEZIMMER
REKTIFIZIERTE KERAMIKFLIESEN
VON 31,50X100 CM. STEINIMITAT. Dusch- und Waschbeckenwände.


TUDONS WEISS

MÍTICA WEISS
REKTIFIZIERTE KERAMIKFLIESEN
VON 31,50X100 CM, MARMORIMITAT Dusch- und Waschbeckenwände.


AREZZO WEISS

VOLTERRA WEISS

TUDONS ELFENBEIN

MÍTICA ELFENBEIN

ARREZO ELFENBEIN

VOLTERRA ELFENBEIN

TUDONS PERLE

MÍTICA PERLE

ZWEITES BADEZIMMER
TOILETTENKNOPF



DUSCHAUFSATZ



WASSERHÄHNE UND BADEZIMMERZUBEHÖR


CHROM
AUSSTATTUNG


Duschwanne, Nesvit Atlantis, Farbe Weiß/Elfenbein/Anthrazit.
Spiegel 80x80 cm, rahmenlos, mit Beleuchtung oben und unten, Modell LUNA.
Waschtisch mit integriertem Waschbecken, Modell ZEN von CRISTALPLANT, 80,5 cm.
Wandhängendes WC, Modell D-NEO komplett + VIEGA-Trägergestell.
• Kopfbrause 200 1jet EcoSmart VERNIS BLEND, Chrom-Finish.
• Duscharm E 38,9 cm, Chrom-Finish.
• Raindance Select S Handbrause 120 3jet PowderRain EcoSmart 9 l/min, Chrom-Finish.
• ISIFLEX Brauseschlauch 160 cm, Chrom-Finish.
• Waschtischarmatur mit niedrigem Auslauf und FINORIS Einhebelmischer mit Umsteller für Dusche, Chrom-Finish.
KÜCHENERGÄNZUNGEN

Doppel-Handtuchhalter, Toilettenpapierhalter mit Ablage und Duschhaken ADDSTORIES. Chrom-Finish.
Modelle vorbehaltlich des Lagerbestands oder möglicher Katalogänderungen durch den Hersteller.
HAUPTBADEZIMMER


BADEZIMMER SIGNATURE
Ein Badezimmer, in dem Luxus und Funktionalität zusammenkommen. Jedes Detail wurde sorgfältig ausgewählt, um einen Raum voller Komfort und Luxus zu schaffen, der das Badezimmer zum idealen Ort für die tägliche Pflege macht.

BADEZIMMER /
BADEZIMMERMÖBEL
WANDEINHEIT MIT 1 SCHUBLADE, 40 CM HOCH. HOLZOBERFLÄCHE STECCHE (LAMELLENARTIG).




WANDEINHEIT MIT 1 SCHUBLADE, 30 CM HOCH. PORZELLANFLIESEN.




WASCHBECKEN
WASCHBECKEN AUF TISCHPLATTE CRISTALPLANT




ZWEITES BADEZIMMER

BESCHICHTUNG DER BADEZIMMER
REKTIFIZIERTE KERAMIKFLIESEN
VON 45X120 CM, STEINIMITAT
Alle Wände mit Ausnahme der Zugangswand.






REKTIFIZIERTE KERAMIKFLIESEN
VON 45X120 CM, MARMORIMITAT
Alle Wände mit Ausnahme der Zugangswand.









ROMA NOCE KANAL
ROMA NOCE
CARRERA WEISS
FONTANA MATT
MARQUINA NOLITA
FONTANA MATT BROOKLYN
ROMA ELFENBEIN KANAL
ROMA ELFENBEIN
MARQUINA BROOKLYN
NOIR SPIGA CALIZA
NOIR CALIZA
FONTANA MATT MADISON
MARQUINA MADISON
FONTANA MATT QUEENS
MARQUINA QUEENS

ZWEITES BADEZIMMER
TOILETTENKNOPF




KRISTALLWEISS EDELSTAHL KRISTALLSCHWARZ
AUSSTATTUNG

BADEZIMMER
Duschwanne, Nesvit Playanova, Farbe Weiß/Elfenbein/Anthrazit.
RUNDER beleuchteter und beschlagfreier Spiegel.
Waschbecken auf Tischplatte, cristalplant, 4 Modelle zur Auswahl.
WC AVENTO + Viega-Trägergestell.
DUSCHAUFSATZ




MATTSCHWARZ CHROM PROFILE TRANSPARENT GLAS LICHTDURCHLÄSSIG RAUCHGLAS

• Waschtischmischer Select 260 mit Push-Open-Ablaufgarnitur. Kopfbrause 280, Kombination aus PowderRain und Rain, 1 Strahlart mit Wandarm. Handbrause 75 1jet EcoSmart 9 l/min. AXOR ONE. Spezialoberfläche nach Wahl.
• Grundset für wandmontierte Kopfbrause.
• 160 cm Brauseschlauch mit Metalleffekt. Spezialoberfläche nach Wahl.
• Brausehalter mit Wasseranschluss. AXOR PORTER. Spezialoberfläche nach Wahl.
KÜCHENERGÄNZUNGEN

WASSERHÄHNE UND BADEZIMMERZUBEHÖR







EDELSTAHL CHROM BRONZE GEBÜRSTET ROT-GOLD POLIERT GOLD GEBÜRSTET CHROMSCHWARZ GEBÜRSTET
Doppelarm-Handtuchhalter, Toilettenpapierhalter und Duschhaken AXOR Universal Circular. Spezialoberfläche nach Wahl.
Modelle vorbehaltlich des Lagerbestands oder möglicher Katalogänderungen durch den Hersteller.



FUSSBODEN
DAS SOLIDE FUNDAMENT, AUF DEM DIE BESTEN MOMENTE AUFGEBAUT WERDEN

ALLGEMEINER FUSSBODEN
REKTIFIZIERTE PORZELLANFLIESEN VON 60X60 CM. STEINIMITAT.



LUCENA WEISS LUCENA PERLE
LUCENA SAND

ALLGEMEINER FUSSBODEN
REKTIFIZIERTE PORZELLANFLIESEN VON 80X80 CM. STEINIMITAT.





REKTIFIZIERTE PORZELLANFLIESEN VON 80X80 CM. MARMORIMITAT.



PANGEA GREIGE
PANGEA ZEMENT
PANGEA WEISS PANGEA SAND
VOLTERRA WEISS
VOLTERRA BEIGE

FUSSBODEN / SIGNATURE
ALLGEMEINER FUSSBODEN
REKTIFIZIERTE PORZELLANFLIESEN VON 100X100 CM. STEINIMITAT.






REKTIFIZIERTE PORZELLANFLIESEN VON 23X150 CM. HOLZIMITAT.




BOTTEGA WEISS BOTTEGA CALIZA
MATIKA ACERO
MATIKA SILVER MATIKA BONE
TANZANIA WHITE
TANZANIA SILVER
TANZANIA NUT
TANZANIA ALMOND
BOTTEGA ACERO



BELEUCHTUNG
LICHT IST EIN GRUNDLEGENDES ELEMENT, UM RÄUME MIT PERSÖNLICHKEIT ZU SCHAFFEN
BELEUCHTUNG / ELEGANCE
Lichtpunkt. Lieferung und Installation der Leuchten durch den Kunden.
ADAY (ODER ÄHNLICH)
AUSSENWANDLEUCHTE
VERARBEITUNG IN DUNKELGRAU
WARMES LICHT 3000 K


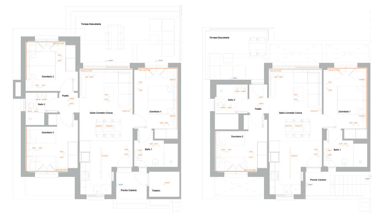
BELEUCHTUNG
Beleuchtung im gesamten Wohnbereich 3000K / Bäder 2700K
ADAY (ODER ÄHNLICH)
AUSSENWANDLEUCHTE
VERARBEITUNG IN DUNKELGRAU WARMES LICHT 3000 K

SAVOY
HÄNGELAMPE
TEXTILSCHIRM IN WEISS WARMWEISSES LICHT 3000K


DAKRON
DECKENLEUCHTE WEISSES ABS WARMWEISSES LICHT 3000K

GAS
EINBAULAMPE WEISSES
ALUMINIUM WARMWEISSES
LICHT 2700K UND 3000K

STAN
DECKENLEUCHTE WEISSES
ALUMINIUM WARMWEISSES
LICHT 2700K UND 3000K

CALMA
WANDLEUCHTE (LINESTRA-TYP) WEISSER STAHL UND OPALGLAS WARMWEISSES LICHT 2700K

SUAU TRAY
WANDLEUCHTE MIT
SCHALTER + USB-A WEISSES
ALUMINIUM WARMWEISSES LICHT 3000K

BELEUCHTUNG / SIGNATURE
Beleuchtung im gesamten Wohnbereich 3000K / Bäder 2700K
ADAY (ODER ÄHNLICH)
AUSSENWANDLEUCHTE
VERARBEITUNG IN DUNKELGRAU
WARMES LICHT 3000 K

GAS
EINBAULEUCHTE
SCHWARZES ALUMINIUM
WARMWEISSES LICHT 3000K

HARU
DECKENLEUCHTE
SCHWARZES ALUMINIUM
WARMWEISSES LICHT 3000K


STAN 02
OBERFLÄCHENMONTIERTER
SCHIENENSTRAHLER
SCHWARZES ALUMINIUM
WARMWEISSES LICHT 3000K

NUBO 120
DECKENLEUCHTE
SCHWARZES ALUMINIUM /
OPALGLAS WARMWEISSES
LICHT 3000K

WHIZZ 01
HÄNGELEUCHTE
SCHWARZER STAHL UND SATINIERTES
GOLD
WARMWEISSES LICHT 3000K

WHIZZ 02
WANDLEUCHTE
SCHWARZER STAHL UND SATINIERTES
GOLD
WARMWEISSES LICHT 3000K

STAN 01
HÄNGELAMPE
SCHWARZES
ALUMINIUM
WARMWEISSES LICHT 3000K

