
Nabídka nemovitosti
PRODEJ BYTU 3+1, BOHUMIL
ZÁKLADNÍ ÚDAJE
Cena: Lokalita:
Plocha: 7 700 000 Kč
Bohumil, Jevany
120 m²
7 700 000 Kč
EVIDENČNÍ ČÍSLO 1088 CENA
OKRES
Praha-východ
LOKALITA
Bohumil, Jevany
KATEGORIE
Byty 3+1
PLOCHA NEMOVITOSTI
120 m²
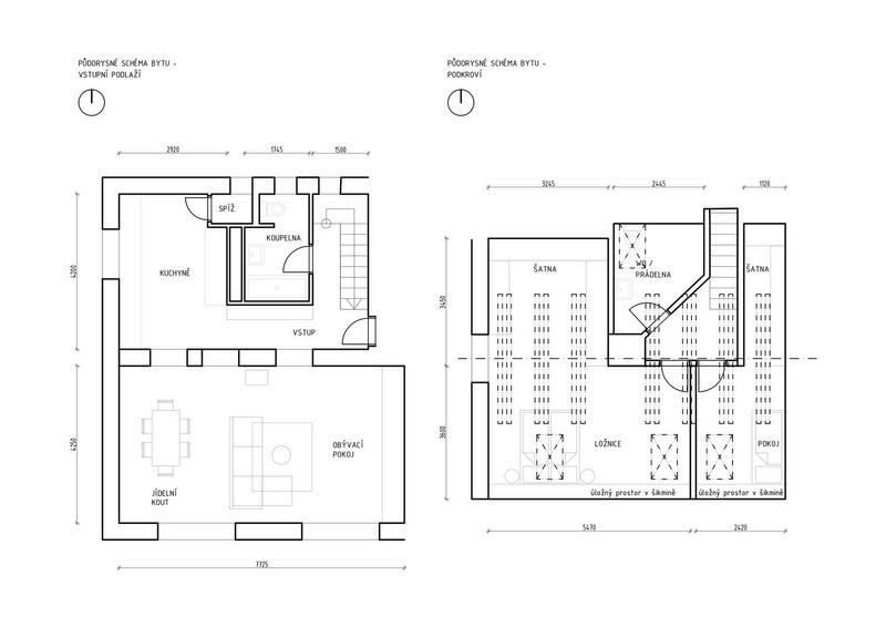
Nabízíme k prodeji atraktivní mezonetový byt 3 + 1 v obci
Bohumil, okres Praha-východ, s velmi dobrou dopravní dostupností. Nachází se mezi malebnou obcí Jevany a městem
Kostelec nad Černými lesy, které nabízí výbornou občanskou vybavenost – školu, školku, supermarkety, sportoviště, lékaře i další služby. Do Prahy, na metro Háje, se autem dostanete přibližně za 35 minut. Tento prostorný byt s užitnou plochou 120 m² poskytuje ideální zázemí pro rodiny s dětmi, které hledají bezpečné a přívětivé prostředí v blízkosti Prahy. Byt se nachází v zatepleném dvoupodlažním domě s novými plastovými okny. Mezonetové uspořádání nabízí dostatek prostoru pro pohodlné bydlení. V přízemí se nachází světlý obývací pokoj s krbovými kamny, jež navodí příjemnou atmosféru v chladných měsících, dále plně vybavená kuchyň, prostorný jídelní kout a koupelna s WC. V patře jsou dva samostatné pokoje, aktuálně využívané jako dětský pokoj a ložnice. Součástí patra je také prostorné WC, které zároveň slouží jako prádelna. Bezpečnost a klidné prostředí dělají tuto nemovitost obzvlášť atraktivní pro rodiny s dětmi. Obec se vyznačuje příjemnou a bezpečnou atmosférou. Parkování je možné přímo před domem. Úložné prostory zajišťuje nadstandardně velký sklep a sklepní kóje o celkové výměře 10,38 m². Tato nemovitost nabízí nejen skvělé rodinné zázemí, ale také široké možnosti aktivního trávení volného času v okolní přírodě. Nedaleké Voděradské bučiny lákají k cyklovýletům i pěší turistice, v létě jistě oceníte možnost koupání na koupališti Vyžlovka. V případě zájmu o prohlídku nás neváhejte kontaktovat.











