DA5B-LAPA PIÑIN NATALI

Page 1

DISEÑO ARQUITECTÓNICO 5 CÁTEDRA: Arq. Robinson Ortiz Arq. Fiolerí Cárdenas Arq. Luis Morales Arq. Susana Rossi ALUMNO: Lapa Piñin, Natali Mireya CICLO: 2022 - 1 U N I V E R S I D A D N A C I O N A L D E I N G E N I E R Í A Facultad de Arquitectura, Urbanismo y Artes Arq. Zaldívar Jorge Arq. Juan Luis Palacios Arq. Alexey Carrasco CENTRO COMERCIAL LAMARA CALLAO CALLAO CALLAO

ÍNDICE O1 O2 O3 O4 O5 ESTUDIOS URBANO E IDENTIFICACIÓN DEL TERRENO 1.1 Síntesis del PDM del Callao al 2040 1.2 Identificación del terreno 1.3 Análisis histórico 1.4 Análisis urbano sensible APROXIMACIÓN URBANÍSTICA 2.1 Primera aproximación 2.2 Propuesta urbanística ANÁLISIS DE REFERENTES 3.1 Referentes tipológicos 3.2 Referentes artísticos 3.3. Referentes paramétricos 3.4. Referentes topofílicos PROGRAMA ARQUITECTÓNICO Centro comercial APROXIMACIÓN VOLUMÉTRICA Variables paramétricas, topológicas y artísticas.

1. ESTUDIO URBANO E IDENTIFICACIÓN DEL TERRENO

Mayor articulación al sistema de movilidad intermodal Áreas verdes y ecológicas, y espacios públicos confortables. Centros urbanos articulados a las centralidades metropolitanas. calidad. Cultura de prevención antes desastres y territorios seguros. Mayor articulación de lugares históricos con el entorno urbano. Incentivo del gobierno local a la participación y urbano.acompañamiento 1. 2. 3. 4. 5. 6. 7. 8. 9. Integración de lugares comerciales al territorio Integración del desarrollo y actividad urbano, con las zonas marítimas. CONTEXTO | LINEAMIENTOS DEL PDMC 2040 CORONADOBARRIGACHAVEZCOTERA LA MARQUEZROSAPATRICIOPEREDAECHEVARRIAFLORESGARCÍALAPA RENTERÍARAMOSVALLEJOSVISOD.A. 5B Mg. ARQ. ORTIZ AGAMA Mg. ARQ. CÁRDENAS FLORES Mg. ARQ. CARRASCO ESCARCENA Mg. ARQ. MORALES DELGADO Mg. ARQ. PALACIOS ROJAS DRA. ARQ. ROSSI CHANG2022-1 Fuente: PDM Callao 2040Recuperado de PDM Callao 2040

CORONADOBARRIGACHAVEZCOTERA LA MARQUEZROSAPATRICIOPEREDAECHEVARRIAFLORESGARCÍALAPA RENTERÍARAMOSVALLEJOSVISOD.A. 5B Mg. ARQ. ORTIZ AGAMA Mg. ARQ. CÁRDENAS FLORES Mg. ARQ. CARRASCO ESCARCENA Mg. ARQ. MORALES DELGADO Mg. ARQ. PALACIOS ROJAS DRA. ARQ. ROSSI CHANG2022-1 TEMPERATURA MÁXIMA Y MÍNIMA PROMEDIO La correspondientes.percibidaspromediotemperaturaspunteadasdelgadasLasalosconpromediomínimaymáximatemperatura(línearoja)latemperatura(líneaazul)diarialasbandasdepercentiles25º75º,y10ºa90º.líneassonlas NIVELES DE COMODIDAD DE LA HUMEDAD El período más húmedo del año dura 4.1 meses, del 20 de diciembre al 23 de odíasFebrero,endíasEl22menosinsoportableopresivobochornoso,comodidadtiempoabril,yduranteeseelniveldeesoporloduranteel%deltiempo.mesconmásbochornososElCallaoescon23.9bochornosospeor. LosvientospredominantesvienendesdeelNoreste. ORIENTACIÓN SOLAR - ESFÉRICA ORIENTACIÓN SOLAR - CARTESIANA La luz solar provendrá principalmente del norte. Especialmente en los equinoccios y solsticio de invierno Recuperado de Meteoblue Recuperado de Meteoblue

RED METROPOLITANOTRANSPORTECENTRALIDADESPÚBLICOTRANSPORTELOGISTICOTRANSPORTECICLOVÍASDEYVIAL CORONADOBARRIGACHAVEZCOTERA LA MARQUEZROSAPATRICIOPEREDAECHEVARRIAFLORESGARCÍALAPA RENTERÍARAMOSVALLEJOSVISOD.A. 5B Mg. ARQ. ORTIZ AGAMA Mg. ARQ. CÁRDENAS FLORES Mg. ARQ. CARRASCO ESCARCENA Mg. ARQ. MORALES DELGADO Mg. ARQ. PALACIOS ROJAS DRA. ARQ. ROSSI CHANG2022-1 Permitirá optimizar las conexiones entre los distritos de las zonas norte y este con el resto del área metropolitana y funcionará como una alternativa urbana a la vía de Evitamiento. PROV. CALLAO LIMASUR ESTELIMA LIMACENTRO NORTELIMA AVENIDAFACUCETT PANAMERICANAAVENIDANORTE GAMBETTAAVENIDAAVENIDACANTA UNIVERSITARIAAVENIDACALLAO AVENIDAPANAMERICANA SUR DUAREZMORALESAVENIDAAVENIDALA MARINA TIPOLOGÍA DE POTENCIALIDADESVÍASEQUIPAMIENTO CULTURAL EQUIPAMIENTO DEPORTIVO EQUIPAMIENTO UNIVERSITARIO EQUIPAMIENTO COMERCIAL EQUIPAMIENTOTERMINALPESQUERO TERMINAL AEROPUERTOTERRESTRE Recuperado de PDM Callao 2040 Recuperado de PDM Callao 2040 Recuperado de PDM Callao 2040Recuperado de PDM Callao 2040 Recuperado de PDM Callao 2040 CONTEXTO | EQUIPAMIENTOS, ZONIFICACIÓN Y VIALIDAD

Av.ElmerFaucettAv.NestorGambetta Aeropuerto Int. Urb. 200 millas Área no (AU)Área(AUR)Área(ANOUR)UrbanizableUrbanizableUrbana Sector residencial Planta de tratamiento de aguas OTROSIndustriasAlmacenesIndustriasresidualesdeconsumoQuímicasUSOS ANOUR 35.5% del Callao (5758 HA) 15.5% del sector(91.4elegidoHA) 59.8% del Callao (9700 HA) 84.5% del sector(496elegidoHA) AUR 4.7% el Callao (768 HA)EQUIPAMIENTOSEq.deSaludEq.deEducaciónEq.deRecreaciónEq.ComercialEq.deSeguridadEq.Administrativo PROVINCIA C. DEL CALLAO SECTOR ELEGIDO (588 HA) Espacios Públicos CORONADOBARRIGACHAVEZCOTERA LA MARQUEZROSAPATRICIOPEREDAECHEVARRIAFLORESGARCÍALAPA RENTERÍARAMOSVALLEJOSVISOD.A. 5B Mg. ARQ. ORTIZ AGAMA Mg. ARQ. CÁRDENAS FLORES Mg. ARQ. CARRASCO ESCARCENA Mg. ARQ. MORALES DELGADO Mg. ARQ. PALACIOS ROJAS DRA. ARQ. ROSSI CHANG2022-1 Aeropuerto Int. Jorge Chavez EXISTENCIAS | EQUIPAMIENTOS - INDUSTRIAS - LOTES VACÍOS - OCUPACIÓN URBANA Lotes vacíos Equipamientosprimordialesausentes ANOUR

CORONADOBARRIGACHAVEZCOTERA LA MARQUEZROSAPATRICIOPEREDAECHEVARRIAFLORESGARCÍALAPA RENTERÍARAMOSVALLEJOSVISOD.A. 5B Mg. ARQ. ORTIZ AGAMA Mg. ARQ. CÁRDENAS FLORES Mg. ARQ. CARRASCO ESCARCENA Mg. ARQ. MORALES DELGADO Mg. ARQ. PALACIOS ROJAS DRA. ARQ. ROSSI CHANG2022-1 Terminal Pesquero del CentenarioProlongaciónCallao Av.Av.FaucetGambeta Avenida CalleGambetaNestor9 Fuente: Google EarthFuente: Google Earth Fuente: Google Earth Fuente: Google Earth Av.B Av. Gambeta Av. Gambeta Prolongación centenario EXISTENCIAS | USO DE SUELOS Y ELEMENTOS CONSTRUCTIVOS LEYENDAÁREASAEROPUERTOEDUCACIÓNRESIDENCIACOMERCIOINDUSTRIAVERDES Aeropuerto Int. Jorge Chavez Urb. 200 millas Fuente: Google Earth Fuente: Google Earth Fuente: Google Earth Av.CantaCallao

LANTANA CAMARA lantana-camara/Fuente:https://www.floresyplantas.net/laLANTANA CAMARA 2/15/nerium-oleander/Fuente:https://antropocene.it/es/2018/1

PINO DE COOK o-de-cook-araucaria-columnaris.htmlFuente:https://www.jardineriaon.com/pin ROSA CANINA nina/Fuente:https://plantasflores.com/rosa-ca

nocturnasActividadesActividadesActividadesextensión)ParquescrucesJardinerasgeneradasporvehicularesbarriales(pequeñadiurnasnocturnasdiurnasy LEYENDA

ÓVALO CANTOLAO PARQUEFAUCETTELMERPARQUE SAN PIO X JARDINES/ALAMEDAS Usos frecuentes: UsosDeportefrecuentes: Paseos Juego Paseos rápidos Desplazamiento CORONADOBARRIGACHAVEZCOTERA LA MARQUEZROSAPATRICIOPEREDAECHEVARRIAFLORESGARCÍALAPA RENTERÍARAMOSVALLEJOSVISOD.A. 5B Mg. ARQ. ORTIZ AGAMA Mg. ARQ. CÁRDENAS FLORES Mg. ARQ. CARRASCO ESCARCENA Mg. ARQ. MORALES DELGADO Mg. ARQ. PALACIOS ROJAS DRA. ARQ. ROSSI CHANG2022-1 EXISTENCIAS | DINÁMICAS GENERADAS, ESPACIO PÚBLICO, ÁREAS VERDES Y VEGETACIÓN VEGETACIÓN POACEAE om/hierbas-familia-poaceae-plantas/Fuente:https://definicionesyconceptos.c

RÍOCHILLÓN RÍORÍMACCorriente cargada de SEDIMENTOS AV.NÉSTORGAMBETTAAV.NÉSTORGAMBETTA PuertoCallaodel ÁREA INTERVENCIÓNDE Leyenda: RECORRIDO FLUVIAL NIVEL ALTO CONTAMINACIÓNDE MARINA NIVEL ALTO DE CONTAMINACIÓNÁREAATMOSFÉRICADEGRADADA POR ACTIVIDAD INDUSTRIAL PUNTOS CON MAYOR NIVEL DE PRESIÓN BOTADEROSONORAINFORMAL N CORONADOBARRIGACHAVEZCOTERA LA MARQUEZROSAPATRICIOPEREDAECHEVARRIAFLORESGARCÍALAPA RENTERÍARAMOSVALLEJOSVISOD.A. 5B Mg. ARQ. ORTIZ AGAMA Mg. ARQ. CÁRDENAS FLORES Mg. ARQ. CARRASCO ESCARCENA Mg. ARQ. MORALES DELGADO Mg. ARQ. PALACIOS ROJAS DRA. ARQ. ROSSI CHANG2022-1 ANÁLISIS DE RIESGO | TOPOGRAFÍA Y ANÁLISIS AMBIENTAL Recuperado de PDM Callao 2040 AGUA SUBTERRÁNEA Los niveles de agua subterránea en el área delimitada están en el rango de 2 a 20 m. RIESGO DE TSUNAMI RIESGO DE FLUJOS DE LODO RIESGO DE INUNDACIONES

PERTURBACIONES

Jose Galvez Puntos de delincuencia Sarita colonia Contaminación sonora Zonas expuestos Sarita coloniaTerminal Pesquero del callao Los ferroles Contaminación ambiental incendios Robo agravado Pandillaje vandalismo Nestor Gambeta Los ferroles Calle las vegas Punta de pescadores Av EmpresasA químicas Industrias de Zinc Zonas Vulnerables Toda la zona litoral con Losfarroles ProlongaciónCementerio calledesconocidaC.lasbrisasVíaPesqueraAv.OquendoC.6Av.ACalle 9OquendoAv.Av.Oquendo Polomix Concreto Zeta gas andino Planta FosfóricoÁcido 21 1 2 Callao hay delitos muy comunes ● presencia de drogas en el Primer puerto ● extorsión a la gente de construccion civil ● enfrentamiento de pandillas tres actores sobre la delincuencia ● la propia ● la extranjera ● la mixta En el 2021 Hubieron 265 asesinatos 215 fueron por modalidad sicariato abarca 7 distritos del callao Fuente: PNP Ministerio público Fuente:Propio Fuente:Propio 5 distritos más peligrosos del Callao Bellavista más crimen y violencia callao La MiLaCarmenCallaoPerlaCercadodelaLeguaPuntaPeru la ola de crímenes ha llevado a que la comunidad chalaca exija que se declare a la región en estado de emergencia Fuente: PNP Ministerio público FUENTE:CISMIDpara5distritosdelaProvinciadelCallao(Ventanilla,MiPerú,CarmendelaLeguaReynoso,BellavistayLaPerla)(CISMID,2015,2016,2017;CISMID&UNI,2011): 3 4

CORONADOBARRIGACHAVEZCOTERA LA MARQUEZROSAPATRICIOPEREDAECHEVARRIAFLORESGARCÍALAPA RENTERÍARAMOSVALLEJOSVISOD.A. 5B Mg. ARQ. ORTIZ AGAMA Mg. ARQ. CÁRDENAS FLORES Mg. ARQ. CARRASCO ESCARCENA Mg. ARQ. MORALES DELGADO Mg. ARQ. PALACIOS ROJAS DRA. ARQ. ROSSI CHANG2022-1 DE RIESGO | MAPADE RUIDOS PROVINCIA CONSTITUCIONALDELCALLAO Fuente: Dirección de Evaluación - OEFA

ANÁLISIS

Aeropuerto Jorge Chávez ZONA A ZONA B Área de intervención ZONA C JORGEAEROPUERTOCHÁVEZ JORGEAEROPUERTOCHÁVEZ Fuente: elaboración propia en base a Laboratorio de acústica de la universidad Católica del Perú Ampliación del aeropuerto Jorge Chávez Áreas recreativas y decirculaciónÁreadeintervención CORONADOBARRIGACHAVEZCOTERA LA MARQUEZROSAPATRICIOPEREDAECHEVARRIAFLORESGARCÍALAPA RENTERÍARAMOSVALLEJOSVISOD.A. 5B Mg. ARQ. ORTIZ AGAMA Mg. ARQ. CÁRDENAS FLORES Mg. ARQ. CARRASCO ESCARCENA Mg. ARQ. MORALES DELGADO Mg. ARQ. PALACIOS ROJAS DRA. ARQ. ROSSI CHANG2022-1 ANÁLISIS DE RIESGOS | NORMATIVA ACÚSTICA AEROPORTUARIA

JORGEAEROPUERTOCHÁVEZ JorgeAmpliacióndelaeropuertoChávezÁreadeintervención Áreadeinfluenciadirecta ÁreadeinfluenciaindirectaÁreadeinfluenciadirecta A B Zona residencial Zona industrial Estándares nacionales de ruido ambiental D. S. Nº 085-2003-PCM Zonas aplicaciónde Valores expresados en L AeqT Horario diurno Horario nocturno Zona Residencial 60 dB 50 dB Zona Comercial 70 dB 60 dB Zona Industrial 80 dB 70 dB Zonas aplicaciónde Horario diurno Horario nocturno 67,4 dB 67 dB 62,5 dB 55 dB A B Fuente: Elaboración propia en base al Estudio de impacto ambiental del AeropuertoInternacionalJorgeChávez Fuente: Elaboración propia en base al Estudio de impacto ambiental del Aeropuerto Internacional Jorge Chávez CORONADOBARRIGACHAVEZCOTERA LA MARQUEZROSAPATRICIOPEREDAECHEVARRIAFLORESGARCÍALAPA RENTERÍARAMOSVALLEJOSVISOD.A. 5B Mg. ARQ. ORTIZ AGAMA Mg. ARQ. CÁRDENAS FLORES Mg. ARQ. CARRASCO ESCARCENA Mg. ARQ. MORALES DELGADO Mg. ARQ. PALACIOS ROJAS DRA. ARQ. ROSSI CHANG2022-1 ANÁLISIS DE RIESGOS | NORMATIVA ACÚSTICA AEROPORTUARIA

LEYENDA SENDASVÍA BORDESVÍASVÍASPRINCIPALSECUNDARIASTERCIARIASOCÉANOPACÍFICOCERROLAREGLALOMASDECHILLÓN IMAGEN CIUDAD VITAL Y SEGURA DE LO PÚBLICO A LO PRIVADO Y ACCESIBILIDAD ESCALACIEGOSBORDESURBANA Y SUBESPACIOS ILUMINACIÓN Y SUBESPACIOS ANÁLISIS URBANO |

La mayor parte del tráfico generado en la avenida Néstor Gambeta es debido a los trailers que transportan los productos. Fuente: Google Earth

Ovalo Cantolao Fuente: Google Earth Parque del Ejército Fuente: Google Earth

Fuente: Google Earth Fuente: Google Earth Fuente: Google Earth Fuente: Google Earth

TransporteMarítimo

Urb. 200 millas Aeropuerto Int. Jorge Chavez Av.ElmerFaucett Av.NestorGambetta P P P P Av.B Santa PuenteCalleBeatriz9OquendoAvenidaA

VíaVíaVíaArteriallocalColectora P

LA PROBLEMÁTICA DEL TRANSPORTE EN EL CALLAO SE CARACTERIZA POR EL DESARROLLO DESIGUAL DE UNA DINÁMICA FRAGMENTADA. ESTO SE DEBE A LA INFRAESTRUCTURA VIAL QUE PRIORIZA LA CIRCULACIÓN DEL AUTO PRIVADO Y SISTEMAS DE MOVILIDAD DESARTICULADOS ENTRE SI. CiclovíasRedde

MetropolitanoCentralidadesTransporteTransporteLogísticoPúblicoySistemaVial

EstaciónParaderosVíaLitoralCostaAzulPortuaria

CORONADOBARRIGACHAVEZCOTERA LA MARQUEZROSAPATRICIOPEREDAECHEVARRIAFLORESGARCÍALAPA RENTERÍARAMOSVALLEJOSVISOD.A. 5B Mg. ARQ. ORTIZ AGAMA Mg. ARQ. CÁRDENAS FLORES Mg. ARQ. CARRASCO ESCARCENA Mg. ARQ. MORALES DELGADO Mg. ARQ. PALACIOS ROJAS DRA. ARQ. ROSSI CHANG2022-1 VIAL

ANÁLISIS URBANO | INFRAESTRUCTURA

Ante el crecimiento de la población en estos distritos, las condiciones de pobreza se concentran principalmente en esa zona también, a diferencia de el sur como en distritos de La Punta o Bellavista, que tienen un índice mínimo de pobreza. Por lo que la población de la zona norte se traslada al sur, para realizar una actividad económica como de comercio, manufactura y transporte. A pesar de esto, existe un 24.3% de jóvenes entre 15-29 que no estudia ni trabaja, lo que se puede relacionar con la tasa de víctimas de la delincuencia.

TASA MEDIA DE CRECIMIENTO: 1.27%, con tendencia a reducirse Ventanilla: mayor tasa de crecimiento. Medio alto y alto: 39% Medio Bajo y bajo: 31.2% DIVERSIDAD CULTURAL 71% Mestiza, 10.2% quechuas, 7.1% blancos y 4.8% afroperuanos 1.2. 3.4. 5. 6. 7. 8. 11. MAYOR POBLACIÓN: Callao Cercado CALLAOVENTANILLACERCADOESTRUCTURA ETARIA Y DE SEXO: La población de varones representa el 48.8%, mientras que la población de mujeres es del 51,2% A nivel distrital existen mínimas variaciones. DENSIDAD POBLACIONAL Distritos más densos: Carmen de la Legua Reynoso y La Perla. Menor densidad: Ventanilla POBLACIÓN FLOTANTE Aquellas personas que hacen uso temporal de servicios y equipamientos, pero no residen. 600 000 personas en la Provincia Constitucional del Callao MIGRACIÓN EMIGRACIÓNYINTERNA 7% de la migración total del país. TASA DE PROYECTADACRECIMIENTO Para el 2040, se estima una población de 1 millón 250 mil 751 TAMAÑO DEL HOGAR Predominan las viviendas particulares con 1 solo hogar. 9. SOCIOECONÓMICAESTRATIFICACIÓN El distrito del Callao coningresopresentaCercadoun43%deltotaldehogaresconmediopercápitayel30.8%ingresomedioalto CALLAO CERCADO 10. POBLACIÓN QUE NO ESTUDIA NI TRABAJA / NINI El 24.3% de jóvenes entre 15-29 años no estudia ni trabaja y se encuentra por encima de la media nacional y metropolitanas CORONADOBARRIGACHAVEZCOTERA LA MARQUEZROSAPATRICIOPEREDAECHEVARRIAFLORESGARCÍALAPA RENTERÍARAMOSVALLEJOSVISOD.A. 5B Mg. ARQ. ORTIZ AGAMA Mg. ARQ. CÁRDENAS FLORES Mg. ARQ. CARRASCO ESCARCENA Mg. ARQ. MORALES DELGADO Mg. ARQ. PALACIOS ROJAS DRA. ARQ. ROSSI CHANG2022-1 ANÁLISIS URBANO | SOCIODEMOGRAFÍA DISTRITO C A L L A O INCIDENCIADEPOBREZA(%) GRUPO 1 5.6 - 8.8 GRUPO 2 20.8 - 25.8 GRUPO 3 38.0 - 57.7

Fuente: INEI. Situación demográfica, económica y social de la provincia constitucional del Callao

CONCLUSIONES: La población de la Provincia del Callao fue aumentando al pasar de los años, sobre todo en los distritos de ventanilla y Mi Perú.

CORONADOBARRIGACHAVEZCOTERA LA MARQUEZROSAPATRICIOPEREDAECHEVARRIAFLORESGARCÍALAPA RENTERÍARAMOSVALLEJOSVISOD.A. 5B Mg. ARQ. ORTIZ AGAMA Mg. ARQ. CÁRDENAS FLORES Mg. ARQ. CARRASCO ESCARCENA Mg. ARQ. MORALES DELGADO Mg. ARQ. PALACIOS ROJAS DRA. ARQ. ROSSI CHANG2022-1 ANÁLISIS URBANO | CULTURA HUACA PARAÍSOEL CENTRO HISTÓRICO DEL CALLAO MURALLA OQUENDODE FUNDO OQUENDO HUACA ROSADAPAMPAS DE LOS PERROS SEÑORPROCESIÓNDELMAR VIRGEN CARMEN DE LA LEGUA REALFORTALEZAFELIPE

Uno de los méritos a mencionar, es que rescata las especies que no se utilizaba dentro del paisajismo del lugar, y que hizo a una escala proporcionada al tamaño del territorio general; en especial, se logra que haya un contacto con la gente, que forman parte del paisaje.

Como punto de partida Burle Marx desarrolla un análisis del lugar que pone de manifiesto la problemática de la Avenida Atlántica: se trata de la necesidad de espacio libre por parte de los habitantes del barrio de Copacabana y de los usuarios de playa

Fuente: Elaboración propia en base a Google Earth.

Burle Marx presentando el paseo de Copacabana en la Bienal de Venecia de 1970 Fuente: CALS, S.

Fuente: "Elproyectodelpaisaje".

CORONADOBARRIGACHAVEZCOTERA LA MARQUEZROSAPATRICIOPEREDAECHEVARRIAFLORESGARCÍALAPA RENTERÍARAMOSVALLEJOSVISOD.A. 5B Mg. ARQ. ORTIZ AGAMA Mg. ARQ. CÁRDENAS FLORES Mg. ARQ. CARRASCO ESCARCENA Mg. ARQ. MORALES DELGADO Mg. ARQ. PALACIOS ROJAS DRA. ARQ. ROSSI CHANG2022-1 URBANA Y VIALIDAD

El dibujo del pavimento de adoquines de piedra portuguesa, en colores negro, blanco y rojo, asume el protagonismo de la composición del paseo, en el que las plantaciones no se disponen en alineación, sino formando grupos aislados.

Javier Pérez Igualada av.Atlantica av.Atlantica Recorrido de lugar, ubicado en la av. Atlantica en Rio de Janeiro

UBICACIÓN: Río de Janeiro, Brasil AÑO: 1970 AUTOR: Roberto Burle Marx Se trata de una intervención de escala urbanística en el que, a lo largo de 4 kilómetros, prolongó un pavimento de formas sinuosas conformado por un mosaico de piezas de color blanco y negro, las cuales se agrupan para formar esas franjas curvas que le otorgan una sensación de pavimento.

Fuente: DIEDRICA

Burle Marx proyectaba a partir de la idea del individuo y en la utilidad y placer que las obras paisajísticas le confieren. Es decir, el paisaje no sólo es un objeto de contemplación, sino además, tiene una función social. Así, el arte para él es una herramienta muy cercana al ciudadano, algo que disfruta a diario.

REFERENTES | TRAMA

PASEO DE COPACABANA

1.Reutilización de terrenos y edificio 5.Acceso al espacio público compacto6.Estacionamientoflexible

CalletransporteEstaciónAutopista.depúblico.Principal.CalleLocal.

CIUDAD ESTOCOLMOAEROPORTUARIA

de

2 La

es

Áreas verdes - ubicación adyacentes al desarrolloUbicaciones(OficinasBloquesdensoabiertosytiendas)semi-centrales a las afueras de los centros y nodos de la ciudad Zonas de aparcamiento Ubicados en la periferia de la ciudad. Bloques de caja grande (Edificios industriales y almacenamiento más simple) Ubicados en la periferia de la ciudad. Tierra (Bosques,pradosrústica y campos) Ubicados a las afueras de la ciudad.

de las áreas metropolitanas de más rápido crecimiento de Europa con una comunidad empresarial diversificada y de éxito internacional. Fuente:Urban Design Strategy Airport City Stockholm. Airport City CORONADOBARRIGACHAVEZCOTERA LA MARQUEZROSAPATRICIOPEREDAECHEVARRIAFLORESGARCÍALAPA RENTERÍARAMOSVALLEJOSVISOD.A. 5B Mg. ARQ. ORTIZ AGAMA Mg. ARQ. CÁRDENAS FLORES Mg. ARQ. CARRASCO ESCARCENA Mg. ARQ. MORALES DELGADO Mg. ARQ. PALACIOS ROJAS DRA. ARQ. ROSSI CHANG2022-1 REFERENTES | TRAMA URBANA Y VIALIDAD Uppsala Stockholm Sigtuna Stockholm Rosersberg

Leyenda:

Los objetivos de la ciudad aeroportuaria son que sea sostenible, comercial, accesible, urbana y respetuosa con el medio ambiente. SKYPARKCITYCITY MÄRSTA BUSINESS AREA STOCKHOLMDRIVELLAB región Estocolmo una

7.Fachadas activas 8.Combinación de usos del suelo por ubicación 9.Forma compactaurbana 10.Sistemas eficientes en energía y recursos Por ello el proyecto se ubica junto al aeropuerto de Arlanda, el ferrocarril y la autopista entre Estocolmo y Uppsala ofrece una accesibilidad excepcional a la región, a Suecia y al mundo. 1 3 4

● Escueladeaviación:25.000m²

● Hotel:7200m²

THE STRIP

THE SHIP es activado por el programa y los usuarios usándolo como una herramienta para invitar a la naturaleza al contexto urbano.

AIRPORT HUB AVIATIONELEVATEDOASISLINKCAMPUS SQUARE ARTINSTALLATION THE CLUSTER SPORTSHOPPINGSTREETHALL WILDFOREST NUTARE ZONA ELEVADA FLIGHTEXHIBITIONINAVIATIONACADEMYMARKETHALLVIEWPOINT SOP-UPACTIVITIES

MUNDO FINLANDIA AVIAPOLIS Ubicación:Vantaa,Helsinki,Finlandia Diseño:CFMøllerArchitects Tamaño:Vivienda277.000m²

CALLES | LA VIDA ENTRE LOS EDIFICIOS CONTEXTO EXISTENTE THE STRIP Conecta la comunidad existente en el sur de la ciudad con el aeropuerto al norte. La conexión misma se convierte en el corazón del área central.

Mg. ARQ. ORTIZ AGAMA Mg. ARQ. CÁRDENAS FLORES Mg. ARQ. CARRASCO ESCARCENA Mg. ARQ. MORALES DELGADO Mg. ARQ. PALACIOS ROJAS DRA. ARQ. ROSSI CHANG2022-1 URBANA Y VIALIDAD AVIAPOLIS URBAN BLOCKS Mandaworks and MASSlab AVIAPOLIS HELSINKI

● Usomixto:98.000m² El nombre es una marca de la región, promoviendo oficinas, industriales, comerciales y urbanización en el municipio y toda la comarca de 42 km2 alrededor del aeropuerto.Este aeropuerto es el único aeropuerto internacional de Finlandia y el principal centro de tránsito en el norte de Europa. "Unaciudadaeroportuariaamigableparacaminarenlanaturaleza".

● Oficinas:232.000m²

REFERENTES | TRAMA

CORONADOBARRIGACHAVEZCOTERA LA MARQUEZROSAPATRICIOPEREDAECHEVARRIAFLORESGARCÍALAPA RENTERÍARAMOSVALLEJOSVISOD.A. 5B

● Edificiopúblico:48.000m²

1.2. IDENTIFICACIÓN DEL TERRENO

COTERACHAVEZ PATRICIOPEREDAGARCÍALAPA VALLEJOSVISOMg. ARQ. CÁRDENAS FLORES Mg. ARQ. CARRASCO ESCARCENA Mg. ARQ. PALACIOS ROJAS DRA. ARQ. ROSSI CHANG SECTOR 1 OQUENDO NORTE SECTOR 2 OQUENDO SUR Vías conectoras principales Av.’s conectoras al AVM Alamedas - Malecones Eq. de Salud Eq. de Educación Eq. EspaciosComercialPúblicosLotesvacíos Aeropuerto Int. Jorge Chavez Residencias de Alta Densidad GambetaAv. Av.Faucett Av. Alameda Central Área no TerminalÁrea(ANOUR)UrbanizableUrbana(AU)pesquero Estándares nacionales de ruido ambiental D. S. Nº 085-2003-PCM Zonas aplicaciónde Valores expresados en L AeqT Horario diurno Horario nocturno Zona Residencial 60 dB 50 dB Zona Comercial 70 dB 60 dB Zona Industrial 80 dB 70 dB Zonas aplicaciónde Horario diurno Horario nocturno 67,4 dB 67 dB 62,5 dB 55 dB A BB A C.6Calle 9 Puntos de delincuencia Contaminación sonora Zonas expuestos Zonas MargenMargenindustriasPerturbaciónvulnerablesdelaszonaBzonaA DISTRITO C A L L A O INCIDENCIADEPOBREZA(%) GRUPO 1 5.6 - 8.8 GRUPO 2 20.8 - 25.8 GRUPO 3 38.0 - 57.7

COTERACHAVEZ PATRICIOPEREDAGARCÍALAPA VALLEJOSVISOD.A. 5B Mg. ARQ. CÁRDENAS FLORES Mg. ARQ. CARRASCO ESCARCENA Mg. ARQ. PALACIOS ROJAS DRA. ARQ. ROSSI CHANG2022-1 PROPUESTA | NUEVO HORIZONTE CHALACO SECTOR 1 OQUENDO NORTE SECTOR 2 OQUENDO SUR AeropuertoJorgeChavez Av.GambetaAv.FaucettAv. Alameda Central RENOVACIÓNCITERESIDENCIAS DE DENSIDAD MEDIAESTACIÓNINTERMODALPROLONGACIÓNAV.FAUCETTAV. COSTA AZULPROYECTOS DEL PDM CALLAO 2040 MUSEO PESCADORDEL MUELLE TURÍSTICO + ESTACIÓN TRANS. MARÍTIMO PROYECTOS NUEVO COMERCIALCENTROCHALACOHORIZONTE+OFICINAS NUEVO ASTILLERO EDIFICIO LOGÍSTICASOFICINASDE MIRADOR DE AVIONESAERONÁUTICOMUSEO EDIFICIO LOGÍSTICASOFICINASDE SECTOR 1 OQUENDO NORTE SECTOR 2 OQUENDO SUR SECTOR 3 CIUDAD PESQUERA NORTE SECTOR 4 CIUDAD PESQUERA SUR

PROPUESTA | IMAGEN OBJETIVO

1.3. ANÁLISIS HISTÓRICO

1671: Callao es reconocida como ciudad.

1866: Combate de 2 de mayo, contra la escuadra española.

1940: Terremoto de graves efectos en el 1960Callao.:Inauguración del Aeropuerto Jorge 1989Chávez:Se discute su declaración como región autónoma.

1500-400 A.C: Horizonte Temprano: aldea de 400pescadores.A.C-8OO D.C: Intermedio Temprano 1: ciudad de pampa culebras. 800-1200 D.C: Horizonte Medio: abandono de las ciudades costeras. 1200-1500 D.C: Ciudad amurallada Oquendo 1470-1535 D.C: Se establecieron en la costa del Callao, Cebillay y Chuquitanta con tambos y centros administrativos.

CRONOLOGÍA BÁSICA 2000-1500 A.C: Formativo: "El Paraíso" asentamiento con rasgos urbanos.

Después del gran sismo de 1746 el Callao se consolida urbanísticamente como ciudad puerto, hasta la década de 1820 y 1830 el Callao se siguió configurando como una ciudad puerto militar 1747 1855 1960 17461654 1866 2022 1940 A la llegada de los españoles y con la fundación de Lima no hubo mejor idea que utilizar las inmediaciones del Callao como puerto, por esa razón es conocido como el puerto de Lima. El Callao fue fundada en 1537, 2 años después de Lima El primer muelle del Callao del que se tiene conocimiento fue construido bajo el mandato del Virrey Conde de la Monclova en 1654, cuya estructura estaba edificada sobre un malecón de rocas (muelle de rocas). En 1694 los viajeros señalaban la existencia de un excelente muelle de piedra que ocupaba el sitio denominado "Puerta de la Marina del Callao”, que se había construido con piedras extraídas de la isla de San Lorenzo y de la fortaleza prehispánica del Huarco en Cañete.

1534: El Callao es ya puerto de Jauja, por entonces capital del Virreinato.

616.03 ha 1.679.53321.231Población:habha 2.840.70443.413Población:habha 9.392.61876.877Población:habha 11.303.97994.494Población:habha

1746: Un fuerte maremoto arrasó totalmente la ciudad y el puerto.

1747:Se inicia la construcción del Real Felipe.

1836: Fundación de la provincia litoral del 1840:CallaoPrimera línea de vapores, la Pacific Steam Navigation Company, empresa inglesa con sede base en el Callao.

1713

1639-47:Segunda fortificación

1940 1970 1995 2010 2020 EVOLUCIÓN OCUPACIÓNDE Callao, Lima. Perú Ciudad portuario y aeroportuario más importante del Perú. Actualmente cuenta con aproximadamente 1M de habitantes en sus 7 Limitandodistritos.con el Océano Pacífico, se creó y se utilizó como puerto para llevar los materiales a la corona española.

1855: Inauguración del Ferrocarril Lima-Callao

1579: Francis Drake, corsario inglés ataca el 1635:Callao.Primera fortificación.

1879: Guerra del Pacífico entre Perú-Bolivia y 1890Chile.:Culminación del Ferrocarril Callao-Lima-La Oroya, vinculando así el puerto con las ricas minas de la sierra central.

1.4. ANÁLISIS URBANO SENSIBLE

OVALO CANTOLAO Vista de las avenidas más importantes para acceder a nestor gambeta por medio de faucett PARQUE SANTA BEATRIZ 2 Vista del parque , se encuentra en un conjunto de residencial encerrada por indutrialesempresas

ANÁLISIS DE MOVIMIENTO - QUIETUD Y ESPACIOS PÚBLICOS

LEYENDACrecimiento de comercio informal al rededor del mercado mayorista del terminal pesquero ESPACIOS PÚBLICOS

1 2 3 1 2 3 El parque del ovalo cantolao está muy desolada en equipamientos y aislada , debido a que las vías encierran el parque. Es un hito importante para dar inicio a la propuesta Hay pocos espacios de are verde debido a la losa deportiva y a la parroquia , QUIETUD Vista de las industriasrodeadasurbanizacionesde

Jardineras generadas por cruces vehiculares Parques

ActividadesActividades(pequeñabarrialesextensión)diurnasnocturnasActividadesdiurnasynocturnas

QUIETUD Vista de las playas frente a las industrias MOVIMIENTO Vista del mercado mayorista del terminal pesquero

PARQUE SANTA BEATRIZ Parque principal del conjunto residencial que incluye la parroquia , y una losa deportiva . tiene un equipamientotratamientobuenyurbano , es accesible para todos los residentes

CORONADOBARRIGACHAVEZCOTERA LA MARQUEZROSAPATRICIOPEREDAECHEVARRIAFLORESGARCÍALAPA RENTERÍARAMOSVALLEJOSVISOD.A. 5B Mg. ARQ. ORTIZ AGAMA Mg. ARQ. CÁRDENAS FLORES Mg. ARQ. CARRASCO ESCARCENA Mg. ARQ. MORALES DELGADO Mg. ARQ. PALACIOS ROJAS DRA. ARQ. ROSSI CHANG2022-1

pesqueroTerminal JorgeinternacionalAeropuertoChavez CORONADOBARRIGACHAVEZCOTERA LA MARQUEZROSAPATRICIOPEREDAECHEVARRIAFLORESGARCÍALAPA RENTERÍARAMOSVALLEJOSVISOD.A. 5B Mg. ARQ. ORTIZ AGAMA Mg. ARQ. CÁRDENAS FLORES Mg. ARQ. CARRASCO ESCARCENA Mg. ARQ. MORALES DELGADO Mg. ARQ. PALACIOS ROJAS DRA. ARQ. ROSSI CHANG2022-1 ANÁLISIS SENSORIAL ANÁLISIS TOPOLÓGICO 79.3 80.1 Punto con mayor nivel de presión sonora dBA LEYENDA Dirección de predominantesvientos ASOLEAMIENTO - SOLSTICIOS COLORES Y TEXTURAS Aeropuerto Jorge Chávez ZONA A ZONA B ZONA C VIENTOS ZONIFICACIÓN DEL RUIDO SONIDO 1 2 1 2 VERANO - 3PM INVIERNO - 3PM TantosCONCLUSIÓN:lasvistas y paisajes que ofrece el lugar, como también el ruido de algunas zonas, se puede deducir que se percibe un espacio horizontal con colores terroso, que da una sensación de inseguridad y carencia de vida.

● Percepción visual: Sereno. Silencioso. Desolado y contaminado.

● Estado: Limpio ● Perfil paisajístico netamente horizontal

● La percepción es un paisaje ruidoso (aviones, vehículos), aunque una moderada presencia de personas.

● Se percibe como un área privada con poca dinámica social (muros ciegos). Moderada presencia de vehículos.

● Percepción visual: Frío, desolado, polvoriento, peligroso.

EL LUGAR QUE PERTENECE AL MAR ● El componente principal es el mar que compite directamente con los elementos construidos.

● El paisaje tiene una mayor predominancia del flujo vehicular donde la cantidad de vehículos impiden la visual de un lado al otro de la carretera. (borde)

● Se percibe como un área privada donde la presencia de visitantes pareciera esporádica.

● Posesión del espacio por actividades mercantiles fuera del Terminal ● Constante flujo de personas

● Dinámicas sociales frecuentes dan vida y percepción de seguridad al lugar

● Potencial zona de actos delictivos. ● Existe una percepción de especialmenteinseguridad en la noche 1 2 3 45 6

EL LITORAL AV. GAMBETTA

● Perfil paisajístico horizontal donde el asfalto se apropia del suelo para el uso vehicular.

● Los muros ciegos de más de 6 metros de las industrias generan una percepción de inseguridad en la zona además de poca presencia de visitantes

URBANIZACIÓN SANTA BEATRIZ

● Percepción dinámico.Desordenado,visual:alegre,

CORONADOBARRIGACHAVEZCOTERA LA MARQUEZROSAPATRICIOPEREDAECHEVARRIAFLORESGARCÍALAPA RENTERÍARAMOSVALLEJOSVISOD.A. 5B Mg. ARQ. ORTIZ AGAMA Mg. ARQ. CÁRDENAS FLORES Mg. ARQ. CARRASCO ESCARCENA Mg. ARQ. MORALES DELGADO Mg. ARQ. PALACIOS ROJAS DRA. ARQ. ROSSI CHANG2022-1

ANÁLISIS SENSORIAL | Paisaje ANÁLISIS TOPOLÓGICO

● Los deExisteconstruidossonprincipalescomponentesenelpaisajeloselementos(viviendas).mayorpresenciavegetación.

● Estado: Limpio y cuidado; sentido de apropiación.

1 2 34 5 6

● Percepción visual: Tranquilo, aislado, acogedor

● El perfil está compuesto por las industrias ● Perfil horizontal.Predominantementepaisajístico:

● Percepción inseguro,Imponente,visual:contaminado,caótico.

TERMINAL PESQUERO

● No hay interior-exterior.relación

CALLES ENTRE INDUSTRIASPERIFERIAS DE URB. SANTA BEATRIZ

● Al mirar por la ventana, el paisaje exterior de los habitantes se ve perjudicado.

ZONAS AGENTESVULNERABLESCONTAMINANTES

En los últimos dos años se incrementó en 10% los niveles de ruido en Lima y Callao, principalmente por la congestión vehicular que se registra a diario en horas punta La perturbación de la contaminación sonora por medio de los carros y aviones , en las avenidas nestor ,gambeta,foucett y otros se muestra en el mapa segun la oea un alto nivel de decibeles entre 70 y 80 .

AvPlantaPolomixIndustriasquímicasdeZincConcretoZetagasandinoÁcidoFosfóricoAPuntadepescadores

CONTAMINACIÓNAMBIENTAL Se ve reflejado con mayor incidencia en la avenida Gambetta y la presencia de fábricas, que son las responsables de las emisiones de gases y partículas contaminantes para el medio ambiente

Los puntos de delincuencia , donde en la zona hay influencia de sarita colonia , José Gálvez en nestor gambeta también se genera ciertos puntos de delincuencia que perturban la tranquilidad de las personas a nivel global según el PNPYministerio público destacó los delitos más comunes y 5 distritos más peligrosos Corriente costera peruana tráfico en la avenida Néstor Gambeta

PELIGROS

CONTAMINACIÓN SONORA

Losfarroles ProlongaciónCementerio calledesconocidaC.lasbrisasVíaPesqueraAv.OquendoC.6Av.ACalle 9OquendoAv.Av.Oquendo 1 2 Fuente:Propio CORONADOBARRIGACHAVEZCOTERA LA MARQUEZROSAPATRICIOPEREDAECHEVARRIAFLORESGARCÍALAPA RENTERÍARAMOSVALLEJOSVISOD.A. 5B Mg. ARQ. ORTIZ AGAMA Mg. ARQ. CÁRDENAS FLORES Mg. ARQ. CARRASCO ESCARCENA Mg. ARQ. MORALES DELGADO Mg. ARQ. PALACIOS ROJAS DRA. ARQ. ROSSI CHANG2022-1 PELIGROS CONTAMINACIÓNHIDROLÓGICOSSONORAPUNTOSDEDELINCUENCIA Pandillaje vandalismo Zona de inundaciones FUENTE:CISMIDpara5distritosdelaProvinciadelCallao(Ventanilla,MiPerú,CarmendelaLeguaReynoso,BellavistayLaPerla)(CISMID,2015,2016,2017;CISMID&UNI,2011): PELIGROS SÍSMICOS ZonaAfectadas por actividad Contaminación ambiental Empresasincendios

La región del Callao y Lima Metropolitana están asentadas en una zona con alta probabilidad de exposición ante la ocurrencia de sismos y maremotos. Una de las mayores catástrofes ocurrió el 28 de octubre de 1746, la ciudad de Lima y el Callao

MAPA DE PELIGROS

CORONADOBARRIGACHAVEZCOTERA LA MARQUEZROSAPATRICIOPEREDAECHEVARRIAFLORESGARCÍALAPA RENTERÍARAMOSVALLEJOSVISOD.A. 5B Mg. ARQ. ORTIZ AGAMA Mg. ARQ. CÁRDENAS FLORES Mg. ARQ. CARRASCO ESCARCENA Mg. ARQ. MORALES DELGADO Mg. ARQ. PALACIOS ROJAS DRA. ARQ. ROSSI CHANG2022-1 ZONAS VERDES ANÁLISIS TOPOLÓGICO PARQUE DE SANTA BEATRIZ 1 PARQUE DE SANTA BEATRIZ 21 1 2 2 AB VISTA A VISTA B A B VISTA A VISTA B realizanunaElparqueseencuentraenbuenestado.Poseelosadeportivaenrejadaytambién,seactividadescomunitariasyreligiosas. ESPECIES DE FLORA árbolesElparqueseencuentraenbuenestadoconjóvenes,diversosarbustosyflores. HUARANGUAY Fuente: AQP verde urbano FICUS BENJAMINA Fuente: AGROMÁTICA MEIJO Fuente: GOOGLE EARTH SONCHUS OLERACEUS Fuente: Botanical MOLLE COSTEÑO Fuente: Villagrass LLANTÉN MAYOR Fuente: Horticultor LANTANA CAMARA Fuente: floresyplantas ALBAHACA SILVESTRE Fuente: floresyplantas ROSA CANINA Fuente: floresyplantas La vegetación existente se caracteriza en general por ser: ● Adaptable a todo tipo de terreno ● No necesitan mucha agua ● Planta de origen nativas ● No necesitan mucho mantenimiento (poda) ÁREA VERDE POR HABITANTE (m²/hab.) 2.5 m² 4.1 m² 9 m² 2013 2020 METAAconsejado por la OMS CONCLUSIONES A pesar que se está aumentando el porcentaje de área verde por habitante, se tiene un limitado equipamiento para la recreación pública, el esparcimiento y cobertura vegetal.

ANÁLISIS ETNOGRÁFICO (EMIC + ETIC)

ÁreaParquesEducaciónIglesiasComeriodeestudio

Existe un porcentaje casi homogéneo entre los rangos de 14-64 años, que es el predominante. Se considera que estas personas informaltantoindustriasunaEsmediopredominantevidadinamismo,Debidoenergíapresentanpuesdinamismoaportanalterritorio,sonlasquemayoraesteelestilodedelsectoreselyelmedioalto.porestoqueexistealtaactividaddelasyelcomercio,elformalcomoel

Aquellas personas que hacen uso temporal de servicios y equipamientos, pero no histórico,centradosPrincipalmenteresiden.encallaoLaPuntao el principalmenteUbicadosaeropuerto en los alrededores de las zonas Principalmenteurbanizaciones.industrial,mayorLaindustriales.mayoríapresentanlejaníaalazonaentrelasubicados en la zona PrincipalmenteGambetaparaderosindustrial,delaAv.ubicados en la zona Gambetaparaderosindustrial,delaAv.

CORONADOBARRIGACHAVEZCOTERA LA MARQUEZROSAPATRICIOPEREDAECHEVARRIAFLORESGARCÍALAPA RENTERÍARAMOSVALLEJOSVISOD.A. 5B Mg. ARQ. ORTIZ AGAMA Mg. ARQ. CÁRDENAS FLORES Mg. ARQ. CARRASCO ESCARCENA Mg. ARQ. MORALES DELGADO Mg. ARQ. PALACIOS ROJAS DRA. ARQ. ROSSI CHANG2022-1

Barcos y desechos de las industrias en zonas públicas y alrededores. Caos en la avenida por la entrada y salida de camiones de carga. Asimismo, el bloqueo de la vista de la huaca por los Presenciacontainers.de comercio informal en zonas exteriores al área residencial, lo que perturba la vida cotidiana.

REGISTRO DEL ENTORNO POBLACIÓN Y UTILIZACIÓN DEL SUELO

ESTILORANGOLEYENDAETARIODEVIDA

FUENTE: INEI. Elaboración propia FUENTE: Google Earth FUENTE: Google Earth FUENTE: Google Earth

CONCLUSIONES

A pesar de coexistir la zona urbana con la zona industrial. no existe una relación entre ellas, pues aleja a los habitantes de la historia y alma del lugar, pues tampoco permite el acceso físico y ni visual hacia el balneario.

HISTORIA: El Callao es una zona que nació debido a la creación del “Puerto del Callao” con la llegada de los españoles. Después de siglos de crecimiento, después del gran sismo en 1746 se consolida

DELINCUENCIACONT. SALIDASONORADELMAR CONT. AMBIENTAL

EDIFICACIONES: El área se caracteriza por presentar construcciones de baja altura para usos de vivienda e industria. Siendo características del primero poseer de uno a 3 pisos, mientras que las fábricas y almacenes se destacan por encerrarse entre amplios muros

ESPACIOS URBANOS: como un sector industrial, donde la mayor actividad está ligado a las zonas de comercio y alrededores del Terminal Pesquero, mientras que lugares de menor actividad son las zonas de industrias, las urbanizaciones y el propio litoral.

ÁREAS VERDES: Se identifican 2 parques barriales que se encuentran en buen estado. La vegetación es de especies nativas, de bajo recurso hídrico y fácil mantenimiento.

El lugar de estudio se encuentra dentro de la zona industrial del Callao. Esto conlleva a que presente ciertas características tanto en la forma de vida de los habitantes como en la imagen urbana del lugar.

2022 SENSACIÓN: Se percibe un espacio horizontal con colores terrosos y texturas entre lisas, rugosas y metálicas. Esto conlleva a dar un paisaje que carece de vida, y por lo tanto, da una sensación de inseguridad. actividades generando un gran dinamismo. PELIGROS: Los principales peligros del lugar se identificaron como los siguientes: Contaminaciòn sonora, delincuencia, contaminación ambiental y riesgo de salida del mar.

SÍNTESIS

CORONADOBARRIGACHAVEZCOTERA LA MARQUEZROSAPATRICIOPEREDAECHEVARRIAFLORESGARCÍALAPA RENTERÍARAMOSVALLEJOSVISOD.A. 5B Mg. ARQ. ORTIZ AGAMA Mg. ARQ. CÁRDENAS FLORES Mg. ARQ. CARRASCO ESCARCENA Mg. ARQ. MORALES DELGADO Mg. ARQ. PALACIOS ROJAS DRA. ARQ. ROSSI CHANG2022-1

OPORTUNIDADES AMENAZAS Prolongación de la calle Los Ferroles: sin salida al mar Cercanía al aeropuerto Jorge Cercanía al terminal pesquero D● Elevada percepción de inseguridad. ● Pocas áreas verdes. Vías vehiculares de transporte de Calles poco concurridas debido a con poca iluminación. Prolongación de la calle Los Ferroles: sin salida al mar Calle Los Ferroles: grandes muros ciegos y poca iluminación Tsunami Contaminación del paisaje marino Playas abiertas al público Comercio en el camino a las playas Atardeceres Mayores oportunidades de comercio Delincuencia zonaAccesibilidadcomplejaalaresidencial

2. APROXIMACIÓN URBANÍSTICA

2.1. PRIMERA APROXIMACIÓN

EMPLAZAMIENTO

UBICACIÓN Y EMPLAZAMIENTO

CORONADOBARRIGACHAVEZCOTERA LA MARQUEZROSAPATRICIOPEREDAECHEVARRIAFLORESGARCÍALAPA RENTERÍARAMOSVALLEJOSVISOMg. ARQ. MORALES DELGADO Mg. ARQ. PALACIOS ROJAS DRA. ARQ. ROSSI CHANG

El principal puerto del Perú es el Callao, este funciona como vínculo con los demás puertos de sudamérica y el mundo. El área de intervención se encuentra vinculada con Lima

Pero… ¿Dónde estamos en realidad? Pues en la esencia menos conocida del Callao, el lugar que activa en gran parte a Lima, el lugar del trabajo y el desarrollo, y que saca cara por nosotros, el Callao que produce, almacena y alimenta. Donde la isla protege a su gente de las aves de acero y el pescador que nos ofrece el fruto de su día a día, frescos y jugosos, fritos y cocinados debe convivir con las industrias ajenas y egoístas, que esconden su vegetación, y te responden frías como el metal y apáticas como sus frentes. Donde el peatón no tiene rumbo y las máquinas arrancan a la producción sobre el polvo. Pero, ¿es en realidad esta la esencia del Callao? Dónde queda la fiesta? La rumba y la salsa? El deporte y la juerga? La alegría y la historia? Qué pasó? Donde fueron?... Se perdieron... Se separaron y los escondieron, Las grandes barreras colocadas sobre este lugar quebraron la esencia, convirtiendo a La Punta y cercanías en el paraíso y único foco pero los chalacos no se rinden ante nada y salen adelante, y luchan y crecen y nunca pierden la

51 2 4 3 GENIUS LOCI 4 5

LEYENDA:AEROPUERTOÁREARECREATIVAÁREAVERDECOMERCIOEDUCACIÓNEQUIPAMIENTOINDUSTRIAPUERTOARTESANALRELIGIOSORESIDENCIALDENSIDAD BAJA RESIDENCIAL DENSIDAD MEDIA SALUD

VIALIDAD CORONADOBARRIGACHAVEZCOTERA LA MARQUEZROSAPATRICIOPEREDAECHEVARRIAFLORESGARCÍALAPA RENTERÍARAMOSVALLEJOSVISOD.A. 5B Mg. ARQ. ORTIZ AGAMA Mg. ARQ. CÁRDENAS FLORES Mg. ARQ. CARRASCO ESCARCENA Mg. ARQ. MORALES DELGADO Mg. ARQ. PALACIOS ROJAS DRA. ARQ. ROSSI CHANG2022-1 AV.ELMERFAUCETT AV. COSTA AZUL AAV.CALIFORNIAAV.B CALLAOAV.CANTA NODO GENERADO POR LAS AVENIDAS CARLOS IZAGUIRRE Y ELMER FAUCETT, CONVERGIENDO EN EL NUEVO TERMINAL PESQUERO Y LA ESTACIÓN DE FERRYS, QUE CONECTARÍA CON EL LITORAL TURÍSTICO, EL CENTRO CULTURAL Y EL PARQUE INDUSTRIAL. AV. OQUENDO AV.CARLOSIZAGUIRRE IZAGUIRRECARLOSAV. AVENIDAS PRINCIPALES AVENIDAS ALAMEDASSECUNDARIAS VÍA VEHICULAR VÍA PEATONAL PRINCIPAL VÍAS SECUNDARIASPEATONALES FUERA DEL SECTOR DENTRO DEL SECTOR B C A CBAAV. NESTOR GAMBETTA AV.BERTELLO AV. COSTA AZUL

La zona residencial existente se tomará como base para generar un manzaneo que integre las residencias ya existentes.

TIPOLOGÍA MORFOLÓGICA

CORONADOBARRIGACHAVEZCOTERA LA MARQUEZROSAPATRICIOPEREDAECHEVARRIAFLORESGARCÍALAPA RENTERÍARAMOSVALLEJOSVISO

Mg. ARQ. ORTIZ AGAMA Mg. ARQ. CÁRDENAS FLORES Mg. ARQ. CARRASCO ESCARCENA Mg. ARQ. MORALES DELGADO Mg. ARQ. PALACIOS ROJAS DRA. ARQ. ROSSI CHANG

INDUSTRIAS + MUROS CIEGOS Para evitar que las industrias sean rodeadas por muros ciegos se plantea que estas sean rodeadas de un Colchón dinámico conformado por edificios de vivienda con comercio en la primera planta o edificios de netamente de comercios. El límite tendra que sea tratado acústicamente para mayor confort. Se realizarán las estrategias para generar áreas verdes y recreativas adicionales en la Urb. Sta. Beatriz y se generará manzaneo en toda el área bajo la misma lógica generativa. ADICIÓN

LA PUNTA MORFOLOGÍAS CHALACAS URB. SANTA BEATRIZ TIPOLOGÍA MORFOLÓGICA SUPERMANZANA BASE ABSTRACCIÓN REPETICIÓN

CORONADOBARRIGACHAVEZCOTERA LA MARQUEZROSAPATRICIOPEREDAECHEVARRIAFLORESGARCÍALAPA RENTERÍARAMOSVALLEJOSVISOD.A. 5B Mg. ARQ. ORTIZ AGAMA Mg. ARQ. CÁRDENAS FLORES Mg. ARQ. CARRASCO ESCARCENA Mg. ARQ. MORALES DELGADO Mg. ARQ. PALACIOS ROJAS DRA. ARQ. ROSSI CHANG2022-1 ZONA1 DESARROLLO ZONA 1

DESARROLLO ZONA 1 CORONADOBARRIGACHAVEZCOTERA LA MARQUEZROSAPATRICIOPEREDAECHEVARRIAFLORESGARCÍALAPA RENTERÍARAMOSVALLEJOSVISOD.A. 5B Mg. ARQ. ORTIZ AGAMA Mg. ARQ. CÁRDENAS FLORES Mg. ARQ. CARRASCO ESCARCENA Mg. ARQ. MORALES DELGADO Mg. ARQ. PALACIOS ROJAS DRA. ARQ. ROSSI CHANG2022-1 LEYENDA:ÁREAVERDEEQUIPAMIENTO PÚBLICO VIVIENDA(DEPORTIVO)DE DENSIDAD MEDIA VIVIENDAALTADE DENSIDAD BAJA

DESARROLLO ZONA 1 CORONADOBARRIGACHAVEZCOTERA LA MARQUEZROSAPATRICIOPEREDAECHEVARRIAFLORESGARCÍALAPA RENTERÍARAMOSVALLEJOSVISOD.A. 5B Mg. ARQ. ORTIZ AGAMA Mg. ARQ. CÁRDENAS FLORES Mg. ARQ. CARRASCO ESCARCENA Mg. ARQ. MORALES DELGADO Mg. ARQ. PALACIOS ROJAS DRA. ARQ. ROSSI CHANG2022-1 LEYENDA:ÁREAVERDEEQUIPAMIENTO PÚBLICO VIVIENDA(DEPORTIVO)DE DENSIDAD MEDIA VIVIENDAALTADE DENSIDAD BAJA ACTIVIDADES CONTEMPLADAS:DEPORTIVAS ATLETISMONATACIÓNFÚTBOL GIMNASIABASKETVOLEY

DESARROLLO ZONA 1 CORONADOBARRIGACHAVEZCOTERA LA MARQUEZROSAPATRICIOPEREDAECHEVARRIAFLORESGARCÍALAPA RENTERÍARAMOSVALLEJOSVISOD.A. 5B Mg. ARQ. ORTIZ AGAMA Mg. ARQ. CÁRDENAS FLORES Mg. ARQ. CARRASCO ESCARCENA Mg. ARQ. MORALES DELGADO Mg. ARQ. PALACIOS ROJAS DRA. ARQ. ROSSI CHANG2022-1 LEYENDA:ÁREAVERDEEQUIPAMIENTO PÚBLICO VIVIENDA(DEPORTIVO)DE DENSIDAD MEDIA VIVIENDAALTADE DENSIDAD BAJA

DESARROLLO ZONA 3 CORONADOBARRIGACHAVEZCOTERA LA MARQUEZROSAPATRICIOPEREDAECHEVARRIAFLORESGARCÍALAPA RENTERÍARAMOSVALLEJOSVISOD.A. 5B Mg. ARQ. ORTIZ AGAMA Mg. ARQ. CÁRDENAS FLORES Mg. ARQ. CARRASCO ESCARCENA Mg. ARQ. MORALES DELGADO Mg. ARQ. PALACIOS ROJAS DRA. ARQ. ROSSI CHANG2022-1 LEYENDA:INDUSTRIAÁREAVERDEFERRISALAMEDAPEATONALPESQUERORESTAURANTESN

DESARROLLO ZONA 3 CORONADOBARRIGACHAVEZCOTERA LA MARQUEZROSAPATRICIOPEREDAECHEVARRIAFLORESGARCÍALAPA RENTERÍARAMOSVALLEJOSVISOD.A. 5B Mg. ARQ. ORTIZ AGAMA Mg. ARQ. CÁRDENAS FLORES Mg. ARQ. CARRASCO ESCARCENA Mg. ARQ. MORALES DELGADO Mg. ARQ. PALACIOS ROJAS DRA. ARQ. ROSSI CHANG2022-1 CORTE FUGADO VISTAPEATONAL 60m 20m 40m10m LUGAR COMERCIAL YTURÍSTICO

DESARROLLO ZONA 3 BARRIGACHAVEZCOTERA MARQUEZPATRICIOPEREDAGARCÍAFLORESLAPA RENTERÍAVALLEJOSVISOD.A. 5B Mg. ARQ. ORTIZ AGAMA Mg. ARQ. CÁRDENAS FLORES Mg. ARQ. CARRASCO ESCARCENA Mg. ARQ. MORALES DELGADO Mg. ARQ. PALACIOS ROJAS DRA. ARQ. ROSSI CHANG2022-1 VISTAPEATONAL 60m 20m 40m10mLUGAR COMERCIALY TURÍSTICO

CORONADOBARRIGACHAVEZCOTERA LA MARQUEZROSAPATRICIOPEREDAECHEVARRIAFLORESGARCÍALAPA RENTERÍARAMOSVALLEJOSVISOD.A. 5B Mg. ARQ. ORTIZ AGAMA Mg. ARQ. CÁRDENAS FLORES Mg. ARQ. CARRASCO ESCARCENA Mg. ARQ. MORALES DELGADO Mg. ARQ. PALACIOS ROJAS DRA. ARQ. ROSSI CHANG2022-1 ZONA4 DESARROLLO ZONA 4

CORONADOBARRIGACHAVEZCOTERA LA MARQUEZROSAPATRICIOPEREDAECHEVARRIAFLORESGARCÍALAPA RENTERÍARAMOSVALLEJOSVISOD.A. 5B Mg. ARQ. ORTIZ AGAMA Mg. ARQ. CÁRDENAS FLORES Mg. ARQ. CARRASCO ESCARCENA Mg. ARQ. MORALES DELGADO Mg. ARQ. PALACIOS ROJAS DRA. ARQ. ROSSI CHANG2022-1 N DESARROLLO ZONA 4 LEYENDA:INDUSTRIAÁREAVERDEÁREAPEATONALALAMEDAPEATONALCICLOVÍAQUIOSCOS(Comerciovariable)VIVIENDADENSIDAD BAJA COMERCIOS Y SERVICIOS FIJOS (préstamo de bicicletas,...; restaurantes…) AVENIDAS PRINCIPALES 2 1

1

NIVEL VECINAL Las de menor escala. Se conforman con los frentes generados de las manzanas. Se desarrollan actividades de corta duración como paseos o juegos NIVEL diferentesVisitaMETROPOLITANOporpersonasdedistritosdeLima, el Perú y extranjeros ESPACIOS PÚBLICOS CORONADOBARRIGACHAVEZCOTERA LA MARQUEZROSAPATRICIOPEREDAECHEVARRIAFLORESGARCÍALAPA RENTERÍARAMOSVALLEJOSVISOMg. ARQ. MORALES DELGADO Mg. ARQ. PALACIOS ROJAS DRA. ARQ. ROSSI CHANG Deporte Paseos Juego JARDINES/ALAMEDAS UsosPaseosfrecuentes:rápidos Desplazamiento PARQUES METROPOLITANOS Usos Miradorfrecuentes:Paseos Comercio LITORAL COSTA AZUL Descanso Juegos Deportes Usos frecuentes: NIVEL ZONAL Escala media. Es visitado por vecinos de diferentes manzanas como habitantes con residencia cercana a la zona propuesta.

IMAGEN OBJETIVO CORONADOBARRIGACHAVEZCOTERA LA MARQUEZROSAPATRICIOPEREDAECHEVARRIAFLORESGARCÍALAPA RENTERÍARAMOSVALLEJOSVISOMg. ARQ. ORTIZ AGAMA Mg. ARQ. CÁRDENAS FLORES Mg. ARQ. CARRASCO ESCARCENA Mg. ARQ. MORALES DELGADO Mg. ARQ. PALACIOS ROJAS DRA. ARQ. ROSSI CHANG2022-1

IMAGEN OBJETIVO

IMAGEN OBJETIVO CORONADOBARRIGACHAVEZCOTERA LA MARQUEZROSAPATRICIOPEREDAECHEVARRIAFLORESGARCÍALAPA RENTERÍARAMOSVALLEJOSVISOD.A. 5B Mg. ARQ. ORTIZ AGAMA Mg. ARQ. CÁRDENAS FLORES Mg. ARQ. CARRASCO ESCARCENA Mg. ARQ. MORALES DELGADO Mg. ARQ. PALACIOS ROJAS DRA. ARQ. ROSSI CHANG2022-1

2.2. PROPUESTA URBANÍSTICA

Pero… ¿Dónde estamos en realidad? Pues en la esencia menos conocida del Callao, el lugar que activa en gran parte a Lima, el lugar del trabajo y el desarrollo, y que saca cara por nosotros, el Callao que produce, almacena y alimenta. Donde la isla protege a su gente de las aves de acero y el pescador que nos ofrece el fruto de su día a día, frescos y jugosos, fritos y cocinados debe convivir con las industrias ajenas y egoístas, que esconden su vegetación, y te responden frías como el metal y apáticas como sus frentes. Donde el peatón no tiene rumbo y las máquinas arrancan a la producción sobre el polvo. Pero, ¿es en realidad está la esencia del Callao? Dónde queda la fiesta? La rumba y la salsa? El deporte y la juerga? La alegría y la historia? Qué pasó? Donde fueron?... Se perdieron... Se separaron y los escondieron, Las grandes barreras colocadas sobre este lugar quebraron la esencia, convirtiendo a La Punta y cercanías en el paraíso y único foco pero los chalacos no se rinden ante nada y salen adelante, y luchan y crecen y nunca pierden la esperanza…

FIESTA - TRABAJO - DEPORTE -PESCA - ARTE - PRODUCCIÓN - TURISMO - COMERCIO - HISTORIA - AEROPUERTO - EXPRESIÓN UBICACIÓN Y EMPLAZAMIENTO pesqueroTerminal 1 1 2 2 3 3 4 4 5 5 Huaca El Paraíso

D.A. 5B Mg. ARQ. ORTIZ AGAMA Mg. ARQ. CÁRDENAS FLORES Mg. ARQ. CARRASCO ESCARCENA Mg. ARQ. MORALES DELGADO Mg. ARQ. PALACIOS ROJAS DRA. ARQ. ROSSI CHANG2022-1

CORONADOBARRIGACHAVEZCOTERA LA MARQUEZROSAPATRICIOPEREDAECHEVARRIAFLORESGARCÍALAPA RENTERÍARAMOSVALLEJOSVISOD.A. 5B Mg. ARQ. ORTIZ AGAMA Mg. ARQ. CÁRDENAS FLORES Mg. ARQ. CARRASCO ESCARCENA Mg. ARQ. MORALES DELGADO Mg. ARQ. PALACIOS ROJAS DRA. ARQ. ROSSI CHANG2022-1 GENIUS LOCI CONQUISTA ESPAÑOLA HUACAELPARAÍSOEL APU RECOGIÓ A LOS PRIMEROS CHALACOS, LOS PRIMEROS PESCADORES 1935 EL ALMACÉN DE LIMA, EL PUERTO 1866 CHIM… PUM… CALLAO! CALLAO (CANTOS RODADOS / LÍNEA DE REFERENCIAINCA) CHALACOS (COSTEÑOS) PUEBLO CHALACO, PUEBLO QUE LUCHA CONTRA QUIENES QUIEREN DOMINARLOS 1746 MAREMOTO SEÑOR DEL MAR, PATRONO DEL CALLAO ISLASANLORENZO FIESTADEPORTEHISTORIA TURISMO EXPRESIÓNCULTURALEGADO MEMORIA VÍASVÍASPRINCIPALESEJELÍMITEPRINCIPALVÍASSECUNDARIASPEATONALES GAMBETTA COSTAAZUL GRANVÍADELMAR

CORONADOBARRIGACHAVEZCOTERA LA MARQUEZROSAPATRICIOPEREDAECHEVARRIAFLORESGARCÍALAPA RENTERÍARAMOSVALLEJOSVISOD.A. 5B Mg. ARQ. ORTIZ AGAMA Mg. ARQ. CÁRDENAS FLORES Mg. ARQ. CARRASCO ESCARCENA Mg. ARQ. MORALES DELGADO Mg. ARQ. PALACIOS ROJAS DRA. ARQ. ROSSI CHANG2022-1 ESQUEMA DE ZONIFICACIÓN LEYENDA:AEROPUERTOÁREAVERDEÁREARECREATIVACOMERCIOEDUCACIÓNEQUIPAMIENTOINDUSTRIAPUERTOARTESANALRELIGIOSORESIDENCIALDENSIDAD MEDIA RESIDENCIAL DENSIDAD ALTA VIVIENDA TALLER CENTRO POLIDEPORTIVO CENTRO CULTURAL . MUSEO EL PESCADOR TERMINAL PESQUEROPUERTO DE FERRYS PARQUE INDUSTRIAL

TIPOLOGÍA MORFOLÓGICA Mg. ARQ. ORTIZ AGAMA Mg. ARQ. CÁRDENAS FLORES Mg. ARQ. CARRASCO ESCARCENA La zona residencial existente se tomará como base para generar un manzaneo que integre las residencias ya existentes. LA PUNTA MORFOLOGÍAS CHALACAS URB. SANTA BEATRIZ TIPOLOGÍA MORFOLÓGICA SUPERMANZANA BASE ABSTRACCIÓN REPETICIÓN INDUSTRIAS + MUROS CIEGOS Para evitar que las industrias sean rodeadas por muros ciegos se plantea que estas sean rodeadas de un Colchón mayoracústicamentetendradeedificiosprimeraconedificiosconformadodinámicopordeviviendacomercioenlaplantaodenetamentecomercios.Ellímitequeseatratadoparaconfort. ADICIÓN NUEVO HORIZONTE

CORONADOBARRIGACHAVEZCOTERA LA MARQUEZROSAPATRICIOPEREDAECHEVARRIAFLORESGARCÍALAPA RENTERÍARAMOSVALLEJOSVISOD.A. 5B Mg. ARQ. ORTIZ AGAMA Mg. ARQ. CÁRDENAS FLORES Mg. ARQ. CARRASCO ESCARCENA Mg. ARQ. MORALES DELGADO Mg. ARQ. PALACIOS ROJAS DRA. ARQ. ROSSI CHANG2022-1 DESARROLLO DE ÁREAS RESIDENCIALES RESIDENCIAL DENSIDAD MEDIA RESIDENCIAL DENSIDAD ALTA VÍAS PRINCIPALES VÍAS SECUNDARIAS Conformadas por viviendas de densidad media a alta, con viviendas taller ubicadas en la zona norte. VIVIENDA TALLER MALECÓN AV. NESTOR GAMBETA VIVIENDAS DE DENSIDAD ALTAVIVIENDAS DE DENSIDAD MEDIA IndustriaVía vehicular

CORONADOBARRIGACHAVEZCOTERA LA MARQUEZROSAPATRICIOPEREDAECHEVARRIAFLORESGARCÍALAPA RENTERÍARAMOSVALLEJOSVISOD.A. 5B Mg. ARQ. ORTIZ AGAMA Mg. ARQ. CÁRDENAS FLORES Mg. ARQ. CARRASCO ESCARCENA Mg. ARQ. MORALES DELGADO Mg. ARQ. PALACIOS ROJAS DRA. ARQ. ROSSI CHANG2022-1 DESARROLLO DE ÁREAS INDUSTRIALES INDUSTRIA LIVIANA GRAN INDUSTRIA VÍAS PRINCIPALES VÍAS DE INDUSTRIA Ubicadas con acceso directo a las vías vehiculares para evitar la perturbación del flujo peatonal dentro de las zonas residenciales. PARQUE INDUSTRIAL

CORONADOBARRIGACHAVEZCOTERA LA MARQUEZROSAPATRICIOPEREDAECHEVARRIAFLORESGARCÍALAPA RENTERÍARAMOSVALLEJOSVISOD.A. 5B Mg. ARQ. ORTIZ AGAMA Mg. ARQ. CÁRDENAS FLORES Mg. ARQ. CARRASCO ESCARCENA Mg. ARQ. MORALES DELGADO Mg. ARQ. PALACIOS ROJAS DRA. ARQ. ROSSI CHANG2022-1 DESARROLLO DE ÁREAS INDUSTRIALES HUERTOS ALMACENAMIENTO ALMACENAMIENTOLOGÍSTICARECICLAJEALMACENAMIENTOLOGÍSTICARECICLAJEUbicadosLOGÍSTICAen el Parque Industrial UbicadasALMACENAMIENTOaledañasalas zonas residenciales y parque industrial UbicadosRECICLAJEen el Parque Industrial VISTA 1 VISTA 2 VISTA 1 VISTA 2

CORONADOBARRIGACHAVEZCOTERA LA MARQUEZROSAPATRICIOPEREDAECHEVARRIAFLORESGARCÍALAPA RENTERÍARAMOSVALLEJOSVISOD.A. 5B Mg. ARQ. ORTIZ AGAMA Mg. ARQ. CÁRDENAS FLORES Mg. ARQ. CARRASCO ESCARCENA Mg. ARQ. MORALES DELGADO Mg. ARQ. PALACIOS ROJAS DRA. ARQ. ROSSI CHANG2022-1 DESARROLLO DE ÁREAS COMERCIALES COMERCIO VECINAL CENTRO COMERCIAL VÍAS PRINCIPALES VÍAS COMERCIOSECUNDARIASZONAL Se presenta en escala vecinal dentro de los bloques residenciales. zonales hacia las vías principales y el equipamiento Comercial en el nodo formado por las vías peatonales VISTA AL ÁREA DE COMERCIO VECINAL

CORONADOBARRIGACHAVEZCOTERA LA MARQUEZROSAPATRICIOPEREDAECHEVARRIAFLORESGARCÍALAPA RENTERÍARAMOSVALLEJOSVISOD.A. 5B Mg. ARQ. ORTIZ AGAMA Mg. ARQ. CÁRDENAS FLORES Mg. ARQ. CARRASCO ESCARCENA Mg. ARQ. MORALES DELGADO Mg. ARQ. PALACIOS ROJAS DRA. ARQ. ROSSI CHANG2022-1 DESARROLLO DE ÁREAS COMERCIALES Las áreas comerciales contarán con espacio para que los negocios desarrollen actividades al aire libre como, en el caso de restaurantes, espacio para mesas al aire libre. De igual manera el Centro comercial tendrá un tratamiento con vocación por el peatón. ALAMEDA GAMBETTA ALAMEDA OQUENDOCITECOMERCIALCENTROPESQUERO

D.A. 5B Mg. ARQ. CÁRDENAS FLORES Mg. ARQ. CARRASCO ESCARCENA2022-1 MALECÓN COSTA AZUL AV. COSTA AZUL MALECÓN COSTA AZUL ESTACIÓN DE FERRYS

● Resiste a la sequía y a la salinidad.

1 ZONA RESIDENCIAL

● No suelen ser atacadas por plagas. ESQUINAS Y ALAMEDA Ficus Benjamina Ventajas depurificadoresExcelentesaire Se temperaturasaltasmuyadaptanbienalas

AVENIDAS,

● Necesita poco riego ● Control de forma tamañoy PARQUES Poinciana real Ventajas ● Gran follaje y extensa copa. ● Altura variable de 6 a 8 metros. ● Necesita espacio para expandir sus raíces por lo que se ha considerado una distancia de 1.5 metros hacia las veredas y caminos.

CORONADOBARRIGACHAVEZCOTERA LA MARQUEZROSAPATRICIOPEREDAECHEVARRIAFLORESGARCÍALAPA RENTERÍARAMOSVALLEJOSVISOD.A. 5B Mg. ARQ. ORTIZ AGAMA Mg. ARQ. CÁRDENAS FLORES Mg. ARQ. CARRASCO ESCARCENA Mg. ARQ. MORALES DELGADO Mg. ARQ. PALACIOS ROJAS DRA. ARQ. ROSSI CHANG2022-1 PAISAJE 5 ZONA INDUSTRIAL 3 AV. PRINCIPALES 4 MALECÓN JARDINERA Plantas suculentas Ventajas: ● No necesita de muchos cuidados. ● No es exigente con el suelo en macetas. ● Riego moderado pues soporta épocas de sequía. ● No necesita poda ni especiales.abonados

3.1. REFERENTES TIPOLÓGICOS

“Esta parte de Southampton fue el lugar histórico donde la ciudad se

Volumen elevado en voladizo, envuelto en una piel de tubos curvos de acero inoxidable, que sobresale sobre una nueva plaza pública y explanada que une el antiguo paseo marítimo con el centro histórico de la ciudad.

ESTRUCTURA Y MATERIALIDAD

PLANO CORONADOBARRIGACHAVEZCOTERA LA MARQUEZROSAPATRICIOPEREDAECHEVARRIAFLORESGARCÍALAPA RENTERÍARAMOSVALLEJOSVISOD.A. 5B Mg. ARQ. ORTIZ AGAMA Mg. ARQ. CÁRDENAS FLORES Mg. ARQ. CARRASCO ESCARCENA Mg. ARQ. MORALES DELGADO Mg. ARQ. PALACIOS ROJAS DRA. ARQ. ROSSI CHANG2022-1 WATERMARK WESTQUAY/ ACME REFERENTE TIPOLÓGICO CONTEXTO CONCLUSIONESFORMA FUNCIÓN SOUTHAMPTON, REINO UNIDO Uso: Centro comercial Ubicación: Southampton, Reino Unido Área: 23 000 m² Año: 2010 - 2017 Arquitecto: Estudio ACME - George Barer, Angel Barreno Gutiérrez, Xavier Bas FICHA TÉCNICA

Este proyecto es usado como el el su su configuración

funcional y la concordancia de usos que ayudarán a promover la actividad. Por otro lado, las características históricas y de ubicación que posee, se asemejan mucho a nuestro caso de estudio, ya que fue diseñado para reconectar la ciudad al mar, abrazando la historia marítima antigua de Southampton CentroVíasÁreaÁreaÁreacomercialyindustrialresidencialverdeprincipalescomercial Estructura de acero con recubrimiento de vidrio y acero encima de una base de hormigón Defensasdelaciudadmedieval PROGRAMA ÁREA TIENDAS 4690m² CINE 5000m² RESTAURANTES 8110m² PLAZA 2500m² OCIO 2700m² CONCEPTO/SÍMBOLO

vez, por

Plaza/Espaciopúblico comercialCentroexistente Plazuela circulaciónyinterior

realezapescadoresencontróconelmar,vivaybulliciosadeactividad,primeropobladaporycontrabandistasdevino,luegoporJaneAustenylaquebuscabaentretenimientoplacenteroenverano”

referente por

simplicidad en la

contexto en

TiendasHallRestaurantes

TiendasTiendas

que se encuentra, a

m² ANFITEATRO 1263 m² ZONA DE COMIDAS 1598 m² PARQUE

INGRESO TIENDASANFITEATRO ZONA PARQUEESTACIONAMIENTOCOMIDASDE PROGRAMA ÁREA TIENDAS

m² ESTACIONAMIENTO

Formas sinuosas para generar fluidez y organicidad en el diseño, de manera que los espacios puedan utilizarse y recorrer de manera fluida.

PLANO CONCEPTO/SÍMBOLO FORMAMATERIALIDADESTRUCTURA

FUNCIÓN El diseño es una conversación entre el pasado y el presente, el reconocimiento de lo tradicional y su adaptación a la contemporaneidad, en concepto y en construcción.Este proyecto posee un diseño flexible y elaborado, con espacios abiertos que fluyen libremente y unen diversas actividades en dos niveles, los cuales sugieren que el complejo no dependa únicamente de la venta de artesanías para los negocios, sino también de otras instalaciones y provisiones. También, posee un espacio público vibrante para explorar las oportunidades. El ladrillo, la piedra, la madera y el metal 3980 6591 2568 m²

autobusesTerminalde

ZONA RESIDENCIAL

CORONADOBARRIGACHAVEZCOTERA LA MARQUEZROSAPATRICIOPEREDAECHEVARRIAFLORESGARCÍALAPA RENTERÍARAMOSVALLEJOSVISOD.A. 5B Mg. ARQ. ORTIZ AGAMA Mg. ARQ. CÁRDENAS FLORES Mg. ARQ. CARRASCO ESCARCENA Mg. ARQ. MORALES DELGADO Mg. ARQ. PALACIOS ROJAS DRA. ARQ. ROSSI CHANG2022-1

Como idea base plantea respetar la tradición del territorio generando su vez una identidad particular que conviva con los demás haat que existen en la ciudad y como idea central se tomó la música, con el fin de generar espacios donde estas puedan desarrollarse y exponerse.

Material destacable: bambú Estructuras de acero y cubiertas de tensión. El enfoque de diseño hacia la forma construida es innovador, con una yuxtaposición de materiales de construcción tradicionales y modernos e introduciendo una actitud fresca hacia las nuevas tecnologías.

PARQUE/PLAZAANFITEATROESTACIONAMIENTOTIENDASZONADECOMIDAS

NUEVA DELHI, DELHI, INDIA FICHA TÉCNICA Uso: Centro comercial Ubicación: Janakpuri, Nueva Delhi, Delhi, India Área: 16 000 m² Año: 2014 Arquitecto: Archohm ConsultsMr. Sourabh Gupta TRADICIÓNYMÚSICA Dilli Haat TIHARCÁRCELDE

DILLI HAAT / Archohm Consults REFERENTE TIPOLÓGICO CONTEXTO CONCLUSIONES

CORONADOBARRIGACHAVEZCOTERA LA MARQUEZROSAPATRICIOPEREDAECHEVARRIAFLORESGARCÍALAPA RENTERÍARAMOSVALLEJOSVISOD.A. 5B Mg. ARQ. ORTIZ AGAMA Mg. ARQ. CÁRDENAS FLORES Mg. ARQ. CARRASCO ESCARCENA Mg. ARQ. MORALES DELGADO Mg. ARQ. PALACIOS ROJAS DRA. ARQ. ROSSI CHANG2022-1 CONCEPTO/SÍMBOLO FUNCIÓN MATERIALIDADFORMA

CONTEXTO CONCLUSIONES PLANTA

Proyecto que mejora la zona porque se hizo una vía peatonal que intensifica el comercio de restaurantes y da tranquilidad para los residentes, la importancia de que colinda con la Av. Javier prado y la Av. Aviación impulsa más esa atracción de las personas por el centro comercial.Elproyectotiene undiseñointeresantedesensacióndemovimientoylautilización estructuras tensadas para el techo así como otros centros comerciales se mucha paradejarpasarlaluz.

utiliza

El edificio se presenta como un volúmenes adosados , lo que en conformaria netamente un trayecto comercial. ESTRUCTURA FICHA TÉCNICA Uso: Centro comercial Ubicación: San borja Área: 21832 m² Año: 2014 Estudio: URBANOVA Galerías comerciales

de

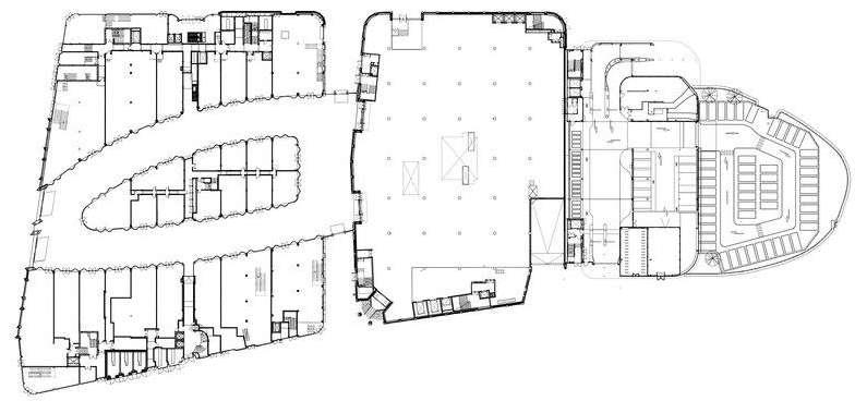
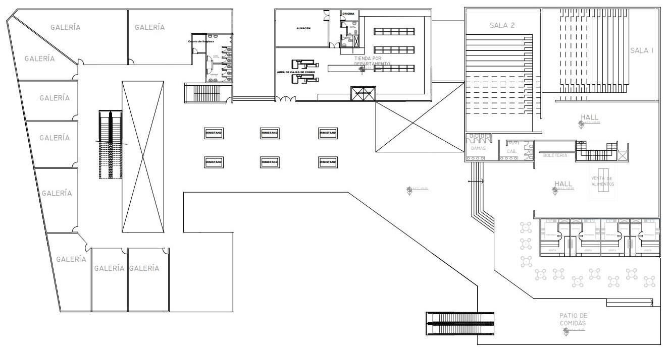
REFERENTE TIPOLÓGICO Hall Sector comidas Ejes FuncionalesVíaExpresa Metropolitana VíaArterial Metropolitana Ejes vialesEjecorporativo Metropolitano Eje de protección ambiental A C C E S O A C C E S O AscensorAscensoryescalerasCine Galería Galería Galería Galerías comerciales Sector comidas AscensorAscensoryescaleras Galería Galería Galería Hall Centro comercial EncofradomodularligeroCOMAIN EncofradomodularligeroNEVI construcciónAndamioparalaBRIO Techotesoestructura CENTRO COMERCIAL LA RAMBLA LIMA, PERÚ RESTAURANTESTIENDASTIENDAS TIENDASTIENDAS TIENDAS TIENDAS ÁREA RESTAURANTESCOMIDADE RESTAURANTESRESTAURANTES CINE Galería PROGRAMA ÁREA TOTAL TIENDAS 11226 m² ZONA DE COMIDAS 2449 m² CINE 1932 m²

CORONADOBARRIGACHAVEZCOTERA LA MARQUEZROSAPATRICIOPEREDAECHEVARRIAFLORESGARCÍALAPA RENTERÍARAMOSVALLEJOSVISOD.A. 5B Mg. ARQ. ORTIZ AGAMA Mg. ARQ. CÁRDENAS FLORES Mg. ARQ. CARRASCO ESCARCENA Mg. ARQ. MORALES DELGADO Mg. ARQ. PALACIOS ROJAS DRA. ARQ. ROSSI CHANG2022-1 CONTEXTO CONCLUSIONES CONCEPTO/SÍMBOLO FUNCIÓN FORMAMATERIALIDAD La cáscara comienza en el "Nivel Boulevard", con una Plaza Pública en el punto de encuentro con la ciudad, y se eleva hacia el sur y el este. ESTRUCTURA FICHA TÉCNICA Uso: Centro comercial Ubicación: Estambul Área: 83.000 m² Año: 2013 Estudio: FAPRESA Galerías comerciales impactosentornoscontienenTienecomercial,deEselprimerproyectoagranescaladeusomixtoenTurquíaquecumplecincofunciones:centroculturayconvenciones("PAC"PerformingArtsCenter),hoteldelujo"Raffles",centrooficinasextraordinariasyresidenciasexclusivas.elementosurbanosqueseaíslandelaciudadquelosrodeanyaíslanlavidaurbanaquedelespaciourbano.Estetrabajoesunaexploracióndesdeeldiseñourbanoenquecontienencentroscomercialesyloquesebuscaesabrirladiscusiónsobrelosdelcentrocomercialensuentornoyelpapelquedebetenercomoelementourbano. REFERENTE TIPOLÓGICO Hall Sector comidasAscensorCine Galería Galerías comerciales Sector comidas AscensorAuditorio ZORLU CENTER ESTAMBUL, TURQUÍA Galería PROGRAMA ÁREA TOTAL TIENDAS 1217 m² ZONA DE COMIDAS 1217 m² AUDITORIO 937 m² ÁREA COMÚN 540.98 m² AREA VERDE 5034 m² Galería Galerías comerciales PLANTA

CONTEXTO

PLANTA

CONCEPTO/SÍMBOLO FUNCIÓN MATERIALIDAD El edificio se presenta como un volumen de escala inusualmente grande, el cual amplifica la relación entre el exterior y el vecindario circundante.

CORONADOBARRIGACHAVEZCOTERA LA MARQUEZROSAPATRICIOPEREDAECHEVARRIAFLORESGARCÍALAPA RENTERÍARAMOSVALLEJOSVISOD.A. 5B Mg. ARQ. ORTIZ AGAMA Mg. ARQ. CÁRDENAS FLORES Mg. ARQ. CARRASCO ESCARCENA Mg. ARQ. MORALES DELGADO Mg. ARQ. PALACIOS ROJAS DRA. ARQ. ROSSI CHANG2022-1

ESTRUCTURA FICHA TÉCNICA Uso: Centro comercial Ubicación: Los Ángeles Área: 42606 m² Año: 2018 Estudio: Massimiliano and Doriana Galerías comerciales Hall Sector comidas Ascensor Galería Galerías comerciales Sector comidas Ascensor Galería PROGRAMA ÁREATOTAL TIENDAS 20000 m² ZONADECOMIDAS 1834 m² ÁREA COMÚN 10000 m² Galería Galerías comerciales Galería Galería Massimiliano and Doriana Fuksas CALIFORNIA, EE.UU.

“Las fachadas son ahora superficies en movimiento que, con su movimiento ondulatorio, se hacen eco del paisaje urbano circundante, se superponen y se vuelven parte de la propia arquitectura”. FORMA PANELES DE MICROPERFORADOMETALPLACASDEYESO

Áreacomercialyindustrial Árearesidencial

CONCLUSIONES Debido a su gran tamaño, el Centro Beverly podría considerarse una cuadra de la ciudad. El desafío era aumentar la permeabilidad a la luz natural y con este objetivo en mente, se implementó un tragaluz de alto rendimiento; además, del diseño de fachada que mejora las cualidades estéticas del edificio. También se creó nuevos espacios de reunión para el mercado de lujo en California.

REFERENTE TIPOLÓGICO

CENTRO BEVERLY /

que tienen diferentes usos. ESTRUCTURA Y MATERIALIDAD El propósito más amplio del proyecto fue la creación de una experiencia amigable para los peatones que mejoraría el nivel de actividad en la calle. Una gran escalera ocupa la esquina del terreno, fungiendo como un espacio de transición abierto del nivel de la calle a las tiendas y oficinas superiores. Además, cuenta con una iluminación integral y una variedad de profundidades y alturas en sus diferentes niveles. ÁreaÁreacomercialyindustrialresidencial PROGRAMA ÁREA TIENDAS 9000 m² ESTACIONAMIENTO 14800 m² OFICINA 9792 m² RESIDENCIAS 5508 m² CONCEPTO/SÍMBOLO JardinescolgantesevocanlasruinasdelostemplosantiguosenlasselvasdeAméricaCentral COMERCIO-ESTACIONAMIENTOOFICINASRESIDENCIAS Tubos de aluminio huecos cortados en diferentes longitudes. Columnas de acero Revestimiento de paneles de metal azul y vidrio Estructura de acero y hormigón PLANTA TiendasHALL RESTAURANTES ESTACIONAMIENTO Tiendas TiendasTiendasTiendas

Arquitectura REFERENTE TIPOLÓGICO CONTEXTO FORMACONCLUSIONES

vialidadesdelmunicipalcomoLaintencióndelproyectoesfuncionarcatalizadordeunplanparamejorarlaexperienciapeatónalolargodelasgrandesdeMonterrey.

Uso: Centro comercial Ubicación: Monterrey, México Área: 12 000 m² Año: 2019 Arquitecto: Miró Rivera Architects and Ibarra Aragón Arquitectura FICHA TÉCNICA

Architects

Posee tres volúmenes diferenciados

COMPLEJO CITICA / Miró

FUNCIÓN MONTERREY, MÉXICO

CORONADOBARRIGACHAVEZCOTERA LA MARQUEZROSAPATRICIOPEREDAECHEVARRIAFLORESGARCÍALAPA RENTERÍARAMOSVALLEJOSVISOD.A. 5B Mg. ARQ. ORTIZ AGAMA Mg. ARQ. CÁRDENAS FLORES Mg. ARQ. CARRASCO ESCARCENA Mg. ARQ. MORALES DELGADO Mg. ARQ. PALACIOS ROJAS DRA. ARQ. ROSSI CHANG2022-1 Rivera and Ibarra Aragón

3.2. REFERENTES ARTÍSTICOS

TRADICIONAL CORONADOBARRIGACHAVEZCOTERA LA MARQUEZROSAPATRICIOPEREDAECHEVARRIAFLORESGARCÍALAPA RENTERÍARAMOSVALLEJOSVISOD.A. 5B Mg. ARQ. ORTIZ AGAMA Mg. ARQ. CÁRDENAS FLORES Mg. ARQ. CARRASCO ESCARCENA Mg. ARQ. MORALES DELGADO Mg. ARQ. PALACIOS ROJAS DRA. ARQ. ROSSI CHANG2022-1 CENTRO COMERCIAL HANJIE WANDA REFERENTE ARTÍSTICO FICHA TÉCNICA Uso: Centro comercial Ubicación: Wuhan, China. Área: 22 630 m2 Año: 2013 Arquitecto: Ben Van Merkel CONTEXTO VALOR PLÁSTICO diseñoElconceptodesinergiadefluidoseslaclavedelentodosloscomponentes PROPORCIONALIDAD ARQUITECTÓNICAILUMINACIÓN paravariedadlugarseteatro,comprador,microcosmoscasiWandapatrónBenvanBerkel:"Lareflexión,laluzyelseutilizanentodoelHanjieSquareparacrearunmundofantástico.Segeneraronnuevosyexperienciasparaelsimilartalvezalmundodelporloqueelcentrocomercialconviertecasienunescenariooundeactuacionesyofreceunagrandeimpresionesyexperienciaselvisitante". CONCEPTO Y MATERIAL Aplican en concepto de dualidad que reflejan la combinaciónartesanaldedosmateriales. deunaSesitúaenelCentrodeCultura,delaszonasmásimportanteslaciudaddeWuhanenChina.

Elconcepto surgedeladualidadalcombinarelementos contemporáneosytradicionalesde ElElmovimientovidriodinámicodiseñoenunsoloconcepto.Eldiseñodelafachadasecentraenconseguirunefectoquereflejalacombinaciónartesanaldedosmateriales:elaceroinoxidablepulidoymodelado.Susposicionesespecíficasenrelaciónconlasdemásrecreanelefectodelyreflexióndelaguaolossensualesplieguesdelateladeseda.valorsemióticosedapordoselementoselaguayelfuego.valorplásticosedaporlasinergiadefluidostantoelformacomoenelrecorridoespacial.

CONCLUSIONESESPACIALIDAD

CONTEMPORÁNEO DUALIDAD

ARQUITECTÓNICAPROGRAMACIÓN SERVICIOKARAOKECINETIENDAÁREACOSMÉTICAALMACÉNDECOMIDA TECNOLOGÍA AGUA FUEGO NORTE SUR

ESTRUCTURA ADICIÓN SUSTRACCIÓN experienciaEldiseñodelafachadaonduladacreaunadecompradinámica

compra.AdemáspanelesestiradaElEllaedificaciónenplantaaumentalaslíneasdevisiónhacialacallepeatonal.valorsemióticosurgedelaabstraccióndeunapiedrapreciosavalorplásticoporelmaterialdondeseusapiedrablancaynegrareconstituida,unacajadeluzdeltecho,cristallaminadotintado,arcoiristeñidodeacrílico,dealuminiocompuestoytabladeyesoreforzadoconvidrio.elvalorplásticosedaporeldiseñodelafachadaquecreaunaexperienciadeAliviarlosbordesdelaedificaciónenplantaaumentalaslíneasdevisiónhacialacallepeatonal.

CORONADOBARRIGACHAVEZCOTERA LA MARQUEZROSAPATRICIOPEREDAECHEVARRIAFLORESGARCÍALAPA RENTERÍARAMOSVALLEJOSVISOD.A. 5B Mg. ARQ. ORTIZ AGAMA Mg. ARQ. CÁRDENAS FLORES Mg. ARQ. CARRASCO ESCARCENA Mg. ARQ. MORALES DELGADO Mg. ARQ. PALACIOS ROJAS DRA. ARQ. ROSSI CHANG2022-1 FUZHOU WUSIBEI THAIHOT PLAZA REFERENTE ARTÍSTICO CONTEXTO CONCEPTO/SÍMBOLOFICHATÉCNICA Uso: Centro comercial Ubicación: Fuzhou, Fujian, China. Área: 300 000 m² Año: 2014 Arquitecto: Clou comercioPoloSeregistralahistoriaquedespuésdevisitarFuzhou,Marcodescribiólaciudadcomo"unimportantecentrodedepiedraspreciosas." PROCESO DE DISEÑO VALOR PLÁSTICO facilitaAdiferenciadealgunascallesrectaspordondelospeatonestransitanrápidamenteatravés,unafachadaondulanteelflujoyreflujonaturaldeltráficopeatonal,creandounaexperienciadecompradinámica. ESPACIALIDAD MATERIAL Piedrablancaynegra reconstituida,unaestiradacaja deluzdeltecho,cristallaminado tintado,arcoiristeñido de acrílico, paneles de aluminio compuesto y tabla de yesoreforzadoconvidrio. PROPORCIONALIDAD CONCLUSIONES Elvalorcontextualseevidenciaporelretiroqueseleda,permitiendoque losbordesde

40200TIENDASYLOCALESCOMERCIALESMINORISTASRESTAURANTESYESTABLECIMIENTOSDECOMIDA brindarvidrioEldeesteabstraepermitiendoSetienecomoconceptoelaterrazamientoparaliberarvisualeshacialacubiertaelingresodeluznatural,elvalorsemióticosedaenlacubiertaquelaformadelosárbolesquerodeanelentornodondeseencuentraemplazadoproyecto.Elcontenidofuncionaldelcentrocomercialsedistribuyeverticalmenteacuerdoconlasoluciónespacial-volumétrica.valorplásticosedaporelmaterialqueseutilizaenlacubiertadondesemodelaelcristalizadoenformasonduladas,estecuentaconsistemastecnológicosparaconfortalinterior.

CORONADOBARRIGACHAVEZCOTERA LA MARQUEZROSAPATRICIOPEREDAECHEVARRIAFLORESGARCÍALAPA RENTERÍARAMOSVALLEJOSVISOD.A. 5B Mg. ARQ. ORTIZ AGAMA Mg. ARQ. CÁRDENAS FLORES Mg. ARQ. CARRASCO ESCARCENA Mg. ARQ. MORALES DELGADO Mg. ARQ. PALACIOS ROJAS DRA. ARQ. ROSSI CHANG2022-1 CENTRO COMERCIAL ZŁOTE TARASY REFERENTE ARTÍSTICO FICHA TÉCNICA Uso: Centro comercialComplejo de oficinas Ubicación: Wuhan, Polonia. Área: 185.806 m2 Año: 2007 Arquitecto: Jerde CONTEXTO VALOR PLÁSTICOCONCEPTO Y MATERIAL CONCLUSIONESESPACIALIDADTECNOLOGÍA Se tiene el concepto de aterrazamiento, Zlote Tarasy que en castellano significa material«terrazasdoradas»,queseencuentranprotegidosporunacubiertaondulantecuyocristalizadodalasensacióndeestaralairelibre. Este innovador techo con una superficie ondulada se inspiró en las copas de los árboles que coronan los numerosos parquesdelaciudad. PROGRAMACIÓNPROPORCIONALIDADARQUITECTÓNICA El contenido funcional del centro comercial se distribuye verticalmente de acuerdo con la oficina.multicineAdemáscomidas.establecimientoslocales,total63.500Enespacial-volumétrica.soluciónlaactualidadocupanm²delasuperficiedestinadosatiendas,restaurantesydecuentaconunyedificiode

Está ubicada entre el Parque del Lago Suwon Gwanggyo y las altas torres residenciales de un nuevo desarrollo urbanístico en la ciudad de Gwanggyoa25kmalsurdeSeúlenCoreadelSur.

CONCLUSIONES

Fachada de vidrio multifacética que contrasta con la opacidaddelapiedra.Fachadademosaicocontexturadepiedra,eledificioevocalanaturalezadelparquedellagoSuwonGwanggyo

FICHA TÉCNICA Uso: Centro comercial, cultural Ubicación: Gwanggyo, Corea del Sur. Área: 137213 m2 Año: 2020 Arquitecto: OMA, Chris Van Duijn

Aparienciadepiedra conformacuadrada, pero envuelta en triangulaciones deapapelAportavidrioluznaturalalcorazóndelcentrocomercialdeunamanerasinprecedentes,destacandoeldelasrutasdecirculación.Eldiseñoalientaconstantementealastiendas,yaloscompradores,dialogarconelentornodelcuboylasáreaspúblicasdentrodeél.

THE GALLERIA GWANGGYO REFERENTE ARTÍSTICO CONTEXTO

CONCEPTO/SÍMBOLO FORMA

El centro comercial logra mediante las triangulaciones de vidrio que se desarrollaron en BIM que naturalezaEnconenlasactividadescomercialesyculturalesserevelenalostranseúntesdelaciudadyalosvisitanteselinteriorproporcionarlesnuevospuntosdevistaparaexperimentar.Ademásgeneraundiálogolasáreaspúblicasqueofreceelcentrocomercial.cuantoalafachadageneraungrancontrasteconlosmosaicosyutilizandoloscoloresdelaqueseencuentrandelparquedellagoSuwonGwanggyoSeutilizanmosaicostriangularesteseladosdecolores:-beige-marrón-tonoterroso.Losespaciosgeneradosporlosvidriosprovocauningresodeluzalinteriordetodoelcentrocomercial

CORONADOBARRIGACHAVEZCOTERA LA MARQUEZROSAPATRICIOPEREDAECHEVARRIAFLORESGARCÍALAPA RENTERÍARAMOSVALLEJOSVISOD.A. 5B Mg. ARQ. ORTIZ AGAMA Mg. ARQ. CÁRDENAS FLORES Mg. ARQ. CARRASCO ESCARCENA Mg. ARQ. MORALES DELGADO Mg. ARQ. PALACIOS ROJAS DRA. ARQ. ROSSI CHANG2022-1 ESTÉTICO ESPACIAL

Ser una piedra esculpida que emerge del suelo y que genere contraste con Elsuentorno.edificiocon forma de cubo tiene una estructura de hormigón y acero que rompe su forma geométrica con un vidrio multifácetico que se despliega alrededordeledificio.

REFERENTE ARTÍSTICO

CORONADOBARRIGACHAVEZCOTERA LA MARQUEZROSAPATRICIOPEREDAECHEVARRIAFLORESGARCÍALAPA RENTERÍARAMOSVALLEJOSVISOD.A. 5B Mg. ARQ. ORTIZ AGAMA Mg. ARQ. CÁRDENAS FLORES Mg. ARQ. CARRASCO ESCARCENA Mg. ARQ. MORALES DELGADO Mg. ARQ. PALACIOS ROJAS DRA. ARQ. ROSSI CHANG2022-1 COMERCIAL TAMAGAWA TAKASHIMAYA

ESTÉTICOMATERIALIDADESPACIAL

Uso: Centro comercial, Oficina Ubicación: Tokio, Japón. Área: 110 000 m2 2010 Arquitecto: Kengo Kuma

PROPORCIONALIDADCONCLUSIONES

ORGÁNICO,SINUOSA Medianteformassinuosasselogre mimetizarconelentorno yque genere aberturasalcentrocomercialtambién utiliza laluzparalogranunespaciosereno.

Situado en el barrio residencial de Setagaya en Tokio, el centro comercial Takashimaya se inserta en un tejido urbano de densidad media con ampliasavenidasyaceras

CONTEXTO

CENTRO

Año:

La arquitectura de Kengo Kuma en la renovación de fachada del centro comercial se puede lograr apreciar la importancia que adquiere el material y la disolución de la forma por medio de la luz que crea una atmósfera de serenidad y sencillez.

CONCEPTO/SÍMBOLO FORMAFICHA TÉCNICA

La estructura principal está formada por una secuencia de pilares cruciformes unidos transversalmente mediante barras de sección circular y cables que rigidizan el entramadoantelascargasylafuerzadelviento.

despejadospeatonalesyprogresivamenteSobrelosperfileshorizontalesseapoyanlaslamas,quevaríansualturaysuformaparadefinirlosaccesosgenerarunvolumenorgánico.AdemáslosondulantesarcospermitedisfrutardelpaisajenocturnoyenlosdíasellejanomonteFuji.

140m Sucesión de lamas metálicas dispuestas transversalmente a la fachada establece la transición entre el edificio existente y losárbolesdelacalle. Lamas metálicas La vegetación crece entre las lamas blancas perforadas. Además funciona como filtro verde que renueva el aire, amortigualacontaminación

MÉDIACITÉ SHOPPING CENTERS REFERENTE ARTÍSTICO CONTEXTO PROPORCIONALIDAD El edificio se erige como un símbolo de la revitalización de la antigua zona industrial enunpolocomunitario. MATERIALIDADFICHA TÉCNICA Uso: Centro comercial Ubicación: Lieja, Bélgica. Área: 9750 m2 Año: 2009 Arquitecto: Ron Arad Architects CONCEPTO/SÍMBOLO ESTÉTICOCONCLUSIONESESPACIALESTRUCTURA Situado cerca de la nueva estación de tren, Gare des Guillemins de Santiago Calatrava, Médiacité ayudará a rehabilitareconómicayculturalmentelaciudadcentral. conentrelazadasLacolumnavertebralestácompuestaporunacomplejareddecostillasdeaceroentresíenunareddeformadasimilaraunacuadrículacubiertasalmohadasdeETFEquepermitenquelaluzdelsolsefiltre. Nervaduras de acero de 200 mm natural.avanzadosdiferentesLaformacircundanteylaestructurairregularenelsegundonivelpermiteapreciarelpaisajeurbanoylacolumnavertebralquerecorreelcentrocomercialunezonascomocomercio,ocioculturaparalograrlarevitalizacióneconómicayculturalmentedelaciudadcentral.Conlíneasamplias,materialesyundiseñoyunaconstrucciónconscientesdelmedioambientepermitiendoquelosvisitantesrecorrerespaciosconcolorysentirelingresodeluz FORMA Posee una forma serpenteante que conecta diferente espacios permitiendo el ingreso de luz naturaldentrodelcentrocomercial CORONADOBARRIGACHAVEZCOTERA LA MARQUEZROSAPATRICIOPEREDAECHEVARRIAFLORESGARCÍALAPA RENTERÍARAMOSVALLEJOSVISOD.A. 5B Mg. ARQ. ORTIZ AGAMA Mg. ARQ. CÁRDENAS FLORES Mg. ARQ. CARRASCO ESCARCENA Mg. ARQ. MORALES DELGADO Mg. ARQ. PALACIOS ROJAS DRA. ARQ. ROSSI CHANG2022-1

FORMA Forma original: Río, cañón

ROJAS

MORALES DELGADO

ORTIZ

FLORES

CORONADOBARRIGACHAVEZCOTERA LA MARQUEZROSAPATRICIOPEREDAECHEVARRIAFLORESGARCÍALAPA RENTERÍARAMOSVALLEJOSVISO5B Mg. ARQ. AGAMA Mg. ARQ. CÁRDENAS Mg. ARQ. CARRASCO Mg. ARQ. Mg. ARQ. PALACIOS DRA. ARQ. SECCIÓN A CIRCULACIÓNESTRUCTURA ADICIÓN SUSTRACCIÓNY SIMETRÍABALANCEY

ESCARCENA

ROSSI CHANG2022-1 CENTRO COMERCIAL MYZEIL REFERENTE ARTÍSTICO ESTRUCTURAMATERIALIDADCONCEPTO/SÍMBOLO Río profundidadesdiferentesconCubiertayfachadaparamétricadepiezastriangularesdevidrioyaceroFabricaciónasistidaporcomputadoracongrillayconectoresnodalesde360°deaceroconpanelestriangularesdevidrioCONTEXTO históricaZona modernaVíapeatonal PLANOSANÁLISIS GRÁFICO FIRST LEVEL

D.A.

FICHA TÉCNICA Ubicación: Fráncfort, Alemania Área: 77 000 m2 Año: 2002-2009 Arquitecto: Studio Fuksas

PLANO A SECCIÓN LUZ MASA ESTÉTICO ESPACIAL CONCLUSIONES VALORES PLÁSTICOS: Gracias a su forma continua concibe un efecto dinámico en su recorrido, además que el material y disposición de elementos favorecen en la iluminación a todos los ambientes.

VALORES SEMIÓTICOS: Es símbolo de modernidad dentro una zona caracterizada por ello pero cercana a las zonas históricas, sin embargo su concepto para la forma vincula con debilidad la identidad del lugar.

VALORES CONTEXTUALES: No está integrado de manera legible a las dinámicas del lugar y su masa permite el aislamiento.

CONTEXTO

ANÁLISIS GRÁFICO Acero y acero cromado. CIRCULACIÓNESTRUCTURA ADICIÓN SUSTRACCIÓNY SIMETRÍABALANCEY ESTÉTICO ESPACIAL PLANO A SECCIÓN LUZ

CONCLUSIONES VALORES PLÁSTICOS: Su forma lineal permite un desplazamiento claro e integración de la luz. Es envolvente y su materialidad de adecua al VALORESconcepto.SEMIÓTICOS: Es un símbolo de carácter iconográfico e integra la identidad local. VALORES CONTEXTUALES: Establece una fuerte conexión con el contexto mediante un eje visual y de recorrido además que se integra a las dinámicas urbanas de la zona. Con la pez.escamasasemejaelegidatexturasealasdeun

PARC CENTRAL

CONCEPTO/SÍMBOLO

CORONADOBARRIGACHAVEZCOTERA LA MARQUEZROSAPATRICIOPEREDAECHEVARRIAFLORESGARCÍALAPA RENTERÍARAMOSVALLEJOSVISOD.A. 5B Mg. ARQ. ORTIZ AGAMA Mg. ARQ. CÁRDENAS FLORES Mg. ARQ. CARRASCO ESCARCENA Mg. ARQ. MORALES DELGADO Mg. ARQ. PALACIOS ROJAS DRA. ARQ. ROSSI CHANG2022-1 REFERENTE ARTÍSTICO

FICHA TÉCNICA PROCESO DE DISEÑO

FORMA MATERIALIDAD Uso: Parque, edificio de oficinas, centro comercial Ubicación: Guangzhou, China. Área: 110 000 m2 Año: 2016 Arquitecto: Benoy El pez koi Símbolo de la paz, la armonía y la fortuna de la cultura china.

espacioutilizacentroylograMedianteORGÁNICO,SINUOSAformassinuosassemimetizarconelentornoquegenereaberturasalcomercialtambiénlaluzparalogranunsereno.

CONTEMPORÁNEOTRADICIONAL

Este innovador techo se inspiró en las copas de los árboles que coronan los numerosos parques de la ciudad.

La forma corresponde al concepto del proyecto y a lo que desean proyectar en el lugar dependiendo del contexto donde se ubiquen para revitalizar o potenciar suatractivoturístico.Elmaterialutilizado ayuda de manera más óptima lograr el concepto del proyecto además de lograr un diálogo entre el exterior e interior y mimetizarse o Laresaltarensuentorno.espacialidadlograda en los proyectos envuelven y guían un recorrido provocando sensaciones a los visitantes de los centro deluzcomercialespormediodela,loscoloresylasformaslosespacios.

Lamas metálicas la disolución de la forma por medio de la luz que crea una atmósfera de serenidadysencillez. El edificio se erige como un símbolo de la revitalización de la antigua zona industrial en un polo comunitario.

Su forma envolvente y lineal permite un vínculo con la ciudad y la integración de la luzenelproyecto.Existeuna recorrido dinámico ya que la espacialidad del proyecto se da de forma ondulante pero clara El concepto nace de la referencia a la historia del lugar y a las creencias de la población para lograr una identidad local con elproyecto.Losreferentes elegidos variablestomandopartidoartísticoúnicamenteporsucarácterparaconcretarunarquitectónicoencuentalasanalizadas.

Ríocondiferentesprofundidades Elpezkoi Símbolodelapaz, culturalaarmoníaylafortunadelachina

NORTE Piedra blanca y negra reconstituida, una estirada caja de luz del techo, cristal laminado tintado, arco iris teñido de acrílico, paneles de aluminio compuesto y tabla de yeso reforzado con vidrio.

Uso: Centrocomercial Ubicación: Wuhan, China. Área: 22630m2 Año: 2013 Arquitecto: BenVanMerkel Uso: Centrocomercial Ubicación: Fuzhou,Fujian,China. Área: 300000m² Año: 2014 Arquitecto: Clou Uso: ComplejoCentrocomercial-deoficinas Ubicación: Wuhan, Polonia. Área: 185.806m2 Año: 2007 Arquitecto: Jerde Uso: Centrocomercial,cultural Ubicación: Gwanggyo,Coreadel Sur. Área: 137213m2 Año: 2020 Arquitecto: OMA,ChrisVan Duijn Uso: Centrocomercial,Oficina Ubicación: Tokio,Japón. Área: 110000m2 Año: 2010 Arquitecto: KengoKuma Uso: Centrocomercial Ubicación: Lieja,Bélgica. Área: 9750m2 Año: 2009 Arquitecto: RonAradArchitects Ubicación: Fráncfort,Alemania Área: 77000m2 Año: 2002-2009 Arquitecto: StudioFuksas Uso: centroParque,edificiodeoficinas,comercial Ubicación: Guangzhou,China. Área: 110000m2 Año: 2016 Arquitecto: Benoy Combinación artesanal de dosmateriales. DUALIDAD Se registra la historia que después de visitar Fuzhou, Marco Polo describió la ciudad como "un importante centro de comercio de piedraspreciosas."

ADICIÓNSUSTRACCIÓN

detexturaFachadarutasdestacandoelpapeldelasdecirculación.demosaicocondepiedrayfachadavidriomultifacéticaSerunapiedraesculpidaqueemergedelsueloyquegenerecontrasteconsuentorno.

ARTÍSTICACASUÍSTICA FICHATÉCNICACONCEPTO/SÍMBOLOFORMAMATERIALESPACIALIDAD CENTROHANJIECOMERCIALWANDA FUZHOUTHAIHOTWUSIBEIPLAZA CENTROZŁOTECOMERCIALTARASY THEGWANGGYOGALLERIA CENTRO TAMAGAWACOMERCIALTAKASHIMAYA MEDIACITECENTERSSHOPPING CENTROMYZEILCOMERCIAL CONCLUSIONESPARC CENTRAL

Formaoriginal:Río,cañón conunasemejaConlatexturaelegidasealasescamasdepezlocualserelacionaelconceptodado.

Posee una forma serpenteante que conecta diferente espacios permitiendo el ingreso de luz natural dentro del centrocomercial acerotriangularesparamétricaCubiertayfachadadepiezasdevidrioyLa columna vertebral está compuesta por una compleja red de acero entrelazadas entre sí en una red deformada cubiertas con almohadas de ETFE que permiten que la luz delsolsefiltre.

componentestodosdiseñoclavefluidosdeElconceptosinergiadeesladelenlos

.

3.3. REFERENTES PARAMETRICOS

La estructura de rejilla en Chadstone ‘Fashion Capital’ ,se describe como una suave curva que simula un delicado chal.

Avenidaprincipal Avenidaprincipal

Se destaca el techo de rejilla de Chadstone, el cual se basa en una estructura de celosía compuesta de reja de acero catenaria acristalada con paneles Concuadriláteros.210mm de espesor cubre un área de 7000 m2.CHADSTONE

CORONADOBARRIGACHAVEZCOTERA LA MARQUEZROSAPATRICIOPEREDAECHEVARRIAFLORESGARCÍALAPA RENTERÍARAMOSVALLEJOSVISOD.A. 5B Mg. ARQ. CÁRDENAS FLORES Mg. ARQ. CARRASCO ESCARCENA2022-1 CHADSTONE SHOPPING CENTRE REFERENTE PARAMÉTRICO CONTEXTO CONCEPTO/SÍMBOLO COMPONENTE PARAMÉTRICO MATERIALIDADESTRUCTURAUso: Centro comercial Ubicación: Melbourne, Australia Área: 212 000 m² Año: 2014 - 2016 Arquitecto: The Buchan Group FICHA TÉCNICA

Se incluyen paneles de vidrio aislante Scholl Glas Gwen-therm 4SG, que brindan protección solar y regulan la cantidad de luz solar que ingresa. Cada panel tiene forma y dimensión diferente.

La fachada exterior curva complementa el paisajismo y marca un hito importante a lo largo de la fachada de la autopista. Esto ayuda a los propietarios de Chadstone a crear un plan maestro que establece un marco de trabajo para la expansión y el crecimiento futuro, durante las próximas décadas que harán que el proyecto arquitectónico mantenga su dominio como un "entretenimiento que se puede comprar"

Zonaresidencialdedensidadbaja

PLANTAS

Paisajenatural Paisajenatural Avenidaprincipal

Se evoca las connotaciones de una concha marina para crear una forma curva muy contemporánea pero natural. También símbolos como el infinito y las olas del mar, que nunca se acaban.

MOROCCO MALL REFERENTE PARAMÉTRICO CONCLUSIÓN FICHA TÉCNICA PLANOSCONCEPTUALIZACIÓN MATERIALIDAD ESTRUCTURA -Uso: Centro Comercial -Ubicación: Casablanca, Marruecos -Área: 190 000 m2 -Año: 2011 -Arquitecto: Davide Padoa + Design International

Mg. ARQ. ORTIZ AGAMA Mg. ARQ. CÁRDENAS FLORES Mg. ARQ. CARRASCO ESCARCENA Mg. ARQ. MORALES DELGADO Mg. ARQ. PALACIOS ROJAS DRA. ARQ. ROSSI CHANG2022-1

El Morocco Mall, que bordea el Océano Atlántico en la costa de Casablanca Corniche, es el primer y único centro comercial de destino en el Mediterráneo y África. Contextualiza su entorno y emplea un lenguaje arquitectónico que respeta los elementos naturales de la zona, a saber, el mar y la playa. El proyecto logra el raro logro de mezclar realmente estilos locales y globales en un solo edificio, combinando el pensamiento creativo contemporáneo con una sensibilidad local a medida.

CORONADOBARRIGACHAVEZCOTERA LA MARQUEZROSAPATRICIOPEREDAECHEVARRIAFLORESGARCÍALAPA RENTERÍARAMOSVALLEJOSVISOD.A. 5B

PROPUESTA ESPACIAL

Está revestida de tela ligera y vidrio, que finalmente parece moldeada por la fuerza del viento, la arena y el agua. CREACIÓN DE HORMIGÓN POSTENSADO Las losas postensadas redujeron el tiempo de construcción en el Centro Comercial Marruecos. Musical Fountain VIP TiendasIMAXGaleriesMallLafayetteCinema

COMPONENTE PARAMÉTRICO

PROGRAMA

CORONADOBARRIGACHAVEZCOTERA LA MARQUEZROSAPATRICIOPEREDAECHEVARRIAFLORESGARCÍALAPA RENTERÍARAMOSVALLEJOSVISOD.A. 5B Mg. ARQ. ORTIZ AGAMA Mg. ARQ. CÁRDENAS FLORES Mg. ARQ. CARRASCO ESCARCENA Mg. ARQ. MORALES DELGADO Mg. ARQ. PALACIOS ROJAS DRA. ARQ. ROSSI CHANG2022-1 RIVERSIDE 66 REFERENTE PARAMÉTRICO FICHA TÉCNICA -Uso: Centro Comercial -Ubicación: Tianjin, China -Área: 152000 m2 -Año: 2014 -Arquitecto: KPF Architects CONTEXTO PROGRAMACONCEPTUALIZACIÓNCORTEEl edificio está construido a partir de 22 costillas de hormigón de siete pisos de altura y más de 10.000 paneles de vidrio El marco estructural da un paseo dentro de una serie de nervaduras curvas de concreto, como ver un esquema de un esqueleto de ballena desde adentro. La ciudad de Tianjin deseaba un edificio que se convirtiera en un punto de referencia conexiónredefinieraylaentre el río Hai He y He Ping Lu HAIRIOHE

CORONADOBARRIGACHAVEZCOTERA LA MARQUEZROSAPATRICIOPEREDAECHEVARRIAFLORESGARCÍALAPA RENTERÍARAMOSVALLEJOSVISOD.A. 5B Mg. ARQ. ORTIZ AGAMA Mg. ARQ. CÁRDENAS FLORES Mg. ARQ. CARRASCO ESCARCENA Mg. ARQ. MORALES DELGADO Mg. ARQ. PALACIOS ROJAS DRA. ARQ. ROSSI CHANG2022-1 VICTORIA GATE FICHA TÉCNICA -Uso: Centro Comercial -Ubicación: Leeds, Reino Unido -Área: 26000 m2 -Año: 2016 -Arquitecto: ACME Architects CONTEXTO Paisajenatural PaisajenaturalPaisajenaturalPaisajenatural densidadPoblaciónmedia CONCEPTUALIZACIÓN

Los edificios aparecen como tres elementos distintos con identidades individuales que se relacionan entre sí y la lengua vernácula de Leeds El revestimiento de aletas de aluminio torcido crea un patrón de cuadrícula, enfatizado por las sombras generadas, que se relaciona con la fachada de John Lewis. La fachada proporciona eficientemente contención vehicular, luz natural y ventilación natural. ESPACIALTEXTURA

El edificio busca recuperar el ambiente majestuoso de las galerías de la época victoriana para adaptarlo a las necesidades del siglo XXI. Se tuvo pensado diseñar un bloque urbano nuevo, vibrante y clave en el centro de la ciudad de Leeds. La visibilidad y la identidad de los grandes almacenes era una parte importante.

PLANOS PROPUESTA

REFERENTE PARAMÉTRICO

CASA DE CRISTAL CONTEXTO CONCEPTO/SÍMBOLOESTÉTICOESPACIAL

La cubierta paramétrica se compone de 31 PLANOS SERIADOS de acero que van de extremo a extremo, conformada por 2 tramos de 25m. en el centro y voladizos de 20 en los extremos, sumando un total de 90m. de longitud. Está sostenida por una estructura también metálica

CORONADOBARRIGACHAVEZCOTERA LA MARQUEZROSAPATRICIOPEREDAECHEVARRIAFLORESGARCÍALAPA RENTERÍARAMOSVALLEJOSVISOD.A. 5B Mg. ARQ. ORTIZ AGAMA Mg. ARQ. CÁRDENAS FLORES Mg. ARQ. CARRASCO ESCARCENA Mg. ARQ. MORALES DELGADO Mg. ARQ. PALACIOS ROJAS DRA. ARQ. ROSSI CHANG2022-1

EstructuraCubierta de la cubierta Envolvente Restaurantesacristalado

ESTRUCTURA/MATERIALIDAD

Al estar en un contexto con grandes árboles, el edificio se acomoda siguiendo esta forma y respetando su presencia.

La cubierta está diseñada especialmente para dar la sensación de cenar bajo la sombra de un árbol, imitando la forma de sus ramas.

Uso: Centro Comercial Ubicación: Bangkok, Tailandia Área: 1650 m2 Año: 2015 Arquitecto: OFFICE AT

PROPUESTA PlazuelaservicioÁrearestaurantesZonaparamétricaCubiertadede

CORONADOBARRIGACHAVEZCOTERA LA MARQUEZROSAPATRICIOPEREDAECHEVARRIAFLORESGARCÍALAPA RENTERÍARAMOSVALLEJOSVISOD.A. 5B Mg. ARQ. ORTIZ AGAMA Mg. ARQ. CÁRDENAS FLORES Mg. ARQ. CARRASCO ESCARCENA Mg. ARQ. MORALES DELGADO Mg. ARQ. PALACIOS ROJAS DRA. ARQ. ROSSI CHANG2022-1 TIENDA DEPARTAMENTAL LIVERPOOL REFERENTE PARAMÉTRICO CONTEXTO FICHA CONCEPTO/SÍMBOLOTÉCNICAUbicación: Huixquilucan, México Cliente: Liverpool Año: 2011 Estado: Construído Programa: Comercial Área Construida: 18,000 m2 Arquitecto: Rojkind Arquitectos FORMA FLEXIBILIDAD FLUIDEZ DINAMISMO MATERIALIDAD ESTRUCTURAPLANTASPANELES DE INOXIDABLEACERO METÁLICAESTRUCTURA GALVANIZADOALUMINIOCIRCULAR PLANTA 1 PLANTA 2 PLANTA 3 PANELES DE ACERO CON ACABADOSDISTINTOS SINUOSIDAD

ESTRUCTURAMATERIALIDAD

CORONADOBARRIGACHAVEZCOTERA LA MARQUEZROSAPATRICIOPEREDAECHEVARRIAFLORESGARCÍALAPA RENTERÍARAMOSVALLEJOSVISOD.A. 5B Mg. ARQ. ORTIZ AGAMA Mg. ARQ. CÁRDENAS FLORES Mg. ARQ. CARRASCO ESCARCENA Mg. ARQ. MORALES DELGADO Mg. ARQ. PALACIOS ROJAS DRA. ARQ. ROSSI CHANG2022-1

LIVERPOOL TOLUCA / Springall REFERENTE PARAMÉTRICO

Uso: Centro Comercial Ubicación: Toluca de Lerdo, México Área: 3000 m2 Año: 2013 Arquitecto: SPRINGALL+LIRA CONCEPTO/SÍMBOLO

Gracias a las curvas generadas por la rotación, se ocultan una serie de escalonamientos y quiebres del edificio para lograr una figura continua.

CONTEXTO El edificio se encuentra en una zona industrial que carece de escala peatonal. Al ser la unión de Toluca con Ciudad de México, es un punto muy concurrido, los autos pasan a gran velocidad. Se optó por una figura simple y clara de distinguir, un cesto ondulado u ondas del mar, que contraste con el entorno, y dinámica, para que establezca un diálogo con la carretera.

FORMA FICHA TÉCNICA

PLANTAS Cubierta de resina con fibra de madera y estructura metálica. Detalles de aluminio en los vanos. Se construyó sobre bastidores verticales curvados, con dos radios contrapuestos. Además, se usaron conectores tridimensionalmenteajustablesque aseguran la verticalidad de los tablones.

Cúpula hiperbólica y Reorientación de la luz medianteella Circular sinuosasOndas Doblecurvatura Revestida de tela ligera y vidrio. Paraboloidehiperbólico Hormigón y más de 10000 panelesdevidrio.

EstructuraCubierta RestaurantesEnvolvente

PARAMÉTRICOCASUÍSTICA FICHATÉCNICACONCEPTO/SÍMBOLOFORMAMATERIALESPACIALIDAD CHADSTONECENTRESHOPPING MOROCCOMALL RIVERSIDE66 VICTORIAGATE CENTRO COMERCIAL CASA DE CRISTAL TIENDALIVERPOOLDEPARTAMENTAL FULTON CENTER CONCLUSIONESLIVERPOOL TOLUCA

Uso: Centro Comercial Ubicación: Tianjin, China Uso: Centro Comercial Ubicación: Leeds, Reino Unido el infinito para dar curvas

muy contemporáneas. La estructura se describe como una suave curva que simulaundelicadochal.

Evoca connotaciones de objetos marinos y

Uso: Comercio, Estación Ubicación: NY, Estados Unidos Área: 19000 m2 Año: 2014 Arquitecto: GRIMSHAW Forma serpenteada en el techodelcentrocomercial.

PanelesdeaceroinoxidableEstructurametálicaAluminiogalvanizado dePanelesreflectantesaluminio

31 aletas de acero horizontales han dado una irregular forma, que se integra con la estructura de metal. Cubierta paramétrica Zona de restaurantes Área de Plazuelaservicios

Uso: ComercialCentro Ubicación: Melbourne, Australia Área: 212 000 m² Año: 2014 - 2016 Arquitecto: The Buchan Group Uso: Centro Comercial Ubicación: Casablanca, Marruecos Área: 190 000 m2 Año: 2011 Arquitecto: Davide Padoa + InternationalDesign

Uso: Centro Comercial Ubicación: Bangkok, Tailandia Área: 1650 m2 Año: 2015 Arquitecto: OFFICE AT + Se basa imitando la forma de las ramas de un árbol, para dar la sensación de sombra.cenarbajola Son recientes,proyectoscuyo año de edificación han sido en los últimos 15 años Buscan naturalesconceptosoreflejar la vida diaria de su Enentornosumayoría, tienen patrones sinuosos o se basan en la naturaleza del entorno. El acero, vidrio y aluminio son los materiales más utilizados debido a su versatilidad y estructura Mayormente en espacios amplios y techos, donde se pueda apreciar la forma.

ELEVACIÓNBASEFRONTAL Inspirado como forma en el cuerpodeunaballena. enfatizado por el estilo del sigloXIX. Paneles de vidrio aislante Scholl Glas Gwen-therm 4SG.

Esta circulación es porosa con entradas a lo largo de lascallesdeledificio ConcretoPanelesdelgadosdemetalblando

Uso: Centro Comercial Ubicación: Toluca de Lerdo, México Área: 3000 m2 Año: 2013 Arquitecto: SPRINGALL+LIRA rotación,CurvasdelUncestoonduladouondasmargeneradasporlafiguracontinua.Cubiertaderesinaconfibrademaderayestructurametálica.

Uso: Comercio, Ubicación: Huixquilucan, México Área: 18000 m2 Año: 2011 Arquitecto: Rodjkind Arquitectos

3.4. REFERENTES TOPOFÍLICOS

D.A. 5B Mg. ARQ. ORTIZ AGAMA Mg. ARQ. CÁRDENAS FLORES Mg. ARQ. CARRASCO ESCARCENA Mg. ARQ. MORALES DELGADO Mg. ARQ. PALACIOS ROJAS DRA. ARQ. ROSSI CHANG2022-1

CONCEPTO

RESPUESTA A LA TOPOGRAFÍA

CONCLUSIONES GENERALES: El proyecto promueve el tránsito peatonal sobre sus instalaciones sobretodo sobre las pendientes generadas y un desarrollo orientado al tránsito para el uso de transporte público además de unificar toda la instalación con la naturaleza.

La idea central a lo largo del diseño ha sido que la ciudad se encuentre con la vida natural en una Granja Urbana formado por un valle urbano.

RESPUESTA A LA MORFOLOGÍA

Desde el principio fue diseñado bajo el concepto de mezclar la naturaleza y el entorno construido. Un respiro para los usuarios que suelen estar acostumbrados a las grandes cajas dominantes. Con todas las funciones: comercio, servicios y residencias conectadas por transporte público. Esto reduce la distancia entre los lugares ANÁLISIS GRÁFICO

Se emplaza en el terreno planos, pero aun así, forma un valle urbano teniendo como cauce a las vías subterráneas del metro y sobre estas, un corredor urbano.

Uso: Centro comercial Ubicación: ChinaShanghai Área: 20 000 m² Año: 2017 Arquitecto: Nikken Sekkei FICHA TÉCNICA

SHANGHAI GREENLAND CENTER REFERENTE TOPOFÍLICO

RELACIÓN PAISAJÍSTICA Y CON EL ENTORNO EDIFICADO

Centrocomercial ÁreasverdesEdificiosdeoficinas Estacióndebuses Subestacióneléctrica H|otel

BARRIGACHAVEZCOTERA MARQUEZPATRICIOPEREDAGARCÍAFLORESLAPA RENTERÍAVALLEJOSVISO

Metrosubterráneo Centrocomercial

RELACIÓN PAISAJÍSTICA Y CON EL ENTORNO EDIFICADO Uso: Centro comercial Ubicación: Estambul, Turquía Área: 55 000 m2 Año: 2004 - 2007 Arquitecto: Estudio Foreign - Alejandro Zaera Polo FICHA TÉCNICA RESPUESTA A LA MORFOLOGÍA El centro comercial genera formas en un sentido más El centro comercial presenta un manto, parcialmente accesible al público, cubierto con una capa vegetal a la que se le incorporó un sistema de iluminación basado en tragaluces y que sirve adicionalmente para la ventilación natural. ANÁLISIS GRÁFICO RESPUESTA A LA TOPOGRAFÍA Centrocomercial ÁreasverdesEdificiosdeoficinas IKEAEstacionamiento Plantadealmacenaje BuyakaC.C.IKEAy Estacionamiento Centrocomercial

CONCEPTO Desde el principio fue diseñado bajo el concepto de mezclar la topografía de las colinas y el entorno creándose un centro urbano que se conecta entre sí por medio de una serie de nuevas rutas peatonales. La volumetría del conjunto se forma a partir de pliegues de la cobertura que generan una continuidad de la topografía perdida como son las colinas que solía haber en la zona.

CORONADOBARRIGACHAVEZCOTERA LA MARQUEZROSAPATRICIOPEREDAECHEVARRIAFLORESGARCÍALAPA RENTERÍARAMOSVALLEJOSVISO

D.A. 5B Mg. ARQ. ORTIZ AGAMA Mg. ARQ. CÁRDENAS FLORES Mg. ARQ. CARRASCO ESCARCENA Mg. ARQ. MORALES DELGADO Mg. ARQ. PALACIOS ROJAS DRA. ARQ. ROSSI CHANG2022-1

CONCLUSIONES GENERALES: El proyecto establece una edificación para generar un centro en la ciudad, además nos muestra una analogía de colinas artificiales coherente con el territorio.

CENTRO COMERCIAL MEYDAN - TURQUÍA REFERENTE TOPOFÍLICO

Uso: Mixto: Comercial, Residencial, Oficinas Ubicación: Kunming, China Área: 396 000 m2 Año: 2020 Arquitecto: KPF

RELACIÓN PAISAJÍSTICA N RESPUESTA A LA MORFOLOGÍA

Spring City 66 prioriza la experiencia del usuario al integrar la circulación, el programa y los elementos naturales. Las terrazas, rodeadas de tiendas y restaurantes, crean un destino vibrante y un centro de vida urbano. N

CONTEXTO

El diseño de Spring City 66 responde al paisaje único de la provincia de Yunnan y su ubicación a lo largo de las históricas rutas comerciales. Un paseo ajardinado, que recuerda a los verdes valles de la región, es fundamental para el proyecto, mientras que el podio minorista ondulado que lo rodea y una torre con forma de peñasco señalan las notables formaciones de piedra caliza del bosque de piedra de Shilin.

CORONADOBARRIGACHAVEZCOTERA LA MARQUEZROSAPATRICIOPEREDAECHEVARRIAFLORESGARCÍALAPA RENTERÍARAMOSVALLEJOSVISOD.A. 5B Mg. ARQ. ORTIZ AGAMA Mg. ARQ. CÁRDENAS FLORES Mg. ARQ. CARRASCO ESCARCENA Mg. ARQ. MORALES DELGADO Mg. ARQ. PALACIOS ROJAS DRA. ARQ. ROSSI CHANG2022-1

CONCLUSIONES

REFERENTE TOPOFÍLICO

SPRING CITY 66

Ubicado junto a dos grandes bulevares y líneas de metro amigables para los peatones, la accesibilidad y los servicios públicos de Spring City 66 tejen este destino de alta densidad y uso mixto directamente en el centro urbano de Kunming. El variado programa del proyecto se une con múltiples niveles de terrazas rodeadas de tiendas y creandorestaurantes, un destino vibrante para la ciudad.

FICHA TÉCNICA ANÁLISIS GRÁFICORESPUESTA A LA TOPOGRAFÍA

REFERENTE TOPOFÍLICO

N Se adapta a la trama existente formada por las vías trazadas. Conecta con diferentes puntos de la capital y la zona metropolitana EL TOREO se ubica en la antigua zona industrial de Naucalpan, actualmente en transición. Los terrenos particulares de EL TOREO eran; EL TOREO de Cuatro Caminos; una gasolinera y taller mecánico; unas salas de cine; las oficinas estatales de un partido político y un centro nocturno. Adicionalmente se consiguieron las vialidades internas de la manzana ante los gobiernos estatal y municipal para configurar la manzana triangular. Se emplaza al terreno formando desniveles similares las vías que lo rodean.

La edificación logra debido a sus usos mixtos se convierte en un gran ejemplar de la transformación urbana. También se convierte en un hito para la ciudad, conectando con varios puntos importantes.

TOREO PARQUE CENTRAL CONTEXTO

Uso: Mixto: Comercial, Residencial, Oficinas Ubicación: Naucalpan, México Área: 447 000 m2 Año: 2016 Arquitecto: Javier Sordo Madaleno

FICHA TÉCNICA ANÁLISIS GRÁFICORESPUESTA A LA TOPOGRAFÍA RELACIÓN PAISAJÍSTICA N RESPUESTA A LA MORFOLOGÍA CONCLUSIONES

Flujos Principales

Flujos EdificaciónSecundarios

CORONADOBARRIGACHAVEZCOTERA LA MARQUEZROSAPATRICIOPEREDAECHEVARRIAFLORESGARCÍALAPA RENTERÍARAMOSVALLEJOSVISOD.A. 5B Mg. ARQ. ORTIZ AGAMA Mg. ARQ. CÁRDENAS FLORES Mg. ARQ. CARRASCO ESCARCENA Mg. ARQ. MORALES DELGADO Mg. ARQ. PALACIOS ROJAS DRA. ARQ. ROSSI CHANG2022-1

ANÁLISIS GRÁFICO

RESPUESTA A LA MORFOLOGÍA RESPUESTA A LA TOPOGRAFÍA RELACIÓN PAISAJÍSTICA Y CON EL ENTORNO EDIFICADO

La idea principal consiste en “estar debajo es más importante que estar dentro”. Por ello, las zonas para quedarse son circulaciones vertidas en puntos de encuentro, de juego o reunión, o simplemente mesas complementarias a las actividades de los locales y restaurantes.

El elemento no busca ser protagonista, respeta las alturas tanto del paisaje natural como del paisaje artificial.

La morfología del lugar da la idea de un campus, organizada a partir de vías y bloques aislados Esto se ve reflejado en la distribución de los comercios.

La topografía del lugar no es muy accidentada. A pesar de eso, el proyecto usas esas pequeñas diferencias para crear diferentes recorridos.

CORONADOBARRIGACHAVEZCOTERA LA MARQUEZROSAPATRICIOPEREDAECHEVARRIAFLORESGARCÍALAPA RENTERÍARAMOSVALLEJOSVISOD.A. 5B Mg. ARQ. ORTIZ AGAMA Mg. ARQ. CÁRDENAS FLORES Mg. ARQ. CARRASCO ESCARCENA Mg. ARQ. MORALES DELGADO Mg. ARQ. PALACIOS ROJAS DRA. ARQ. ROSSI CHANG2022-1 PLAZA - CIUDAD DEL SABER FICHA TÉCNICA Uso: Centro comercial Ubicación: Panamá, Panamá Área: 8 000 m² Año: 2013 Arquitecto: Leonardo Álvarez Yepes Arq.

REFERENTE TOPOFÍLICOEDIFICIO COMERCIAL LA

FICHA TÉCNICA Uso: Centro comercial Ubicación: Zagreb, Croacia Área: 18 000 m² Año: 2009 Arquitecto: Radionica Arhitekture

RELACIÓN PAISAJÍSTICA Y CON EL ENTORNO EDIFICADO

CORONADOBARRIGACHAVEZCOTERA LA MARQUEZROSAPATRICIOPEREDAECHEVARRIAFLORESGARCÍALAPA RENTERÍARAMOSVALLEJOSVISOD.A. 5B Mg. ARQ. ORTIZ AGAMA Mg. ARQ. CÁRDENAS FLORES Mg. ARQ. CARRASCO ESCARCENA Mg. ARQ. MORALES DELGADO Mg. ARQ. PALACIOS ROJAS DRA. ARQ. ROSSI CHANG2022-1

RESPUESTA A LA MORFOLOGÍA RESPUESTA A LA TOPOGRAFÍA

El concepto detrás del diseño tuvo que ver exclusivamente con factores de emplazamiento y topografía del lugar. La topografía del lugar se eleva hacia una zona verde residencial logrando ubicar entradas en diferentes niveles según los pisos que presenta. El proyecto aprovecha la topografía para generar espacialidad en sus espacios interiores y se creando terrazas en dos calles paralelas, cada una en una elevación diferente. El elemento arquitectónico no es protagonista en el paisaje urbano y natural, se adapta en altura, forma y colores. GRÁFICO

Se adapta a la forma de la trama aun con colinas en dos frentes y rodeado de edificaciones residenciales, el centro comercial se emplaza en una zona con pendiente generando accesos en sus dos frentes.

CENTRO COMERCIAL CASCADA REFERENTE TOPOFÍLICO

ANÁLISIS

4. PROGRAMA ARQUITECTÓNICO

PROPUESTAPROGRAMA ARQUITECTÓNICO - CENTRO COMERCIAL CLASIFICACIÓN DE USUARIOS COMERCIALCENTRO PERMANENTE TEMPORAL ADMINISTRATIVOPERSONAL PERSONALDESERVICIODEMANTENIMIENTO VENDEDORES VISITANTESAZONASCOMERCIALES CORONADOBARRIGACHAVEZCOTERA LA MARQUEZROSAPATRICIOPEREDAECHEVARRIAFLORESGARCÍALAPA RENTERÍARAMOSVALLEJOSVISOD.A. 5B Mg. ARQ. ORTIZ AGAMA Mg. ARQ. CÁRDENAS FLORES Mg. ARQ. CARRASCO ESCARCENA Mg. ARQ. MORALES DELGADO Mg. ARQ. PALACIOS ROJAS DRA. ARQ. ROSSI CHANG2022-1 DECENTROCOWORKINGHOTELCONVENCIONES ZONA AMBIENTE NÚMERO AFORO AREA/PER ÁREA SUBTOTAL 30% Muros circulacionesy TOTAL ZONA PÚBLICA Plaza de llegada 1 2000 6087 1826,1 7913,1 Estacionamiento de autos 1 100 16 1600 Estacionamiento de motos 1 50 2,9 145 Estacionamiento de bicicletas 1 50 1,6 80 Estacionamiento de camiones 1 600 Patio de maniobras 1 1500 Caseta de control 4 1 3 12 Estación de carga eléctrica 1 8 150 ZONA ADMINISTRATIVA Recepción 1 1 10 10 335 100,5 435,5 Gerencia general 1 1 10 10 Oficinas 2 2 10 40 Sala de espera 1 5 1 5 Sala de reuniones 1 20 1 20 Oficina informática 1 5 10 50 Oficina de contabilidad 1 5 10 50 Oficina de secretaria 1 3 10 30 Oficina de marketing 1 3 10 30 Oficina seguridad 1 3 10 30 Comedor 1 20 1,5 30 SS.HH. Hombres y mujeres 1 8 30 ZONA DE GENERALESSERVICIOS Cuarto de limpieza 3 20 60 2450 735 3185 Área de mantenimiento 2 25 Almacén 1 1200 Cuarto de basura 1 60 Cuarto de máquinas 1 40 Cuarto de cisternas 1 25 Area de descarga 1 1000 Vestidores + SS.HH. Hombres y mujeres 2 8 40 COMERCIO Supermercado 1 400 2,5 1000 9070 2721 11791Tiendas por departamento 5 250 3 3750 Tiendas independiente 30 25 5,6 4200 SS.HH. Hombres y mujeres 120 COMPLEMENTARIOSSERVICIOS Salas de cine 8 300 0,7 1680 4109 1232,7 5341,7 Sala de exposiciones 2 50 3 300 Parque de diversiones 1 80 4 320 Auditorio 1 500 0,7 350 Gimnasio 1 120 4,6 552 Tópico 1 6 25 Agencias bancarias 4 40 5 800 SS.HH. Hombres y mujeres 30 82 ZONA DE COMIDAS Zona de mesas 1 300 1,5 450 4062 1218,6 5280,6 Puestos de comidas 30 8 9,3 2232 Escenario 1 10 10 100 Plaza de restaurantes 20 40 1,5 1200 SS.HH. Hombres y mujeres 2 14 80 TOTAL 26113 7833,9 33946,9 ZONA AMBIENTE NÚMERO AFORO AREA/PER ÁREA SUBTOTAL 30%Murosycirculaciones TOTAL ÁREA NO TECHADA EXPLANADA 1 1000 0,3 300 2495 748,5 3243,5 ESCENARIO 1 15 3 45 PLAZA 1 200 2 400 PATIO DE COMIDAS 1 100 1,5 150 ESTACIONAMIENTOS 1 100 16 1600 ORGANIZADORESTURISTASDEEVENTOSPERSONALDESERVICIODEMANTENIMIENTO ADMINISTRATIVOPERSONAL PERSONALDESERVICIODEMANTENIMIENTO ADMINISTRATIVOPERSONAL PERSONALDESERVICIODEMANTENIMIENTO EMPRESARIOSTRABAJADORESEMPRESARIOSYPYMES PROVEEDORESVISITANTESFAMILIASASISTENTESALEVENTOADMINISTRATIVOPERSONAL ESTUDIANTES ESPACIOS DE AIRE LIBRE PROYECCIÓN ÁREA TECHADA ÁREA ESPACIOVERDEPÚBLICO ÁREA TOTAL 45% 7% 30% 18% 100% 216003360144008640 48000 M2

ZONA AMBIENTE NÚMERO AFORO AREA/PER ÁREA SUBTOTAL circulaciónMuros30%y TOTAL ZONA PÚBLICA Hall/recepción 1 200 3384 1015,2 4399,2 Taquilla 2 4 3 24 Sala de espera 4 50 4 800 Informes 1 5 4 20 SS.HH. Hombres 1 5 20 SS.HH. Mujeres 1 5 20 Estacionamiento privado 1 100 16 1600 Estacionamiento camiones 1 200 Patio de maniobras 1 500 ZONA EXPOSICIONESDE Sala principal de exposición 1 420 2 840 4452 1335,6 5787,6 Sala secundaria 4 120 3 1440 SUM adaptable 2 50 3 300 Galería 2 30 3 180 Auditorio 1 200 3 600 Sala de videoconferencia 4 20 1,5 120 Explanada 1 500 Foyer 8 160 Camerinos 4 10 3 120 SS.HH. Hombres 4 6 96 SS.HH. Mujeres 4 6 96 ZONA DE GENERALESSERVICIOS Cuarto de limpieza 1 20 475 142,5 617,5 Área de mantenimiento 2 25 Almacén 4 160 Cuarto de basura 1 60 Cuarto de máquinas 1 40 Cuarto de cisternas 1 25 Área de descarga 1 100 Ascensores de carga 1 25 SS.HH. Hombres 1 2 10 SS.HH. Mujeres 1 2 10 ZONA ADMINISTRACIÓNDE Recepción 1 1 10 10 340 102 442 Gerencia general 1 1 10 10 Oficina de prom. y difusión 1 4 3,5 14 Oficina de informática 1 4 3,5 14 Oficina de contabilidad 1 4 3,5 14 Oficina de seguridad 1 4 3,5 14 Sala de reuniones 2 20 6 240 SS.HH. Hombres 1 3 12 SS.HH. Mujeres 1 3 12 COMPLEMENTARIOSSERVICIOS Tienda de souvenirs 1 30 2,8 84 512 153,6 665,6 Cafetería 1 50 3 150 Catering y banquetes 1 30 50 Guardarropa 2 10 Estación de bebidas y snacks 2 3 3 18 Área de trabajo manual 1 200 TOTAL 9163 2748,9 11911,9 ZONA AMBIENTE NÚMERO AFORO AREA/PER ÁREA SUBTOTAL circulaciónMuros30%y TOTAL ZONA DE ATENCIÓN Lobby 1 200 466 139,8 605,8Sala de espera 1 50 4 200 Informes 2 2 4 16 Recepción 1 50 ADMINISTRATIVAZONA Sala de estar principal 1 40 3 120 469 140,7 609,7 Gerencia general 1 1 10 10 Sala de juntas 1 20 6 120 Oficina de secretaria 1 3 10 30 Oficina de marketing 1 3 10 30 Oficina seguridad 1 3 10 30 Comedor 1 30 1,5 45 Vestidores 2 10 3 60 SS.HH. Hombres 1 4 12 SS.HH. Mujeres 1 4 12 ZONA HABITACIONESDE Habitación simple 50 25 1250 7590 2277 9867 Habitación doble 50 25 1500 Habitación familiar 30 25 1200 Habitación matrimonial 30 10 600 Master suites 16 1280 Junior suites 8 960 Suite presidencial 4 800 ZONA DE GENERALESSERVICIOS Servicio de limpieza 4 20 488 146,4 634,4 Área de mantenimiento 2 30 Almacén 4 200 Lavandería 1 20 Tópico 1 25 Cuarto de basura 1 60 Cuarto de máquinas 1 40 Cuarto de cisternas 1 25 Montacargas 1 8 SS.HH. Hombres 3 2 30 SS.HH. Mujeres 3 2 30 COMPLEMENTARIOSSERVICIOS Lavandería 1 20 1470 441 1911 Sala de ocio 1 80 5 400 Comedor buffet 1 100 200 Cafetería 1 30 3 90 Spa 1 200 Gimnasio 1 200 Bar 1 60 Piscina 1 300 TOTAL 10483 3144,9 13627,9 ZONA AMBIENTE NÚMERO AFORO AREA/PER ÁREA SUBTOTAL circulaciónMuros30%y TOTAL LOBBY Recepción 1 2 20 872,8 261,84 1134,64 Sala de espera 1 50 16 800 Zona de información 1 2 2,9 5,8 SS.HH. Hombres 1 3 10 SS.HH. Mujeres 1 3 10 Oficina de seguridad 1 3 9 27 ZONA DE TRABAJO Salas privadas 100 2 6 1200 6320 1896 8216 Salas de equipo 36 10 6 2160 Salas de videoconferencia 16 15 1,5 360 Cookworking 20 10 6 1200 Sala común 8 40 3 960 Secretaria 8 1 10 80 SS.HH. Hombres 9 5 180 SS.HH. Mujeres 9 5 180 ZONA DE GENERALESSERVICIOS Cuarto de limpieza 5 15 240 72 312 Almacén 2 100 Cuarto de basura 1 20 Cuarto de máquinas 2 80 Cuarto de cisternas 1 25 COMPLEMENTARIOSSERVICIOS Sala de exposiciones 2 50 3 300 2255 676,5 2931,5 Sala de descanso 1 60 6 360 Sala de ocio 1 150 6 900 Cocina + Comedor 1 100 200 Cafetería 2 40 3 240 Zona de lockers 8 80 Sala de fotocopias e impresiones 7 175 TOTAL 9687,8 2906,34 12594,1 PROPUESTAPROGRAMA ARQUITECTÓNICO CORONADOBARRIGACHAVEZCOTERA LA MARQUEZROSAPATRICIOPEREDAECHEVARRIAFLORESGARCÍALAPA RENTERÍARAMOSVALLEJOSVISOD.A. 5B Mg. ARQ. ORTIZ AGAMA Mg. ARQ. CÁRDENAS FLORES Mg. ARQ. CARRASCO ESCARCENA Mg. ARQ. MORALES DELGADO Mg. ARQ. PALACIOS ROJAS DRA. ARQ. ROSSI CHANG2022-1 CENTRO DE CONVENCIONES HOTEL OFICINAS-COWORKING

CORONADOBARRIGACHAVEZCOTERA LA MARQUEZROSAPATRICIOPEREDAECHEVARRIAFLORESGARCÍALAPA RENTERÍARAMOSVALLEJOSVISOD.A. 5B Mg. ARQ. ORTIZ AGAMA Mg. ARQ. CÁRDENAS FLORES Mg. ARQ. CARRASCO ESCARCENA Mg. ARQ. MORALES DELGADO Mg. ARQ. PALACIOS ROJAS DRA. ARQ. ROSSI CHANG2022-1 DIAGRAMA FUNCIONAL HOTEL & CO-WORKING PLAZAACCESODE RECEPCIÓN SALA ESPERADE LOBBY SERVICIOSHALLDE MÁQUINACUARTODECUARTODEBASURACUARTO CISTERNADE LIMPIEZACUARTODE COCINA VESTUARIOS COMEDOR CAFETERÍA SALAOCIODE OFICINAS COMÚNSALA SALA LOCKERSDE SALA SECRETARFOTOCOPIDEASÍASALA VIDEOCONDEFERENCIAS COWORKISALASPRIVADASSALASDENG SALASEQUIPODE RECEPCIÓN INFORMES ESTACIONAMIENTO SALA ESPERADE SERVICIOSHALLDEHALLDETRABAJADORES LOBBY COMEDOR VESTIDORES SALA JUNTASDE SECRETAROFICINADEIA GERENCIAGENERAL SEGURIDAOFICINADED MARKETINOFICINADEG MÁQUINACUARTODEALMACÉN CUARTO LAVANDERÍAMANTENIMIEÁREACISTERNASDEDENTOMONTACARGASCUARTODEBASURA SALADEOCIO TÓPICO HABITACIONESYSUITES GIMNASIO PISCINA SPA COMEDORBUFFET CAFETERÍABARHOTEL CO-WORKING

CORONADOBARRIGACHAVEZCOTERA LA MARQUEZROSAPATRICIOPEREDAECHEVARRIAFLORESGARCÍALAPA RENTERÍARAMOSVALLEJOSVISOD.A. 5B Mg. ARQ. ORTIZ AGAMA Mg. ARQ. CÁRDENAS FLORES Mg. ARQ. CARRASCO ESCARCENA Mg. ARQ. MORALES DELGADO Mg. ARQ. PALACIOS ROJAS DRA. ARQ. ROSSI CHANG2022-1 DIAGRAMA FUNCIONAL CENTRO DE CONVENCIONES PLAZA LLEGADADE RECEPCIÓN TAQUILLA PATIO MANIOBRDEAS SALA ESPERADEESTACIONAMIENTO TRABAJADHALLDEORES HALL SALA REUNIONEDES COMEDORSECRETAROFICINACONTABILOFICINADEIDADDEIAGERENCIAGENERAL SEGURIDAOFICINADED PROMOCIOFICINADEÓNYDIFUSIÓN BASURACUARTOMÁQUINACUARTODEDE CUARTO CISTERNASDE PRINCIPASALALDEEXPOSICIÓN SALA VIDEOCONDEFERENCIASAUDITORIO TIENDA SOUVENIRDES LIMPIEZACUARTODE INFORMÁTOFICINADEICA GALERÍA SUM SECUNDASALASRIAS CAFETERÍA VESTUARIOSCOCINA CENTRO CONVENCIONESDE

CORONADOBARRIGACHAVEZCOTERA LA MARQUEZROSAPATRICIOPEREDAECHEVARRIAFLORESGARCÍALAPA RENTERÍARAMOSVALLEJOSVISOD.A. 5B Mg. ARQ. ORTIZ AGAMA Mg. ARQ. CÁRDENAS FLORES Mg. ARQ. CARRASCO ESCARCENA Mg. ARQ. MORALES DELGADO Mg. ARQ. PALACIOS ROJAS DRA. ARQ. ROSSI CHANG2022-1 DIAGRAMA FUNCIONAL CENTRO COMERCIAL PLAZA LLEGADADE CENTRALPLAZA DECUARTOB,MYC HALLPARATRABAJADORES OFICINAS COMERCIAHALLL SEGURIDAOFICINACONTABILOFICINADEIDADDEDMARKETINOFICINADEGSECRETAROFICINADEIAGERENCIAGENERAL SALA REUNIONEDES COMEDOR ÁREA VESTIDORMANTENIDEMIENTOES INDEPENDTIENDASDEPARTATIENDASPORMENTOIENTES LIMPIEZACUARTODE INFORMÁTOFICINADEICA SUPERMERCADO ALMACÉN ESTACIONAMIENTOSMANIOBRPATIOCONTROLCASETADEDEAS RECEPCIÓN SALA ESPERADE BANCARIAAGENCIASS COMERCIAHALLL GYMCINEPARQUEDEDIVERSIONES TÓPICO EXPLANADA RESTAURAPLAZADENTES ESCENARIOZONADEMESAS PUESTOSDECOMIDA COMERCIALCENTRO

5. APROXIMACIÓN VOLUMÉTRICA

CENTRO POLIDEPORTIVO CENTRO CULTURAL . MUSEO EL PESCADOR TERMINAL PESQUEROPUERTO DE FERRYS CORONADOBARRIGACHAVEZCOTERA LA MARQUEZROSAPATRICIOPEREDAECHEVARRIAFLORESGARCÍALAPA RENTERÍARAMOSVALLEJOSVISOD.A. 5B Mg. ARQ. ORTIZ AGAMA Mg. ARQ. CÁRDENAS FLORES Mg. ARQ. CARRASCO ESCARCENA Mg. ARQ. MORALES DELGADO Mg. ARQ. PALACIOS ROJAS DRA. ARQ. ROSSI CHANG2022-1 Centro comercial

NODOSVÍASPEATONALESGENERADOS 406.8 m MATERIALIDAD

VISTAS

La presencia del aeropuerto Jorge Chávez, significa para el lugar un punto de personas,congregacióngrandecosaquepuedegenerardiferenteszonas comerciales y turísticas. No obstante, también significa un punto de alta incidencia sonora que llega a ser un problema importante para el sitio.

133197 37340530 9 8 7 6 5 4 3 2 1 0 m.s.n.m.

TIPOLOGÍA DE EDIFICACIÓN

TEMPERATURA VIENTOS Nos encontramos en una ciudad portuaria con el máximo de 27°C en febrero y el mínimo de 15°C en agosto.

CORONADOBARRIGACHAVEZCOTERA LA MARQUEZROSAPATRICIOPEREDAECHEVARRIAFLORESGARCÍALAPA RENTERÍARAMOSVALLEJOSVISOD.A. 5B Mg. ARQ. ORTIZ AGAMA Mg. ARQ. CÁRDENAS FLORES Mg. ARQ. CARRASCO ESCARCENA Mg. ARQ. MORALES DELGADO Mg. ARQ. PALACIOS ROJAS DRA. ARQ. ROSSI CHANG2022-1 La bahía del Callao Cerro “La Regla” Cerro “El Paraíso” El lugar se encuentra en una zona de una topografía poca accidentada.

HUMEDAD El periodo más húmedo es de diciembre a abril, mientras que el mes de más bochorno es en febrero. El sol tiene una inclinación hacia el sur durante las estaciones de verano y otoño, mientras que en invierno y primavera, tiende a inclinarse hacia el norte.Según la rosa de vientos, estos son predominantesdelNor-este.

PRESENCIA DE SINGULARIDADES

TIPOS DE SUELO Arena limosa y limo arcillosa (prof. hasta 5m) Arena con poco limo, secas, trazas de humedad Suelo de relleno: suelo gravoso y grava limosa, intercalaciones de CL-ML (prof. 11m) Gráfico hecho en base al “Mapa de clasificación de suelos”. Gerencia Regional de Planeamiento, Presupuesto y Acondicionamiento Territorial del Callao.

Las edificaciones son casi en su totalidad de material noble, donde el material predominante es el ladrillo, hormigón y el acero. Así mismo el uso de diferentes adoquines en las calles.

En su mayoría, el lugar se compone de zonas residenciales. La zona con más cercanía a la Av. Oquendo, los edificios son de mayor altura (8-12 niveles), mientras que las de mayor cercanía al litoral, su altura disminuye (3-5). Así mismo se tiene una gran área de industria, donde las edificaciones varían entre los 3-5 niveles.

CONFORT Para lograr un confort en el lugar se debe: ➔ El lugar es una zona muy húmeda, por las propias características de la ciudad y por la cercanía directa al mar, por lo tanto es necesario tener una ventilación controlada y usar materiales que permitan controlar y disminuir ese problema. que funcione tanto en invierno como en verano. ➔ Según el recorrido solar, según la estación, este tiene diferente inclinación, por lo tanto se debe buscar la forma controlarde la incidencia de este se evite en verano.

espacio público Aproximación PARAMÉTRICO Elemento paramétrico

TerminalPesquero

EQUIPAMIENTO URBANO - CENTRO COMERCIAL CORONADOBARRIGACHAVEZCOTERA LA MARQUEZROSAPATRICIOPEREDAECHEVARRIAFLORESGARCÍALAPA RENTERÍARAMOSVALLEJOSVISOD.A. 5B Mg. ARQ. ORTIZ AGAMA Mg. ARQ. CÁRDENAS FLORES Mg. ARQ. CARRASCO ESCARCENA Mg. ARQ. MORALES DELGADO Mg. ARQ. PALACIOS ROJAS DRA. ARQ. ROSSI CHANG2022-1 COMERCIALCENTRO COWORKINGCENTROHOTELDE CONVENCIONES ESPACIOABIERTOPÚBLICO24H FLUJO PEATONAL FLUJO VEHÍCULAR OQUENDO COBERTURA PARAMÉTRICA 1era y 2da planta 3era y 4ta planta Plantas Altas

CORONADOBARRIGACHAVEZCOTERA LA MARQUEZROSAPATRICIOPEREDAECHEVARRIAFLORESGARCÍALAPA RENTERÍARAMOSVALLEJOSVISOD.A. 5B Mg. ARQ. ORTIZ AGAMA Mg. ARQ. CÁRDENAS FLORES Mg. ARQ. CARRASCO ESCARCENA Mg. ARQ. MORALES DELGADO Mg. ARQ. PALACIOS ROJAS DRA. ARQ. ROSSI CHANG2022-1 IMAGEN OBJETIVO - CENTRO COMERCIAL Centro de Convenciones Hotel

6. DISTRIBUCIÓN GENERAL

DA 5B G4.1 LAPA VISOPEREDAPALOMINOMireyaMeryEstebanMarko C Á T E D R A ORTIZ CARRASCOPALACIOSCÁRDENASRobinsonFioleríJuanLuisAlexey MORALES Luis ROSSI ZALDÍVARSusanaJorge P R O P U E S T A D E CENTRO COMERCIAL EN COSTA AZUL - CALLAO L1IMAGEN SÍNTESIS ÁREA TECHADA, ÁREA LIBRE

CONCEPTOS Isla Palomino

DA 5B G4.1 LAPA VISOPEREDAPALOMINOMireyaMeryEstebanMarko C Á T E D R A ORTIZ CARRASCOPALACIOSCÁRDENASRobinsonFioleríJuanLuisAlexey MORALES Luis ROSSI ZALDÍVARSusanaJorge P R O P U E S T A D E CENTRO COMERCIAL EN COSTA AZUL - CALLAO L3PLANO DE UBICACIÓN ÁREA TECHADA, ÁREA LIBRE ESCALA GRÁFICA 0 m 20 m 40 m 60 m 80 m 100 m AV.CARLOSIZAGUIRRE AV. COSTA AZUL TERMINAL PESQUERO AV.LAGRANVÍA AV. COSTA AZUL AV. COSTA AZUL

DA 5B G4.1 LAPA VISOPEREDAPALOMINOMireyaMeryEstebanMarko C Á T E D R A ORTIZ CARRASCOPALACIOSCÁRDENASRobinsonFioleríJuanLuisAlexey MORALES Luis ROSSI ZALDÍVARSusanaJorge P R O P U E S T A D E CENTRO COMERCIAL EN COSTA AZUL - CALLAO L4PLOT PLAN ÁREA TECHADA, ÁREA LIBRE ESCALA GRÁFICA

DA 5B G4.1 LAPA VISOPEREDAPALOMINOMireyaMeryEstebanMarko C Á T E D R A ORTIZ CARRASCOPALACIOSCÁRDENASRobinsonFioleríJuanLuisAlexey MORALES Luis ROSSI ZALDÍVARSusanaJorge P R O P U E S T A D E CENTRO COMERCIAL EN COSTA AZUL - CALLAO L5PROGRAMACIÓN ÁREA TECHADA, ÁREA LIBRE ESTACIONAMIENTO CENTRO RESTAURANTESDIVERSIONESDEYCAFETERÍAS SUPERMERCADO ZONAGENERALESSERVICIOSALMACENESDESCARGAYZONAS BANCARIAS ADMINISTRATIVAZONA PARQUE DIVERSIONESDE L E Y E N D A ZONA COMERCIAL ZONA ZONASERVICIOSADMINISTRATIVACOMPLEMENTARIOSDECOMIDASZONADESERVICIOS A A BB

DA 5B G4.1 LAPA VISOPEREDAPALOMINOMireyaMeryEstebanMarko C Á T E D R A ORTIZ CARRASCOPALACIOSCÁRDENASRobinsonFioleríJuanLuisAlexey MORALES Luis ROSSI ZALDÍVARSusanaJorge P R O P U E S T A D E CENTRO COMERCIAL EN COSTA AZUL - CALLAO L6PROGRAMACIÓN ÁREA TECHADA, ÁREA LIBRE RESTAURANTES Y CAFETERÍAS TIENDAS Y RESTAURANTESGALERÍAS Y CAFETERÍAS PATIO DE COMIDAS DE COMIDAS PUESTOS GIMNASIO SALACINEDESALADECINESALADECINESERVICIOS SALACINEDE L E Y E N D A ZONA COMERCIAL ZONA ZONASERVICIOSADMINISTRATIVACOMPLEMENTARIOSDECOMIDASZONADESERVICIOS A A BB

DA 5B G4.1 LAPA VISOPEREDAPALOMINOMireyaMeryEstebanMarko C Á T E D R A ORTIZ CARRASCOPALACIOSCÁRDENASRobinsonFioleríJuanLuisAlexey MORALES Luis ROSSI ZALDÍVARSusanaJorge P R O P U E S T A D E CENTRO COMERCIAL EN COSTA AZUL - CALLAO L7PROGRAMACIÓN ÁREA TECHADA, ÁREA LIBRE SALA SALASALACINEDEDECINEDECINESALA SALACINEDEDECINETIENDA DEPARTAMENTOPOR DE COMIDAS PATIO TIENDAS Y GALERÍAS PUESTOS DE COMIDA L E Y E N D A ZONA COMERCIAL ZONA ZONASERVICIOSADMINISTRATIVACOMPLEMENTARIOSDECOMIDASZONADESERVICIOS A A BB

DA 5B G4.1 LAPA VISOPEREDAPALOMINOMireyaMeryEstebanMarko C Á T E D R A ORTIZ CARRASCOPALACIOSCÁRDENASRobinsonFioleríJuanLuisAlexey MORALES Luis ROSSI ZALDÍVARSusanaJorge P R O P U E S T A D E CENTRO COMERCIAL EN COSTA AZUL - CALLAO L8AXONOMETRÍA EXPLOTADA Y CORTES FUGADOS L E Y E N D A ZONA COMERCIAL ZONA ZONASERVICIOSADMINISTRATIVACOMPLEMENTARIOSDECOMIDASZONADESERVICIOS CORTE A-A CORTE B-B

DA 5B G4.1 LAPA VISOPEREDAPALOMINOMireyaMeryEstebanMarko C Á T E D R A ORTIZ CARRASCOPALACIOSCÁRDENASRobinsonFioleríJuanLuisAlexey MORALES Luis ROSSI ZALDÍVARSusanaJorge P R O P U E S T A D E CENTRO COMERCIAL EN COSTA AZUL - CALLAO L9FLUJOS PEATONALES Y VEHICULARES ESTACIONAMIENTO CENTRO RESTAURANTESDIVERSIONESDEYCAFETERÍAS SUPERMERCADO GENERALESSERVICIOSZONAALMACENESDESCARGAYBANCARIASZONAS ZONA ADMINISTRATIVAPARQUE DIVERSIONESDE RESTAURANTESYCAFETERÍAS TIENDAS YRESTAURANTESGALERÍASYCAFETERÍAS PATIO COMIDASDE COMIDASDE PUESTOS GIMNASIO SALACINEDESALADECINESALADECINESERVICIOS SALACINEDE SALA SALASALACINEDEDECINEDECINESALA SALACINEDEDECINETIENDA DEPARTAMENTOPOR DEPATIOCOMIDAS TIENDAS Y GALERÍAS PUESTOSCOMIDADE P L A N T A PRIMER NIVEL P L A N T A SEGUNDO NIVEL P L A N T A TERCER NIVEL PATIO COMIDASDE LEYENDA FLUJO PEATONAL VISITANTES FLUJO PEATONAL PERSONAL FLUJO VEHICULAR

DA 5B G4.1 LAPA VISOPEREDAPALOMINOMireyaMeryEstebanMarko C Á T E D R A ORTIZ CARRASCOPALACIOSCÁRDENASRobinsonFioleríJuanLuisAlexey MORALES Luis ROSSI ZALDÍVARSusanaJorge P R O P U E S T A D E CENTRO COMERCIAL EN COSTA AZUL - CALLAO L10PROGRAMACIÓN ÁREA TECHADA, ÁREA LIBRE ZONA AMBIENTE NÚMERO AFORO AREA/PER ÁREA SUBTOTAL 30% Muros circulacionesy TOTAL NIVEL % TOTAL ZONA PÚBLICA Caseta de control 4 1 3 12 12 3,6 15,6 1 0,2903459956 5372,9 ADMINISTRATIVAZONA Recepción 1 1 10 10 115,5 34,65 150,15 1 2,794580208 5372,9 Gerencia general 1 1 10 10 1 Sala de espera 1 5 1 5 1 Sala de reuniones 1 6 3 18 1 Espacio de oficinas 1 5 10 50 1 Comedor 1 5 1,5 7,5 1 SS.HH. Hombres y mujeres 1 8 15 1 ZONA GENERALESSERVICIOSDE Cuarto de limpieza 3 10 30 445 133,5 578,5 1 - 2 - 3 10,76699734 5372,9 Área de mantenimiento 2 25 1 Cuarto de basura 1 20 1 Cuarto de máquinas 1 25 1 Cuarto de cisternas 1 35 1 Area de descarga 1 10 28 280 1 Vestidores + SS.HH. Hombres y mujeres 1 30 1 COMERCIO Supermercado 1 100 2,5 250 1658 497,4 2155,4 1 40,1161384 5372,9 Tiendas por departamento 1 100 3 300 1 Tiendas independiente 1 14 15 2,8 588 1 Galerias 16 15 2 480 2 SS.HH. Hombres y mujeres 40 3 COMPLEMENTARIOSSERVICIOS Salas de cine 6 80 0,7 336 681 204,3 885,3 2-3 16,47713525 5372,9 Gimnasio 1 50 4,6 230 2 Tópico 1 6 25 1 Agencias bancarias 1 10 5 50 1 SS.HH. Hombres y mujeres 20 40 1 ZONA DE COMIDA Puestos de comidas(cocina) 10 5 9,3 465 878,5 263,55 1142,05 2 Plaza de restaurantes 5 25 1,5 187,5 2 Cocina 5 4 9,3 186 SS.HH.Hombresymujeres 1 10 40 2 3790 1137 4927 ÁREA T E C H A D A

DA 5B G4.1 LAPA VISOPEREDAPALOMINOMireyaMeryEstebanMarko C Á T E D R A ORTIZ CARRASCOPALACIOSCÁRDENASRobinsonFioleríJuanLuisAlexey MORALES Luis ROSSI ZALDÍVARSusanaJorge P R O P U E S T A D E CENTRO COMERCIAL EN COSTA AZUL - CALLAO L11PROGRAMACIÓN ÁREA TECHADA, ÁREA LIBRE ZONA AMBIENTE NÚMERO AFORO AREA/PER ÁREA SUBTOTAL 30% Muros y circulaciones TOTAL ÁREA NO TECHADA EXPLANADA 1 1000 0,3 300 1595 478,5 2073,5 ESCENARIO 1 15 3 45 PLAZA 1 200 2 400 PATIO DE COMIDAS 1 300 1,5 450 PARQUE DE DIVERSIONES 1 100 4 400 ZONA AMBIENTE NÚMERO PERSONAL EST/PER PER ESTACIONAMIENTOS PÚBLICO EST/PER PÚBLICO ESTACIONAMIENTOS TOTAL ADMINISTRATIVAZONA Recepción 1 8 1/25 1 1 Gerencia General 1 Sala De Espera 1 Sala De Reuniones 1 Espacio De Oficinas 1 Comedor 1 Ss.Hh. Hombres Y Mujeres 1 ZONA GENERALESSERVICIOSDE Cuarto De Limpieza 3 15 1/25 1 1 Área De Mantenimiento 2 Cuarto De Basura 1 Cuarto De Máquinas 1 Cuarto De Cisternas 1 Área De Descarga 1 COMERCIO Supermercado 1 15 1/20 1 85 1/20 5 39Tiendas Por Departamento 1 10 1/25 1 90 1/25 4 Tiendas Independiente 1 14 28 1/15 2 182 1/15 13 Galerías 16 32 1/25 2 208 1/20 11 COMPLEMENTARIOSSERVICIOS Cine 5 10 1/25 1 390 1/25 16 25Gimnasio 1 5 1/15 1 50 1/10 5 Agencias Bancarias 1 5 1/15 1 10 1/10 1 DEZONACOMIDA Puestos De Comidas (Cocina) 10 50 1/20 3 5Cocina 5 35 1/20 2 ÁREA NO TECHADA Explanada 1 0 1000 1/25 40 69 Escenario 1 0 15 1/25 1 Plaza 1 0 200 1/25 8 Patio De Comidas 1 6 1/20 1 300 1/20 15 Parque De Diversiones 1 20 1/25 1 100 1/20 5 ÁREA N O T E C H A D A CÁLCULO PARA NRO. ESTACIONAMIENTOS

DA 5B G4.1 LAPA VISOPEREDAPALOMINOMireyaMeryEstebanMarko C Á T E D R A ORTIZ CARRASCOPALACIOSCÁRDENASRobinsonFioleríJuanLuisAlexey MORALES Luis ROSSI ZALDÍVARSusanaJorge P R O P U E S T A D E CENTRO COMERCIAL EN COSTA AZUL - CALLAO L12PROGRAMACIÓN ÁREA TECHADA, ÁREA LIBRE ZONA AMBIENTE NÚMERO AFORO AREA/EST. ÁREA TOTAL ZONA PÚBLICA Estacionamiento de autos 84 1 16 1344 3118,6 Estacionamiento de motos 14 1 2,9 40,6 Estacionamiento de bicicletas 42 1 2 84 Estacionamiento de carga 3 50 150 Patio de maniobras 1 1500 ÁREA N O T E C H A D A ESTACIONAMIENTOS (norma A.070 comercio) TIPO DE COMERCIO ESTACIONAMIENTOS LIMA TOTAL COMERCIO DISTRITAL 140 1 140 TIPO DE VEHÍCULO % TOTAL DE ESTC TOTAL AUTOS 60% 140 84 MOTOS 10% 140 14 VEHICULOS MENORES 30% 140 42 ÁREA PARA ESTACIONAMIENTOS PORCENTAJE(%)Á R E A T O T A L ZONAS ÁREAS % ÁREA TECHADA 5016,7 36% AREA NO TECHADA 5192,1 37% AREA VERDE 3791,2 27% ÁREA DEL TERRENO 14000 100%

DA 5B G4.1 LAPA VISOPEREDAPALOMINOMireyaMeryEstebanMarko C Á T E D R A ORTIZ CARRASCOPALACIOSCÁRDENASRobinsonFioleríJuanLuisAlexey MORALES Luis ROSSI ZALDÍVARSusanaJorge P R O P U E S T A D E CENTRO COMERCIAL EN COSTA AZUL - CALLAO L14APUNTES

D 5B PEREDA Esteban VISO Marko PALACIOS Juan Luis CARRASCO Alexey ZALDÍVAR Jorge EN COSTA AZUL - CALLAO L1CON ENTORNO P L A N T A PRIMER NIVEL

DA 5B G4.1 LAPA VISOPEREDAPALOMINOMireyaMeryEstebanMarko C Á T E D R A ORTIZ CARRASCOPALACIOSCÁRDENASRobinsonFioleríJuanLuisAlexey MORALES Luis ROSSI ZALDÍVARSusanaJorge P R O P U E S T A D E CENTRO COMERCIAL EN COSTA AZUL - CALLAO L2SEGUNDO NIVEL P L A N T A SEGUNDO NIVEL

DA 5B G4.1 LAPA VISOPEREDAPALOMINOMireyaMeryEstebanMarko C Á T E D R A ORTIZ CARRASCOPALACIOSCÁRDENASRobinsonFioleríJuanLuisAlexey MORALES Luis ROSSI ZALDÍVARSusanaJorge P R O P U E S T A D E CENTRO COMERCIAL EN COSTA AZUL - CALLAO L5PROGRAMACIÓN ÁREA TECHADA, ÁREA LIBRE ZONA AMBIENTE NÚMERO AFORO AREA/EST. ÁREA TOTAL ZONA PÚBLICA Estacionamiento de autos 84 1 16 1344 3118,6 Estacionamiento de motos 14 1 2,9 40,6 Estacionamiento de bicicletas 42 1 2 84 Estacionamiento de carga 3 50 150 Patio de maniobras 1 1500 ÁREA N O T E C H A D A ESTACIONAMIENTOS (norma A.070 comercio) TIPO DE COMERCIO ESTACIONAMIENTOS LIMA TOTAL COMERCIO DISTRITAL 140 1 140 TIPO DE VEHÍCULO % TOTAL DE ESTC TOTAL AUTOS 60% 140 84 MOTOS 10% 140 14 VEHICULOS MENORES 30% 140 42 ÁREA PARA ESTACIONAMIENTOS PORCENTAJE(%)Á R E A T O T A L ZONAS ÁREAS % ÁREA TECHADA 5016,7 36% AREA NO TECHADA 5192,1 37% AREA VERDE 3791,2 27% ÁREA DEL TERRENO 14000 100%

DA 5B G4.1 LAPA VISOPEREDAPALOMINOMireyaMeryEstebanMarko C Á T E D R A ORTIZ CARRASCOPALACIOSCÁRDENASRobinsonFioleríJuanLuisAlexey MORALES Luis ROSSI ZALDÍVARSusanaJorge P R O P U E S T A D E CENTRO COMERCIAL EN COSTA AZUL - CALLAO L1CORTE A-A CORTE A-A´ 1:150

DA 5B G4.1 LAPA VISOPEREDAPALOMINOMireyaMeryEstebanMarko C Á T E D R A ORTIZ CARRASCOPALACIOSCÁRDENASRobinsonFioleríJuanLuisAlexey MORALES Luis ROSSI ZALDÍVARSusanaJorge P R O P U E S T A D E CENTRO COMERCIAL EN COSTA AZUL - CALLAO L2CORTE B-B CORTE B-B´ 1:200 DEDESALACINESALACINE DESALACINE DESALACINE HALL PATIO DE COMIDAS GALERÍATIENDA ADMINISTRACIÓN CENTRO DIVERSIONESDE ESTACIONAMIENTO PATIO DE COMIDAS TIENDA TIENDA TIENDA

8. ANTEPROYECTO

DA 5B G4.1 LAPA VISOPEREDAPALOMINOMireyaMeryEstebanMarko C Á T E D R A ORTIZ CARRASCOPALACIOSCÁRDENASRobinsonFioleríJuanLuisAlexey MORALES Luis ROSSI ZALDÍVARSusanaJorge P R O P U E S T A D E CENTRO COMERCIAL EN COSTA AZUL - CALLAO L1

CONCEPTO

CONCEPTO y MORFOGÉNESIS

Para complementar la idea de las islas, se concibió una cubierta que simula el mar y las olas que rodean y conviven con estas. Así mismo, esta cubierta funcionará para cubrir los aterrazamientos del proyecto, de esta manera se controla la incidencia solar y los vientos.

CubiertaVolumetríaparamétrica

Finalmente, esta cubierta tendría un tratamiento de aberturas, las cuales seguirán la misma morfología urbana en donde se encuentra el proyecto, esto a modo de un tejido, además de seguir una misma lectura ortogonal que se maneja en el proyecto.

Cubierta paramétrica

DA 5B G4.1 LAPA VISOPEREDAPALOMINOMireyaMeryEstebanMarko C Á T E D R A ORTIZ CARRASCOPALACIOSCÁRDENASRobinsonFioleríJuanLuisAlexey MORALES Luis ROSSI ZALDÍVARSusanaJorge P R O P U E S T A D E CENTRO COMERCIAL EN COSTA AZUL - CALLAO L2PLANO DE UBICACIÓN ÁREA TECHADA, ÁREA LIBRE ESCALA GRÁFICA 0 m 20 m 40 m 60 m 80 m 100 m AV.CARLOSIZAGUIRRE AV. COSTA AZUL TERMINAL PESQUERO AV.LAGRANVÍA AV. COSTA AZUL AV. COSTA AZUL

DA 5B G4.1 LAPA VISOPEREDAPALOMINOMireyaMeryEstebanMarko C Á T E D R A ORTIZ CARRASCOPALACIOSCÁRDENASRobinsonFioleríJuanLuisAlexey MORALES Luis ROSSI ZALDÍVARSusanaJorge P R O P U E S T A D E CENTRO COMERCIAL EN COSTA AZUL - CALLAO L3PLOT PLAN ÁREA TECHADA, ÁREA LIBRE ESCALA GRÁFICA

DA 5B G4.1 LAPA VISOPEREDAPALOMINOMireyaMeryEstebanMarko C Á T E D R A ORTIZ CARRASCOPALACIOSCÁRDENASRobinsonFioleríJuanLuisAlexey MORALES Luis ROSSI ZALDÍVARSusanaJorge P R O P U E S T A D E CENTRO COMERCIAL EN COSTA AZUL - CALLAO L4CORTES FUGADOS ESCALA GRÁFICA CORTE A-A´

DA 5B G4.1 LAPA VISOPEREDAPALOMINOMireyaMeryEstebanMarko C Á T E D R A ORTIZ CARRASCOPALACIOSCÁRDENASRobinsonFioleríJuanLuisAlexey MORALES Luis ROSSI ZALDÍVARSusanaJorge P R O P U E S T A D E CENTRO COMERCIAL EN COSTA AZUL - CALLAO L5CORTES FUGADOS ESCALA GRÁFICA

DA 5B G4.1 LAPA VISOPEREDAPALOMINOMireyaMeryEstebanMarko C Á T E D R A ORTIZ CARRASCOPALACIOSCÁRDENASRobinsonFioleríJuanLuisAlexey MORALES Luis ROSSI ZALDÍVARSusanaJorge P R O P U E S T A D E CENTRO COMERCIAL EN COSTA AZUL - CALLAO L6CORTE A-A CORTE A-A´ 1:150

DA 5B G4.1 LAPA VISOPEREDAPALOMINOMireyaMeryEstebanMarko C Á T E D R A ORTIZ CARRASCOPALACIOSCÁRDENASRobinsonFioleríJuanLuisAlexey MORALES Luis ROSSI ZALDÍVARSusanaJorge P R O P U E S T A D E CENTRO COMERCIAL EN COSTA AZUL - CALLAO L7CORTE B-B CORTE B-B´ 1:150 DEDESALACINESALACINE DESALACINE DESALACINE HALL PATIO DE COMIDAS GALERÍATIENDA ADMINISTRACIÓN CENTRO DIVERSIONESDE ESTACIONAMIENTO PATIO DE COMIDAS TIENDA TIENDA TIENDA

D 5B PEREDA Esteban VISO Marko PALACIOS Juan Luis CARRASCO Alexey ZALDÍVAR Jorge EN COSTA AZUL - CALLAO L8CON ENTORNO P L A N T A PRIMER NIVEL 1:250 B B A C D E F G H BI J K 1 2 4 5 6 3 LM

D 5B PEREDA Esteban VISO Marko PALACIOS Juan Luis CARRASCO Alexey ZALDÍVAR Jorge EN COSTA AZUL - CALLAO L8CON ENTORNO B B

DA 5B G4.1 LAPA VISOPEREDAPALOMINOMireyaMeryEstebanMarko C Á T E D R A ORTIZ CARRASCOPALACIOSCÁRDENASRobinsonFioleríJuanLuisAlexey MORALES Luis ROSSI ZALDÍVARSusanaJorge P R O P U E S T A D E CENTRO COMERCIAL EN COSTA AZUL - CALLAO L9SEGUNDO NIVEL P L A N T A SEGUNDO NIVEL A A B B 1:250

DA 5B G4.1 LAPA VISOPEREDAPALOMINOMireyaMeryEstebanMarko C Á T E D R A ORTIZ CARRASCOPALACIOSCÁRDENASRobinsonFioleríJuanLuisAlexey MORALES Luis ROSSI ZALDÍVARSusanaJorge P R O P U E S T A D E CENTRO COMERCIAL EN COSTA AZUL - CALLAO L10TERCER NIVEL P L A N T A TERCER NIVEL AAB B 1:250 A C D E F G H BI J K 1 2 4 5 6 3

9. ANTEPROYECTO 2DA ETAPA

9.1 PLOT PLAN

DA 5B G4.1 LAPA VISOPEREDAPALOMINOMireyaMeryEstebanMarko C Á T E D R A ORTIZ CARRASCOPALACIOSCÁRDENASRobinsonFioleríJuanLuisAlexey MORALES Luis ROSSI ZALDÍVARSusanaJorge P R O P U E S T A D E CENTRO COMERCIAL EN COSTA AZUL - CALLAO L2SÓTANO CON ENTORNO SÓTANO ESCALA GRÁFICA 0 5 10 15 20 25 30 m ALMACÉN 1 NPT. -4.00 m ESTACIONAMIENTO PÚBLICO NPT. -3.00 m PERSONALPARAEST. NPT. -4.00 m B B’ A’ C C’ D E F G H I J K BCL

DA 5B G4.1 LAPA VISOPEREDAPALOMINOMireyaMeryEstebanMarko C Á T E D R A ORTIZ CARRASCOPALACIOSCÁRDENASRobinsonFioleríJuanLuisAlexey MORALES Luis ROSSI ZALDÍVARSusanaJorge P R O P U E S T A D E CENTRO COMERCIAL EN COSTA AZUL - CALLAO L3PRIMER NIVEL CON ENTORNO P L A N T A PRIMER NIVEL ESCALA GRÁFICA 0 5 10 15 20 25 30 m HALL NPT. 0.00 m NPT. +1.00 m NPT. +0.60 m ALMACÉN SUPERMERCADO2TIENDA POR DEPARTAMENTO CUARTOBASURADE TIENDA TIENDA TIENDA TIENDA TIENDA TIENDA TIENDA TIENDA TIENDATIENDA TIENDA TIENDA TIENDA TIENDA QUIOSCOQUIOSCOQUIOSCOQUIOSCOQUIOSCO B B’ AA’ C C’ 1 2 3 4 5 6 7 D E F G H I J K ABCL

DA 5B G4.1 LAPA VISOPEREDAPALOMINOMireyaMeryEstebanMarko C Á T E D R A ORTIZ CARRASCOPALACIOSCÁRDENASRobinsonFioleríJuanLuisAlexey MORALES Luis ROSSI ZALDÍVARSusanaJorge P R O P U E S T A D E CENTRO COMERCIAL EN COSTA AZUL - CALLAO L4SEGUNDO NIVEL ESCALA GRÁFICA 0 5 10 15 20 25 30 m P L A N T A SEGUNDO NIVEL HALL NPT. +5.00 m PATIO DE COMIDAS GALERÍAGALERÍAGALERÍA TIENDA TIENDA TIENDA TIENDA TIENDA CINE TIENDA B B’ AA’ C C’ 1 2 3 4 5 6 7 D E F G H I J K ABCL

DA 5B G4.1 LAPA VISOPEREDAPALOMINOMireyaMeryEstebanMarko C Á T E D R A ORTIZ CARRASCOPALACIOSCÁRDENASRobinsonFioleríJuanLuisAlexey MORALES Luis ROSSI ZALDÍVARSusanaJorge P R O P U E S T A D E CENTRO COMERCIAL EN COSTA AZUL - CALLAO L5 P L A N T A TERCER NIVEL ESCALA GRÁFICA 0 5 10 15 20 25 30 m GALERÍAGALERÍAGALERÍA GIMNASIO SALA BAILESALABAILEDEDE GALERÍA GALERÍA GALERÍA GALERÍA GALERÍA GALERÍA CINE HALL NPT. +9.00 m +9..00NPT.m NPT.m+8.00 TERCER NIVEL B B’ AA’ C C’ 1 2 3 4 5 6 7 D E F G H I J K ABCL

9.3 CORTES FUGADOS

DA 5B G4.1 LAPA VISOPEREDAPALOMINOMireyaMeryEstebanMarko C Á T E D R A ORTIZ CARRASCOPALACIOSCÁRDENASRobinsonFioleríJuanLuisAlexey MORALES Luis ROSSI ZALDÍVARSusanaJorge P R O P U E S T A D E CENTRO COMERCIAL EN COSTA AZUL - CALLAO L6CORTES C O R T E A-A’

DA 5B G4.1 LAPA VISOPEREDAPALOMINOMireyaMeryEstebanMarko C Á T E D R A ORTIZ CARRASCOPALACIOSCÁRDENASRobinsonFioleríJuanLuisAlexey MORALES Luis ROSSI ZALDÍVARSusanaJorge P R O P U E S T A D E CENTRO COMERCIAL EN COSTA AZUL - CALLAO L7CORTES C O R T E B-B’

DA 5B G4.1 LAPA VISOPEREDAPALOMINOMireyaMeryEstebanMarko C Á T E D R A ORTIZ CARRASCOPALACIOSCÁRDENASRobinsonFioleríJuanLuisAlexey MORALES Luis ROSSI ZALDÍVARSusanaJorge P R O P U E S T A D E CENTRO COMERCIAL EN COSTA AZUL - CALLAO L8CORTES C O R T E C-C’

9.4 ELEVACIONES

DA 5B G4.1 LAPA VISOPEREDAPALOMINOMireyaMeryEstebanMarko C Á T E D R A ORTIZ CARRASCOPALACIOSCÁRDENASRobinsonFioleríJuanLuisAlexey MORALES Luis ROSSI ZALDÍVARSusanaJorge P R O P U E S T A D E CENTRO COMERCIAL EN COSTA AZUL - CALLAO L9ELEVACIONES ELEVACIÓN AV. COSTA AZUL ELEVACIÓN LATERAL

9.5 ISOMETRÍA

DA 5B G4.1 LAPA VISOPEREDAPALOMINOMireyaMeryEstebanMarko C Á T E D R A ORTIZ CARRASCOPALACIOSCÁRDENASRobinsonFioleríJuanLuisAlexey MORALES Luis ROSSI ZALDÍVARSusanaJorge P R O P U E S T A D E CENTRO COMERCIAL EN COSTA AZUL - CALLAO L10ISOMETRÍA ISOMETRÍA AV.CARLOSIZAGUIRRE AV.COSTAAZUL

9.5 PERSPECTIVAS

DA 5B G4.1 LAPA VISOPEREDAPALOMINOMireyaMeryEstebanMarko C Á T E D R A ORTIZ CARRASCOPALACIOSCÁRDENASRobinsonFioleríJuanLuisAlexey MORALES Luis ROSSI ZALDÍVARSusanaJorge P R O P U E S T A D E CENTRO COMERCIAL EN COSTA AZUL - CALLAO L11PERSPECTIVAS

DA 5B G4.1 LAPA VISOPEREDAPALOMINOMireyaMeryEstebanMarko C Á T E D R A ORTIZ CARRASCOPALACIOSCÁRDENASRobinsonFioleríJuanLuisAlexey MORALES Luis ROSSI ZALDÍVARSusanaJorge P R O P U E S T A D E CENTRO COMERCIAL EN COSTA AZUL - CALLAO L12PERSPECTIVAS

DA 5B G4.1 LAPA VISOPEREDAPALOMINOMireyaMeryEstebanMarko C Á T E D R A ORTIZ CARRASCOPALACIOSCÁRDENASRobinsonFioleríJuanLuisAlexey MORALES Luis ROSSI ZALDÍVARSusanaJorge P R O P U E S T A D E CENTRO COMERCIAL EN COSTA AZUL - CALLAO L13PERSPECTIVAS

DA 5B G4.1 LAPA VISOPEREDAPALOMINOMireyaMeryEstebanMarko C Á T E D R A ORTIZ CARRASCOPALACIOSCÁRDENASRobinsonFioleríJuanLuisAlexey MORALES Luis ROSSI ZALDÍVARSusanaJorge P R O P U E S T A D E CENTRO COMERCIAL EN COSTA AZUL - CALLAO L14PERSPECTIVAS

10. ENTREGA FINAL

10.1. ENTREGA GRUPAL

LAPA Mirey - PATRICIO Mery - PEREDA Esteban - VISO MarkoG4. 1 C E N T R O C O M E R C I A L LAMARA COSTA AZUL - CALLAO

DA 5B C Á T E D R A ORTIZ CÁRDENASRobinsonFiolerí MORALES Luis ROSSI ZALDÍVARSusanaJorge L2PALACIOS Juan Luis CARRASCO Alexey

DA 5B LAPA MIREYA, PATRICIO MERY, PEREDA ESTEBAN, VISO MARKO. C Á T E D R A ORTIZ CÁRDENASRobinsonFiolerí MORALES Luis ROSSI ZALDÍVARSusanaJorge P R O P U E S T A D E CENTRO COMERCIAL EN COSTA AZUL - CALLAO L3PLANTASPALACIOS Juan Luis CARRASCO Alexey G R U P O 4 . 1 PLANTA SÓTANO ENTRADA POR AVENIDA PARALELA A IZAGUIRRE IZAGUIRRECARLOSAV. SERVICIOS GENERALES 1. FRIGORÍFICO 2. DEPÓSITO DE VERDURAS Y FRUTAS 3. DEPÓSITO DE CARNES 4. LABORATORIO DE CONTROL DE CALIDAD 5. CISTERNA 6. CUARTO DE BOMBA 7. CISTERNA INCENDIOSCONTRA 8. ALMACÉN DE RESIDUOS 9. SUBESTACIÓN ELÉCTRICA A’

B B’ AA’ C C’

DA 5B B B’ AA’ C C’

DA 5B LAPA MIREYA, PATRICIO MERY, PEREDA ESTEBAN, VISO MARKO. C Á T E D R A ORTIZ CÁRDENASRobinsonFiolerí MORALES Luis ROSSI ZALDÍVARSusanaJorge 5PALACIOS Juan Luis CARRASCO Alexey G R U P O 4 . 1 TIENDA POR DEPARTAMENTO SEGUNDA PLANTA DEPÓSITO NPT.HALL+5.25 TIENDA DE DOS NIVELES CON CONEXIÓN DOBLE ALTURA B B’ AA’ C C’

DA 5B LAPA MIREYA, PATRICIO MERY, PEREDA ESTEBAN, VISO MARKO. C Á T E D R A ORTIZ CÁRDENASRobinsonFiolerí MORALES Luis ROSSI ZALDÍVARSusanaJorge 6PALACIOS Juan Luis CARRASCO Alexey G R U P O 4 . 1 TIENDATIENDA TIENDA TIENDA TIENDA GIMNASIO RESTAURANTE RESTAURANTE TIENDATIENDATIENDATIENDATIENDA TIENDA POR DEPARTAMENTO TIENDA ESCALERAS DE SERVICIO ESCALERAS DE EMERGENCIA LEYENDA TERCERA PLANTA RESTAURANTE NPT. +9.50 HALLHALL TERRAZA SUM B B’ AA’ C C’

ELEVACIÓN LATERAL SUR

CORTE LONGITUDINAL NIVEL2+5.25NIVEL3 +9.50TECHO+13.75NIVEL1+0.00 -4.00SÓTANO

DA 5B LAPA MIREYA, PATRICIO MERY, PEREDA ESTEBAN, VISO MARKO. C Á T E D R A ORTIZ CÁRDENASRobinsonFiolerí MORALES Luis ROSSI ZALDÍVARSusanaJorge P R O P U E S T A D E CENTRO COMERCIAL EN COSTA AZUL - CALLAO PERSPECTIVAS PEATONALES Y AÉREASPALACIOS Juan Luis CARRASCO Alexey G R U P O 4 . 1 L11

DA 5B LAPA MIREYA, PATRICIO MERY, PEREDA ESTEBAN, VISO MARKO. C Á T E D R A ORTIZ CÁRDENASRobinsonFiolerí MORALES Luis ROSSI ZALDÍVARSusanaJorge P R O P U E S T A D E CENTRO COMERCIAL EN COSTA AZUL - CALLAO PERSPECTIVAS PEATONALES Y AÉREASPALACIOS Juan Luis CARRASCO Alexey G R U P O 4 . 1 L12

DA 5B LAPA MIREYA, PATRICIO MERY, PEREDA ESTEBAN, VISO MARKO. C Á T E D R A ORTIZ CÁRDENASRobinsonFiolerí MORALES Luis ROSSI ZALDÍVARSusanaJorge P R O P U E S T A D E CENTRO COMERCIAL EN COSTA AZUL - CALLAO PERSPECTIVAS PEATONALES Y AÉREASPALACIOS Juan Luis CARRASCO Alexey G R U P O 4 . 1 L13

DA 5B LAPA MIREYA, PATRICIO MERY, PEREDA ESTEBAN, VISO MARKO. C Á T E D R A ORTIZ CÁRDENASRobinsonFiolerí MORALES Luis ROSSI ZALDÍVARSusanaJorge P R O P U E S T A D E CENTRO COMERCIAL EN COSTA AZUL - CALLAO PERSPECTIVAS PEATONALES Y AÉREASPALACIOS Juan Luis CARRASCO Alexey G R U P O 4 . 1 L14

DA 5B LAPA MIREYA, PATRICIO MERY, PEREDA ESTEBAN, VISO MARKO. C Á T E D R A ORTIZ CÁRDENASRobinsonFiolerí MORALES Luis ROSSI ZALDÍVARSusanaJorge P R O P U E S T A D E CENTRO COMERCIAL EN COSTA AZUL - CALLAO PERSPECTIVAS PEATONALES Y AÉREASPALACIOS Juan Luis CARRASCO Alexey G R U P O 4 . 1 L15

DA 5B LAPA MIREYA, PATRICIO MERY, PEREDA ESTEBAN, VISO MARKO. C Á T E D R A ORTIZ CÁRDENASRobinsonFiolerí MORALES Luis ROSSI ZALDÍVARSusanaJorge P R O P U E S T A D E CENTRO COMERCIAL EN COSTA AZUL - CALLAO PERSPECTIVAS PEATONALES Y AÉREASPALACIOS Juan Luis CARRASCO Alexey G R U P O 4 . 1 L16

DA 5B LAPA MIREYA, PATRICIO MERY, PEREDA ESTEBAN, VISO MARKO. C Á T E D R A ORTIZ CÁRDENASRobinsonFiolerí MORALES Luis ROSSI ZALDÍVARSusanaJorge P R O P U E S T A D E CENTRO COMERCIAL EN COSTA AZUL - CALLAO PERSPECTIVAS PEATONALES Y AÉREASPALACIOS Juan Luis CARRASCO Alexey G R U P O 4 . 1 L18

DA 5B LAPA MIREYA, PATRICIO MERY, PEREDA ESTEBAN, VISO MARKO. C Á T E D R A ORTIZ CÁRDENASRobinsonFiolerí MORALES Luis ROSSI ZALDÍVARSusanaJorge P R O P U E S T A D E CENTRO COMERCIAL EN COSTA AZUL - CALLAO PERSPECTIVAS PEATONALES Y AÉREASPALACIOS Juan Luis CARRASCO Alexey G R U P O 4 . 1 L19

DA 5B LAPA MIREYA, PATRICIO MERY, PEREDA ESTEBAN, VISO MARKO. C Á T E D R A ORTIZ CÁRDENASRobinsonFiolerí MORALES Luis ROSSI ZALDÍVARSusanaJorge P R O P U E S T A D E CENTRO COMERCIAL EN COSTA AZUL - CALLAO PERSPECTIVAS PEATONALES Y AÉREASPALACIOS Juan Luis CARRASCO Alexey G R U P O 4 . 1 L20

DA 5B LAPA MIREYA, PATRICIO MERY, PEREDA ESTEBAN, VISO MARKO. C Á T E D R A ORTIZ CÁRDENASRobinsonFiolerí MORALES Luis ROSSI ZALDÍVARSusanaJorge P R O P U E S T A D E CENTRO COMERCIAL EN COSTA AZUL - CALLAO PERSPECTIVAS PEATONALES Y AÉREASPALACIOS Juan Luis CARRASCO Alexey G R U P O 4 . 1 L22

DA 5B LAPA MIREYA, PATRICIO MERY, PEREDA ESTEBAN, VISO MARKO. C Á T E D R A ORTIZ CÁRDENASRobinsonFiolerí MORALES Luis ROSSI ZALDÍVARSusanaJorge P R O P U E S T A D E CENTRO COMERCIAL EN COSTA AZUL - CALLAO PERSPECTIVAS PEATONALES Y AÉREASPALACIOS Juan Luis CARRASCO Alexey G R U P O 4 . 1 L23

DA 5B LAPA MIREYA, PATRICIO MERY, PEREDA ESTEBAN, VISO MARKO. C Á T E D R A ORTIZ CÁRDENASRobinsonFiolerí MORALES Luis ROSSI ZALDÍVARSusanaJorge P R O P U E S T A D E CENTRO COMERCIAL EN COSTA AZUL - CALLAO CORTES FUGADOSPALACIOS Juan Luis CARRASCO Alexey G R U P O 4 . 1 L25

DA 5B LAPA MIREYA, PATRICIO MERY, PEREDA ESTEBAN, VISO MARKO. C Á T E D R A ORTIZ CÁRDENASRobinsonFiolerí MORALES Luis ROSSI ZALDÍVARSusanaJorge P R O P U E S T A D E CENTRO COMERCIAL EN COSTA AZUL - CALLAO MEMORIA GRÁFICA DESCRIPTIVAPALACIOS Juan Luis CARRASCO Alexey G R U P O 4 . 1 PROGRAMA ARQUITECTÓNICO ZONA AMBIENTE CANT. AFORO AREA/PER. ÁREA SUBTOTAL PORCENTAJE 30%MUROS CIRCULACIÓNY ADMINISTRATIVAZONA RECEPCIÓN 1 1 10 10 108 1,0 3168,3 GERENCIA 1 1 10 10 ESPACIO DE OFICINAS 1 6 10 60 CONTABILIDAD 1 1 10 10 ADMINISTRACIÓN 1 1 10 10 SALA DE ESTAR 1 4 1 4 SS HH 1 2 4 CUARTO DE LIMPIEZA 3 10 30 540 5,1 AREA DE MANTENIMIENTO 1 25 CUARTO DE BASURA 1 20 CUARTO DE MAQUINAS 1 35 CUARTO DE CISTERNAS 1 100 AREA DE ALMACENAMIENTO 1 10 28 300 VESTIDORES 1 15 SS HH 1 15 SUPERMERCADO 1 350 2,5 875 4485 42,5 ALMACÉN 1 50 TIENDA POR DEPARTAMENTO 1 500 3 1500 ALMACÉN 1 80 VESTUARIOS 1 40 TIENDA INDEPENDIENTE 30 20 2,8 1680 QUIOSCO 20 1 10 200 1 60 HALL 1 100 2,5 250 3690 34,9 SALAS DE CINE 3 900 0,7 1890 SS HH 1 40 GIMNASIO ZONA DE MAQUINAS 1 250 4,6 1150 SALA DE BAILE 2 50 1,5 150 VESTUARIOS Y SSHH 1 35 AGENCIAS BANCARIAS 3 10 5 150 TÓPICO 1 25 ZONA DE COMIDA PATIO DE COMIDAS PUESTOS (AREA DE COCINA) 10 4 9,3 372 1738 16,5 AREA DE MESAS 1 500 1,5 750 SS HH 1 50 RESTAURANTES AREA DE COCINA 4 5 9,3 186 AREA DE MESAS 4 60 1,5 360 SS HH 4 20 10561 100% 3168,3 TOTAL TECHADAÁREA 13729,3 USUARIOS PERMANENTE ADMINISTRATIVOPERSONAL PERSONALDELIMPIEZACOMERCIANTESCOMPRADORES EMPRESA PERSONALDESEGURIDAD PERSONALDEÁREAYDESCARGA ARTISTASCOMENSALES COCINERO GIMNANSIO ORGANIGRAMA GENERAL ZONA ARIOSCOMPLEMENTSERVICIOSDE ESPACIO CENTRAL ADMIST. ES..GENERALSERV. ZONA ARIOSCOMPLEMENTSERVICIOSDE COMERCIO COMERCIO ZONA COMIDADE COMERCIO COMERCIOCOMERCIOCOMERCIO L26

ZONA AMBIENTE NÚMERO PERSONAL EST/PER NRO ESTACIONAMDEIENTOS PÚBLICO PÚBLICOEST/PER ESTACIONAMIENTOS ADMINISTRAZONATIVA RECEPCIÓN 1 1 10 1/25 1 0 0 GERENCIA 1 1 0 0 ESPACIO DE OFICINAS 1 6 0 0 CONTABILIDAD 1 1 0 0 ADMINISTRACIÓN 1 1 0 0 ZONA GENERALESSERVICIOSDE CUARTO DE LIMPIEZA 3 9 21 1/25 1 0 0 ÁREA DE MANTENIMIENTO 1 3 0 0 CUARTO DE BASURA 1 2 0 0 CUARTO DE MÁQUINAS 1 1 0 0 CUARTO DE CISTERNAS 1 1 0 0 ÁREA DE ALMACENAMIENTO 1 5 0 0 ZONA COMERCIODE SUPERMERCADO 1 30 140 1/20 2 350 1/20 18 TIENDA POR DEPARTAMENTO 1 30 1/25 2 500 1/25 20 TIENDA INDEPENDIENTE 30 60 1/15 4 600 1/15 40 QUIOSCO 20 20 1/25 2 150 1/15 10 CINE 3 18 65 1/25 2 750 1/15 50 GIMNASIO 1 20 1/15 2 250 1/10 25 AGENCIAS BANCARIAS 3 27 1/25 2 150 1/10 15 ZONA COMIDADE PUESTOS (ÁREA DE COCINA) 8 40 79 1/20 2 0 0 0 ÁREA DE MESAS 1 15 1/20 1 500 1/20 25 RESTAURANTES COCINEROS 3 9 1/20 1 0 0 0 MESEROS 3 15 1/20 1 150 1/20 8 TOTAL EST. PERSONAL. 23 TOTAL EST. PÚBLICO 211 DA 5B LAPA MIREYA, PATRICIO MERY, PEREDA ESTEBAN, VISO MARKO. C Á T E D R A ORTIZ CÁRDENASRobinsonFiolerí MORALES Luis ROSSI ZALDÍVARSusanaJorge P R O P U E S T A D E CENTRO COMERCIAL EN COSTA AZUL - CALLAO MEMORIA GRÁFICA DESCRIPTIVAPALACIOS Juan Luis CARRASCO Alexey G R U P O 4 . 1 PROGRAMA ARQUITECTÓNICO TIPO COMERCIODE ESTACIONAMIENTOS LIMA TOTAL COMERCIODISTRITAL 234 1 234 TIPO DE VEHÍCULO % ESTC TOTAL AUTOS 60% 234 140 MOTOS 10% 234 24 VEHICULOS MENORES 30% 234 70 ESTACIONAMIENTOS AUTOS 140 MOTOS 24 VEHICULOS MENORES 70 ZONA AMBIENTE NUMERO AFORO AREA/EST. ÁREA TOTAL ZONA PÚBLICA ESTACIONAMIENTO AUTOS 140 1 12,5 1750 3109,6 ESTACIONAMIENTO MOTOS 24 1 2,9 69,6 ESTACIONAMIENTO BICICLETAS 70 1 2 140 ESTACIONAMIENTO DE CARGA 4 50 150 PATIO DE MANIOBRAS 1 1000 ÁREA CONSTRUIDA 8350 M2 48% ESPACIO PÚBLICO 5490 M2 31% AREA VERDE 3660 M2 21% ÁREA DEL TERRENO 17500 M2 100% ÁREAS EN PRIMER NIVEL L27

Se tomó como materiales acero galvanizado con zinc y vidrio de control solar. por efectos ambientales Las ramificaciones se generan adecuándose a la curvatura de la superficie de manera automática .

Elaboración de superficies en base a variables topológicas en Rhinoceros.

El proceso de estructuración se hizo mediante parámetros estructurales en GRASSHOPER.

P R O P U E S T A D E CENTRO COMERCIAL EN COSTA AZUL - CALLAO L28 VARIABLES PARAMÉTRICAS IMAGENCONTEXTOYCARÁCTER El proyecto se encuentra localizado en el Callao Febrero 27°C Vientos Noroeste Agosto 15°C Sol está mayormente orientado al Norte PROPUESTA ESPACIAL

EL REMOLINO LAS OLAS PROCESO MORFOLÓGICO

DA C Á T E D R A P R O P U E S T A D E CENTRO COMERCIAL EN COSTA AZUL - CALLAO L29 VARIABLES ARTÍSTICAS

MENSAJE

El elemento cual ola de mar, llega hasta los volúmenes y trepa sobre ellos, generando esta cubierta sinuosa irregular

Al cubrir la zona central este baja en forma de un remolino, generando así un atractivo central el cual conecta las 4 islas (volúmenes), de tal forma que las actividades se complementen a través de la circulación generada por el elemento central, además esto proporciona también de una conexión visual entre niveles, logrando así un único objeto.

P R O P U E S T A D E CENTRO COMERCIAL EN COSTA AZUL - CALLAO MEMORIA GRÁFICA DESCRIPTIVA L30 EJES DE ACCESOSREFERENCIAVERTICALES PROCESO CONCEPTUAL EMPLAZAMIENTOYEJES DE REFERENCIA 1 2 3 4 La forma paramétrica ubicado en el espacio central del proyecto logra unificar todos los bloques del proyecto Para los accesos verticales se tiene en cuenta el recorrido del público y la ubicación de las tiendas para la zona de carga y descarga Se forman por las Av. Carlos Izaguirre y la Av.Costanera

PLANTA SÓTANO ESTACIONAMIENTO ESTACIONAMIENTOESTACIONAMIENTOESTACIONAMIENTOESTACIONAMIENTO SS.HH MUJERES-SS.HH HOMBRESZONA PÚBLICA ZONA DE SERVICIO Y PERSONAL LEYENDA ENTRADA POR AVENIDA PARALELA A IZAGUIRRE IZAGUIRRECARLOSAV. AV. RÁPIDA COSTA AZUL ALMACÉN NPT -3.40 ESTACIONAMIENTO DE MOTOS SERVICIOS GENERALES 1. FRIGORÍFICO 2. DEPÓSITO DE VERDURAS Y FRUTAS 3. DEPÓSITO DE CARNES 4. LABORATORIO DE CONTROL DE CALIDAD 5. CISTERNA 6. CUARTO DE BOMBA 7. CISTERNA INCENDIOSCONTRA 8. ALMACÉN DE RESIDUOS 9. SUBESTACIÓN ELÉCTRICA 1 2 3 4 5 7 8 9 6 NPT -4.00 FLUJO VEHICULAR PÚBLICO FLUJO CARGA Y DESCARGA ÁREA DE CARGA Y DESCARGA NPT -4.00 DA 5B LAPA MIREYA, PATRICIO MERY, PEREDA ESTEBAN, VISO MARKO. C Á T E D R A ORTIZ CÁRDENASRobinsonFiolerí MORALES Luis ROSSI ZALDÍVARSusanaJorge P R O P U E S T A D E CENTRO COMERCIAL EN COSTA AZUL - CALLAO FLUJOS VEHÍCULARESPALACIOS Juan Luis CARRASCO Alexey G R U P O 4 . 1 L31

DA 5B LAPA MIREYA, PATRICIO MERY, PEREDA ESTEBAN, VISO MARKO. C Á T E D R A ORTIZ CÁRDENASRobinsonFiolerí MORALES Luis ROSSI ZALDÍVARSusanaJorge PALACIOS Juan Luis CARRASCO Alexey G R U P O 4 . 1 FLUJO DE COMPRADORES FLUJO CARGA Y DESCARGA L32

DA 5B LAPA MIREYA, PATRICIO MERY, PEREDA ESTEBAN, VISO MARKO. C Á T E D R A ORTIZ CÁRDENASRobinsonFiolerí MORALES Luis ROSSI ZALDÍVARSusanaJorge PALACIOS Juan Luis CARRASCO Alexey G R U P O 4 . 1 TIENDATIENDA TIENDA COCINA TIENDA TIENDA DE VIDEOJUEGOSRESTAURANTE 1 TIENDA POR DEPARTAMENTO DESALADESALADESALACINECINECINEVESTIDORES SEGUNDA PLANTA P P P P P P P P P PUESTOS DE COMIDA DEPÓSITO DEPÓSITOCONFITERÍA NPT.HALL+5.25 ESCALERAS DE SERVICIO ESCALERAS DE EMERGENCIA LEYENDA FLUJO DE COMPRADORES FLUJO CARGA Y DESCARGA L33FLUJOS PEATONALES

DA 5B LAPA MIREYA, PATRICIO MERY, PEREDA ESTEBAN, VISO MARKO. C Á T E D R A ORTIZ CÁRDENASRobinsonFiolerí MORALES Luis ROSSI ZALDÍVARSusanaJorge PALACIOS Juan Luis CARRASCO Alexey G R U P O 4 . 1 TIENDATIENDA TIENDA TIENDA TIENDA GIMNASIO RESTAURANTE RESTAURANTE TIENDATIENDATIENDATIENDATIENDA TIENDA POR DEPARTAMENTO TIENDA TERCERA PLANTA RESTAURANTE NPT. +9.50 HALLHALL TERRAZA SUM VESTIDORES ESCALERAS DE SERVICIO ESCALERAS DE EMERGENCIA LEYENDA FLUJO DE COMPRADORES FLUJO CARGA Y DESCARGA FLUJOS PEATONALES L34

LAPA PIÑIN, Natali20180047EMireya G4. 1 P R O P U E S T A D E CENTRO COMERCIAL EN COSTA AZUL - CALLAO

DA 5B LAPA PIÑIN Natali 20180047EMireya C Á T E D R A ORTIZ CÁRDENASRobinsonFiolerí MORALES Luis ROSSI ZALDÍVARSusanaJorge P R O P U E S T A D E CENTRO COMERCIAL EN COSTA AZUL CALLAO L1PLANTASPALACIOS Juan Luis CARRASCO Alexey A L U M N A ANTEPROYECTO - CENTRO COMERCIAL - ENTREGA FINAL LÁMINA CONTENIDO ESCALA L1 PRIMERA PLANTA 1/100 L2 SEGUNDA PLANTA 1/100 L3 TERCERA PLANTA 1/100 L4 CORTE A A 1/100\ L5 CORTE B B 1/100 L6 ELEVACIÓN 1/100 LÁMINA CONTENIDO ESCALA L7 DETALLE CONSTRUCTIVO PARAMÉTRICO 1 1/50,1/25,1/10 L8 DETALLE CONSTRUCTIVO PARAMÉTRICO 2 1/50,1/25,1/10 L9 DETALLE CONSTRUCTIVO PARAMÉTRICO 3 1/50,1/25,1/10 L10 VISTA INTERIOR 1 PATIO DE COMIDAS PERSPECTIVA L11 VISTA INTERIOR 2 RESTAURANTES PERSPECTIVA || AV. COSTA AZUL

DA 5B LAPA PIÑIN Natali 20180047EMireya C Á T E D R A ORTIZ CÁRDENASRobinsonFiolerí MORALES Luis ROSSI ZALDÍVARSusanaJorge P R O P U E S T A D E CENTRO COMERCIAL EN COSTA AZUL CALLAO L2PLANTASPALACIOS Juan Luis CARRASCO Alexey A L U M N A P L A N T ASÓTANO ESCALA GRÁFICA 0 5 10 20m ESTACIONAMIENTO NPT. 4.00 m ALMACÉN NPT. 3.40 m CUARTOBOMBASDE CISTERNA DE AGUACISTERNAINCENDIOSCONTRAAGUA FRIGORÍFICO VERDURASDEPÓSITOYFRUTAS DEPÓSITOCARNES CONTROLDECALIDAD b Ab C b b B B’ b A’b C’ CARGA Y DESCARGA NPT. 4.00 m

DA 5B LAPA PIÑIN Natali 20180047EMireya C Á T E D R A ORTIZ CÁRDENASRobinsonFiolerí MORALES Luis ROSSI ZALDÍVARSusanaJorge P R O P U E S T A D E CENTRO COMERCIAL EN COSTA AZUL CALLAO L2PLANTASPALACIOS Juan Luis CARRASCO Alexey A L U M N A TIENDA TIENDATIENDA TIENDA TIENDA TIENDA TIENDA TIENDATIENDA TIENDATIENDA DEPÓSITODEPÓSITO DEPÓSITO SUPERMERCADODEL DEPÓSITO NTP +0.00 m SUPERMERCADO P L A N T A PRIMER NIVEL ESCALA GRÁFICA 0 5 10 20m b Ab C b b B B’ b A’b C’

DA 5B LAPA PIÑIN Natali 20180047EMireya C Á T E D R A ORTIZ CÁRDENASRobinsonFiolerí MORALES Luis ROSSI ZALDÍVARSusanaJorge P R O P U E S T A D E CENTRO COMERCIAL EN COSTA AZUL CALLAO L3PLANTASPALACIOS Juan Luis CARRASCO Alexey A L U M N A P L A N T A SEGUNDO NIVEL ESCALA GRÁFICA 0 5 10 20m PATIO DE TERRAZACOMIDAS TIENDA TIENDATIENDA TIENDA NTP +5.25 m b Ab C b b B B’ b A’b C’

DA 5B LAPA PIÑIN Natali 20180047EMireya C Á T E D R A ORTIZ CÁRDENASRobinsonFiolerí MORALES Luis ROSSI ZALDÍVARSusanaJorge P R O P U E S T A D E CENTRO COMERCIAL EN COSTA AZUL CALLAO L4PLANTASPALACIOS Juan Luis CARRASCO Alexey A L U M N A P L A N T A TERCER NIVEL TERRAZA NTP +9.50 m ESCALA GRÁFICA 0 5 10 20m b Ab C b b B B’ b A’b C’

DA 5B LAPA PIÑIN Natali 20180047EMireya C Á T E D R A ORTIZ CÁRDENASRobinsonFiolerí MORALES Luis ROSSI ZALDÍVARSusanaJorge P R O P U E S T A D E CENTRO COMERCIAL EN COSTA AZUL CALLAO L6CORTESPALACIOS Juan Luis CARRASCO Alexey A L U M N A C O R T E B-B’ NPT 0.00 NPT 3.40 m NPT 5.25 NPTNPT9.5013.75RESTAURANTE PATIO DE COMIDAS TERRAZA SUPERMERCADOESTACIONAMIENTO ESCALA GRÁFICA 0 5 10 20m

DA 5B LAPA PIÑIN Natali 20180047EMireya C Á T E D R A ORTIZ CÁRDENASRobinsonFiolerí MORALES Luis ROSSI ZALDÍVARSusanaJorge P R O P U E S T A D E CENTRO COMERCIAL EN COSTA AZUL CALLAO L7CORTESPALACIOS Juan Luis CARRASCO Alexey A L U M N A C O R T E C-C’ RESTAURANTE PATIOTERRAZADECOMIDAS COCINA VENTA COCINA NPTNPT0.003.40 m NPT 5.25 NPTNPT9.5013.75 NPT 4.00 m TIENDATIENDATIENDA ALMACÉN ESCALA GRÁFICA 0 5 10 20m

DA 5B LAPA PIÑIN Natali 20180047EMireya C Á T E D R A ORTIZ CÁRDENASRobinsonFiolerí MORALES Luis ROSSI ZALDÍVARSusanaJorge P R O P U E S T A D E CENTRO COMERCIAL EN COSTA AZUL CALLAO L8ELEVACIÓNPALACIOS Juan Luis CARRASCO Alexey A L U M N A

DA 5B LAPA PIÑIN Natali 20180047EMireya C Á T E D R A ORTIZ CÁRDENASRobinsonFiolerí MORALES Luis ROSSI ZALDÍVARSusanaJorge P R O P U E S T A D E CENTRO COMERCIAL EN COSTA AZUL CALLAO L9DETALLES CONSTRUCTIVOS PARAMÉTRICOSPALACIOS Juan Luis CARRASCO Alexey A L U M N A U N I Ó N C O L U M N A E S T R U C T U R A P A R A M É T R I C A COLUMNA RAMA DE SECCIÓN CIRCULAR Forma cónica con un diámetro variable entre 10 a 15 cm de material acero. PIEZA DE ANCLAJE MÓVIL Única y giratoria en un eje de material acero. PERNO PIEZA DE ACERO CONECTORA ENTRE COLUMNA Y ANCLAJE DETALLE PIEZA DE ANCLAJE A ESTRUCTURA PARAMETRICA DETALLE UNIÓN COLUMNA ESTRUCTURALa estructura utilizada en el proyecto son las gridshells Estas pueden ser empernadas o Sesoldadas.utilizará la primera opción por las condiciones ambientales que podrían dañar la soldadura. AXONOMETRÍA PERNOS

FUENTE: Peña , A. (2014) Dos casos de estudio de racionalización de fachadas de forma libre. Universidad RMIT / SIAL Australia. DE ENSAMBLAJE - PLANTA DETALLE DE ENSAMBLAJE – ISOMETRÍA TUBO DE ACERO DE SECCIÓN CUADRADA DE 15 CM SOLDADURA TUBO DE ACERO DE SECCIÓN CUADRADA de 15 cm

DETALLE

DA 5B LAPA PIÑIN Natali 20180047EMireya C Á T E D R A ORTIZ CÁRDENASRobinsonFiolerí MORALES Luis ROSSI ZALDÍVARSusanaJorge P R O P U E S T A D E CENTRO COMERCIAL EN COSTA AZUL CALLAO L10DETALLES CONSTRUCTIVOS PARAMÉTRICOSPALACIOS Juan Luis CARRASCO Alexey A L U M N A N O D O S E S T R U C T U R A P A R A M É T R I C A

RECOMENDACIONES

El uso de nuevas software para esta racionalización y otras nuevas tecnologías ayudan a la optimización de la construcción. Además, el uso de estas nuevas tecnologías va de la mano con el diseño arquitectónico puede ir inicio o al final del proceso de diseño.

SOLDADURA

DIGITAL MOCK UP Es una herramienta que examina cada nodo y consulta la existencia de sus vecinos y con este mapa determina dónde se encuentra el nodo en cuestión. está en relación con el armazón de la cuadrícula, después de identificar el tipo de ubicación Relativa , la herramienta consulta el mapa de tipos de la vecindad del nodo para determinar qué regla se ha cumplido, si la condición coincide con alguna de las reglas en el conjunto de reglas, el ensamblaje se modela para que coincida reduciendo el numero de piezas diferentes.

NODO DE ENSAMBLAJE PERNO NODO DE UNIÓN DE LAS PIEZAS

El ensamblaje en estructuras de superficie curva es, constructivamente, más compleja ya que necesitan piezas diferentes dependiendo el punto de curvatura donde se coloque el elemento estructural Por ello, es necesario racionalizar los elementos para hacer la construcción lo más fácil y accesible posible y el numero de elementos de ensamblaje los mínimos necesarios.

DA 5B LAPA PIÑIN Natali 20180047EMireya C Á T E D R A ORTIZ CÁRDENASRobinsonFiolerí MORALES Luis ROSSI ZALDÍVARSusanaJorge P R O P U E S T A D E CENTRO COMERCIAL EN COSTA AZUL CALLAO L11VISTAS INTERIORESPALACIOS Juan Luis CARRASCO Alexey A L U M N A

Turn static files into dynamic content formats.

Create a flipbook
Issuu converts static files into: digital portfolios, online yearbooks, online catalogs, digital photo albums and more. Sign up and create your flipbook.
DA5B-LAPA PIÑIN NATALI by Mireya Lapa - Issuu