PORTFOLIO

Page 1


PORT FOLIO INTERIOR DESIGN

NICOLE URENA-PESANTEZ

ABOUT ME

As an Ecuadorian designer, what I seek is to explore design through functionality and aesthetics. I am passionate about including natural, sustainable and accessible elements for universal population.

As an Ecuadorian designer, what I look for is to explore spaces through functionality and aesthetics. I am passionated about including natural, sustainable and accessible elements for the universal population.

1- MIXED USE: HEARDQUARTERS ECUADORIAN COFFEE PRODUCERS

2- COMMERCIAL: TATIANA CRUZ JEWERLY, NORTH FACE

3- HOSPITALITY: ZERDO RESTAURANT, LIFE CHURCH LOBBY

4- UNIVERSAL DESIGN: PHYSIOTHERAPY AREA , ACCESIBLE BATHROOM

5- RESIDENTIAL: J. CHIN RESIDENCE, CAMINO DEL VOLCAN

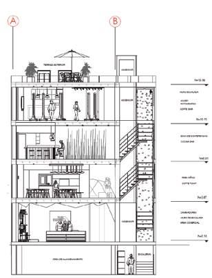
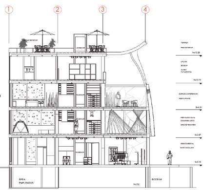
HEADQUARTERS OF ECUADORIAN COFFEE PRODUCERS

Design the headquarters of producers, coffee growers, coffee growers and exporters promoting the economy of the country. There is little associativity in the sector: The organizations are dispersed and there is no conformed voice that speaks for the sector to obtain help, promotion and contact with consumers.Ecuador, being a coffee-producing country, does not have a national solid union or association.

SUNLIGHT

The sun allows to have a moderate amount of light from the West on the main facade of the building. At noon, light enters through the skylights to illuminate the interior.

OPERATION

The space is a multipurpose building with a commercial, corporate and event center area where the different coffee selection contests are held. It seeks to create an experience where the coffee process is explored and the public is advised when choosing the grain or the way of preparation that best suits their tastes.

CORPORATIVE AND COMMERCIAL

It is proposed to create spaces for shared use of satellite offices which belong to the largest coffee producing companies. Develop a national network and promote the coffee sector.

- ACEDE - ANECAFE

In addition, the possibility of acquiring individual offices is offered for associations that seek to enhance their production.

TARGET

- Coffee producers

- Tasters and baristas

- Coffee consumers

- General public

PROJECT OBJECTIVES

- Create corporate areas for the benefit and welfare of employees

- Set up communal and work areas for employees

- Include commercial areas for the sale and marketing of products related to coffee attract the consumer to consume Ecuadorian products

COFFE SHOP
RESTAURANT
COFFEE MUSEUM
COFFEE STORE

THIRD FLOOR GROUND

SECOND FLOOR

COWORKING

Self-taught in the eighties while studying Health Administration in Baku, Azerbaijan. She produces in metals such as copper, tin and silver. The inhabitants of it spoke to him of the good energy of the precious stones that were extracted from the mines.

Her jewelry is made by hand, she uses silver as the main metal and semi-precious stones in the background. She achieves many textures and fits well with the energetic part of the stones. The goldsmith explains that the stones she prefers to work with are turquoise, quartz and agate, brought from abroad.

She believes in universal laws and in the energy of stones. Each collection that she works has a symbology to transcend in this earthly life.

CONCEPT

Connection between women and stones through jewelry. The ornament and the curves provide a space full of history and sensations. The aim is to simplify this space in curves to generate fluidity and contrast, that is, to provide it with a soul.

DESIGN GOALS

WHAT WHO

Create a jewelry sales space for designer Tatiana Cruz where her concept of maintaining a relationship between women and jewelry is reflected.

For adult women in addition to the general public, accessible and with the measures established by the Scala Shopping Mall.

HOW

Through the union between beauty and utility inspired by nature, ornamentation and the female figure. Creating a welcoming, comfortable store where you can connect with your customer and display your products in various ways.

Feel the energy of the stones with the beauty of their design. All are handmade in an artisanal way. Through her pieces of that giving and giving, the lives of women who dare to wear her jewelry can be changed.

MISSION VISION

As women are part of society, they play a fundamental role as the center of the family. It seeks to keep the effort focused on the well-being of these women and their benefits for society.

OBJECTIVE

Reach the woman with a piece that makes her happy, changes her life, raises her self-esteem.

CHROMATIC

“Each of our pieces tells a story, each stone is magical”

Socioeconomic Level: High Artisanal Added Value

SLOGAN TARGET

Adult women: 25-65 years

JEWELS WITH SOUL
LOGO

SEATING AREA

THE NORTH FACE

Today, more than 50 years ago, The North Face continues to offer an extensive line of performance apparel, equipment and footwear. They continue to push the limits of innovation so you can push the limits of exploration.

The north face of a mountain is the most dangerous and unforgiving part and the greatest challenge for climbers. The focus is not on achievement but on how you get there on the journey you take with the help of our products.

MOTTO

Never stop exploring is more than a motto, it is the way we choose to live our lives. We love the outdoors as it is where we develop character, confidence, clear our minds, maintain healthy bodies and gain respect for nature.

MISSION

It has remained unchanged since 1966: creating the best equipment for our athletes and explorers today, supporting the protection of nature and promoting a global movement of exploration of the outside world.

VISION

The North Face is the leading provider of authentic and technically innovative products, products that inspire and allow our customers to never stop exploring.

CHROMATIC

5 shades of gray combined with a striking red. These colors evoke the shadows of a north-facing and therefore snowy mountainside.

Connect the user with an environment that allows him to explore the brand's products through interactive elements within a kind of microclimates.

CLIMATE EXPLORATION

CLIMATIC FLOORS

BRAINSTORMING

Fun Entertainment Nature Connection Dynamism Innovation Technology Challenges Comfort Modern Freedom Challenges Experience Quality Stages

Spacious Light Versatile Cozy Warm Simple Active

ZONE PROGRAMMING

Implements

MOODBOARD

Initially the main consumer was the stereotypical hiker, adventurers. Although there is also the family man buying the best for his members and who ensures his reliability throughout his excursions, allowing his family to explore.

USER

The Family Man wants quality and trust in the brand to provide the best for his family.

-Ethical Responsibility

-Protection Philosophy

-Love for exploration

-Inspire new generations

It evokes the Half Dome of the Yosemite National Park, in the United States.The company chose red as a symbol of physical energy and courage.

food

The concept of the project proposes to generate a broad vision of the products used in the kitchen, from its meats, wines, cocktails to its vegetables. This is why they are shown from different spaces and environments that seek to connect the client with the space and provide the greatest possible comfort. Exposed and industrial materials are used as well as warm lighting to promote a cozy and modern space.

DAVID PICCO

At the age of 22, he begins his adventure and travels to Paris. He attended a center for gastronomic studies and worked in some restaurants in the city, in which he gained some experience. He began his studies at the renowned Ferrandi French Cooking School in Paris. He worked in renowned establishments such as L’ Anacreon, La Chevre d’ Or (two Michellin stars), Park Hyatt Place Vendôme hotel (1 Michellin star) and Hôtel de Crillon (2 Michellin stars).

In 2017 he returns to Grupo Z as Corporate Chef and develops the new proposal: "Zerdo". In this place you can find the most varied cuisine with pork, from suckling pig or suckling pig to the highest charcuterie. His wide bar and the kitchen seen from the restaurant continue to be the example of trust that diners experience when visiting this space, including several unique creations by a chef who conquers palates, seducing with his art and passion.

Space

Incorporate space for water containers

Ecological savings by reusing materials and resources

Space for disinfection and sanitization

Optimize spaces and improve their use

Staff area with lockers, bathrooms and dining room

Accessible for people with disabilities

Bar service and possibility of including music

Improve the parking of the current premises

Include open outdoor areas, smoking area

Good ventilation and air

Sausage slicer, charcuterie, cured meats

Acoustic insulation, flexible space

Possibility of an orchard for fresh products

A peculiar proposal of
with pork, smoke, vegetarian and more.
Bar Restaurant, Pub Latin Food
Location North Center of Quito, Ecuador

PLANIMETRY

WINE CELLAR AND BAR SEATING AREA

SECTIONS

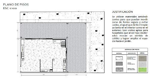
PHYSIOTHERAPY AREA

DESIGN GOALS

-Through the concept, the aim is to promote diaphanousness, an interaction between shared spaces that maintain their privacy.

- Create a connection between interior and exterior area.

- Provide a warm environment through tones, materials and textures.

- Adapt the space for treatment in the physiotherapy area and improve its rehabilitation.

-Close relationship with nature which allows them to carry out activities both indoors and outdoors.

TARGET

MATERIALS AND FINISHES

- Senior Citizens over 65 years of age

- Users with disabilities or reduced mobility

- Physiotherapists and medical assistants

REFERENTS

The transparency and connection with the outside, punctual and general lighting. that provide warmth as well as the separation of spaces.

Non-slip materials are used so that they can be moved safely and prevent falls, as well as being easy to clean both inside and outside. Vinyl is suitable for hospital. wood type, evoke a sense of warmth and coziness connecting with the garden.

Interceramic Lavabo Milán Monomando
Vinil Maderado Alfombras
Madera

WAITING AREA

EQUIPMENT AREA

EXERCISE AREA

THERAPY AREA

LIFE CHURCH LOBBY

The concept follows the function of a lobby, which is connecting spaces, but it goes further to connect people with different aspects:

Connections: Human - Social - Spiritual

The purpose is cultivating the idea of community where all people is included connecting all the elements from horizontal to vertical planes. Including suspended areas to follow the human scale, it makes more comfortable for the habitants to stay and gather. Dividing the open plan into a series of functional and private enclosures through division panels improves acoustics and privacy. The color scheme follow the appearance of the church while preserving the essence of the space adding lighter tones on the walls and floor. In contrast to the warm tones of wood, shades of grey and black with details on red, create a versatile, vibrant and modern space.

NORMAN, OKLAHOMA

FLOOR PLAN

Scale 1/8”= 1¨- 0”

SEATING AREA
LOBBY ENTRANCE

FINISHES

ACCESIBLE BATHROOM

This bathroom is designed for the elderly and/or people with reduced mobility. Which bases its concept on the shape of the space it has, where a particular figure is achieved and it is accompanied by nature. We have included a vertical garden which allows a visual connection with the outside. By surrounding the user in natural ways, the space provides calm, which is one of the one of the qualities sought. In addition, the place is designed to facilitate the access of the person with reduced mobility to any place without obstacles or elements that prevent their mobilization.

MATERIALS

SECTION

NATURAL ASYMMETRY

The concept seeks to generate a free path of circulation towards all the spaces of the bathroom while surrounded by natural forms.

PLANIMETRY

RESIDENCIA J. CHIN CASA CAMINO DEL VOLCÁN -

J. CHIN RESIDENCE VOLCANO ROAD - COTOPAXI

The house is the space for the family of a photographer who loves nature and the mountains. The project presents open spaces to connect with the outside and be able to observe nature from the inside. Double heights are also created to play with the external volume and large spaces are included to carry out physical activities since he is also an athlete.

It is proposed to create a cozy and warm country house which is located in nature near the Cotopaxi volcano, the interior materials are warm, rustic and they seek to integrate materials from the local area. The area is very cold and high, so materials that maintain heat and do not damage the environment.

BRICK

FIREPLACE ACCESSIBLE KITCHEN

Turn static files into dynamic content formats.

Create a flipbook
Issuu converts static files into: digital portfolios, online yearbooks, online catalogs, digital photo albums and more. Sign up and create your flipbook.
PORTFOLIO by nicoleup21 - Issuu