PORTAFOLIO

Page 1

FOLIOPORT DISEÑO INTERIOR NICOLE UREÑA-PESÁNTEZ

Como diseñadora ecuatoriana lo que busco es explorar el diseño a través de la funcionalidad y la estética. Me apasiona incluir elementos naturales, sostenibles y accesibles para la población universal.

ACERCA DE MI

TABLA DE CONTENIDO 1- USO MIXTO: SEDE NACIONAL CAFETALEROS ECUATORIANOS 2- COMERCIAL: TATIANA CRUZ JOYERÍA, NORTH FACE 3- HOSPITALIDAD: ZERDO RESTAURANTE, LIFE CHURCH LOBBY 4- DISEÑO UNIVERSAL: ÁREA FISIOTERAPÉUTICA, BAÑO ACCESIBLE 5- RESIDENCIAL: J. CHIN RESIDENCIA, CAMINO DEL VOLCÁN 6- DISEÑO DE MUEBLES: ZU STOOL 7- SKETCHING: CHIMENEA Y COCINA

- ACEDE -

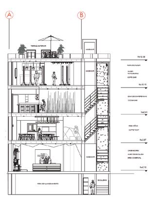
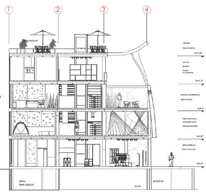
Diseñar la sede de productores, caficultores, caficultores y exporta dores impulsando la economía del país. Existe poca asociatividad en el sector: Las organizaciones están dispersas y no existe una voz conformada que hable por el sector para obtener ayuda, promoción y contacto con los consumidores. Ecuador al ser un país productor de café, no cuenta con un sindicato nacional sólido o asociación.

USO CORPORATIVO Y COMERCIAL

TARGET

ASOLEAMIENTO

Se propone crear espacios de uso compartido de oficinas satélites pertenecientes a las mayores empresas productoras de café. Desarrollar una red nacional y promover el sector cafetalero.

El espacio es un edificio de usos múltiples con área comercial, corporativa y centro de eventos donde se realizan los diferentes concursos de selección de café. Se busca crear una experien cia donde se explore el proceso del café y se ase sore al público a la hora de elegir el grano o la forma de preparación que mejor se adapte a sus gustos.

TIENDA DEL CAFÉ

CAFETERÍA

PLANTAVISTALATERALDETALLE 6 8 57 0 4 6 5 7 5 2 22 6 0 1 8 30 22 VISTA LATERAL 2 2 8 6 0 93 8 5 2 9 2 9 1 4 PLANTA PLANTAVISTALATERAL 92 93 0 8 2 9 2 9 1 4 BENCH COUNTER SHOWCASE 20 4 7 VISTA FRONTAL VISTA FRONTAL 8 9 8 3 4 02 6 6 3 59 1 42 8 0 4 0 BOOKCASE COUNTER 2 BARISMO TABLE VISTAPLANTALATERAL PLANTA 47 1 9 8 3 4 26 VISTA FRONTAL VISTA FRONTAL VISTA FRONTAL VISTA LATERAL 2 8 0 4 5 VISTA FRONTAL 33 0 9 0 28 8 1

El sol permite tener una cantidad moderada de luz del Oeste en la fachada principal del edificio. Al mediodía, la luz entra por los lucernarios para iluminar el interior. Sunbreakers 4 PM 9 AM - Productores de café - Catadores y baristas - Consumidores de café - Público en general PROJECT OBJECTIVES -Crear áreas corporativas para el beneficio y bienestar de los -empleadosHabilitar áreas comunes y de trabajo para los empleados. - Incluir áreas comerciales para la venta y comercialización de productos relacionados con el atraercafé al consumidor a consumir productos ecuatorianos MATERIALS IONICPORCELANATOMATEAcabado:15X15Formato:DECORAMarca:GRAIMANSAND60X120 STARKPORCELANATOPIEDRA60×60 QUARTZ ARENA DE CUARZO COLOREADO

RESTAURANTE

Además,ANECAFÉse ofrece la posibilidad de adquirir ofici nas individuales para asociaciones que busquen potenciar su producción.

        SEDE ECUATORIANOSCAFETALEROSNACIONALFUNCIONAMIENTO

MUSEO DEL CAFÉ

FROM THE GROUND TO THE CUP

N                                                         PLANOCOSECHAMOBILIARIO N                                           PLANODEGUSTACIÓNMOBILIARIO N                    Discapacitados Acera      VíaladeEje EjedelaVía Oeste-EsteCarril Carril Oeste-Este Acera                                                   PLANOCULTIVOMOBILIARIO SEGUNDO PISO ÁREA COWORKING ÁREA DE DESCANSO OFICINA ÁREA COMUNAL AULA DE CAPACITACIONES SALA DE CONFERENCIAS TERCER PISO PLANTA BAJA

Energy Renovación Sensations

Mujeres adultas: 25-65 años

Siente la energía de las piedras con la belleza de su diseño. Todos están hechos a mano de forma artesanal. A través de sus piezas de ese dar y dar se puede cambiar la vida de las mujeres que se animan a lucir sus joyas.

For adult women in addition to the general public, accessible and with the measures established by the Scala Shopping Mall.

LOGO

Self Esteem

CONCEPTO

Su joyería está hecha a mano, utiliza la plata como metal principal y piedras semipreciosas de fondo. Consigue muchas texturas y encaja bien con la parte energética de las piedras. La orfebre explica que las piedras con las que prefiere trabajar son turquesas, cuarzos y ágatas, traídas del extranjero.

Fluidity Beauty Craft

Conexión entre la mujer y las piedras a través de la joyería. La ornamentación y las curvas aportan un espacio lleno de historia y sensaciones. El objetivo es simplificar este espacio en curvas para generar fluidez y contraste, es decir, dotarlo de alma.

Through the union between beauty and utility inspired by nature, ornamentation and the female figure. Creating a welco ming, comfortable store where you can connect with your customer and display your products in various ways.

OBJETIVOS DE DISEÑO

Llegar a la mujer con una pieza que la haga feliz, le cambie la vida, le suba la autoestima.

Flower

QUE

CROMÁTICA

SILUETAS

TARGETSLOGAN

“Cada una de nuestras piezas cuenta una historia, cada piedra es mágica”

BRAINSTORMING

Art Woman Forms Connection

Autodidacta en los años ochenta mientras estudiaba Administración de Salud en Bakú, Azerbaiyán. Produce en metales como cobre, estaño y plata. Los habitantes de la misma le hablaron de la buena energía de las piedras preciosas que se extraían de las minas.

Ella cree en las leyes universales y en la energía de las piedras. Cada colección que trabaja tiene una simbología para trascender en esta vida terrenal.

MISSIONVISIONOBJECTIVE

Crear un espacio de venta de joyería para la diseñadora Tatiana Cruz donde se refleje su concepto de mantener una relación entre la mujer y la joyería.

Curves Handicrafts

JOYAS CON ALMA

Nivel Socioeconómico: Alto Valor Agregado Artesanal

Como la mujer es parte de la sociedad, juega un papel fundamental como centro de la familia. Se busca mantener el esfuerzo enfocado en el bienestar de estas mujeres y sus beneficios para la sociedad.

QUIENCOMO

PORCELANATO SNOW PALILLAJE HIERROCABLE DE PASAMANOSACERO DISEÑO EN PANEL METÁLICO PAPEL TAPIZ MÁRMOL SILLÓN IKEA AMARILLOTRAVERTINO GRIS LÁMINA COLOR ORO ARCO MDF PLATA METÁLICO ARCO POLTRONA ALTA SANTIAGO VIDRIO TEMPLADOALFOMBRA NEGRA LÁMINA COLOR ORO ARCO MDF PLATA METÁLICO ARCO VIDRIO TEMPLADO Vitrina Principal BLACK LogotipoGypsumSTEELcolumnasTCTEMPEREDGLASSColorGris10mm 4.88 m 3.90 m Vitrina Lateral DETALLES MOBILIARIO COUNTER DETALLES CONSTRUCTIVOS EXHIBIDOR JOYAS Luz LED Vidrio 2mm Mini spots LED recesados VISTA FRONTAL VISTA POSTERIOR VISTA LATERAL Tubo LaminadoMDFHerrajeAceromanija6mmcolororoSoporteAceroVidrio 2mm Luz LED Acero Negro Placas de Hierro ColorVarillasNegro de Metal negro Espesor 2 mm Anclaje techo AXONOMETRIA Platina empernada al techo final CC MEZZANINESTAIR Detalle tubo de acero con diseño en negro VISTA LATERAL Detalle Pasamanos1 Escalera Detalle 2 Peldaño en el tubo de hierro PeldañoDetallesoldado3escalera Techo CC Scala Tubo de acero negro Pernos sobre la placa PLANTA CORTE PLANTA CORTE VISTA FRONTAL VISTA LATERALPLANTACORTE VISTA FRONTAL VISTA FRONTAL AXONOMETRIA Acero Negro MDF Laminado6mmcolor oro Herraje manija Estructura suspendida en el techo Tubo de acero Diseño en acero negro sobrepuesto Peldaño en hierro Varillas soldadas a la base en el hierroPlanchatechode3mmsoldadoTubo en acero Plancha de 6mmPLANTAVISTALATERAL Cajones MDF 6mm Triplex curvo 4 mm MDF laminado color Vidrio 2mm Laminado color negroMDF laminado color grisMDF laminado color gris Manija cajón gris SHOWCASE LÁMINA COLOR ORO ARCO VIDRIO TEMPLADO PORCELANATO SNOW PLANIMETRÍAENTRADAFACHADA SALA DE ESPERA ACCESO ESCALERA MEZZANINE

Evoca el Half Dome del Parque Nacional Yosemite, en Estados Unidos. La empresa eligió el rojo como símbolo de energía física y

PROGRAMAImplementosdeBodegaÁreadeEmpleadosPBEntradaVentadeProductosVestidoresÁreadeAlquilerCambiadoresMurodeEscaladaP2ÁreaInfantil-AudiovisualPuntodeCaféÁreadeMesasZonadeTensoresMurodeEscalada TerrazaP5BañosOficinaBarMuseoP4PuntoÁreaCocinaRestauranteP3deConferenciasdeCafédeFotografíaPúblicosExterior

MARCA

La cara norte de una montaña es la parte más peligrosa e implacable y el mayor desafío para los escaladores. El enfoque no está en el logro, sino en cómo llega allí en el viaje que realiza con la ayuda de nuestros productos.

LEMANOMBRELOGOVISIÓN

Inicialmente, el principal consumidor era el excursionis ta estereotipado, los aventureros. Aunque también está el hombre de familia que compra lo mejor para sus miembros y que asegura su fiabilidad a lo largo de sus excursiones, permitiendo que su familia explore.

The North Face es el proveedor líder de productos auténticos y técnicamente innovadores, productos que inspiran y permiten a nuestros clientes nunca dejar

Ha permanecido sin cambios desde 1966: creando el mejor equipo para nues tros atletas y exploradores hoy, apoyando la protección de la naturaleza y promoviendo un movimiento global de exploración del mundo exterior.

THE NORTH FACE

Nunca dejes de explorar es más que un lema, es la forma en que elegimos vivir nuestras vidas. Nos encanta el aire libre ya que es donde desarrollamos el carácter, la confianza, despejamos la mente, mantenemos cuerpos sanos y ganamos respeto por la naturaleza.

MISIÓN

5 tonos de gris combinados con un llamativo rojo. Estos colores evocan las sombras de una montaña orientada al norte y por tanto nevada.

CROMÁTICA

USUARIO

IDENTIDADvalentía.DELA

EXPLORACIÓN CLIMÁTICA

El Hombre de Familia quiere calidad y confianza en la marca para brindar lo mejor a su familia.

En la actualidad, hace más de 50 años, The North Face sigue ofreciendo una amplia línea de ropa, equipamiento y calzado de alto rendimiento. Continúan empujando los límites de la innovación para que puedas em pujar los límites de la exploración.

CLIMÁTICOSPISOS

-Responsabilidad Ética -Filosofía de protección -Amor por la exploración -Inspirar a las generaciones.nuevas

IDENTIDAD VISUAL

Conectar al usuario con un entorno que le permita explorar los productos de la marca a través de ele mentos interactivos dentro de una especie de microclimas.

Douglas Tompkins

Aventura Diversión Entretenimiento Naturaleza Conexión Dinamismo Innovación Tecnología Desafíos Comodidad Libertad Moderna Desafíos Experiencia Calidad Etapas Amplio Ligero Versátil Acogedor Cálido Simple Activo

BRAINSTORMING

MOODBOARD

FACHADA PRINCIPAL PLANIMETRÍA DETALLE DE MUEBLES TEMPLADO CÁLIDO CÁLIDOTEMPLADOFRÍOPÁRAMOGLACIAL

MATERIALES

VISTA PLANTA CORTE Roble Europeo Mármol VenecianoBlanco MUEBLE DISPENSADOR CAFÉ VISTA PLANTA CORTE MaderaMATERIALESdePino Eco Resina COUNTER Vidrio Gris CONSTRUCTIVE DETAIL ESTRUCTURA ANCLAJE VISTA FRONTAL CORTEMATERIALESPapelTapizColorArena Acero EstructuraNegro DIVISOR ESPACIOS MATERIALESMármolGrisRochelle Cuarzo BlancoVistoConcreto VISTA PLANTA CORTE BARRA COCINA NET | Mesa de teca By Kettal Colección Net Tipo - Mesa cuadrada de teca para jardín Herman Miller FULL TWIST Silla de madera maciza con brazos Diseñador Mark Goetz Nordic - Lámpara de araña, diseño asiático, mimbre de ratán Colour temp warm white (2700K) plugin or hardwire 110 240 V + 277 hardwire smallsize 22in (56cm) Ø MOLO Cloud softlight pendantCasamania & Horm VAD polipropilenoSillaPOLYPROPYLENESTACKABLEapilabledecon brazos Diseñador Luca Nichetto SillaTRIBÙde jardín con brazos Piergiorgio Cazzaniga Colección CTRconHojasSeparador2016VerdesbasedeGranito MR Chair Mies van der Rohe, 1927 2 metre Track Light Kit with 5 Soho Heads and LED Bulbs - White Lámpara de techo Mirta con tiras en blanco y forma redonda FURNITURE DETAIL GLACIAL PÁRAMO FRÍO

A los 22 años inicia su aventura y viaja a París. Asistió a un centro de estudios gastronómicos y trabajó en algunos restaurantes de la ciudad, en los que adquirió cierta experiencia. Comenzó sus estudios en la reconocida Escuela de Cocina Francesa Ferrandi en París. Trabajó en establecimientos de renombre como L’ Anacreon, La Chevre d’ Or (dos estrellas Michelin), el hotel Park Hyatt Place Vendôme (1 estrella Michelin) y Hôtel de Crillon (2 estrellas Michelin).

Ubicación Centro Norte Quito, Ecuador

MOBILIARIO

Espacio industrial, moderno y funcional Determinarla circulación de clientes, personal y productos

ESENCIAVISTA NET Teak Table By Kettal VELASCA By Casamania & Horm Sillón de bar de piel cuero y metal color negro Requiem Occasional Low Table Jasper Morrison, 2016Belleville Armchair Ronan & Erwan Bouroullec, 2015 TabureteTIBIDABOVaraschinalto de aluminio revestido de polvo de jardín Diseñador Calvi Brambilla TRILLNardi STOOL MINI Fiberglass polypropylene stool with Diseñadorback Ra aello Galiotto Tipo: Silla con brazos Material: Fresno Año de producción: 2016 Diseñador:Studio Balutto Associati ILUMINACIÓN LÁMPARA DE TECHO HEDA DN570BLUXSPACE EMPOTRABLE LED OJO DE BUEY LED Plafón de aluminio DLATSC-AL CICERO ROUND SHAPE PENDANT ASCOLI TRACKLIGHT by James Bassant from Astro Lighting PLANTAALZADO CORTE MATERIALS Madera Roble Piedra Negra AnclajeDetalle TechoDetalleMesónmaderarecubiertoMesónBarrade pulidoCemento Cables tensados sobre metálicaestructuraAcero negro Tira paraLEDretroiluminación BAR FACHADA FRONTAL FACHADA LATERAL DETALLES PANELMATERIALESZerdoWallpaper Chapa de Roble ALZADO CORTE PLANTA Detalle Estructura1AnclajeDetallePanelPared Pared acerometálicaEstructuraestructuralpanelUniónennegroPernos NegroMetal PROGRAMACIÓN ENTRADA ÁREA DE DESINFECCIÓN Y SANEAMIENTO ZONA CHARCUTERIA TERRAZA - JARDIN - HUERTO BAÑOS PÚBLICOSBARBODEGACOCINA PARRILLA Y MADURACIÓN ALMACÉN DECUARTOALIMENTOSFRIO RECEPCIÓN DE ALIMENTOSOFICINA ZONA DE EMPLEADOS BAÑOS PARA EL PERSONAL ÁREA DE SEPARACIÓN DE RESIDUOS PBPAÁREAÁREAINGRESOEXTERIORZONADEVENTASDEPRODUCCIÓNÁREADESERVICIOZONADEDESECHOS MATERIALIDAD DECK CUMARU TABLEROS DE MADERA TELA SINTÉTICA NAVARO COLOR: BEIGE CLARO Y OSCURO, CAFÉ METAL NEGRO CEMENTO PULIDO PIEDRA NEGRATERRAZO NEGRO Tipo de Material: Cumarú Categoría: Deck Natural Tono: PedidoDisponibilidad:MachimbradoMétodoOrigen:RojoFranciadeinstalación:Bajo Resistone Microcement Color:EvolutionGris ahumado Estructura Metálica Color: Negro Planchas de Madera Roble Americano Color: Oscuro 20X40X2400MM Baldosas en Grano #23 Formato: 30x30x1.5cm Código: MEMOBT0265 / Pulido Casa Roselló Graiman Gris Formato: 50x50 Diseño de Paredes Color: Beige Diseño de Paredes Color: Negro Lorem ipsum Listones de Madera Madera de Pino Listones de Acero NATURALJOVIALMONABRISTRING AGRESTRERÚSTICOLINEALMODERNOJUVENILCÁLIDOAMBIENTALVERSÁTIL

El concepto del proyecto propone generar una visión amplia de los productos que se utilizan en la cocina, desde sus carnes, vinos, cocteles hasta sus vegetales. Es por esto que se muestran desde diferentes espacios y ambientes que buscan conectar al cliente con el espacio y brindarle el mayor confort posible. Se utilizan materiales expuestos e industriales, así como una iluminación cálida para promover un espacio acogedor y moderno.

Bar Restaurant, Pub Latin Food

Una peculiar propuesta de comida con cerdo, ahumada, vegetariana y más.

Mejorar la calidez de tu local actual Crear un espacio de entretenimiento Separar los residuos orgánicos de los inorgánicos Incorporar espacio para recipientes de agua Ahorro ecológico por reutilización de materiales y recursos Espacio para desinfección y sanitización Optimiza los espacios y mejora su uso Área de personal con casilleros, baños y comedor Accesible para personas con discapacidad Servicio de barra y posibilidad de incluir música Mejorar el aparcamiento del local actual Incluya áreas abiertas al aire libre, área para fumadores Buena ventilación y aire libre Cortadora de embutidos, charcutería y curados Aislamiento acústico y espacio flexible Posibilidad de un huerto para productos frescos

En 2017 regresa a Grupo Z como Chef Corporativo y desarrolla la nueva propuesta: “Zerdo”. En este lugar puedes encontrar la más variada gastronomía con carne de cerdo, desde cochinillo o cochinillo hasta la más alta charcutería. Su amplia barra y la cocina vista desde el restaurante siguen siendo el ejemplo de confianza que experimentan los comensales al visitar este espacio, incluyendo varias creaciones únicas de un chef que conquista paladares, seduciendo con su arte y pasión.

DAVID PICCO

ÁREA LOUNGE Y BOOTHS

FIRST FLOOR ESCALA 1:100 MEZZANINEESCALA1:100 B-B’A-A’ N N + 2 7 + 2 N N 0 00 + 0 N N 2 7 + 2 N N 0 0 + 0 CORTESPLANIMETRIABAR - CAVA DE VINOS ÁREA DE MESAS BAÑOSMEZZANINE

- Crear una conexión entre el área interior y exterior.

La transparencia y conexión con el exterior, iluminación puntual y general. Los muebles pensados para implementos necesarios como espejos, pisos de madera que aportan calidez así como la separación de espacios.

CROMÁTICA

- Adecuar el espacio para el tratamiento en el área de fisioterapia y mejorar su rehabilitación.

- Proporcionar un ambiente cálido a través de tonos, materiales y textur as.

del concepto se pretende fomentar la diáfana, una interacción entre espacios compartidos que mantienen su privacidad.

ToDL102ee Leaves 3 VariaFormEcoresin Hospitable Vinyl Gray Tint - 927 Pine Wood Suita Sofa 3-Seater Classic Antonio Citterio Vitra Philips Ledino Silver Leaf LED Pendant Light Reed05TextilPerla Mello05TextilPapiro Colores cálidos con poco contraste que reflejan naturalidad y calidez al ambiente. Interceramic Lavabo Milán Monomando MaderadoVinil AlfombrasMadera

MATERIALS AND FINISHES

-Estrecha relación con la naturaleza lo que les permite realizar activi dades tanto en interior como en exterior.

- Personas Mayores de 65 años

TARGET-Através

- Usuarios con discapacidad o movilidad reducida

DESIGN GOALS

- Fisioterapeutas y auxiliares médicos REFERENTES

FISIOTERAPIAÁREA

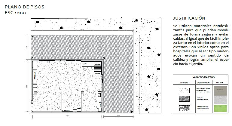
Se utilizan materiales antidesli zantes para que puedan moverse con seguridad y evitar caídas, además de que sean fáciles de limpiar tanto por dentro como por fuera. El vinilo es adecuado para el hospital. tipo madera, evocan una sensación de calidez y comodi dad conectando con el jardín.

ÁREA DE ESPERA ÁREA DE EJERCICIOS

ÁREA DE EQUIPOS ÁREA DE TERAPIAS

Conexiones: Humano - Social - Espiritual

El propósito es cultivar la idea de comunidad donde todas las personas están incluidas conectando todos los elementos desde los planos hori zontales a los verticales. Incluyendo áreas suspendidas para seguir la escala humana, hace que los habitantes se sientan y se reúnan más cómodos. Dividir el plan abi erto en una serie de recintos funcionales y privados a través de paneles de división mejora la acústica y la privacidad. El esquema de color sigue la apariencia de la iglesia mientras preserva la esencia del espacio agregando tonos más claros en las paredes y el piso. En contraste con los tonos cálidos de la madera, los tonos grises y negros con detalles en rojo crean un espacio versátil, vibrante y moderno.

LIFE LOBBYCHURCH

SALA DE ESPERA

PLANO MOBILIARIO

El concepto sigue la función de un vestíbulo, que es conectar espacios, pero va más allá para conectar personas con diferentes aspectos:

ENTRADA LOBBY NORMAN, OKLAHOMA

Scale 1/8”= 1¨- 0”

MATERIALIDAD Cylinder Co e Table Bolero Task Stool Flooring Microcement Acoustic Ceiling Panels Tenso ex TRACK by VOLUME K Reception Desk Seating AreaHanging Lighting Surface mounted LED spotlights Wall Paint Co e Area - Armchair Wood Stool SECTION A SECTION B

camino libre

BAÑO ACCESIBLE

MATERIALES

CORTEPLANIMETRIADETALLE

Este baño está diseñado para perso nas mayores y/o con movilidad reducida. El cual basa su concepto en la forma del espacio que posee, donde se logra una figura particular y se acompaña de la naturaleza. Hemos incluido un jardín vertical que permite una conexión visual con el exterior. Al rodear al usuario de manera natural, el espacio brinda calma, que es una de las cualidades buscadas. Además, el lugar está diseñado para facilitar el acceso de la persona con movilidad reducida a cualquier lugar sin obstáculos ni ele mentos que impidan su movilización.

0.15 1.10 2.29 2.05 1.50 1.05 A11 PLANO MOBILIARIOESC1:50N+0.050.50 2.25 2.76 5.17 1.47 3.12 5.17 3.89 1.50 1.14 2.261.44 3.80

ASIMETRÍA NATURAL busca generar un de hacia los espacios del baño naturales.

rodeado de formas

circulación

El concepto

Fibraplac

todos

Melamina RH MOODBOARD

Grosor 4mm Edimca Sunlight 10 mm

Po ce anato gn 30X30eacm Porce ana o maderado Graiman L ght be ge 19x120cm Po ce ana o marmo eado 60x60cm ard n ver�ca

J. CHIN RESIDENCIA

VOLCANO ROAD - COTOPAXI

DRESIENCIAL

La casa es el espacio para la familia de un fotógrafo amante de la naturaleza y la montaña. El proyecto presenta espacios abiertos para conectarse con el exterior y poder observar la naturaleza desde el interior. También se crean dobles alturas para jugar con el volumen exterior y se incluyen amplios espacios para realizar actividades físicas ya que él también es deportista.

RESIDENCIA J. CHIN

Se propone crear una acogedora y cálida casa de campo la cual se ubica en la naturaleza cerca del volcán Cotopaxi, los materiales del interior son cálidos, rústicos y buscan integrar materiales de la zona. La zona es muy fría y alta, por lo que se utilizan materia les que mantengan el calor y no dañen el medio ambiente.

CASA CAMINO DEL VOLCÁN - COTOPAXI

STOOLZUSELBEUMEDOÑESDI

BRICK FIREPLACE ACCESSIBLE KITCHEN

contact nicoleup21@gmail.com+593995679495

Turn static files into dynamic content formats.

Create a flipbook
Issuu converts static files into: digital portfolios, online yearbooks, online catalogs, digital photo albums and more. Sign up and create your flipbook.