2024VNm - Architecture portfolio

Page 1


ARCHITECUTRE

PORTFOLIO

NGUYỄN LÊ MINH SELECTED WORK FROM 2019 - 2024

Chào, Tôi là Ng. Lê Minh. Chào mừng đến với portfolio

của tôi, nơi bạn sẽ tìm thấy những đồ án được

chọn lọc từ 5 năm học tập của tôi. Các dự án của tôi phản ánh sự kết hợp giữa các phong cách, bao gồm công nghiệp, hiện đại và cổ điển giả cổ. Điều tôi tự hào là sự tải mình và sẵn sàng khám phá những cách tiếp cận mới và cởi mở trong suốt quá trình học kiến trúc tại đại học của mình.

Học vấn

Ngôn ngữ

Lang

THCS Giồng Ông Tố

Trung tâm VUS

Kinh nghiệm

Jun 2020Apr 2021

Jun 2021Sep 2021

Mia Design studio

Thực tập sinh: nghiên cứu mô hình kiến trúc, mô hình hoàn thiện, hồ sơ bản vẽ, tổ chức sự kiện và triển lãm.

Freelance model making

Làm việc, tư vấn và nghiên cứu các mô hình kiến trúc từ đơn giản đến chi tiết.

Sep 2022May 2023

Xuong Xep studio

Internship: nghiên cứu mô hình, phân tích, nghiên cứu concept, concept design và hồ sơ bản vẽ, tư vấn.

2021 2022 2023

động

Festival sinh viên Kiến trúc 2021

Giải nhất - hạng mục Ký hoạ

đặc biệt module 3x3 về công nghệ

Festival sinh viên Kiến trúc 2022

Giải ba module 3x3 pavillion

IAUTE - Sáng tạo kiến trúc - hoàn thành

Chủ tịch câu lạc bộ “Urban sketcher

Vanlang” - giản viên tại workshop ký hoạ Đà Lạt lớp kiến trúc đặc biệt K27

“Kiến Xây” Văn Lang 2022

Ban tổ chức - trưởng nội dung

Ban thi công - sân khấu Giải logo design 2023

“Kiến Xây” Văn Lang 2023

Ban thi công - sân khấu

Tên: Ngày sinh: Sdt: Mail: Địa chỉ: Nguyễn Lê Minh 23/09/2001 0931823046 minh.arch23@gmail.com tp. Thu Duc, tp. Ho Chi Minh

SaIGON METRO

The redesign of Tan Cang metro station

Top

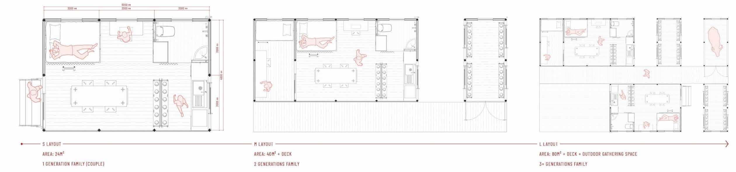
“THE FLOAT-WOOD MICROHOME”

Miền Trung Việt Nam là khu vực thường xuyên phải chịu ảnh hưởng của thiên tai hàng năm, như bão và lũ lụt. Những thảm họa này đã gây ra những tổn thất nghiêm trọng, bao gồm thiệt hại về hạ tầng, đất nông nghiệp và gia súc, cũng như mất mát lớn về người. Cuộc sống của người dân bị ảnh hưởng nghiêm trọng, dẫn đến sự phát triển xã hội và kinh tế rất chậm. Mặc dù mọi người vẫn tiếp tục làm việc và tích lũy tài sản, nhưng khi bão đến, mọi nguồn thu nhập đều được dùng để khôi phục thiệt hại do thiên tai. Công việc sửa chữa này trở thành một vòng lặp lặp đi lặp lại, với người dân luôn sống trong trạng thái phòng ngừa, chuẩn bị cho bất kỳ thảm họa nào xảy ra. Chiến lược của dự án là phát triển một ngôi nhà vi mô có khả năng thích ứng tốt với điều kiện thời tiết khu vực, với

Module design brief

Water collecting sys

FOOD CENTER

Case studies of vietnamese market design

STUDY PROJECT

SITE: NHA-BE,

THE VIETNAMESE

TRADITIONAL RATIO STRUCTURE

Đặc điểm nổi bật của tòa nhà là tỷ lệ của nó, được lấy cảm hứng từ các tỷ lệ tìm thấy trong các công trình cộng đồng truyền thống của Việt Nam, chẳng hạn như đền làng. Những nơi này được sử dụng cho các buổi gặp gỡ, lễ hội và hoạt động của làng... Các tỷ lệ được tính toán dựa trên các phần trăm liên quan đến tỷ lệ giữa cột và mái, tạo ra một hệ thống kiến trúc mà dù hiện đại nhưng vẫn giữ gìn những giá trị và cảm xúc của quá khứ.

Không gian được chia thành hai nửa. Khu vực trên sử dụng thép phồng và các mẫu hình tam giác để gợi nhớ cấu trúc mái, trong khi không gian phía dưới được mở rộng với tỷ lệ 1/3, dựa trên kiến trúc truyền thống của nhà ba gian.

THE VIETNAMESE MARKET PLACE

The distinctive feature of the building is its proportions, which are derived from the ratios found in traditional Vietnamese communal structures, such as village temples. These places are used for gatherings, festivals, and village activities...

The proportions are calculated based on percentages relating to the ratio of columns to the roof, creating an architectural system that, while contemporary, still preserves the values and emotions of the past.

The space is divided into two halves. The upper area employs flared steel and triangular patterns to evoke the roof structure, while the lower space is opened up with a ratio of 1/3, based on the traditional architecture of the three-bay house.

HOUSES PATTERN GROWTH - LIVING BESIDE THE RIVER

THE VIETNAMESE MARKET PLACE

hydraulic umbrellas

Các chợ truyền thống của Việt Nam nổi tiếng với

cách bố trí năng động và sự đa dạng. Thường

được tổ chức theo hình thức mở, nhộn nhịp, các chợ này có một mê cung các gian hàng và người bán, mỗi gian hàng cung cấp một loạt hàng hóa phong phú. Bố cục thường bao gồm các khu vực dành cho rau quả tươi, thịt, hải sản, gia vị và hàng thủ công, tạo ra một trải nghiệm phong phú về giác quan.

Sự đa dạng của các chợ này phản ánh nhiều loại sản phẩm địa phương và ảnh hưởng văn hóa. Bạn sẽ thấy những gian hàng rực rỡ với trái cây và rau củ, thảo mộc thơm, đồ ăn vặt truyền thống và các sản phẩm thủ công. Mỗi chợ đều có nét độc đáo riêng, được hình thành bởi các đặc sản vùng miền và tính cách của cộng đồng mà nó phục vụ.

Sự đa dạng này không chỉ đáp ứng nhiều nhu cầu mà còn thể hiện bức tranh văn hóa phong phú và cuộc sống hàng ngày của Việt Nam. Giá trị của một chợ truyền thống Việt Nam dưới những chiếc ô là di sản văn hóa phong phú và ý nghĩa xã hội của nó. Nó đóng vai trò như một trung tâm cộng đồng sôi động, hòa quyện giữa các thực hành truyền thống và tiện ích hiện đại, đồng thời mang đến trải nghiệm phong phú về giác quan, tôn vinh bản chất của cuộc sống Việt Nam và thương mại địa phương.

The revival of industrial herritage in the Ho Chi Minh city

GRADUATION PROJECT

TAMAYOUZ COMPETITION 2024 - pending SITE: 2309 PARK, HO CHI MINH CITY YEAR: 2024 - PROGRAM: SKETCHUP, ENSCAPE, PHOTOSHOP RHINO, INDESIGN, REVIT

HO CHI MINH CITY

Thành phố Hồ Chí Minh, trước đây được gọi là “Sài Gòn”, là một đô thị sôi động ở miền Nam Việt Nam, nổi tiếng với sự pha trộn đa dạng các phong cách kiến trúc phản ánh lịch sử phong phú và sự hiện đại hóa nhanh chóng của nó. Cảnh quan kiến trúc của thành phố là một bức tranh thú vị, nơi mà ảnh hưởng của kiến trúc thuộc địa Pháp, truyền thống Việt Nam và phong cách hiện đại giao thoa với nhau.

THE CITY PROBLEM

Sự phát triển đô thị nhanh chóng của Việt Nam trong những năm gần đây đã dẫn đến sự biến mất của nhiều cơ sở sản xuất công nghiệp đầu tiên, cùng với những giá trị hữu hình và vô hình liên quan. Nhiều công trình công nghiệp có ý nghĩa di sản cũng đang đối mặt với tương lai bấp bênh, vì chúng không được đưa vào bất kỳ danh sách phân loại hay bảo tồn nào của nhà nước. Quá trình công nghiệp hóa, bắt đầu từ thời kỳ thuộc địa Pháp, đã đánh dấu một sự chuyển mình từ sản xuất truyền thống sang sản xuất công nghiệp, đồng thời tượng trưng cho sự giao lưu văn hóa giữa Đông và Tây, cùng với cuộc đấu tranh giành độc lập dân tộc. Di sản công nghiệp ở châu Á do đó nắm giữ giá trị lịch sử và biểu tượng quan trọng, được gắn liền sâu sắc với văn hóa địa phương, được phản ánh trong các bài hát dân gian, thơ ca và cuộc sống hàng ngày, bao gồm cả đồ nội thất cũ và các quán cà phê ven đường.

the erasure of industrial buildings in the Ho Chi Minh city

THE PAST

THE PRESENT

THE FUTURE

THE CHALLENGE

THE MUSEUM OF

“SAIGON” RAILWAY IND

The new “bobo” road railway crossed rice fields

The grass layer - simulated the rice field

The glass panel - the skylight systems for underground spaces

The water layer - irrigation systems

The soil layer - better water drainage Roofing system = skylight + landscape + pedestrians

THE OLD “BOBO” ROAD

Trong thời kỳ kinh tế khó khăn, nhiều người nghèo thường nhảy lên tàu mà không mua vé để di chuyển miễn phí. Thói quen này dẫn đến việc họ đi lại trên các tuyến đường sắt mà không có sự giám sát. Vì vậy, tuyến đường sắt này được gọi là “đường bobo,” trong đó “bobo” mô tả hành vi của những người sử dụng dịch vụ tàu mà không trả tiền. Thuật ngữ “bobo” được dùng để chỉ những gì miễn phí hoặc tránh được việc thanh toán, và trong bối cảnh này, nó trở thành biểu tượng cho công trình được thiết kế để hòa nhập một cách liền mạch với công viên hiện có, cho phép người dân sử dụng không gian một cách miễn phí.

Thiết kế bao gồm ánh sáng tự nhiên xuyên suốt cả ngày và đêm, với cấu trúc đơn giản kết hợp giữa cảnh quan pixel hóa và các tấm kính. Thiết kế này cho phép mọi người quan sát nhà ga bên dưới, thỏa mãn sự tò mò của họ trong khi vẫn duy trì một môi trường mở và thu hút.

CHUYỆN DÂU BỂ BÊN THANH RAY

Nghề bảo trì đường sắt gợi lên một hình ảnh sâu sắc

về sự cống hiến đơn độc. Hãy tưởng tượng một công nhân đường sắt dày dạn kinh nghiệm, cô đơn trên dải đường ray bất tận, xung quanh là cảnh quan bao la. Bầu trời trên đầu có thể rộng lớn và mở, hoặc có thể nặng trĩu với những đám mây báo hiệu cơn mưa sắp đến. Trong hình ảnh đơn độc này, có một cảm giác cô đơn sâu sắc và một trách nhiệm phi thường.

Khi công nhân di chuyển dọc theo đường ray, từng bước chân của họ vang vọng trong sự tĩnh lặng của môi trường, tạo nên một sự tương phản rõ rệt với những chuyến tàu tấp nập phụ thuộc vào sự chăm sóc tận tụy của họ.

Những ngày của họ trôi qua trong suy tư tĩnh lặng, người bạn đồng hành duy nhất là âm thanh nhịp nhàng của công cụ và tiếng rì rào của những chuyến tàu xa xăm. Sự cô đơn trong công việc của họ là rõ ràng, nhưng nó mang theo một mục đích nặng nề.

NGUYEN LE MINH - HOAXA MUSSEE

Các giếng là một đặc điểm quen thuộc

đối với người dân địa phương, với sự hiện diện của chúng vẫn còn thấy trong nhiều ngôi nhà rải rác. Dự án nhằm phản ánh tính bình yên và tĩnh lặng của những chiếc giếng này, phục vụ như một điểm dừng chân và nơi suy ngẫm cho du khách.

“Giếng Mưa”: Yếu tố này trở thành trung tâm chú ý và biểu tượng cho cách bố trí của công viên. Nó bao gồm

các phòng hội nghị, câu lạc bộ cộng

đồng nhỏ, nhà vệ sinh, và một không gian để ngẫm nghĩ về hình ảnh của những giọt mưa rơi. Khái niệm này

được lấy cảm hứng từ hình ảnh giếng truyền thống tại các nhà ga cũ, đã lâu dài tượng trưng cho sự mát mẻ và sinh sống trong văn hóa địa phương. Thiết

kế giếng này trở thành cả biểu tượng trung tâm và biểu tượng cảnh quan cho công viên, với các không gian hội nghị và sự kiện được đặt bên dưới.

BUILDING ACESS

Lối vào được thiết kế để mô phỏng một đoàn tàu nổi lên từ mặt nước, tạo ra trải nghiệm cho du khách, nơi họ lần đầu tiên tách biệt khỏi thế giới ồn ào bên ngoài và được chào đón vào những giá trị lịch sử được trưng bày trong bảo tàng. Hơn nữa, du khách trong công viên có thể sử dụng hình dáng này như một điểm nghỉ ngơi và quan sát đồi.

“Đồi Ngắm Cảnh”: Không gian này hoạt động như một lối vào hoành tráng, kết nối mọi người với di sản. Nó bao gồm sảnh chính, khu vực dịch vụ và quầy vé cho bảo tàng, nơi bảo tồn và duy trì các hiện vật. Thiết kế kết hợp giữa cũ và mới, được thể hiện qua một cấu trúc một phần trên mặt đất và một phần dưới lòng đất, tượng trưng cho sự chuyển tiếp từ nhà ga cũ trên bề mặt đến nhà ga mới bên dưới. Một đặc điểm nổi bật của khu vực này là hình ảnh một đoàn tàu nổi lên từ cấu trúc, tạo hiệu ứng thị giác như một đoàn tàu đang trôi nổi trên mặt nước, mang lại cho du khách cảm giác tách biệt khỏi cuộc sống hiện đại.

THE END

Turn static files into dynamic content formats.

Create a flipbook
Issuu converts static files into: digital portfolios, online yearbooks, online catalogs, digital photo albums and more. Sign up and create your flipbook.
2024VNm - Architecture portfolio by Le Minh Nguyen - Issuu