Nedvig Bendegúz - Építész portfólió

Page 1

ÉPÍTÉSZ PORTFOLIÓ

2023
2
“Architecture belongs to culture, not to civilization.”
/Alvar Aalto/

TARTALOM

Önéletrajz 4

ISZKASZENTGYÖRGY - Duzzogó fürdő 6

PÉCS - Közösségi lakópark 22

ALBUFERA - Absztrakt művészeti múzeum 34

NAGYMÁNYOK - Városközpont 40

Szakmai tapasztalatok 48 Fényképek 54

3

ÖNÉLETRAJZ

TANULMÁNYOK: TAPASZTALAT:

Universitat Politècnica de València Erasmus tanulmányi mobilitás 2021 5 hónap

Pécsi Tudományegyetem - Műszaki és Informatikai Kar Építészmérnök 2016-2022

PERALTA STUDIO - Barcelona Építészmérnök (Erasmus szakmai gyakorlat) 2022-

AU.ROOM ÉPÍTÉSZ MŰHELY Gyakornok 2022 6 hónap

RP_SC Holding Kft. Szakmai gyakorlat 2021 4 hét

Pannon Archikon Kft. Szakmai gyakorlat 2021 6 hét

DOCExDOCE - Europe 4th Edition építészeti tervpályázat 2021

IFK Hallgatói tervpályázat Barnamezős fejlesztések 2020

Tanársegéd Ábrázológeometria 2019

FH Burgenland – International Summer School on Sustainable Buildings for Europe 2018

Hello Wood – workshop 2017, 2018

ÉDREKLŐDÉS:

Fényképészet - Zene - Túrázás, kerékpározás - Néptánc - Grafika

NYELVTUDÁS:

ANGOL – Tárgyalóképes ismeret (B2-es vizsga) SPANYOL – Alapfokú ismeret (A2)

4

RÓLAM

1996-ban születtem, majd egy kis faluban, Iszkaszentgyörgyön nevelkedtem, ahol lehetőségem volt csodálni a természet szépségeit, ugyanakkor az épített örökséget is. A településen található kastély ad otthont az általános iskolának. A zene és a néptánc régóta életem szerves részét képezi. Igyekszem kivenni a részem a helyi közösség életéből, tagja vagyok a táncegyüttesnek és egy civil szervezet vezetőségének is. Az itteni csoportokban való tevékenységem során jártasságot szereztem a vezetői feladatok, a menedzsment és a kommunikáció terén is. Édesapámat követve vonzott a mérnöki pálya, de a középiskolai évek alatt a művészet egyre fontosabbá vált számomra. Az egyensúlyra az építész szakmában találtam, ahol a mérnöki gondolkodásmód, és a szép iránti vágy találkozik. Fényképezni szintén azért kezdtem el, hogy kifejezzem művészeti indíttatásomat. Biztos vagyok benne, hogy ezek a szabadidős tevékenységek a szakmai pályafutásomon is elkísérnek. Építészként a régi építésmódok inspirálnak, az anyagok őszinte használata, a hétköznapi emberek funkcionalizmusa, a szükség szülte minimalizmus. Másrészt lenyűgöz a természet néha indokolatlannak tűnő szépsége. Véleményem szerint feladatunk ezen szépség kiegészítése, megőrzése. Néha megrémít, néha inspirál ezen szakma összetettsége, és csak remélni tudom, hogy egyszer én is mesterévé válok.

KAPCSOLAT:

nedvigbendeguz@gmail.com @nedvigbendeguz @vig.fotok +3630/3845595

5 ArchiCAD SektchUp Lumion Twinmotion Photoshop Lightroom Illustrator Skicc Makettezés
KÉZSÉGEK:

ISZKASZENTGYÖRGY - Duzzogó-fürdő - 2022

Diplomamunka - Konzulens: Dr. Sztranyák Veronika

Diplomamunkám keretein belül Iszkaszentgyörgy település fejlesztésével szeretnék foglalkozni. Mivel itt élek lassan két évtizede, jól ismerem a települést, adottságait, közösségi, kulturális életét. A településen lévő Amadé-Bajzáth-Pappenheim kastély, a Kelet-Bakony természeti kincsei, az épülőben lévő bicikliút hálózat, tanösvények és turista-utak garantálják, hogy Iszkaszentgyörgy nem csak lakóinak, de a környező településeknek, a régiónak is bőven kínál szabadidős programokat, turisztikai érdekességeket. Kutatásom során kiderült, hogy a kastély építésének utolsó ütemekor, 1907ben a grófi család elkészíttette egy fürdőnek is a tervét. A megvalósítás viszont elmaradt, mert a kastély és egy másik vidéki kúria építése mellett ez már nem fért bele a grófi költségvetésbe. Ez a fürdő a település északi, laposabb területén elhelyezkedő Duzzogó-forrás vizét használta volna. Ezt a Duzzogó-fürdőt szeretném újjáéleszteni ebben a projektben, mely egyrészt a növekvő helyi lakosságnak biztosíthatna kikapcsolódási lehetőséget, másrészt hozzáadna a település turisztikai vonzerejéhez

6
7
8

Településfejlesztési koncepciók

9
10 Hejszínrajz
11 Alaprajz
12

Metszet

13
Metszet
14

Keleti homlokzat

Déli homlokzat

15
16 Főfalmetszetek
17
Szerkezeti koncepció
18
19
20
21

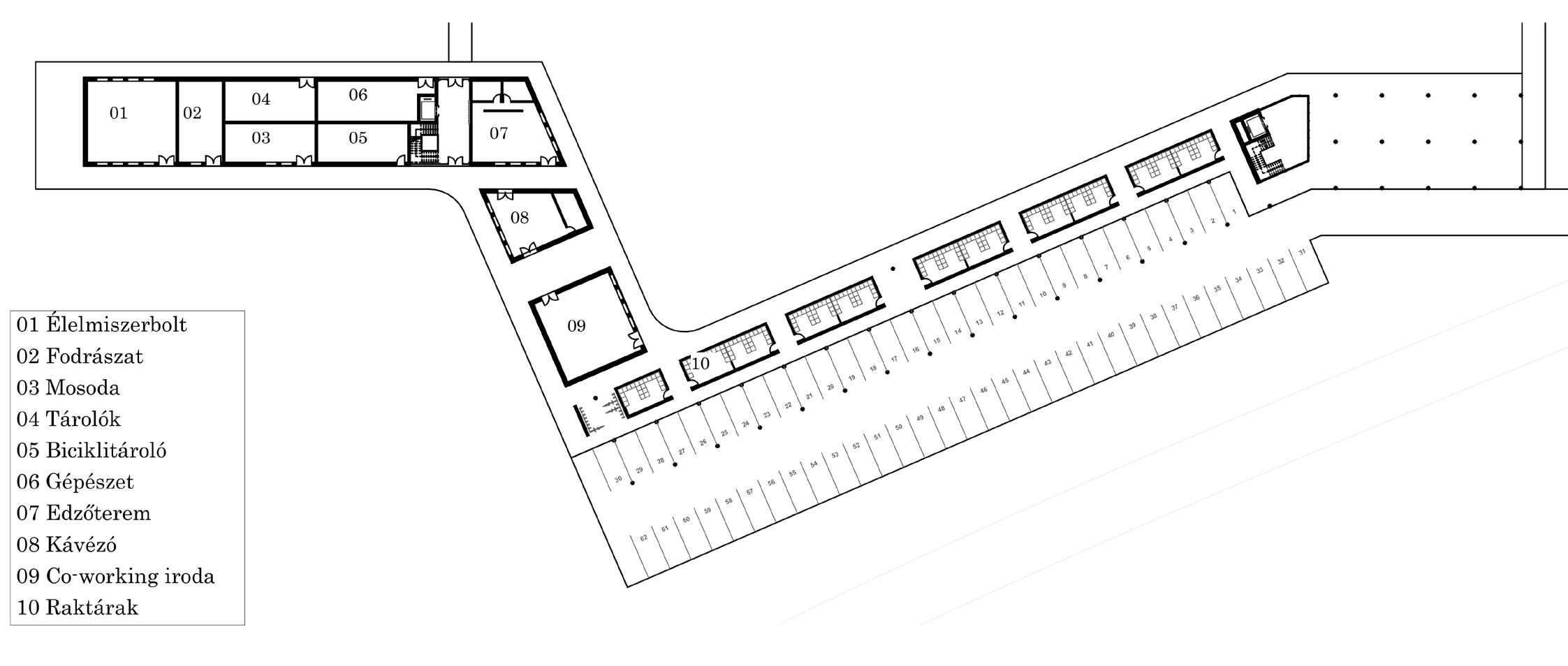
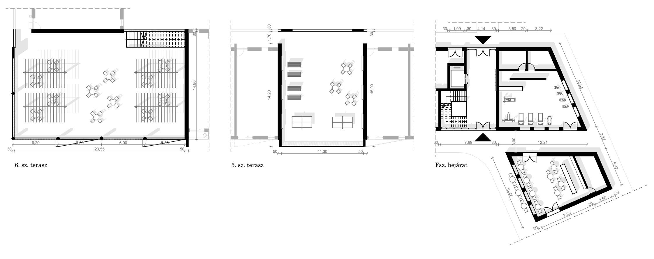
PÉCS - Közösségi lakópark - 2022

Egyetemi munka - Konzulens: Dr. Gyergyák János Partner: Bajnai Bence

A helyszín Pécs Balokány nevű része. Közel fekszik a belvároshoz, de a kapcsolat kialakítása része volt a feladatnak. Tervezési szempontjainkat az analízisek alapján ezekben a pontokban fogalmaztuk meg: 6-os út térfalainak rendezése, minőségi gyalogos, biciklis kapcsolat létesítése a belvárosból a 48-as téren keresztül a Zsolnay-negyedig, az EKF épületekhez méltó előtér kialakítása. Használható zöldfelületek létesítése, Balokány-liget bekapcsolása a 48-as téren keresztül a városi zöldfelület rendszerbe. Funkciók tisztázása, rendezése, újak telepítése. Észak déli kapcsolatok létrehozása, a vasútvonal elzáró szerepének csökkentése. A belváros kapuját olyan minőségre emelni, ami méltó a városhoz. A második rész egyéni munka volt. Feladat 150 lakás telepítése a vasút vonalától délre található területen. A feladatban kiírt lakásokat a tervezés elejétől egy tömegben szerettem volna elhelyezni igazodva ezzel a EKF terület szabadon álló tömegeihez, illetve, hogy az itt lakóknak minél több beépítetlen, zöld környezet maradjon. A teraszos tömegformálás lehetővé teszi, hogy egyes lakások kiegészüljenek egy nyílt élettérrel, és kilátással. A földszinten publikus, nem csak a lakóknak tervezett funkciók kaptak helyet. A további szinteken a függőleges közlekedő tengelyek mellett közösségi terek kerültek kialakításra. Ezekkel a megoldásokkal szerettem volna generálni a lakóközösség, és az ezen belüli társadalmi interakciók létrejöttét.

22
23
24

Földszinti alaprajz

Alaprajz részletek

25

Általános szinti alaprajz

26
27 Metszet
28

Lakás alaprajzok

29
Homlokzat
30
31
32
33

ALBUFERA - Múzeum - 2021

Egyetemi munka - UPV - Konzulens: Pascual Selles

A terv a Valencia melletti Albufera nemzeti park területére készült. A tóparti helyszínen egy absztrakt múzeum létrehozása volt a feladat, egy helyi festőnek (Manuel Rey Fueyo). Az épület nagyjából 40 festmény kiállítását, a többi szakszerű tárolását teszi lehetővé. Magában foglal egy többfunkciós teret , mely workshopok, előadások, koncertek helyszínéül szolgálhat. A múzeum mellett egy kisebb café kapott helyet, hogy a kiállítás megtekintése után egy kávé elfogyasztása közben gyönyörködhessünk a tájban. Az épület erős kapcsolatban áll környezetével, hiszen a festmények mellett e természeti érték bemutatása is cél.

34
35

Földszinti alaprajz

Emeleti alaprajz, tetőterv

36
37 Metszetek Homlokzatok
38
39

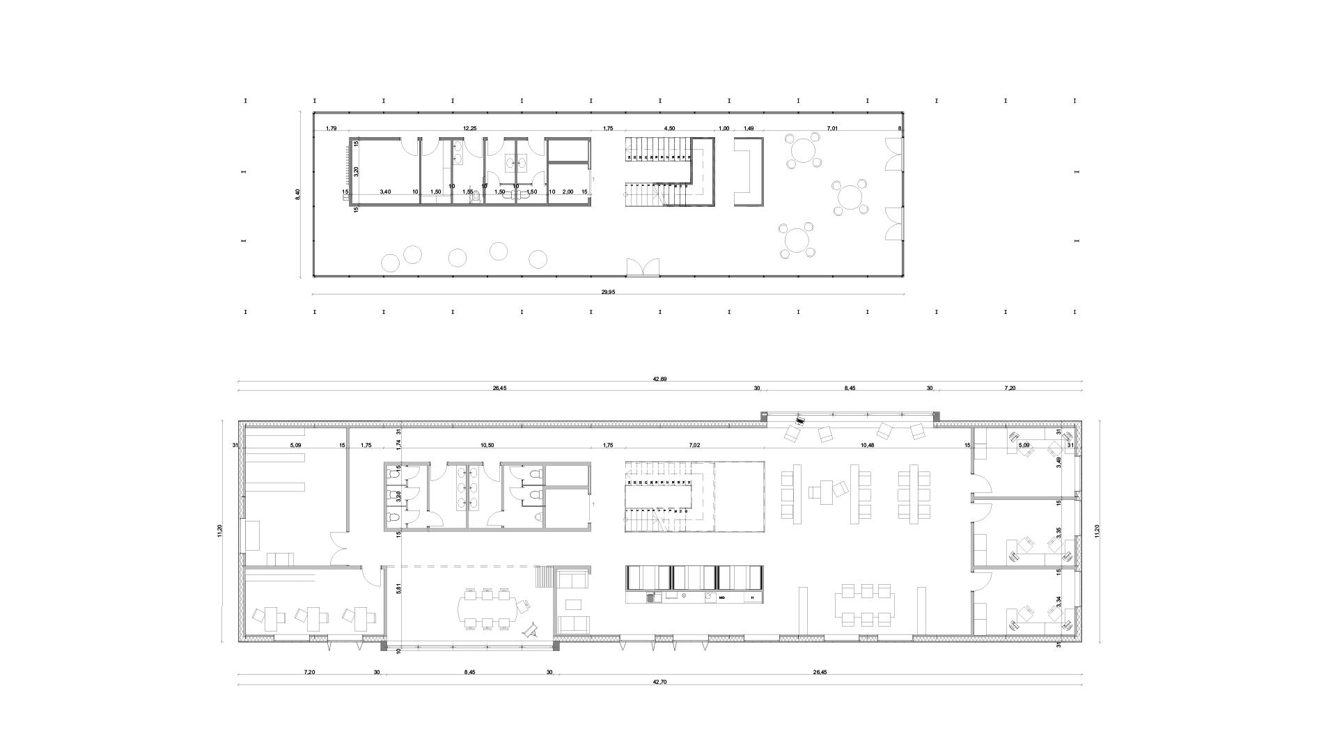
NAGYMÁNYOK - Településközpont - 2019

Egyetemi munka - Konzulens: Dr. Kósa Balázs

A településen a legnagyobb problémának a fiatalok elvándorlását éreztem, illetve az egyes településrészek elszeparáltságát. Épületemmel ezekre a problémákra kívánok egy megoldási lehetőséget felvázolni. A program egyik fele a településen működő cégeknek biztosítana központi helyzetben irodákat, ezzel megkönnyítve az ügyintézést, mely kényelmes, nem ipari, körülmények között jöhet létre. Az épület másik feladata olyan fiataloknak, kezdő vállalkozóknak helyet adni, akik, munkájuk révén, nincsenek helyhez kötve. A „home office” egy élettel teli környezetben, jó közösségben kapna új értelmet. Terveim szerint a hely mint munkahely, de ugyanakkor mint közösségi tér funkcionálna. Helyet adva inspirációgyűjtésnek, baráti beszélgetéseknek, kreatív munkavégzésnek, mindezt a település gyönyörű természeti közegében, olyan közterülettel kiegészülve, amely nem csak az itt dolgozók igényeit szolgálhatják. Az épületben az irodákon és az „alkotótér”-en kívül lehetőség nyílik kiállítások, előadások szervezésére. Terveim szerint lennének olyan állandó alkotók, akik munkáikkal dekorálják azt a teret, ahova mások dolgozni járnak. Így az épületen belül, illetve környezetében helyi művészek , alkotók munkái kapnának helyet.

40

Új tengelyek létrehozása Új úthálózat

Megközelítés és parkolás Tervezett beépítés

Zöld központ Végső koncepció

41
42
43 Nagymányok településszerkezete
44 Helyszínrajz
45
Alaprajzok Homlokzatok
46
47

Bukits Zoltán mellett töltött gyakorlatomon az első munka, amibe bekapcsolódtam a szombathelyi Gothard kastély tetőszerkezetének felújítása volt. Budapesti Karmelita templom és rendház felújítását, bővítését is meglátogattuk. A jáki templomhoz minden héten mentünk kooperációra. Volt, hogy az oldalhajók megrepedt boltozatait kellett megvizsgálni, majd ezek megerősítését, visszaemelését megtervezni, de a munkák elvégzéséhez szükséges állványzatokat is ellenőriztük. A templom melletti kápolna köré egy egészen különleges állványzat készült. A belső falazaton hétről hétre új eredeti, 13. századi freskók kerültek elő a restaurátorok munkájának köszönhetően.

Több családi-, illetve társasházat érintő munkába is bekapcsolódtam. Volt, ahol állagmegóvásról volt szó, volt, ahol talajsüllyedés miatt kellett megerősíteni a falakat, vagy épp az alapot injektálni. Ezen munkáknak rajzi részét nagyrész én csináltam, folyamatosan egyeztetve a tervezőkkel. Volt, hogy a terveket csak papír alapon tudták megszerezni, így ezek alapján kellett létrehoznom a digitális állományt.

Egy másik projekt a szalapai templom felmérése volt. Ez egy a hatvanas években épült templom, viszonylag jó állapotban, de azért egy kis karbantartás ráfér. Itt a teljes rajzi rész az én feladatom volt. Mivel egy nem túl öreg templomról van szó, így a formája, díszítettsége egyszerű, nem volt nehéz dolgom, de azért első felmérési munkaként volt benne kihívás.

Egy statikus mellett dolgozva az ő munkájába is betekintést nyertem, testközelből találkozhattam egy társszakmával. Biztos segíteni fogja a jövőben a kommunikációt a projektek kapcsán.

48
49

PERALTA Studio - 2022Építészmérnök (Erasmus szakmai gyakorlat)

Diplomám megszerzése után az Erasmus program keretében külföldi szakmai gyakorlatot kezdtem Barcelonában egy belsőépítészettel, építészettel foglalkozó kis irodában. Mivel csak négyen vagyunk állandó munkatársak, szinte minden folyamatban részt tudtam venni. Az első helyszíni látogatástól, a felmérésen, koncepcióterv készítésén át egészen a terv prezentálásáig, a megrendelőkkel való egyeztetésig.

Az egyik új projektet szinte teljesen megkaptam, és a koncepcióterv sikerességének köszönhetően a megrendelők a mi irodánkat választották. Így kezdődött a Casa Riera projekt, ami azóta sok változáson esett át, és nemsokára engedélyeztetésre kerül.

Az építészeti feladatok mellett betekintést nyertem az iroda működéséhez szükséges egyéb teendőkbe is. Ütemtervek készítése, a projektek lefutását magába foglaló táblázat létrehozása mind a feladataim részét képezték. A projektmenedzsmentben szerzett tapasztalatok bizonyára hasznomra válnak majd a jövőben. Egyéb kreatív feladat volt az iroda új weboldalának elkészítése, grafikájának megalkotása. Ehhez készültek különféle rajzos elemek digitálisan, de csoportképek, videó, is. Fotós tudásomat is kamatoztathattam, hiszen már elkészült projektek befotózását is rám bízták, így az enteriőr fotózásban is fejlődtem. Korábban ezzel a műfajjal nem próbálkoztam, és a felszerelésem is új volt még számovmra, így kihívás volt ezen képek elkészítése. Összességében nagyon tanulságos az itt töltött idő. Az hogy Gaudí városában tölthetek néhány hónapot, és közben ilyen szakmai tapasztalatokat szerzek bizonyára meghatározóak lesznek a továbbiakban.

50
51
Casa Riera - Alaprajz Casa Riera - Látványtervek (Készítette: Garai Kata Eszter)

Enteriőr fotók - Project: Balkones

52
53

Fényképek

54
55
56
57

Turn static files into dynamic content formats.

Create a flipbook
Issuu converts static files into: digital portfolios, online yearbooks, online catalogs, digital photo albums and more. Sign up and create your flipbook.