МП „АРХИТЕКТУРА“ - Дипломни проекти 2022/23

Page 1

Мотивация и цели

Затварянето на офиси поради пандемията от COVID-19

значително увеличи броя на хората,които могат да работят от разстояние.Наблюдава се засилен интерес към програми за комбинация между работа и пътуване.За това проектът има за цел да привлече и създаде пространсво за временно пребиваване на дигитални номади. Друга цел на проекта е да помогне за популяризирането и модернизирането на Жп транспорта,след дълги години на пренебрежение към този тип транспорт.Пътувания с

влак през Европа - свързване на всички европейски

столици и създаване на множество социално активни локации /Ваканционни селища от този тип/.Съществуват

редица проекти в тази насока,които са в подкрепа на тезата.

МП „Архитектура“ 2022/2023 GSPublisherVersion 0.0.100.100 GSPublisherVersion 0.0.100.100 труд отдих обитаване труд отдих обитаване труд отдих обитаване МОТИВАЦИЯ COVID-19

Мотивация и цели

Почти във всеки град в Европа има изоставени,западнали Жп ареали и

прилежащи сгради към тях,които не се поддържат и създават отрицателни емоции у хората.Проектът предлага друг прочит за тяхната адаптация и

вдъхване на нов живот,чрез редизайн на изоставени вагони и реставрация на

сграден фонд.Обновените места могат да се използват с

ваканционна или социална насоченост.

МП „Архитектура“ 2022/2023
съществуващ

Мотивация и цели

Трансевпопейска

транспортна мрежа - Механизъм за свързване на Европа /MCE/ в сектор Транспорт.Тя има за цел да подпомогне инвестициите в изграждането на нова транспортна инфраструктура в Европа,както и рехабилитацията и модернизацията на съществуващата. МСЕ също така подкрепя иновациите в траспортната система с цел подобряване на инфраструктурата, намаляване на въздействието на транспорта върху окалната среда,повишаване на енергийната ефективност и безопасността.

Икономиката на преживяването на практика е плод на дигиталното поколение – млади и активни хора,които предпочитат да харчат парите си за изживяване.Поради тази необходимост,следващата цел на проекта е в сферата на бавния туризъм и популяризирането на България като дестинация.Това е цялостна концепция за почивка лишена от динамиката и стреса на масовия туризъм,чрез забавяне на темпото,избягване на масовите курорти,големите градове и заместването им с

преживявания възможно най-близо до природата, пътешествия из селски райони и създаването на връзка с

местните хора,бит и култура.

МП „Архитектура“ 2022/2023
МП
2022/2023
Летящият Град (Г. Куртиков) - 1928г. План Воазен (Льо Корбюзие) - 1925г. Индустриалният Град (Т. Гарние)-1917г.
„Архитектура“
МП „Архитектура“
Паноптикум (Дж. Бентам) - 1791г. Палманyова (Л. Да Винчи) - 1486г. Държавата (Платон) - IV в. пр. Хр.
МП „Архитектура“ 2022/2023 МП
Нов Вавилон (Констант) - 1969г. Ходещият Град (Рон Херрон) - 1966г. Клъстери във въздуха(А. Исозаки)-1962г. Купол Над Града (Р. Фулър) - 1960г. План За Токио (Кензо Танге) - 1960г. Отвореният Град (Ф.Л. Райт) - 1932г.
„Архитектура“

СИТУАЦИОННИ СХЕМи

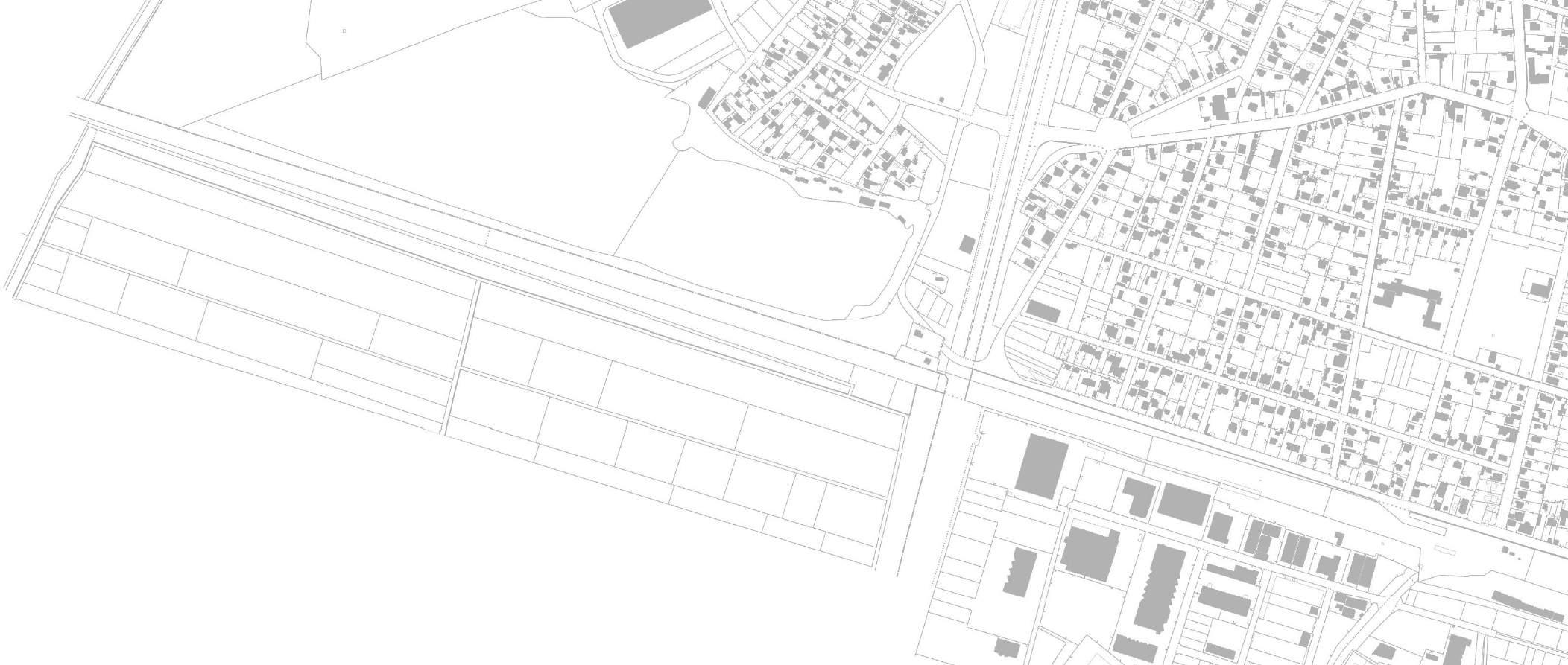
МП „Архитектура“ 2022/2023 ПАРК-МУЗЕЙ"ВРАНА" ХИДРОПАРК КАЗИЧЕНЕ ТЕРЕН бул."ЦРИГРАДСКОШОСЕ" ул ОКОЛОВРЪСТЕН ПЪТ ул СЕРАФИМСТОЕВ ул"ОКОЛОВРЪСТНА" ДОСТЪП GSPublisherVersion 0.0.100.100 СИТУАЦИЯ - РАЙОНИ
Схема Достъп Схема - ОУП Схема - райони
МП „Архитектура“ 2022/2023 МП „Архитектура“ Царска гара Приемна сграда "Гара" Свързване чрез дрезина терен Схема - свързване Схема - централна симетрия

Старата Царска гара край Казичене в София е емблематична сграда с голямо историческо значение.Построена е през 1914 г.по време на царуването на българския цар Фердинанд I,който я използва като спирка на своя царски влак.Станцията се намира в близост до софийското село Казичене и се отличава с красив неокласически дизайн с изпъкнали арки и колони.

След смъртта на цар Фердинанд гарата е

МП „Архитектура“ 2022/2023
използвана за превоз на войници и стоки по време на Първата и Втората световна война.През следващите години се използва за превоз на работници и машини от и до близките индустриални зони.Станцията е използвана за последно през 70-те години на миналия век и оттогава е изоставена. Царска гара СЕГА ПРЕДИ
МП „Архитектура“ 2022/2023 МП „Архитектура“ Изглед - Север Заснемане Изглед - Запад/Изток Изглед - Юг
МП „Архитектура“ 2022/2023 МП „Архитектура“ GSPublisherVersion 0.0.100.100
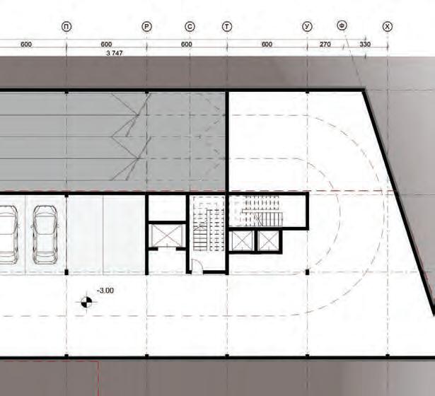
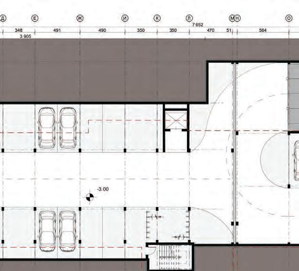
КАЗИЧЕНЕ ЖП ТРАСЕСОФИЯ -> ПЛОВДИВ Приемна сграда ГАРА" ЛЕГЕНДА Сгради с обществена функция Границана имот Зона спорт Експозиционни ботанически площи Водни огледала с оборотна вода Зелени площи Паркинг Жилища и стаи под наем СПА зона с открит басейн Връзка с Хидропарк Казичене Главенвход Спален вагон Вагон с обществена функция 0 10 30 80 ЗОНА 1 ЗОНА 2 ЗОНА 3 Ситуация
ХИДРОПАРК
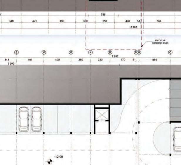
МП „Архитектура“ 2022/2023 250 100 90 230 230 75 230 100 0 1 600 235 230 365 367 680 600 535 535 860 535 535 3 053 680 150 546 640 2 204 1 919 157 250 230 380 640 85 88 147 +0.45 ±0,00 А А D Приемнасграда 1 Фоайе-110m2 2 Рецепция 3 Зонабар-20m 4 Склад-5m2 5 WC 17m 6 Администрация-32m 7 Площадка 1 D D А А Б Б 1 1 2 2 3 3 4 4 5 5 6 6 3 5 6 7 2 3 ±0,00 +5,82 558 ±0,00 +5,82 +5,94 растителност почвенслой филтърнастъкловлакнестатъкан едърдренаженслой геотекстил PVCмембрана топлоизолация стоманобетоннаплоча наклони шлайфанбетон армиранабетоннанастилка PVC фоли трамбованафракция 1 2 3 4 5 6 535 535 860 535 535 3 4 5 535 535 860 535 535 -0,45 ±0,00 +5,58 +5,94 6 5 4 3 2 1 РАЗРЕЗА-А ФАСАДАСЕВЕР 250 100 230 100 230 90 230 90 230 75 230 75 230 100 0 1 2 3 4 5 600 235 230 365 367 680 600 535 535 860 535 535 3 053 680 150 546 640 2 204 1 919 157 250 230 380 640 85 88 147 +0.45 ±0,00 А А D Приемна
1 Фоайе - 110 m2 2 Рецепция 3 Зона бар- 20 m2 4 Склад - 5 m2 5 WC - 17m2 6 Администрация - 32 m2 7 Площадка 1 2 D D А А Б Б 1 1 2 2 3 3 4 4 5 5 6 6 3 4 5 6 7 спален вагон спален вагон спален вагон вход вход вход вход вход вход обществен вход приемна сграда "гара" вагон-ресторант вагон-бар вагон-читалня вход вход вход вход D.Приемна сграда 1.Фоайе - 110 m² 2.Рецепция 3.Зона бар - 20 m² 4.Склад - 5 m² 5.WC - 17 m² 6.Администрация - 32 m² 7.Площадка Зона 1
сграда
МП „Архитектура“ 2022/2023
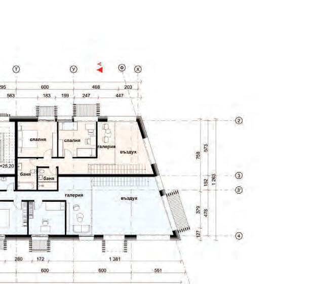
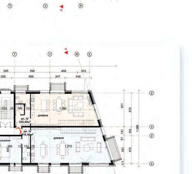
МП „Архитектура“ 2022/2023 511 450 тераса 853 499 120 2 000 300 200 +1.05 ±0,00 спалня 13 5m2 дневна 23 m2 баня 2 9m2 вход вход 272 272 6 ст 30 х 17 5 cm 6ст 30 х 17 5cm тераса 1 838 120 115 147 147 272 210 161 2 000 352 146 163 978 2 000 +1.05 +1.05 склад кухня салон тоалетна бар тоалетна склад салон вход вход 300 90 172 272 300 +1.05 13 9m дневна 13 9m2 2 9m2 вход вход 2 000 300 272 511 120 272 328 6 ст 30 х 17 5 cm 853 499 120 2 000 300 150 200 +1.05 ±0,00 спалня 13 5m2 дневна 23 m2 баня 2 9m2 вход вход 272 6 ст 30 17 5 cm 6ст 30 х 17 5cm 120 90 172 146 163 295 272 склад тоалетна тоалетна склад вход вход 1 838 120 272 115 147 210 161 147 2 000 300 272 272 150 1 013 150 150 1 013 150 708 +1.05 +1.05 ±0,00 ±0,00 тоалетна склад споделени работни места офис вход вход вход вход тераса ст 30 17 5cm ст 30 17 5cm ±0.00 +1.05 1 838 120 272 115 147 210 161 147 2 000 300 272 115 115 147 147 161 120 150 1 013 150 1 013 708 +1.05 тоалетна склад тоалетна склад споделени работни места офис вход вход тераса 30 17 5 30 17 5 вагон-апартамент спаленвагон спаленвагон спаленвагон спаленвагон спаленвагон вход вход вход вход вход вход вход вход вход вход вход вход навесзанаем навелосипеди обществен център оранжерия ресторант вход вход вход вход вход вход приемнасграда"гара" вагон-ресторант вагон-бар вход вход
±0,00 +1.05 +1.05 спалня 9m2 дневна 13 9m баня 2 9m2 спалня 8 9m дневна 13 9m2 баня 2 9m2 вход вход 2 000 300 272 511 120 272 328 450 150 378 150 450 200 200 вход вход тераса тераса 6ст 30 х 17 5cm 6ст 30 17 cm 6 30 17 5 6 30 17 5 120 333 853 499 120 2 000 300 795 150 200 +1.05 ±0,00 спалня 9m баня 2 9m2 спалня 13 5m дневна 23 m баня 2 9m2 вход вход 272 272 272 ст 30 17 5cm тераса +4.00 ±0,00 +1.05 +1.05 спалня 9m2 дневна 13 9m баня 2 9m2 спалня 8 9m дневна 13 9m2 баня 2 9m2 вход вход 2 000 300 272 511 120 272 328 450 150 378 150 450 200 200 вход вход тераса тераса 6ст 30 х 17 5cm 6ст 30 17 cm 6 30 17 5 6 30 17 5 120 333 853 499 120 2 000 300 795 150 200 +1.05 ±0,00 спалня 9m баня 2 9m2 спалня 13 5m дневна 23 m баня 2 9m2 вход вход 272 272 272 6 ст 30 х 17 5 cm ст 30 17 5cm тераса 105 277 85 315 ±0.00 +1.05 +4.00
Зона 2
МП „Архитектура“ 2022/2023
МП „Архитектура“ 2022/2023
МП „Архитектура“ 2022/2023
МП „Архитектура“ 2022/2023

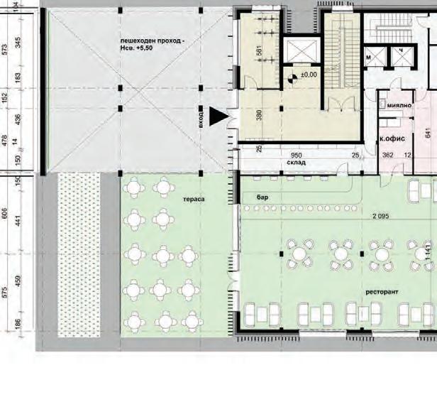
C.Оранжерия

B.Ресторант

1.Салон (90 места) - 220 m²

2.Зона бар

3.WC -32 m²

4.Кухня - 42 m²

5.Зона Миялно - 16 m²

6.Хладилно помещение - 6 m²

7.Склад - 9 m²

8.Съблекални персонал - 27 m²

9.Доставки - 10 m²

10.Отпадък - 7 m²

МП „Архитектура“ 2022/2023 B A 1 230 550 ±0,00 +4,85 +5,80 ФАСАДАСЕВЕР A B C D 2 3 300 1 200 300 250 393 ±0,00 B A 1 2 5 1 230 550 ±0,00 +4,85 +5,80 1 2 3 4 5 6 7 8 9 10 11 12 13 14 15 16 17 18 19 0 4 5 500 500 500 500 500 500 500 125 250 250 250 250 250 250 250 250 250 125 ±0,00 +5,45 +6,00 ±0,00 +5,80 ±0,00 +5,80 ±0,00 +4,20 +5,80 ±0,00 +4,31 +5,45 ±0,00 +5,45 +6,00 ±0,00 +4,31 +5,45 ±0,00 +4,20 +5,80 ФАСАДАЮГ ФАСАДАСЕВЕР ФАСАДАИЗТОК 1 2 3 4 5 6 7 8 9 0 2 3 4 500 500 500 500 500 500 500 125 ±0,00 +6,00 ±0,00 +5,80 250 245 495 шлайфанбетон армиранабетоннанастилка PVC фолио трамбованафракция покривенпанел столици дървенарамка 419 59 477 A'' B'' 17% 17% 0 1 3 4 5 1 230 300 235 535 400 шлайфанбетон армиранабетоннанастилка PVC фолио трамбованафракция стъкленопокритие стоманенаконструкция ±0,00 +4,24 +5,46 РАЗРЕЗ2-2 1 2 3 4 5 6 7 8 9 10 11 12 13 14 15 16 17 18 19 0 2 3 5 500 500 500 500 500 500 500 125 250 250 250 250 250 250 250 250 250 125 ±0,00 +6,00 ±0,00 +5,80 ±0,00 +5,45 250 245 495 шлайфанбетон армиранабетоннанастилка PVC фолио трамбованафракция покривенпанел столици дървенарамка стъкленопокритие стоманенаконструкция 419 59 477 A'' B'' 17% 17% 0 2 3 5 1 230 300 235 535 400 шлайфанбетон армиранабетоннанастилка PVC фолио трамбованафракция стъкленопокритие стоманенаконструкция ±0,00 +4,24 +5,46 РАЗРЕЗ1-1 РАЗРЕЗ2-2 250 90 250 250 100 A B C D 1 2 3 4 5 6 7 8 9 10 11 12 13 14 15 16 17 18 19 A'' B 3 5 260 020 3 040 457 2 523 20 500 500 500 500 500 500 500 125 250 250 250 250 250 250 250 250 250 125 15 300 200 300 15 753 830 35 230 35 300 260 622 120 193 328 293 315 355 300 120 300 280 200 331 271 ±0,00 ±0,00 1 1 2 2 10 C B РЕСТОРАНТ 1 Слон 2 Зона 3 WC 4 Кухня 5 Зона 6 Хладилно 7 Склад 8 Съблекални 9 Доставки 10 Отпадък C Оранжерия 1 Магазин 2 Зона C
за
GSPublisherVersion0.0.100.100 навесзанаем навелосипеди обществен център оранжерия ресторант вход вход вход вход вход вход
1.Магазин 2.Зона
почивка Зона 3

Обществен център

1.Фоайе - 61 m²

2.Информация с гардеробно19 m²

3.Зала за събирия - 228 m²

4.Склад - 11 m²

5.Съблекалния - 11 m²

6.Пространство за събития или

85

7.Медицински пункт19 m²

8.Коридор - 20 m²

9. WC -40 m²

10.Пространство за

споделена работа (45

места) - 230 m²

11.Зала за срещи - 19 m²

12.Кухня - 20 m²

7 8 9 10 11 12 13 500 500 500 500 500 500 ±0,00 +5,80 D C B A 0 1 2 3 4 5 300 1 200 300 ±0,00 +4,20 +5,80 250 239 ±0,00 +6,00 332 13 12 11 10 9 8 7 6 5 4 3 2 1 3 4 5 500 500 500 500 500 500 500 500 500 500 500 500 ±0,00 +5,80 ±0,00 +5,80 ±0,00 +5,80 ±0,00 +5,80 ФАСАДАЮГ ФАСАДАСЕВЕР ФАСАДАИЗТОК 13 12 11 10 9 8 7 6 5 4 3 2 1 1 2 3 4 5 500 500 500 500 500 500 500 500 500 500 500 500 ±0,00 +5,80 ±0,00 +5,80 ±0,00 +5,80 495 495 495 шлайфанбетон армиранабетоннанастилка PVC фолио трамбованафракция покривенпанел столици дървенарамка шлайфанбетон армиранабетоннанастилка PVC фолио трамбованафракция РАЗРЕЗБ-Б МП „Архитектура“ 2022/2023 250 100 250 100 250 100 250 90 250 100 1 2 3 4 5 6 7 8 9 10 11 12 13 A B C D 623 398 260 210 390 330 600 150 320 405 210 405 260 400 485 305 265 485 350 200 6 050 25 500 500 500 500 500 500 500 500 500 500 500 500 25 6 050 15 300 200 300 15 830 830 15 300 200 300 15 ±0,00 A A Б Б А ОБЩЕСТВЕН ЦЕНТЪР 1 Фоайе61 m 2 2 Информация с гардеробно3 Зала за събития228 m 4 Склад11 2 5 Съблекалня11 m 2 6 Публично пространство за събития рекреация на открито85 m 2 7 Медицински пункт19 m 2 8 Коридор20 m 2 9 WC40 m 10 Пространство за споделена 11 Зала за срещи19 2 12 Кухня20 m 2 1 5 9 11 12 A A A 150 260 1 500 500
А.
рекреация на открито
навесзанаем навелосипеди обществен център оранжерия ресторант вход вход вход вход вход вход
-
m² Зона 3
МП „Архитектура“ 2022/2023
МП „Архитектура“ 2022/2023
МП „Архитектура“ 2022/2023
Ситуация М1:750 Улица„Р.Моеда„ Улица„БокеросдосФерейрос“ Улица„Бависта“ Улица„ДомЛуисI“
Подземнонивокота+3,00 М1:250
Типоветажкота+5,95;+15,55;+31,55 Типоветажкота+9,15;+18,75;+28,35 М1:200 М1:200
М 1:200 М1:200 Третиетажишестиетаж(+12,35;+21,95)
Разпревделениекота+37,95
М1:200
Градоустройствен план на АтеродеБоависта1878г
Вториетаж+4,25 М1:200
Покривнилинии М1:200
Схема на естествена вентилацияисветлина
Ситуация М1:750
Подпокривенетаж+8,25 М1:200
Фасадазапад М1:200
НАУЧНОТЕХНОЛОГИЧЕНИНСТИТУТ

Turn static files into dynamic content formats.

Create a flipbook
Issuu converts static files into: digital portfolios, online yearbooks, online catalogs, digital photo albums and more. Sign up and create your flipbook.