

![]()



The trends we see in the industry
WhereAI Integrations Transform the Building Industry.:
• BIM Copilots: Code-compliant modeling, automated tasks, quantity takeoff, and 'ask your model' chat.
• Design Exploration: Generative layouts, visualizations, optimizing daylight, energy, carbon, and costs.
• Preconstruction: ML-assisted schedule risk analysis, automated takeoffs, and spec drafting.
• Reality Capture: Progress tracking, defect detection from 360° photos, LiDAR, and drones.
• Safety & Risk: AI vision verifies safety gear and fall hazards; analytics score risk and verify method compliance.


As a Naviate user, what features are available
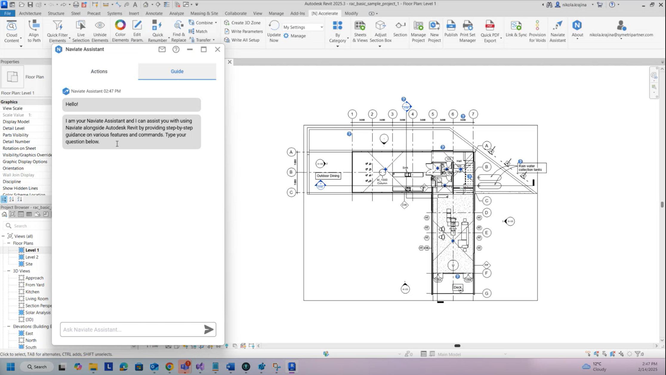
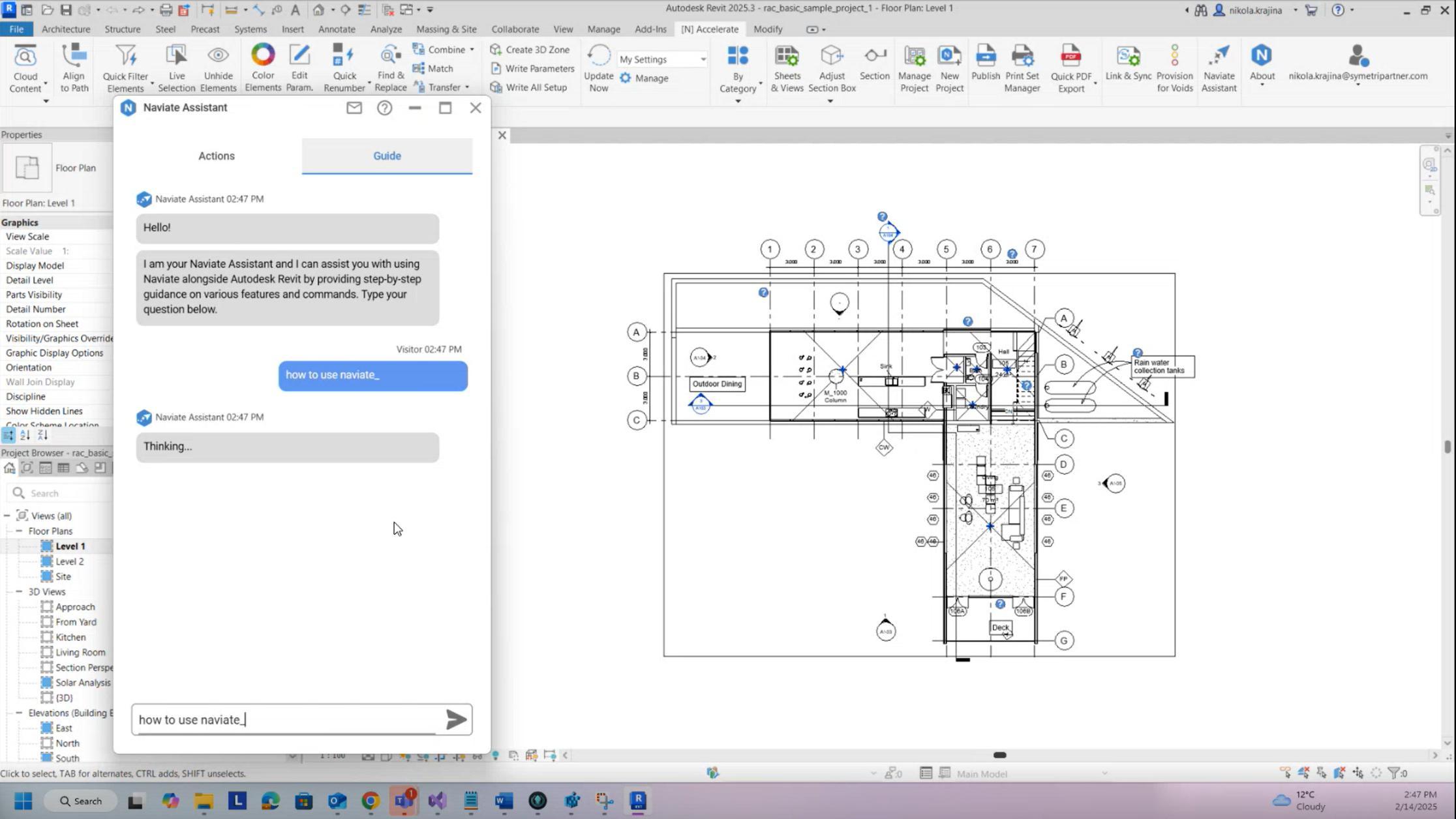
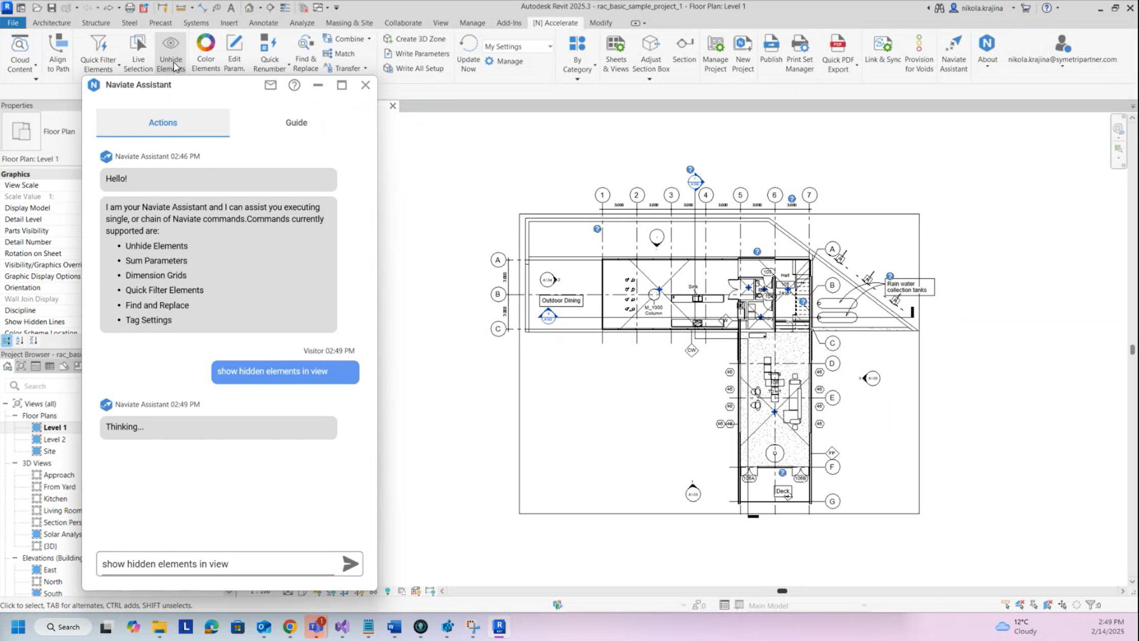
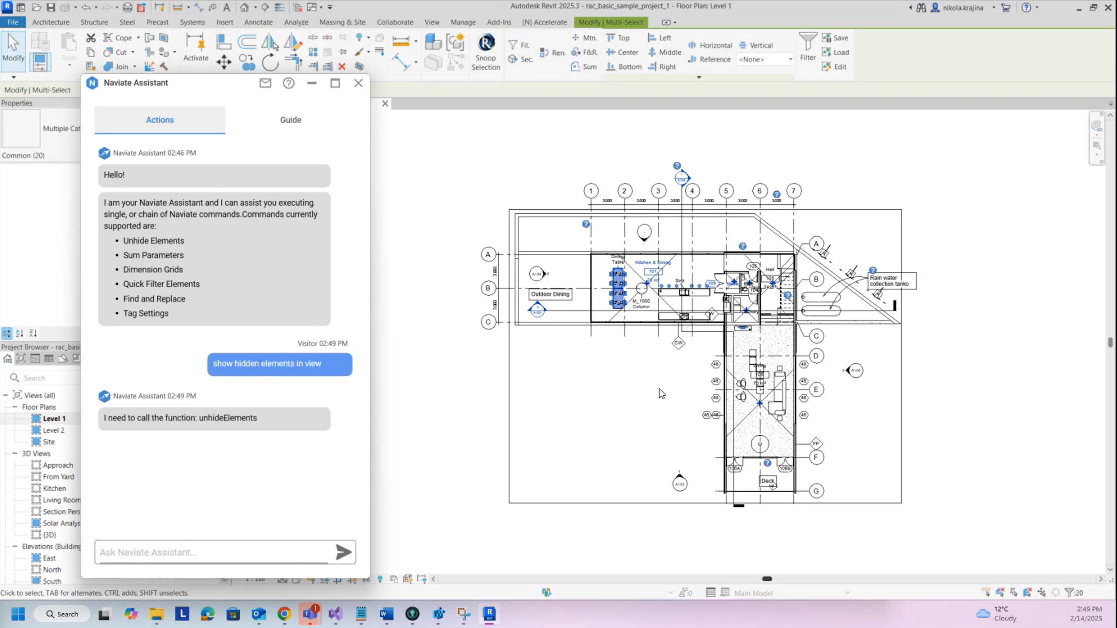
Naviate Assistant transforms onboarding from “read the manual” into in-tool, just-in-time guidance, reducing the time it takes for new users to become productive. Guide offers step-by-step instructions along with links to the help documentation and additional resources. Actions can run single or chained Naviate actions on the model.






























Our overarching goal is to implement a Naviate Assistant in Zero to enhance the user experience and, ultimately, democratize sustainability by simplifying a complex topic.

Make smart material selections to minimize the carbon footprint in your designs:
• Map elements to over 200,000 resources from an extensive library.
• Filter and Compare resources
• Visualize the total CO2e of the model


Navigating over 200,000 domain-specific resources presents several challenges:
• Volume of Datasets
• Variability in Formats
• Languages
• Documentation Overload
• Challenging for Non-Experts


• Search using natural language
• Compare five resources side by side

• Filter resources by Revit Category or selected parameters
• Find similar resources in compare tool
• Ask questions about a specific resource in the compare tool










Utilize the insights gained from the Naviate Assistant Guide to improve the onboarding process for users in My Symetri, enhancing their experience and ensuring they receive adequate support.



Analyses of the raw question feed gathered on the Naviate Assistant Guide to highlight top pain points and high-impact fixes.

Top user pain points (what we’ve seen)
• Discoverability & Missing UI
Repeated “Where is X?”
• Data workflows & interoperability
Export/import schedules, SOSI/IFC, Excel/DWG workflows.
• Batch operations & automation
Mass parameter edits, batch renumbering, and sheet templates.
• Reliability & schema errors
Extensible storage/schema conflicts and updater errors.
• “Where do I find the Import SOSI button?”
• “How do I export a schedule to Excel and reimport it?”
• “Can you batch change a type parameter for thousands of families?”
• “My model has schema conflicts after using a Naviate tool — how do I remove schemas?”
• “How do I place views on sheets and align them consistently?”
• “How can I color elements based on parameter values?”
Product value is unlocked by analyzing the data.
• Prioritized product roadmap
Direct evidence of high-impact pain points (SOSI import, Export/Import, schema errors, batch param tools).
• Targeted UX improvements Repeated “where is X” signals discoverability problems; fix ribbon layout & labels to minimize user frustrations and optimize adoption.
• Product analytics & adoption tracking
Which features are used, failing, or unknown → drives training and knowledge base updates.

term plans or in development
The Naviate Fabrication Data Flow easily automates Revit Element data synchronization with custom PowerShell scripts driven by user-defined conditions. The team is implementing AI to assist users in generating and updating scripts using regular semantics.







Guide to provide the same step-by-step instructions along with links to the help documentation, but for native Revit features. Actions implement support for further Naviate actions to support more advanced workflows

Assistant Guide: Provide the user with thumbs up/down and add a comment on the responses.
Assistant Actions: The same options as in the Guide, but the system will learn from the feedback and reuse good responses to gain faster responses.
Assistant in Zero: More granular 1-5 rating addition of Categories like Correctness, Usefulness, Relevance, Accuracy, and Speed.


term plans and survey

Autodesk
Assistant
Agents: Claude
ChatGPT
MCP Server

Naviate web API’s


MCP Server
Naviate / CTC API’s


MCP Server













Server







Company reasoning
Industry specific reasoning
Spatial & physical reasoning
Autodesk AI models finetuned with company data.
Autodesk AI models
Language & visual reasoning
Large Language Models, Visual Language Models, Copilots, etc.
Company reasoning
Finetuned with company data.
Symetri specific reasoning Localized finetuning
Industry specific reasoning
Spatial & physical reasoning
Autodesk Models
Language & visual reasoning
Large Language Models, Visual Language Models, Copilots, etc.
Symetri specific context
Contextual RAG service
Company reasoning Finetuned with company data.
Industry specific reasoning
Spatial & physical reasoning
Autodesk Models
Language & visual reasoning
Large Language Models, Visual Language Models, Copilots, etc.
• Q: Which considerations have you done in terms of ‘Lost work’ or corrosive behavior from AI’s “Going rogue” - who will be liable for this?
A: The AI in Naviate solutions is governed by our standard End User License Agreement (EULA). The AI features are designed to perform the same commands that a user can execute manually, and these commands undergo quality assurance (QA).
• Q: Can we influence the input in Claude to search our own database?
A: Yes, Claude has the option to connect to multiple data sources, both public and private.
• Can the extensive use of AI workflows increase the cost or use energy for companies? In most practical cases, especially when AI services run efficiently in the cloud, AI workflows result in lower total costs and reduced energy consumption compared to manual or legacy processes.
Read more on the topic here: https://cdn.openai.com/pdf/d5eb7428-c4e9-4a33bd86-86dd4bcf12ce/GDPval.pdf










Measures
Customer privacy is a constant concern for Symetri.:
• Data Privacy by design: Minimize, mask, and retain only what’s needed. No training, only optimization.
• Traceability: Log model inputs/outputs for audit without storing sensitive payloads.
• Regulatory Compliance: Adopting privacy regulations like GDPR, CCPA, and aligning with the EU AI Act obligations.
• Data residency: Regional hosting in Sweden, using private hosted models.
• Consent: Our systems allow users to opt out of AI features.
