

NAT GUBERNEY
INTERIOR DESIGN PORTFOLIO

ABOUT ME
I am currently pursuing an Honours Bachelor of Interior Design at Sheridan College. Throughout my educational journey, I have gained a better understanding for the importance of a strong design concept, which allows us to create unique and cohesive spaces that meet each client’s vision. I am passionate about interior design because I truly understand and admire how good design can positively influence the way we feel. I strive to design thoughtful and functional spaces that enhance each user’s experience, while also promoting both sustainability and accessibility.
As an experienced hospitality professional, I have developed an affinity for restaurant and hospitality design. I appreciate the importance of creating memorable and unique experiences within the restaurant industry and I recognize that this begins with designs that elevate and enhance these experiences.
AWARDS & INVOLVEMENT
ARIDO Student Member
IDC Student Member
NEWH Student Member
Gensler Student Mentorship Program, Current
LIV Design Student Challenge Winner, 2025
Metropolitan Student Design Challenge Winner, 2024
WindowsWear Student Award Finalist, 2024

01 CROSSROADS: STUDENT COMPETITION

02 BARRIO: HOSPITALITY PROJECT

03 ORIGINS: STUDENT COMPETITION

04 FERRAGAMO: RETAIL PROJECT

05 VERITY: CORPORATE PROJECT

06 GLOBAL BUILDS: HABITAT FOR HUMANITY
1st Place & People’s Choice Award
LIV Design Student Challenge 2025
01 CROSSROADS
Collaborative Work with Jenny Bae Huggon & Gigi Dybalski


AUTOCAD, REVIT, INDESIGN & D5 RENDER
LIV Design Studio challenged students in this nationwide competition to create a lobby design that functions as a vibrant third space where residents can naturally connect. Participants were required to utilize AI in the design process for their space.
Our lobby, Crossroads, reimagines the condo lobby as a dynamic community hub. Flexible modular seating options and an inviting café help transform everyday encounters into meaningful connections.
Our design was brought to life in Augmented Reality by the LIV Design CG team for the 2025 Toronto Interior Design Show, where we were awarded 1st Place & the People’s Choice Award.
Role & Contributions: Concept development, space planning, 3D model & renderings.

The café elevates the lobby experience by acting as a vibrant center for chance encounters. Thoughtfully designed to inspire and energize throughout the day, the café features layered lighting and comfortable seating options.
A customized window panel features intersecting crossroads, symbolizing the connection of design and community. The dappled sunlight enhances the ambiance and invites a sense of warmth.


The large library wall, complemented by cozy seating, creates an environment that encourages accessible and intergenerational interactions. This flexible area can easily transform into a venue for community events.
At the heart of this concept is an AI powered digital light wall that evolves throughout the day. It integrates local artists’ work, celebrates the community and allows residents to customize lighting and visuals.

LOUNGE

Jenny Bae Huggon, Nat Guberney, & Gigi Dyablski

CRITICAL DETAILS


CRITICAL DIMENSIONS
LIV Design Student Challenge
Jenny Bae Huggon, Nat Guberney, & Gigi Dyablski
CUSTOM MODULAR SOFA
NTS
MODULAR SEATING 1/2” = 1’-0”

Our lobby furniture includes modular seating designed to accommodate large gatherings by easily unpacking seven additional ottomans for extra seating. When not in use, these ottomans can conveniently be stored beneath the two lounge sofas. They are also lightweight and durable, making them easy for anyone to handle.

LIGHTING INTENT
Our lobby furniture includes modular seating designed to accommodate large gatherings by easily unpacking seven additional ottomans for extra seating. When not in use, these ottomans can conveniently be stored beneath the two lounge sofas. They are also light-
CUSTOM COFFEE BAR NTS
The café provides a range of amenities, including self-serve lattes and hot chocolate, as well as a community library wall. This creates a warm and inviting environment that helps residents feel at home. The lower cabinets conceal a mini fridge stocked with juice and milk for coffee, as well as
02 BARRIO TAPAS & WINE BAR
Hospitality Project 2024
Individual & Collaborative Project


Barrio Tapas & Wine Bar offers an immersive dining experience that encourages connection. Inspired by the idea that dining is about shared moments, our interactive course-style pairings and shareable tapas are designed to bring people together.
Role & Contributions: Responsible for all second level drawings, renderings, & 3D model. Concept development and kitchen plan designed in collaboration with Sarah Bryant.



BAR LOUNGE

KITCHEN (LOCATED ON 1ST LEVEL)


03 ORIGINS
Winner: Metropolitan Student Design Challenge 2024
Collaborative Work with Jenny Bae Huggon & Gigi Dybalski

Metropolitan Hardwood Floors challenged students to create a visual representation of their Clean Floors tagline: Crafted with Conscience. Our booth was built and displayed at the 2024 Interior Design Show and was featured in The National Post, Toronto Sun, & more.
We invited visitors to place a pin on the map to show us their origins.
Role & Contributions: Concept development & AutoCad drawings.

AUTOCAD, REVIT & ENSCAPE
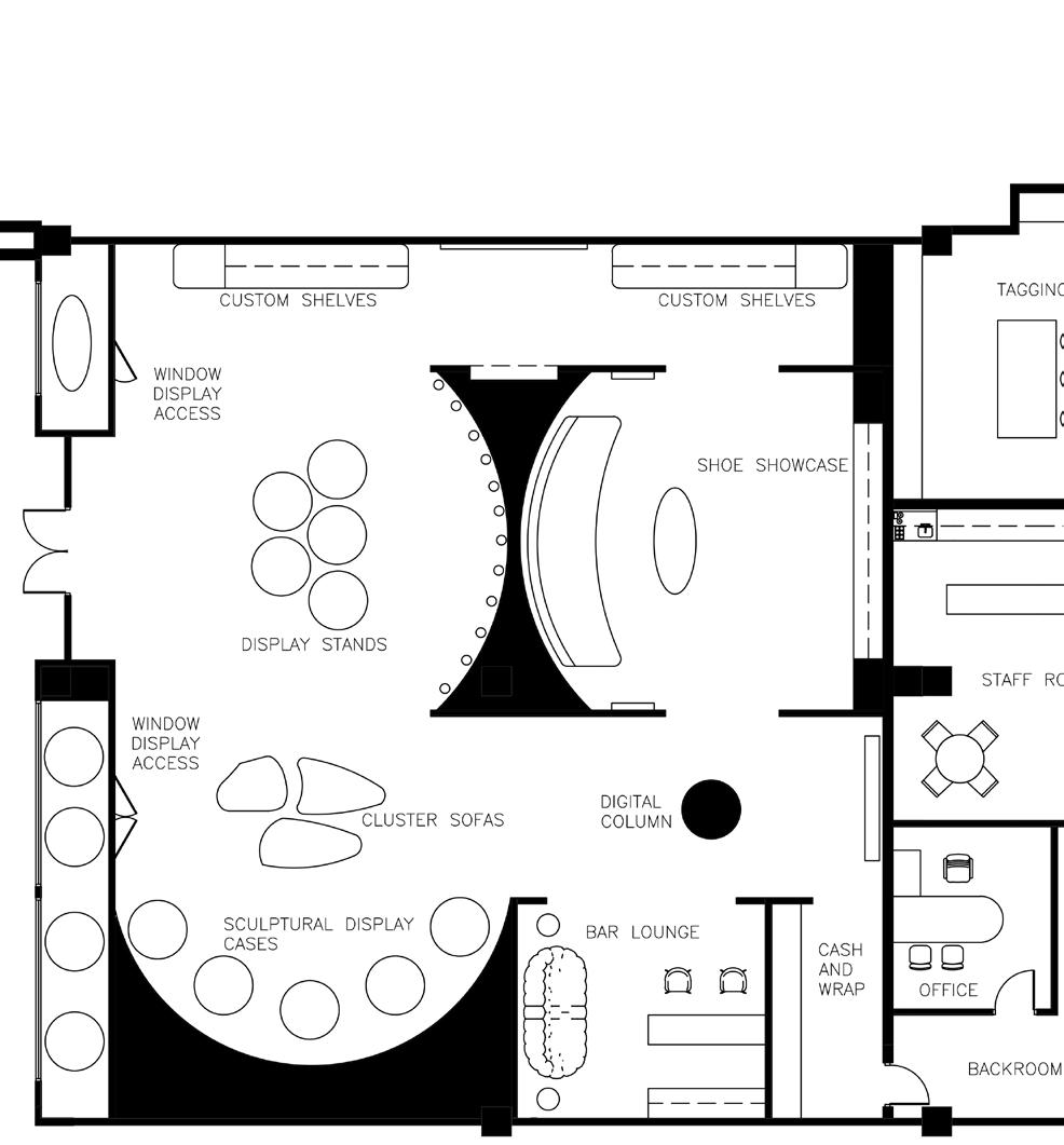
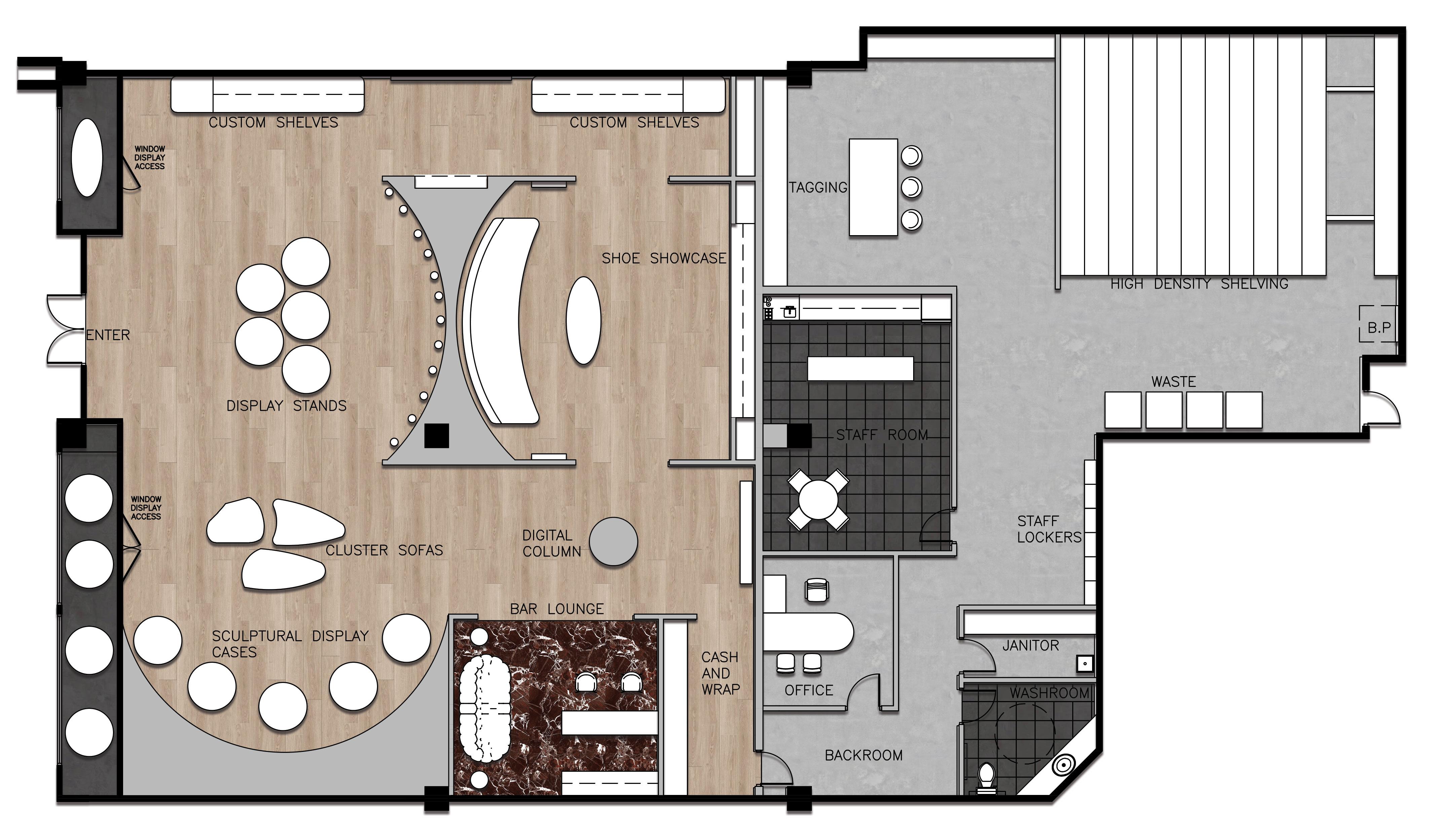
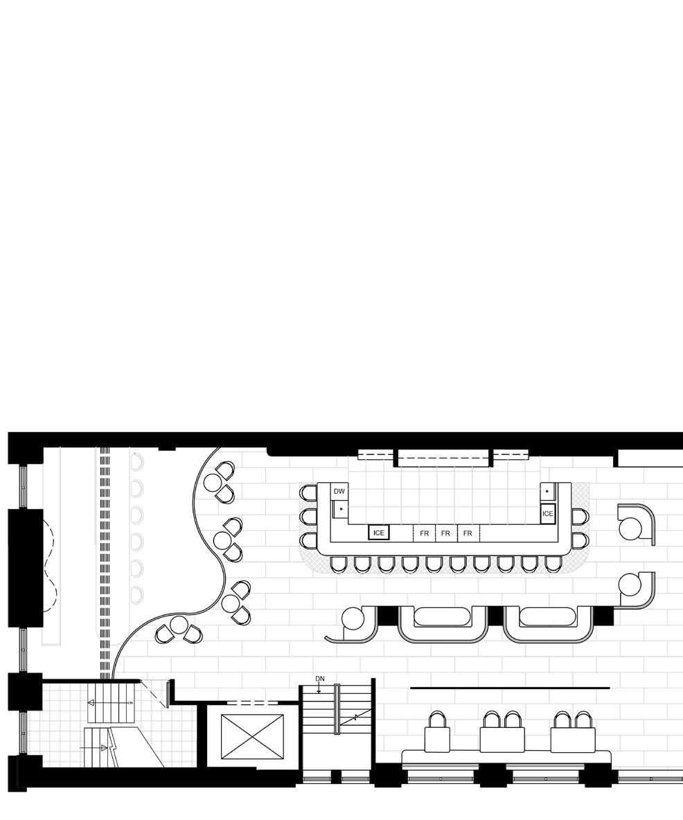
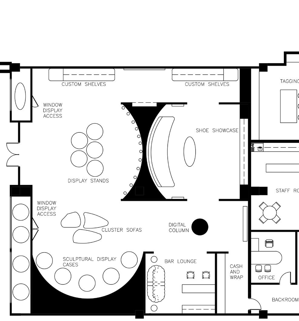
04 FERRAGAMO
Luxury Retail Project 2023
Collaborative Project with Sarah Bryant AUTOCAD,

Inspired by Salvatore Ferragamo’s use of form and material, our design concept places emphasis on the relationship between fashion and art. The goal was to create a retail space that mimics the movement and atmosphere of an art gallery and displays Ferragamo’s products as the art pieces.
Role & Contributions: Concept development, space planning, 3D model & renderings.

REVIT & D5 RENDER
FLOOR
STOREFRONT ELEVATION


CUSTOM SHELVING INSPIRATION

CUSTOM SHELVING SKETCH

SHELVING RENDER
CUSTOM
SOLARIS PENDANT

1.
1. GYPSUM BOARD FINISH
6.
7.
8.

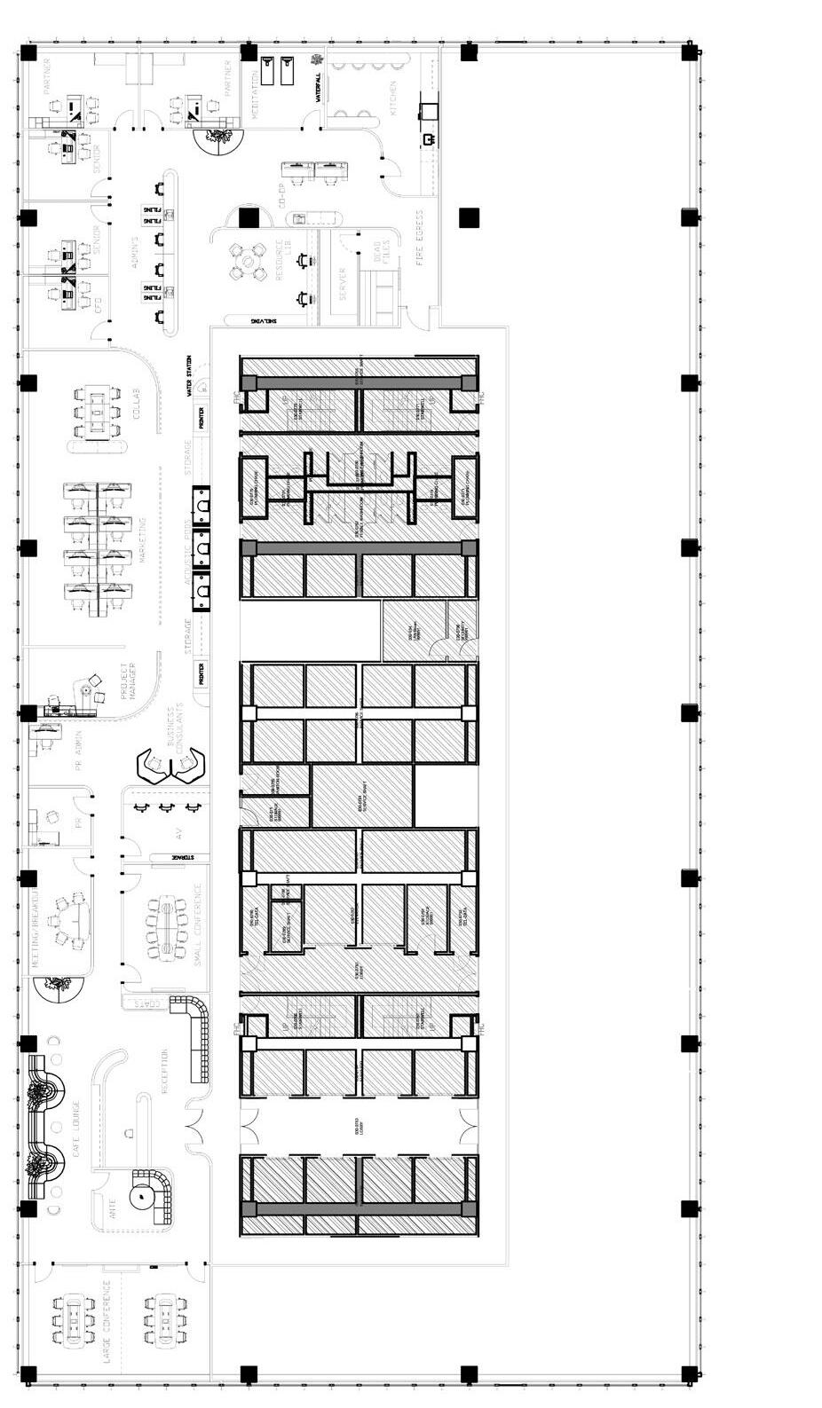
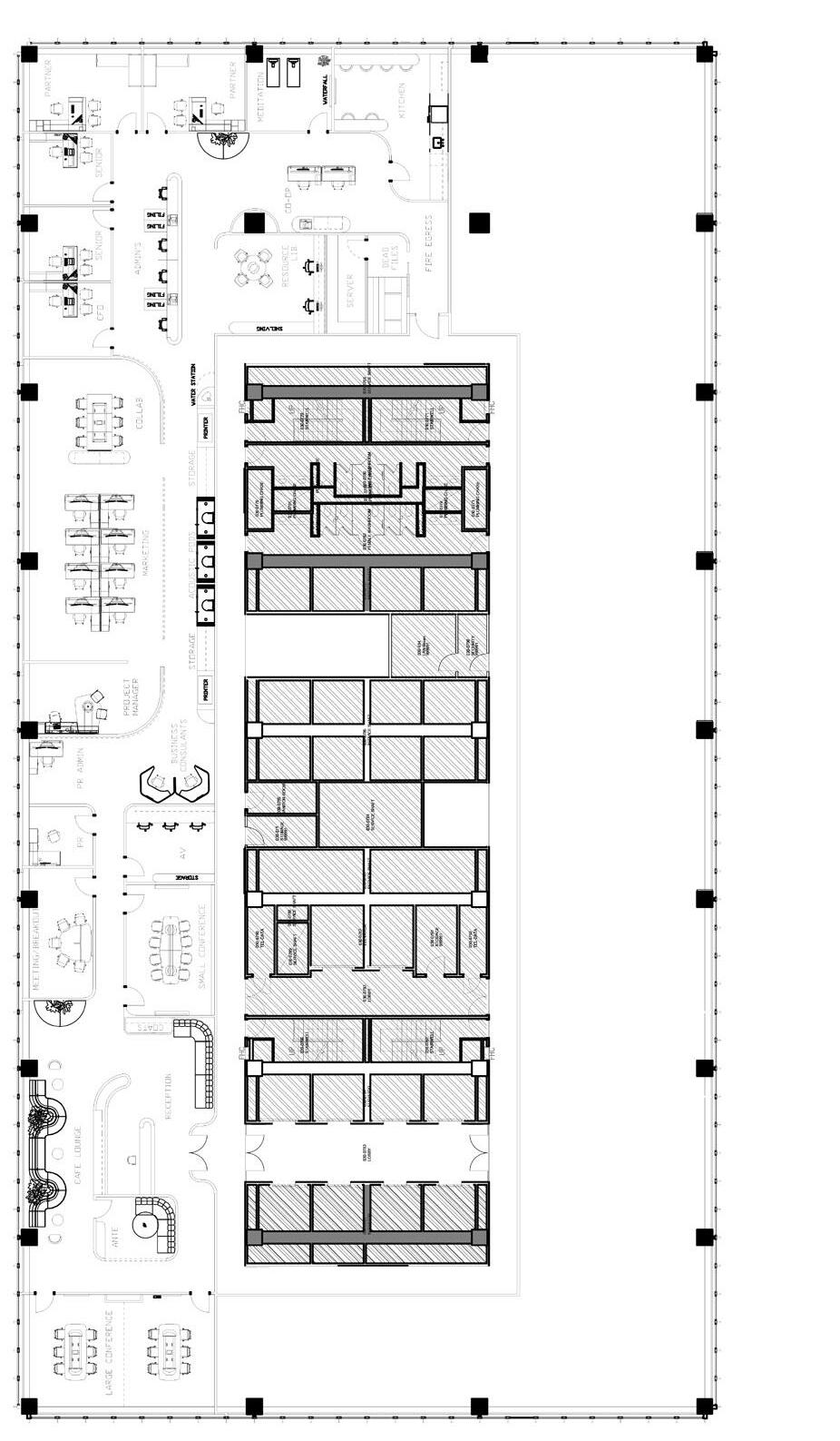
05 VERITY
Finalist: WindowsWear Student Design Award 2024
Corporate Office Project 2024
Collaborative Project with Sarah Bryant AUTOCAD, REVIT & D5 RENDER


MATERIALS






Verity is an advertising firm that specializes in representing makeup and skincare brands. This energetic office space has a direct impact on the wellbeing of employees and clients, by to select inviting hues of pinks, blues and greens. These colours were integrated into monochromatic spaces, creating a sense of cohesion and
Role & Contributions: Concept development, space planning,




Shades of pink are thoughtfully incorporated throughout our reception area, small conference room, meeting room, kitchen, and resource library. This vibrant color was chosen for its ability to inspire creativity and promote innovation. Additionally, pink evokes energizing emotions like excitement and fun, creating a dynamic and motivating atmosphere in the workplace.
Shades of green are utilized for our private offices, wellness room, and café. Incorporating green into corporate spaces offers numerous benefits for staff, such as fostering a calming atmosphere, and reducing fatigue and eye strain. As a color deeply associated with nature, green also evokes a sense of relaxation and helps lower stress levels. To enhance this effect, we complemented the design with living plants placed throughout the office, further reinforcing a refreshing and serene ambiance.
Shades of blue were utilized within our large conference room, ante room, and marketing work space. While blue is known to have calming and relaxing effects, it can also stimulate the mind to increase focus and productivity, making it an appropriate choice for workstations and collaborative spaces.
RECEPTION LOUNGE
PRIVATE OFFICE
MARKETING & COLLAB
06 GLOBAL BUILDS
Queen’s Global Village 2018-2020
Guatemala & El Salvador

While attending Queen’s University, I travelled to Guatemala in February 2019 as a student member of Queen’s Global Village to help build a home for a family in need. I was promoted to President for the 2019-2020 school year, and led a team of ten students to El Salvador to build another family home.

BUILD SITE - EL SALVADOR
TEAM - EL SALVADOR
