testeeee

Page 1

PROJETO EXECUTIVO

ARQUITETURA E URBANISMO

ANA JÚLIA CORDEIRO

O QUE É PROJETO EXECUTIVO DE ARQUITETURA?

O projeto executivo de arquitetura é a etapa do projetoque detalha e se aprofunda mais nos elementos da obra. De acordo com o Manual de Obras Públicas, o projeto executivo é “o conjunto de informações técnicas necessárias e suficientes para a realização do empreendimento, contendo de forma clara, precisa e completa todas as indicações e detalhes construtivos para a perfeita instalação, montagem e execução dos serviços e obras objeto do contrato.”

QUAL É

A IMPORTÂNCIA DO PROJETO EXECUTIVO?

o projeto executivo é importante para fluidez da obra, nele você pode consultar as especificações de elétrica, hidráulica, esgoto, estrutura, paginação de pisos e revestimentos, especificação de todos os materiais, entre outros, com isso em mãos no canteiro de obra as chances de ter algum erro na obra são menores e também esse material ajuda de auxilio para o orçamento.

O PROJETO EDIFÍCIO MOONLIGTH

O projeto do Edifício Moonlight foi desenvolvido durante a disciplina de Projeto Executivo em 2021.

Localizado na rua Poço de Caldas em Vila Valqueire, Rio de Janeiro/RJ. O projeto costa com um edifício Multifamiliar com 8 apartamentos de 2 quartos cada, sendo um suíte, ideal para famílias que buscam um lugar tranquilo e seguro.

A edificação também possui uma ampla área de lazer para uso dos moradores.

PROJETO DE ARQUITETURA PLANTA BAIXA

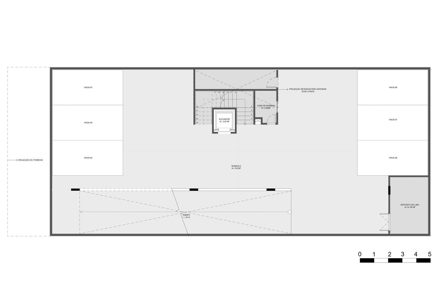
PLANTA BAIXA SUBSOLO

PLANTA BAIXA TÉRREO

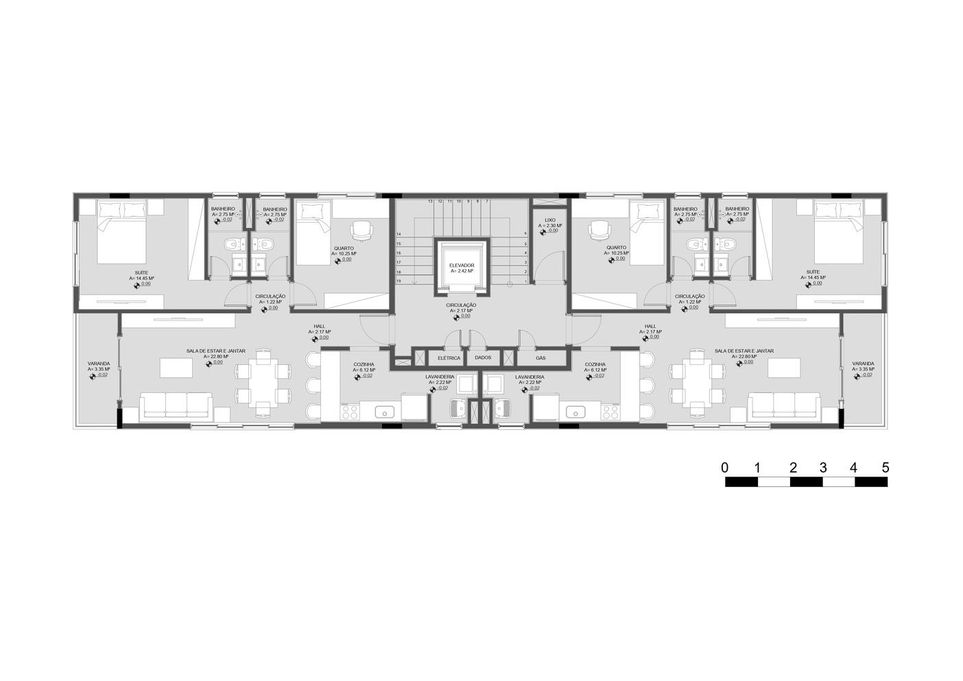
PLANTA BAIXA TIPO

PLANTA
1 2 3 6 4 5 7 LEGENDA 1 COZINHA 2 SALA DE ESTAR/JANTAR 3 SUÍTE 4 BANHEIRO 5 BANHEIRO 6 QUARTO 7 VARANDA
LAYOUT
BAIXA

pontos elétricos PLANTA BAIXA

LEGENDA

TOMADABAIXA TOMADAMÉDIA

TOMADAALTA

TOMADAESPECIAL(MICROONDAS) INTERRUPTOR INTERNET INTERFONE

F A C H A D A P E R S P E C T I V A

TIJOLINHOBRICKBRANCO
TINTA ACRÍLICA CORAL BEGE ETERNO TINTA ACRÍLICA CORAL BRANCOFOSCO

PROJETO EXECUTIVO PLANTA BAIXA

ACESSE AQUI

Turn static files into dynamic content formats.

Create a flipbook
Issuu converts static files into: digital portfolios, online yearbooks, online catalogs, digital photo albums and more. Sign up and create your flipbook.
testeeee by Ana Júlia Cordeiro - Issuu