APENAS UM TESTE

Page 1

PROJETO EXECUTIVO ARQUITETURA E URBANISMO

ANA
JÚLIA CORDEIRO

O QUE É PROJETO EXECUTIVO DE ARQUITETURA?

O projeto executivo de arquitetura é a etapa do projetoque detalha e se aprofunda mais nos elementos da obra. De acordo com o Manual de Obras Públicas, o projeto executivo é “o conjunto de informações técnicas necessárias e suficientes para a realização do empreendimento, contendo de forma clara, precisa e completa todas as indicações e detalhes construtivos para a perfeita instalação, montagem e execução dos serviços e obras objeto do contrato.”

QUAL É

A IMPORTÂNCIA DO PROJETO EXECUTIVO?

o projeto executivo é importante para fluidez da obra, nele você pode consultar as especificações de elétrica, hidráulica, esgoto, estrutura, paginação de pisos e revestimentos, especificação de todos os materiais, entre outros, com isso em mãos no canteiro de obra as chances de ter algum erro na obra são menores e também esse material ajuda de auxilio para o orçamento.

O PROJETO EDIFÍCIO MOONLIGTH

O projeto do Edifício 277 foi desenvolvido durante a disciplina de Projeto Executivo em 2021.

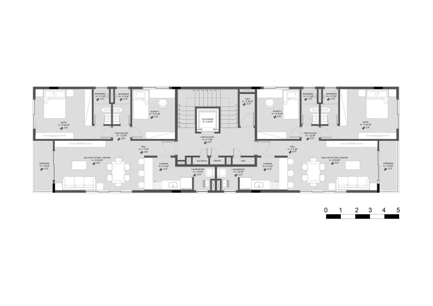
Localizado na rua Poço de Caldas em Vila Valqueire, Rio de Janeiro/RJ. O projeto costa com um edifício Multifamiliar com 8 apartamentos de 2 quartos cada, sendo um suíte, ideal para familias que buscam um lugar tranquilo e seguro.

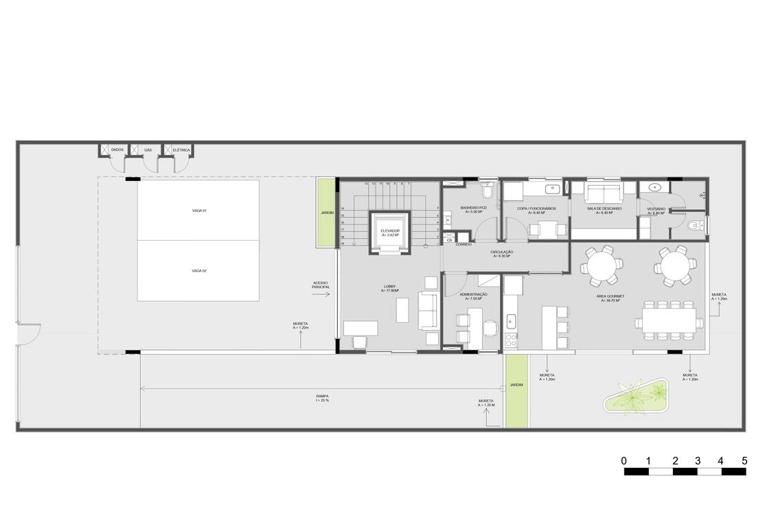
A edificação também possui uma ampla área de lazer para uso dos moradores.

PROJETO DE ARQUITETURA PLANTA BAIXA

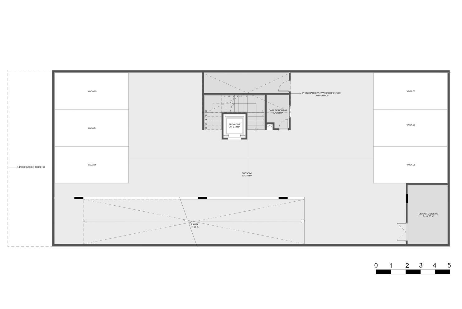
PLANTA BAIXA SUBSOLO

PLANTA BAIXA TÉRREO

PLANTA BAIXA TIPO

Turn static files into dynamic content formats.

Create a flipbook
Issuu converts static files into: digital portfolios, online yearbooks, online catalogs, digital photo albums and more. Sign up and create your flipbook.
APENAS UM TESTE by Ana Júlia Cordeiro - Issuu