BOULEVAR CULTURAL CON ESPARCIMIENTO DEPORTIVO

Page 1


VOULEVAR CULTURAL CON ESPARCIMIENTO DEPORTIVO

CoronadoBazan

ArlieJhonatan

GarciaGarcia
RichardAlonso
Tarapoto 03/2025

ArlieJhonatan

Estudiante de Arquitectura con 22 años de edad del sexto siclo de la Universidad Cesar Vallejo_Tapoto,

Entre mis cualidades resaltan el excelente trabajo en equipo , y responsabilidad, con capacidad de decisión y adaptación a cualquiercambio, arliecoronadobazan1@gmail.com

EDUCACION

Arquitectura-Estudiante

Educaciónprimariay secundariaconcluido.

PROGRAMAS

CONTACTO GarciaGarciaRichard Alonso

IDIOMAS

(+51) 954-396-426

PERFIL

Estudiante de Arquitectura con 22 años de edad del sexto siclo de la Universidad Cesar Vallejo_Tapoto,

Entre mis cualidades resaltan el excelente trabajo en equipo , y responsabilidad, con capacidad de decisión y adaptación a cualquiercambio, arliecoronadobazan1@gmail.com

CONTACTO

(+51) 954-396-426

Cacatachi Tarapoto

EDUCACION

Arquitectura-Estudiante

Educaciónprimariay secundariaconcluido.

PROGRAMAS

Autocad

IDIOMAS

Español Ingles

Cacatachi Tarapoto

PROYECTO 0 1 (Ubicación)

BIBLIOTECA

PISCINA

LOZA DE VOLEY

AUDITORIO

GIMNASIO

CANCHA DE FUTBOL 0 2 0 3 0 4 0 5 0 6 0 7 0 8

BASQUETBOL

PROYECTO

ProyectoUrbanoseencuentraubicado eneldepartamentoSanMartin,enla ciudaddeTarapotobarrioHuayco

Ubicación

Ubicación delProyecto

PERU SANMARTIN TARAPOTO

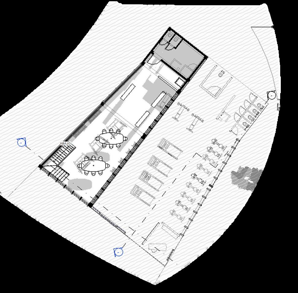
PRIMER NIVEL

SEGUNDO NIVEL

PROGRAMA

A.Áreadeespera

B.recepción

C.Saladelectura

D.Oficina

E.ÁreaAdministrativa

F.SS.HH

CARACTERISTICAS DE FACHADA

Enelexteriordela

Bibliotecaseutilizouna

fachadaronmuroscortina ypuestascorredizasde vidrioparapodertener mayosluznaturalymejor visibilidad

RENDERS

MATERIALES

Seutilizarondiversostipos demateriales,siendoel maspredominantela madera,quedadecoración alosmurosytechosdando unacabadofinoyelegante.

Piso parquet Pared enchapado demadera

Pared concreto pulido

RENDERS

PROGRAMA

A.Áreadeespera

B.recepción

C.Saladelectura

D.Oficina

E.ÁreaAdministrativa

F.SS.HH

CARACTERISTICAS DE FACHADA

Enelexteriordela

Bibliotecaseutilizouna

fachadaronmuroscortina ypuestascorredizasde vidrioparapodertener mayosluznaturalymejor visibilidad

RENDERS

MATERIALES

Seutilizarondiversostipos demateriales,siendoel maspredominantela madera,quedadecoración alosmurosytechosdando unacabadofinoyelegante.

Piso parquet Pared enchapado demadera

Pared concreto pulido

PRIMER NIVEL

SEGUNDO NIVEL

PROGRAMA

A.Áreadeespera

B.recepción

C.Saladelectura

D.Oficina

E.ÁreaAdministrativa

F.SS.HH

CARACTERISTICAS DE FACHADA

Enelexteriordela

Bibliotecaseutilizouna

fachadaronmuroscortina ypuestascorredizasde vidrioparapodertener mayosluznaturalymejor visibilidad

RENDERS

MATERIALES

Seutilizarondiversostipos demateriales,siendoel maspredominantela madera,quedadecoración alosmurosytechosdando unacabadofinoyelegante.

Piso parquet Pared enchapado demadera

Pared concreto pulido

CORTE G

RENDERS

PROGRAMA

A.Áreadeespera

B.recepción

C.Saladelectura

D.Oficina

E.ÁreaAdministrativa

F.SS.HH

CARACTERISTICAS DE FACHADA

Enelexteriordela

Bibliotecaseutilizouna

fachadaronmuroscortina ypuestascorredizasde vidrioparapodertener mayosluznaturalymejor visibilidad

RENDERS

MATERIALES

Seutilizarondiversostipos demateriales,siendoel maspredominantela madera,quedadecoración alosmurosytechosdando unacabadofinoyelegante.

Piso parquet Pared enchapado demadera

Pared concreto pulido

CORTE H

CORTE I

CORTE J

RENDERS

Turn static files into dynamic content formats.

Create a flipbook
Issuu converts static files into: digital portfolios, online yearbooks, online catalogs, digital photo albums and more. Sign up and create your flipbook.