BOULEVAR CULTURAL CON ESPARCIMIENTO DEPORTIVO

Page 1


VOULEVAR CULTURAL CON ESPARCIMIENTO DEPORTIVO

CATEDRA:MARIACLAUDIAANGELESVELÁSQUEZ

CoronadoBazan

ArlieJhonatan

GarciaGarcia

RichardAlonso

ArlieJhonatan

Estudiante de Arquitectura con 22 años de edad del sexto siclo de la Universidad Cesar Vallejo_Tapoto,

Entre mis cualidades resaltan el excelente trabajo en equipo , y responsabilidad, con capacidad de decisión y adaptación a cualquiercambio,

CONTACTO

arliecoronadobazan1@gmail.com

(+51) 954-396-426

Cacatachi Tarapoto

EDUCACION

Arquitectura-Estudiante

PROGRAMAS

PERFIL

EDUCACION

Arquitectura-Estudiante

Educaciónprimariay secundariaconcluido. Autocad

IDIOMAS

Estudiante de Arquitectura con 24 años de edad del sexto siclo de la Universidad Cesar Vallejo_Tapoto,

Educaciónprimariay secundariaconcluido.

PROGRAMAS

Entre mis cualidades resaltan el excelente trabajo en equipo , y responsabilidad, y adaptación a cualquiercambio.

CONTACTO

arliecoronadobazan1@gmail.com

(+51) 954-396-426

Cacatachi Tarapoto

IDIOMAS

Español

CONTENIDO

PROYECTO 0 1 (Ubicación) (ASOLEAMIENTO) (EQUIPAMIENTOS) (BOULEVAR)

BIBLIOTECA

AUDITORIO

PISCINA

LOZA DE VOLEY

GIMNASIO

CANCHA DE FUTBOL 0 2 0 3 0 4 0 5 0 6 0 7 0 8

BASQUETBOL

(EQUIPAMIENTOS COMPLEMENTARIOS) (ESTRUCTURAS)

PROYECTO

ProyectoUrbanoseencuentraubicado eneldepartamentoSanMartin,enla ciudaddeTarapotobarrioHuayco.El proyectoabarcaunadimensiónde terrenode36421.21m2,conunclima cálidoyacogedor Ubicación delProyecto

Ubicación

PERU SANMARTIN

Elproyectopretendegenerarun ambienteamplioyconfortableparasus visitantesdedicadaaunpublicoen generalysatisfacerlasnecesidadesde recreaciónactivaypasiva

OBJETIVO EQUIPAMIENTOS EXITENTES

Comercio Cancha deportiva
Hospedaje Mercado Restaurante Educacion

PARQUEBOULEVAR

INGRESO PRINCIPAL

RECORRIDO PARQUE

PARQUE NIÑOS
RECORRIDO PARQUE

PRIMER NIVEL

SEGUNDO NIVEL

PROGRAMA

A.Áreadeespera

B.recepción

C.Saladelectura

D.Oficina

E.ÁreaAdministrativa

F.SS.HH

CARACTERISTICAS DE FACHADA

Enelexteriordela

Bibliotecaseutilizouna fachadaronmuroscortina ypuestascorredizasde vidrioparapodertener mayosluznaturalymejor visibilidad

MATERIALES

Seutilizarondiversostipos demateriales,siendoel maspredominantela madera,quedadecoración alosmurosytechosdando unacabadofinoyelegante.

Piso parquet Pared enchapado demadera losa concreto pulido2 nivel

CORTE - A

CORTE - B

CORTE - C

PROGRAMA

A.ÁreaSocial

B.Boletería

C.Auditorio

D.Vestuarios

E.CuartodeProyector

F.SS.HH

CARACTERISTICAS DE FACHADA

Enelexteriordelauditorio

seutilizounafachadaron muroscortina,columna circularesypuertas corredizasdevidriopara podertenermayosluz naturalenalgunos ambientesymejor visibilidad

MATERIALES

Seutilizarondiversostipos demateriales,siendoel maspredominantela madera,quedadecoración alosmurosytechosdando unacabadofinoyelegante.

Techo enchapado en Madera cedro Pared,piso enchapado demadera

Paredy Muros concreto pulido

PRIMER NIVEL

SEGUNDO NIVEL

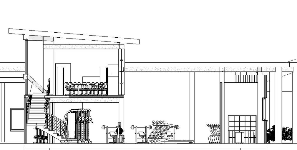
PROGRAMA

A.recepción

B.Oficina

C.ÁreaAdministrativa

D.SS.HH

CARACTERISTICAS DE FACHADA

EnelexteriordelGimnasio

seutilizounafachadacon

muroscortinaypuestas

corredizasdevidriopara

podertenermayosluz

naturalymejorvisibilidad

MATERIALES

Seutilizarondiversostipos demateriales,siendoel maspredominantela madera,quedadecoración alosmurosytechosdando unacabadofinoyelegante.

Piso Negro terrazo

Pared enchapado demadera techo enchapado enmadera

CORTE - F

CARACTERISTICAS DE FACHADA

EnelexteriordelaPiscina

seutilizounafachadacon muroscortinaypuestas corredizasdevidriopara podertenermayosluz naturalymejorvisibilidad

MATERIALES

Seutilizarondiversostipos demateriales,siendoel maspredominantela madera,quedadecoración alosmurosytechosdando unacabadofinoyelegante.

Piso parquet

Pared enchapado demadera

Pared concreto pulido

CORTE- L

CARACTERISTICAS DE FACHADA

Enelexteriordelalosade

voleibolseutilizouna

fachadaconmuroscortina

devidrioparapodertener

mayosluznaturalymejor visibilidad

MATERIALES

Seutilizarondiversostipos demateriales,siendoel maspredominantela madera,quedadecoración alosmurosytechosdando unacabadofinoyelegante.

Techo enchapado enmadera cedro Pared enchapado demadera

losa concreto pulido

CARACTERISTICAS DE FACHADA

Enelexteriordelalosade básquetseutilizouna fachadaconmuroscortina y puertascorredizasde vidrioparapodertener mayosluznaturalymejor visibilidad

MATERIALES

Seutilizarondiversostipos demateriales,siendoel maspredominantela madera,quedadecoración alosmurosytechosdando unacabadofinoyelegante.

Techo enchapado enmadera

Pared enchapado demadera

loza concreto pulido

CARACTERISTICAS DE FACHADA

Enelexteriordelalosade

Futbolseutilizouna fachadaconmuroscortina y puertascorredizasde vidrioparapodertener mayosluznaturalymejor visibilidad

MATERIALES

Seutilizarondiversostipos demateriales,siendoel maspredominantela madera,quedadecoración alosmurosytechosdando unacabadofinoyelegante.

Piso parquet
Pared enchapado demadera
Pared concreto pulido

SERVICIOS COMPLEMENTARIOS

COMIDA RAPIDA
GALERIAS

ESTRUCTURA

MATERIALIDAD

Enelproyecto seemplean elconcretocomomaterial primordialparala edificaciónestructural tantoparalaconstrucción delequipamientocomo paraeldiseñodel proyecto.

3

1VISTA FRONTAL
VISTA LATERAL
VISTA LATERAL ISOMETRICA

Turn static files into dynamic content formats.

Create a flipbook
Issuu converts static files into: digital portfolios, online yearbooks, online catalogs, digital photo albums and more. Sign up and create your flipbook.