TUBES PERANCANGAN PEMUKIMAN KELOMPOK 2

Page 1

TugasAkhirSemester PERANCANGAN PEMUKIMAN

Kelompok2

Muhammad Ilham Amsar (105831103921)

Dwiky Izul Nugroho (105831104721)

Muhammad Fajar (105831105421)

Muh Adil Rifki (105831103221)

Al Ikhsan Suaib (1058311016118)

1.

BAB I PENDAHULUAN

A. latar belakang

B.Tujuan

BAB II TINJAUAN KEBIJAKAN

A. Tinjauan Tata Ruang

B. Tinjauan Intensitas Bangunan Dan Sempadan

BAB III ANALISIS

A. Analisis Pemilihan Lokasi

B. Analisis Fisik Site

C. Analisis Kebutuhan Sarana dan Prasarana (berdasarkan jumlah penduduk yang diasumsikan)

D. Analisis Kebutuhan Lahan (hunian berdasarkan tipe,ruang terbuka,sarana-prasarana dll)

BAB IV KONSEP PERANCANGAN

A. Pola Permukiman

B. Zonasi (Tipe hunian, ruang terbuka hijau,sarana-prasarana )

C. Desain masterplan

D. Contoh unit tiap tipe hunian

DAFTARISI
DAFTAR ISI 2. 4 4 6 8 10 11 12 13 15 16 17 18

PENDAHULUAN BABI

3.

PENDAHULUAN

LATARBELAKANG

Permukiman adalah bagian dari lingkungan hidup di

luar Kawasan lindung, baik yang berupa kawasan

perkotaan maupun perdesaan yang berfungsi sebagai

lingkungan tempat tinggal atau lingkungan hunian

dan tempat kegiatan yang mendukung kerikehidupan

dan penghidupan ( UU no.4 tahun 1992 tentang

perumahan dan pemukiman )

Permukiman adalah kawasan yang didominasi oleh

lingkungan yang dilengkapi dengan sarana dan

prasarana lingkungan dan tempat kerja yang

memberikan pelayanan dan kesemlatan kerja yang

terbatas untuk mendukung berikehidupan dan

penghidupan, sehingga dapat berdaya guna dan

berhasil guna. Permukiman ini dapat berupa

permukiman perkotaan atau permukiman pedesaan.

TUJUAN Diharapkan mahasiswa mampu memahami

perhitungan standar permukiman. Mahasiswa mampu

membuat konsep pemilihan lokasi permukiman.

Mahasiswa mampu menerapkan perhitungan standar

permukiman dalam penggambaran site plan.

Mahasiswa mampu menggambar denah type

permukiman

ilustrasi pemukiman 4.

TINJAUANKEBIJAKAN BABII

5.

TINJAUAN KEBIJAKAN

TINJAUAN TATA RUANG

Lokasi yang dipilih secara umum

merupakan bagian dari kawasan industri

sesuai peta tinjauan tata ruang

KabupatenTakalar

PEMANFAATANTATARUANG

KawasanPemukiman

KDBmax70%

KLB15meter

KDH10%

RTHmin.30%dariluasperkotaan

(Sumber PERDA Kab.Takalar No6 Tahun 2012 tentang Rencana

TataRuangKabupatenTakalar

6.

TINJAUAN KAWASAN

Lokasi

Lokasi Perumahan berada di Kecamatan Galesong Utara

Kabupaten Takalar, Provinsi Sulawesi Selatan

7.

TINJAUAN KAWASAN DAN DATA SEKUNDER

Lokasi Perumahan berada di Kecamatan Galesong Utara

Kabupaten Takalar, Provinsi Sulawesi Selatan

Berada di kawasan Industri Kab. Takalar yang padat

penduduk

mendukung masyarakat untuk mata pencaharian mereka

Selain itu juga kawasan Perumahan juga dekat dengan

Sekolah, Pasar, dan Fasilitas Kesehatan

TINJAUAN GARIS SEMPADAN

8.

ANALISIS BABIII

9.

IDENTIFIKASI MASALAH

KRITERIA PEMILIHAN LOKASI

-Lokasi Perumahan tidak berada pada kawasan lindung,

-Lokasi perumahan bebas dari pencemaran air, udara, dan gangguan suara atau

gangguan lainnya, baik yang ditimbulkan sumber daya buatan manusia.

-Lokasi Perumahan aman dari potensi bencana alam seperti banjir, tanah longsor

-Ketinggian lahan kurang dari 1.000 meter di atas permukaan air laut (MDPL),

-Kemiringan lahan tidak melebihi 15 %,

10.

ANALISIS

PETA KUNCI

ANALISIS KEBISINGAN

Sumber : google maps

Luas Lahan: 110029 m = 11 ha

ORIENTASI SITE TERHADAP MATAHARI

Lokasi Perumahan Berada tepat dipinggir jalan Raya yang menimbulkan kebisitngan yang tinggi, Penghijauan dan penanaman pohon pada area depan bisa mengurangi kebisingan

BATAS BATAS TAPAK

Tingkat Suhu Tertinggi berada di jam 12.00-14.00

A
B C
RUMAHPENDUDUK LAHAN KOSONG LAHAN KOSONG
11.
TIPE JUMLAH JIWA JUMLAH UNIT JUMLAH 36 2 Orang 231 Unit 462 46 3 Orang 122 Unit 366 65 4 Orang 202 Unit 808 RUKO 4 Orang 32 Unit 128 TOTAL 1764
PENDUDUK 12.
ANALISIS ANALISIS JUMLAH
JENIS FASILITAS JUMLAH PENDUDUK PENDUKUNG JIWA LUAS LAHAN SARANA TEMPAT IBADAH MASJID 1764 Jiwa 1080 M2 SARANA KESEHATAN KLINIK 700 Jiwa 160 M2 SARANA RTH Lapangan Futsal 540 Jiwa 650 M2 Lapangan Basket 540 Jiwa 840 M2 Taman Bermain dan Jogging Track 300 Jiwa ANALISIS ANALISIS FASOS DAN FASUM 13.

KONSEPPERANCANGAN BABIV

14.

KONSEP PERANCANGAN

POLA PEMUKIMAN

Pola permukiman Yaitu Grid

BENTUK POLA GRID pola grid adalah pola yang teratur.pola

grid juga desebut pola papan catur.suatu grid terciptaoleh

perpotongan dua atau lebih garis sejajar yang berjarak

teratur.grid pada umumnya terdiridari beberapa potongan

bujur sangkar yang prinsipnya tidak hirarki,tidak berarah,dan

bersifatnetral.sifat ini dapat dipergunakan untuk memecah

skala suatu permukaan menjadi unit-unityang terukur dan berstektur

15.

KONSEP PERANCANGAN

Zonasi (Tipe hunian, ruang terbuka hijau,sarana-prasarana )

16.

KONSEP PERANCANGAN

SitePlan

17.

KONSEP PERANCANGAN

CONTOH UNIT TIAP HUNIAN

DENAH TIPE 36

18.

KONSEP PERANCANGAN

CONTOH UNIT TIAP HUNIAN

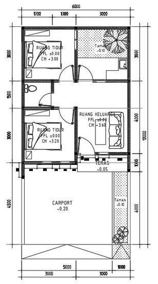
DENAH TIPE 46

19.

KONSEP PERANCANGAN

CONTOH UNIT TIAP HUNIAN

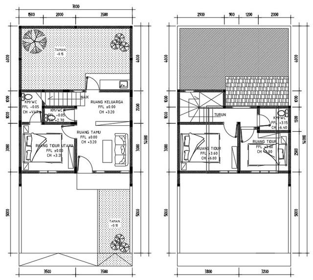
DENAH TIPE 65

20.

LAMPIRAN PEMBAGIAN TUGAS

1. Muhammad Ilham Amsar (105831103921)

- Pembuatan ppt, mengumpulkan data lokasi

2. Dwiky Izul Nugroho (105831104721)

- Pembuatan desain cad site, mengumpulkan data, mengolah data

3. Muhammad Fajar (105831105421)

- Pembuatan desain masterplan, pembuatan ppt, mengolah data

4. Muh Adil Rifki (105831103221)

- cari materi

5. Al Ikhsan Suaib (1058311016118)

- cari materi

21.

Turn static files into dynamic content formats.

Create a flipbook
Issuu converts static files into: digital portfolios, online yearbooks, online catalogs, digital photo albums and more. Sign up and create your flipbook.
TUBES PERANCANGAN PEMUKIMAN KELOMPOK 2 by Muh Ilham Amsar - Issuu