







TIRANE NORTH
MUSKOKA HARBOUR



![]()











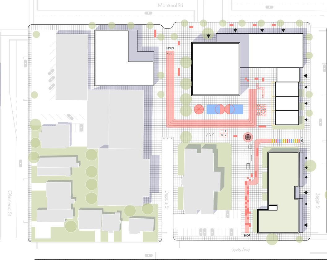
Brick Commons aims to be a housing community that accommodates a wide range of age groups and abilities. The project consists of two mid-rise buildings: ‘Building A’ located on Montreal Road, which serves as a mixed-use space, and ‘Building B’ situated along Lévis Avenue. The project is part of a larger call for urbanization and repurposing of the Vanier neighborhood to a vibrant and inclusive space for artists.
‘Building A’ features commercial spaces, as well as film and music studio spaces. The prominence of brick within the project is heavily influenced by the surrounding buildings along Montreal Road and within the greater community. The durability and ubiquity of brick and stone masonry allows for a cost-effective group of buildings that are able to withstand the realities of play.
The open space is characterized by vibrant pavement, designed to be flexible and adaptable. The calisthenics bars offer a place for both kids and adults to utilize. This space is designed for the public and the community to create a lively and safe environment. Second Place Hobin Prize Winner
Published in Building 22 Edition-23
Academic Project: 4th year Studio



















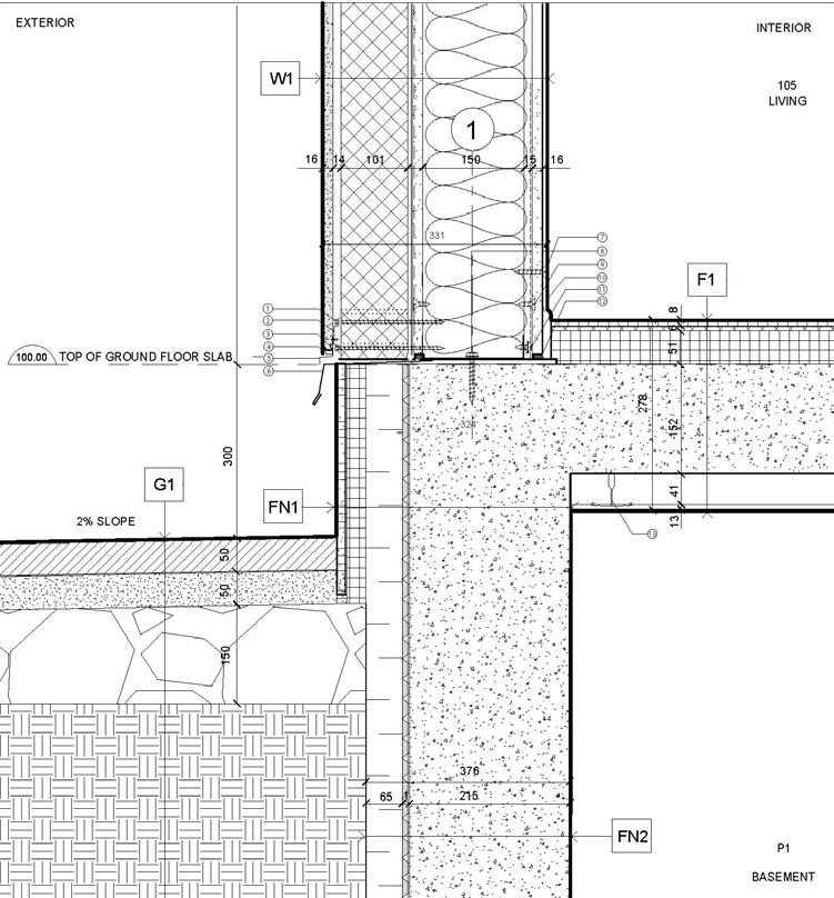
Building [A] Detail Axo

Roof
Floating Gypsum Board
Rigid Insulation
Cast in Place Concrete
Wall
150 mm Stone Rain-Screen Drained
25 mm Air Cavity
76 mm Rigid Insulation
7 mm Polyethylene
76 mm Sheathing
80 mm Schock Isokorb
Metal Cap Flashing on Parapet & Cantilever
Sealant
Balcony-Slab
Accessibility Curb
80 mm Gypsum Board
Slopped Concrete Slab
80 mm Schock Isokorb
80 mm Wood Ceiling
Insulated Double Glazed Curtain Wall
Polyamide Pressure Plate
Thermal Insulated Gasket
Floor-Slab
8 mm Wood Flooring
1.5 mm Underlayment
7 mm Sub-Floor
76 mm Rigid Insulation
Polyethylene
300 mm Concrete Floor-Slab
Gypsum Board





Building [A] Plan : Ground Floor

Building [A] Plan : Levels 1-3

Building [A] Plan : Levels 5-7
In December 2024, I worked on the design of a business centre in The Pearl, Doha, as part of my role at J5 Design. The space was designed specifically for creative professionals such as architects and designers.
The client was presented with two distinct concepts, each offering unique styles and spatial configurations to support the dynamic workflow of design-focused teamwork. The selected concept merges mid-century modern aesthetics with Bauhaus principles, resulting in a refined and functional workspace. The project is currently under construction and scheduled to open in the second quarter of 2025.
Professional Project: 2024/2025










Located in Al-Waab neighborhood, the exterior of this home reflects the area’s traditional Qatari architecture.
As part of my role with J5 Design, I contributed to the interior fit-out and spatial layout of the residence, including the design of the outside terrace.
The furniture was thoughtfully selected to reflect the client’s aesthetic preferences, with several pieces custom-designed to meet specific functional and spatial needs, such as the U-shaped couch, wooden cabinets, and coffee corner.
The result was delivering a space that successfully translated the client’s vision of their home.
Professional Project: 2025












The creation of an innovative modular furniture collection for popup retail spaces. Drawing inspiration from Bureau Spectacular, the adaptable pieces ensure effortless assembly and disassembly.
Crafted to seamlessly interlock, the structures’ unique design allows for easy transportation in shipping containers, providing mobility across diverse locations.
Tailored to the ever-changing needs of retail environments, the collection offers a multifunctional solution, optimizing space utilization and enhancing the experiential aspect of each shop.










Professional Project: 2024

















The 70-acre site in Tirana, Albania, is slated for redevelopment as part of the city’s plans for high-end architecture and a park. However, this redevelopment poses a threat to the informal settlements located on the site. This project seeks to provide livable and recreational spaces for the current residents through tactical architecture interventions that address water insecurity, lack of shelter, and insufficient promotion of activism.
The design approach is intentionally minimal and non-permanent to maintain the residents’ livelihoods while allowing for adaptability.
The project features several ‘Warka Water’ structures, strategically placed as nodes that connect different programming on the site. These structures also serve a community market, which offers an additional venue for activism through light projections that raise awareness by projecting images onto the construction sites.
By prioritizing the needs of the current residents and their communities, the project uses architecture as a tool for activism.
Published in Building 22 Edition-23
Academic Project: 4th year Studio











of Community Market



Purpose: Efficiently gather the maximum amount of drinking water using methods of rain water collection and water harvesting from humidity.
Count: Three.
Location: Community Market and near residential neighborhoods.
Purpose: Utilize nearby construction as a backdrop for light show images. projections will be controlled by community members.
Count: One.
Location: Recreation Centre, Boulevard side.
Purpose: Allowing the community to grow the crops needed for the produce market and personal uses.
Count: Five.
Location: community Garden and near residential neighborhoods.
These pods provide a sanctuary for the night shift workers or for travelers such as farmers, cab drivers, and construction workers who need a place to rest. The pods are designed to face the Qibla, as they also function as a Muslim prayer room.

Pre-cast Concrete




A vernacular redevelopment on the wetlands of Gravenhurst, transforming what was once an abandoned sanitarium to a vibrant residential community.
New commercial centers, and residential spaces are embraced by Lake Muskoka, providing an ideal location for peaceful living, outdoor activities and wildlife interconnection. All developments use local materials and respect existing green spaces to maintain the indigenous ecology and improve sustainability practices so that younger generations can continue to grow and prosper alongside the natural ecology.
The street-scape is composed of contemporary, Timber frame homes that emulate the retreat of a summer cottage, shaded by preexisting local greenery.
Mobility is optimized by strategically placing the dock and walking paths to naturally guide visitors to key community hubs. These include a beach, a library, and outdoor recreational spaces.
Published in Building 22 Edition-22
Academic Project: 3rd year Studio






Site Section

Site Master Plan




Townhomes Perspective Section













The redevelopment plan of the Experimental Farm approaches the site from an urban point of view by engaging with the agricultural site from a fresh perspective. The project aims to incorporate elements of agriculture and introduce commercial and residential intensification while also preserving the historical and cultural significance of the site.
The plan includes rooftop gardens, greenhouses and aquaponics systems strategically placed around the property to support the production of fresh locally grown food for the community and the rest of Ottawa. In addition, the project includes a number of mixed-use buildings with a diverse building typology, to support the population growth within the city. The proposed infrastructure and architecture ensure sensitivity to the heritage buildings on the property.
Creating a self sustained community with an access to locally grown food Promotes a better connection between the Experimental Farm and the Ottawa community.
Project: 3rd year Studio
























Focus Site Axo Drawing
