

PORTIFÓLIO
Arquiteta e Interiores
Meu nome é Mônica, sou estudante do oitavo período de Arquitetura e Urbanismo na UFSC e estou buscando uma oportunidade de estágio na área, com ênfase na elaboração de projetos e um forte interesse na inclusão e no conforto dos espaços. Meu objetivo principal nesta nova etapa é adquirir experiência prática em um escritório de arquitetura, vivenciando o processo de transformar projetos em realidade e aprendendo todas as etapas necessárias para concretizá-los. Estou ansiosa para aprender com a empresa e trabalhar em equipe para encontrar as melhores soluções para os desafios que surgirem. Tenho a ambição de crescer tanto na área técnica quanto na área criativa e social, contribuindo para o crescimento e sucesso da empresa.
OBJETIVO PROFISSIONAL
Ampliar o leque de conhecimento da abrangente área de Arquitetura e Design; Interesse nas metodologias de projetos diversas, conforto, neuroarquitetura e inclusão; Expandir a base de produção para além da universidade, para melhor contato de projetos mais avançados e do mercado de trabalho.
sEstagiária
Helena Cristina Vieira Arquitetura Fevereiro 2022 - Novembro 2022
Desenvolvimento de projetos arquitetônicos abrangentes, desde a concepção inicial até a fase de detalhamento Além disso, fui responsável por criar maquetes 3D realistas, bem como por elaborar projetos auxiliares, como os elétricos, luminotécnicos e hidráulicos. Também me envolvi no desenvolvimento de projetos de móveis planejados, incluindo o detalhamento necessário.
Voluntária - Cartilhas Habita Chapecó
Grupo PETAMA | UFSC - Universidade Federal de Santa Catarina
Jul 2020 a Jan 2021
Encarregada da pesquisa de embasamento jurídico de ATHIS e REURB, atribuída a procura de empresas nacionais profissionais de boas praticas dessa demandaCriação e edição de apresentações e cartilhas informativas e guias práticos para o público geral, comunidades organizadas e profissionais de Arquitetura e Urbanismo. Apresentado no III Seminário de Extensão Universitária Diálogos e Partilhas de Saberes
FORMAÇÃO EDUCACIONAL EXPERIÊNCIA DE TRABALHO
Universidade Federal de Santa Catarina
Graduação de Arquitetura e Urbanismo
Florianópolis, SC
Jan 2019 - Atualmente
Atualmente na 8° fase
SENAC
Curso Técnico de Design de Interiores
Florianópolis; Abril 2022 - Junho 2023
APTIDÕES PROFISSIONAIS
• AutoCad (Avançado);
• SketchUp (Avançado);
• Layout (Avançado);
• V-Ray (Intermediário);
• Lumion (Básico);
• ArchiCad (Básico);
• Revit (Básico);
• Adobe Illustrator (Básico);
• GIMP (Intermediário).
PARTICIPAÇÕES
• Monitora NETI - A Moradia e a Cidade na Vida da Pessoa Idosa
• Projeto Desenvolvedor da Brinquedoteca HU - Metodologia de Projeto de Design de Produto
• Associada da Associação Brasileira de Designers de Interiores
01 Designde Interiores
Brinquedoteca
O objetivo do projeto foi criar um ambien acolhedor e estimulante para crianças e suas famíli no contexto hospitalar, levando em consideração retirada da criança de seu ambiente familiar e necessidade de promover conforto, inclusão e estímulo à criatividade e sonhos.
Os conceitos utilizados foram o Lúdico, enfatizand formas, modelos e cores para atrair a atenção d criança e promover a ludicidade; o Brincar, tornand o ambiente menos cansativo e prazeroso para crianças; a Humanização, abrangendo aspectos com iluminação, conforto térmico, acústico, cores e relação entre interior e exterior; e a Saúd considerando o bem-estar físico, mental e social d crianças






Além disso, o projeto destacou a importância da diferenciação dos espaços, equilibrando funcionalidade, beleza e aconchego para as crianças. A humanização sensorial foi valorizada, proporcionando interação funcional e segura, considerando a percepção dos elementos do ambiente físico pelas crianças. A psicologia ambiental e o design emocional foram aplicados, baseados em pesquisa, focados no usuário e utilizando técnicas de mensuração.
O enriquecimento ambiental foi promovido para que as crianças possam explorar o mundo ao seu redor e desenvolver suas habilidades. Foi dado destaque à estimulação sensorial, evitando ambientes monótonos, repetitivos e com pouca legibilidade, e utilizando cores, materiais e formas variadas. A comunicação visual e a sinalização foram ajustadas às necessidades dos pacientes, garantindo uma experiência positiva no ambiente hospitalar.
Travessa 121
o projeto da reforma da parte social da casa, agora ampla, confortável e espaçosa. Com a eliminação de paredes e divisórias, criamos uma área integrada, proporcionando sensação de espaço livre. Materiais de alta qualidade e iluminação natural realçam a atmosfera sofisticada e acolhedora. A disposição estratégica dos móveis e otimização do espaço garantem circulação livre. O ambiente social convida a momentos especiais com familiares e amigos.




Clinica EducaDor
A proposta arquitetônica para a clínica Educa a Dor visa criar espaços acolhedores e funcionais, que promovam o conforto e a confiança dos pacientes durante sua jornada de recuperação. A seleção cuidadosa de materiais, revestimentos, mobiliário e iluminação tem como objetivo proporcionar um ambiente tranquilo e propício ao bem-estar.
A principal meta é oferecer um ambiente no qual os pacientes se sintam capacitados a assumir o controle de sua saúde e bem-estar. Através do design e layout, buscamos estimular a confiança e fornecer uma sensação de segurança, encorajando cada indivíduo a se engajar ativamente em seu processo de tratamento. Além disso, valorizar o suporte emocional aos pacientes, criando um ambiente acolhedor onde eles se sintam compreendidos e apoiados. Acredito que essa combinação de ambiente favorável, tratamentos eficazes e apoio emocional é essencial para transformar a vida daqueles que buscam uma vida livre da dor.




Tabern
O projeto do G necessidade comunitário pa Viking. Mante conceito inspir tabernas med comunidade, u cuidadosament com mesas am privativas para espaço dedicad jogos e compet








O objetivo principal era criar um ambiente moderno e contemporâneo, evitando clichês e caricaturas, ao mesmo tempo em que trazia vida a um antigo galpão.
A proposta buscou unir a mitologia viking com a experiência gastronômica e de bebidas, proporcionando uma imersão sensorial aos visitantes.
Teve como intuito criar um ambiente que refletisse a identidade da marca e ao mesmo tempo fosse atrativo para um público contemporâneo.
A ambientação foi cuidadosamente planejada, combinando elementos da cultura viking, como ornamentos, cores e texturas, com elementos modernos e sofisticados. O resultado é um espaço que combina elementos estéticos, funcionais e sensoriais, proporcionando uma experiência única e envolvente aos visitantes.
02 Mobiliário


ra atende ou em uma para a con cessidades d m vários asp za tanto e daptar a dif os para as urança par


r à demanda de armazenamento a experiência sensorial personalizada nvivência de meios e pessoas. Este da vida infantil em diferentes etapas. pectos em mente, incluindo conforto em ambientes hospitalares quanto ferentes usos e funções ao longo do crianças que irão usá-lo, e detalhes a seu ambiente e usuários.

Módulos variados NCO FOLHA





03 Arquitetura
Casa 275
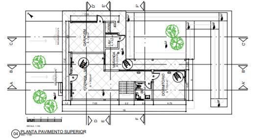
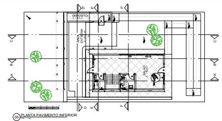
Uma casa de caráter multiuso e inclusiva. Projetada para um casal de idosos, com deficiência de mobilidade.
Projeto de uma casa completamente utilizável pelo casal durante a semana, com corredores amplos e il i d á fi i d

- Caixa d'água 3 000 L;
- Telha cerâmica com inclinação de 30 %;
- Estrutura de suporte revestida com forro de madeira;
- Estrutura de pilar e viga, de concreto armado;

- Parede de Taipa de Pilão; cessidade de alão; ante a área veis, de k a terra do essão, para dação


Maquete Estrutural





PLANTA TÉRREO








Memorial da Cidade
A construção do memorial como arquitetura cultural, deu-se principalmente pela adequação à necessidade de lembrança tanto da trajetória de resistência do parque, quanto à ênfase de um local estratégico. Dessa forma, o projeto apresenta-se como espaço de memória propriamente dito, por caber exposições acerca da história do parque, da cidade de Florianópolis, mas vai além, permitindo ampliar suas funções para um espaço de encontro e vivência.

ZONEAMENTO EIXOS
PASSARELAS

VIAS






PLANTASUPERIOR 01 PLANTATÉRREO




A Dividida em três blocos, separadas por vãos livres e unida por rampas, a construção é arquitetada para receber mirantes, restaurantes, bibliotecas/livrarias, administração, associação, entre outros. Sua arquitetura continua e amarra as potencialidades e sensações intencionadas para o projeto como um todo. A materialidade baseia-se em madeira de pinus tratado, aço galvanizado, vidro e concreto, que são escolhidos para vedações e estrutura, de forma a não se contraporem à paisagem natural. O arvorismo segue ao longo dos trajetos internos e conecta-se aos externos, sempre proporcionando espaços de contemplação ao parque.







04 Urbanismo
PRAÇA PEREIRA OLIVEIRA


O projeto de intervenção em um espaço público visa criar um ambiente cultu no centro da cidade, através da retirada de um estacionamento e intervenções
Isso é especialmente importante em um bairro conhecido por ter pouca vida Além do trabalho no quiosque para tornar a praça mais segura e acolhedora conexões entre as praças XV de Novembro e Getúlio Vargas, por meio de iluminadas, podem atrair mais atenção. O parquinho traria alegria duran enquanto o palco seria usado para atividades culturais e de entretenimento.



ural valioso s na praça. a noturna. à noite, as ruas bem nte o dia,







Localizada no bairro da Trindade de Florianópolis, a Universidade Federal de Santa Catarina e sua influência na ilha foram os guias deste estudo. A partir da vida acadêmica e do papel do espaço público universitário para a comunidade foi feito um recorte no setor do Centro de Tecnologia da UFSC (CTC), de maneira a entender e melhorar a infraestrutura urbanística para os estudantes e criar um espaço de vivência para os moradores ao redor. Dessa forma, o objeto principal da requalificação no setor é a Praça da Tecnologia devido ao seu potencial de encontro, lazer estudo e preservação, mas principalmente por ter sido projetada para um uso diferente do que se tornou atualmente.
A transformação do que deveria ser um espaço público de vivência em estacionamento enfatiza o quanto os elementos urbanísticos e a apropriação de áreas públicas pelas pessoas são essenciais para delimitar e permanecer funcionando de tal forma Por estas razões, este estudo visa avaliar as dinâmicas do espaço e suas potencialidades, para realizar sugerir a retomada da praça com elementos de seu contexto



