PORTFOLIO
molly c. bruns
![]()
molly c. bruns
INTERIOR ARCHITECTURAL DESIGNER
PHONE 573 606 9193
THOR GUARD, INC. | KANSAS CITY, MO
Architectural & Sales Consultant | April 2025 - Present
• Client outreach regarding weather detection systems across 12 states
• Plan and coordinate installation logistics based on site constraints
• Resolve technical issues and coordinate project needs efficiently
Design Consultant | May 2024 - October 2024
B.S. INTERIOR ARCHITECTURE
University of Kansas Lawrence, KS | 2020 - 2024
HELIAS CATHOLIC HIGH SCHOOL
Valedictorian
Jefferson City, MO | 2016 -2020
• Source & purchase FF&E from local vendors for various of project types
• Assist in schematic & design development for state park sites
• Participate in construction administration oversight
• Manage project logistics, coordinated timelines & deliverables
THE JAYHAWK CLUB | LAWRENCE, KS
Event Coordinator & Bartender | May 2024 - April 2025
• Plan & run private events and club functions, handling setup, scheduling, & vendor coordination
• Mix drinks, manage bar inventory, & ensure responsible alcohol service.
• Provide friendly, attentive customer service to members and guests.
• Work with the team to improve event flow, bar operations, & menu planning.
• Train & support staff
Intern | May 2023 - December 2023
• Assist senior architects & designers with space planning, concept development, FF&E specifications, material specifications, construction documents, 3D modeling, renders, construction administration, & presentations
KU ARCHD LASER AND 3D PRINT LAB | LAWRENCE, KS
Technician | September 2023 - May 2024
• Assist students & faculty with laser cutter & 3D printers
• Repair faulty equipment and machinery
Intern | May 2021 - August 2021; May 2022 - August 2022
• Create 3D modeling, floor plans, sections, elevations, and renders for residential, industry, & education projects.
• Compile & revise construction documents.
• Collaborate with architects in client, design, & schematic meetings.
COLLEGE FOR KIDS: A SUMMER EXPLORATION | FULTON, MO
Office Staff & Counselor | 2019 - 2022 Summers
• Plan and organized large group activities & logistics for children ages 6-15.
• Assist in gifted education courses & oversee childcare
• IT management
Revit, AutoCAD, Enscape, Lumion, SketchUp, Photoshop, InDesign, Illustrator, Microsoft Office, Bluebeam, 3D Printing, Laser Cutting, CNC Machining
UNIVERSITY OF KANSAS IIDA
Events Director 2023 - 2024
AIAS
SCHOOL OF ARCH STUDENT MENTOR
KU ARCHD MATERIAL LIBRARIAN
ROCK CHALK REVUE SET DESIGNER
• 2024 Best Set Design
• 2024 Best Show
KAPPA ALPHA THETA FRATERNITY
Member Class Representative
Member of DE&I, housing, & nominating committees
PANHELLENIC ASSOCIATION
Director of Interfraternal Relations & Member Development 2022 - 2023
• Facilitate relations between all Sorority & Fraternity Councils
• Oversee new member education & programming
• Represent The University of Kansas at the Association of Fraternal Leadership and Values National Convention
• Head of New Member Scholarship Board
• Plan & facilitate community-wide events
COWORKING | FALL 2021 1 2 3 4 5 6 VARIOUS DATES
COLIVING/MIXED USE RESIDENTIAL | SPRING 2024
MEMORY CARE | FALL 2022
FALL 2023
SUSTAINABLE HOUSING | SPRING 2022
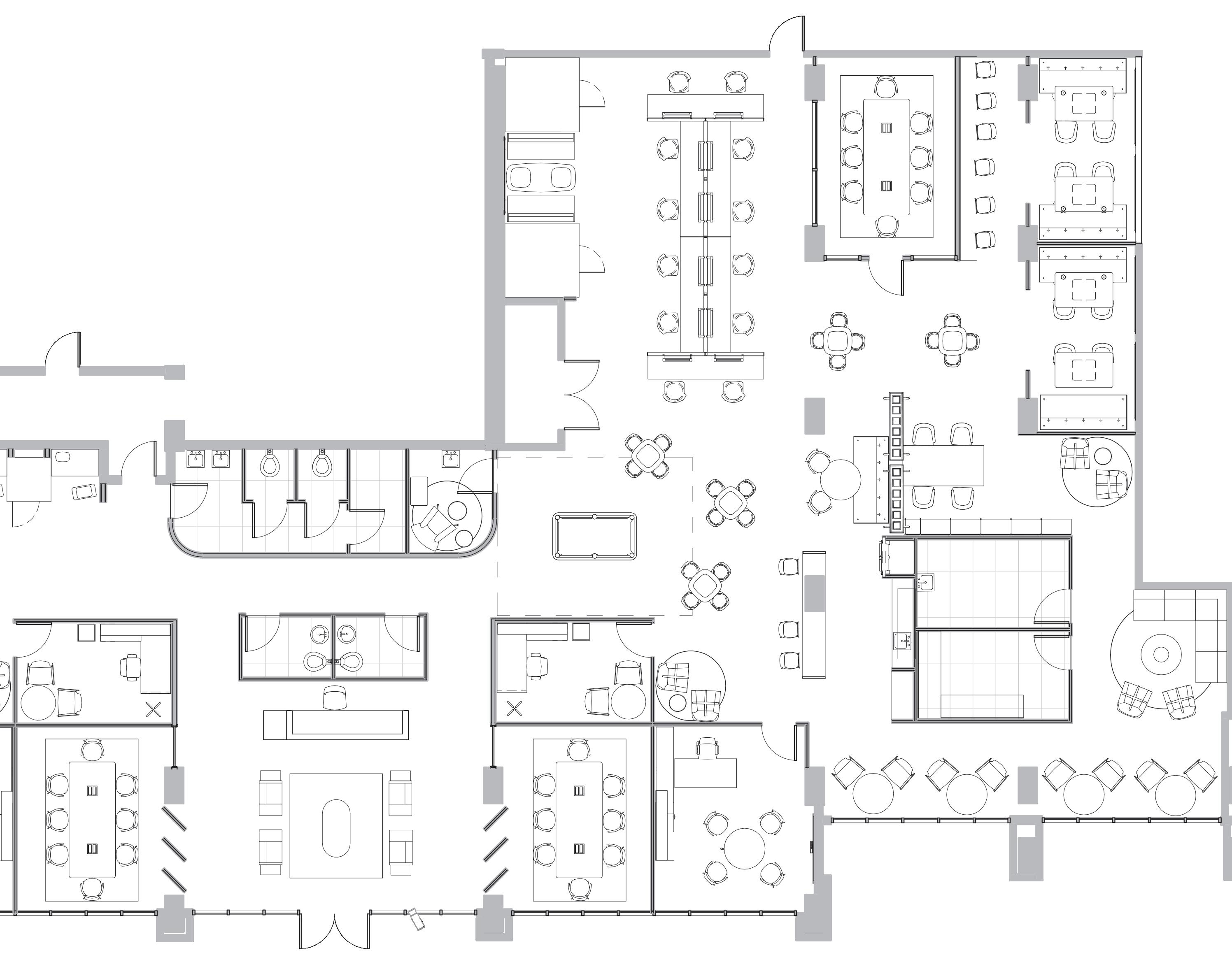
CO-LIVING
SPRING 2024 - 4TH YEAR
CONCEPT - THE HEARTH
By reinterpreting the traditional and cultural symbolism of the hearth, the design presents a bold, contemporary vision that centers the spatial experience around warmth, connection, and communal belonging
OVERVIEW
Cohousing is an intentional, collaborative neighborhood that combines private homes with shared indoor and outdoor spaces to support an active, interdependent community life. This project is designed for those engaged in STEAM (science, technology, engineering, art, math) pursuits—whether as a retreat or a yearround home. With amenities that support focused work, shared expression, and meaningful connection, residents participate in shaping a community grounded in diverse thought and mutual support
Design Considerations
Natural Light
Sharing & Collaboration
Personalization
Wellness & Biophilia
Adaptability








WALKING PATHS
Organic paths connect each structure to promote community. The perimeter path doubles as a service road.
VIEWS
Situated on a lake peninsula, panoramic wooded and waterscapes ensure a beautiful view from all areas.
Perimeter path is secured by automated gates. The public entrance directly connects to a secure entry in the Common House

User Persona

EXPLORE | DISCOVER | OUTREACH
The researcher is someone who has moved to the area because of the regional attributes. They are doing studies with local natural life or astronomy in the dark sky zone.
Primary Spaces: Office, Residence, Library



Primary Spaces:
THE
The

THE FAMILY
SHARE | NURTURE | PROSPER
The family is a unit that comes with the either the researcher, writer, or creator. They spend their time either going to work, school, or in the community.
Primary Spaces: Residence, Greenhouse, Common House

THE WRITER ESCAPE | INSPIRE | LEARN
The writer treats this residence as an escape. They come here part of the year to focus and be inspired while working on their next project.

Playing with the sloped roof motif seen throughout the project, the greenhouse is the most explorative form
This view explores the front view of the structure to better understand the geometry of the greenhouse
Created to better understand the form and materiality. The base stone wall anchors the geometric glazing form
The greenhouse not only serves as a place to grow and garden, but as another community space. By separating the garden center from the community space it allows for an exploration of space and greater use possibility
Kitchen & Pantry
This community space is designed for resident use anytime, whether its grabbing a snack or entertaining the whole village
The youth space gives freedom for children of all ages to either run and climb, or sit and play
The secure entry and admin adjacency allows to receive both residents and visitors safely and comfortable
The market allows for artisans, writers, and researchers to show off and sell their work as well as offering a space for residents to pick up daily items
















In effort to highlight the regions natural beauty, tall ceilings affixed with skylights and large windows adorn this communal space. The communal dining space allows for flexibility and community
Selecting beautiful yet durable materials and furniture was key to making this space livable. Blending commercial-grade quality with a residential feel makes the dining area inviting, while ready to withstand daily wear for years to come.
*For each rcp, I selected, specified, and calculated lighting fixtures to meet IES footcandle recomendations



Compiling a complete set of plans for this project helped to better understand the methodology and importance of inch of the designed space
The material floor plan tags and codes every material used from floor to ceiling and is listed in its entirety in the project manual


The furniture floor plan tags and codes every specified piece of furniture, fixture, and equipment. The FF&E spec book lists the exact piece of furniture, warranty, material, quantity, and cut sheets

The casework detail drawings show precise dimensions, materials, and construction methods for all built-in cabinetry. This outlines specifications for accurate fabrication and installation

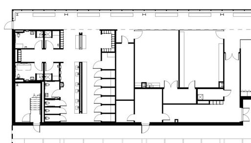
MEMORY CARE FACILITY
FALL 2022 - 3RD YEAR
CONCEPT - EMBODIED PEACE
The importance of prioritizing the individual experience in memory care is vital to the success of the facility. With peace at the center of design it creates a multifaceted approach to design goals.
OVERVIEW
Memory Care facility for patients with early-stage Alzheimer’s in Dallas, TX, in an already existing space. The goals are to activate the creative parts of their brain through the spatial experience by interaction, community and reconnection with one’s self.
SPATIAL PLAN
When laying out the floor plan for this space, it was important to consider similar, lifestyle-like adjacencies. Keeping this in mind, there is a “main street” type organization. For example, the salon, school areas, gallery, and theater are near one another as they would be in the typical world.













When designing the circulation space there were specific design elements that were crucial to benefiting the users. They are: wide halls to allow for ease of circulation, wall supports, rest areas for fatigue, signage for wayfinding and clarity, contrasting wall, floor, and ceiling finishes to easily discern space, visual adjacencies, and adjustable lighting levels to ease visibility
Discernible flooring change has been added to distinguish spatial areas.
Handrails have been built into the wall design to effectively give support to the users







The collaboration space is a designated area that allows the residents to interact with the children in the daycare. This has been proven mutually and substantially beneficial for development for both parties. The space has been designed to both small children and adults with mobility issues can use the space. Including easily accessible and visible storage allows for ease of access and memory.
A cushioned carpet is included for floor activity for the children while also creating a bench system for seated interaction
The wrap around counter top creates a flow in the space and avoids harsh corners that can lead to injury






FALL 2023 - 4TH YEAR
Under the guidance of environmental psychology PhD candidate, Casey Franklin, I was able to be a part of conducting research on inclusive restrooms and creativity in design studios through application in the built environment. Shown is a snap shot of spreads created for the research conducted in the fall of 2023.
For more detail & full documents, please go to https://issuu.com/mollybruns


































SUSTAINABLE+SMART HOUSING
SPRING 2022 - 2ND YEAR
Every design choice prioritizes the importance of the feeling and practice of stability and routine. This is crucial for the environment to fit both the needs of the parent and the children. These elements include safety, privacy, and community
OVERVIEW
Shotgun style home in Strawberry Hill, Kansas City. Designed for a single parent household in mind and to directly improve the user’s day-to-day responsibilities. This home implements smart and sustainable materials and FF&E, while acknowledging vernacular style of the neighborhood.
Schematic Design
Key
Site
Grocery & School
Roads
Sun Path

At this location in Strawberry Hill, the sun path follows the south of the home. This is utilized in our structural design, allowing natural light in through the roof plan, in a natural and subtle way.

Section Diagram
Sun Angle: 5 pm, July
The structural design prioritizes natural light, while alleviating the harsh south sun in the evening while optimizing morning light



The upper level is prioritized to be bedrooms and areas of privacy. The secondary bedroom is designed to fit two young children and grow as they grow for places of relaxation, play, and study
The main floor allows the parent to monitor children while they can move and play freely. It also utilizes smart technologies such as nest security than can be integrated with other appliances. to benefit the inhabitants.
This level has a large amount of storage as well as an office, multi use space, laundry, and a garage. The office can also be converted into a bedroom if there are guests or when the children eventually outgrow sharing a room.













FALL 2021 - 2ND YEAR
The use of lighting, color, and space will create a feeling of intimacy or community dictated by the use of light or dark. The duality of light and dark creates a dynamic and effective experience in a coworking space.
OVERVIEW
Create a coworking office on the main floor if the Two Light Luxury apartment complex located in the Kansas City Power and Light District. These spaces are intended for small businesses, freelancers, and creatives to have a space to work and collaborate. Areas such as lounge seating, hot desks, private offices, conference rooms, multipurpose spaces, and a kitchenette help to serve the multitude of needs for the user.
Hot desking allows for malleable shared work environments and creates a variety of seating types for the user

Key
Social Workspace
Quiet Workspace
Food & Drink
Collaborative Space
Social Space
Private Space


The phonebooths allow for audio and visual privacy in a shared work envirnment
The social and flex area allows for mulitple postures and work settings, as well as a place to relax
Rotating panel doors allow for the conference spaces to be utilized for different privacy levels





Set design operates at the intersection of spatial narrative, and performance, requiring a balance of impact, functional construction, and contextual sensitivity. It involves translating abstract themes and scripts immersive environments that support storytelling accommodating technical and logistical constraints. discipline draws on architectural thinking, material knowledge, and collaborative processes to produce spaces that both expressive and functional.
Developed for a student-lead showcase selected winning production, this set was conceived and executed under significant limitations in time, budget, and The design prioritizes modularity and clarity, enabling assembly and adaptability within a compact theatrical venue. Material choices and construction methods a focus on economy and effectiveness, with each element contributing to the overall atmosphere and narrative function of the performance.

This section highlights selected projects that extend beyond conventional interior architecture, exploring adjacent practices through hands-on design and fabrication. Each work engages spatial thinking through different lenses—whether through narrative-driven set design or material-focused furniture making—reflecting a broader interest in form, function, and construction.


design, of visual sensitivity. scripts into storytelling while constraints. This knowledge, that are as the executed space. enabling quick theatrical reflect element narrative







Furniture design offers a more hands-on and detail-focused approach to working with space. At this smaller scale, the work becomes a more specific lens onto the larger built environment, where decisions about joinery, proportion, and material finish shape how space is experienced up close. It’s a process rooted in making; tactile, iterative, and closely tied to how things are built and used.
Constructed from a single 4’x4’ sheet of plywood, this shelving piece was built using only joinery techniques, without the use additional fasteners. The project explores structural logic and visual simplicity through constraint-based design. By limiting materials and connection methods, the piece emphasizes clean assembly, durability, and spatial clarity, reflecting a disciplined approach to both form and fabrication.

THANK YOU