(Partie 1 du document) Rapport PFE intitulé "THE PATH - Centre d'interprétation à Sidi M'hamed"

Page 1


TH E PATH

centre d’interprétation

République Algérienne Démocratique et Populaire

Ministère d’enseignement supérieur et de la recherche scientifique

École polytechnique d’architecture e d’urbanisme

Spécialité architecture et environnement

Atelier : eco-batiment

Mémoire de fin d’étude

Élaboré par : Mr. KESSAL Abdeldjalil

Mr. MELIANI Mohamed

Encadré par: Dr. MESTOUL Djamel

Mr. ALLOU Abdelwahab

Centre d’interprétation d’architecture et du patrimoine à Sidi M’Hamed -THE PATH2023-2024

Abstract:

Français :

«Dans le cadre de l’atelier éco-bâtiment, notre objectif était de concevoir un bâtiment intégré aux parcours touristiques du Plan Directeur d’Aménagement et d’Urbanisme d’Alger. Notre initiative se positionne comme un point de convergence dans l’expérience touristique, offrant activités et accompagnement aux usagers. Nous avons mis en avant l’architecture et le patrimoine national, tout en visant à transmettre un héritage durable aux nouvelles générations. La démarche environnementale a guidé nos choix techniques, où on a mobilisé les outils technologiques d’aide à la conception notamment l’impression 3D, la réalité virtuelle et la simulation climatique et énergétique pour mieux répondre aux exigences architecturales et environnementales.»

English :

«In the framework of the eco-building workshop, our objective was to design a building integrated into the tourist routes of the Urban Development Master Plan of Algiers. Our initiative serves as a focal point in the tourist experience, providing activities and guidance to users. We emphasized national architecture and heritage while aiming to transmit a sustainable legacy to future generations. The environmental approach guided our technical choices, where we utilized technological tools such as 3D printing, virtual reality, and climate and energy simulation to better meet architectural and environmental requirements.»

Introduction:

Le dimanche à 9h du matin, nous avons quitté l’EPAU et pris le métro afin de nous rendre sur le site prévu pour l’atelier PFE Eco-bâtiment. À notre arrivée, nous avons aisément localisé le site, entamant ainsi notre visite sur le terrain.

Le quartier offre une diversité architecturale captivante, caractérisée par une juxtaposition de bâtiments de styles et d’époques variés, allant des constructions coloniales aux structures modernes, passant par des édifices emblématiques et brutalistes tels que l’immeuble du cadastre de Jean-Bossu et la cathédrale Sacré-Cœur. Cette diversité met en avant un panorama riche et varié, tout en constituant un contraste saisissant entre les bâtiments voisins.

Le site se situe entre la rue Didouche et le quartier Meissonier. Entre ces deux points se trouve une rue mécanique étroite ainsi qu’un escalier urbain. Ces éléments relient les deux zones, mais malgré cette connexion physique, persiste un profond ressenti de disjonction. Cela s’apparente à une tentative timide de relier les deux, sans réellement réussir à instaurer une continuité fluide et naturelle.

Une opportunité de monter sur la terrasse du bâtiment du cadastre nous a été présentée, nous permettant ainsi d’avoir une vue plongeante sur l’ensemble du site et de ses environs. De cette perspective élevée, la compréhension de la disposition spatiale et des relations entre les différentes parties du quartier est devenue plus aisée.

Il est a noté que le quartier est habituellement paisible. Cependant, hormis la présence de l’école primaire et du CEM, cette zone est particulièrement démunie d’activités et d’animation, par opposition au reste du quartier. Ce déficit peut contribuer à un sentiment de monotonie, de négligence et d’isolement, surtout en dehors des heures scolaires où l’activité des élèves pourrait fournir un certain dynamisme. Tous ces aspects relèvent une importance capitale pour toute intervention ou projet futur dans cette zone.

Tous ces aspects sont importants à considérer pour toute intervention ou projet futur dans cette zone.

Diagnostic urbain

Situation géographique:

Notre parcelle d’intervention est localisée dans la commune de Sidi M’hamed qui se situe à environ 2,5 km au sud du centre-ville.

Présentation de la parcelle:

Notre parcelle se situe au cœur du centre Algérois, à proximité de la rue Didouche Mourad, une des rues les plus animées de la capitale, avec une superficie de 4500m². Entourée d’immeubles datant du siècle dernier, vêtus d’une blancheur immaculée, cette parcelle se trouve au cœur d’un des plus beaux endroits de la ville.

Fig 1: Carte de situation

Aperçu historique

Notre parcelle d’intervention se trouve dans la commune de Sidi M’hamed qui se situe à environ 2,5 km au sud du centre-ville.

L’année 1854 marque la construction de l’hôpital Mustapha Bacha par les français.

En 1848 MUSTAPHA, commune riche, fut rattachée à la commune d’ALGER. Avec la construction des quartiers européens, La ville d’ALGER rejoint très vite le faubourg de MUSTAPHA.

historique de la parcelle:

1866 signe l’arrivée de la famille Sauliere qui va acheter plusieurs terrains pour constituer le plateau Saulière.

Fig 2: Carte ancienne de Sidi Mhamed

Accessibilité:

Voie à sens unique

Accès mécaniques

Accès piétons Sens de la voirie

Assiète d’intervention

Fig 3: Schéma d’accessibilité

Mobilité:

Mobilité mécanique:

L’assiette d’intervention

Voie mécanique principale

Arrêt de bus

Ligne de métro à proximité

Ligne de train à proximité

Parking

Mobilité douce:

Rue avec flux piéton important

Voie piétonne

L’assiette d’intervention

Concentration de circulation piétonne

Débouchement des escaliers urbains

-Un flux piéton modéré mais variable en raison du flux provenant du lycée et Cem en face de l’assiette, entraînant une surcharge et des nuisances.

-L’assiette est bien desservie en termes de moyens de transport en commun, avec l’existence d’un multimodal de transport très favorable.

Fig 4: Schéma de mobilité

urbain

Les objectifs du PDAU Horizon 2035/2030:

L’insertion de notre site d’intervention dans la stratégie d’aménagement urbain:

- La restructuration du tissu urbain à travers la revalorisation du centre historique et la requalification des quartiers contemporains.

- La maîtrise de l’étalement urbain à travers la reconquête des espaces centraux et des grandes friches industrielles.

Il est suggéré de structurer le système urbain d’Alger en neuf soussystèmes, hiérarchisés en fonction de leur importance démographique et fonctionnelle.

Le système urbain échelonné est composé :

D’un hyper centre.

D’une aire de planification.

D’un réseau urbain d’agglomérations à requalifier.

Les sous-systèmes sont structurés dans une logique de couronnes d’urbanisation en fonction d’un centre traditionnel fort (Hyper centre).

L’aire d’étude est incluse dans l’espace de l’hyper centre (POS 74) qui apparait comme unique centralité, faisant face à des défis décisifs pour la compétitivité d’Alger, demeurant toutefois noyau central et structurant de toute la Wilaya, en particulier au niveau de la concentration des fonctions de décision et de prestige.

Donc le PDAU vise à rendre l’hyper centre une zone attractive et importante à l’échelle régionale, nationale et internationale.

Hypercentre Niveau 1

Niveau 2

Niveau 3

Niveau 4

Système de centralités :

Insertion de la parcelle dans la stratégie du Pdau:

Pour un hyper centre plus attractif, il est convenu de créer des parcours touristiques attrayants qui couvrent cette zone stratégique. En zoomant sur notre zone d’intervention on remarque qu’il y a deux parcours proposés :

(1) - Le premier parcours passe par le boulevard de Didouche Mourad, un axe commerçant très important qui relie les bâtiments d’une valeur patrimoniale tels que la cathédrale Sacré-Cœur, l’université d’Alger 1 et la gare Agha.

(2) - Le deuxième itinéraire traverse le quartier Meissonier, reconnu pour ses activités commerciales (marchés formels et informels). Il relie des édifices tel que l’hôpital Mustapha Bacha, la mosquée Al-Rahma de manière similaire à la liaiso n entre le quartier avec le deuxième centre historique de la ville, la place du 1er Mai.

Conclusion:

Notre terrain d’intervention a le potentiel de devenir un point de jonction entre les deux parcours dirigeant le flux du Bd Didouche vers le quartier Meissonier et

Fig 9: La carte des parcours touristiques
Cœur
Fig 7: Immeuble de rapport Fig 8: Immeuble de rapport
Fig 12: CHU Mustapha
Fig 5: Schéma d’action

Mixité d’activités:

On constate que le taux d’urbanisation de la zone est de 90% (entre habitat individuel ou collectif et équipements), le potentiel foncier est alors très limité ce qui nécessite une exploitation optimale des terrains disponibles notamment notre terrain d’intervention. «source: POS 74 ».

Fig 13: Carte des activités

Contexte social:

État du bâti:

On remarque que les maisons individuelles situées en face de notre terrain d’intervention sont en mauvais état en raison de la nature du sol qui a accéléré la dégradation de ces dernières. Notre terrain a subi des opérations de démolition graduelle des maisons similaires entre 2004 et 2008.

Gabarits:

On constate que la fourchette des gabarits présents dans notre site varie entre RDC et R+5 avec un bâtiment (L’agence du cadastre) qui franchit le R+9 et la Cathédrale Sacré-Cœur qui excède 35m de hauteur. Avec 46% des gabarits avoisinant le R+4 et R+9. Il y a ainsi la possibilité d’aller en hauteur sans encombre.

Le nombre total des habitants de la commune de Sidi M’hamed est de 67873 habitants

Avec un taux d’accroissement de -2,9%. « Source RGPH 2008 »

Il est observé que la tranche d’âge la plus dominante est celle des (20-35 ans) comprenant un pourcentage de 35%, suivi de près par la tranche des (0-19 ans) avec 25%. De ce fait, la population jeune est dominante dans notre site.

Source: RGPH 2008

Fig 14: Carte des gabarits et de l’état de bâti
Fig 15: Diagramme des tranches d’âge

Les nuisances sonores:

Source Evaluation

Circulation mécanique

Activités commerciales

Forte nuisance.

Forte nuisance.

Equipements éducatifs

Forte nuisance dans des moments precis de la journée

Constat : Hormis la circulation mécanique, ainsi que les activités commerciales et les écoles, aucune autre source de nuisance sonore n’est remarquable.

Fig 16: Un schéma qui montre les position du sonomètre
Fig 17: Les graphes obtenu par le sonomètre

Le climat

Les masques solaires:

La période hivernale:

La période estivale:

Durant toute l’année à l’exception du mois de Juin : la façade sud est protégée grâce aux masques solaires (en couleur verte) fournis par les bâtiments environnants. On a donc la possibilité d’ouvrir sur la façade sud.

Source: https://www.meteoblue.com

Fig 19: Courbe de température
Fig 20: Les masques solaires
obtenus par le logiciel cliamte consultant (Décembre - Juin)
Fig 18: Les masques solaires sont obtenus par le logiciel «Ladybug tools»

La façade Sud:

Durant toute l’année à l’exception du mois de Juin : la façade Sud est masquée de 11h à 14h

La façade Sud-Est:

Entre Juin et Décembre : la façade est exposée au soleil de 8h à 11h avec un angle (40°-75° H) et (30° et 70° V)

Conclusion:

La façade Ouest: Durant l’année la façade est masquée de 14h30 à 17h

La façade Sud-Ouest:

Entre Juin et Décembre : la façade est exposée de 13h30 à 14h30 avec un angle de (60°-75° H) et (65°20°V)

Fig 21: Schémas représentatifs des masques solaires durant la journée

1- Pendant l’hiver les façades sont masquées, il est donc essentiel de tirer pleinement parti des sources de chaleur disponibles.

2- Le besoin de diminuer les effets de surchauffe sur la façade Sud-Ouest.

Simulation des vents avec le logiciel Autodesk Flow Design:

Période hivernale : (Octobre - Avril)

Octobre - Avril: Niveau du terrain

FIg 22: La rose des vents obtenue par le logiciel «Ladybug tools»

Octobre - Avril: Niveau +28m

Pendant l’hiver, on constate que notre terrain est traversé par un couloir de vents avec une vitesse qui varie entre 14 et 18m/s provenant du Sud-Ouest vers le Nord-Est.

La vitesse du vent est plus importante pour un gabarit de R+6. Il est donc impératif de protéger la façade Sud-Ouest durant l’hiver.

Période estivale : (Avril - Octobre)

Avril - Octobre: Niveau du terrain

Avril - Octobre: Niveau +28m

Durant la période estivale, les vents dominants proviennent du Nord-Est avec une vitesse qui varie entre 14 et 18m/s, suivis d’une formation de tourbillons d’air. Au niveau du R+6 l’intensité du vent est plus importante (25 m/s).

La forme du bâtiment doit être conçue de manière à exploiter ce flux pour l’aération naturelle des espaces intérieurs.

Fig 23: La rose des vents obtenue par le logiciel «Ladybug tools»

Les stratégies: Après

Avant

- Sans la mise en place d’autres stratégies, le chauffage et la climatisation artificielle consomment jusqu’à 68% de la durée totale confortable.

- La ventilation naturelle peut réduire la durée de climatisation jusqu’à sa moitié. - On constate que les gains solaires directes peuvent diminuer la durée de l’utilisation du chauffage de 40%.

Fig 24: Schéma capitulatif des stratégies environnementales

Thématique et programmation architecturale

Centre d’interpretation de l’architecture et du patrimoine

Choix de la thématique:

Recommendation du PDAU horizon 2030/2035

Création des parcours touristiques

Notre site comme liaison entre deux parcours touristiques

Le tourisme culturel – défini par l’Organisation mondiale du tourisme (OMT) comme étant un tourisme centré sur les attractions et produits culturels – est l’un des segments de l’industrie touristique qui connaît la croissance la plus rapide, et représente, selon les estimations, 40 % de l’ensemble du tourisme mondial. Il concerne notamment les sites patrimoniaux et religieux, l’artisanat, les arts de la scène, la gastronomie, ou encore les festivals et autres événements.

La pandémie de COVID-19 a freiné le tourisme culturel dans sa lancée. Tout au long de l’année 2020, les arrivées internationales ont subi une baisse de 74 % dans le monde entier.

Source: À l’horizon | Remettre le tourisme culturel sur les rails (Article de l’UNESCO)

Le tourisme culturel est également exposé au risque de la destruction des bâtiments patrimoniaux pour des diverses raisons (naturelles ou humaines)

Une population jeune

Situé à l’intersection des deux parcours touristiques prévus dans le PDAU

Potentialités du site

Une richesse architecturale et patrimoniale

Fig 25: Rappel du résultat du diagnostic urbain

Choix de L’équipement:

Centre D’interpretation de l’architecture et du patrimoine: (CIAP)

« L’interprétation renvoie à l’ensemble des activités destinées à augmenter la conscience publique et à renforcer sa compréhension du site culturel patrimonial. Ceci peut inclure des publications, des conférences, des installations sur site, des programmes éducatifs, des activités communautaires.

… l’interprétation de la signification des sites est une partie intégrante de la démarche de Conservation »

La Charte d’Ename (2007) du Comité scientifique de l’ICOMOS sur l’interprétation et la présentation

Statut type du Centre D’interpretation à caractère muséal:

Le centre d’interprétation à caractère muséal est une institution destinée à présenter au public les clés de lecture, d’interprétation et de restitution d’événements historiques, de techniques et de paysages particuliers, à l’aide de supports muséographiques et /ou médiatiques.

Décrit exécutif n° 11-352, Article 06 – Page 6

Analyse d’exemples:

Exemple local:

Le Centre présente au public les clés de lecture, d’interprétation et de restitution de l’histoire et du patrimoine des costumes traditionnels algériens et des pratiques culturelles musulmanes. Il recourt à des méthodes didactiques et pédagogiques à travers des expositions et des activités axées sur le costume et les cérémonies, ainsi que sur leur rituel, leur symbolique et leur cérémonial. Des reconstitutions virtuelles d’événements liés au cycle de vie, de la naissance à la mort, sont également proposées

Décrit exécutif 12-301, article 03, 04 et 05, page 06

Le Centre d’Interprétation Culturelle (CIC) comprend plusieurs pavillons, dont une salle principale en forme de dôme, couvrant plus de 500 m², abritant une exposition permanente de costumes traditionnels. Il comprend également le Palais royal, réalisé pour l’événement «Tlemcen 2011, capitale de la culture islamique», ainsi qu’un théâtre et d’autres espaces à l’intérieur de l’enceinte historique d’El Mechouar.

Le Centre d’interprétation du costume traditionnel algérien de Tlemcen (CIC) a été sélectionné pour faire partie du parcours touristique proposé aux délégations étrangères lors de la 19ème édition des Jeux Méditerranéens à Oran en 2022. Cette inclusion dans un parcours touristique préétabli est une pratique déjà approuvée par l’état Algérien, légitimant ainsi notre choix programmatique.

Source: www.aps.dz

Fig 28: Photo de l’exposition permanente des costumes
Fig 26: Photo de l’exposition permanente
Fig 27: Palais El Machouar

Exemples Internationaux:

1- le ciap d’alésia: (2787m²) 2012 – Bernard Tschumi

Après l’officialisation du programme des centres d’interprétation d’architecture et du patrimoine en France en 2004, le CIAP d’Alésia vient comme premier exemple de ce type de projets, il raconte l’histoire d’alésia et commémore la bataille historique entre Julius Cesar et les Gaulois en 52 Av J.C.

Nous remarquons la programmation de l’équipement en 3 entités : -Exposition et ateliers - Détente -Administration

2- UT Visual Arts Center : (2787m²) 2009

www.tschumi.com

Austin, United States, Lake|Flato Architects, Cette réutilisation adaptative de l’ancien espace du Blanton Art Museum crée un centre communautaire pour le Département d’art et d’histoire de l’art. L’espace sera utilisé comme : espace d’exposition pour la présentation des travaux des professeurs et des étudiants, des bureaux administratifs pour le département et quatre studios

Fig 29: Plans du RDC et 1er étage
Fig 32: Organigramme spatial
Fig 31: Plan du RDC

3- Fazer Visitor Center: (3000 m²) 2016

Un projet situé à Vantaa, Finland. Les expositions présentent à la fois le patrimoine de la fabrication du chocolat et les orientations futures. Des événements tels que la fabrication du chocolat ou des cours de cuisine peuvent être dispensés. Tous les espaces publics du centre d’accueil sont situés au rez-de-chaussée, ce qui permet un accès facile et une flexibilité de tous les espaces.

https://www.visitfazer.com

4- Green Belt Center : (1000m²) 2015

Sur une superficie de plus de 1000 mètres carrés dans les locaux de Windhaag près de Freistadt, en Haute- Autriche, les expositions scientifiquement fondées couvrent de manière impressionnante tout, de la nature et de l’histoire à l’avenir de la région. Parallèlement, le Centre Ceinture Verte fait office de centre d’information, d’agence de voyages proposant des offres touristiques mais aussi de lieu et de magasin de vente de produits régionaux ainsi que des ateliers de travail artisanal local. La maison forestière est sur le point de devenir une partie intégrante du tourisme dans la région de Mühlviertel et Danube-Moldau.

https://architektur.hoerbst.com

Fig 33: Organigramme spatial
Fig 34: Plan du RDC
Fig 35: Plan du RDC
Fig 36: Organnigramme spatial

Programmation architecturale:

Les missions:

Le centre d’interprétation à caractère muséal est chargé des missions suivantes :

1- Sensibiliser aux enjeux du patrimoine culturel et/ou naturel par tout moyen médiatique et scénographique.

2- Mettre à la disposition du public les outils didactiques et pédagogiques nécessaires à la compréhension des sujets et thèmes d’interprétation. 3- Développer des ateliers pédagogiques accessibles au jeune public destiné à éveiller leur conscience et à les initier au patrimoine culturel et/ ou naturel.

Décrit exécutif n° 11-352, Article 30– Page 9

Sujets :

- Evènements historiques - Techniques - Paysages particuliers

En outre, le centre doit accompagner les parcours touristiques en fournissant les services de base tels que (réception, restauration, divertissement, repos, orientations, ...)

Pour attirer la population jeune il est important de moderniser l’expérience de l’interprétation et de l’apprentissage par l’exploitation des nouveaux moyens technologiques.

l’équipement

Fig 37: Les établissements scolaires comme source de flux

Le projet est composé de quatres entités programmatiques comme indiqué dans le tableau suivant:

Entités

1- Exposition

2- Apprentissage

Objectifs Espaces

- Présentation des œuvres: Mettre en valeur les œuvres d’art, les artefacts historiques et les maquette.

- Interprétation: Fournir des informations.

- Immersion: Accueillir des activités immersives.

- Elaborer des programmes éducatifs.

- La production de supports visuels, de documents écrits, de vidéos éducatives et d’autres ressources pédagogiques.

- Coordonner des événements spéciaux tels que des conférences, des colloques, des projections de films ou des débats.

- Fournir des orientations.

3- Services:

4- Gestion:

- Fournir les services de base pour les touristes et les visiteurs.

- Créer un moment de pose dans le parcours.

- Gérer les ressources humaines et matérielles.

- Stocker, préserver, restaurer, examiner... les œuvres.

- Salles d’exposition temporaires et permanentes.

- Salle de réalité virtuelle et immersion numérique.

- Salle de conférence / Auditorium.

- Salles d’ateliers.

- Bibliothèque / Centre de documentation.

- Cafétéria.

- Restaurant.

- Magasins de souvenirs.

- Librairie.

- Bureaux.

- Salles de réunion.

- Réserves et stockage.

- Laboratoires.

- Atelier de restauration.

- Les archives.

Les Usagers:

2- Les touristes.

Explorer

1- Les habitants. Particulièrement pour la population jeune (moins de 40ans) qui constitue 60% de la population de la commune.

Se Sensibiliser, Apprendre

Consommer, reposer...

Fig 38: Organnigramme des entités programmatiques
Fig 39: Organnigramme fonctionnel

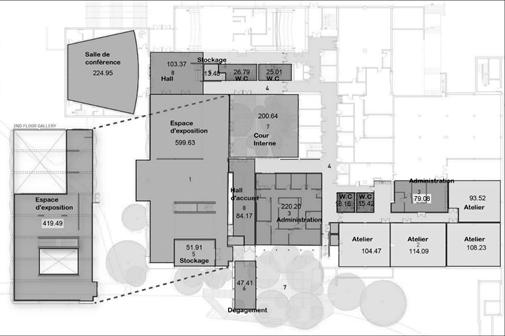
Tableau surfacique des espaces:

Entités

Exposition

d’apprentissage:

Public

Exposer Vulgariser

Réception 1 (RDC)

252 Repérable, ouvert, accessible, aération naturelle et artificielle, éclairage naturel et artificielle

Espaces ouverts, éclairage maitrisé, humidité maitrisée, température maitrisée, mobiliers pratique

Espaces ouverts, éclairage maitrisé, humidité maitrisée, température maitrisée, mobiliers pratique

Espaces ouverts, éclairage maitrisé, humidité maitrisée, température maitrisée, mobiliers pratique

et aire de

Locaux techniques:

Isolation et éloignement des espaces recevant de public pour éviter tout gène phonique, accès vers l’extérieur

Projet architectural

Concept architectural: «Le parcours»:

Prévoir une liaison directe qui relie la rue Didouche Mourad au quartier Meissonier, traversant notre terrain autour duquel orbite le parcours de notre projet.

Le projet est sous forme d’un parcours qui relie les deux accès et qui se divise en deux entités (Exposition + Apprentissage et l’entité des services) avec un moment de pause au centre).

Le moment de pause au centre correspond à l’emplacement du mémorial du Moudjahid Khelifa Bou-Khalfa déjà existant dans le site.

Notre projet adopte ainsi une forme linéaire en Zig-zag traversée par un volume direct et droit, qui constitue le volume de la distribution et la colonne vertébrale du projet.

Fig 40: Schéma récapitulatif

Genèse du projet:

1-

Créer des vides:

Créer des volumes de vide qui correspondent aux dégagements des accès du côté de Didouche Mourad et du côté de la rue Mennani ainsi que l’emplacement du mémorial de Khelifa Boukhalfa.

2- Délimiter:

Délimiter les vides créés par un volume linéaire qui matérialise le concept du parcours qu’on a adopté pour le projet. Ce volume suit la forme de la parcelle. Il est obtenu par des lignes parallèles et perpendiculaires aux limites du terrain.

3- Aligner:

Aligner la hauteur du volume avec les bâtiments environnants. La disparité de gabarits dans les différents côtés confère un effet d’inclinaison au volume et offre la possibilité de créer une terrasse végétalisée offrant des vues panoramiques sur le quartier et ses bâtiments emblématiques.

4- Traverser:

Traverser le volume en parcours par un second volume droit, reliant les deux accès, et servant de colonne vertébrale du projet. Appliquer une inclinaison verticale et horizontale afin qu’il se distingue comme élément d’appel sur la rue Mennani.

Projet architectural

Implantation:

L’implantation du projet est sur deux platformes avec une différence de 4m. ce qui permet d’avoir deux accès sur deux niveaux différent (Le premier sur la rue Mennani et le deuxième sur la rue Nocard. Le RDC est semi-enterrée où on va positionner les espaces de la gestion (réserves, atelier de restoration, archives, laboratoires,...) Cette partie du bâtiment reçoit l’éclairage et l’aeration via les patios.

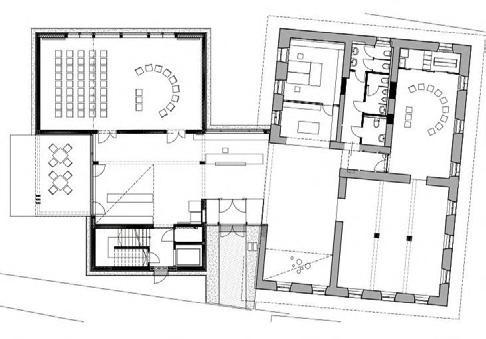
Répartition fonctionnelle

L’organisation fonctionnelle de notre projet est assurée grâce à une différenciation au niveau de la volumétrie. Le volume opacifié contient les espaces de l’exposition, les ateliers, les salles de réalité virtuelle... Tandis que le volume de verre central pénètre le premier volume et accueille les espaces de distribution verticale et horizontale et les moments de pose et repos, constituant ainsi l’échine du projet. Il répond aussi aux besoins bioclimatiques tels que l’éclairage et les vues extérieures.

Fig 41: Schéma de l’implantation
Fig 43: Coupe schématiques de la programmation
Fig 42: Schéma de répartition des entités programmatiques

Répartition des espaces:

Turn static files into dynamic content formats.

Create a flipbook
Issuu converts static files into: digital portfolios, online yearbooks, online catalogs, digital photo albums and more. Sign up and create your flipbook.