(Partie 2 du document) Rapport PFE intitulé "THE PATH - Centre d'interprétation à Sidi M'hamed"

Page 1


Espace d’exposition:

Au premier étage, nous avons réservé un espace spécifique pour les expositions temporaires. Cette décision stratégique vise à rapprocher ces expositions du Public, les incitant ainsi à découvrir les collections en constante évolution à travers chaque événement. De plus, cette proximité avec les réserves et les accès facilite le processus de remplacement des collections.

En ce qui concerne l’exposition permanente, son agencement vise à offrir une expérience immersive et pédagogique aux visiteurs. Structurée en rubriques organisées chronologiquement, elle trace un parcours à travers l’histoire, mettant en lumière les différentes époques et styles architecturaux. Nous avons soigneusement conçu des aménagements qui évoquent ces périodes historiques, utilisant des décors et des installations qui imitent ces styles architecturaux.

Fig 44: Images de synthèse de l’espace de l’exposition

Projet architectural

Les salles de réalité virtuelle (vr):

Des salles de réalité virtuelle (VR) ont été intégrées pour enrichir l’expérience d’interprétation et d’apprentissage. Ces espaces immersifs repoussent les limites de la perception sensorielle en transportant les participants dans des mondes numériques captivants. Grâce à cette technologie, les visiteurs ont la possibilité d’explorer de manière interactive des environnements historiques, scientifiques ou artistiques. Ces salles offrent une expérience unique qui engage les sens et stimule l’imagination, permettant ainsi aux apprenants de vivre des expériences mémorables et authentiques.

Le mémoriel:

L’exposition débute avec une rubrique dédiée au martyr «Khelifa Boukhalfa», qui est associée au patio situé précisément à l’endroit où il a été tragiquement assassiné. Aujourd’hui, cet emplacement mémoriel a été considérablement délaissé. Des déchets ont été jetés de façon négligente, et un figuier a pris racine, recouvrant partiellement le mémorial.

Face à cette désolation, nous avons pris la décision de préserver le figuier tout en redonnant vie au site à travers une installation artistique innovante. Cette installation se constitue de blocs de béton disposés de manière linéaire, chacun portant des inscriptions et des informations sur le martyr. Les blocs, alignés de façon à obstruer partiellement la vue vers le patio, incitent le visiteur à s’approcher par curiosité et à avancer pour en savoir davantage. En explorant les inscriptions sur les blocs.

Fig 45: Images de synthèse de la rubrique d’exposition «Khelifa Boukhalfa»
Fig 46: Images de synthèse de l’installation artistique du mémoriel

Conception de l’enveloppe:

Pour élaborer cette conception, nous avons entrepris une analyse minutieuse des dimensions et des proportions des édifices environnants. À travers cette lecture attentive, nous avons élaboré une trame, utilisant ces dimensions comme point de départ. Sur cette trame, chaque facette a été soigneusement étudiée, à l’aide de lignes tracées depuis les points de fuite sur les quatre côtés. L’intersection de ces lignes a donné naissance à des ouvertures triangulaires, façonnées selon les besoins d’éclairage des espaces intérieurs.

Dans la conception de l’enveloppe, nous avons opté pour une décision stratégique d’adopter une dualité entre l’opposition et la transparence, ayant pour objectif de souligner le jeu volumétrique de manière saisissante. Cette approche se matérialise par l’utilisation métaphorique des pierres précieuses.

Le volume opaque évoque ainsi un rocher robuste, dissimulant en son sein la préciosité des gemmes. Les fissures discernables dans cette masse impénétrable offrent des aperçus intrigants vers l’intérieur, incitant à la découverte.

Déssiner les ouvertures aux intersections

Fig 47: Métaphore de la pierre précieuse
Dégager les dimensions et les proportions
Relier les points de fuites
Déssiner la tramme

La simulation est réalisée avec le logiciel «Ladybug Tools» qui permet d’intégrer la géométrie du projet dans d’autres logiciels d’analyse comme «OpenStudio», «EnergyPlus», «OpenFoam» et «Radiance» qui utilisent les données climatiques d’Alger au format EPW pour fournir des simulations en temps réel de l’éclairage, l’énergie, la dynamique des fluides et la température. Dans le but d’assurer un confort annuel tout en réduisant la consommation d’énergie et les coûts d’exploitation d’un bâtiment, ainsi que son empreinte carbone, divers dispositifs climatiques ont été intégrés, notamment des patios, des brise-soleils, une terrasse végétalisée et des panneaux photovoltaïques, dès la phase de conception.

Fig 48: Axonométrie schématique des dispositifs environnementaux utilisés

Le choix de la forme:

Le choix de la forme du bâtiment est guidé par la direction et le flux des vents. Les décrochements sur la façade nord dirigent les vents dominants vers le centre du bâtiment en verre, favorisant leur circulation à l’intérieur. En revanche, la façade est régie comme une barrière contre les vents d’hiver du Sud-Ouest, assurant la protection du bâtiment

La figure à gauche montre les heures d’exposition au soleil des surfaces du volume. L’orientation Nord pour la grande façade vitrée (couleur verte) évite tout risque de surchauffe ou d’effet de serre car elle reçoit peu d’ensoleillement. Ainsi, il devient possible d’ouvrir.

Fig 49: La rose des vents (Avril - Octobre)
Fig 52: Les horaires de l’ensoleillement (AvrilOctobre) vue du Nord
Fig 53: Image de synthèse qui montre le volume de verre sur la façade Nord
Fig 50: La rose des vents (Octobre - Avril)
Fig 51: Simulation des vents et leur interraction avec le volume

Stratégie de durabilité

Les ouvertures sur le sud:

Au niveau de la façade Sud, les bâtiments voisins ont créé un masque solaire, il est donc possible d’ouvrir tout en restant protégé de l’ensoleillement excessif.

Les patios:

Pour étudier l’impact des patios (en vert) sur la circulation de l’air et le transfert de chaleur, nous avons réalisé la simulation suivante : À l’étage de l’exposition, avec une température initiale de 35°C : L’air froid entre par les ouvertures du volume en verre, alignées avec les vents dominants. Cela réduit la chaleur à 29,81°C, mais l’effet est limité par l’absence de courants d’air.

Avec l’introduction des patios : Les courants d’air créés par les patios dirigent l’air froid vers la quasi-intégralité de l’étage, permettant une régulation plus équilibrée de la chaleur.

Fig 56: L’effet de la circulation de l’air sur la temperature interne
Fig 54: Les horaires de l’ensoleillement (Avril - Octobre) vue du Sud
Fig 55: Image de synthèse qui montre les masques solaires sur les ouvertures de la façade Sud

Stratégie de durabilité

La terrasse végétalisée et les panneaux Photovoltaïque:

Analyse de l’éclairement intérieur:

L’analyse de la radiance évalue la quantité d’énergie (chaleur) reçue par les surfaces du volume, exprimée en KWh/m². La terrasse (en rouge) reçoit une quantité significative d’énergie, allant jusqu’à 957 kWh/m², pouvant ainsi impacter le confort intérieur. Pour atténuer la chaleur traversant le plafond, nous recommandons l’utilisation d’une toiture végétalisée. Cette analyse permet également d’identifier les emplacements optimaux pour l’installation des panneaux photovoltaïques.

58: Étude de l’éclairement

Fig 59: Image de synthèse qui montre l’ambiance lumineux dans les espaces de l’exposition

Selon les exigences du cahier des charges concernant les musées, l’éclairement des espaces d’exposition doit se situer entre 150 et 200 lux pour les objets sensibles tels que les peintures, et entre 50 et 80 lux pour les objets très sensibles, tels que les tapisseries, les dessins et les spécimens d’histoire naturelle. L’analyse d’éclairement permet de vérifier le respect de ces normes en identifiant :

Une zone pour les collections très sensibles (en bleu foncé).

Une zone pour les collections sensibles (en bleu clair).

Fig 57: Etude de la radiation
Fig

Analyse énergétique

La modélisation énergétique à travers l’outil «Honneybee» (qui communique avec le logiciel OpenStudio et EnergyPlus), permet de calculer la consommation énergétique du bâtiment en fonction de la géométrie et de la programmation des activités du projet, ainsi que des émissions du CO² et la production d’énergie (par les panneaux Photovoltaïques) nous permettant ainsi de réaliser une comparaison pour examiner l’efficacité des dispositifs environnementaux.

Un 1er scénario: sans les dispositifs:

Un 2ème scénario: avec les dispositifs:

Dans le premier scénario: l’énergie de la climatisation (en rouge) atteint 189548 KWh, l’énergie totale consommée par le bâtiment est de 1123294 KWh (112 KWh/m²) et les émissions CO2 sont d’ordre de 52.045 Kg/m². Dans le deuxième scénario, l’énergie de la climatisation est réduite jusqu’à 153226 KWh, l’énergie totale est de 951944 kwh (95.251 kwh/m²) et de 38.086 Kg/ m² pour les émissions de CO2.

La production de l’électricité par les panneaux photovoltaïques est de 78895 KWh. (Voir l’annexe : P11). La simulation montre ainsi que les dispositifs climatiques utilisés ont permis la diminution de la consommation énergétique et des émissions de CO2 jusqu’à 26%.

Fig 60: Le modèle analytique sur «Honneybee»
Fig 61: Les résultats du calcul énergétique
Fig 62: Image de synthèse qui montre une ambiance nuit du projet

Système constructif

En raison de sa portée maximale de 9 mètres, notre projet est d’une structure en béton armé, avec des planchers en caissons pour éviter une grande retombée de poutres, ces planchers offrent également des avantages esthétiques avec des motifs variés, améliorant ainsi l’aspect intérieur de l’ouvrage.

Le béton, disponible localement en Algérie, offre des coûts réduits et des délais de livraison plus courts par rapport à l’acier, qui doit être importé à un coût élevé avec une empreinte carbone plus importante.

En conclusion, le béton armé répond à nos exigences de performance, de coût et de durabilité environnementale, soutenant également l’économie locale tout en contribuant à une construction durable et esthétique.

Notre structure est divisée en trois entités structurelles, comme illustré dans les plans et figures.

Fig 64: Vue axonométrique de la structure du bâtiment
Fig 63: Schéma des entités structurelles
Fig 65: Schéma qui montre les entités structurelles et l’emplacement des joints

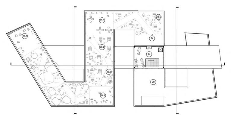
Dossier graphique:

1- Accueil et réception 68m²

2- Aire d’attente et rassemblement 92m²

3- Auditorium 228m²

4- Patio 56m²

5- salle plénière 102m²

6- Infirmerie 20m²

7- Sanitaires 21m²

8- Exposition permanente 56m²

9- Monte-charges 12m²

10- Patio du mémoriel 92m²

11- Atelier de restoration 146m²

12- Laboratoire 106m²

13- Labo de photographie 75m²

14- Archives 58m²

15- Réserves 214m²

16- Poste de surveillance 51m²

17- Local chaufferie 21m²

18- Local groupe éléctrogène 20m²

19- Bache à eau 20m²

20- Poste de transformation éléctrique 35m²

1- Accueil et réception

2- Exposition temporaire Salle de VR

4- Patio

5- Aire de pose et repos

Boutiques

1- Exposition permanente

2- Réserves

3- Aire de pose et repos 4- Patio

Café-restaurant 236m²

1- Exposition permanente

2- Réserves

3- Aire de pose et repos

4- Patio

5- Aire d’attente

6- Service des relations extérieurs 33m²

1- Atelier miniatures 146m²

Bibliothèque 320m²

Aire de pose et repos 209m²

Atelier techniques de construction vernaculaires 4- Patio 56m²

Stockage 119m²

Atelier maquettes 155m²

Coupe de détail

La maquette D’étude:

Durant la phase de conception et d’examen approfondi de notre projet, nous avons eu recours à des maquettes d’étude, à la fois physiques et numériques, afin d’explorer avec précision la volumétrie et la composition de notre création. L’intégration de technologies telles que l’impression 3D et le découpage laser nous a permis de transcender les limites traditionnelles et de faire libre cour à notre imagination quant aux contraintes de réalisation habituelles. La maîtrise de ces outils nous a offert une compréhension plus approfondie de notre projet, nous permettant ainsi de manipuler les formes et les structures avec une liberté totale.

Parallèlement, l’utilisation de maquettes numériques et de la réalité virtuelle a enrichi notre expérience de conception. Grâce à ces outils immersifs, nous avons pu plonger au cœur de notre projet, et ressentir chaque espace avec une profondeur et une sensibilité accrue. Cette approche nous a offert une perspective inestimable, nous permettant d’affiner chaque détail et d’assurer une harmonie optimale dans notre création.

Conclusion:

Dans la conception de notre projet, notre objectif primordial était de l’inscrire harmonieusement dans les parcours touristiques prévus dans le Plan Directeur d’Aménagement et d’Urbanisme (PDAU) d’Alger. Nous avons envisagé notre initiative comme un point de jonction, une étape essentielle de l’expérience touristique, offrant non seulement des activités de base, mais également un accompagnement précieux sous forme d’orientations et de guidage.

Nous avons également cherché à faire de notre projet un véritable joyau, mettant en lumière l’architecture et le patrimoine national. Parallèlement, nous souhaitons offrir une expérience d’apprentissage enrichissante aux nouvelles générations, dans un but louable de contribuer à la préservation de notre héritage national. Cette démarche, fondée sur le respect de l’environnement, était au cœur de nos préoccupations.

Pour atteindre ces objectifs ambitieux, nous avons mobilisé tous les moyens à notre disposition, notamment les techniques modernes de conception, de modélisation et de simulation. L’impression 3D, la réalité virtuelle, ainsi que les logiciels de simulation climatique et énergétique se sont avérés être d’utilité précieuse au sein de notre démarche.

C’est avec une humble reconnaissance envers nos professeurs, dont les orientations et les recommandations ont été d’une valeur inestimable, que nous présentons notre projet. Nous sommes conscients de la responsabilité qui nous incombe et nous espérons que notre humble tentative répondra de la meilleure des manières aux objectifs que nous nous sommes fixés. Nous espérons sincèrement avoir réussi à relever ce défi ambitieux.

Photos synthèse:

JOUR: nuit: interieur: Terrasse:

Bibliographie:

- Plan d’occupation des sols POS 75 Sidi M’hammed

- Décrit exécutif 12-301, article 03, 04 et 05, page 06

- Ministère de la culture, NORMALISATION DES INFRASTRUCTURES ET EQUIPEMENTS CULTURELS

- A Companion to Museum Studies Edited by Sharon Macdonald, 2006, Blackwell Publishing

- Creating Exhibitions Collaboration in the Planning, Development, and Design of Innovative Experiences Polly McKenna-Cress | Janet A. Kamien, WILEY, 2013

- FRENCH MUSEUM ARCHITECTURE, Planning Editor «ICI CONSULTANTS», English Translator «Alison CULLIFORD»

- Expositions et parcours de visites accessibles, Ministère de la Culture et de la Communication français.

- Museum Experience Design Crowds, Ecosystems and Novel Technologies, Arnold Vermeeren • Licia Calvi, Amalia Sabiescu, Springer, 2018

- MUSEUM MAKING, Narratives, Architectures, Exhibitions, Edited by Suzanne Macleod, Laura Hourston Hanks and Jonathan Hale, Routeldge, 2012 London and New York

- Museum Space, Where architecture Meets Museology, Kali Tzortzi, University of Patras, Routeldge, 2015, Greece

- Museum Thresholds The Design and Media of Arrival, Edited by Ross Parry, Ruth Page and Alex Moseley, Routeldge, 2018, London and New York

- New Forms, Philip Jodidio, Architecture in the 1990, Tashen

Webographie:

- https://www.meteoblue.com

-https://brico-ressources.fr/eco-confort/confort-thermique/5-facons-ecologiques-de-rajouterde-la-masse-thermique-a-votre-maison/

- https://www.ons.dz/ www.tschumi.com

www.aps.dz

Turn static files into dynamic content formats.

Create a flipbook
Issuu converts static files into: digital portfolios, online yearbooks, online catalogs, digital photo albums and more. Sign up and create your flipbook.
(Partie 2 du document) Rapport PFE intitulé "THE PATH - Centre d'interprétation à Sidi M'hamed" by Mohamed Meliani - Issuu