Urban Design & Architecture Portfolio

Page 1

COLLYHURST TOWER YearIIIFinalProject ACADEMIC WORK:

CONSTRUCTION FIRM HEADQUARTERS Architecture&InteriorDesign

ALLEGRIA FAMILY HOME Architecture&LandscapeDesign

AL ULA OLD TOWN BOUTIQUE HOTEL MasterPlan&UrbanDesign

CONTENTS
URBAN DESIGN: .02 .03 .04 .06 MOHAMED SAKR PORTFOLIO COSMIC VILLAGE Business Development & Urban Design .09
ARCHITECTURE:

COLLYHURST TOWER

BRIEF:

In the ‘Infrastructure Space’ Year 3 studio atelier we researched the socioeconomic, environmental, and infrastructural frameworks of space. The site was an obsolete Telephone Exchange which had fallen into disuse due to technological obsolescence. The area’s residents faced increasing risk from displacementduetogentrifyingregenerationprojects.

APPROACH:

I created a solid vertical core from which a dynamic set of functional spaces would grow organically over time. This process, inspired by the metabolist movement, included a regenerative vision for the surrounding landscape. I created a masterplan which includes housing, an industrial zone and a new Collyhurst town-centre. The tower itself emerges deformed and imperfect, a satirical critique of the bland residential towers of Manchester’s neoliberal development.

CONSTRUCTION FIRM HEADQUARTERS

BRIEF:

The client wanted a relaxed and calming office space that would be a permanent workspace for 60+ employees. The space also needed to represent thecompany’sprogressivebrandanditsuniqueprofessionalcultureandethos.

APPROACH:

A ground floor open working space welcomes users into the space with custom built-inworkstations,allequippedwithstoragespacesandlightingfixtures.The workbenches are organized along a modular grid, and flank a snaking staircase which leads up to the mezzanine. The mezzanine contains private offices for the CEO, management and the accounting department. A grand double-height entrance welcomes users into the space while wooden partitions create privacy for the workers. The structure is a simple steel beam system with horizontal bracing that allow for an exceptionally long-span structure. Ancillary spaces like toiletsandakitchenettearestackedtothebackendofthegroundfloor.

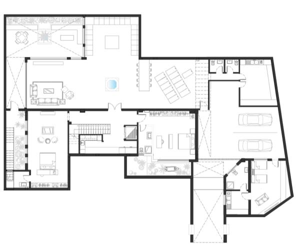
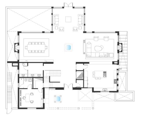
ALLEGRIA FAMILY HOME

BRIEF:

The client wanted an elegant home that him and his wife could retire in. They felt inspired by the motifs and forms of Islamic architecture and they needed a home that could, at a laterdate, besplit into two separateapartments for each oftheir children (a 1ST floor apartment and basement apartment) witha shared groundlevel.

APPROACH:

DrawingfromthevernacularheritageofMamluk Cairo,thedesignofthishome’s external form was informed from within. It respects, with humility, the aesthetic and structural properties of the earth’s natural materials. I worked with the existing form when possible to create a design that is both delightful and functional. The facades employ a confluence of simple natural materials; clayplaster, glass and wood detailing. The facades employ a confluence of simple natural materials; clay-plaster, glass and wood detailing. A pebbled vegetable garden, domed annex, shaded and exposed finaa’s (Dividing Courtyards) and waterfountainsallsurroundthehome.

Basement Plan Ground Floor Plan First Floor Plan

AL ULA OLD TOWN BOUTIQUE HOTEL

BRIEF:

OurscopefortheOldTownBoutiqueHotelismainlythemasterplanandzoning.

The hotel needs to be designed and regenerated in accordance with the Al Ula ‘Journey Through Time’ vision. It is a critical part of the Cultural Oasis District (COD) and will activate the main Old Town commercial spine called the Incense Road.

APPROACH:

We approached this project as an urban regeneration project with conservation at its core. As such, an adaptive re-use methodology guidebook will be developedandstrictlyadheredtobyallparticipatingpartiesinordertopreserve the heritage site and ensure its longevity throughout design, construction and use. Key allocations will be made to integrate the local community into the hotel’s user experience strategy. The five key attractions of the hotel driving our design development are as follows: natural beauty, history and heritage, luxury and excellence, and archeological tourism.

Main Entrance

Tantoura Square

Back of House Administrative

Front of House

Recreational

Residential

Back of House

Recreational

Floor
Ground
First Floor
Residential

Adaptive Re-use Methodology Guidebook:

Sample of Research & Findings

Void
Sky) Solid
(Open To
Hotel Site Boundary
Al Ula Al Ula Old Town Boutique Hotel Site
Zoning Main Entrance Kitchen Block Spa Quarter Restaurant Admin Block Events Space Service Drop-Off Multaqa Tearoom Lobby Front Desk Back of House Events Space 2nd Floor Guestrooms Guestrooms Spa Quarter 2nd Floor Multaqa Tearoom 2nd Floor Functional Zones Residential Recreational Back of House Operations Back of House Services and Utilities Administrative Allocated Spaces Family Guestrooms (Prototype Module Unit) Guest Suites (Courtyard Unit) Single King Guestrooms (Double Module Unit) Double-Double Guestrooms (Long Module Unit) Courtyards Housekeeping Facility Kitchen Toilets Maintenance Office Reception, Lobby and Front Desk Bellstand, Coatroom and Luggage Storage Security Department and Control Room Administrative Offices (Accounting, HR and Administrative Personnel) Concierge Desk and Tourist Information Hub Staff Toilets MEP Rooms Staff Changing Rooms Lounges and Breakrooms Butlers’ Quarters Storage and Utility Rooms Drop-Off Zone Bin-Room Service Drop-Off Mixed-use Space: Banquet Hall Conference Hall, Exhibition Space Outdoor Lounge Spa and Pool Herb Garden Supermarket Multaqa Tearoom Restaurant and Library Local Crafts Workshop
Program

COSMIC VILLAGE

BRIEF:

Master plan design for the existing 100 acre property to be developed into a mixed-use development including commercial, recreational, residential, hospitality, medical, and educational components. Scope of work: Concept Design and Master Plan.

APPROACH:

A central residential/commercial zone is surrounded by a protective park, with lagoons and native plant species and pedestrian walkways. An education hub and sports club (Health Park) occupy the Eastern segment of the site and all flank a smaller Valley Garden. The Western segment houses Higher Education institutions like the university, vocational training school as well as the business districtand ‘TheVillage’ (Recreationalhub).

1 University 74,430 2 Valley Garden 41,112 3 Sports Club 37,970 4 The Village 28,460 5 Business District 21,736 6 Theatre Plaza 40,860 7 Lagoons 56,693 8 Residential District 58,474 9 Health Park 25,950 10 Vocational Training Facility 18,235 11 Nursery 2,206

Turn static files into dynamic content formats.

Create a flipbook
Issuu converts static files into: digital portfolios, online yearbooks, online catalogs, digital photo albums and more. Sign up and create your flipbook.