Madison Stulc Design Portfolio

Page 1

Madison Stulc

Interior Design Portfolio

Contents

01. White Iverson Ranch

Luxury Residential Design

02. Cyclone Crossroads

Higher Education Design

03. Breaking Prairie

Structural Design

04. The Foundry Tavern

Restaurant Project

05. Creative Works

Additional Creative Content

EVERY GREAT DESIGN BEGINS WITH AN EVEN BETTER STORY.
~ LORINDA MAMO

White Iverson Ranch

Luxury Residential

Revit | Enscape | Photoshop

Individual

PROJECT SCOPE

Students are to research a celebrity of choice, investigate design theories and implement design choices that reflect the needs and likings of the occupant, resulting in creating a luxury getaway that reflects a home away from home experience.

CONCEPT

This home design intends to create an atmosphere conducive to creativity and productivity while providing flexibility for a growing family. The vacation home will be a tranquil place, providing the client with a serene getaway spot to focus on music and spending time with family. The house will consist of modern art-forward pieces mixed with biophilic design elements such as large windows, mood lighting, and a natural color scheme to help emphasize movement and balance, helping enhance wellness.

CLIENT

The chosen celebrity for the project is Post (Austin) Malone, a 38 year old musician, rapper, and producer. He spends an extensive amount of time on the road performing,, but when he is not he enjoys spending time with family and retreating to his studio where he dabbles in the past time of video gaming.

01
PRIVATE | PUBLIC
02 THE LIVING SPACE
03
FIRST FLOOR PLAN SECOND FLOOR PLAN

SECOND FLOOR RCP

04
FIRST FLOOR RCP
05
SOUTH KTCHEN ELEVATION EAST KITCHEN ELEVATION
06
THE STUDIO
07
THE PRIMARY BEDROOM
08

Cyclone Crossroads

REPURPOSING A STUDENT REC ROOM

Revit | Enscape | Photoshop

PROJECT SCOPE

For this project's objectives, we were to work as a group to redesign a shared space for students in Friley Hall. The vision is to creatively transform the space into a new community gathering area that will address current and future mental health challenges that are prominent on campus.

CONCEPT

Cyclone Crossroads aims to provide a revitalized mix of activity spaces that will focus on the restoration of community. The space will emphasize healthy play through organic shapes, textures, and bursts of colors to create a fully immersive sensory experience that will aid in boosting the overall well-being of students and give them a sense of belonging.

09
Team Project Rendering drawn by : Summer Stehr

SITE

The location is in a basement setting with no access to natural lighting, poor ventilation, and the absence of practical acoustical barriers.

BUBBLE DIAGRAM CIRCULATION

10
11
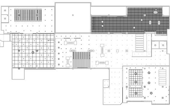
FLOOR PLAN LAUNDRYROOM LOUNGE
SPACE
DINING MAKERSPACE GAMEROOM RESTROOMS
12
FINAL RCP
13
FEATURE WALL ELEVATION SEATING AREA
14 DINING SPACE

THE MAKERSPACE

Rendering helped drawn by: Ellie Mathews

15
16

Breaking Prairie

Pavilion Project

Hand rendering | Photoshop | Model Making

Individual

PROJECT SCOPE

This is a conceptual design project in which each student was to design a pavilion residing on the Iowa State University campus. The end goal is to create a unique and new interior experience. The structure's purpose is to reflect and respond to the user and its location using the volume and materiality that define the concept.

CONCEPT

Using historical agricultural structures, the space will highlight natural materials ranging from early settlement to modern times. The naturally illuminated structure will seamlessly transition from outside into the interior while providing a learning opportunity, focusing on sensory experiences to strengthen human interaction and create stronger connections between people and the land they occupy.

17

Of the three location sites, I had chosen the oblong plot outside the Student Innovation Center next to the water tower. Currently, the green space is unused and is a space that is passed by students, professors, and visitors constantly throughout the day. The pavilion signifies the importance of agriculture in society and its place in Iowa State University's history and overall story of progress. The goal is to teach ongoers the importance of slowing down and remembering our roots.

My inspiration came from historical precedents of Iowa, including the sod house as a dwelling for migrants on the prairie. In addition, the essential agricultural practices used today, such as the corn crib.

18
SITE PLAN

The Foundry Tavern

Restaurant Project

Photoshop | Microsoft Excel

PROJECT SCOPE

Select finishes for the restaurant. All finishes must be commercial or contract grade, and sourced from reputable interior design companies. I had to select flooring, wall, ceiling, and casework finishes for the project, including the restrooms.. The documents composed in the project included a concept for materials selection, a digital finish board, a finish legend and a finish schedule along with a rendered floor plan

CONCEPT

The atmosphere is moody and cozy with its dark finishes and naturalistic material selections. The material choices help emphasize the home feeling and create connections with its occupants. The space provides a space for gathering good company and creates a welcoming feel, making it a place to stay a while.

19
Individual
PT-01 PT-02 WC-01 GT-01 GPY
BD/P-01

FINISH SCHEDULE

FINISH LEGEND

20

Creative Works

21
| Micron Pens | Markers
Graphite
22
Thank You Madison Stulc | stulcmadison@gmail.com | linkedin.com/in/madison-stulc

Turn static files into dynamic content formats.

Create a flipbook
Issuu converts static files into: digital portfolios, online yearbooks, online catalogs, digital photo albums and more. Sign up and create your flipbook.