Madison Stulc_Design Portfolio

Page 1


Madison Stulc

I n t e r i o r D e s i g n P o r t f o l i o

01. BRIDGING OF SPACES

Education.

02.

THE CROFT

Tiny Home / Community Living Hospitality

03. THE VARSITY HOTEL

04. WHITE IVERSON RANCH

Luxury Residential.

05. BREAKING PRAIRIE

Conceptual Pavilion

EVERY GREAT DESIGN BEGINS WITH AN EVEN BETTER STORY.
LORINDA MAMO

BRIDGEING OF SPACES

Education

Revit | Enscape | Photoshop Group

PROJECT SCOPE

For this education project, our group (Caroline Alba and Madison Stulc) we were asked to create a learning environment space within an urban high-rise that promotes the interconnected and interdependent philosophies of the Montessori methods While also providing adequate space for an enrollment of 300 students

PROJECT GOALS

For this project, we aimed to create an authentic Montessori learning environment that is true to Montessori philosophies and architectural patterns within a non-traditional Montessori structure: The high-rise The school will have flexible spaces that emphasize fostering community while helping stimulate a variety of sensory cues and provide the students with a sense of security and safety In addition, we aim to provide the connection of nature through intentional earth stewardship patterns

Hallway East Perspective - Rendered by Caroline Alba

Research

For our research for this project, we centered on understanding the Montessori philosophies and how they were interpreted in the spaces we occupy and in architectural elements While also looking into the historical precedents and site context, we aimed to understand inner-city Chicago life and how much access children may have to nature in the area The book Montessori Architecture: A Design Instrument for Schools by Steve Lawrence and Benjamin Stæhli guided us through every design choice from start to finish through architectural patterns used through Montessori philosophies

Concept & Inspiration

Inspired by the bridge systems of Chicago and the inherent core structure of all organisms, the concept of this design is one of bridging, centrality, and exploration Children will be surrounded by natural elements and forms, curiously flowing throughout the modular space Grounded with intentional gathering spaces, children will thrive in a space that caters to a cosmic educational experience

Site Context & History

Our site was located at 150 N Riverside Plaza, Chicago, IL The building was built in 2017 and rises 54 stories on the eastern side of a two-acre site on the Chicago River's west bank It is located prominently at the junction of the three branches of the Chicago River allowing for a scenic outlook Chicago is not just home to many of the world’s earliest skyscrapers it’s also a city of bridges. With the Chicago River being a busy port water route it continues to unfold and has grown and changed like the city through periods of industry, transportation, revitalization, and recreation

Materials

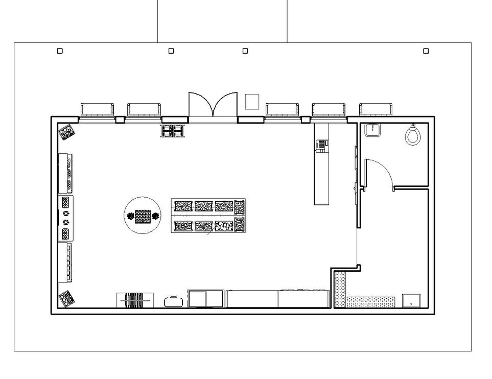
Isometric view of 26th and 25th floors

Classrooms

Entry

Gym

Garden

Offices

Workshop

Amphitheater

“Exterior Corridor”

9-12 Classroom Kitchen Perspective
9-12 Classroom Kitchen Elevation
Outdoor Amphitheater Perspective
Outdoor Corridor Perspective - rendered by Caroline Alba

THE CROFT

Tiny Home / Community Living

Revit | Enscape | Photoshop Group

PROJECT SCOPE

For this residential expansion proposal project, our group (Caroline Alba, Jordan Krei, and Madison Stulc) we were asked to create a design proposal for Cultivating Hope Farms in Ames, Iowa. The spaces to design included tiny homes, a market, and a classroom out of an existing pole barn We were to implement our inclusive design knowledge and adhere to the values and philosophies that the organization holds

PROJECT GOALS

For this project, we aimed to create flexible spaces that support the health and well-being of persons with different abilities and their families While being conscious of the individuals that may enter the site and being aware of all the needs and wants to be considered inclusive to all, the spaces are aimed towards fostering community, growing as a Collective, sowing Connection, and cultivating Independence.

Research & Framework

For our research for this project, we centered our understanding on three main topics: design considerations for ASD, how to maximize small spaces, and the concept of cohousing Making sure we also thought about standard accessibility codes and ways to be innovative with such limits and creating environments that made it feel like any other spaces that each detail was intentional. We took most information from the idea of cohousing. Our final design aimed to foster its characteristics by implementing a collaborative community-based living system that supports human connection and interaction

Concept & Inspiration

Our project was inspired by the term “croft,” a Scottish term relating to a small rented farm comprising a plot of arable land attached to a house and with a right of pasturage Cultivating Hope Farms is a care farm, so we were drawn to keeping our spaces as agriculture-related as possible In addition, the concept of concentric circles in nature was a significant drawing point with this idea Its meaning is that of circles with a common center but different radii We took this as symbolism towards sharing a common value but comprised of people from all different backgrounds coming together to grow as a collective

Site

Cultivating Hope Farms is located at 5500 240th St, Ames, IA, just southwest of Iowa State University The lot consists of existing timber, travel paths, livestock enclosures, and an existing pole barn The organization is a care farm in which they use the therapeutic use of farming practices to provide a natural and positive teaching environment for developing social, life, and job skills and are welcoming to all abilities.

Materials

The Market Floor Plan

Exterior
Family Home Perspective - Rendered by Jordan Krei
Family Home Kitchen Perspective - Rendered by Jordan Krei
The Commons Perspective - Rendered by Caroline Alba
The Commons Exterior Perspective - Rendered by Caroline Alba

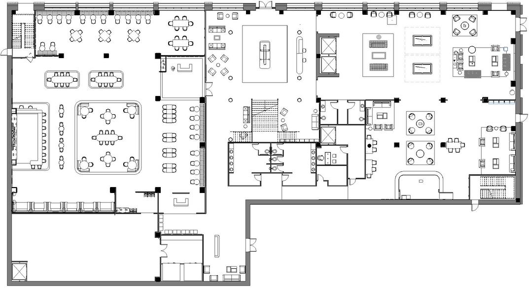
THE VARSITY HOTEL

Hospitality

Revit | Enscape | Photoshop Group

PROJECT SCOPE

For this education project, our group (Jenna Miller, Kirsten Ness, Dallas Richardson, and Madison Stulc) we were tasked with designing a family friendly boutique hotel in Kansas City Missouri that is supported through our research topics of choice and connecting to the culture and experiences that the city has to offer While also, creating unique and innovative accommodations for traveling families

PROJECT GOALS

This project aims to design an inviting and versatile space that captivates and entertains guests of all ages while creating interior spaces that honor the building’s history while introducing a modern design that adheres to a rich, luxurious feeling while ensuring a comfortable & engaging guest experience.

Lobby Perspective - Rendered by Kirsten Ness

Research & Framework

Through our group ' s research, we focused on understanding the meaning of culture in place, wellbeing, sensory, and family tourism to help in aiding our design decisions By exploring what Kansas City has to offer, we gained inspiration through the city's rich sports history that continues today while also remembering the building's history, hence the idea of creating this act of storytelling by implementing authentic local ideas and traditions into our final design.

Concept & Inspiration

The Varsity Hotel aims to create an upscale retreat that pays homage to the city’s rich sports legacy while preserving the timeless elegance of the building’s original architecture A balance between the structure of wood and leather mixed with the softness of textiles to create a variety of spaces It offers a sophisticated yet welcoming environment to captivate and entertain guests of all ages- from families and sports enthusiasts to business travelers seeking a unique experience.

Site & History

The project site is located at 215 W Pershing Rd Kansas City, MO Currently the building is setup as an apartment complex and business offices In the sites history the building started as The Sweeney Automobile and Tractor School, opposite the Union Station Built by Emory J Sweeney just before World War I in the early days of the automobile age The building was also the site of the first radio station in Kansas City and is currently still on air today as a sports radio station. Little to say the current site has evolved and includes rich and progressive history

Process Work and Diagramming

Inspired by the shape of a baseballthe two outer halves represent public and private spaces while the center represents their intersection

This diagram represents the spatial connection between the first and second levels

3rd Floor to 10th Floor

LOBBY
1st Floor

WHITE IVERSON RANCH

Luxury Residential

Revit | Enscape | Photoshop Group

PROJECT SCOPE

This is a design project I was tasked in designing a luxury vacation home for a celebrity of my choosing and we have to gear our design choices off of research based around the life of said celebrity, this included habits, travel patterns and personal life items In addition the project must also focus around a chosen design theory and implement elements related to such

PROJECT GOALS

This design project aims to design a vacation home for Austin Post (Post Malone) that reflects his lifestyle and creates a relaxing getaway location for somebody who enjoys privacy and time alone with his family while indulging in hobbies away from the spotlight It is also important to include elements of biophilia, taking into consideration he has chosen to move away from city life and out into secluded countryside, it is essential to include nature elements to help bring a bit of home into this vacation spot

Research & Framework

The research for this project centered on the wants and needs of celebrity client Austin Malone, a musician, producer, and prominent video gamer My research was geared towards Austin, and it was understood that he is more introverted than expected In addition, he is a video game connoisseur and that is what he enjoys partaking in in his free time. He had recently moved out of the bustling city to a more secluded property, so it will be essential to include parts of that switched setting into his home away from home in the final design and adhere to biophilic elements

Concept & Inspiration

The intent of this home design is to create an atmosphere that is conducive to creativity and productivity while providing flexibility for a growing family The vacation home will be a tranquil place and will provide the client with a serene getaway spot to focus on music and spending time with family The home will consist of an biophilic design elements such as large windows, mood lighting and a natural color scheme to help emphasize movement and balance helping enhance wellness

Site & History

The site chosen for this project was 3206 Wintergreen Terrace, Grapevine, Texas, for it being the hometown for Austin Post It would make a good residence for him during his travels back home and for visiting family and gathering with friends The property is situated on a 233 acre lot with a pond and plenty of space recreation (honing in on biophilia) In addition the lot is very wooded, which will be good for seclusion and privacy for someone who likes to hide out and get away from the spotlight and stage life

Process Work

Materials

Parti Diagram Site

1st Floor

2nd Floor

1st Floor RCP

2nd Floor RCP

Living Room Perspective
Studio Perspective

BREAKING PRAIRIE

Conceptual Pavilion

Hand Rendering | Model Making | Photoshop

Individual

PROJECT SCOPE

This is a conceptual design project in which each student was to design a pavilion residing on the Iowa State University campus. The end goal is to create a unique and new interior experience The structure's purpose is to reflect and respond to the user and its location using the volume and materiality that define the concept

PROJECT GOALS

The goal of the the pavilion is to signify the importance of agriculture in society and its place in Iowa State University's history and overall story of progress. The goal is to teach on-goers the importance of slowing down and remembering our roots

Research

The inspiration for this project came from historical precedents of Iowa, including the sod house as a dwelling for migrants on the prairie In addition, the essential agricultural practices used today, such as the corn crib With Iowa State University being named after the start as "Iowa Agricultural College and Model Farm," there was a connection between the idea of progress and remembrance of the college's roots, which seems to be a forgotten subject The act of reflection and appreciation are the emotions that inspire the final design and the idea that no matter where we are, we must remember the stories of those before us

Concept & Inspiration

Using historical agricultural structures, the space will highlight natural materials ranging from early settlement to modern times The naturally illuminated structure will seamlessly transition from outside into the interior while providing a learning opportunity, focusing on sensory experiences to strengthen human interaction and create stronger connections between people and the land they occupy

Site

Of the three location sites, I had chosen the oblong plot outside the Student Innovation Center next to the water tower Currently, the green space is unused and is a space that is passed by students, professors, and visitors constantly throughout the day The thought process was that this spot would be best suited for the concept with trying to evoke remembrance while sitting next to the Student Innovation Center, signifying the amount of progress we have seen as a campus

Materials

Process Work and Diagramming

Reflection

The system holds 2,800 LB of Corn

2,800 LB corn = 1 steer to finish

1 Steer = Feeds family of four for two years

Glass
Corn
Gravel
Hydroponic Prarie

Model

Installation Envisionment

Turn static files into dynamic content formats.

Create a flipbook
Issuu converts static files into: digital portfolios, online yearbooks, online catalogs, digital photo albums and more. Sign up and create your flipbook.
Madison Stulc_Design Portfolio by mmstulc - Issuu