

MUZEJ ASPAN ART
MUZEJ ASPAN ART
Predmet: Arhitektura enterijera IV
Student: Mitar Makić OAS IV
Profesor: Miroslav Šilić
Stručni saradnik: Bojana Sićović
SADRŽAJ
3 Geografski položaj
5 O objektu
7 O autoru
9 Osnova sa presecima
13 Etaže sa oznakom prostorija

23 Analiza kretanja
Geografski položaj

Aspen Art Muzej nalazi se u Aspenu, Kolorado, malom, ali poznatom skijaškom odmaralištu smeštenom aktivnostima na otvorenom, uključujući skijanje, planinarenje i vožnju bicikla po planinskim stazama, smešten u Aspenu, omogućavajući lak pristup iz komercijalnih i kulturnih centara grada. Glavna ideja iza zgrade zasniva se na transparentnosti i otvorenim vidikovcima, pozivajući one spoljne okoline kao deo jedinstvenog iskustva Aspen Art Muzeja. Muzej raspolaže sa 12.500 raspoređenih na četiri nivoa muzeja. Galerije imaju visinu plafona od četrnaest stopa, većinom ispunjenu

smeštenom u Stenovitim planinama. Grad je poznat po svojoj zadivljujućoj prirodnoj lepoti i stazama, što ga čini glavnom destinacijom za turiste tokom cele godine. Sam muzej je centralno
one spolja da stupe u interakciju sa unutrašnjošću zgrade i omogućujući onima unutra da vide 12.500 kvadratnih stopa fleksibilnog izložbenog prostora u šest glavnih galerijskih prostora ispunjenu prirodnim svetlom.

Aspan Art Muzej je savremena umetnička institucija smeštena u Aspenu, Kolorado, posvećena promociji i razvoju umetnosti iz Centralne Azije i šire. Otvoren sa ciljem da postane regionalni kulturni centar, muzej nudi prostor za istraživanje savremenih umetničkih praksi kroz izložbe, radionice i umetničke projekte. Njihov fokus je na umetnicima koji se bave savremenim pitanjima kao što su identitet, društvene promene, politika, migracije i tehnologija.
Aspan Art - kafe

Aspan Art nije samo izložbeni prostor, već i mesto za dijalog između umetnika, istraživača i publike. Kroz multimedijalne instalacije, performanse i interaktivne projekte, muzej stvara platformu za razmenu ideja i kritičko promišljanje savremene umetnosti. Takođe, muzej organizuje obrazovne programe koji uključuju radionice i predavanja namenjena različitim generacijama i nivoima poznavanja umetnosti, čime doprinosi kulturnom obrazovanju i širenju umetničkog diskursa u regionu.
Aspan Art - galerija prvi sprat
O autoru
Aspen Art Muzej dizajnirao je Šigeru Ban, čuveni japanski arhitekta poznat po inovativnim i ekološki održivim dizajnima. Ban je naročito priznat zbog svog humanitarnog rada, gde je kreirao privremena skloništa za žrtve prirodnih katastrofa, kao i zbog korišćenja nekonvencionalnih materijala, poput papirnih cevi u svojim projektima. Njegov dizajn za Aspen Art Muzej, završen 2014. godine, bio je njegov prvi stalni muzejski projekat u Sjedinjenim Američkim Državama.

(坂 茂, Šigeru Ban, Rođen 5. avgusta 1957.)
Zgrada je prepoznatljiva po transparentnosti i skladnom uklapanju u prirodne lepote Aspena. Ključni elementi dizajna uključuju karakterističnu fasadu od pletenog drveta, stakleni lift i otvoreno Veliko stepenište koje omogućava posetiocima kretanje između nivoa uz pogled na grad i planine. Muzej takođe ima vrt za skulpture na krovu sa panoramskim pogledom na Aspen, što doprinosi jedinstvenom spoju umetnosti, arhitekture i prirode.
Filozofija dizajna Šigerua Bana za ovaj muzej bila je da harmonizuje zgradu s urbanim i prirodnim okruženjem, što se poklapa s njegovom širim pristupom integracije strukture i okruženja. Zgrada je prepoznata po savremenoj arhitektonskoj izvrsnosti, osvojivši priznanja poput nagrade Američkog instituta arhitekata (AIA).
Drugi projekti Šigeru Bana:
Centre Pompidou-Metz (2010)
Papirna crkva (1995)
Kardboard Cathedral (2013)
Villa Wassenaar (2002)
Nasu Teien Muzej (2004)
Japanski paviljon na Expo 2000 (2000)
Projekti fokusirani na održivost - Ban je radio na brojnim projektima pomoći nakon katastrofa, uključujući privremena skloništa i hitne šatore napravljene od reciklabilnih materijala. Njegova humanitarna arhitektura fokusira se na pružanje rešenja u kriznim situacijama.

Šigeru Ban, (坂 茂) - skica muzeja “Aspan Art”
Ovo je crtež Muzeja umetnosti u Aspenu. Fokusirao sam se na detalje okvira u stilu tkanja korpe jer on dodaje toliko karaktera zgradi, pretvarajući je iz velike kutije u prirodno pletenu korpu. Ban je rekao da ga je inspirisala ideja o pletenoj korpi jer muzej nikada neće imati stalne zbirke, već će biti privremeno mesto za čuvanje određenih eksponata i predmeta.

Šigeru Ban, (坂 茂) - plan zona i ventilacije

6.
1. Ulazni hol
2. Galerijski lift
3. Veliko stepenište - Spoljašnje
4. Veliko stepenište - Unutrašnje
5. Galerija 1
Galerija 2
7. Galerija 3
8. Galerija 4
9. Galerija 5
10. Galerija 6
11. Muzejska prodavnica
12. Radionica za
13. Utovarni prostor 14. Sobe za odmor

15.
16.
17.
prodavnica
za obrazovanje prostor odmor
18.
19.
Administracija / Kancelarije
Kafić
Vrt skulptura na krovu
Pre-funkcija
Priprema / Konzervacija

1. Ulazni hol
2. Galerijski lift
3. Veliko stepenište - Spoljašnje
4. Veliko stepenište - Unutrašnje
5. Galerija 1
6. Galerija 2
7. Galerija 3
8. Galerija 4
9. Galerija 5
10. Galerija 6
11. Muzejska prodavnica
12. Radionica za
13. Utovarni prostor
14. Sobe za odmor
Presek 2-2

17.
18.
19.
15. Administracija / Kancelarije
16. Kafić
Vrt skulptura na krovu
Pre-funkcija
Priprema / Konzervacija

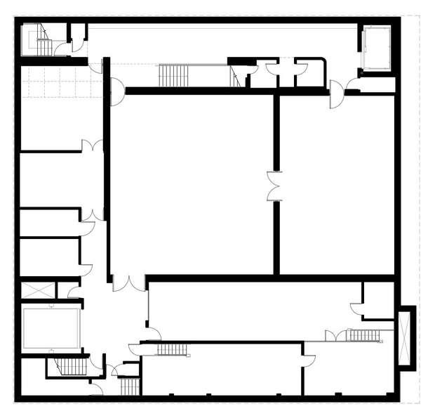
1. Ulazni hol
2. Galerijski lift
3. Veliko stepenište - Spoljašnje
4. Veliko stepenište - Unutrašnje
5. Galerija 1
6. Galerija 2
7. Galerija 3
8. Galerija 4
9. Galerija 5
10. Galerija 6
11. Muzejska prodavnica
12. Radionica za
13. Utovarni prostor
14. Sobe za odmor
Podzemna etaža

prodavnica obrazovanje
prostor
odmor
17.
18. Pre-funkcija
19.
15. Administracija / Kancelarije
16. Kafić
Vrt skulptura na krovu
Priprema / Konzervacija
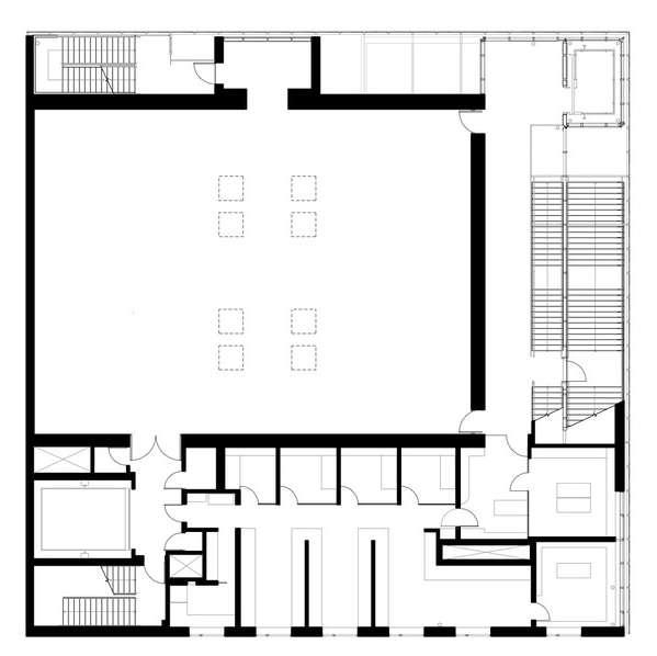
Prizemlje

1. Ulazni hol
2. Galerijski lift
3. Veliko stepenište - Spoljašnje
4. Veliko stepenište - Unutrašnje
5. Galerija 1
6. Galerija 2
7. Galerija 3
8. Galerija 4
9. Galerija 5
10. Galerija
11. Muzejska
12. Radionica
13. Utovarni 14. Sobe za

15. Administracija / Kancelarije
16. Kafić
17. Vrt skulptura na krovu
prodavnica
za obrazovanje
prostor
odmor
18. Pre-funkcija
19. Priprema / Konzervacija -16-

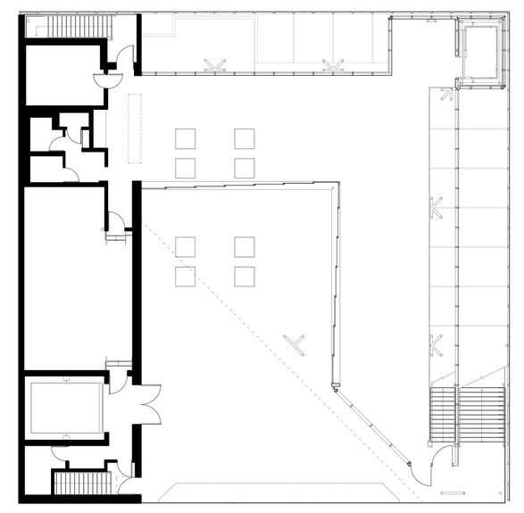
1. Ulazni hol
2. Galerijski lift
3. Veliko stepenište - Spoljašnje
4. Veliko stepenište - Unutrašnje
5. Galerija 1
6. Galerija 2
7. Galerija 3
8. Galerija 4
9. Galerija 5
10. Galerija
11. Muzejska
12. Radionica
13. Utovarni
14. Sobe za
Prvi sprat

prodavnica Radionica za obrazovanje
prostor
odmor
15. Administracija / Kancelarije
16. Kafić
17. Vrt skulptura na krovu
18. Pre-funkcija
19. Priprema / Konzervacija -18-

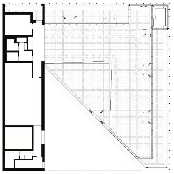
1. Ulazni hol
2. Galerijski lift
3. Veliko stepenište - Spoljašnje
4. Veliko stepenište - Unutrašnje
5. Galerija 1
6. Galerija 2
7. Galerija 3
8. Galerija 4
9. Galerija 5
10. Galerija
11. Muzejska
12. Radionica
13. Utovarni 14. Sobe za
Drugi sprat

15. Administracija / Kancelarije
16. Kafić
17. Vrt skulptura na krovu
prodavnica
za obrazovanje
prostor
odmor
18. Pre-funkcija
19. Priprema / Konzervacija
Potkrovlje

1. Ulazni hol
2. Galerijski lift
3. Veliko stepenište - Spoljašnje
4. Veliko stepenište - Unutrašnje
5. Galerija 1
6. Galerija 2
7. Galerija 3
8. Galerija 4
9. Galerija 5
10. Galerija
11. Muzejska
12. Radionica
13. Utovarni
14. Sobe za

Muzejska prodavnica
Radionica za obrazovanje
Utovarni prostor
za odmor
15. Administracija / Kancelarije
16. Kafić
17. Vrt skulptura na krovu
18. Pre-funkcija
19. Priprema / Konzervacija

1. Ulazni hol
2. Galerijski lift
3. Veliko stepenište - Spoljašnje
4. Veliko stepenište - Unutrašnje
5. Galerija 1
6. Galerija 2
7. Galerija 3
8. Galerija 4
9. Galerija 5
10. Galerija 11. Muzejska
Radionica
Utovarni
Sobe za
Podzemna etaža

Muzejska prodavnica
Radionica za obrazovanje
Utovarni prostor za odmor
15. Administracija / Kancelarije
16. Kafić
17. Vrt skulptura na krovu
18. Pre-funkcija
19. Priprema / Konzervacija -24-
9.
Analiza kretanja
Prizemlje

1. Ulazni hol
2. Galerijski lift
3. Veliko stepenište - Spoljašnje
4. Veliko stepenište - Unutrašnje
5. Galerija 1
6. Galerija 2
7. Galerija 3
8. Galerija 4
9. Galerija 5
10. Galerija
11. Muzejska
12. Radionica
Utovarni
Sobe za

15. Administracija / Kancelarije
16. Kafić
17. Vrt skulptura na krovu
Muzejska prodavnica
Radionica za obrazovanje
Utovarni prostor
za odmor
18. Pre-funkcija
19. Priprema / Konzervacija
Analiza kretanja

1. Ulazni hol
2. Galerijski lift
3. Veliko stepenište - Spoljašnje
4. Veliko stepenište - Unutrašnje
5. Galerija 1
6. Galerija 2
7. Galerija 3
8. Galerija 4
9. Galerija 5
10. Galerija
11. Muzejska 12. Radionica
Utovarni
Sobe za
Prvi sprat

Muzejska prodavnica
Radionica za obrazovanje
Utovarni prostor za odmor
15. Administracija / Kancelarije
16. Kafić
17. Vrt skulptura na krovu
18. Pre-funkcija
19. Priprema / Konzervacija
4.
Analiza kretanja

1. Ulazni hol
2. Galerijski lift
3. Veliko stepenište - Spoljašnje
4. Veliko stepenište - Unutrašnje
5. Galerija 1
6. Galerija 2
7. Galerija 3
8. Galerija 4
9. Galerija 5
10. Galerija
11. Muzejska
12. Radionica
13. Utovarni 14. Sobe za

Muzejska prodavnica
Radionica za obrazovanje
Utovarni prostor
za odmor
15. Administracija / Kancelarije
16. Kafić
17. Vrt skulptura na krovu
18. Pre-funkcija
19. Priprema / Konzervacija
17 . Analiza kretanja
Potkrovlje

1. Ulazni hol
2. Galerijski lift
3. Veliko stepenište - Spoljašnje
4. Veliko stepenište - Unutrašnje
5. Galerija 1
6. Galerija 2
7. Galerija 3
8. Galerija 4
9. Galerija 5
10. Galerija
11. Muzejska
12. Radionica
13. Utovarni
14. Sobe za

Muzejska prodavnica
Radionica za obrazovanje
Utovarni prostor odmor
15. Administracija / Kancelarije
16. Kafić
17. Vrt skulptura na krovu
18. Pre-funkcija
19. Priprema / Konzervacija
Analiza kretanja