MINA JAVAN
ARCHITECTURE PORTFOLIO

PROFESSIONAL ACADEMIC
CONTENT
TEATRO TOGNON
LIVING BESIDES THE PARK POMANDÈRE
AABAAN VILLA RECOVERY & RESEARCH CENTER
REWRITING THE LIGHT MACHINERY BUILDING
INUJIMA ART STAY
![]()
ARCHITECTURE PORTFOLIO

PROFESSIONAL ACADEMIC
TEATRO TOGNON
LIVING BESIDES THE PARK POMANDÈRE
AABAAN VILLA RECOVERY & RESEARCH CENTER
REWRITING THE LIGHT MACHINERY BUILDING
INUJIMA ART STAY






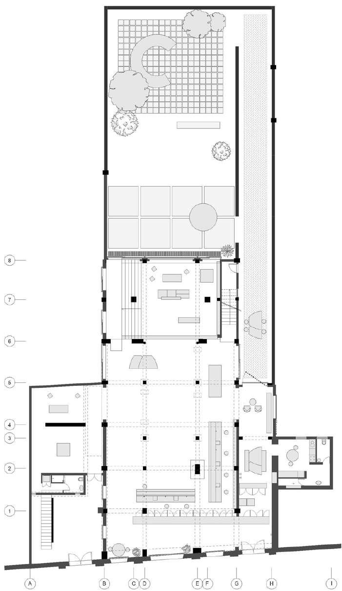
The entire design aimed to revive the theater’s former glory, buried under numerous layers of construction over time. Simplifying the space enhances its functionality as a gallery, where each piece of furniture is a showcase. The building’s crowning feature is a stunning garden, emphasized by opening all rear-facing facades to frame the greenery as a masterpiece



In this attic apartment, the bathroom features a spiral plan. At its center is the toilet, surrounded by a shower and a sink in the outer ring. This layout ensures privacy without doors. Encircling the spiral is a round corridor functioning as a closet. The whole space is located in the middle of a huge area. Unlike traditional designs where the service area is tucked into a corner with a cubic layout, this design places it centrally, serving as a functional centerpiece. This central location of the bathroom separates the open living room and kitchen from the bedroom, maintaining a gallery-like space without walls. Each element is a sculptural yet functional piece, reflecting the designer’s creative vision.




3.
4.
5.
7.
8.



























We have designed building clusters that capitalize on the site’s qualities, including views of the developing Gleisbogenpark to the south. These clusters serve as a transition between urban structures and the future park, balancing wide and narrow spaces to create pleasant, varied environments. The clusters, reaching up to 40 meters high, feature roof terraces with stunning views, while their strategic placement ensures green views and park connectivity for all residents. The design facilitates fresh air flow without drafts, with green facades enhancing air quality and temperature control.

















Our task was to faithfully translate the client’s vision into a captivating and functional space. We started with a concrete floor to establish a modern and clean foundation. This choice provides durability and a minimalist aesthetic, perfectly aligning with the brand’s identity. To contrast the floor’s sleekness, we opted for a softly flocked ceiling, adding a layer of warmth and inviting texture. The aluminum lighting arrangement was carefully selected not only for its practical illumination but also for its contemporary elegance. Throughout the store, we incorporated beige hues, reminiscent of the brand’s signature pieces, to evoke a sense of understated elegance. Every element, from the floor to the ceiling and the lighting, was designed with meticulous attention to detail to ensure the space is both beautiful and inviting. Our goal was to create an environment where customers feel comfortable and inspired, a true reflection of the brand’s ethos.









The project’s main advantage was the client’s clear vision for a simple, warm brick house with defined spaces, located in an authentic area of Tehran. Developed over five floors, including two basements, it features a duplex unit, a separate unit, a large private northern courtyard, a swimming pool, a rooftop for gatherings, a library, workrooms, a play area, and an internal elevator. A sunken garden in the southern courtyard provides light to the basements. The northern courtyard connects with key living areas, and setbacks create openness. The rooftop combines utility and design for a social space.












OBSERVATORY &




RECOVERY CENTER



























Circulation
Circulation
Circulation
Circulation
Circulation





























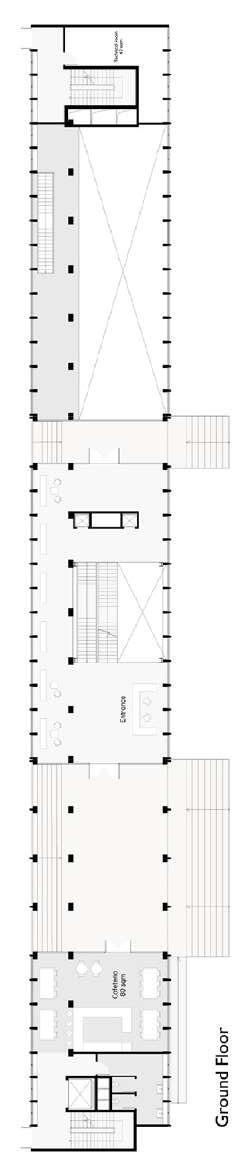
A new set of stairs is merged in the middle of the building to make the inner circulation more effective. A transition is created within the building between the west-east sides of the complex to improve public use and circulation in the site. In the end, we defined new passages and entrances to the building with help of the landscape. The main layout of the structure is preserved and is just going to be adjusted according to proposed spaces






















Mina.Javanfardkalyan@mail.polimi.it
06-17751297
Rotterdam, Netherlands