

MINA JAVAN
INTERIOR DESIGN PORTFOLIO
CONTENT
TEATRO TOGNON
POMANDÈRE
VALEXTRA
MOSCHINO
AABAAN VILLA
TEATRO TOGNON

MILAN, ITALY



The lower-level library, overlooking the garden, doubles as a meeting room, lounge, and gallery. Furnished with a custom Max Mara chair and a collectible couch, the design emphasizes comfort and coziness, ensuring that the library is not only a place for reading but also for relaxation and inspiration.

The studio is the heart of the building, and at the core of the studio is the prized GOT furniture set. The design’s intent is to create a dynamic space where the table and chair set serves various functions, ranging from internal meetings to casual breaks and even presentations. The furniture set is part of collectible catalogue serves as a showcase piece.

The concrete, organically designed desk in the studio functions as a sculptural piece at the heart of the building. It is floor-mounted with integrated electrical connections, providing plugs and sockets directly on the desk to ensure an organized workspace for computers.




The Paravant, designed for the apartment’s bedroom, is inspired by the graphic shapes of flags. It features a revolving design, allowing it to be opened or closed, while being securely fixed from floor to ceiling.





POMANDÈRE

PARIS, FRANCE
















3. Garment Rack
5. Fitting Room 1
7. Fitting Room 2
9. Chair
1. Door Handel
4. Ceckout Area
6. Skylight
8. Try On Area
10. Display Hanger
2. Ceramic Table



Our task was to faithfully translate the client’s vision into a functional space. We started with a concrete floor to establish a modern and clean foundation. This choice provides durability and a minimalist aesthetic, perfectly aligning with the brand’s identity. we opted for a softly flocked ceiling, adding a layer of warm texture. The aluminum lighting arrangement was carefully selected for its contemporary elegance. Throughout the store, we incorporated beige hues, reminiscent of the brand’s signature pieces, to evoke a sense of understated elegance. Every element was designed with meticulous attention to detail to ensure the space is both beautiful and inviting.
VALEXTRA

CHINA, JAPAN, SOUTH KOREA, TAIWAN, ITALY



We wanted the store to reflect the contrast between Milan’s sober exteriors and warm interiors. By using contrasting materials, like stone and soft fabrics, we highlighted the city’s architectural style. Sculpted stone pots filled with plants pay homage to Milan’s secret gardens.





We sought to translate the brand’s Milanese heritage into a global experience. The aim was to reflect the contrast between Milan’s understated exteriors and its warm, welcoming interiors. The store design focuses on creating a clear and functional layout that enhances the shopping experience, from intimate spaces showcasing collections to the wrapping counter. Inspired by Valextra’s attention to detail, we incorporated elements like handles drawn from the Tric Trac wristbag and shadows that echo the brand’s artisanal finishes. Our goal was to capture Valextra’s pursuit of timeless elegance and create an emotionally engaging space worldwide.

COUNTER



SIGNOR BONAVENTURA


LOGO FLAG
Material: Green Marble, Led Lighting, Black Metal
EASY CHAIR
Material: Wooden Structure, Velevet Cover
Material: Black Coated Metal
DOOR HANDEL
Material: Brass
FOAM CHAIR
Material: Concrete Base, Compressed Foam Seat
Material: Semola Plaster, Dark Green Coated Metal

COFFEE TABLE

WRAPPING TABLE
Material:

HANGING HOOK
Material:



V_FOAM PODIUM
Material: Compressed Foam, Paint
STONE VASE
Material: Wooden Structure Coated with Semola Plaster
FOAM STOOL
Materail: Wooden Structure Base, Compressed Foam Seat
Stainless Steel
Wooden Structure, Stainless Steal Cover
Material: Concrete, Dark Blue Soladite
MOSCHINO

MILAN, ITALY





Entrance 2. Clothes Display Window
Shoes/Bags Display Window
In-store Storage
Garment Rack 6. Try-n Area 7. Spacial Showcase 8. Shoes Area 9. Back Office
10. Fitting Room 1
11. Elevator 12. Fitting Room 2 13. Access to The Basement
Accessories Area
Bags Showcase



Section AA
Section BB

We aimed to blend the richness of baroque style with a minimalist approach in the Moschino flagship store. The space features flowing, curving lines that create a sense of movement, while playful proportions challenge traditional ideas and change how people perceive the space. Our goal was to capture Moschino’s whimsical spirit, making the store a starting point for future creative directions. The true value of this project lies in its freeform design and the potential for endless possibilities as it evolves. It’s a space that invites imagination and sets the stage for Moschino’s future growth.






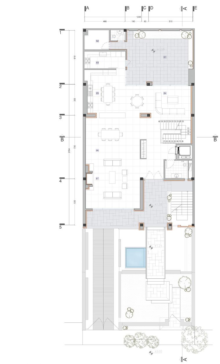
AABAAN VILLA

TEHRAN, IRAN



Yard
Storage
Hot Kitchen
Lounge
Cold Kitchen
Dining Room
Living Room
Entrance Terrace
Garden 10. Open Pool
Parking Ramp
Main Entrance


Section AA


Kitchen
Terrace

The project’s main advantage was the client’s clear vision for a simple, warm brick house with defined spaces, located in an authentic area of Tehran. Developed over five floors, including two basements, it features a duplex unit, a separate unit, a large private northern courtyard, a swimming pool, a rooftop for gatherings, a library, workrooms, a play area, and an internal elevator. A sunken garden in the southern courtyard provides light to the basements. The northern courtyard connects with key living areas, and setbacks create openness. The rooftop combines utility and design for a social space.
Mina.Javanfardkalyan@mail.polimi.it
06-17751297
Rotterdam, Netherlands