Estudio del objeto arquitectónico

Page 1

ESTUDIO DEL OBJETO ARQUITECTÓNICO

Arq.BethsySerrano Mariño Docentes: Arq.DiankaValdez Pino Alumna: AracelyMilagrosPrimo Cristóbal FACULTADDEINGENIERÍACIVILY ARQUITECTURA HUÁNUCO-PERÚ 2022 Curso: TallerdeDiseño
ÍNDICE INTRODUCCIÓN OBJETIVOS .GENERAL .ESPECIFICOS MARCOREFERENCIAL: .ANTECEDENTESHISTORICOS .MARCOTEÓRICO .DATOSGENERALES .CARACTERISTICASDELAPOBLACIÓN ANÁLISISCONTEXTUAL: .UBICACIÓNYLOCALIZACIÓN .ACCESIBILIDAD .EQUIPAMIENTO .TOPOGRAFÍA .RIESGOSYVULNERABILIDAD .ACONDICIONAMIENTO .VISUALES ANÁLISISFORMAL: .IDEARECTORA .CONCEPTUALIZACIÓN .PRINCIPIOSORDENADORES .RELACIONESFORMALES ANÁLISIS.ESPACIAL .RELACIONESENTREESPACIOS .ORGANIZACIÓNDEESPACIOS .JERARQUÍAESPACIAL ANÁLISISFUNCIONAL .ZONIFICACIÓN .PROGRMACIÓN .ACCESOS .CIRCULACIÓN ANÁLISISCONSTRUCTIVO: .ESTRUCTURA .TRAMAESTRUCTURAL .MATERIALES 01 03 04 02 05 06 07 08

INTRODUCCIÓN

01En el presente estudio se trata de hacer un análisis de caso sobre un proyecto multifamiliar, el cual es Amé 247,para así formar una capacidad critica ante los casos examinados y determinar cuales son los defectos y aspectos a mejorar o tomar en cuenta al momento de realizar nuestro propio proyecto.

OBJETIVOS

Realizar un análisis sobre el proyecto Amé 247 y obtener las nociones y conocimientos necesarios para resolver necesidades en nuestro contexto, y de esa manera contribuir a la mejora de los espacios de nuestra sociedad.

02OBJETIVO GENERAL OBJETIVO ESPECÍFICO

Identificar y comparar los parámetros seguidos en el proyecto analizado con respecto a la normativa

Dar énfasis en las partes de mayor importancia del objeto estudiado

Tratar de adjuntar la mayor información posible para luego poder sintetizarla y organizar de acuerdo a cada análisis

EDIFICIO AMÉ 247

03

MARCO REFERENCIAL

MARCO TEÓRICO

VIVIENDA

Espacio físico, generalmente un edificio, cuya principal razón de ser será la de ofrecer refugio y descanso, gracias a las habitaciones que ostenta en su interior, a las personas .

VIVIENDA MULTIFAMILIAR

Es construida con el objetivo de que sean varias las familias que habiten el inmueble, sin que esto signifique que la convivencia sea obligada. Aquí hay servicios y bienes que se comparten, por ejemplo escaleras y ascensores; sistema de seguridad; servicio de recolección de basura; áreas comunes como pueden ser albercas entre otros

TIPOFLAT

Consta de una sola planta, con acceso directo; cuenta con una a tres habitaciones; se pueden llegar a compartir espacios como baño, lavandería y cocina

TIPODÚPLEX

Consta de dos pisos, los cuales están conectados por una escalera interior

TIPOLOFT

Este tipo de viviendas en auge destacan por no tener las tradicionales separaciones entre estancias

TIPOBLOQUE

Es un edificio de tres a nueve pisos, comúnmente con departamentos de una a dos habitaciones.

TIPOTORRE

Se trata de un edificio de diez pisos o más, con usos mixtos y con el uso de elevadores.

Tipologíade vivienda multifamiliar

ANTECEDENTE HISTÓRICOS

Antesdelallegadadelosespañoles,

Améesunaviviendamultifamiliar

esteterritorioeraconocidoporlos mayascomoT’ho,cuyosignificadoes "Cincocerros",ytiempoatrásrecibió elnombredeIchcaanzihó,quequiere decir"caradelinfinito".Sobrelos vestigiosdedichoasentamientomaya, laciudadfuefundadael6deenerode 1542pordonFranciscodeMontejo"El Mozo",quienlanombróMérida porquelasantiguasedificaciones prehispánicaslerecordaronalas ruinasromanasqueseconservanenla ciudadhomónimadeExtremadura, España.
compuestode4volúmenesconun patiocentral.Elobjetivoera conseguirelmejorrendimiento posibleencuantoalarentabilidad delproyecto. Comoresultadofinal seobtuvounedificiosobriocon purezageométrica,resultocon muypocosmaterialesycuyo principalvalorradicaensu interacciónconelcontextoyenlas relacionesdesushabitantesconel espacioabierto.
País: México DATOS GENERALES JoséCarlosLavalleAlonzo LuisAlejandoPenicheArroyo AsisSilveiraTus JimenaCantoSobrino MiguelCarrilloPérez Arquitectosacargo: Equipodediseño: GrupoConsur: Ingeniería Arquitectos: LAVALLE+PENICHE ARQUITECTOS Área: 1250M² Año: 2020 Ciudad: MontesdeAmé,Mérida Amé 247 es un proyecto de vivienda multifamiliar emplazado en una zona residencial al interior de la ciudad, en un predio ligeramente irregular. El encargo consistía en dividir el terreno en dos y desarrollar en la esquina un proyecto patrimonial, para un inversionista particular, que deseaba el mejor rendimiento posible mediante las rentas del inmueble Totaldeviviendas: 3 viviendas por volumen 11 viviendas y un local comercial = Primer nivel Segundo nivel Tercer nivel

CARACTERÍSTICAS DE LA POBLACIÓN

ECONOMÍA

estimaciones de MarketDataMéxico, Montes De

tiene un output económico estimado en MXN $550 millones anuales, de los cuales MXN $340 millones corresponde a ingresos generados por los hogares y unos MXN $210 millones a ingresos de los 150 establecimientos que allí operan.

DEMOGRAFÍA 23 años y una escolaridad promedio de 12 años cursados MONTESDEAMÉ 3840 TOTAL HOGARES 1030 HABITANTES 280 EDAD PROMEDIO Según
Ame
Densidad poblacional+ Concentración empresarial y comercial INGRESOS PRINCIPALACTIVIDADECONÓMICAENESTACOLONIA EMPLEOS Terreno

ANÁLISIS CONTEXTUAL

04

UBICACIÓN GENERAL

AMÉRICA MÉXICO

NORTE: Océano Glacial Ártico.

OESTE: Océano Pacífico.

ESTE: Océano Atlántico.

SUR: Confluencia del océano Pacífico con el océano Atlántico.

YUCATÁN

NORTE: Golfo de México.

OESTE: Golfo de México y Estado de Campeche

ESTE: Estado de Quintana Roo SUR: Estados de Campeche

UBICACIÓN

NORTE: Estados Unidos

OESTE: Océano Pacífico

ESTE: El Mar Caribe

SUR: Belice y Guatemala

MÉRIDA

NORTE: Municipio de Progreso

OESTE: Municipio de Ucú y Umán

ESTE: Municipio de Kanasín

SUR: Municipio de Abalá

Y LOCALIZACIÓN Ca. 20. 247 Montes de Amé calle 20 c a l l e 6 7

ACCESIBILIDAD

LEYENDA

EQUIPAMIENTO

Salón de

manicura Restaurantes Centros educativos TiendasTerreno
21.035595 -89.612448 9.6948529 Latitud Longitud Altitud TOPOGRAFÍA RIESGOS Y VULNERABILIDAD MÉRIDA MONTE DE AMÉ 20.9133693 -89.5288942 31.4663131 Latitud Longitud Altitud Ciclonestropicales Tormentaseléctricas Muy alto Bajo Sepuedededucirquelazonaestaen riesgodesufrirciclonestropicales. Lazonanopresentamucho riesgodetormentaseléctricas

Acondicionamiento Ambiental

Asoleamiento

Corte

El mesconmáshorasdesoldiariases mayoconunamediade102horasde sol Entotalhay31623horasdesola lolargodemayo

Iluminación

Este Oeste

LaubicaciónSurestedel proyectopermitetener áreasconmuchoflujo deventilaciónyde asoleamientoporlo tantohaceunproyecto queapuestaporla permeabilidad.

Clima

Vista en planta

Lamenorcantidaddedíaslluviososseespera enfebrero(330días),mientrasquelosdías máslluviosossemidenenseptiembre

Tabla Climática

Lamayorpartedelailuminación naturalentraporelcentroqueune loscuatrovolúmenes,ytambién porlafachadaprincipal

Diagrama de temperatura

Aunatemperatura mediade291°C, mayoeselmesmás calurosodelaño A 23.0°Cenpromedio, eneroeselmesmás fríodelaño

Precipitación

EnMérida,latemperatura mediaanualesde265°C La precipitaciónaproximadaes de734mm.

Humedad

Lahumedadrelativamás bajadelañoesenabril (5453%)

Visuales

ESPACIOS EXTERIORES INTERIORES ESPACIO ARTICULADOR

05

ANÁLISIS FORMAL

IDEA

El objetivo fue responder al encargo del cliente directo, agregando dos factores importantes al proyecto: El contexto inmediato y el usuario final Por lo tanto, se procuró un edificio amable a sus vecinos

El espacio construido se aleja unos metros del paramento y toma la escala de su contexto a través de la perspectiva A su vez, borra los límites entre lo público y lo privado, dejando un vacío entra la banqueta y el espacio edificado

CONCEPTUALIZACIÓN

La forma básica del diseño son cubos conectados por un centro, lo cual permite la conexión de los departamentos y la interacción de los usuarios

A su vez al adoptar esta forma permite que los espacios verdes formen parte del programa.

RECTORA

PRINCIPIOS ORDENADORES

La edificación se basa en una composición simétrica ya que al trazar una línea por el centro se aprecia que los volúmenes mantienen el mismo orden en ambos lados

Simetría Ritmo

Similitud

Se puede observar un ritmo alterno en la fachada, al comparar los elementos de los dos volúmenes

Jerarquía

Juega con los volúmenes resaltando y haciendo más jerárquicos a los que marcan el ingreso

La repetición de elementos por cada nivel genera un ritmo uniforme

Transformación

Teniendo una vista en planta del proyecto vemos una forma elástica articulada por un espacio central

RELACIONES FORMALES

ADICIÓN

En las fachadas se puede observar que las viviendas cuentan con balcones de dos tamaños

SUSTRACCIÓN

Se evidencia la sustracción en varias partes del terreno, ya que trataron de jugar con los volúmenes y los ingresos.

INTEGRACIÓN

El edificio rompe con la masividad de un solo edificio creando cuatro módulos permitiendo así respetar la vegetación existente, y a su vez toman la irregularidad del terreno

06

ANÁLISIS ESPACIAL

Sala/comedor Habitación SS.HH Lavandería Cocina R Directa Leyenda Departamento T1 Departamento T2 R Directa R.Indirecta R Indirecta R Indirecta R.Indirecta R.Indirecta
Departamento T3 Departamento T4 R Directa R.Directa R Indirecta R Indirecta R.Indirecta R.Indirecta R Directa R Indirecta R. Indirecta R. Indirecta R Indirecta R Indirecta R.Directa R.Indirecta R Directa R Indirecta R Directa R Indirecta

La edificación se distribuye en cuatro volúmenes

ORGANIZACIÓN DE ESPACIOS

Cada volumen se divide en tres niveles y en 3 de ellos hay un departamento por cada nivel.

Este es el único volumen que en el primer nivel cuenta con un espacio de comercio, y la distribución de los dos departamentos es distinto al del resto

A diferencia del resto estos departamentos de tipo 4 ocupan dos niveles, por lo cual tienen una escalera en su interior

Espacio interior a otro

Se basa en un eje lineal

Espacio vinculador (espacio de circulación)

Espacios vinculados

Los espacios están articulados mediante una escalera, la cual se encuentra ubicada en el centro de los cuatro volúmenes

Espacios
contiguos (yuxtaposición)

Leyenda

Sala, comedor y cocina Habitación SS.HH Lavandería Espacio principal Espacio secundario Espacio terciario En todos los departamentos se puede observar una jerarquía de acuerdo a la funcionalidad de los espacios, y al espacio que ocupan
Departamento T1 Departamento T2 Departamento T3 Departamento T4

07

ANÁLISIS FUNCIONAL

ZONIFICACIÓN

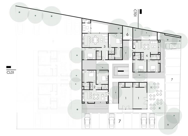
PLANTADELPRIMERNIVEL

DELSEGUNDONIVEL

TERCERNIVEL

Zona de servicio Zona privada Zona social Circulación Leyenda
PLANTA
PLANTADEL
Comercio DepartamentoT1 DepartamentoT2 DepartamentoT3 DepartamentoT4 Cuartodemáquinas Estacionamiento 1. 2. 3. 4. 5. 6. 7. Distribución
PRIMER NIVEL AMBIENTES CANTIDAD Depósitos 3 Comercio 2 SS.HH 9 Sala/Comedor 3 Cocina 3 Dormitorios 6 Estacionamientos 19 Lavanderia 3 PROGRAMACIÓN
SEGUNDO NIVEL AMBIENTES CANTIDAD Sala/Comedor 3 Cocina 5 Dormitorios 6 SS HH 8 Lavanderia 5 8 TERCER NIVEL AMBIENTES CANTIDAD Sala/Comedor 3 Cocina 3 Dormitorios 8 SS HH 8 Lavanderia 3

ACCESOS

Accesibilidadpeatonal Accesibilidadvehicular Bloques Ingresos
FACHADA1 FACHADA2 BLOQUES

TERCER

Accesoaláreadeusocomún Accesoalosapartamentos Accesoaldesplazamientovertical PRIMERNIVEL SEGUNDOAL
NIVEL Comercio DepartamentoT1 DepartamentoT2 DepartamentoT3 DepartamentoT4 Cuartodemáquinas Leyenda

CIRCULACIÓN

Entrada Circulación social Circulación privada Circulación servicio Circulación vehicular Leyenda PLANTADELPRIMERNIVEL PLANTADELSEGUNDONIVEL PLANTADELTERCERNIVEL Comercio DepartamentoT1 DepartamentoT2 DepartamentoT3 DepartamentoT4 Cuartodemáquinas Estacionamiento 1. 2. 3. 4. 5. 6. 7. Distribución

INTENSIDAD DE FLUJO

PRIMERNIVEL

Leyenda

SEGUNDOAL TERCERNIVEL Altaintensidad Mayorintensidad Menorintensidad

ANÁLISIS CONSTRUCTIVO

08

ESTRUCTURA

Elsistemaconstructivodeestaedificación partedeunsistemadepórticos,quepermite unaventilacióneiluminaciónparalos distintosambientesqueseencuentran. Loscimientos,sobrecimientosylas columnas sonhechasabasedeconcretoarmadoy dandoleunacabadodecolorblanco.

ESTRUCTURAL

Muros

Cimentación
Cortetransversal Cortelongitudinal TRAMA

MATERIALES

EXTERIORES INTERIORES Madera COBERTURA Vidrio Pintura ACABADO ACABADO

Turn static files into dynamic content formats.

Create a flipbook
Issuu converts static files into: digital portfolios, online yearbooks, online catalogs, digital photo albums and more. Sign up and create your flipbook.
Estudio del objeto arquitectónico by Milagros_17 - Issuu