My first document

Page 1

PORTFO LIO

MIKAYLA DAWBER
of Detroit Mercy 20192023
University

Welcome.

Mikayla Dawber is a passionate forth year

Architectural Science student at the University of Detroit Mercy, and a recent graduate from the University of Windsor with a Bachelors of Arts in Visual Arts. As a student in both Canada and the United States, Mikayla has learned the importance of design and community development in both countries’ perspectives. Mikayla invests in herself and her education by continuously striving for success in all course content such as design, Environmental impact, and structure and construction.

Mikayla is continuously seeking opportunities that will assist her with developing her design skills and mindset in a professional environment.

01 02 03 04 05 06 07 OUTSAIL OFFICES DIVERGING HOME YMC-ARTS CAPITAL MUSEUM CONTRA HOUSING TECHNICAL DRAWING ARTISTIC CREATIONS

INFORMATION

OUTSAIL OFFICES

DESCRIPTION

Fourth Year Studio Project Location:

Detroit

Collaboration with Julia Farcas. and Diana Bitar

Our integrated design is for an office building located near downtown Detroit. Our main concepts are providing well-being, reducing the overall carbon footprint, connecting to the street conditions and creating safety and approachability. The site is located on Atwater St and Dequindre Cut which is on a 45° from true N-S orientation. This leads for the corner of our site to be in SW which has the most pedestrian traffic, as well as sun and wind path. Since this corner is the most active point on our site, we wanted to showcase this in our design by adding inward balconies. This stepping motion along the ‘West’ and ‘South’ faces help connect to both Dequindre Cut and the River walk adjacent to the building.

01

Having a successful project will integrate the surrounding context and connect to the street conditions – we shifted the storefront on Atwater street back for users to feel welcomed, having an overhang to protect from weather. This includes safety and approachability by ensuring user comfort when entering and exiting the building from any side. As there is an alley way, integrating lighting and greenery help make the 20’ space feel more welcoming which is also the common path from the parking garage. Having a successful project will influence and incorporate efficient and effective design strategies to reduce carbon footprint; passive and active, materiality, climate – we’ve incorporated multiple strategies such as water collection, stack ventilation, natural sunlight with the atrium, putting in PV-T panels on the roof to help reduce our overall EUI and Carbon Footprint by reusing rainwater and heating up water for use within the building.

INFORMATION

DIVERGING HOME

Third Year Studio Project

Location: Detroit

Collaboration with Julia Farcas.

DESCRIPTION

The concept of this project was to create affordable, single family housing within the context of Detroit and its unique environment. This design proposal is a collaboration with Julia Farcas. The home is organized through dividing private and public spaces in the home. The design is able to be easily changed to fit different site contexts, alsong with different family needs. Passive systems are incorporated in the design to acheive a net zero approach to housing efficiency and affordability.

02
SW-NE Site Seciton
Push/Pull Connectivity Ventilation

First Floor

Second Floor

INFORMATION

YMC-AR TS

Third Year Studio Project Location: Detroit

Collaboration with Julia Farcas and Diana Bitar.

DESCRIPTION

This project was to renovate and restore the old Western YMCA building located in Clark Park, Detroit. The goal of this renovation is to create a building arts educational facility for students between the grades of K-12 to participate in programs that educate students of the building arts. Our concept for this project was to emphasis transparancy within a heavy, historical building, and to inspire children to pursue building arts careers. We ulitized the concept of pathways to guide and inspire children of all levels, and to create a connection from the building to the community of mexicantown.

03
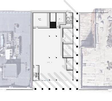
Site plan / Main floor Plan 1/32” = 1’-0” Ceramic Studio 4-8 Classrooms Exhibition Space Design Studio Plot Labs Office Spaces Conference Room Temporary Living Spaces Kitchen/ Cafeteria Second floor Plan Third floor Plan Forth floor Plan
Temporary Living Spaces Kitchen/ Cafeteria Fifth floor Plan Programming Diagram K - 3 4-8 9 - 12 public Administration residence Common Circulation Diagram High traffic Egress stairs Medium traffic Main stairs Low traffic

INFORMATION

C APITAL MUSEUM

Second Year Studio Project Location: Capital Park, Detroit

DESCRIPTION

The project given was to design an infill museum project within Capitol Park. My concept for this project was inspired by the classical architectural style in capitol park. The building design is delicate and very open, while the extrerior columns act as a “protection” element to this delicate building. The design also focuses on daylighting and how it effects the sculptures within the building by having 2 large curtain walls on the exposed facades. There is also an atrium that allows the building to feel more open and transparent.

04
Site Plan 1’-0”=1/128” N

Floorplan 1

Floorplan 4

Floorplan 2

Floorplan 6

Floorplan 3

Floorplan 8

BASE STRUCTURE TEMPERATURE & PRECIPITATION SOLAR CONDITION WIND

CONTR A HOUSING

INFORMATION

Second Year Studio Project

Location: Polish Hill

DESCRIPTION

The project assigned was to design a 5 unit urban housing with work space for each unit. My concept for this project was inspired by The Piraja House designed by Estudio Bra. The architects used narrow floorplans with large windows to allow daylight to flood the space. The Contra Housing design focuses on daylighting and how it effects the residents by utilizing large windows and incorporating an atrium. The atrium also allows for interconnectivity within all units to create community. Spatial organization was developed through a “push and pull” concept to the building mass.

05

INFORMATION

Second Year Project

Vanna Venturi House

TECHNICAL DR AWING

Robert Venturi 06

AR TISTIC CREATIONS

INFORMATION

Personal Sketches, Paintings, and Sculpture Work

07

Turn static files into dynamic content formats.

Create a flipbook
Issuu converts static files into: digital portfolios, online yearbooks, online catalogs, digital photo albums and more. Sign up and create your flipbook.
My first document by mikayladawber - Issuu