Michael Choi Architectural Portfolio 2024-25

Page 1


MICHAEL CHOI

PHONE: (416) 556 - 1454

EMAIL: michael.choi.architect@gmail.com

WEB: linkedin.com/in/michael-choi-466a20138

Architectural Science Graduate working to refine skills in drafting, modelling, and construction documents to establish a career as an architectural designer.

Achievements

2018: FRAKTUR, installation/project

Volunteer during fabrication process of the DesignTO award winning installation.

2016: The Stray Dogs, Published Short Story

MICHAEL CHOI

PHONE: (416) 556 - 1454

EMAIL: michael.choi.architect@gmail.com

WEB: linkedin.com/in/michael-choi-466a20138

Education

2017-2021: Bachelor of Architectural Science

Toronto Metropolitan University, Toronto, ON (formerly Ryerson University)

Experience

January 2023-January 2024: Architectural Designer, JOHO Architecture

Architecture Firm based in Seoul. Venice Biennale lead, Design Competition, Diagrams, Renders.

January 2022-December 2022: Architectural Assistant, SDA Architects

Architecture Firm based in Montreal, QC. Single and Multi-family residential, high-rise, industrial.

April 2022-Present: Design/Build in Training, Meraki Home Services

Toronto based Design/Build and Renovation contractor. Interior design, bathrooms, flooring.

Winter 2019: Art instructor, Toronto Art

Toronto based art studio providing creative space and mentorship for designers.

Self published a short story for an english assignment.

Skills

Construction Documents (see page 37)

Technical Drawings (see page 40)

Illustrations/Animations (see pages 44-56)

3D Modelling

Rendering (see pages 44-56)

Softwares

AutoCAD

Enscape

InDesign

Illustrator

(1 year)

(2 years)

(5 years)

(5 years)

(5 years) (1 year) (5 years)

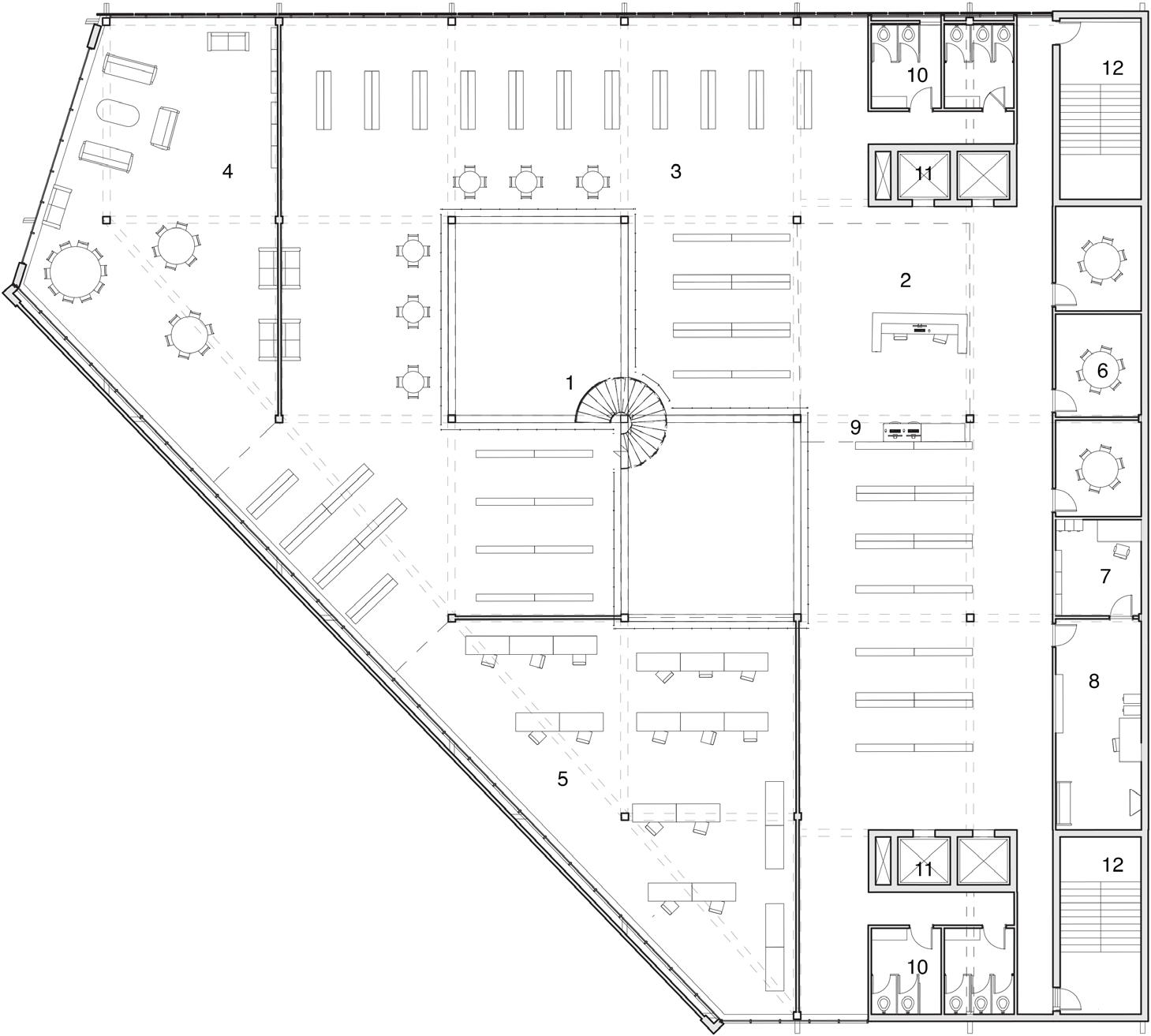
PARKDALE IDEA EXCHANGE

LOCATION: 1187 QUEEN STREET W. TORONTO, ON

COURSE: DESIGN STUDIO IV

The Library “hides” under a skin of concrete panels facing Queen Street, and perforated brick on Sudbury. Most buildings only seem to speak to people through displaying program, which entirely ignores the material properties of the glass it abuses. The Library chooses not to communicate to Queen Street through big openings, but through materiality, structure and light. Exposed columns and beams as well as ornament beams protruding out from the facade indicate the structural grid of the library, reciprocating the understanding between the architecture and observers.

“SECTION C”

DRAWING SHOWN IN 1:450

“SECTION B”

DRAWING SHOWN IN PERSPECTIVE

“TEN METERS”
“GROUND
“THIRD

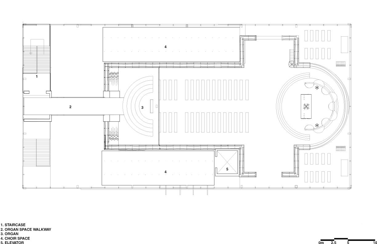
ST. THOMAS CATHEDRAL

LOCATION: 409 FRONT ST. E, TORONTO, ON

COURSE: DESIGN STUDIO VII

The Novus Ordo church reform has brought forth an ambiguity to the church. The mystery and divinity of God is lost, along with the meaning imbued into the sacred space through the traditional latin mass. Reinstating the traditional, one that focuses on the Eucharist and the covenant made between Catholics and God, is demonstrated on this contemporary ressurection of the pre-Novus Ordo method of design. Through sacred materials, forms, light, and intentful design gestures, the St. Thomas Cathedral instills the divinity and mystery of the Trinity through modern means of construction and design. A defining feature is the translucent marble that wraps the traditional church within, seemingly solid during the day and glowing during the night.

GROUND FLOOR PLAN

GROUND FLOOR PLAN

CHURCH UPPER LEVEL PLAN

CHURCH

SECTION B

TABERNACLE

ALTAR TABLE

POTLUCK HOUSE

LOCATION: TORONTO, ON THE HOME COMPETITION 2021

TORONTO IS LARGELY COMPOSED OF IMMIGRANTS, OFTEN FOUND IN SOCIO-CULTURALLY AND PHYSICALLY SEGREGATED CLUSTERS IN THE CITY. POTLUCK HOUSE IS A HOUSING TYPOLOGY FOR TORONTO THAT OFFERS A MORE HOLISTIC FORM OF INTEGRATION FOR IMMIGRATED FAMILIES THROUGH THE CELEBRATION OF THEIR DIFFERENCES—FOOD.

BEYOND MERE NOURISHMENT, POTLUCK HOUSE REINSTATES THE ROLE OF FOOD AS A VEHICLE FOR DISSOLVING SOCIO-CULTURAL BARRIERS. BEYOND A SENSE OF SIGHT, HEARING, AND TOUCH, IT RE-HIGHLIGHTS THE NEGLECTED IMPORTANCE OF SMELL AND TASTE IN CREATING A PROFOUND SPATIAL EXPERIENCE.

POTLUCK HOUSE IS A MULTI-FAMILY HOUSING MODEL IN WHICH SPACES RELATED TO FOOD ARE COMBINED AND SHARED, CONSISTING OF TWO LEVELS OF FIVE RESIDENTIAL UNITS AND ONE DOUBLE-HEIGHT KITCHEN AND DINING ROOM. IN ITS HYPOTHETICAL URBAN CONTEXT OF A CORNER LOT, THE MODULES ARE STACKED IN A TWIST, CREATING TRIANGULAR POCKETS OF OUTDOOR COOKING AND GARDENING SPACES WHICH RE-INTRODUCES THE PRACTICE OF SEASONAL COOKING.

THE CORRIDOR SPANNING THE WIDTH OF THE MODULE DIVIDES THE PRIVATE UNITS FROM THE PUBLIC, GRANDIOSE SPACES OF THE KITCHEN AND THE DINING ROOM, RENDERING THE TRANSITION BETWEEN THE TWO CEREMONIAL AND MEANINGFUL. BY CELEBRATING DIFFERENCES THROUGH FOOD, POTLUCK HOUSE PROPOSES A MODEL FOR A CANADIAN SOCIETY THAT CREATES HARMONY OUT OF INDIVIDUALITY.

PROFESSIONAL WORK

SDA ARCHITECTS INC.

JANUARY 2022 - JANUARY 2023

HIGH-RISE REVIT MODEL IN ENSCAPE

SINGLE-FAMILY HOUSING

REVIT MODEL IN ENSCAPE

PROFESSIONAL WORK

JOHO ARCHITECTURE & DESIGN LAB

JANUARY 2023 - JANUARY 2024

DIAGRAMMING

RENDERS, CATALOGUE, CONCEPT PROPOSALS, ETC.

DESIGN COMPETITION

CONCEPT, DESIGN, MODELLING, PRODUCTION

VENICE BIENNALE / TSE 2023

EXHIBITON DESIGN, PRODUCTION, VIDEO PRODUCTION

MICHAEL CHOI

PHONE: (416) 556 - 1454

EMAIL: michael.choi.architect@gmail.com

WEB: linkedin.com/in/michael-choi-466a20138

Turn static files into dynamic content formats.

Create a flipbook
Issuu converts static files into: digital portfolios, online yearbooks, online catalogs, digital photo albums and more. Sign up and create your flipbook.
Michael Choi Architectural Portfolio 2024-25 by MichaelJaeChoi - Issuu