micah webb portfolio











![]()











I am a fourth year architecture student at Mississippi State University, minoring in both Interior Design and Historic Preservation. I grew up as a military child, so while I am technically from everywhere, I typically refer to Louisville, Kentucky and Biloxi, Mississippi as my hometowns.
Aside from my typical hobbies, such as artistic pursuits and various outdoors activities, I have spent a lot of my collegiate experience serving in different executive board positions. Through this I have found myself in the midst of planning many on-campus events, workshops, participation in lots of community service, won Panhellenic banner competitions, created multiple websites and graphic designs for organizations, and other accomplishments that I would consider to be a result of my hobbies.

In terms of the future, my goal is to become a licensed architectural designer with a heightened sense of community engagement and advocacy, or to experiement with the field of interior architecture and design.
micahwebb02@gmail.com
502-938-3544
Intern Architect Studio Kremer Architects | May 2024 - August 2024
Starkville, MS | Louisville, KY
Assisted in the firm’s building documentation for all steps of the design process and was the primary source of drafting and 3D modelling for intermediate projects. Carried out site visits, created punch lists, edited redlines, attended board meetings, and configured some conceptual designs
Chapter President National Organization of Minority Architecture Students | Apr. 2023 - Apr. 2024
Runs the organization by delegating tasks, cultivating ideas, handling all chapter logistics and bylaws, and leads the design competition team for the annual NOMA conference. Serves on the school’s Director’s Council.
Vice President of Public Relations and Marketing Alpha Chi Omega Fraternity | Feb. 2023 - Dec. 2023
Manages the sorority's aesthetic appearance through social media, apparel, and artworks, while also overseeing organizational aspects of the chapter by upkeeping its calendar, member attendance, and agendas. Leader of the PRM committee, and member of the Executive Board.
Vice President of Diversity, Equity, and Inclusion Alpha Chi Omega Fraternity | Oct. 2021 - Dec. 2022
First member to fulfill the position. Served as the main resource for DEI-related topics and disputes, gave weekly presentations, created monthly newsletters, and programmed DEI activities. Leader of the DEI committee, member of the Executive Board and the Chapter Relations and Standards Board.
Secretary National Organization of Minority Architecture Students | Apr. 2022 - Apr. 2023
Organizes events, generates ideas, and keeps track of organization's objectives and participation. Designed apparel and created the website. Member of the NOMAS executive board.
Rhinoceros 3D
Lumion
Drafting Revit ClimateStudio Graphic Design
Mississippi State University
Bachelor of Architecture - NAAB Accredited
Minor of Interior Design Studies
Minor of Historic Preservation
Expected Graduation: May 2026
Honors: Dean's List
Alpha Chi Omega Fraternity* Diabetes Care Association*
National Organization of Minority Architecture Students Young Women in Architecture Association*
*Founding member of organization/chapter.
Forks of the Road was one of the largest slave markets during its time period, originating after the rapid increase of cotton production.
This design focuses on educating the public about the stories of slavery through an indoor interpretive learning museum and a reflective outdoor memorial space. There is a historic house serving as a cafe, research center, and gift shop, and there are a variety of public outdoors spaces. Every single aspect of the design correlates back to a key feature of the Forks of the Road.























structure + foundation
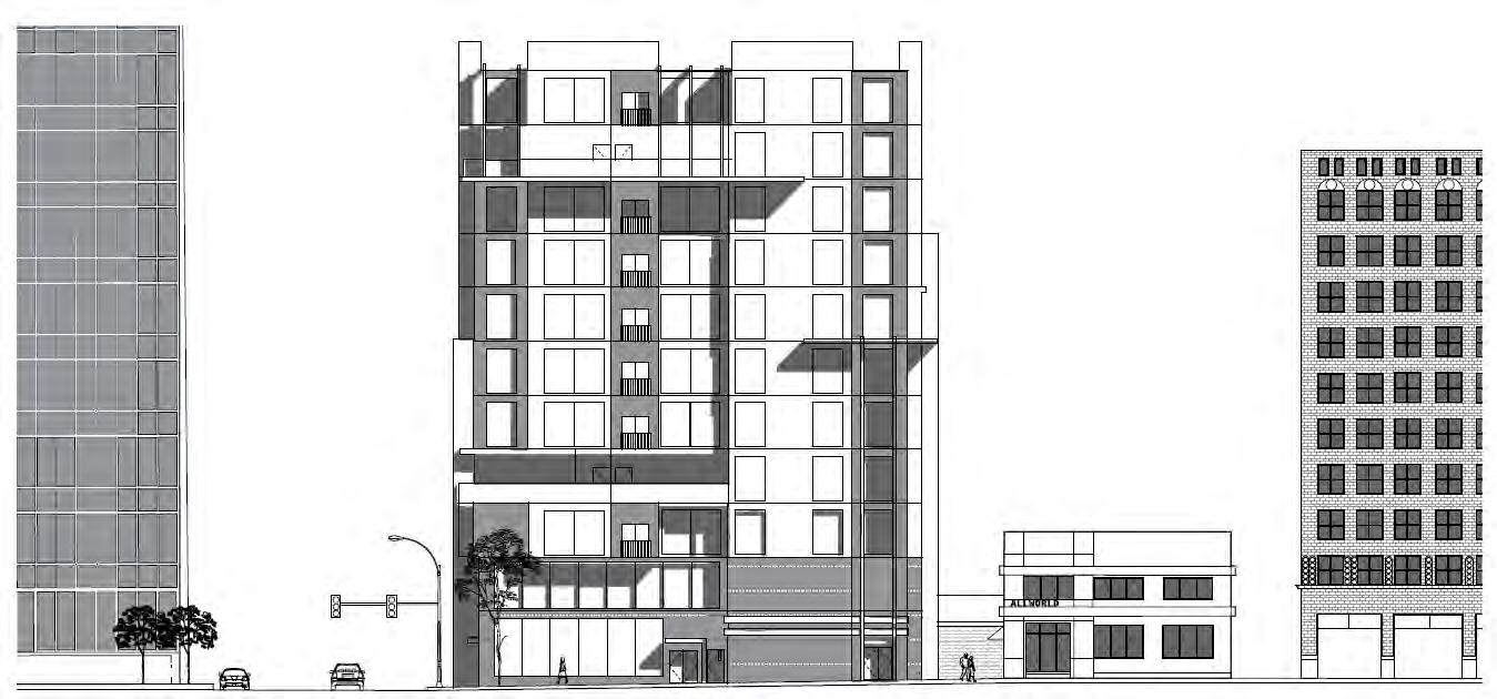
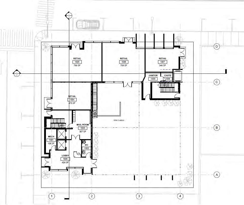
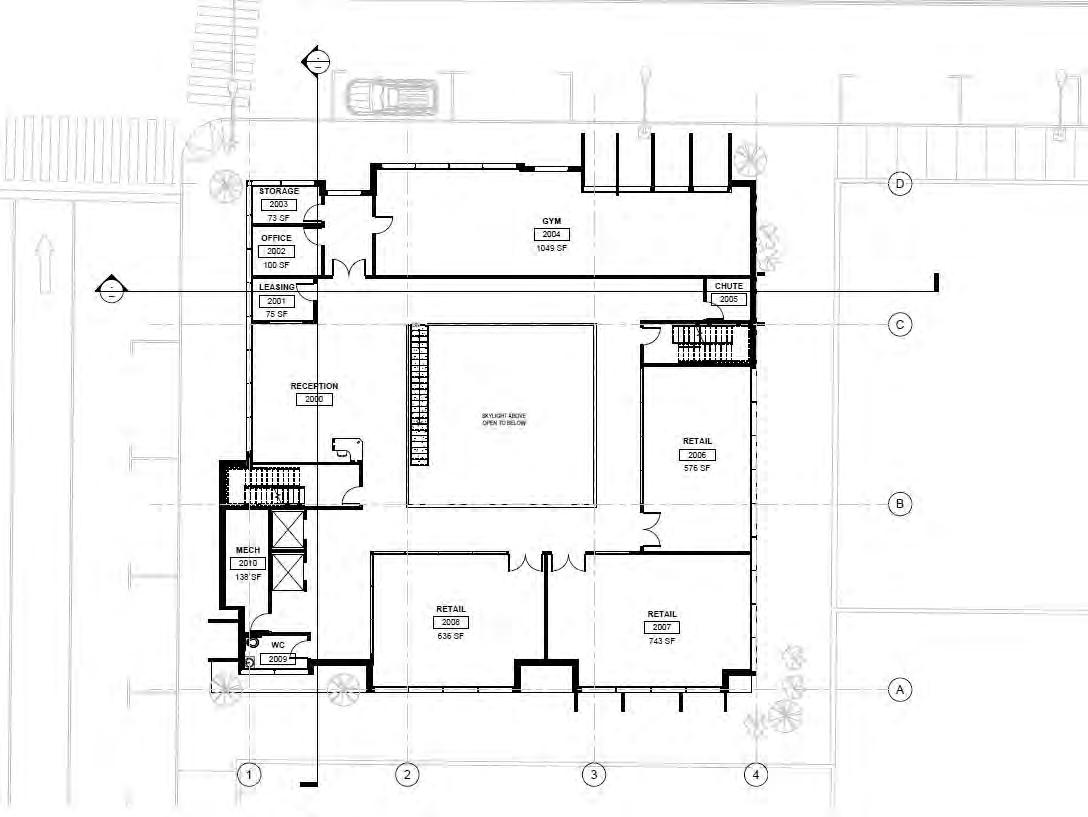
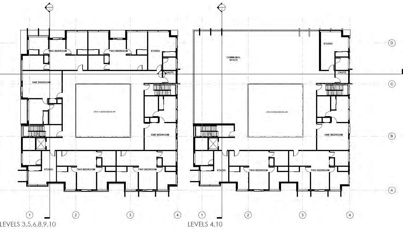
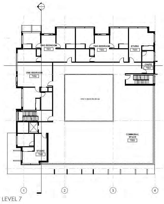
The Stack is a configuration of square-like levels that divides the structure into a public retail space and a residential space. It was designed with lowincome tenants in mind to respond to the rise in Memphis' poverty rate, and provides a sense of greenery and community that downtown Memphis lacks.
It is eleven stories tall and features apartments ranging from studios to two-bedrooms, outdoor communal spaces, and recreational areas.





site analysis sketches


figure ground

conceptual design diagrams experimenting with a stacked form

















bedroom plan

bedroom plan







The Mound Bayou Bank sits among a city that was once a place for formerly enslaved African Americans to have their own land and run their own government. This structure is integral to the community's history, and its current residents are desiring its restoration.
The purpose of the design was to completely contrast the addition to the existing bank building without overshadowing it, as a nod to changing the past without forgetting the lessons it gave us.





south elevation

longitudinal section




east elevation

south elevation

north elevation


west elevation


















