Designing for Camden

Page 1

RICK MATHER ARCHITECTS DESIGNING FOR CAMDEN Now MICA Architects

25 CAMDEN PROJECTS 1971-2016

Since 1971 Rick Mather Architects have developed and worked on a series of high quality and award winning projects within the London Borough of Camden.

The following 25 projects capture many of the strengths of the practice’s approach, displaying our ability to work at all scales, from the intimacy of a penthouse in Covent Garden to the regeneration of a Camden Landmark at Centre Point.

Our projects are often in the most sensitive of contexts and follow our success in securing complex, yet critical, statutory consents. Rick Mather Architects work continues in Camden with new mixed use projects in Holborn, and affordable infill housing in Somers Town.

We take pride in every opportunity to contribute to the future of our borough, and are constantly striving to improve our local communities within Camden. Many of our staff feel strong local ties, whether its living nearby; having been trained or teaching at UCL or Central St Martins; or working with local community theatre groups.

“We are interested in buildings as pieces of the city, in the weave of urban fabric, in making places, in efficiency, in environmental design, in new and old and in sensitive and respectful design.

Moreover, we relish making buildings that people enjoy”

FOREWORD BY IVAN CHRISTMAS 6 DESIGNING FOR CAMDEN 8 25 PROJECTS 10 RECENT WORK 14 CHESTER BALMORE 16 CENTRE POINT 32 ST GILES PUBLIC REALM 44 LINCOLN’S INN 54 GRAY’S INN 70 CROWNDALE & CHALTON STREET 78 HOLBORN LINKS 84 ARCHIVE 96 THE PRIORY 98 NEAL’S YARD PENTHOUSE 104 ALL GLASS EXTENSION 108 WYCHCOMBE STUDIOS 112 ZENW3 116 SELIGMANN APARTMENT 118 HOUSE FOR TWO PSYCHIARITRISTS 120 ARCHITECTURAL ASSOCIATION 122 GLADWELL STUDIO 124 ARCHITECT’S HOUSE NO2 125 COMPAYNE GARDENS HOUSE 128 ARCHITECTS HOUSE NO1 130 CAMDEN AWARDS 132 WHO WE ARE 134 OUR WORK IN OTHER LONDON BOROUGHS 140 CLIENTS & COLLABORATION 150 CONTENTS

FOREWORD

Camden has been the backdrop for a range of remarkable and innovative architectural responses to living and working in the city for many years. From the social housing projects built by Camden in the 1960s, perhaps the most substantial investigation into the architecture of urban housing undertaken in the past half-century, to current preoccupations with ‘place making’ and the promotion of sustainable development, Camden continues to provide a benchmark for architects today.

This book describes an impressive 25 projects spanning the length and breadth of Camden across a range of sectors. Community clearly plays a theme throughout, whether it’s enhancing the public realm with a brand new public piazza at Centre Point; or a sensitive educational addition to the unique and historical Lincoln’s Inn.

Rick Mather Architects’ development of a residential scheme at Chester Balmore, in leafy Highgate, proved to me their unrivalled commitment to exploring every aspect of the design process. Their open approach delivers highly innovative and site specific responses, continuing in the finest traditions of Camden’s architectural heritage. I look forward to the next 25 projects.

RICK MATHER ARCHITECTS 7
Opposite Chester Balmore SENIOR DEVELOPMENT MANAGER AT LONDON BOROUGH OF CAMDEN

DESIGNING FOR CAMDEN

This book was prepared on the theme of “Community” which has us thinking of our contribution to Camden and the office’s role in its changing scene.

The history and evolution of our office is embedded within Camden, and spans over a period of 45 years. Established originally from Rick’s house on Arlington Road - project No.1 in this book - and was funded by the proceeds of a 2nd place design for a new Finnish town. The office followed Rick to his second house in Primrose Gardens in Belsize Park – project No.3 - before its moving current location in Camden High Street in 1992.

Camden, historically perhaps more than any other borough, has heralded the recovery of traditional street patterns, within a modern architectural idiom, and this underpins much of the offices philosophy to this day, and in recent years we have been delighted to work for the borough in delivering new affordable housing at Chester Balmore. Our early office projects show an interest in spatial volumes linking inside to outside and an active street frontage, and this has continued to current projects at Centre Point , Holborn, Lincoln and Grays Inn. Similarly, our projects explore levels of transparency, through sensitivity to context, in defining and creating public spaces which are always in dialogue with the city.

We hope you enjoy it.

8 DESIGNING FOR CAMDEN
GAVIN MILLER PARTNER, RICK MATHER ARCHITECTS

HIGH

GRAY’S

25
CAMDEN PROJECTS
HOLBORN
HOUSE SICILIAN AVENUE HOLBORN LINKS
ROAD & CHALTON STREET
GILES PUBLIC REALM
SELKIRK
CROWNDALE
ST
INN
INN OLD HALL
INN GREAT HALL AND LIBRARY LINCOLN’S INN CENTRE POINT CENTRE POINT AFFORDABLE HOUSING CHESTER BALMORE THE PRIORY HOUSE NEALS YARD PENTHOUSE ALL GLASS HOUSE EXTENSION WYCHCOMBE STUDIOS NW3 ZEN RESTAURANTS SELIGMANN APARTMENT HOUSE FOR TWO PSYCHIATRISTS ARCHITECTURAL ASSOCIATION GLADWELL HOUSE ARCHITECTS HOUSE 2 COMPAYNE GARDENS HOUSE ARCHITECTS HOUSE 1 1971-2016 25 24 23 22 21 20 19 18 17 16 15 14 13 12 11 10 09 08 07 06 05 04 03 02 01
LINCOLN’S
LINCOLN’S
25 18 19 24 11 05 21 01 04 13 06 09 03 04 10 08 02 12 14 17 16 23 22 15 20
25 CAMDEN PROJECTS 1971-2016 ARCHITECTS HOUSE NO.1 PRIVATE HOUSING 1971-1972 COMPAYNE GARDENS PRIVATE HOUSING 1973-1974 ARCHITECTS HOUSE NO.2 PRIVATE HOUSING 1977-1978 ZENW3 RESTAURANT 1985-1986 WYCHOMBE STUDIOS PRIVATE HOUSING 1986-1988 CENTRE POINT AFFORDABLE HOUSING HOUSING, RETAIL 2012 - 2019 CENTRE POINT MIXED USE, RETAIL 2012 - 2019 CROWNDALE ROAD & CHALTON STREET MIXED USE, HOUSING 2015 - ONGOING 01 ST GILES PUBLIC REALM PUBLIC REALM 2012 - 2019 01 02 08 14 20 03 09 15 21
GLADWELL HOUSE PRIVATE HOUSING 1977-1979 ARCHITECTURAL ASSOCIATION MASTERPLAN, EDUCATION, LIBRARY 1977-1984 SELIGMANN APARTMENT PRIVATE HOUSING 1980-1981 ALL GLASS EXTENSION PRIVATE HOUSING 1989-1992 HOUSE FOR TWO PSYCHIASTRISTS PRIVATE HOUSING 1979-1981 NEALS YARD PENTHOUSE PRIVATE HOUSING 1991 - 1993 CHESTER BALMORE MIXED USE, RESIDENTIAL, PUBLIC REALM THE PRIORY PRIVATE HOUSING 1995 - 1997 GRAY’S INN MASTERPLAN, WORKSPACE 2015 - 2018
HOLBORN LINKS MASTERPLAN 2015 SICILIAN AVENUE RETAIL, PUBLIC REALM 2016 - ONGOING SELKIRK HOUSE RESI, PUBLIC REALM 2016HIGH HOLBORN MIXED USE, PUBLIC REALM 2016 -
LINCOLN’S INN MASTERPLAN 2014 OLD HALL LINCOLN’S INN RESTORATION 2014 - 2017
04 05 06 07 10 11 12 13 16 18 17 19 22 23 24 25
GREAT HALL & LIBRARY LINCOLN’S INN EDUCATION, LIBRARY 2014- 2017

RECENT WORK

CHESTER BALMORE CENTRE POINT ST GILES PUBLIC REALM LINCOLN’S INN GRAY’S INN

CROWNDALE ROAD & CHALTON STREET HOLBORN LINKS

CHESTER BALMORE

CHESTER BALMORE

Located in the Dartmouth Park Conservation Area to the south of Highgate Cemetery, Chester Balmore is a sensitive yet contemporary response to the context of Highgate Newtown and the surrounding streets. The new mixed use scheme designed for Camden Council provides 53 residential units and ground floor retail, connecting the neighbouring areas.

The space defining buildings combine terraces, stacked maisonettes, flats, retail and community space into a series of articulated blocks that negotiate between the adjoining Victorian terraces, public park, Victorian library and seventies modernist development.

A unified brick palette gives a coherent and collective identity to the development. The design creates a distinctive character to the street and responds to the context whilst preserving the coherence of the island site.

CAMDEN

Ivan Christmas, London Borough of Camden

18 DESIGNING FOR
“Rick Mather Architects have given Camden an outstanding building that has raised the bar for residential development in London”
1
SEVENTIES MODERNIST DEVELOPMENT CHESTER BALMORE
RICK MATHER ARCHITECTS 19 VICTORIAN TERRACES CHESTERROAD BALMORESTREET RAYMOND STREET 2 3 03 01 02 06 05 07 04 08 01 Chester Balmore 02 Seventies Modernist Housing 03 Victorian Terraces 04 Playground 05 Highgate Library 06 Highgate Cemetery 07 Brookfield School 08 To Community Centre
1 South east elevation highlighting relationship to neighbouring residential typologies 2 View north from Chester Road 3 Site axonometric

CREATING A SEQUENCE OF GREEN SPACES

A green route re-establishes the historic public right of way to the east of the site The route connects the development to the surrounding built fabric improving the existing public way provides greater passive surveillance and safety of the route

ADDRESSING SURROUNDING CONTEXT & DEFINING EDGES

Buildings are positioned to relate to their surrounding context

Existing building lines are respected and reinforced. Ground level activity is provided by retail units

HIGHGATE NEW TOWN COMMUNITY CENTRE BROOKFIELD ESTATE HIGHGATE CEMETERY RAYDONSTREET BALMORESTREET CHESTERROAD BERTRAM STREET CROFTDOWN ROAD HIGHGATE LIBRARY PLAYGROUND 01 02 03 04 05 06 07 01 Chester Block 02 Raydon Block 03 Balmore Block 04 Secure Communal Garden 05 New Public Square 06 New Public Path 07 Improvement to Junction

CHESTER BALMORE FOSTERING COMMUNITIES

The three blocks are orientated around a secure central community garden, developed in collaboration with Charnwood Landscape Design, and a public route to the east.

The new development includes an anchor convenience store, relocated community centre, doctors surgery, bakery, and pharmacy. This understanding of the types of uses and facilities which enliven and activate the street is a feature of many of our projects and helps our buildings engage with the community in which they sit.

During the design RMA facilitated and led a session at Brookfield Primary School, spending time with two year groups, explaining the role of an architect and inviting ideas for the site.

RICK MATHER ARCHITECTS 21
1 Ideas for the site from Brookfield School children
1 2
2 Photos from Chester Road showing new public square and route through site

CHESTER BALMORE A DIVERSE RANGE OF ACCOMODATION

The development provides 53 residential units in total with 51% designated as affordable housing. The development is designed to be ‘tenure-blind’ and an even distribution of tenure types will help foster a truly integrated community.

There is an emphasis on providing good quality family housing. Camden Planning Policy identified a need for large family housing - the original buildings did not contain any – therefore 9 new large family homes are provided in the form of three and four bedroom maisonettes, all with generous outside space.

Of the additional affordable housing content, 85% are social rented and 15% are intermediate housing units. This went over and above Camden policy and was in part a reflection of the local need for large family units for council rent in Highgate Newtown.

22 DESIGNING FOR CAMDEN
02 03 01 01 Chester Block 11 UNITS 2 AND 4 BED MAISONETTES 02 Raydon Block 21 UNITS 2 BED MAISONETTES AND 1 BED FLATS 03 Balmore Block 21 UNITS STUDIOS, 1 AND 2 BED UNITS
I was going to wait until your Chester Road job was finished but your scheme is wonderful – both stand-alone and in context. So hearty congratulations – 10/10.”
Local resident, unsolicited email 2014
24 DESIGNING FOR CAMDEN 1 2 3
“Chester Balmore is proof that high quality sustainable homes can be built in complex inner city sites whilst being highly specific to context and historic settings”
Max Fordham, Civic Trust Awards National Panel 2015 1 Chester Road frontage 2 Balmore Street frontage 3 Communal gardens
RICK MATHER ARCHITECTS 25 1 2 4 4 5 3 3 3 CHESTER ROAD ELEVATION BALMORE STREET ELEVATION SECTION THROUGH COURTYARD 03 03 03 04 04 05 01 02 01 Communal gardens 02 Communal terrace 03 Private garden 04 Private terrace 05 Private balcony
26 DESIGNING FOR CAMDEN
“The Chester Balmore scheme in Camden is an excellent example of thoughtful energy conscious design that fits well in its context.”
David Prichard, Civic Trust Awards National Panel 2015
RICK MATHER ARCHITECTS 27
28 DESIGNING FOR CAMDEN 1 1 2 2 3 3 3 3 3 3 5 9 5 4 4 7 UNIT TYPE 2 2-BED MAISONETTE AXONOMETRIC UNIT TYPE 2 3-BED MAISONETTE AXONOMETRIC UNIT TYPE 1 2-BED MAISONETTE AXONOMETRIC UNIT TYPE 1 3-BED MAISONETTE AXONOMETRIC 01 Kitchen/Dining 02 Living 03 Bedroom 04 Bathroom 05 WC 06 Utility Cupboard 07 Sunkern Terrace 08 Balcony 09 Terrace 10 Garden 01 01 01 01 02 02 09 02 02 03 03 03 03 03 03 03 03 03 03 04 04 04 04 05 05 05 05 10 07 07 07 08

CHESTER BALMORE

QUALITY HOUSING

Returning to Camden’s tradition of architectural innovation and quality, we have incorporated delight and interest within the internal spaces. With double-height and interlocking unit forms we kept the efficiency of the site high, but give space for each unit to orientate and respond to the context, with long views, light and space maximised.

Chester Balmore will set the benchmark for new, high quality sustainable housing. It demonstrates how a unique design, sensitive to its historic and varied context can also achieve the highest possible environmental and sustainability standards.

Shortlisted as ‘Best New Place to Live 2014’ for the London Planning Awards.

RICK MATHER ARCHITECTS 29
1 2
1 2-bed maisonette kitchen/dining space 2 2-bed maisonette living space

EXCEPTIONAL ENVIRONMENTAL STANDARDS

The development has been designed to ensure low energy consumption and high levels of resident comfort. Camden’s approach has been to tackle fuel poverty at source by keeping energy consumption at a minimum and RMA’s ambitious Passivhaus scheme matches these ideals.

This approach will ensure new residents will have significantly reduced energy bills and lower cost of living. Adopting the principles of Passivhaus the development provides exceptionally well insulated walls, triple glazed windows and an extremely airtight building envelope to ensure energy in conserved within the fabric of the building. Space heating is kept to a minimum as a result and a whole house mechanical ventilation system ensures good airflow within the home.

The development makes use of renewable energy sources in the form of photovoltaic panels on the roof to provide electricity to the development. The development also employs green and brown roofs and a well planted landscape to promote biodiversity.

30 DESIGNING FOR CAMDEN
BOILER HEAT EXCHANGER PHOTOVOLTAIC PANELS RAINWATER HARVESTING TANK 2 2 4 6 3 3 5 7 03 01 02 08 04 05 06 07
“What makes Chester Balmore unique is how the PassivHaus standard is achieved given the form brought about by the highly specific response to the site; this is a very real achievement”
London Borough of Camden
01 Heating and hot water 02 Combined heat and power 03 Solar energy 04 Photvoltaic panels 05 Highly insulated building fabric 06 Rainwater harvesting 07 Green and brown roofs 08 Ventilation

CENTRE POINT

CENTRE POINT

TRANSFORMING A CAMDEN LANDMARK

At Centre Point Rick Mather Architects have been leading the design team, working alongside Conran and Partners, in the refurbishment and transformation of the iconic and Grade II Listed tower for developer Almacantar.

At 117m high, Centre Point was London’s tallest office tower when completed in 1965. The new proposals will look to transform the office building and public realm into a new residential use tower with retail, restaurants and a major public space at its base.

This has involved taking a controversial, and much maligned icon, and through a number of key moves look to regenerate and transform this critical piece of London. In gaining consent in 2013, we had to build a strong and complex argument, considering both the change of use of the tower from office to residential, and also wider improvements to its base and setting.

“We applaud the design team and the client for the sensitive approach taken to redeveloping the Centre Point complex that should breathe new life into a much loved London landmark”

34 DESIGNING FOR CAMDEN
RICK MATHER ARCHITECTS 35 Office to Residential & Restoration Restoration & New Retail/Leisure New Build Housing 04 02 01 03 06 05 01 Centre Point Link 02 Centre Point House 03 Centre Point Tower 04 New Build Housing 05 New Public Square 06 Station Public Realm

CENTRE POINT

RESTORING THE LISTED BUILDING

Our approach seeks to retain the buildings iconic features whilst ensuring a sustainable future and creative re-use of existing spaces. The final proposals are simultaneously true to the original 60’s design intent and dramatic, making the re-imagined building a better version of itself, capturing and reinventing many original finishes and details previously unseen.

1 Existing materials

2 Cross section revealing double height spaces and stacked columns

The design has significant structural alterations the ground and first floors have been extensively opened up to create expansive and continuous glazed frontages that will allow new public realm to flow through the ground level of Centre Point to New Oxford Street.

New commercial spaces (BREEAM

Excellent) will look to harness the heroic character of the original building, providing extraordinary spaces and base shells that can retain original and valuable characteristics alongside commercial flexibility for the tenant.

RICK MATHER ARCHITECTS 37
1 2

CENTRE POINT

CREATING NEW RETAIL

Key to the success of the scheme is unlocking its potential value. At Centre Point we are adding 4,200sqft of retail provision. The space below the bridge will be partially enclosed to create two new restaurant units, its vast floor will acquire an axial mezzanine level to offer a total of 1,270sqm, creating a highly visible frontage and display, and the second floor will open on to outdoor terraces either side.

Retail continues under Centre Point House, and between the first and second floors in the podium box below the housing, a ceiling slab is coming out to make another long double height space between the concrete staggered square facades, which will become fully glazed.

1

1 Exploded Axonometric

2 Perspective from new mezzanine level in bridge, looking out over New Oxford Street

3 New double height spaces in Centre Point House

4 New mezaanine in bridge looking out over new public square

5 New restaurant below bridge creating enclosure to public square

RICK MATHER ARCHITECTS 39
2 4 3 5
40 DESIGNING FOR CAMDEN
RICK MATHER ARCHITECTS 41
42 DESIGNING FOR CAMDEN 1

CENTRE POINT PROVIDING AFFORDABLE HOUSING

Working with Almacantar we have developed proposals for a small site within the complex to provide new high quality affordable housing, connected to the existing building. The new building provides 13 new units above retail, including 40% family housing within a constrained and awkwardly shaped site joined to the existing listed complex and accessed via a new core.

The resultant addition makes a distinctive contemporary building, reflecting the adjoining proportions and architectural language of the listed building, whilst being heroic and contemporary enough to stand alongside its impressive neighbour as a proud place to live.

The design does not seek to recede into a quieter pastiche, but uses carefully controlled large glazed openings to take full advantage of the panoramic views across London.

RICK MATHER ARCHITECTS 43
1 New housing block adjoining existing structure 2 Design development showing views from apartments, model, and testing of facade pattern
2

ST GILES PUBLIC REALM

ST GILES PUBLIC REALM

Rick Mather Architects have been developing a holistic public realm design for the St Giles area. The plan consolidates a series of sites under different ownerships into one overall vision, improving connections, access, activity and attractiveness, whilst creating a distinctive identity for the area.

The scheme incorporates part of London Borough of Camden’s £41m ‘West End project’, to regenerate the Tottenham Court Road (TCR) area from Euston Road to Cambridge Circus, as well as Almacantar’s redevelopment of Centre Point and other neighbouring schemes.

Historically, this area has been dominated by busy roads with narrow and cluttered pavements restricting pedestrian movements. The proposal aims to reduce congestion and pollution, creating more pedestrian friendly spaces with widened footways, tree lined streets and protected cycle lanes.

The new Tottenham Court Road Crossrail Station has acted as a catalyst for the development of the surrounding site and Rick Mather Architects have played a key role leading the co-ordination of the emerging site parameters and level design.

01 Design of Totenham Court Road Station Public Relam

02 Design of a new world class public Square at the base of Centre Point

03 Urban Realm design around St Giles in the Fields

04 Connections to Oxford Street

05 Connections to Soho

06 Connections of the British Museum

07 Connections to Covent Garden

46 DESIGNING FOR CAMDEN
02 03 01 04 05 06 07 NEW OXFORD STREET OXFORD TOTENHAM COURT ROAD CHARING CROSS ROAD STATION DENMARK STREET CENTRAL ST GILES ST GILES IN THE FIELDS
RICK MATHER ARCHITECTS 49 3 4 2 1
1 St Giles public realm drawing 2 Bespoke bench design 3 Visual of bespoke patterned paving and angular furniture design 4 Detail plan and section of tree pit and surrounding paving design
50 DESIGNING FOR CAMDEN 1 2
1 Public Realm drawings for the new square 2 Bespoke bench and planter design 3 Visual of the new square

ST GILES PUBLIC REALM

A NEW CAMDEN SQUARE

A key centrepiece of the scheme is the new public space created between Centre Point through the closure of Andrew Board Street and St Giles High Street, which provides a key new connection between Oxford Street and Covent Garden.

Building from previous plans for public space at the new Tottenham Court Road / Crossrail Station, we led traffic modelling negotiations and discussions and designs for a new public square. With the road removed there is opportunity to provide greater enclosure to the northern end of the square with an elegant and minimal glazed retail unit that opens onto the new public space to the south.

The design of the Centre Point refurbishment has been developed to help drive momentum for this new public space. Significant structural alterations extensively open up the ground and first floors to create expansive and continuous glazed frontages that will allow the public realm to flow through the ground level of Centre Point to Earnshaw Street and adjacent Central St Giles, or to New Oxford Street to the north.

RICK MATHER ARCHITECTS 51
3

1 2 3

Seasonal views of tree selection in Centre Point square Section through tree base showing detail design

Physical model showing central public square and improved visibility across the site

At Centre Point Rick Mather Architects have been leading the design team in the refurbishment and transformation of the iconic and Grade II Listed tower for developer Almacantar. This has involved taking a controversial, and much maligned icon, and through a number of key moves look to regenerate and transform this critical piece of London. In gaining consent in 2013, we had to build a strong and complex argument, considering both the change of use of the tower from office to residential, and also wider improvements to its base and setting. This redevelopment is part of a wider transformation of the St Giles area and an opportunity to reconnect St Giles back into the wider city. Building from previous plans for public space at the new Tottenham Court Road / Crossrail Station, we led traffic modelling negotiations and discussions and designs for a new public square. With the road removed there is

opportunity to the northern elegant and opens onto south.

The design drive momentum Significant open up the expansive that will allow through the Earnshaw Giles, or to Relocating space to has helped

52 DESIGNING FOR CAMDEN
1 2

opportunity to provide greater enclosure northern end of the square with an and minimal glazed retail unit that onto the new public space to the

design has been developed to help momentum for this new public space. Significant structural alterations extensively the ground and first floors to create expansive and continuous glazed frontages allow the public realm to flow the ground level of Centre Point to Earnshaw Street and adjacent Central St to New Oxford Street to the north.

2

Relocating as much service and ancillary basement level within the building helped minimise blank frontage and 3

LINCOLN’S INN

LINCOLN’S INN

The Honourable Society of Lincoln’s Inn estate dates back to the 14th century and has been a major centre for the legal profession for over 500 years. The picturesque campus sits adjacent to the largest public square in Camden and the whole of London, and combines great halls, houses and courtyards of varying styles and periods.

RMA have looked extensively at the estate strategically analysing ways in which the Inn can significantly improve its library, education, office, administrative and accommodation facilities within the historic campus. Following historic research and a comprehensive review of both the rich and varied building stock and of the unique historic squares and gardens, a series of solutions were proposed.

The first element of the project will introduce a new library and administration building providing additional library storage, a new library reading room and office accommodation, with connections made between the existing Library and the new building.

A second building is proposed below the existing east terrace of the Great Hall, providing new education facilities for the Inn’s expanding advocacy training programme, including advocacy training/ seminar rooms, a lecture theatre and event and social space. Connections to the existing building will be made and a new entrance will be provided. The third element of the project involves essential refurbishment works to the Great Hall along with improvements to the catering and welfare facilities and restoration of the Old Hall.

56 DESIGNING FOR CAMDEN
RICK MATHER ARCHITECTS 57 01 02 03 04 05 Old Hall Refurbishment Great Hall Refurbishment East Terrace Development Library Extension New Square Development 01 02 03 04 05 01 02 03 04 05

LINCOLN’S INN RESTORATION WORK

Lincoln’s Inn is unique; in developing our proposals we have meticulously studied the history and evolution of the building, carrying out a forensic analysis of the existing building fabric to understand the constraints and limitations that affect the proposed development in and around the Old Hall, Great Hall and Library building.

The proposed works to the Great Hall seek to reinstate many of the original characteristics and user experiences that have been altered or lost over the centuries. By renewing use of the grand external entrance stair and re-opening the impressive arched entrance under the clock tower, the procession into the Great Hall becomes, once again, an enviable experience. The works will also replace the 20th century maple flooring with a new oak floor which replicates the original.

Essential restoration and refurbishment at the Old Hall has already been completed, compromising of a refit of the existing kitchen, minor refurbishment works to the crypt, repair of the flooring in the hall, replacement of existing timber escape stair and a new public platform lift between basement and ground floor.

58 DESIGNING FOR CAMDEN
1 Historic features of Great Hall 2 New stair at Old Hall 3 Old Hall
1
4 New flooring in Old Hall
RICK MATHER ARCHITECTS 59
“The significance of Lincoln’s Inn is well known...it is a place like no other in Camden, an exceptionally well preserved lawyer’s inn with a strong collegiate character.”
2 3 4
Historic England

1.5

GREAT HALL & LIBRARY PROJECT STATEMENT OF SIGNIFICANCE INTRODUCTION

1.5 HISTORICAL DEVELOPMENT OF LINCOLN’S INN FIELDS

Lincoln’s Inn Fields is the largest square in London. It has undergone substantial and significant transformation over the last 350 years from rural fields to the mature square it is today. Throughout much of that history, The Honourable Society of Lincoln’s Inn has played a vital role in defining and protecting the field.

Lincoln’s Inn Fields has been managed by various third parties foralmost280years.Throughoutthattime,thefieldsthemselves havechangedremarkablylittle,withthemostnotableexception beingthecreationofacafe,andtenniscourts.

In 1618, a commission was appointed to by the King to survey thefieldsandlayoutwalksforthebenefitofthecity.Whilstlittle came of this commission, in 1638, the construction of houses began around the perimeter of the fields, beginning with a row ofhousestothewest,onPurseField.

1n 1657, the north and south sides of Cup Fields began to be developed. At this time, the Inn purchased the remainder of the fields and leased them back to William Cowper and Robert Henleyona900yearlease.

As can be seen from the late 16th century map opposite, the square now known as Lincoln’s Inn Fields was once open land and divided up into Cup Field, Lincoln’s Inn, Purse Field, and Fickett’sField.PartlyusedaspasturegroundsfortheCrown,the fieldshavebeenanimportantpartofthesociallivesofLondoners sincethelate14thcentury. Thesefieldsremainedrelativelyundisturbeduntilthebeginning ofthe17thcenturywhenasuccessionofpetitionsweremadeto theKingtoenablethebuildingofhousesaroundthefield.

In 1666, Lincoln’s Inn Fields became the temporary home for manyLondonerswhohadlosttheirhomesintheGreatFire.In 2009,theChannel4programmeTimeTeamdiscoveredevidence oftemporarystructuresfromthistime.

In 1734, an Act of Parliament was passed that enabled the residentsofLincoln’sInnFieldstoelecttrusteestoenclose,clean and maintain the field.

STATEMENT OF SIGNIFICANCE (

60 DESIGNING FOR CAMDEN RICK MATHER ARCHITECTS 14
Map of portion of the parish of St. Giles-in-the-Fields showing Lincoln's Inn Fields in 1911. Extract from map by Morden & Lea showing Lincoln’s Inn Fields in 1682 The Fields of Lincoln’s Inn at the end of the 16th century, based upon old plans and particulars contained in ancient deeds THE HONOURABLE SOCIETY OF LINCOLN’S INN Great Hall & Library Project Statement of Significance July2015 RICKMATHERARCHITECTS 123CamdenHighStreet, London,NW17JR t. 02072841727 e.Info@rickmather.com

LINCOLN’S INN HERITAGE ASSESSMENTS & DETAILED ANALYSIS

Rick Mather Architects have produced reports outlining the significance of the heritage assets affected by the proposals. The ‘statement of significance’, provides an account of the cultural and natural heritage values associated with the Great Hall and Library, 15 New Square ‘The Garden House’, and The Old Hall, assessing how they inter-relate to create the particular character of the Lincoln’s Inn.

Furthermore, the statement of significance explains the relative statutory importance of the associated heritage values, how they relate to the physical fabric.

RICK MATHER ARCHITECTS 61
33 RICK MATHER ARCHITECTS STATEMENT OF SIGNIFICANCE Issue PL1) Original Philip Hardwick drawing showing the Ground Floor Plan as proposed in 1843 (reproduced from HSLI archives) Original Philip Hardwick drawing showing the First Floor Plan as proposed in 1843 (reproduced from HSLI archives) Original Philip Hardwick drawing showing the Basement Floor Plan as proposed in 1843 (reproduced from HSLI archives) Original Philip Hardwick drawing showing the Second Floor Plan as proposed in 1843 (reproduced from HSLI archives) HISTORICAL CONTEXT 23 RICK MATHER ARCHITECTS STATEMENT OF SIGNIFICANCE Issue PL1) This view recalled by Spilsbury remains virtually unchanged to this day. Whilst the surface of the terrace itself has been significantly transformed so as to relate more to the bound gravel of the landscaping than a terrace for the Great Hall, from this vantage point it is possible to see each major building phase throughout the Inns history including; Old Hall (1491-94 - rebuilt in 1925-8), The Chapel (1619-23), 12-13 New Square (1534), 1-11 New Square (1690-97), 8-10 Old Buildings (1774), 1-6 Stone Buildings (1778-85), Stone Buildings (1843-5), The Great Hall and East Terrace (1845), The Library (1873). Each of these buildings contributes to the unique setting of the Great Hall and Library, and therefore as well as each being heritage assets in their own right, they each contribute to the significance of the Great Hall and Library. More detail on each of these buildings is given below along with their designated status. In contrast, the setting to the east of the Great Hall and Library that exists today has emerged fortuitously since the original construction of the Great Hall and Library. As witnessed today, there is striking and significant compositional and historically associative relationship between the Great Hall and Library of Lincoln’s Inn (completed in 1845), the Royal Courts of Justice (completed in 1882), and the former Land Registry Building (completed in 1862). As such the view along Newman’s Row can be seen to embody significant period in the development of the UK legal system, with both the Royal Courts of Justice, and HM Land Registry having significant historical associations with the Inn. HSLI View from East Terrace toward Stone Buildings Old Buildings (Photo credit: RMA 2015) HSLI View from East Terrace toward The Chapel, The Old Hall, and New Square (Photo credit: RMA 2015) The Old Hall, 1491-94 (rebuilt 1925-8) 12-13 New Square, 1534 1-11 New Square (1690-97) The Chapel, 1619-23 8-10 Old Buildings, 1774 Stone Buildings, 1843-5 1-6 Stone Buildings, 1778-85 The Great Hall East Terrace, 1843-5 The Library, 1873 HISTORICAL CONTEXT
62 DESIGNING FOR CAMDEN

LINCOLN’S INN

EAST TERRACE DEVELOPMENT

RICK MATHER ARCHITECTS 63

LINCOLN’S INN EAST TERRACE DEVELOPMENT

The Great Hall and Library is the collegiate heart of the Inn, with many of the Inn’s core functions taking place in and around the building. The proposals for a new education suite will place education back at the heart of the Inn, reinforcing it as one of the Inn’s core functions.

Links to the Great Hall and Library building will benefit both the daily operations and life at the Inn and meet the need for improved educational and training facilities. The new building will provide the Inn’s students and members with high quality teaching facilities that are linked to the other core functions within the Great Hall.

The new building will provide high quality, state-of-the-art education spaces within a purpose built facility. The flexibility of the new education space will also allow other functions to benefit, such as their use for the Inn’s internal committee meetings when not used for educational purposes.

The new East Terrace Education Suite will consist of 10 flexible advocacy training rooms - 5 on each level; 150 seat retractable lecture theatre - also providing a large flat floor spaces for mock trials; a new southern entrance providing wheel chair access to the great hall; and improvement to the external terrace including extensive wheelchair accessible re-surfacing.

64 DESIGNING FOR CAMDEN
1

2

3

4

“RMA presented a well thought out, considered approach to the Lincoln’s Inn masterplan. Their fresh, innovative ideas, combined with a thorough understanding of the sensitivities of a heritage site, offer us the opportunity to address current practical issues revealing exciting opportunities for future development”

Mary Kerr, Under Treasurer 2013

RICK MATHER ARCHITECTS 65
1 Section through proposed basement under the East Terrace Interior view from upper floor with views through the roof light to the historic fabric Interior view from lower floor
2 3 4
Landscaping features developed with Jeremy Rye tying the development into the existing character of the Inn

LINCOLN’S INN

NEW LIBRARY EXTENSION

68 DESIGNING FOR CAMDEN
1 Proposed view from Lincoln’s Inn showing new accessible connections to the main library 2 Sketch view of interior highlighting visual connections to the historic fabric 3 Existing
1 3 2
4 East Elevation

LINCOLN’S INN NEW LIBRARY EXTENSION

RMA’s proposals for a library extension addresses the need of more space by removing a poor quality 1960’s addition to the Inn and replacing it with a new high quality, finely detailed building sympathetic to the context and blended with the existing Great Hall and Library.

The design makes reference to the existing through its form and materiality, and the interiors open up views to the historic fabric.

A new basement is contiguous with the existing basement library storage to accommodate the Inn’s growing collection of books. A new reading room within the new building at first floor level, accessed from the main library.

Two levels of office accommodation for the Estates and Finance departments. Wider improvements to surrounding landscape that will enhance the setting of the Great Hall and Library.

RICK MATHER ARCHITECTS 69
4

GRAY’S INN

GRAY’S INN

The refurbishment of 19-21 High Holborn is an important project for The Honourable Society of Gray’s Inn. The proposals will reinforce the Inn’s presence on High Holborn by sensitively restoring and upgrading the original entrance gateway into the Inn and improving the appearance and environmental performance of the 1960s structure adjacent.

The office and retail facilities in the current building are wholly inadequate. The refurbishment of 19-21 High Holborn will bring the building up to current standards and allow it to continue to support one of the primary functions of the Inn, providing high-quality office and chambers space along with improved porter’s accommodation.

The proposals are respectful of the setting of Gray’s Inn and the Bloomsbury Conservation Area and will significantly improve both the appearance of the current building and enhance the setting of the Conservation Area. The proposed designs are both sympathetic to the historic setting in the Inn whilst at the same time responding to the busy, urban environment of High Holborn.

RICK MATHER ARCHITECTS 73
2 3 1 4
GRAY’S INN GARDEN SETTING HIGH HOLBORN STREET SETTING 19-21 1 Proposed view from High Holborn 2 Gray’s Inn garden setting character 3 High Holborn street setting character 4 Existing section through development and character areas

GRAY’S INN

THE GATEWAY & ROUTES

Improvements to the ground level route between High Holborn and the Inn will provide significant public benefit, enhancing the visual appearance of the gateway and providing an improved pedestrianfriendly, well-lit passage. New landscaping to the ‘paddock’ area will further enhance this well used route and entrance into the Inn.

The restoration of the listed facade of no.21 High Holborn will safeguard it’s importance both in the streetscene of High Holborn and its pairing with the Cittie of Yorke public house adjacent. Sensitive restoration of the facade and replacement of poorer quality materials will reinstate the original significance of the building as the entrance to Gray’s Inn.

Improved appearance to the route between High Holborn and the Inn. New hard landscaping, wall finishes and lighting will enhance the entry into the Inn and create an enhanced, more accessible entry into the refurbished buildings.

1 Improvements to the listed gateway facade

2 New hard landscaping improving the public routes

3 Improved paddock area

74 DESIGNING FOR CAMDEN
HIGH HOLBORN GRAY’S INN SQUARE THE WALKS SOUTH SQUARE THE PADDOCK STATION GRAY’S INN ROAD
RICK MATHER ARCHITECTS 75 1 2 3 2 3

GRAY’S INN

A NEW FACADE

The refurbishment of no.19 High Holborn provides an opportunity to engage with the scale and variety of the High Holborn streetscape and enhance the setting of the listed facade adjacent. The proposals will remove the dark and oppressive 1960s facade and provide a lighter, more dynamic facade that reinforces the building’s prominent position on High Holborn.

The scale and form of the building has been extensively examined to ensure it not only enhances the streetscape and setting of the listed building but also that it does not negatively impact on the unique character of the area and the backdrop of the Inn.

Comprehensive redevelopment of no.19 High Holborn to provide modern, environmentally sustainable office accommodation. Additional floorspace will be provided to the rear and top of the building and a new facade will lift its appearance and enhance the setting when viewed from within the Inn.

RICK MATHER ARCHITECTS 77
1 Proposed facade from High Holborn
1 2
2 Existing facade

CROWNDALE ROAD & CHALTON STREET

80 DESIGNING FOR CAMDEN 01 02 02 03 03 01 02 03 01 CROWNDALEROAD OAKLEY SQUARE CAMDENSTREET GOLDINGTON CRESCENT REGENT HIGH SCHOOL GOODWIN & CROWNDALE ESTATE CHALTONSTREET 01 Opportunity areas for making it safer for people to walk around the estate 02 Opportunity areas for new housing 03 Opportunity areas for safe and varied play spaces and facilities for all ages 1 Surrounding area 2 Sketches of initial proposals 1

CROWNDALE ROAD & CHALTON STREET

Rick Mather Architects are currently working with the London Borough of Camden, alongside Charnwood Landscape, to work up designs for a mixed tenure residential scheme as part of the council’s 15 year Community Investment Programme.

The infill sites, located on and around the Godwin and Crowndale estate on Crowndale Road, aims to provide new homes, helping Camden to meet the increasing housing needs of the borough. These complex sites will require the highest quality of urban design and extensive community consultation to provide appropriate developments in complex local contexts, and will provide a range of unit types including large family homes.

RICK MATHER ARCHITECTS 81
2

CROWNDALE ROAD & CHALTON STREET

A NEW DEVELOPMENT MODEL

As part of a borough-wide Community Investment Programme, Camden Council is pursuing an innovative model of development which aims to build on small pieces of land in public ownership to provide new housing and generate investment in its existing estates. Infill development of this type seeks to maximise the use of the existing public facilities and make better use of underutilised land.

We are appointed to develop housing proposals for three sites around the Godwin and Crowndale Estate in Somers Town as well as making improvements to the estate’s neglected landscape and green spaces.

The sites demand innovative urban design and architectural proposals because of the complex constraints and extensive community consultation undertaken. This approach builds on Camden’s history of innovative housing, and avoids displacement of existing residents whilst sites are developed.

The residents living in the existing estates will have priority over the new family housing as well as seeing improvements in the landscaping, providing play facilities for children, improving green spaces and improving routes within and around the estate.

82 DESIGNING FOR CAMDEN
NEW LARGE FAMILY HOUSES NEW 2 & 3 BED APARTMENTS NEW 1 & 2 BED APARTMENTS CHALTON STREET CROWNDALEROAD Comunity Courtyard Landscape Improvement Stratergy Comunity Courtyard Landscape Improvement Stratergy New Pedestrian Access to Oakley Square CHALTONSTREET 03 02 01
2 Sketch of potential proposal 1 Diagram of potential proposal

HOLBORN LINKS

HOLBORN LINKS

Rick Mather Architects are currently working with developer Triangle to produce a masterplan for their recently acquired portfolio within Holborn in Camden. The estate consists of 37,000sqm of retail, office, leisure, educational and residential space in 60 properties across approximately 3.3 acres in the in the heart of London’s ‘Midtown’ business district.

The sites include a wide range of building types and architectural styles, including prominent listed locations such as Sicilian Avenue and Southampton Place, situated in a complex historic neighbourhood incorporating a collection of varied character areas to be celebrated and enhanced.

86 DESIGNING FOR CAMDEN
1 Night time view of area 2 Character of the estate 1
RICK MATHER ARCHITECTS 87 2

HOLBORN LINKS

A HOLISTIC VISION

The Holborn area is undergoing unprecedented growth and Holborn Links at the centre, both geographically and economically. RMA is working with Triangle to produce a holistic vision for their assets which is both forwardlooking and far-reaching. Triangle aims to take a leading role in the rejuvenation and growth of Holborn through targeted and significant further investment.

The estate contains 18 groups of listed buildings many of which are in poor condition or poor quality settings, and are not the primary focal points of particular spaces. There is poor visual hierarchy of significant historic assets which are at times disconnected from the public realm.

The buildings incorporate numerous uses, including retail, office, leisure, educational and residential, however these have suffered from years of underinvestment and neglect, and fail to make the contribution they should to the area as a whole.

1 Sicilian Avenue

2 Southampton Place

3 Barter Street

4 Hogarth House

5 Selkirk House

88 DESIGNING FOR CAMDEN
05
MUSEUM STREET
DRURY LANE BRITISH MUSEUM
SHAFTESBURY AVENUE
01 02 03 04 BLOOMSBURY SQUARE BLOOMSBURY WAY HIGH HOLBORN NEW OXFORD STREET KINGSWAY SOUTHAMPTON ROW HOLBORN STATION LINCOLN’S INN FIELDS RED LION SQUARE 01 02 03 04 05
90 DESIGNING FOR CAMDEN 1 2 3
1 Potential public realm plan around selkirk house 2 Diagram showing unified surfaces and open retail spaces 3 Proposals for activating ground floor spaces

HOLBORN LINKS

NEW CONNECTIONS & MAKING PLACES

Holborn is a complex historic neighbourhood incorporating a collection of varied character areas that should be celebrated and enhanced. There are a number of listed buildings in the Triangle Portfolio and also in the surrounding area. Many of these are currently overlooked assets, which do not help to highlight the area’s unique qualities.

Analysis of the Public Realm and connections through the area show opportunity for the enhancement of accessibility and way finding and also opportunities to improve the routes to and from the British Museum.

Initial feasibility studies have looked into creating a mixed use destination at the head of Drury Lane where better connections can be realised. The two streets which lead to the British Museum, Museum Street and West Central Street, are currently cut –off. On Museum Street redevelopment will significantly improve the setting and its desirability for visiting and wider connections. However, there is also an opportunity by making a cross site link to connect West Central Street to Drury lane to further improve connections and offering a direct view of the British Museum from the site.

The impact of the proposals are being carefully assessed and developed in collaboration with the Council and subject to study to the agreed parameters. We have initially analysed the site in a number of ways to consider options, public realm/ routes and uses.

RICK MATHER ARCHITECTS 91

HOLBORN LINKS

URBAN REALM UPGRADES

Rick Mather Architects are working with Triangle across all their sites in Holborn in order to enhance and improve the public realm.

Large numbers of vehicles overwhelm the pedestrian and cycling experience across Holborn. There are poor pedestrian crossings across busy vehicle routes and parking and bus stops dominate the streetscape. Pedestrian routes are poorly connected, with many visitors unaware of its proximity to Covent Garden and the British Museum. Pedestrians tend to walk on traffic-clogged primary roads, rather than using the quieter back streets, such as Barter Street, to navigate the district.

At night the area is poorly lit; the existing lighting is inconsistent and without hierarchy. The area’s heritage assets lack a strong public realm presence. Improving Holborn’s public realm will enhance the area’s existing assets, and ensure that streets and public spaces are welcoming, vibrant and well-connected.

1

1 Sketch ideas for improved museum street public realm

2 Potential public realm plan around sicilian avenue

3 Potential widening of pavements and resurfacing of southampton place

92 DESIGNING FOR CAMDEN
RICK MATHER ARCHITECTS 93 2 3

SICILIAN AVENUE

Rich in history and character

Sicilian Avenue is a prominent and delightful series of buildings. It is also well known if not necessarily well visited. The history of Sicilian Avenue is rich both stylistically and thematically and by association with Edwardian Bloomsbury & London and revolutions in retail at that time. A period and ambition that is perhaps better understood now than at other period in its 105 year history and is due a renaissance.

Rick Mather Architects are currently working with Triangle to sensitively restore and upgrade the building and public realm. Opportunities exist to improve and create exciting visual connections across Southampton Row, while improving frontages and interiors. The elegant repeating bay units to the Avenue would benefit from phased restoration, relighting and rationalisation of signage and awnings to provide a rich and enlivened Arcade.

Sicilian Avenue has extensive basement structures beneath both East and West sides. In parallel with a rationalisation of the ground floor a similar exercise has provided additional and improved areas for us to support or extend the ground floor units. We have also explored the idea of strategically removing sections of floor to provide light and staircase access to lower levels at front or rear of the units. In tandem with other changes this could make for both large and characterful double-height retail units.

1 Facade glazing studies

2 Existing facade

3 Proposed option

1
RICK MATHER ARCHITECTS 95 2 3

THE ARCHIVE

THE PRIORY

NEAL’S YARD PENTHOUSE

ALL GLASS EXTENSION

WYCHCOMBE STUDIOS

ZENW3

SELIGMANN APARTMENT

HOUSE FOR TWO PSYCHIARITRISTS

ARCHITECTURAL ASSOCIATION

GLADWELL STUDIO

ARCHITECT’S HOUSE NO2

COMPAYNE GARDENS HOUSE

ARCHITECTS HOUSE NO1

THE PRIORY

THE PRIORY

The Priory is a new build private house sited at the top of Hampstead with views over London and the Heath. It was previously occupied by a 1950s four car garage with flats above and below. The house was shortlisted for the Stirling prize in 1998.

Rick Mather was chosen out of five architects interviews, and his sketch solution to a complex brief was instantly accepted. The client wanted a house that would go beyond mere convenience and become a work of art in its own right.

The house adds to the tradition of Modernist villas in Hampstead, starting in the 1930s with houses by Maxwell Fry, Samuel & Harding and Connell, Ward & Lucas. The surroundings are eighteenth and nineteenth century houses in brick and stucco; the planners had suggested only mock Georgian would be acceptable but eventually the completely modern design was given permission, endorsed by the neighbours and the influential Old Heath & Hampstead Society.

The three storey dwelling opens up to roof terraces and down to the two levels of garden. Inside, the three levels interconnect through the double-height rooflit living space and down through the glass floor to the indoor swimming pool.

100 DESIGNING FOR CAMDEN
2 1
1997

A glass staircase rises over the pool to the top floor. The roof light above fulfils the client’s requirement to be able to float in the pool and see the sky. Views from the house are carefully controlled by the placement of the windows, translucent screens and landscaping to ‘edit out’ surrounding houses.

1 Contemporary facade in a conservative setting

2 Plan and section showing hilltop position

3 Large rooflight over the double height spaces

4 Structural glass is used throughout

RICK MATHER ARCHITECTS 101
4 3

“The house brings together Rick Mather’s understanding of, and commitment to, the classic modern movement style and his highly developed use of glass. Both internally and externally there is skillful manipulation of light and view while maintaining privacy.”

Stirling Prize Assessor Comments

NEAL’S YARD PENTHOUSE

NEAL’S YARD PENTHOUSE

This private residence in Neal’s Yard, is a quiet refuge in the centre of one of the liveliest areas of Camden, Covent Garden. A large warehouse loft which had been previously and dangerously converted (the roof was pushing the walls out and slowly collapsing) was stabilised and rebuilt into this 240m² (2600 sq.ft) one bedroom apartment.

On the lower floor a series of floating cantilevered stair treads within a white space lead to the free-form plan of the upper floor. This large open area for living, dining, cooking and study opens out onto two roof terraces. The double-height entrance dramatically links the two floors and brings light to the centre of the lower floor.

The client’s wish to be able to see the sky when he showered, and his roof garden upon waking, led to the inclusion of clear glass floors that change at the flick of a switch to translucent for privacy above the master bedroom and bathroom. Renovated and regularly spaced saw-tooth roof lights tie the irregular plan together and flood both levels with natural light and sunshine.

106 DESIGNING FOR CAMDEN
“...this flat by Rick Mather Architects is a triumph of modern style”
Catherine Slessor, Architectural Review
1991
RICK MATHER ARCHITECTS 107

ALL GLASS HOUSE EXTENSION

Rick Mather Architects were commissioned by the Hoffmans in 1989 to remodel their house in Hampstead to create greater interaction with the garden. The unique solution was to rearrange the living space and add a new glazed veranda, to create a garden room constructed purely of laminated heated glass.

With no precedent for a structure of heated double glazed glass and a total lack of interest or skills from the big UK glass manufacturers, Rick Mather Architects developed a completely new pioneering glazing system.

Roof and walls are formed by frameless double glazed panels with an invisible film that reflects heat, and conducts electricity. The panels are supported on three laminated glass beams and columns to make a completely transparent structure. This small extension project gave Rick Mather Architects the reputation of experts in the use of glass.

RICK MATHER ARCHITECTS 109
1989
110 DESIGNING FOR CAMDEN
1 2 3
ALL GLASS HOUSE EXTENSION 1 Glass fixing detail 2 Axonometric highlighting the structural glass features 3 Light filled interiors

“Rick Mather ’s recent addition to a Georgian cottage in Hampstead, London, shows how alternative solutions can be found so that glass once again shapes buildings.”

RICK MATHER ARCHITECTS 111
Feruccio Izzo, Domus

WYCHCOMBE STUDIOS 1986

In 1986 Art dealer Margaret Lipworth took Rick Mather on to rebuild her part of Wychombe studios, a development of Victorian artists studios.

The house was in a bad state when he encountered it, but was nonetheless officially listed as being of historic importance. Rick was immediately struck by the inherent qualities of the building, even though the interior has been obscured over the years by unsympathetic additions. Bringing these qualities to light provides the basis for the project.

A Victorian studio with mezzanines added either side of a restored double height space. A high north window at one end and a plywood spiral stair inserted at the other end leading up to pyramidal glass room over two new en-suite bedrooms.

Topped by a triangular pediment, a doubleheight arched window looks out north across a garden square, allowing outsiders a glimpse of the work that has been done inside. The main space behind the glazing was stripped back to reveal and enhance its simple volume, and has become the living area; the central part of this double-

RICK MATHER ARCHITECTS 113

The living area ends in a semi-circular apse perfectly aligning with the windows, which leads to the bedrooms and bathrooms, all of which are situated at the rear of the house pm the ground floor.

All the traditional canons of the English house have been banished from the Victorian shell, in which new qualities have been created, based on open space, light and transparency.

114 DESIGNING FOR CAMDEN

WYCHCOMBE STUDIOS

RICK MATHER ARCHITECTS 115

ZeNW3 1985

1

The design anthology of Zen restaurants begins with ZeNW3. Rick Mather Architects were chosen from a shortlist of four architects to work on a new 200 seat Zen restaurant by a proprietor keen to escape the flock wallpaper and fake rock waterfalls common to Chinese restaurants.

The premises were awkward: a 1970s conservatory like extension beside a much degraded eighteenth century two-storey house. The street facade of the extension was replaced by a clear two-storey fall of glass, providing passers-by on the busy shopping street with a dramatic view of diners.

Inside, Rick Mather Architects reduced the potential disruption of a two-storey restaurant by forming a rectangular well between the two floors, providing the clientele with glimpses of their fellow diners. The staircase, its stainless steel banisters softened by the stepped glass waterfall below, rises through the well. The colours and furniture of later Zens appear: the white walls, icy green carpet and the circular, leather upholstered dining chairs.

1 Ground floor looking out to Hamptead High Street

2 Transparent frontage

3 Ground floor looking towards bar

4 Water runs down a glass channel in stairs

RICK MATHER ARCHITECTS 117
2 3 4

SELIGMANN

2 1

1 Sleeping area elevated with bathrom below

2 Kitchen area

3 Entrance and porch looking onto belsize park

4 Interior walls cut through and lined with wood

RICK MATHER ARCHITECTS 119
3 4

HOUSE FOR TWO PSYCHIARTRISTS 1979

120 DESIGNING FOR CAMDEN
1 Sculptural ceiling 2 Double height living space

Renovation and replanning of a 1840’s classical villa with bedrooms below the living room. A new mezzanine and roof terrace were built above, and consulting rooms added at the garden level.

The house, for two psychiatrists, required two consulting rooms, as they both wished to live and work in the house. Rick Mather Architects’ plan located the consulting rooms on the ground floor opening on to terraces and the garden beyond. The main living area is in the two upper floors, where the making of one large living space was structurally much easier. Here, too, the early morning and late afternoon sunlight are beneficent amenities.

The clients enjoy easy access to the outside which the redesigned house affords. Between patients it is easy to step out of the ground-level consulting rooms for a cup of coffee in the sun in the protected south facing garden, and, after work, have drinks on the roof terrace, which catches the late evening sun.

RICK MATHER ARCHITECTS 121
2 1

ARCHITECTURAL ASSOCIATION 1977

1 2

The first phase of a staged refurbishment scheme included new exhibition rooms and a bar. The exhibition room was formed of two administrative offices on the ground floor and the bar was remodelled in the existing bar room which was designed to be flexible enough to house small exhibitions.

The second phase of work included a new restaurant with kitchen, new bookshop, creche, washroom facilities and a drawing materials shop.

Future stages of work at the time included a new slide library, further refurbishment of the public spaces including the enlargement of the library, including the formation of a rare books section and the modernisation of the lecture hall.

RICK MATHER ARCHITECTS 123
1 Teaching spaces 2 First floor bar 3 First floor bar
3 4
4 Bar entrance

GLADWELL STUDIO

1977

A new house for Artist Guy Gladwell in Kentish town, completed at the heyday of his career in 1979. Guy Gladwell, who painted portraits of Michael Caine, Paul Simon and Peter Langan before carving out a new niche for himself on the Suffolk coast.

A considered sense of volumetric play was always apparent in Rick Mathers projects, and early projects such as the freestanding Gladwell House on Lady Somerset Road in London NW5 demonstrate his desire for complex interiors within a simple container.

A high north lit painting studio overlooks a double height living room, angled south towards the sun and a view down a long narrow garden. Bedrooms and a roof garden are on top.

124 DESIGNING FOR CAMDEN
1 Model of front facade 2 View from street 3 Light filled interiors 4 Spiral stair
1 2 3 4

ARCHITECT’S HOUSE NO.2

ARCHITECT’S HOUSE NO.2

The second home and office of Rick Mather. A larger, mid-Victorian terrace with a garden at basement level gave him the opportunity to refine these ideas of leaving good original sized rooms at lower levels largely untouched whilst turning the upper, often pokey rooms into more utilised living spaces.

Seven badly proportioned rooms are given over to one large room and a mezzanine complete with a full width glazed section looking over the roof garden. The kitchen and dining area sit alongside the double height living room. A minimal, plaster shell sculptural staircase rises from the living area to the mezzanine bedroom and terrace.

The house was designed to have a working ground floor studio and a sitting room and study on the floor above topped with living and entertainment spaces on the upper floors. The roof garden is enclosed by high screens of translucent glass to prevent views down to the ground level garden. Tubular steel built-in seating is cantilevered out over the back of the house. The upside-down house principle Mather exploited at his first house is used here.

126 DESIGNING FOR CAMDEN
1977 1
RICK MATHER ARCHITECTS 127
1 Section drawing 2 Roof terrace
2 3
3 Light filled interiors

COMPAYNE GARDENS HOUSE

A renovation and extension of a duplex, with new mezzanine, roof garden and skylights in Swiss Cottage completed in 1974. The project was for Monique Fay, a photographic artist. Bare angular expanses of wall, often plain white, set off the hard symmetry of her large photomurals.

Fay was photographed in the June 1978 issue of Vogue in her new home with her paintings.

128 DESIGNING FOR CAMDEN
1973 2 2

1 Monique Fay at Compayne Gardens

2 Monique Fay at Compayne Gardens

3 Drawings

4 Photographs upon completion

5 Angular walls

RICK MATHER ARCHITECTS 129
4 3 5

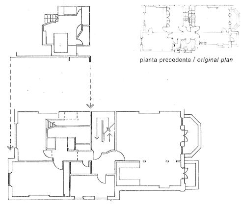
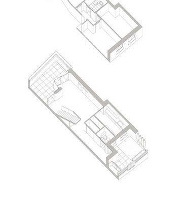
ARCHITECT’S HOUSE NO.1

130 DESIGNING FOR CAMDEN
1971 1 Interior 2 Elevations and sections 3 Arlington Street Facade 4 Interior 5 Interior 1 2

Rick Mather’s first house and office gave him the opportunity to develop the traditional form of the London terraced house and exploit the merits of living up high rather than the Victorian norm of the highly compartmentalised house. The usual basement-and-three-floors arrangement became basement, four internal floors and a split-level roof garden.

The conversion involved the addition of a storey on top of the existing house which had not been inhabited since 1938 and which was without water and plumbing. The section through the house becomes that of a traditional London house turned upside house turned upside down.

The top two internal floors act as one volume, a partly double-height living room with a mezzanine containing the kitchen and dining area. Two bedrooms and a bathroom occupy the floor below, a studio is contained on the ground floor and the basement, becoming surplus to requirements, contains spare rooms. The rearrangement of the levels creates an interconnection of all the spaces inside and out.

The house was an early experiment in the play of light - the upper volumes are flooded with light from the big sloping window to the roof terrace, which is in itself a space created out of nowhere. A tiny area on top at the back of the house provides enough room for a bench and table, with steps rising up the roof slope and railings around. The whole are was floored with duckboards and covered with container plants.

RICK MATHER ARCHITECTS 131
3 4 5

CAMDEN AWARDS

CHESTER BALMORE

Civic Trust Awards - Special Award for Sustainability 2015

London Planning Awards - Shortlisted Best New Place to Live 2014

British Homes Awards - Commended Development of the Year 2014

THE PRIORY HAMPSTEAD

RIBA Stirling Prize Runner Up 1998

RIBA Award 1998

Civic Trust Award 1998

AIA UK Chapter Excellence in Design Award 1997

ALL GLASS STRUCTURE HAMPSTEAD

LONDON

RIBA Award 1994

ZENW3 RESTAURANT LONDON

Evening Standard Best Restaurant Design

1987

HOUSE FOR TWO PSYCHIATRISTS LONDON

Architectural Design Award 1982

WHO WE ARE

PRACTICE

Designing since 1971 Rick Mather Architects has built a reputation for delivering high quality, innovative, award-winning projects encompassing architecture, masterplanning and urban design. Completed work spans both new build and renovation with a special interest in the cultural and education sectors. This is combined with a recognised and innovative expertise in the intelligent re-interpretation of existing, often listed structures, and in sustainable low energy building.

The first phase of our masterplan for London’s Southbank Centre has been successfully completed to widespread acclaim, incorporating the largest ever recorded public consultation exercise. Our work in Oxford institutions, and at Dulwich, Greenwich and Stowe have demonstrated our expertise at developing and delivering buildings in the most sensitive historic sites.

The practice attracts a highly motivated team of architects and urban designers who work in a studio environment which means they share and develop ideas to ensure that each project achieves the full potential of the client’s brief and the site. We use sketches, physical models and computer modelling to quickly test and develop ideas. Clear expression is critical for good collaboration, and developing an efficient and buildable design that inspires the client, stakeholders and the public.

We have established strong collaborative relationships with experts throughout the industry, allowing us to develop innovative structural and environmental strategies that can deliver the best possible solutions. Our pioneering All-Glass Extension and glass staircases originally developed for residential projects in the 1990s have now grown to the innovations in structural glazing visible at the Virginia Museum of Fine Arts. Recently Chester Balmore, Towner Gallery and LJMU Art & Design Academy and East Ham Customer Service Centre and Libary have exploited new advances in concrete.

We regularly work with experts in the public forum and consistently seek to shape our design process to dovetail with public and stakeholder participation, using ideas as the primary method for engagement and development.

The practice is committed to socialresponsibility and is an Equal Opportunities employer.

We operate Quality Assurance, Environmental Management and Health and Safety policies in accordance with our ISO 9001, ISO 14001 and OHSAS 18001 accreditations.

136 DESIGNING FOR CAMDEN
RICK MATHER ARCHITECTS 137
138 DESIGNING FOR CAMDEN

PARTNERS

Rick Mather Architects is led by two creative partners, Gavin Miller and Stuart Cade; each bring two decades of design experience in the practice and between them lead all projects. The design principles that underlie the work of the office are a continuation of the legacy of Rick Mather, the founder of the practice.

Gavin Miller joined RMA in 1995, and has extensive experience in architecture and urban design, often in highly challenging and sensitive settings. He has become a specialist in being able to deliver successful solutions, through clear strategic and innovative spatial strategies, developed from a rigorous analysis of context, and in a wide range of scales. Gavin views architecture, infrastructure, urban design, the public realm and landscape as an integrated whole.

Gavin has lead or been involved a wide range of projects and scales, ranging from cultural master planning at Greenwich Maritime, the South Bank Centre and the Lyric Hammermsith; to mixed use masterplans for Gilston Park Estate, Barking Town Centre, Pudding Mill Lane and Milton Keynes. Gavin has led large scale campus masterplans for the Universities of Lincoln, Southampton and East London; and the delivery of award winning educational buildings such the School of Architecture at Lincoln and the Arts and Design Academy at Liverpool John Moores University. Gavin also led the design and delivery of Chester Balmore, one of the largest residential Passivhaus

schemes in the UK, for the London Borough of Camden. Gavin is currently leading a series of feasibility projects for Transport for London and also the redevelopment of the grade II listed Centre Point complex in London

Stuart Cade joined RMA in 1996, having graduated from the Bartlett School of Architecture, University College London. Stuart has worked on a range of significant projects including Dulwich Picture Gallery and the Wallace Collection in London. He has 20 years of experience working in masterplanning, education, performance, museum & gallery design. With an expertise in contemporary buildings in historic settings Stuart has overseen all of the practices projects in Oxford. He was the Project Architect and lead for the Sloane Robinson Building at Keble College; a new Music Room at Corpus Christi College; and led and implemented all phases of the Ashmolean Museum Masterplan, co-ordinating the team to deliver the award winning scheme.

As Partner Stuart is currently leading the teams working on Mansfield College, The Queen’s College, Fairfield Cultural Quarter in Croydon, Lincoln’s Inn Fields, Grays Inn, the Lancaster University Spine, the Horniman Museum, the Ipswich Museum Arts Campus, and the Hay Castle restoration project.

RICK MATHER ARCHITECTS 139

RICK MATHER ARCHITECTS HAVE ALSO COMPLETED WORK IN 12 OTHER LONDON BOROUGHS, INCLUDING HIGH PROFILE SITES SUCH AS THE SOUTH BANK CENTRE, AS OUTLINED ON THE FOLLOWING PAGES.

OUR WORK IN OTHER LONDON BOROUGHS

THE SOUTH BANK

London’s South Bank Centre is the largest arts complex in the world. Rick Mather Architects were unanimously chosen from over 70 international practice’s submissions to masterplan the 12 hectares (30 acre) site bounded by the River Thames to the north-west, Waterloo Bridge to the north-east, Belvedere Road to the southeast, and the London Eye to the south-west.

The masterplan provides a framework for the improvement and extension of existing cultural facilities and public realm at this important central London site, including the Royal Festival Hall, the Hayward Gallery, the Queen Elizabeth Hall, the Purcell Room, and the British Film Institute (comprising the National Film Theatre, the Museum of the Moving Image and the BFI library). After continuing development and refinement of the masterplan, many of the proposals have been agreed or implemented with Phase One completed in 2007.

“Londoners can, at last, have the impression that something is being done to address the problem of the South Bank and Mather’s trademark rational, cool, modern approach seems the perfect antidote to the centre’s drab squalor.”

“Rick Mather’s masterplan is “the masterstroke at the root of the transformation”.”

Stirling Prize Nomination 2008

“We continue to value RMA’s expertise as we proceed with our ambitious plans for the Southbank Centre.”

Mark Rushworth, Southbank Centre 2014

RICK MATHER ARCHITECTS 141

NEWHAM

For the London borough of Newham, RMA have completed the East Ham Customer Service Centre and Library, and Newham Collegiate Sixth Form Centre as part of our site wide masterplan for the Historic East Ham Civic Campus, providing a long term strategy for the site, bringing listed buildings back into use to reinvigorate the centre of East Ham.

RMA have also completed Atherton Leisure Centre, and masterplans for the University of East London and Pudding Mill within the borough.

CROYDON

“An amazing new building, so bright, airy and unique, and fits in perfectly with the existing buildings. A great success for Newham.”

Rick Mather Architects have been appointment by the London Borough of Croydon to Masterplan and lead the detailed design for Fairfield Halls & the College Green area; creating a new Cultural Quarter in the centre of Croydon. The scheme will see a full scale refurbishment & rework of the iconic and celebrated 1960s Fairfield Halls, which houses a 1,800 seat concert hall, 750 seat Ashcroft Theatre, gallery and conference spaces. The wider masterplan will provide a new square, new streets and new residential accommodation, transforming a key block in the city centre.

“the team should be commended on their work in tackling such a significant project ... the resulting scheme is of the highest quality”

Croydon - Design panel southeast

142 DESIGNING FOR CAMDEN

HAMMERSMITH

RMA have had a long lasting relationship with the Lyric Hammersmith in Hammersmith and Fulham since 1997. Work has included a new public square and entrance building for the theatre, substantially improving the public realm and visitor experience. More recently we have completed a new £15M extension, enabling the theatre to reopen as London’s first teaching theatre for the performing arts.

LAMBETH

“The new Reuben Foundation Wing of the Lyric Hammersmith has it all. The project to turn the Lyric into “the South Bank of West London”, not to mention the greenest theatre in the Capital, will provide a home for a vastly expanded programme of work for young people.”

Rick Mather Architects are working with King’s College London to develop a scheme for the former Victorian Medical school site at the Southern end of the Guys’ and St Thomas’ hospital campus, in the London Borough of Lambeth.

A key site between the Palace of Westminster and Lambeth Palace with spectacular views over the River Thames. The project seeks to regenerate the existing under-utilised site to safeguard the long-term use of the listed buildings, providing flexible open plan agile space suitable for medical education and associated professional use.

RICK MATHER ARCHITECTS 143

BRENT

For the London Borough of Brent, Rick Mather Architects were commissioned to develop the first phase of South Kilburn estate regeneration. The completed schemes, Kilburn Park Road and Hicks, Bolton and Bond, doubled the density of the previous estate housing.

BARKING

“Rick Mather Architects provided an excellent design service for one of the early phases of the South Kilburn regeneration programme and we were very happy with their design, which helped to deliver a significant land receipt.”

Andy Donald, London Borough of Brent

Rick Mather Architects were appointed by English Partnerships to develop regeneration opportunities in conjunction with the London Borough of Barking and Dagenham for a major 2.2 hectare city block in the heart of Barking Town Centre. A Technical Skills Academy by RMA has been built as an outcome of the masterplan.

Rick Mather Architects also completed a visionary framework for the Barking River Roding 1km long stretch of the River adjacent to Barking Town Centre.

“I’m absolutely delighted at the brilliant work that is taking place at the Malthouse. The future plans for the site being developed look fantastic - Barking really deserves a place like this where people can engage with and enjoy the Creative Industries.”

Culture Minister, Margaret Hodge, March 2009

144 DESIGNING FOR CAMDEN

BARNET

RMA’s Colindale Area Action Plan for the London Borough of Barnet deals with an area in the London Plan which will experience a significant change of scale not seen since the introduction of the London Underground System. The Rick Mather Architects masterplan will set out the framework to incorporate up to 10,000 new dwellings, 1000 new jobs and create a reinvigorated centre for the area.

Rick Mather Architect’s strategic and detailed Greewich Maritme Landscape masterplan was developed with a number of client bodies for both the National Maritime Museum, including the Queen’s House, and the Old Royal Naval College either side of Romney Road within the newly designated World Heritage Site, Maritime Greenwich.

As well as the landscape masterplan strategy for the site, the work also included the new Neptune Court at the National Maritime Museum and external works to the Pepys Building to make it the Greenwich Visitor Orientation Centre. The aim of the strategy is to ensure that the unique character of the site is further enhanced by the design coordination of routes, landscaping and buildings.

RICK MATHER ARCHITECTS 145
GREENWICH

Rick Mather Architects have completed multiple projects at the Dulwich Picture Gallery in Southwark. The work has included refurbishment of the art gallery, new cafe and educational facilities, upgrading of the staff offices and currently a reworking of the gallery cottage.

The success of the new facilities has put Dulwich Picture Gallery on an equal footing with its competitors, as witnessed by attendance figures doubling in three years.

HILLINGDON

In 2014 Rick Mather Architects were invited to create a vision for a Heathrow City in Hillingdon if the airport were to be relocated. Our proposal “The Transforming City” explored the natural emergence of a vibrant and integrated new hub city from the existing airport structure, embedded in its setting and wider landscape, singular and distinctive, at one with its immediate setting and locality, yet fully tuned for regional, national and international opportunity.

“Rick Mather Architects’ work at Dulwich is a masterpiece of subtle, informed understatement where the feel for Soane has been combined with a flair for, and awareness of, the potential offered by new forms and new materials.”

146 DESIGNING FOR CAMDEN SOUTHWARK

WESTMINSTER

Rick Mather Architects Westminster projects include the reworking of the Royal Horticultural Society in order to house their Lindley Library and the refurbishment of the Wallace Collection, providing the museum with new space to display their entire collection, including the hitherto unseen Reserve Collection.

Other work in the borough includes the restaurants @venue in St James, and Zen Central in Mayfair.

“ … the Wallace Collection is beginning to attain its rightful position. The once dank central courtyard has been transformed by an airy glass roof.… At last the Wallace Collection, which until now has had hardly any space beyond its primary galleries, has the room and facilities to make the most of its great collection. The result is impressive. Already visitors have tripled.”

FOREST HILL

In the Borough of Forest Hill, Rick Mather Architects are working with the Horniman Museum to refurbish the Grade II* Listed South Hall Gallery and redisplay the Collections People Stories.

The work will create a revitalised exhibition space for the display of the Anthropology collections, as well as opening up a new flexible creative area - the Studio Space - in the 1912 Emslie Hall extension.

RICK MATHER ARCHITECTS 147

“Rick Mather Architects is one of the first names on anyone’s list when it comes to stitching damaged bits of urban fabric together

‘Giving something to the street’ is pratically their motto”

COLLABORATION CLIENTS

Our Clients include:

Almacantar

Architectural Association London

Ashmolean Museum Oxford

Catalyst Housing Group

Christ’s College Cambridge

Corpus Christi College Oxford

Dulwich Picture Gallery London

East Midlands Development Agency

Eastbourne Borough Council

Greater London Authority

Hay Castle Trust

Homes & Communities Agency

Horniman Museum

Ipswich Borough Council

James Allen Girls’ School London

Keble College Oxford

King’s College London

Land Securities

Liverpool John Moores University

London Borough of Barking and Dagenham

London Borough of Barnet

London Borough of Camden

London Borough of Croydon

London Borough of Newham

London Legacy Development Corporation

Lyric Theatre Hammersmith

Mansfield College Oxford

National Maritime Museum

Greenwich London

Natural History Museum

Network Housing Group

Old Royal Naval College London

Places for People

Royal Horticultural Society London

Southbank Centre London

Stowe School Buckinghamshire

The Honourable Society of Gray’s Inn

The Honourable Society of Lincoln’s Inn

The Queen’s College Oxford

Transport for London

Triangle Property

University of East London

University of East Anglia Norwich

University of Lancaster

University of Lincoln

University of Oxford

University of Southampton

Virginia Museum of Fine Arts

The Wallace Collection

Our Collaborators include:

Alan Baxter Associates

Atelier 10

Balston & Company

BAM Const UK Ltd

Barrell Tree Consultancy

Beard Construction

Callidus Building Surveys Ltd

Carter Jonas

Charnwood Landscape

CGMS Consulting

Conran and Partners

David Bonnett Associates

Davis Langdon

DHA Design

Eckersley O’Callaghan

Gardiner & Theobald

Glanville Group

Gross Max

Hannah Reed

Haskins Robinson Waters Engineers

Hoare Lea

JGA Fire

Jeremy Rye

Keith Winton Design

Metaphor

Michael Popper Associates

Montague Evans

Mott Macdonald

Nick Lander Restaurant

Oxford Archaeology

The Parks Agency

Path Design

Price & Myers

Quod

Ridge & Partners

The Russell Partnership

Sandy Brown Associates

SKM Transport

Stepnell Ltd

Turley Associates

Whybrow Signing Consultants

150 DESIGNING FOR CAMDEN
RICK MATHER ARCHITECTS 151
RICK MATHER ARCHITECTS 123 Camden High Street London NW1 7JR Tel 020 7284 1727 Fax 020 7267 7826 info@rickmather.com WWW.RICKMATHER.COM

Turn static files into dynamic content formats.

Create a flipbook
Issuu converts static files into: digital portfolios, online yearbooks, online catalogs, digital photo albums and more. Sign up and create your flipbook.