portfolio







RETREAT HOUSE SITALASARI


Location : Pematang Siantar, Indonesia






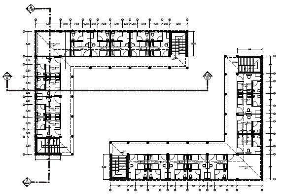
INTERACTION AREA-RESIDENTIAL ZONE
Utilization of space in the garden area as a place to socialize.
The open space corridor can be used as an interaction space.
INTERACTION AREA
EDUCATE ZONE
The back area of the discussion room is used as an interac on area (open) which isalsousedasaminigardenarea.

ELEVATION








STRUCTURAL




MEDITATION ROOM
WESTSIDE
SOUTH SIDE

The medita on room is deliberately given a touch of the element of water, so that it can furtherhelpincreaseasenseofcomfortandcalmduringmedita on(onewithnature)
EASTSIDE
NORTH SIDE






The concept of a bedroom by combining natural colors, such as brown (wood) and turquoise. The concept of color like this is expected to provide a sense of calm but s ll seem ac ve for visitors or par cipants.



LOBBY INTERIOR
The interior atmosphere of the retreat house is made not too monotonous, so that the par cipants (millennials)donotgetboredquickly. Moveable seats and pain ng displays are deliberately made to give a lively/ac ve impression to the par cipants(millennials).
lobby/recep onistareausesbrown-wood(inharmony with natural materials), while maintaining a modern concept and not playing with too many colors, especiallyflashycolors.
DISCUSSION ROOM
INTERIOR

This discussion room can accommodate 50 people. This room is designed with a fairly simple interior. green lines with the aim of giving a firm and solid impression on humans, so that they can train their way of thinking







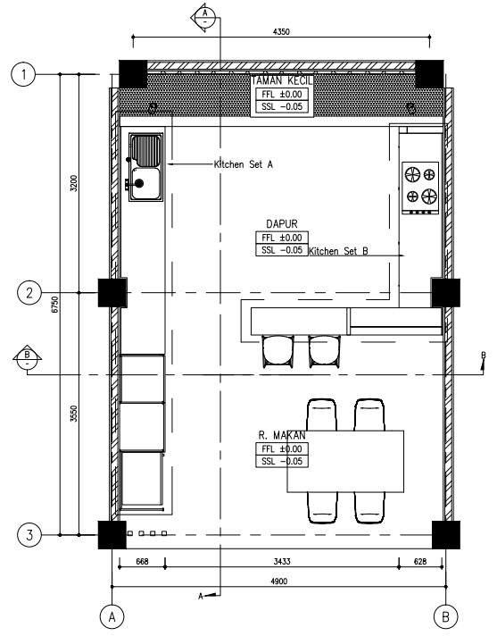
Mrs. S BEDROOM LT.1


TYPE: Residential
LOCATION: Medan, Indonesia


AREA: 10 m2
SCOPE: Interior Design






O U S E
AREA: 25 m2
SCOPE: Interior Design TYPE: Residential
LOCATION: Pematang Siantar, Indonesia
color palette.
Walkin closet in the bedroom area is made using the Japandi concept. All finishing materials are made using wood motifs with light colors combined with glass, so that
overall it looks like a single unit. A simple but still modern
concept makes the wardrobe look not boring with some openings.
Mr.K Bedroom
WALK-IN CLOSET


JAPANDI MODERN.
The living room is a place for the family to gather and relax, so it is necessary to create a sense of safety and comfort. The backdrop by applying wood color throughout creates a warm room atmosphere and a luxurious impression.

Mr.K Desk Area


A combination of solid color and wood texture makes the kitchen area looks modern. Green and black makes create a harmonious color combination that looks luxurious.



LOCATION: Pematang Siantar, Indonesia






AREA: 25 m2
SCOPE: Interior Design TYPE: Residential
LOCATION: Pematang Siantar, Indonesia





MODERN & LUXURIOUS
Kitchen and Dining area with a clean, minimalist look that
emphasizes strong horizontal and vertical lines created by cabinets and countertops. Thoughtful lighting can highlight some spot in kitchen area. A classy kitchen is all about creating a space thats both elegant and functional for your kitchen.


AREA: 25 m2
SCOPE: Interior Design TYPE: Residential
LOCATION: Pematang Siantar, Indonesia

CLASSIC LUXURY




Scandinavian design expresses its beauty and in a simple and functional decorating style.
Mixes with whites, neutral colors and natural woods. Simple lines with a clean and aesthetic to create cozy and warm interiors Wood is always ezxist for this concept
MATERIALS





“simplicity






CIPTO HOUSE
The bedroom is designing using a modern concept where the client wanted a dark wood color and combine with plat list gold to create modern luxury ambience. White and dark wood color makes all looks perfect and high.






LOCATION: Pematang Siantar, Indonesia



Bedroom with concept “Japandi Modern” are very popular for teenager. The Client requested all the walls of the room to be covered wtih ceramic tiles. He wants a simple looks with grey combination color.
JAPANDI MODERN.


PODOMORO CITY DELI MEDAN
Apartment










TYPE: Residential
STATUS: Built
AREA: 45 m2
LOCATION: Medan
SCOPE: Interior Design
JAPANDI MODERN.
The client desire to use colorful concept for the interior apartment. They want a different atmosphere and it’s apply from wall, loose & built-in furniture, and lighting.

KETERANGAN:
A. RUANGKELUARGA
B. DAPUR
C. KAMARTIDURUTAMA
D. KAMARTIDURANAK
E. KAMARMANDI
MASTER BEDROOM

Exclusive Apartment
Podomoro City Deli Medan is the first superblock in Medan with an integrated concept “One stop living, Working and Leisure” This unit has two bedrooms, one bathroom, one living room and kitchen.


Japandi Modern Concept
Dusty blue bedroom with marmer accents presented a cozy and minimalist room. Don't forget to add accessories such as paintings or displays in some spot.






KIDS BEDROOM
Choosing the right bed plays an important role in creating a cozy and safe bedroom.











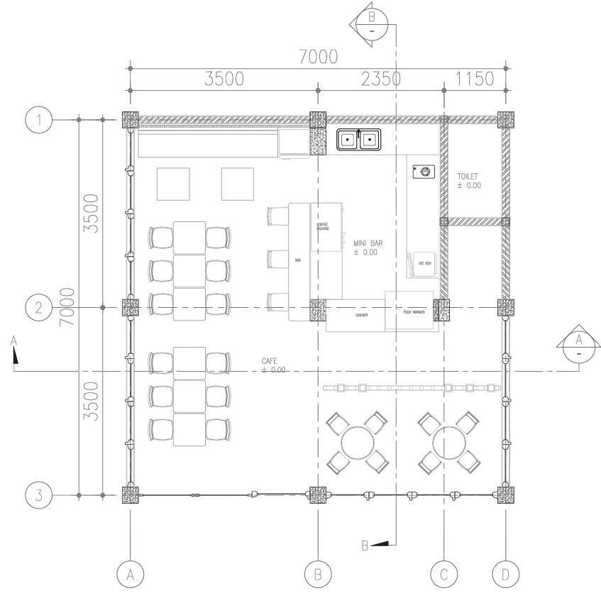
BD COFFEE SHOP
LOCATION:
Pematang Siantar, Indonesia
COLOR PALETTE.




















