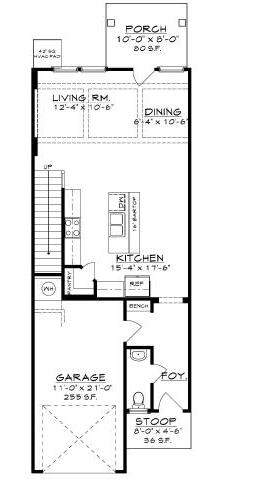
Royal Oak

Page 1

PlanDwell Homes is a quality home building company headquartered in Evans, GA. The company’s owner has been building homes since 2004 in the Augusta market. After building homes and developing neighborhoods for years, PlanDwell was created in 2017 and began focusing on quality building systems with an efficient and organized process. Plandwell has a very professional and dedicated team that works to deliver great floor plans while including many quality features. The high level of organization along with great team members has allowed the customers overall experience to remain the sole focus with each new home. PlanDwell strives to make the home building process enjoyable for each customer!

MEET THE TEAM CANTERBURY FARMS I 706.863.8218 TERESA MCARTHUR 706.284.1401 KYLE HENSLEY 706.284.7118 ROLAND CHRISTOPHE 706.306.4578

Royal Oak Standard Feature Sheet

Community

 Carefully planned and coordinated streetscape design with streetlights, and professionally landscaped yards.

 Protective covenants and homeowners’ association guidelines to protect the value of your home and preserve the overall appearance of the community

Your Homes Exterior

 Designer Selected Exteriors for a cohesive neighborhood

 Exterior weatherproof electrical outlets near front and rear porch

 Large driveways for off street parking

 Professionally installed low maintenance vinyl soffit and fascia

 Advanced framing techniques are used for maximum efficiency and structural integrity

 Steel reinforced concrete foundations

 Designer selected exterior lighting fixtures

 3‐tab Shingles

 Exterior hose bibs for the front and rear of your home

 Termite treatment plan that includes prevention and warranty for any damage

 Gutters included to direct water away from the front of the home

 Front and Rear covered porches

 Fenced in backyard with gate

 Exterior moisture deterrent house wrap for the entire structure

Your Homes Interior

 Blinds included on all windows and doors Designer color options for Evacore Waterproof Flooring in kitchen, foyer, great room, and dining room

 Luxury vinyl tile flooring in all bathrooms

 Quality designer carpet with upgraded pad thickness in all bedrooms

 Heavy Molding through house, with trim details on all windows

 Crown Molding in foyer, kitchen, and Breakfast room

 Coffered Ceiling and 1x4 Accent Wall in the Living Room

 Ventilated wire shelving in laundry, all closets and pantry

 Quality sheetrock installation with textured ceilings throughout

 All bedrooms, family room, and porches pre‐wired and properly braced for ceiling fans with dual switches

 Ceiling fans included in owner’s suite and family room

 Professional designer selected paint colors, includes one wall color and one trim color

 Tech‐Smart/Low Voltage Pre‐wired home package to include Cat5 internet and cable wiring in the family room, owner’s suite, and all other bedrooms and bonus rooms with smart panel installation (per plan)

Designer Kitchens

 Designer custom cabinetry with unique design and layout characteristics

 Custom Granite countertop colors and options for kitchen countertops

 Undermount Stainless Steel Sink

 Designer selected custom backsplashes

 Garbage Disposal

 Stainless Steel Free Standing Range, Dishwasher and Microwave

 Upgraded Kitchen Faucet

 Recessed lighting in kitchen (Per plan)

 Ice maker plumbing for refrigerator

 Soft close hinges on all cabinet doors

Owners Suites and Bathrooms

 Custom designed owner’s suite with vaulted ceilings (per plan)

 Large designer walk‐in closets

 Full fiberglass shower with a framed shower door in Owners Bathroom

 Double sink design in owner’s suite (Per plan)

 Pedestal sink in powder room (Per Plan)

 Decorative framed mirrors in master & powder room baths

 2 cm quartz countertops with square undermount sinks in all bathrooms

Efficiency, Warranty, and Security

 Rapid recovery high quality 50 gallon water heater

 Company backed 860‐point quality control inspection process in addition to the local county and state required inspections

 Smoke detectors and carbon monoxide detectors

 High efficiency 14‐seer Central Heating and Air with heat pump. Includes digital thermostat on each level of the house for improved efficiency (per plan)

 High efficiency front and rear doors

 Insulated double pane windows with thermal break technology include "Low E" glass and a tilt in sash for easy cleaning

 Electric Vehicle Ready Wiring

 Single keyed locks for all exterior doors

 High quality insulation to include R‐13 exterior walls, R‐19 insulated vaulted ceilings, R‐38 insulated attic, and expandable foam used in all small openings and cracks for improved efficiency rating

 All exterior doors include weather‐stripping of door jambs for improved living comfort

 Fully landscaped yards with properly zoned irrigation system

 Fire retardant drywall in garage ceiling (per code)

 Homeowner Orientation prior to closing

 Each home includes and is backed by a 2‐10 Warranty in addition to our 1‐year builder warranty.

Updated: 11/11/2022

CANTERBURY FARMS I 706.863.8218
Information is believed to be accurate, but is not warranted. PlanDwell reserves the right to change features, designs and specifications without prior notice
CANTERBURY FARMS I 706.863.8218 1049 Linsmore Avenue 1051 Linsmore Avenue 1053 Linsmore Avenue 1057 Linsmore Avenue 1058 Linsmore Avenue 1060 Linsmore Avenue 1063 Linsmore Avenue 1066 Linsmore Avenue 1068 Linsmore Avenue 1070 Linsmore Avenue 1074 Linsmore Avenue 1,574 sqft. 1,540 sqft. 1,540 sqft. 1,540 sqft. 1,540 sqft. 1,574 sqft. 1,540 sqft. 1,574 sq.ft. 1,540 sqft. 1,574 sqft. 1,574 sqft.
Townhomes featuring 3 bedrooms & 2.5 bathrooms. 514987 512789 515062 514429 512209 512207 515120 517142 512606 512603 513986 $254,900 $254,900 $254,900 $259,900 $254,900 $249,900 $254,900 $259,900 $254,900 $249,900 $249,900 Bedford Montclair Bedford Bedford Montclair Bedford Montclair Bedford Montclair Bedford Bedford ADDRESS PLAN SQFT. MLS# PRICE
Linsmore Avenue

MONTCLAIR PLAN

CANTERBURY FARMS I 706.863.8218 BEDFORD PLAN

The Master Plan, the lots, the g reenspace and layout is subject to change. The trees shown are for illustration purposes only and do not indicate the location of actual trees. Review the final plat for exact lot siz es.

Linsmore 62 70 69 68 67 66 65 64 63 61 61 60 59 58 57 56 55 54 53 52 51 50 49 48 47 46 45 44 43 23 22 21 20 19 18 17 16 15 14 13 12 11 10 9 8 7 6 5 4 3 2 1
Lane
Linsmore
Durham
Community Pond Linsmore Avenue 42 41 40 39 38 36 37 36 33 32 31 30 29 28 27 26 25 24 35 34
ROYAL OAK
CANTERBURY FARMS I 706.863.8218 TERESA MCARTHUR 706.284.1401 KYLE HENSLEY 706.284.7118 ROLAND CHRISTOPHE 706.306.4578

Turn static files into dynamic content formats.

Create a flipbook
Issuu converts static files into: digital portfolios, online yearbooks, online catalogs, digital photo albums and more. Sign up and create your flipbook.
Royal Oak by Meybohm Real Estate - Issuu