Mel Yoo Portfolio 2025

Page 1


Portfolio
Mel Yoo

Yonsei Severance Hospital 2020

Role: Architectural Designer, HKS Architects

The design for Yonsei Severance Hospital is an examination inspired by interconnection. Starting with the Yonsei Severance Hospital’s network in South Korea to the Yonsei University as a place of connecting people and ideas, the notion of interconnection was a strong influence in the design thinking.

As an Architectural Designer at HKS Architects, I contributed to the conceptual development of the Yonsei Severance Hospital by translating the theme of interconnection into cohesive spatial strategies that support patient-centered care, technological integration, and biophilic principles. I supported the team in developing design narratives, diagramming circulation efficiencies, and coordinating interdisciplinary inputs to realize a high-performing, future-oriented healthcare environment.

Yonsei Severance Hospital

Main entry to hospital. | Render by author.

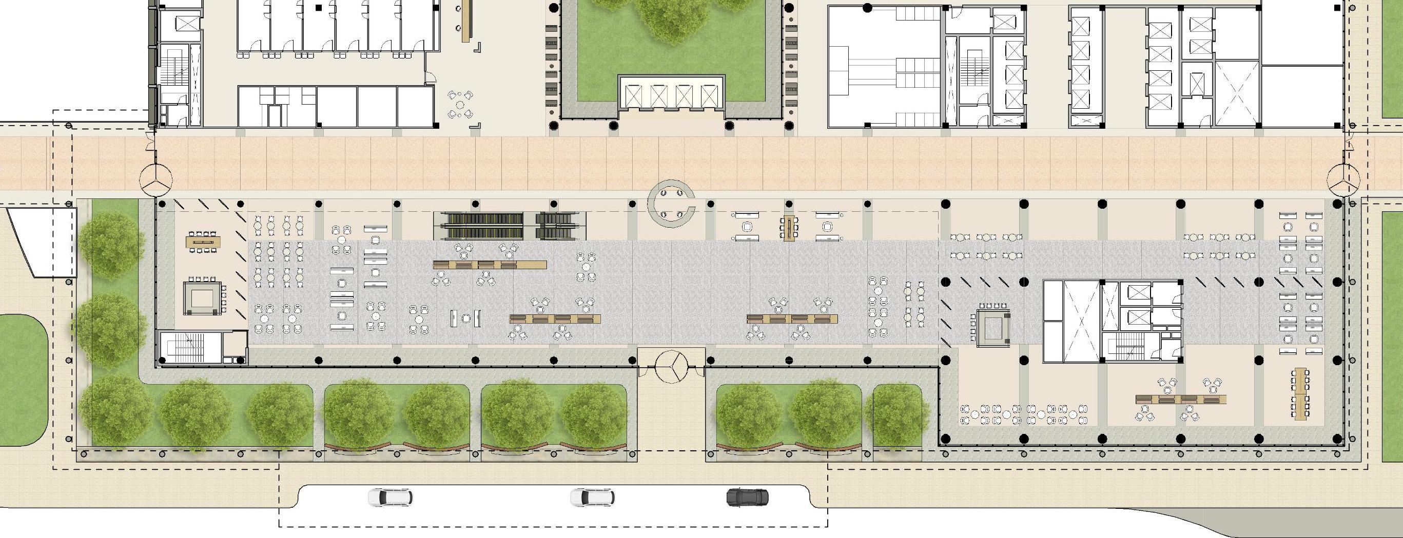
Medical mall lobby floor plan + partial interior section. | Illustration by author
Typical 4-person patient room. | Render by author.

UCSD Living & Learning Neighborhood 2019-2022, under construction

Role: Architectural Designer, HKS Architects

2021 AIA LA Design Award in Education

The design team adopted the guiding aspiration of Exponential Ecology suggesting that design decisions would be based in creating a place of wellness, social diversity and responsibility in a neighborhood setting connected with nature and community.

I guided the Exponential Ecology concept from inception to realization, shaping a community-oriented campus that fosters wellness, social diversity, and ecological integration. I directed spatial programming for a 988,000sf development comprising five buildings (8–21 stories) that includes 32,000sf of academic and administrative space, a 490-seat auditorium, 33,000sf of community facilities with food hall, retail, a conference center with hotel accommodations, a meditation pavilion, tea house, and fitness center, as well as 30,000sf of residential life amenities supporting 2,000 student beds and 48 resident advisor beds.

by surrounding landforms eroded by wind and water.

Access to biophilia from building lobby placed along the meandering “ramble”.

Building massing & programming

Wind diagram by surrounding landforms eroded by wind and water.

Wind diagram by surrounding landforms eroded by wind and water.

Native ecology restored to site, which informs building organization

Native ecology restored to site, which informs building organization

Building massing & programming

Building massing & programming

Pacific Ocean wind circulation in between building masses.

Building masses maximize access to views from residential levels.

RESIDENCE HALL FACULTY HOUSING

RETAIL NORTH TOREY PINES ROAD

RESIDENCE HALL

COMMERCIAL DOCK

Schematic site plan. | HKS Architects.

RESIDENCE HALL

RESIDENCE HALL

LECTURE HALL

Building forms are tuned to preserve view corridors and maximize ocean views for resident

Building forms are tuned to preserve view corridors and maximize ocean views for resident

RESIDENCE HALL

DISTRICT

RETAIL
THEATRE

An example 2bd/1ba unit of faculty housing design. | Illustration by author

BLDG 1, LVL 1 PROFESSIONAL STAFF APT LIVINGROOM VIEW

Faculty housing. | Render by author.

Workplace Strategy 2018- 2022

Role: Architectural Designer, HKS Architects

As workplace culture evolves, organizations are reimagining environments to support productivity, creativity, and retention. Our team conducted comprehensive surveys and partnered with research consultants to develop tailored strategies prioritizing flexibility, purpose, and hospitality-driven design.

As a workplace strategist and designer, I supported firmwide initiatives by developing research-informed frameworks and leading staff surveys to uncover evolving user preferences, translating those findings into actionable workplace guidelines adopted across multiple offices. Concurrently, I advanced local workplace projects by integrating experience-centered design strategies that merged hospitality, entertainment, and collaboration, delivering adaptable environments that enhance employee engagement, wellbeing, and long-term retention.

“Me, We, Us” firmwide concept diagram. | Illustration by author.
Workplace client (1,000 employees, ~300,000 sf) in San Francisco, CA. | Render by author.

User experience integrated built environment. Experience QR code available upon request. | HKS Architects.

Built workplace project (~300 employees, ~30,000 sf) in Plano, TX. | Photos by HKS Architects.

FORREFERENCEONLY

Example sheet from workplace client permit set (~300 employees, ~30,000 sf). For reference only. | HKS Architects.

Boutique Retail Design 2014

Role: Junior Designer, Gonzalez Haase AAS

As a Junior Designer, I contributed to the design and execution of high-end boutique retail spaces with a focus on custom fixtures, material research, and spatial planning. On a designbuild project, I supported the process from concept through construction, studying bracket systems, shelving assemblies, and finish selections to align with the client’s brand identity.

My role extended to merchandise display design, lighting studies, and circulation planning—ensuring that every element enhanced product visibility and customer experience. I also participated in site verifications and quality control to uphold design precision. This hands-on experience deepened my understanding of how materiality, detail, and atmosphere create immersive, brand-aligned retail environments.

VITRA ARTEK AT BIKINI BERLIN 2014: PLACEMENT OF DISPLAY SHELVES
Model of merchandise display and floor finishes from main entry. | Render by author.
Retail main entry point. | Photo by Gonzalez Haase AAS.
Stainless steel shelving system detail. | Photo by Gonzalez Haase AAS.
Custom stainless steel shelf fabrication. | Photo by Gonzalez Haase AAS.

Affordable Rental Unit Home in Kauai for Better Block Hawaii 2023

Finalist, Honorable Mention

The main objective of my ARU design is to provide a passive, near net-zero/ low energy building for Kauai’s climate conditions. The ARU exterior is shaped by Kauai’s Summer + Winter Sun, frequency of rainfall, and the Northeast trade winds. The birth of the name “Wrapped” comes from the wood beams-turned-vertical louvers that act as rain diverters, which eventually get absorbed by the soil, or feed directly into a concrete bioretention planter. Moreover, the integration of rainwater harvesting systems at the rear, and solar panels on the Southern roof ensures a reduced carbon footprint, aligning with the philosophy of sustainable living. Wrapped is a testament to the synergy between climateconscious design and the rich tropical milieu of Kauai. This project is currently being developed as a prototype for County of Kauai.

Floor plan. | Illustration by author.

Front elevation + section. | Illustration by author.
Interior render showing open living room and kitchen beyond. | Render by author.
Render showing living room and kitchen experience in relationship to the rear lanai. | Render by author.

Hospitality Design Studio Project

This conceptual project envisions a landscape hotel and educational retreat in the Manoa hills of Oʻahu, designed for a non-profit foundation focused on environmental education and conservation. The retreat offers a place-based hospitality experience that supports ecological learning and promotes food resilience through integrated programming.

I conducted a site study by hiking the property, photographing view corridors, and documenting material palettes and environmental conditions. Primary and secondary views informed the spatial organization, while mapping of surrounding structures, trails, and access points ensured sensitivity to context. The design blends regenerative landscape strategies with immersive guest experiences rooted in Hawaiʻi’s natural and cultural landscape.

Malu Malu Farm-to-Table Hotel 2022
Malu Malu Farm-to-Table Hotel

Schematic design sketches. | Illustration by author.

1. Following topography, partially sunken

2. Elevated treehouse

3. Greenhouse observatory

Precedent Imagery | Photos by author.
Existing Photos | Photos by author.

Overall floor plan + roof plan | Illustration by author.

Conceptual Rendering of Farm-to-Table Hotel Guest Rooms Exterior | Render by author.
Conceptual Rendering of Farm-to-Table Hotel Guest Rooms | Render by author.

On Behalf of Acacia koa 2023

Independent research, graphic book production

I produced a comprehensive book celebrating the Acacia koa, Hawaiʻi’s largest endemic tree, as an exploration of botany’s lessons for design. This research examined koa’s nitrogenfixing properties, phenology, morphogenesis, and its vital role in watershed and biodiversity resilience, while honoring its centuries-long cultural significance to Native Hawaiians. By deeply analyzing a single native species, the booklet illustrated how nature’s intelligence and evidence-based design strategies can inform regenerative, culturally grounded practice. This process clearly demonstrates my systemsbased, integrative design thinking — uniting ecological science, cultural knowledge, and resilient place-based stewardship.

On Behalf of Acacia
Graphic world map of Acacia koa migration, movement, and exchange. | Illustration by author.

Selected spreads from catalogue understanding Acacia koa’s function, and symbiotic relationships to other species. | Illustration by author.

Detail of accordian fold out. Physical catalogue & PDF available upon request.

Photos of printed product. Physical catalogue & PDF available upon request.

Thank you

Turn static files into dynamic content formats.

Create a flipbook
Issuu converts static files into: digital portfolios, online yearbooks, online catalogs, digital photo albums and more. Sign up and create your flipbook.
Mel Yoo Portfolio 2025 by Mel Yoo - Issuu