Melody Waguespack - Current Portfolio

Page 1

MELODY A. WAGUESPACK

selected works

Hello!

I’m Melody.

I aspire to create spaces that connect people. to each other and themselves

WORKPLACE

HAND RENDERS

HOSPITALITY

ARCHITECTURE

03

GOALS

To create an inclusive environment for the neurodiverse workforce. To encourage return to the office post-pandemic.

WORKPLACE WARBY PARKER | 2023 05

LEAN

into the madness

CONCEPT Inspired by a quote from Allen Ginsburg, this office encourages users to explore the chaos of creativity.

LOBBY This space introduces visitors to the brand and guides them to the shop. Employees can choose their journey, whether to the workstations or another space.

RETAIL A space that combines eyeglasses and books, the shop shares Warby Parker’s values in a playful way.

LEVEL 02 FURNITURE PLAN The retail space is near the entry to the office space, ensuring employees are able to focus in their space without interruption.

UP UP DN DN UP ELEV. RETAIL SPACE LOBBY BIKE STORAGE COMMUNAL LOUNGE IT COPY PRINT FOCUS SPACE HUDDLE AREA HOTELING STATIONS MOTHER'S ROOM JANITOR COPY PRINT SMALL CONFERENCE FILE ROOM STORAGE PRIVATE OFFICE PRIVATE OFFICE PRIVATE OFFICE PRIVATE OFFICE ACCOUNT MANAGERS BREAK ROOM HUDDLE AREA RESTROOMS ACCOUNT MANAGERS REF DW DF FIRE EXIT 1 FIRE EXIT 2
07

LEVEL 03

FURNITURE PLAN

The retail space is near the entry to the office space, ensuring employees are able to focus in their space.

BREAK ROOM Adjacent to the main workstations, this area provides seating options when relaxing.

BREAK ROOM ELEVATION

This wall hosts the amenities within the break area, opposite the seating.

MILLWORK DETAIL Drawn to understand technical concepts and ensure accuracy, this drawing depicts the break room open shelving cabinet.

UP UP DN DN DN ELEV. ACCOUNT MANAGERS LARGE CONFERENCE PERSONAL STORAGE BREAK ROOM PRIVACY ROOM HR DATA ANALYST COPY PRINT SMALL CONFERENCE TRAINING SPECIALIST IT MULTIPURPOSE AREA COPY PRINT FOCUS SPACE JANITOR STORAGE HUDDLE AREA HOTELING STATIONS HUDDLE AREA RESTROOMS FLEXIBLE HUDDLE REF HUDDLE AREA DW FIRE EXIT 2 FIRE EXIT 1 DF
09

COLLABORATIVE AREA A dynamic space for lively conversation, this space is more open than a conference room and encourages casual connections.

HOTELING STATIONS Designed to be functional while meeting acoustic needs, these workstations are where many users will spend a majority of their time.

LONGITUDINAL SECTION Cutting through the entire building, the section shows spatial stacking.

REFLECTED CEILING PLANS Considering acoustics, layered lighting, and materiality are all fundamental to comfort within the space as it relates to the ceiling.

ELEV. GWB on Mtl. Stud 2' x 2' ACT System A.F.F. GWB on Mtl. Stud 12' 0" A.F.F. 2' x 2' ACT System 12' 0" GWB on Mtl. Stud GWB on Mtl. Stud RESTROOMS PRIVATE OFFICE PRIVATE OFFICE SMALL CONFERENCE JANITOR MOTHER'S ROOM FOCUS SPACE PRIVATE OFFICE PRIVATE OFFICE FILE ROOM IT STORAGE GWB on Mtl. Stud GWB on Mtl. Stud GWB on Mtl. Stud COMMUNAL HUDDLE AREA HOTELING STATIONS COPY PRINT ACCOUNT MANAGERS BREAK ROOM HUDDLE AREA ACCOUNT LOBBY COPY PRINT FIRE EXIT 1 FIRE EXIT 2 2' x 2' ACT System 10' 0" GWB on Mtl. Stud 10' 0" A.F.F. GWB on Mtl. Stud 10' 0" A.F.F. GWB on Mtl. Stud 13' 0" 2' x 2' ACT System ELEV. SMALL CONFERENCE HR LARGE CONFERENCE RESTROOMS ACCOUNT MANAGERS DATA ANALYST TRAINING SPECIALIST IT FLEXIBLE HUDDLE COPY PRINT BREAK ROOM HUDDLE AREA HUDDLE AREA PERSONAL STORAGE PRIVACY ROOM COPY PRINT MULTIPURPOSE AREA HOTELING STATIONS HUDDLE AREA GWB on Mtl. Stud 12' 0" GWB on Mtl. Stud A.F.F. GWB on Mtl. Stud 12' 0" 2' 2' ACT System A.F.F. 10' 0" GWB on Mtl. Stud 10' 0" A.F.F. 2' 2' ACT System 12' 0" A.F.F. 2' 2' ACT System 12' 0" A.F.F. GWB on Mtl. Stud 14' 0" FIRE EXIT 1 FIRE EXIT 2 A.F.F. 10' 0" A.F.F. 2' 2' ACT System 12' 0" A.F.F. 2' 2' ACT System 10' 0" A.F.F. GWB on Mtl. Stud 10' 0" JANITOR FOCUS SPACE STORAGE
11

GOALS

To promote authenticity, transparency, and connection.

To transport and immerse users into another culture.

13
HOSPITALITY CASITA | 2022

CONCEPT An invitation into the chef’s home, experiencing connection and immersion into his lively, colorful culture.

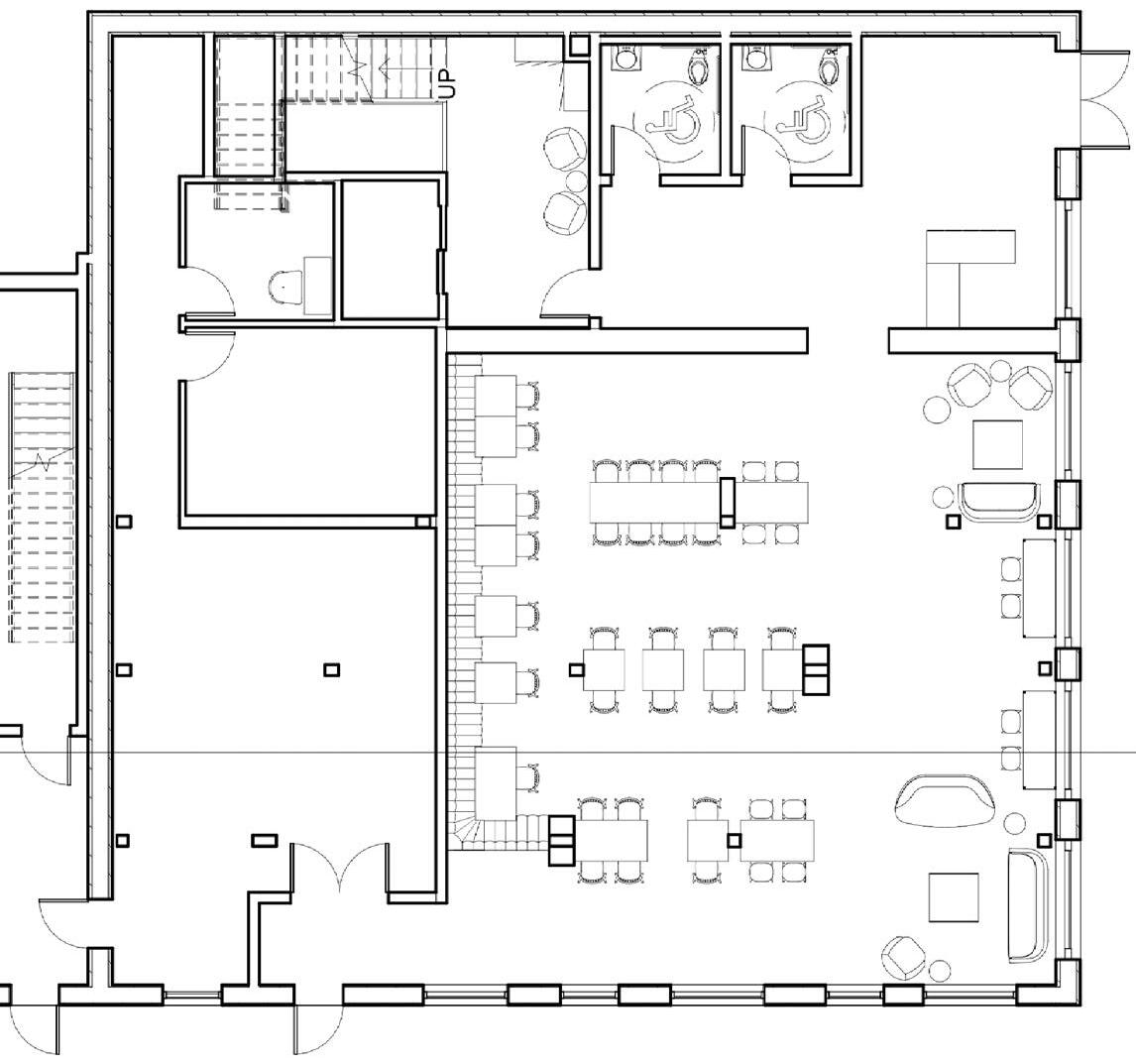
LEVEL 01 FURNITURE PLAN Paying homage to the chef’s heritage and traditional Mexican cuisine, the open layout encourages community and invites patrons to feel at home.

LOUNGE The first entry to the restaurant, a casual space for food, drinks, and conversation.

DINING Inspired by the dining table, this is the place to enjoy a formal meal with family, friends, and fellow guests.

HOTEL ENTRY

A private entry for guests to have their own space and feel secluded from the busy restaurant atmosphere.

15

GRAPHIC TRANSVERSE

PRIVATE LOUNGE Part of the hotel guest area, this bright lounge provides guests an area to relax without entering the restaurant.

LEVEL 02

FURNITURE PLAN H ome to the hotel and private guest space, the second floor is warm and inviting.

SECTION The section shows the stacking of the floors, walls, and ceiling in a 3D projection.

GUEST ROOM Each guest room reflects a unique aspect of the chef’s personality and is ADA compliant to provide equal access for all guests.

LOUNGE GRAPHIC ELEVATION With a variety of seating options, this space is multipurpose and encourages unexpected conversation.

17

HAND RENDERS

pen, marker, colored pencil |

2021-2022

VOLUMETRIC

the residential these renders

VOLUMETRIC SPACES Giving a glimpse into residential design for a house on the shore, renders convey the feel of each space.

GOALS

To experiment freely with rendering styles.

To improve physical drawings skills.

FURNITURE STUDIES Experiments with pattern, texture, and materiality inspire new ideas.

19

ARCHITECTURAL STUDIES

various materials | 2022-2023

REFUGE Utilizing curvilinear design elements and providing areas of escape and enclosure throughout the design promotes the feeling of refuge in a busy neighborhood.

GOALS

CONSTRUCTION MODEL Focusing on precise craftsmanship and measurements based on typical construction assembly reinforces knowledge of systems.

To understand fundamental architectural elements and principles. To explore materials and building methods in model making.

MATERIAL EXPLORATION Using various materials, this set of study models looks at the assets and limitations of typical model-making components.

21
THANK YOU.

Turn static files into dynamic content formats.

Create a flipbook
Issuu converts static files into: digital portfolios, online yearbooks, online catalogs, digital photo albums and more. Sign up and create your flipbook.