THE CORE | Capstone Highlight

Page 1

MELODY
| CAPSTONE | SEPT. 2023 - MARCH 2024
WAGUESPACK

AN EDUCATIONAL HUB THAT REFLECTS

AUTISTIC ADULTS’ NEEDS AND SUPPORTS

THEIR PROFESSIONAL DEVELOPMENT

THE CONTENTS THE RESEARCH 04 THE APPROACH 12 THE DESIGN 28 THE EXPERIENCE 32 03

THE RESEARCH

“AUTISM IS NOT A PROCESSING ERROR, IT’S A DIFFERENT OPERATING SYSTEM”
05

THE PROBLEM

85%

OF AUTISTIC ADULTS ARE UNEMPLOYED

50,000

STUDENTS WITH AUTISM SPECTRUM DISORDER

LEAVE THE EDUCATION SYSTEM EACH YEAR

% OF TEENS WITH ASD LEAVE HIGH SCHOOL WITH A TRANSITION GOAL OF EMPLOYMENT IN THE COMMUNITY

07

THE PROBLEM

WITHIN YEARS

ONLY % OBTAIN PAID EMPLOYMENT

AVERAGE HOURS PER WEEK 24.1 34.1 NT ASD WANT TO WORK PART TIME 47% AVERAGE TIME SPENT LOOKING FOR WORK 12 5 NT ASD mo. mo. OF THAT 35%... ASD - AUTISM SPECTRUM DISORDER | NT - NEUROTYPICAL 09

EMPLOYMENT MATTERS

THE GAP

LACK OF TRANSITION AID

SOCIAL STRESSES

ABSENCE OF STRUCTURE

SHORTAGE OF PROFESSIONAL RESOURCES

FLAWED COACHING METHODS

COMMUNICATION BARRIERS

STIGMA
11

THE APPROACH

THE QUESTIONS

HOW CAN AN INTERIOR ENVIRONMENT REFLECT THE UNIQUE ABILITIES

OF AUTISTIC ADULTS, RECOGNIZE SENSORY NEEDS, AND ENCOURAGE

FLEXIBILITY WITHIN NEEDED STRUCTURE?

HOW CAN SOCIAL CONNECTION BE ENCOURAGED IN SPACES FOR ADULTS

ON THE AUTISM SPECTRUM WHO STRUGGLE TO MEET NEUROTYPICAL

EXPECTATIONS OF COMMUNICATION?

HOW CAN A LEARNING ENVIRONMENT BEST SUPPORT AUTISTIC ADULTS’

PROFESSIONAL DEVELOPMENT WHILE PROMOTING OPENNESS FOR NEUROTYPICAL INDIVIDUALS TO UNDERSTAND AND EMPATHIZE WITH THEM?

13

THE THESIS

MORE THAN 40 % OF AUTISTIC ADULTS ARE LEFT WITHOUT LONG TERM PAID EMPLOYMENT AFTER HIGH SCHOOL

AN EXPANSION OF RESOURCES TO PROVIDE PROFESSIONAL DEVELOPMENT, INDIVIDUALIZED COACHING, AND COMMUNITY SUPPORT IS IMPERATIVE TO MOBILIZE THIS OVERLOOKED DEMOGRAPHIC AND PROMOTE LONG-TERM SUCCESS IN STABLE AND SATISFACTORY CAREERS.

15

THE GOALS

CULTIVATE A COMMUNITY THAT FOSTERS SOCIAL CONNECTIONS AND REDUCES EMPLOYMENT RELATED STRESS IN THE LIVES OF AUTISTIC ADULTS.

ENCOURAGE AUTISTIC ADULTS TO MAXIMIZE THEIR POTENTIAL, PURSUING A CAREER OF INTEREST WITHIN A BUILT ENVIRONMENT THAT SUPPORTS INDIVIDUALITY AND PERSONAL CHOICE.

EDUCATE NEUROTYPICAL PEOPLE ON THE STRENGTHS, SKILLS, AND DIFFERENCES OF PEOPLE WITH ASD, BY CREATING AN ENVIRONMENT THAT REFLECTS THEIR NEEDS AND INSPIRES AN EMPATHETIC UNDERSTANDING OF THEIR ABILITIES.

GROW PROTECT
17
SUPPORT

THE DESIGN THEORIES

PERSON ENVIRONMENT FIT THEORY THE IDEA THAT PEOPLE INFLUENCE THEIR ENVIRONMENT, AND THE ENVIRONMENT INFLUENCES THEM IN RETURN.

KOLBS LEARNING STYLE AND CYCLE THEORY HOW YOU LEARN: FROM CONCRETE

EXPERIENCE TO REFLECTIVE OBSERVATION, THEN ABSTRACT CONCEPTUALIZATION, AND FINALLY ACTIVE EXPERIMENTATION - SEE HOW THIS APPLIES AND CAN INFLUENCE SPACE OR PROGRAM OPTIONS.

CHANGE THEORY LETTING GO OF THE SYSTEM OR CUSTOM YOU KNOW - LEARNING TO ACCEPT CHANGE AND SEE A NEW PERSPECTIVE - GETTING USED TO THE NEW WAY AND ACCEPTING IT AS A NEW NORMAL.

650 H STREET NE

WASHINGTON, DC

THERE ARE 11,700 ADULTS DIAGNOSED WITH ASD IN WASHINGTON, DC

THE
SITE
19

THE USER EXPERIENCE

LIFE FEELS LIKE A GAME WHERE THE RULES ARE CONSTANTLY CHANGING WITHOUT RHYME OR REASON

PRIMARY USER

KNIHT F E EL SEE SAY AND DO HEAR THINK FEEL SEE SAY A N D D O RAEH
A new way to be productive White noise Anxious or overwhelmed Excited and curious How can I help? Leave with something to try at work Soothing colors Where to go through way nding A calming environment An engaging learning video Stop at the reception desk Sign up for a class Encouraged to push further Nervous, unsure how to act Low music or white noise Themselves think I never thought of that What if I said something wrong 21
SECONDARYUSER Will I t in? I’m tired of having to try Is this really going to help?

THE USERS

ASD - AUTISM SPECTRUM DISORDER

SPD - SENSORY PROCESSING DISORDER

IED - INTERMITTENT EXPLOSIVE DISORDER

PRIMARY USER

22 NON-BINARY

ASD Employment Be able to help younger sister when she goes through the same process

Transportation Accepting help from others

CAM

MATEO

PRIMARY USER SECONDARY USER

JENNA

25 MALE

ASD, SPD, IED

Job he likes

Support from workplace

Go to college

New places are overwhelming

Worried that it will try to “ x” him

31 FEMALE

Neurotypical

Understand ASD needs and apply in her workplace

Equip herself to work with an employee on the spectrum

Unfamiliarity

Fear of dismissal

23

THE USER JOURNEY

ARRIVE

CONNECT

INSPIRE

EDUCATE

SUSTAIN DEPART

REVITALIZE

25

THE CONCEPT

DIVERGENT COALESCENCE

INSPIRED BY SYMBIOTIC NETWORKS THAT CONNECT THE FOREST, THE EDUCATIONAL CENTER ACTS AS THE SOIL THAT PROTECTS, SUPPORTS, FILLS GAPS, AND FOSTERS GROWTH. THIS IS THE CORE FROM WHICH GROWTH BEGINS, STABILIZING AND PROVIDING OPPORTUNITY TO PROSPER. DIVERGENT COALESCENCE ENCOURAGES

MULTIPLE PERSPECTIVES, FINDING BALANCE BETWEEN THE HIDDEN AND EXPOSED. INTERTWINING THESE VIEWS CREATES CONNECTIONS, ALLOWING FOR COLLABORATION, COMMUNITY, AND REALIZED POTENTIAL.

27

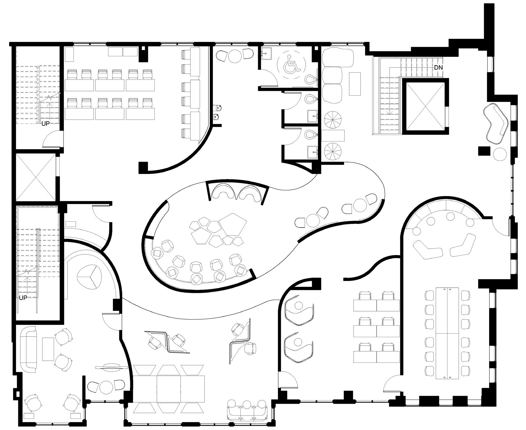
THE DESIGN

B - RESTROOMS

C - COACHING SPACE

D - WORKSHOP

E - SENSORY SOOTHING

F - RECHARGE WORKSPACE

G - MAKER SPACE

B D C F A G E LEVEL 00 A - PERSPECTIVE LIBRARY
29

B - RESTROOMS

C - GAME ROOM

D - PROSPER CAFE

E - ACTIVITY SPACE

F - SENSORY STIMULATION

G - LOBBY

H - GROUNDED WORKSPACE

B D C F G A H E LEVEL 01
A - EVENT SPACE

B - RESTROOMS

C - SENSORY STIMULATION

D - BALANCE ROOM

E - CONNECTION CENTER

F - SENSORY SOOTHING

G - NETWORK WORKSPACE

H - COMPUTER LAB

I - CLASSROOM

A - KITCHEN
B D C F G A H I E LEVEL 02 31

THE EXPERIENCE

PROSPER CAFE

33

GROUNDED WORKSPACE

PERSPECTIVE LIBRARY 35

RECHARGE WORKSPACE

RECHARGE NOOK

37

SENSORY STIMULATION

SENSORY SOOTHING

39

CONNECTION

CENTER
NETWORK WORKSPACE 41

ME AGAIN.

PROF. RICARDO ‘BORIS’ NAVARRO | SAVANNAH COLLEGE OF ART AND DESIGN

Turn static files into dynamic content formats.

Create a flipbook
Issuu converts static files into: digital portfolios, online yearbooks, online catalogs, digital photo albums and more. Sign up and create your flipbook.